

portfolio architectural
Shivam Chelkar
Hello.
My name is Shivam Chelkar. Here is my portfolio, a small preview of me. For me, design is done in reflection, with empathy for others and with a holistic approach to the problem. But it’s also in the meticulousness and details of our designs. Through this portfolio, you will discover my pleasure in designing and the rigour I apply.

About me.
Hello, my name is Shivam Chelkar. I am 21 and recently finished my third year of the B. Arch course in the Department of Architecture and Planning at NIT Calicut in Kerala.
I am now seeking for a 6-month or longer internship starting in June 2023.
I am both enthusiastic and professional. My objective is to use my love for solving issues to make myself valuable in my own manner. Captivated by everyone’s wants and ambitions. I want to learn new things and find new methods to express myself through travelling to different cultures.

CV.
education
National Institute of Technology
Calicut, Kerala
2020 - present
St. Xaviers High School
Bilaspur, Chhattisgarh 2011- 2019
proficiencies
design
photography model making architectural visualization contributions
CLUB: Forum for Dance and Dramatics
Designer and Event Coordination
RAGAM, TATHVA & Adizya
Bilaspur, Chhattisgarh, India 495001 +917470714415
meshivam.chelkar@gmail.com
shivam_b200133ar@nitc.ac.in
skills
autocad sketchup revit lumion photoshop illustrator indesign procreate MS office premier pro experiences
Meraki and co.
2 month internship (2022)
Designer and Public Relations languages english hindi





Shivam Chelkar Portfolio ‘23
WOODSIDE
RESIDENCE DESIGN

01
software: autocad, revit, enscape, photoshop area: 340 sqm
brief: design a residential space for the location of your choosing that meets the needs of a family of four with two teens, a busy father, and a homemaker.
Shivam Chelkar Portfolio ‘23


GROUND FLOOR PLAN
WOODSIDE can be accessed by pedestrian access points or via the vehicular gate. The home is zoned into public, semi-public and private zones with easy access points to reach spaces.
The design also follows the open floor layout ideas with minor restrictions to vision and circulation.

FIRST FLOOR PLAN
The top floor is a private space for parents and kids with personal terrace spaces and good surrounding views.
Floors are well-connected by floor cutouts and well-planned vertical circulation for easy movement and visual connectivity.

scan QR for working drawings and estimation costing detais
COURTYARD
PARKING
BACKYARD

SOUTH ELEVATIONS
Shivam Chelkar Portfolio ‘23
WEST ELEVATION
NORTH ELEVATION
EAST ELEVATION



Courtyard View from Living Room kitchen & Dining
INTERIOR RENDERS

Shivam Chelkar Portfolio ‘23
Living Room
WINDING
PAVILION DESIGN

02
software: autocad, revit, enscape, photoshop area: 211 sqm
brief: design an exhibition pavilion for a design institute to host small events, presentations, and showcase the institute’s best works.
Shivam Chelkar Portfolio ‘23

FLOOR PLAN
The pavilion has three activity zones: assembly, activity, and exhibition. The main entrance leads to the gathering room and activity area, which are flexible areas suited to hold short presentations and conversations; afterwards is the dedicated display section.
Shivam Chelkar Portfolio ‘23

Shivam Chelkar Portfolio ‘23


PROJECT RENDERS

Shivam Chelkar Portfolio ‘23
Indoor Exhibition Space
Amphitheater Pavilion Entrance
SID
INSTITUTE DESIGN

software: autocad, revit, enscape, photoshop area: 19000 sqm
brief: design an institutional environment that satisfies the needs of students enrolled in a four-year design programme. The institute is required to meet the fundamental standards of a design school and promote social activities.
Shivam Chelkar Portfolio ‘23


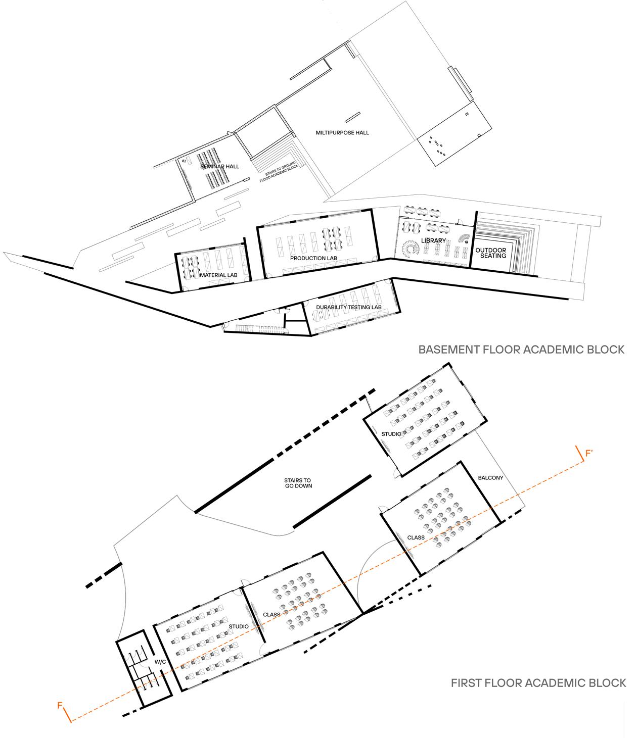
The master plan shows the site’s academic, admin, workshop, auditorium, and canteen arrangement. The primary and secondary spines in the area ease the pedestrian circulation between different buildings.

scan QR for more PROJECT DETAILS


SITE SECTION
Shivam Chelkar Portfolio ‘23


SECTIONS


Shivam Chelkar Portfolio ‘23

Conference Hall in Admin building

Outdoor Reacreational space near Workshop

RENDERS

Auditorium

Shivam Chelkar Portfolio ‘23
HARD SKILLS
MODEL MAKING



model MAKING
Shivam Chelkar Portfolio ‘23
SOFT SKILLS
WORKING DRAWING

Residence: Ground Floor Plan

Commercial Complex Elevations scale 1:100 scale 1:300

Shivam Chelkar Portfolio ‘23
THROUGH THE LANES OF MELUKOTE
DOCUMENTATION

04
brief: Document the people’s lifestyles and experiences in Melukote. Record its historical significance as well as the architecture of a monumental tower and structures.
melukote
Shivam Chelkar Portfolio ‘23



DOCUMENTATAION PRESENTATION SHEET





Shivam Chelkar Portfolio ‘23
SHUTTERS
SELECTED PHOTOGRAPHS

selected works from my small journey
Shivam Chelkar Portfolio ‘23






Shivam Chelkar Portfolio ‘23





PORTRAITS
Shivam Chelkar Portfolio ‘23





MISCELLANEOUS
Shivam Chelkar Portfolio ‘23
