PORTFOLIO

Page 1


ARCHITECTURE

FATHMATH SIUZA

TT9: ARCHITECTURE INTERNSHIP

GIBERT&TAN ARCHITECTS

KURAU 44: ARCHITECTURE INTERNSHIP

GIBERT&TAN ARCHITECTS

BAMBOO PLANTER SPACE

CULTURE ARTISTRY: REVALUE THE CURVES

ARCHITECTURE OF EMPOWERMENTAN ODE TO PAPAN

ARCHITECTURE OF COMMEMORATION : EDITH OF MALAYA

MODEL MAKING

PHYSICAL MODEL

MISCELLANEOUS WORKS

ILLUSTRATIONS AND DETAILS

01

Project TT9

Typology: Bungalow home

Location: No.9, Tangsian Tinga, Kuala Lumpur

TT9 is a renovation project of Creative sdn.Bhd located in Tangsian Tinga, Kuala Lumpur. It involves the renovation and extension of a bungalow home. The project preserves the vintage charms of the existing building while integrating modern upgrades to accommodate contemporary lifestyle preferences.

My primary responsibility for the project involved 3D modeling and rendering for the proposal. There was an existing 3D model with a previous design, which required updates to incorporate a new terrain model, as well as revision to the main house and the individual units.

To address this challenge, Rhino was used to create the new terrain, as the existing model was not editable due to it’s creation in a different 3D modeling software. The new individual units was modeled by me, as well as implementation of texture, vegetation, and furniture placement within the spaces to complement the design. In addition to that I contributed to producing renderings using Lumion and further refined the visuals using Photoshop.

The timber used in the design echoes the texture and color found in the surrounding forest. Rich, natural tones of timber blend harmoniously with the greenery creating a sense of continuity from the exterior environment into the interior space. And the steel components serve adds a touch of industrial sophistication while maintaining the overall warmth and natural feel of the space. Through this process I ensured that the proposal accurately represented the directors requirement and vision for the renovation and extension for the bungalow home.

Old uneditable terrain done in SketchUp New terrain done with Rhino Final Terrain

02

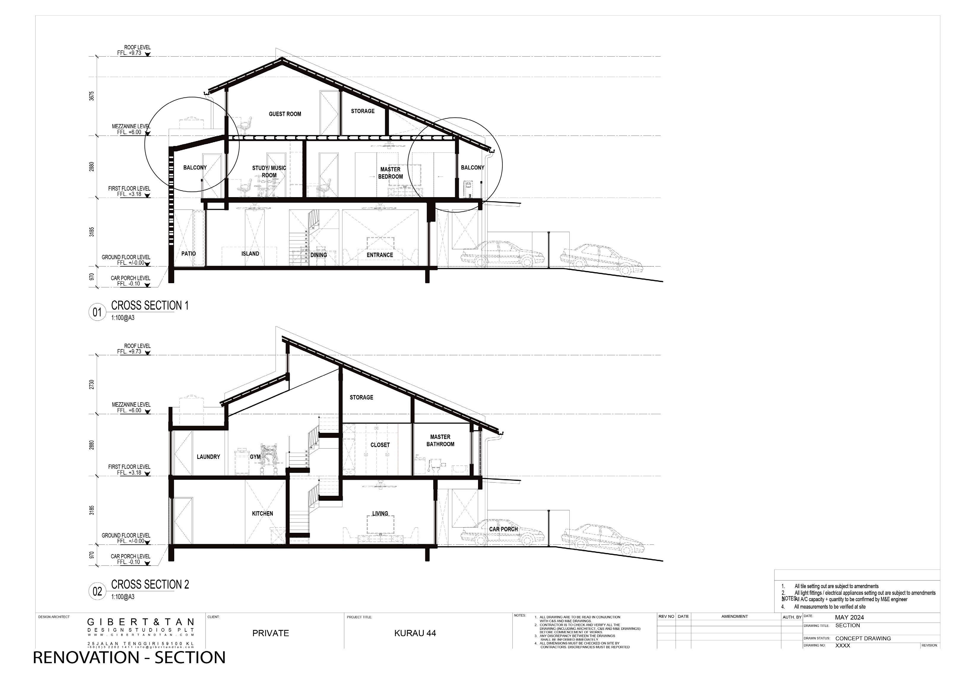
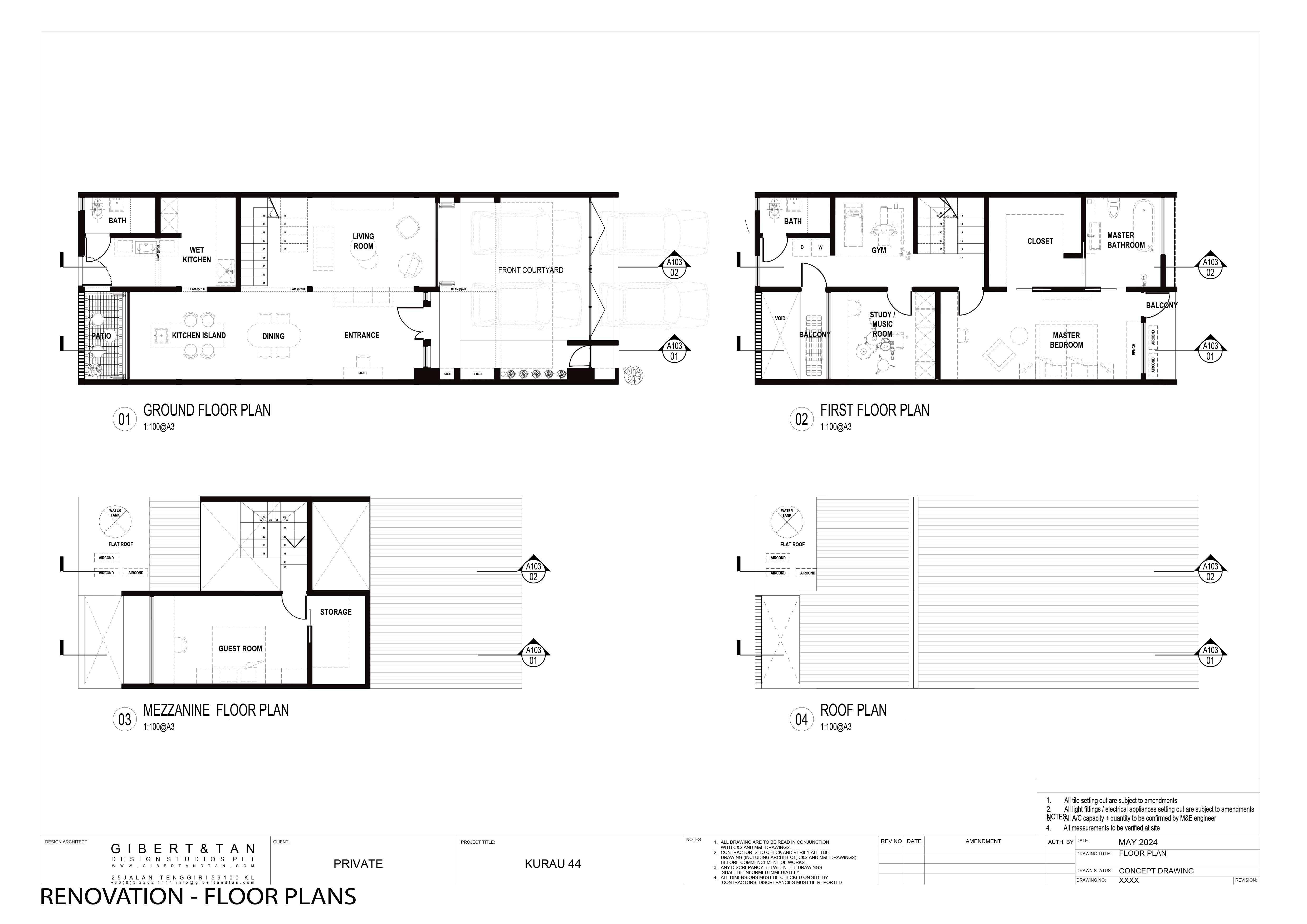
Kurau 44

Typology: Shophouse

Location: Bangsar Baru, Kuala Lumpur

Kurau 44 is a renovation project of a shophouse aimed at enhancing an existing residential building in Bangsar. The existing building presents challenges such as minimal airflow and limited sunlight in certain areas. In response to that, a patio was introduced adorned with greenery to enhance the outdoor ambiance, and airflow with creation of a more inviting entrance. Additionally, the project aimed to incorporate a parking space for 4 cars along with a spacious living room, dining area, master bedroom, kids room, and accompanying toilets.

I participated in the site and creating 3D modeling of the existing building to study the site better, as well as presentation diagrams illustrating airflow and roof components for the proposal of the renovation concept. I was also assigned to come up with new arrangements for the floor plan and sections to accommodate the new updates to the design. Additionally, I developed the presentation slides to effectively communicate these updates.

Concept Diagrams

Air & Light

The entrances leading to the reinstated skylight facilitate stack effect ventilation and introduce natural light into the house

Cross Ventilation

Spacious opening allow for effective airflow throughout the house, complimented by the natural greenery in the surrounding yards

Green Filter

Front yard, central yard, and backyard enhances privacy and creates a cooling buffer cross ventilation.

The entrance holds four car parks as requested by the client with a foldable gate for cars to pass

Facade Design

The primary objective of the facade design for this project was to maximize natural light in the master bathroom and bedroom while ensuring privacy from the main street. Ventilation blocks were chosen for their ability to achieve these goals effectively, serving as both a light source and a privacy screen, while also enhancing the overall aesthetic appeal. Additionally, bricks were considered as another option to match the interior patio design, serving dual purposes as a screen and maintaining design continuity throughout the project.

1. Design started with a simple 2D Spiral

Bamboo Planter Space

Typology: Pavilion

Location: Park

The Bamboo Planter Space is a 2.4m x 2.4m x 2.4m architectural structure encircling a tree, supported by four bamboo elements anchored to the ground and a spiral metal hanger. Designed as a child-friendly attraction within a park, the concept int grates phenomenology to engage users through multiple senses. The suspended bamboo elements function as a xylophone, allowing interaction to produce delightful sounds. This space aims to evoke nostalgic childhood memories by utilizing bamboo as a material, prompting users to recall moments of sitting beneath a tree, enjoying the tranquility of nature and music. The spiral arrangement of varying bamboo lengths introduces movement and rhythm, creating a visually dynamic and seemingly floating composition from a distance.

2. Added depth and volume

3. Added rhythmic wavy pattern to the volume for movement

4. Created voids with repetition of bamboo sticks, leaving spaces between each other to create sound when wind blows as an interactive element for users.

Spiral steel ring acts as the support for the hanging bamboos

Rope connected to metal rings holds the bamboos in place

100mm Metal rings

36mm Bamboo sticks arranges in a wavy pattern which gives the structure its minimalist design

Concrete platform for visitors to relax

2300mm Bamboo posts to support the weight of the whole structure

225mmx365mm concrete footing

A PLACE TO READ
A PLACE TO ENJOY
A PLACE TO ESCAPE FROM CITY LIFE

An Ode to Papan

Typology: Memorial

Location: Melaka, Malaysia

Tucked below the valley adorned within, a village bloomed

Papan was the name and lumber they endowed before tin they mined Its hearth inviting such life to flourish, from west and east they gathered

With color so vibrant on lively streets, they strived and thrived

Until Malaya cast a shadow by banner of sun

And Papan was the refuge when its neighbors were undone

To refuge in Papan, a nurse with her doctor spouse from Ipoh came To heal the people was their aim, until their home was lit a flame

Amid the rains of shrapnel they fled, the banners of sun were to blame

In the shop houses turned clinic she practiced her medicine

But the sun banners rose on Papan as well on Ipoh they did

And the news from the world the enemies forbid

But the radio she called Josephine, she listened and hid

Holding faith devoted in heart, continuing to serve she went

Adorned by the people were they, the nurse and doctor of the bereft

Amongst the grateful, the guerrilla resistance were present

Her healing touch to wounds and Josephine’s words to their ears she spent

Until the enemy had caught her ruse, and so began her torment

Boots, canes and pliers came for her blood, but nothing broke such iron will

Upon freedom she crawled to god, as her faith was not shaken still

At last on Malaya the sun did set, the enemies awaited their fate

Justice thanked her for her truths, as her testimonies did hold such weight

What lay in the wake of the war on Papan

A desolate land with ghosts a many and people few

Once so radiant now so bleak, Papan today has forgotten its roots

The land she fought to serve and bleed. For her they now so seldom salutes

Sybil Kathigasu was her name, speak it from Papan to Ipoh

Sybil Kathigasu, where’s her name? On monuments and plaques it belongs

Sybil Kathigasu, let her legacy inspire, let her memory bloom

Sybil Kathigasu, speak it often and enough, let it not be forgotten

Urban Strategy

The design concept enters on providing visitors with an immersive journey, allowing them to transverse Sybil’s path from Ipoh to Papan. The narrative unfolds through key stages encompassing her impactful role as a compassionate aid, the harrowing experiences she endured in captivity, and the sacrifices she selflessly made for Papan and its people. Each program is meticulously crafted from collages, enriching the architectural experience with a layered and evocative story telling approach.

FAITH
LOOKING BACK
HECTIC
HELPING HAND

Looking back

Once a lively entertainment hub, seeks revival by reintroducing historical recreational activities like tennis and basketball. This initiative aims to foster community development and restore the town’s sense of communal camaraderie, attracting both residents and visitors to revitalize its economic and cultural vibrancy.

Sybil’s steadfast self-belief served as a pillar of strength during challenging times, guiding her through adversity and enabling her to make crucial decisions for the benefit of Papan’s residents. Her extraordinary courage, faith, and sacrifices are honored through a monument and clinic dedicated in her name, symbolizing her lasting impact and contributions to the community.

Faith

During the turmoil of war, Sybil emerged as a symbol of hope in Papan by providing aid and demonstrating resilience through her medical skills and bravery. Similarly, a program such as community medicinal farming holds promise as a beacon of hope for the town’s development, nurturing both economic growth and community well-being.

Helping hand

Remembrance Hectic

To preserve Sybil’s historical significance for future generations, a cultural village has been envisioned as a tribute, integrating narratives about her to ensure her legacy endures. Beyond honoring Sybil, the cultural village serves as a repository for Papan’s heritage, safeguarding local crafts and delicacies, thereby promoting cultural preservation and awareness among the younger generation.

Encompassing elements such as markets and festivals, the design aims to encapsulate the bustling atmosphere reminiscent of the challenging days when Sybil departed from Ipoh to Papan.

ENTRANCE

FESTIVAL HUB HEALING GARDEN

Community farming close to jungle for possible expansion Next to cemetery for Chinese traditions MARKET

CLINIC LIBRARY

SYBIL PARK GATEWAY

RECREATION CENTRE LANTERN SHOW

MONUMENT

FINALE LOOKING BACK WELCOMING

to liven this area

Close to residential houses

HECTIC

CULTURAL VILLAGE

HELPING HAND

AGING PEOPLE WITH NO WORK & IN NEED OF HEALTH CARE

REMEMBRANCE

CHILDREN
SMALL BUSINESS
VISITORS
OLD HERITAGE BUILDINGS

Papan community house

The planned building concept is to promote community empowerment via Sybil Kathigasu’s stories and journey, using her legacy to bring the community together. The goal was to take visitors on a trip through focuses on strengthening the current community by offering programs in the subjects of COMMEMORATING, BUILDING, and CONNECTING. The programs are arranged utilizing the three concepts to take guests on a unique trip emotionally to relate to Sybil’s story.

SITE PLAN
SECTION A-A

05

Physical Models

Miscelleneous Works

Turn static files into dynamic content formats.

Create a flipbook
Issuu converts static files into: digital portfolios, online yearbooks, online catalogs, digital photo albums and more. Sign up and create your flipbook.
PORTFOLIO by whatever girlll - Issuu