PORTAFOLIO UNIVERSITARIO_MURGA SHIANNE

Page 1


Proyectos realizados en la universidad y cursos , donde se refleja mi progreso como profesional.

Museum of Modern Literature / David Chipperfield

TEMA 01

PROYECTO EN ANCON”

TRABAJO UNIVERSITARIO

TEMA 03

SALA - COMEDOR

CURSO “REMODELACION Y SUPERVICION DE INTERIORES

03 04 05

TEMA 05

CASA EQUIS CURSO ARCHICAD 24

TEMA 02

CENTRO DE INVESTIGACION E INDUSTRIALIZACION DEL COPOAZU EN PUERTO MALDONADO TRABAJO UNIVERSITARIO

TEMA 04

COCINA - CASA CUBA

Practicas Pre Profesionales FORZA- Arquitectura y Construcción

Información

Personal

soy Shianne Murga !!

Egresada de la carrera de Arquitectura, Urbanismo y Territorio en 2022. Con conocimientos en el área de diseño arquitectónico y urbanístico. Con habilidades en el modelado 3D, renderizado y manejo de software profesionales para la presentación de proyectos arquitectónicos como AutoCAD, SketchUp entre otros. Además, cuento con actitudes para el trabajo en equipo, compromiso y disposición de aprendizaje.

Edad | 23 años

Correo | shiannemurgaq@gmail.com shianne.murga@usil.pe

Celular | +51 922 832 268

Ciudad | Lima, Perú

Educación y Formación Profesional

-Académica-

Arquitectura |

Universidad San Ignacio de Loyola

2017-2022 Educacion Superior

Carrera de Arquitectura, Urbanismo y Territorio

-Egresada 2022- 01

Ingles | A1- A2 - B1

La Asociación Cultural Peruano Británica

“BRITANICO”

2019 - Actualmente

-Formación Complementaria-

2020 |

Estudio de arquitectura ARKO

Curso basico"Sketch Up pro, V-ray next 4.0, Lumion y Photoshop 2018"

Curso basico e intermedio "REVIT 2019"

2021 |

EA-LIMA - Escuela de arquitectura de Lima

Curso de Diseño Gráfico para Arquitectos

(Illustrator CC+ Photoshop CC + InDesing CC+ Autocad 2D y SketchUP)

2022 |

EA-LIMA - Escuela de arquitectura de Lima

Curso de Archicad 25 + Twinmotion

2023 |

RED Arquitectura y Diseño

Remodelación y Supervisión de Obras en Interiore

Workshops / Seminarios

2020|

Congreso

Participacion del 1.er Congreso de Arquitectura, Urbanismo y Territorio, Organizado por la Facultad de Arquitectura de la Universidad San Ignacio de Loyola

Programas Experiencia Laboral

KALPAT S.A.C - PRACTICAS PROFESIONALES

ASISTENTE DE PROYECTOS | Noviembre 2022 - Marzo

-Planimetría

-Apoyo en Metrados, valorizaciones y liquidación

-Alzado en 3D

-Renderizados

Habilidades

Liderazgo

Idiomas

Inglés

PLAYA SAN BARTOLO FOTOGRAFIA : PROPIA

ResidenciaQhapac Ñam

Introducción: Es una zona residencial de densidad alta, en donde se busca dar solución a las problemáticas de déficit de vivienda en Ancón.

Los objetivos de este proyecto son:

1. Funcional: Crear espacios accesibles a todo tipo de necesidades dentro de esta residencia, ayudando a disminuir el déficit de vivienda.

2. Organización e Integracion: Crear espacios flexibles para actividades de ocio, culturales y/o económicas. Potenciar las áreas públicas, con una alta mixtura en las dinámicas, para una mayor integración entre los residentes.

3. Sostenible: Crear espacios sostenibles con huertos urbanos, y una estructura sostenible a base de paneles solares.

Localización : Lima, Distrito de Ancón

Ciclo : ______________________2020-02

Institución: ______________________Usil

COMERCIO

VIVIENDA

Conexion e Integracion de la Macromanzana

LEYENDA

ZONAS RESIDENCIALES

RESIDENCIAL DENSIDAD MEDIA

RESIDENCIAL DENSIDAD ALTA

ZONAS DE USOS ESPECIALES

EDUCACION

SALUD

RECREACION

OTROS USOS

LEYENDA

VIA EXPRESA

VIA ARTERIAL

VIA COLECTORA

VIA INDUSTRIAL PERIURBANA

TREN DE CERCANIAS

INTERCAMBIO VIAL NODOS

PLANEMIENTO

INTEGRAL

En el poligono propuesto de integra las vias existentes con vias nuevas propuestas para la integracion.

Se realiazo un Planeamiento Integral con un contexto mas sostenible. Integrado por nodos, y equipamientos importantes

Este proyecto cuenta con 4 edificios de 1123 departamentos, diseñado para familias de 3 - 5 miembros. Cuenta con areas comunes , areas comerciales ubicados en las primeras plantas y enfocado principalmente en los huertos , que estaran ubicados en los techos verdes.

Se proponen 3 tipologias de departamentos , para vivienda colectiva para familias de 2-4 hijos.

Buscando que el espacio sea funcional y compacto para el cliente, y esto les brinde una mejor calidad de vida

TIPO A

“La casa debe ser el estuche de la vida, la máquina de la felicidad.”

TIPO B

TIPO C

-Cocina

-Lavanderia

-Sala/Comedor -Terraza

-Dormitorio Principal c/baño

-Dormitorio 02 -Baño

93.00 m2

-Cocina

-Lavanderia

-Sala/Comedor -Terraza

-Dormitorio Principal c/baño

-Dormitorio 02

-Dormitorio 03

-Baño

97.00 m2

-Cocina

-Lavanderia

-Sala/Comedor -Terraza

-Dormitorio Principal c/baño

-Dormitorio 02

-Dormitorio 03

-Baño

Le Corbusier

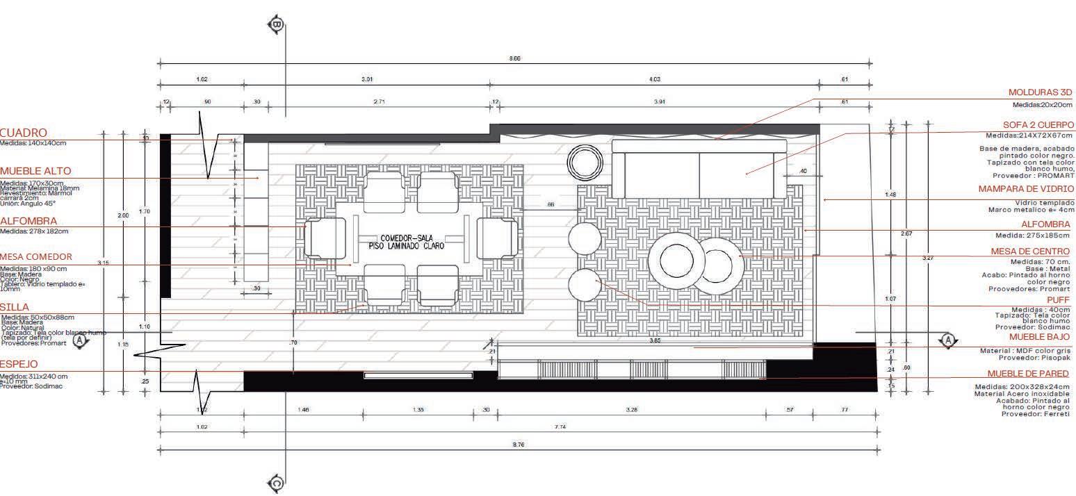
DISEÑO DE SALA - COMEDOR

RUSTICO- INDUSTRIAL

En un modelo de departamento tipo C, se propone un diseño rustico - industrial.

Donde se utiliza primordialmente una paleta de colores naturales

El elemento clave del diseño industrial se basa en los perfiles de acero pintados al negro mate, se proponen muebles modernos, que vaya de acuerdo a la paleta de colores propuesta.

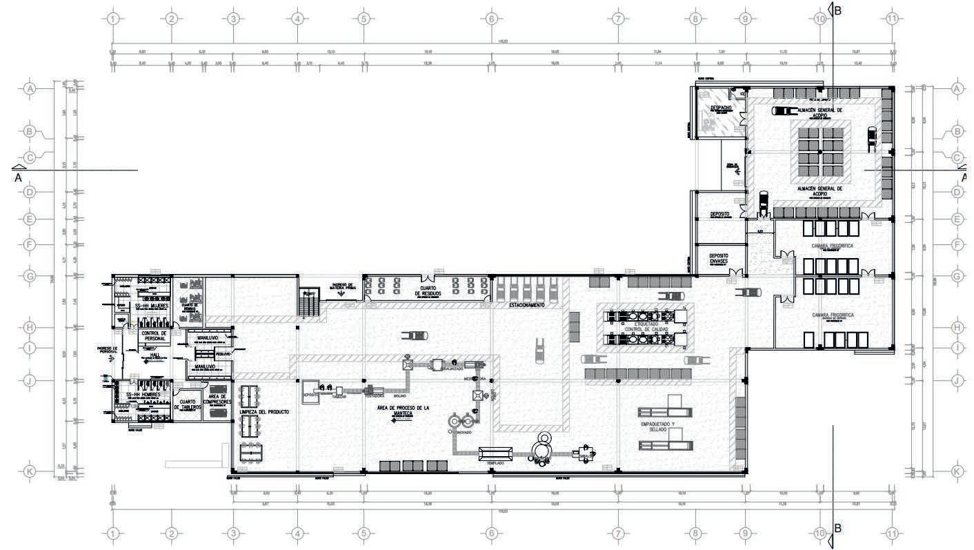
Centro de Investigacion e Industrializacion del Copoazu

Introducción:

Establecer un Centro de Innovación Productiva y Transferencia Tecnológica e Industrializacion del Copoazú en Puerto Maldonado este tiene como fin cubrir la necesidad de contar con una institución que promueve la innovación e impulse el uso de nuevas tecnologías entre los productores, empresas, asociaciones, cooperativas de la ciudad de Puerto Maldonado, permitiendo que los agricultores locales tengan mayores y mejores oportunidades para la comercialización de sus productos.

Localización : Puerto Maldonado, M.D Ciclo : ______________________2021-02 - 2022 -01

Institución: ______________________Usil

LEYENDA

PROPUESTA DE MOVILIDAD

El proyecto propuesto cuenta con una ruta para ciclovias , que conectan equipamientos principales y calles. Priorizando con este una movilidad sostenible.

Tambien se propone 2 lineas de bus, que conectan los centros poblados aledaños con la ciudad y propuesta. La segunda linea conecta el interior del poligono a trabajar. llegando a puntos especificos, que se proyectan tendran mayor flujo.

La propuesta de planeamiento integral se encuentra en la ciudad de Puerto Maldonado en el departamento de Madre de Dios, exactamente en el la esperanza, que es un area proyectada para un crecimiento futuro de la ciudad.

Se busca integrar principales como la via interoceanica y con las vias propuestas.

Tambien en este se proyecta areas destinadas para viviendas y equipamiento ya previamente seleccionado con estudios realizados en la zona

1. HOSPITAL III 2. RESORT 3. CITE COPOAZU 4. CENTRO COMERCIAL 5. PARQUE ZONAL 6. POLIDEPORTIVO

La amazonia peruana tiene el arte kene, el arte reflejado en las figuras geometricas y la espiritualidad. En este se escogio el Ronin , que significa anaconda.

Esta figura , muestra a la anaconda enrollada, dejando un espacio central que conecta el resto de espacios.

-Centralidad -Conexion

-Geometria

Esto sera reflejado en la infraestructa y materialidad

USUARIO PRINCIPAL

1.Agricultores

2.Investigadores

3.Estudiantes Universitarios

USUARIO SECUNDARIO

1.Turistas

2.Compradores

3.Curiosos

ANACONDA
ARTE KENE
PROPUESTA
1.Planta de procesamiento de Manteca
3. Residencia para estudiantes y investiadores4.Centro de exposiciones5. Galeria Ferial Interior6. Galeria Ferial Exterior
2. Centro de Innovacion productiva y transferencia tecnologica agricola

COLCHÓN VERDE

Se proyecta hileras de árboles de forma conífera y de gran altura cerca a la zona residencial.

CASUARINAS O PINOS

INCIDENCIA SOLAR

BOSQUE
VIENTOS

La pérgola está diseñada a base del concepto arte kene, con los patrones geométricos .S

EJE DE CONEXIÓN

La organización espacial de las áreas de proyectos tiene conexión a través de la cobertura virtual que está sobre las áreas de circulación, creando un recorrido integrado entre las unidades del terreno.

Teniendo un Centro Repartidor , iniciando en la Galeria Ferial Exterior.

PERSONAL DE PRODUCCION

PERSONAL ADMINISTRATIVO PERSNAL DE SERVICIO RECORRIDO DE LA PRODUCCION

FLUJOGRAMA

ADMINISTRACIÓN Y SERVICIO CIRCULACIÓN VERTICAL Y ESTAR

ÁREA COMÚN BIBLIOTECA LABORATORIOS Y AULAS

Primera Planta Segunda Planta
Tercera Planta
Primera Planta

Vista aerea de la zona privada, donde se encuentra la zona de residencia y area de investigacion

Vista de el ingreso a la Galeria Ferial exterior donde se visualiza la pergola inspirada en el arte Kene de la amazonia peruana.

Vista del area de investigacion para investigadores y estudiantes.

Vista interna del Hall del A. de exposicion en doble altura, donde se muestran las artesanias y hechas de copoazu y otros elementos de la amazonia de Madre de Dios.

Vista de los laboratorios para la investigacion del copoazu. Ingreso filtro para el area de investigacion

Institución: ______________________Reddy

Diseño : _________________________ALKA

Año: ____________________________2023

Curso

Remodelacion y Supervicion de Interiores

Introducción:

En el curso estudiamos la remodelacion de la sala- comedor “El Molino” dentro de una residencial junto al estudio ALKA y la institucion Reddy. Remodelar la sala y comedor existente en el departamento del cliente, brindando comodidad previamente investigando a los integrantes de esta vivienda y de acuerdo a sus necesidades.

MUEBLE DE TV

ELEVADO DE ACERO

INOXIDABLE

PINTADO AL

MUEBLE DE TV

MUEBLE DE TV BAJO DE MDF COLOR GRIS

Vista de mueble de TV diseñado con perfiles de acero

negro pintado al mate

negro

Vista de comedor con el mueble elevado hecho con marmol

Vista Interior de la sala con molduras en 3D detras del sofa, con muebles diseñados a medida del espacio.

Diseño : _________________________FORZA

Año: ____________________________2022

Practicas

Apoyo en diseño de Interiores

Introducción:

En Forza se propuso un edificio de 5 plantas , donde se diseño en el segundo nivel a detalle la cocina, y baño. Teniendo en cuenta las necesidades del cliente que queria destacas las costumbres y arte de Huancayo.

Por ende, se destaca el estilo rustico hogareño, con una mezcla de estilo arquitectonico Boho.

Usuarios: Familia contituida por 3 personas , proveniente de la ciudad de Huancayo.

Propuesta: Diseño de Cocina , Comedor y SSHH

El proyecto se plantea en la ciudad de Chiclayo, para la familia

Cuba, teniendo en cuenta las raices del usuario se elabora un diseño en dichos espacios.

Se toma en concideracion las peticiones del usuario conrespecto al estilo rustico y boho.

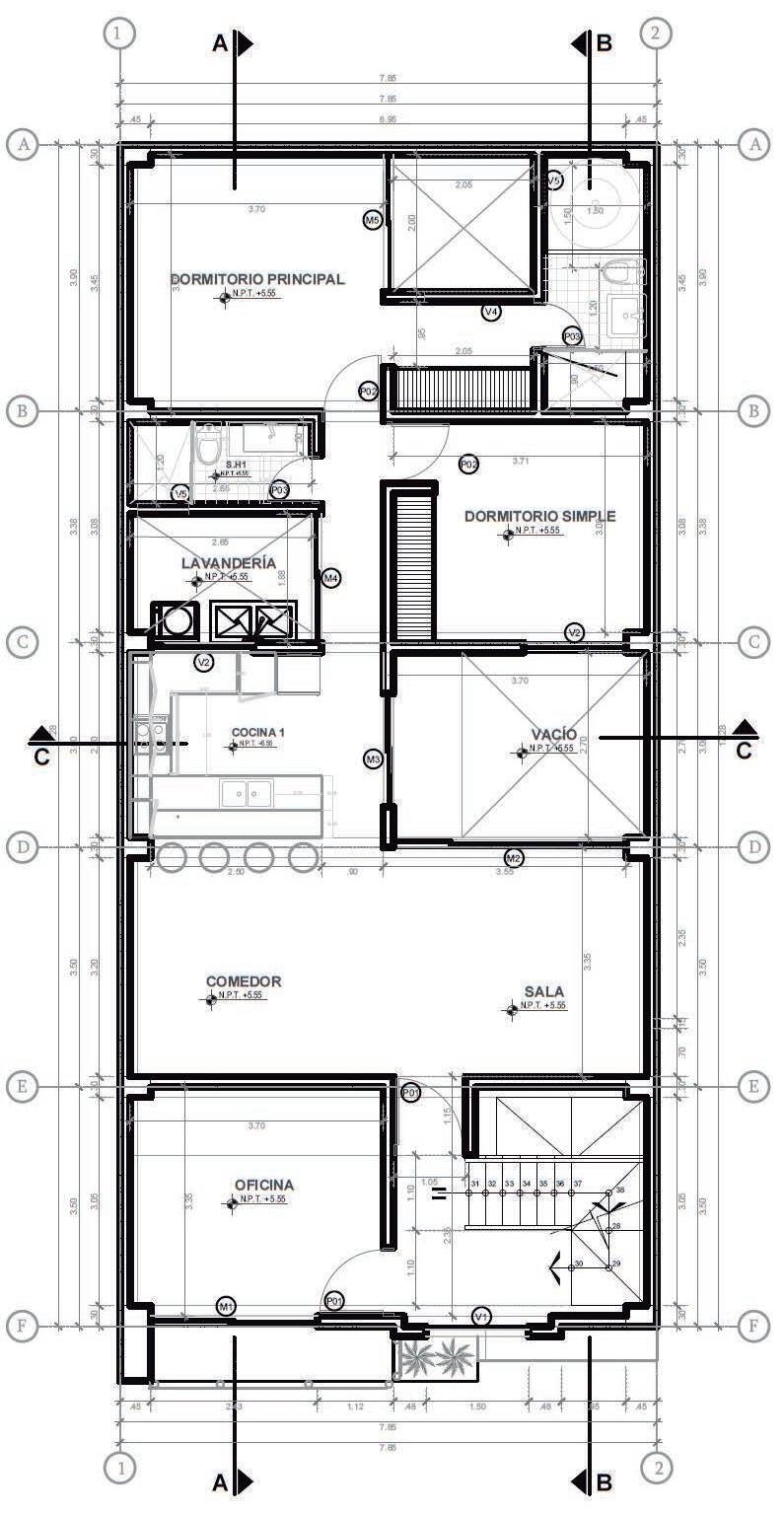
ISOMETRIA

SEGUNDA PLANTA

Oficina
Cocina
Comedor
Sala
Terraza
Lavanderia
PLANTA DE COCINA
PLANTA DE BAÑO

Curso Archicad

Introducción:

Este trabajo fue para estudiar la Casa Equis hecha en 2003 por el estudio Barclay, que acostumbra a trabajar en el programa Archicad.

Segun la informacion rescatada por el estudio Barclay , el proyecto surge de un proceso de reflexión sobre ciertos factores que consideramos esenciales: las condiciones climáticas de la costa peruana, las características geográficas de la costa en la que se ubicaría la vivienda y las necesidades del cliente.

Realizado en Archicad 24

Realizado en Archicad 24
Realizado en Archicad 24

Vista interior del pasadizo donde las vigas son un elemento arquitectonico.

Vista de las escaleras diseñadas como elemento arquitectonico

Vista exterior, de la cada equis modelada en Archicad

Turn static files into dynamic content formats.

Create a flipbook
Issuu converts static files into: digital portfolios, online yearbooks, online catalogs, digital photo albums and more. Sign up and create your flipbook.