Skip to main content

Shft — BIM Services in Construction

Page 1


“You don’t have to be anxious about not understanding BIM or knowing how to get it done yourself.

Our team at Shft know the tools, love the technology, and deliver the results you need so you can stop worrying about it and focus on your project’s success instead.”

Your Digital Future Matters Your Future Matters

At Shft, we know your business needs BIM to stay competitive. We know it will help you get more projects, tender for more jobs, and thrive in construction’s digital future.

But BIM is difficult to get your head around. And like most things today, it requires the sort of technical expertise that is hard to grasp when your project is already facing tight timeframes and increasing demands. It’s a lot, especially on top of everything else you are managing.

We get that BIM is an unchartered requirement of your business that is causing you stress. Digital-first construction projects can be overwhelming, and BIM is hard to implement. But you don’t have to be anxious about not understanding BIM or knowing how to get it done yourself.

We believe you deserve to find the right partner you can trust to get BIM done. This is where Shft comes in. As BIM specialists, our team has shifted its 20+ years of combined architecture and construction experience towards BIM, so you don’t have to.

We know the tools, love the technology, and deliver the results you need so you can stop worrying about it and focus on your project’s success instead.

Your collaboration with Shft will take the weight of increasing digital demands off your shoulders. It means you can confidently move forward into the digital era, deliver on every aspect of your project, and embrace future opportunities for your business.

Powering your digital future, Team Shft

Who is Shft?

Many contractors and asset owners are reluctant to embrace their digital future because they do not have the resources to fold it into their business as a core competency.

As the industry races towards that digital crossroad, it means more and more risk their potential future, putting incredibly talented teams and important projects in jeopardy.

At Shft, our core responsibility is to make sure that doesn’t happen. Digital construction is in our DNA, allowing us to bridge the gap for our customers by becoming their in-house team, allowing contractors and asset owners of all sizes to thrive in the digital future while staying true to their core.

We exist to make sure that contractors and asset owners of all sizes in the construction industry have a digital future, so they can continue to focus on what they do best--building for tomorrow.

We are a digital construction agency that specialises in providing BIM services at scale to contractors and asset owners in the UK. We take the headache out of helping construction companies achieve their digital goals and meet new project responsibilities without doing it themselves.

Our Ser vices Services

BIM Consulting 01/02/03/

Many construction companies struggle to understand and implement BIM across their projects. It’s stressful and tiresome. But if you don’t become BIM-savvy, it could turn into a real problem, causing delays and even loss of trade and clients

Without an effective strategy, you stand to lose. In the modern construction landscape, not having a BIM strategy could result in missed risks, higher costs, and even lost projects

BIM projects involve a diverse range of factors and teams. The challenge is to get everything to work in symphony to ensure that your design is done right and fully resolved.

BIM Strategy
BIM Coordination

Construction Drawings

Digital Project Management

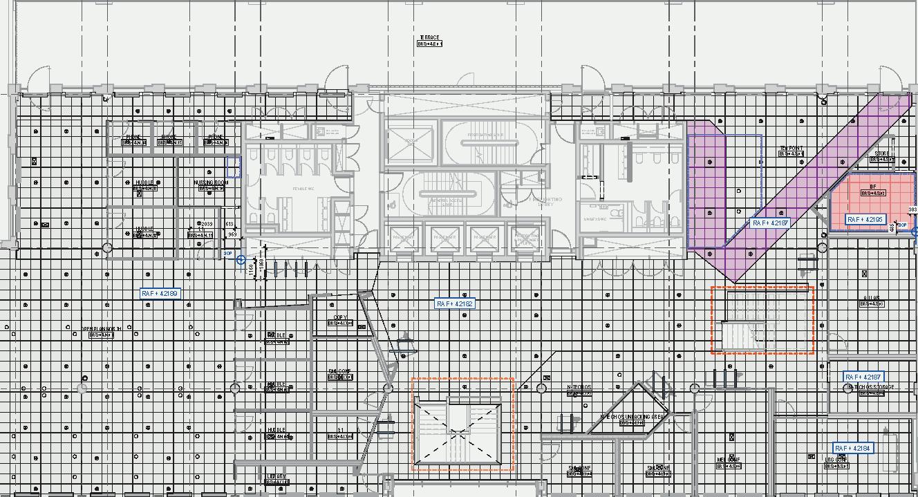
3D BIM modelling has become an essential part of coordinating and strategising modern construction projects. It creates an accurate, efficient, and collaborative design platform that assists in the decision-making process.

At Shft, we understand that you must have accurate and up-to-date technical design drawings to analyse and understand projects in detail.

At Shft, we use Building Information Modelling (BIM) to manage projects digitally throughout their entire lifecycle— from before construction begins to the very last nail hit.

3D BIM Modelling

BIM Consulting

Many construction companies struggle to understand and implement BIM across their projects. It’s stressful and tiresome. But if you don’t become BIM-savvy, it could turn into a real problem, causing delays and even loss of trade and clients.

Embrace BIM, and you’ll reap several benefits:

+ Identify problems and risks before they occur on-site

+ Reduce costs and increase sustainability

+ Improve project planning and management

+ Engage and communicate more effectively

+ Boost efficiency and productivity

+ Fully envisage projects with 3D imaging

The problem is, most companies don’t have the tools to implement BIM in-house. And it is tough to find a knowledgeable and reliable team to work with.

That’s why, here at Shft, we call on our 20+ years of architecture and construction experience to bring you our BIM Consulting service. Our BIM Consulting team helps you use BIM to scale up your organisation and stay ahead of the competition. We’ll power you towards your digital future.

Without an effective strategy, you stand to lose.

In the modern construction landscape, not having a BIM strategy could result in missed risks, higher costs, and even lost projects.

If you understand what BIM can do for you and effectively implement it, you’ll outshine your competition. What’s more, a BIM strategy will leave you free to focus on what you do best, confidently.

At Shft, we have 20+ years of architecture and construction experience. Using our know-how and insights, we created our BIM Strategy service to help you plan and execute a winning Building Information Modelling journey.

We’ll help you create a holistic and effective BIM strategy, resulting in projects with fewer changes and unanticipated challenges, faster delivery, and lower costs. You’ll improve productivity and safety while reducing materials and labour wastage.

Our Mission

Our mission is to be the digital bridge for the industry, so every contractor and asset owner has the chance to thrive in construction’s future while still being able to stay focused on what they do best.

Once you have chosen to embrace BIM, the biggest question is how do you implement it effectively? Our team is here to support you in ensuring you integrate BIM processes in the correct way to reap the benefits from day 1.

Shft’s BIM Coordination service synergises the BIM models created by all project teams involved –from architects and designers to engineers and specialist trades. If these models are not aligned, conflicts will arise, along with work overlaps, higher costs, and wastage of materials.

Our specialised BIM Coordination service identifies and resolves inconsistencies and errors between separate BIM models. It also produces a single, cohesive model that accurately represents the entire construction project.

By leveraging BIM Coordination, teams can collaborate with a clear, accurate, and up-to-date understanding of the building project, from initial design through to final construction.

We ensure everything runs smoothly, giving you complete control and guaranteeing a robust and interconnected digital landscape for your company.

03/ BIM Coordination

3D BIM modelling has become an essential part of coordinating and strategising modern construction projects. It creates an accurate, efficient, and collaborative design platform that assists in the decision-making process.

Creating a 3D BIM model can be a daunting task because it must be done to the highest standard – which is why our experts are here to assist!

Our skilled BIM modelling team at Shft offers a cutting-edge service that creates a 3D representation of your project.

The virtual model contains intelligent 3D objects that provide a more visual and digestible view than 2D drawings. This allows you to accurately plan, study, and execute your project to the highest standard, so you’ll make the right decisions from the get-go.

05/ Construction Drawings Construction

At Shft, we understand that you must have accurate and up-to-date technical design drawings to analyse and understand projects in detail.

When using traditional methods, a lot of time is spent producing and revising drawings. What’s more, since pre-digital systems were not interconnected, they were not centralised or updated automatically – meaning that technical designs could, potentially, contain discrepancies and inaccuracies even before getting to the construction site!

The Shft team uses a data-rich, 3D-model-based workflow, which will be your go-to tool from project concept to completion. We generate 2D technical design drawings directly from the 3D BIM model – ensuring the two are fully integrated and coordinated.

The result? You’ll improve project management and efficiency, leaving you free to make the best use of resources and ensure speedy, smooth, and accurate project completion.

05/ Construction Drawings Construction

05/ Construction Drawings Construction

06/ Digital Project Management

At Shft, we use Building Information Modelling (BIM) to manage projects digitally throughout their entire lifecycle. It facilitates the creation, storage, and sharing of information in a way that is far superior to traditional, paper-based methods. This gives you complete control, preventing errors before they occur on-site and, therefore, saving you time and money.

You can only implement BIM properly, however, with a strong understanding of the related technology and methodology, as well as great coordination between the teams involved, which is where our Digital Project Management service comes in.

Securing a well-managed digital foundation for your BIM strategy spells success. It minimises errors and increases efficiency, ensuring that your project runs to schedule and that the client is happy. In short, it will make your life a lot easier!

Shft’s Digital Project Management service not only plans, organises, and oversees your project’s digital aspects, but we also ensure your goals and outcomes are achieved within the stipulated time, budget, resources, and risk framework. With our team at Shft managing the digital side of your construction project, you can rest easy knowing it will be effortless and polished.

What our customers say... What our customers say...

“Shft has been absolutely excellent throughout the entire process – quick, efficient, and armed with extensive knowledge of an array of BIM construction software tools. We wouldn’t hesitate to outsource our BIM work to Shft again.”

“At Lendlease, we have high standards regarding what we require and demand – and Shft met them. Michelle and Jacques were always engaged and super quick to respond. I have nothing but praise for them.”

Cristina Sánchez Jiménez, BIM Manager & Data Analyst, Lendlease

“I really appreciate the team’s assistance and co-operation to-date—and all at such late notice. The synergy between our organisations is great, and I wish I had been introduced to you years ago—you are easy to work with and so understanding.”

“You took the stress away. Thank you, Shft! Especially for the quick turnaround. As BIM is becoming more and more of a contractual requirement, I’ll return to Shft for other projects in the future.”

“BIM. We’ve delivered it successfully to countless contractors, specialist trades & asset owners across the UK. We are the BIM partner our customers rely on.”

Your par tners in BIM Your partners in BIM

We know what it feels like to have to deliver BIM but not have the technical skills to get it done, and this can feel daunting. If you’ve got to deliver it for a project, there’s two options: take on the stress of learning the complicated tech and processes yourself, or find a trusted partner that can do a fantastic job for you.

Thing is, we get it. As the husband-and-wife team behind Shft, architecture has been our passion for as long as we can remember. We started practicing as architects in our home country of South Africa in 2010, back when BIM wasn’t even a thing. Later, having now moved to the UK, we came to realise the incredible impact BIM was having on the sector. Inspired by the impact we knew could have, we chose to specialise in BIM in 2018.

Since then, Shft has established itself as your leading BIM partners, becoming a onestop BIM agency with a focused team of tech specialists dedicated to the opportunities created by construction’s digital future.

We know BIM can seem overwhelming, so it’s our job to take that weight off your shoulders and deliver BIM to the same high standards as the rest of your project.

Plus, it means your product offering will be up-to-date and your company won’t risk being overlooked for future projects.

At Shft, we’re committed to helping you get BIM done, so you can stop feeling the overwhelm that technology brings and can focus on what you do best.

We’d love to become your trusted BIM partner. So don’t wait, please reach out today to get started.

“Shft has established itself as your leading BIM partners, becoming a one-stop BIM agency with a focused team of tech specialists dedicated to the opportunities created by construction’s digital future.”

Turn static files into dynamic content formats.

Create a flipbook