portfolio (Quantity Survey & Clash Report from navis works )

Page 1

To:

DEGLA PROJECT MANAGEMENT

New Giza Project (NH.05 – NEWGIZA)

RB-10 (1-2-3-4-5-6-7-8-9-10-11-1213-14)

Submittal for Approval

From: Contractor: --------- DELTA VISION

Contract No.: --------- NG/NHO5/DEVICO

Transmittal No:QS#180

Items to be submitted:

Specification Sec No: --------------------------------------------------

Consultant Remarks:

Degla CFM Remarks:

The Following Action Code Are Given to Item

Submitted:

A Approved as Submitted

B Approved as Noted

C Revise & Resubmission Required.

Approval of Item Does not Relieve the Contractor from complying with requirements of Contract documents Specifications and applicable Codes.

Contractors Name:

Contractors Signature:

It's not intended by the aforementioned response to constitute Engineer's Instruction for variation. In case the Contractor believes that this reply includes variation affecting the Time for Completion or the Contract Price, the Contractor shall immediately notify the Engineer with the time & cost implications, if any

.

ITEM Description No. of Copies Contract Reference Documents Action Code NOTES Specs. No. DWG No. 1 Quantity Survey For
Stair
From Ground Floor To
Floor 096340.01 096340.02 QS-05-RB101_2_3_4_5_6_7_8_9_10_11_12_13_14QS035-00
Main
Stone lobbies Flooring
Third
DELTA
VSION FOR CONSTRUCTION
----------------------------------------------- Date: 14/4/2022 New Submittal Resubmittal
Section:
Previous Transmittal
No:
Quantity Survey Samples Certificate Colored Brochure
Method Statement Calculation Sheet Others Others
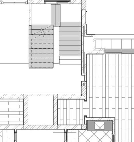
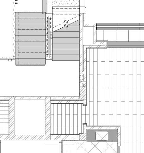
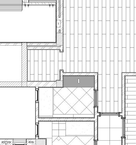
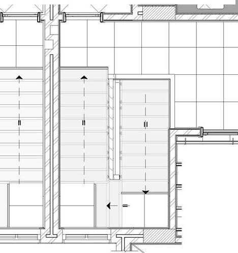
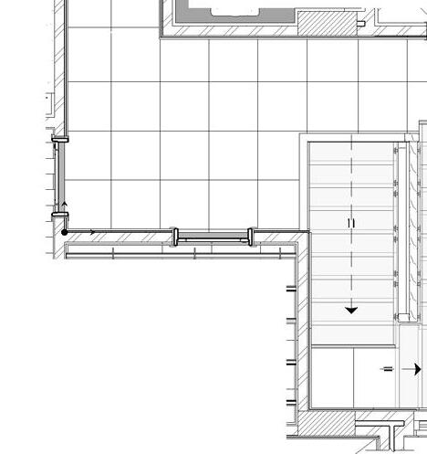
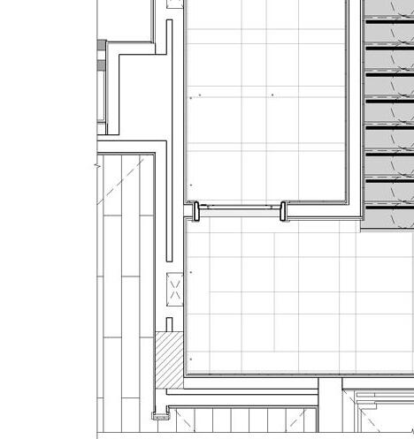
04 04 05 05 06 06 A B C 20MM POLISHED TRIESTA BEIGE TILES MARBLE item :096340.02 ACC TO TRANS: 1632 NH04 20MM POLISHED TRIESTA BEIGE TILES MARBLE item :096340.02 ACC TO TRANS: 1632 NH04 20MM POLISHED TRIESTA BEIGE TILES MARBLE 20MM POLISHED TRIESTA BEIGE TILES MARBLE 20MM POLISHED TRIESTA BEIGE TILES MARBLE item :096340.02 ACC TO TRANS: 1632 NH04 20MM POLISHED TRIESTA BEIGE TILES MARBLE item :096340.02 ACC TO TRANS: 1632 NH04 1ST MAIN STAIRS LOBBY 17 04 04 05 05 06 06 A B C item :096340.02 ACC TO TRANS: 1632 NH04 20MM POLISHED TRIESTA BEIGE TILES MARBLE item :096340.02 ACC TO TRANS: 1632 NH04 20MM POLISHED TRIESTA BEIGE TILES MARBLE item :096340.02 ACC TO TRANS: 1632 NH04 20MM POLISHED TRIESTA BEIGE TILES MARBLE 20MM ANTIQUE TRIESTA BEIGE MARBLE TILES ITEM :096340.01 20MM POLISHED TRIESTA BEIGE TILES MARBLE item :096340.02 ACC TO TRANS: 1632 NH04 20MM POLISHED TRIESTA BEIGE TILES MARBLE GRD MAIN STAIRS 12 04 04 05 05 06 06 A A B B C C D D 20MM POLISHED TRIESTA BEIGE TILES MARBLE item :096340.02 ACC TO TRANS: 1632 NH04 20MM POLISHED TRIESTA BEIGE TILES MARBLE item :096340.02 ACC TO TRANS: 1632 NH04 20MM POLISHED TRIESTA BEIGE TILES MARBLE item :096340.02 ACC TO TRANS: 1632 NH04 20MM POLISHED TRIESTA BEIGE TILES MARBLE item :096340.02 ACC TO TRANS: 1632 NH04 20MM POLISHED TRIESTA BEIGE TILES MARBLE item :096340.02 ACC TO TRANS: 1632 NH04 20MM POLISHED TRIESTA BEIGE TILES MARBLE item :096340.02 ACC TO TRANS: 1632 NH04 2ND MAIN STAIRS LOBBY 12 2ND IT ROOM 15 2ND LOBBY 14 04 04 05 05 06 06 A A B B C C 20MM POLISHED TRIESTA BEIGE TILES MARBLE item :096340.02 ACC TO TRANS: 1632 NH04 20MM POLISHED TRIESTA BEIGE TILES MARBLE item :096340.02 ACC TO TRANS: 1632 NH04 20MM POLISHED TRIESTA BEIGE TILES MARBLE item :096340.02 ACC TO TRANS: 1632 NH04 20MM POLISHED TRIESTA BEIGE TILES MARBLE item :096340.02 ACC TO TRANS: 1632 NH04 20MM POLISHED TRIESTA BEIGE TILES MARBLE item :096340.02 ACC TO TRANS: 1632 NH04 3RD MAIN STAIR LOBBY 16 3RD SERVICE ROOM 18 04 04 05 05 06 06 E E F G G H H S.P S.P 770 F.L(S.S) +1.35 560560 0780 780 F.L(S.S) +1.65 F.L(S.S) +0.15 F.L(S.S) +3.00 F.F.L(1ST) +3.00 F.F.L(1ST) +3.00 1ST STAIR LOBBY 02/B 1ST STAIR 01/A1ST STAIR 01/B 600 600 600 600 600 600 600 600 40 600600600600600 100 600 60060060060060060060060060030 3000 1200 600600 1200 600600 5450 F.F.L(1ST) +3.00 1050 780 560560 30750 F.L(S.S) +1.65 F.L(S.S) +1.35 F.F.L(1ST) +3.00 F.F.L(1ST) +3.00 F.F.L(1ST) +3.00 440 600564476 1040 136 600 564 636 600 600 564 50 600 600600600600600 1200 5450 120 3000 1200 1200 1200 3000 20MM POLISHED TRIESTA BEIGE TILES MARBLE item :096340.02 ACC TO TRANS: 1632 NH04 20MM POLISHED TRIESTA BEIGE TILES MARBLE item :096340.02 ACC TO TRANS: 1632 NH04 20MM POLISHED TRIESTA BEIGE TILES MARBLE item :096340.02 ACC TO TRANS: 1632 NH04 20MM POLISHED TRIESTA BEIGE TILES MARBLE item :096340.02 ACC TO TRANS: 1632 NH04 20MM POLISHED TRIESTA BEIGE TILES MARBLE item :096340.02 ACC TO TRANS: 1632 NH04 20MM POLISHED TRIESTA BEIGE TILES MARBLE item :096340.02 ACC TO TRANS: 1632 NH04 20MM POLISHED TRIESTA BEIGE TILES MARBLE item :096340.02 ACC TO TRANS: 1632 NH04 20MM POLISHED TRIESTA BEIGE TILES MARBLE item :096340.02 ACC TO TRANS: 1632 NH04 20MM POLISHED TRIESTA BEIGE TILES MARBLE item :096340.02 ACC TO TRANS: 1632 NH04 600600600600 3050 04 04 05 05 06 06 E F F G G H H 600600 100 120030 40 1200 1200 5450 1040 1200 3010 1300 1200 1200 1200 3010 F.F.L(3RD) +9.00 F.F.L(3RD) +9.00 3RD STAIR LOBBY 02/B 3RD STAIR LOBBY 02/A F.F.L(3RD) +9.00 F.F.L(3RD) +9.00 F.F.L(3RD) +9.00 F.F.L(3RD) +9.00 20MM POLISHED TRIESTA BEIGE TILES MARBLE item :096340.02 ACC TO TRANS: 1632 NH04 20MM POLISHED TRIESTA BEIGE TILES MARBLE item :096340.02 ACC TO TRANS: 1632 NH04 20MM POLISHED TRIESTA BEIGE TILES MARBLE item :096340.02 ACC TO TRANS: 1632 NH04 20MM POLISHED TRIESTA BEIGE TILES MARBLE item :096340.02 ACC TO TRANS: 1632 NH04 20MM POLISHED TRIESTA BEIGE TILES MARBLE item :096340.02 ACC TO TRANS: 1632 NH04 20MM POLISHED TRIESTA BEIGE TILES MARBLE item :096340.02 ACC TO TRANS: 1632 NH04 S.P S.P 440 6006006001170600600600600 600 F.L(S.S) +9.00 F.L(S.S) +7.35 F.L(S.S) +7.65 F.L(S.S) +7.35 F.L(S.S) +7.65 73040 F.L(S.S) +6.15 40740 600305040 600 600600 600600600600600 600 600 600 600 www com.ecgsa. www com.ecgsa. www com.ecgsa. Client Project DRAWING TITLE: Extracted from BIM model: REVIEWED BY: SCALE DRAWN BY: DWG.No: Sheet No: Owner: KEY PLAN Revision NO. DATE CHECKED: GENERAL NOTES :Symbols :Drawing Revision Number Revision Description Revision Date Buiding Number SD Number REFERENCES Discription Drawing Architectural Designer: Supervision Consultant: Main Contractor: Structural Designer: MEP Designer: DESIGNED 1. ALL DIMENSION ARE IN MILLIMETERS ,UNLES INDICATED OTHERWISE. 2. ALLSHOWN LEVELS ARE IN METERS UNLES INDCATED OTHERWISE. 3. CHARACTERSTIC CONCRETE CUBE COMPRESSIVE STRENGH AFTER 28 DAYS FOR THE REINFORCEMENT CONCRETE AND TIE BEAMS EQUAL 30N/MM^2 4. THE MAXIMUM AGGREGATE SIZE DOES NOT EXCEED 20mm. 5. ALL FOOTINGS ARE CONCENTRIC WITH COLUMNS UNO. 6. THE FOUNDATION FNL IS THE BOTTOM OF PC FOOTING. 7.ALL FOUNDATIONS ARE DESIGNED ON A MINIMUM SAFE BEARING C APACITY Of 150 KN/M^2 AT THE FOUNDATION LEVEL 8. FOR LOCATUON AND LEVELSOF OPENING AND SLEEVES IN ALL MEMBERS REFER TO GENERAL ARRANGEMENT DRWINGS IN CONJUNCTION WITH ALL OTHER ENGINEERING DRAWINGS. -T.O.C = TOP OF CONCRETE -T.O.B = TOP OF BEAM -S.B = SIDE BARS -C.J. = CONSTRUCTION JOINT -E.F. = EACH FACE -A.C. = APPROVED COUPLER -FNL = As indicated ENG :SHERY RAOUF Checker 14/4/2022 Quantity Survey For Main Stair Stone lobbies Flooring From Ground Floor To Third Floor NEWGIZA -NH05 LAKESIDE (RB-10-01&02&03& 04&05&06&07&08& 09&10&11&12&13&14) QS035 ECG QS#180 SCALE 1 50 QS035 FIRST FLOOR PLAN - MAIN STAIR - TILES & SKIRTING FOR LANDING 02 SCALE QS035 3D VIEW FOR MARBLE TILES & SKIRTING FOR GROUND FLOOR 2 SCALE 1 50 QS035 GROUND FLOOR PLAN MAIN STAIR Flooring & SKIRTING FOR EXTERNAL MAIN ENTRANCE & MAIN LOBBIES 01 SCALE 1 50 QS035 SECOND FLOOR PLAN MAIN STAIR - TILES & SKIRTING FOR LANDING 03 SCALE 1 50 QS035 THIRD FLOOR PLAN - MAIN STAIR TILES & SKIRTING FOR LANDING Copy 2 04 SCALE QS035 3D 5 QS FOR MARBLE FLOORING item codeDescriptionAreaunit 096340.0120 mm antique Triesta beige tiles Marble ( 600 * 600 mm as per Approved Sample. For outdoor main entrance. 4.43 m²m2 4.43 m² QS FOR MARBLE FLOORING item codeDescriptionAreaunitCount 096340.0220 mm polished Triesta beige tiles Marble ( 600 * 600 mm as Per Approved Sample. For main stair lobbies 133.18 m²m223 133.18 m² SCALE 1 60 QS035 FIRST FLOOR PLAN - INTERNAL STAIR FLOORING & SKIRTING 6 SCALE 1 60 QS035 THIRD FLOOR PLAN - INTERNAL STAIR FLOORING & SKIRTING 7 NH 05-RB-10 -01-AR -R 00 (LIGHT THEME) QS‐ 05‐ RB 10‐ 4 10 11 12 13 14‐QS035‐00

DEGLA PROJECT MANAGEMENT

New Giza Project (NH.05 – NEWGIZA)

RB-10 (1-2-3-4-5-6-7-8-9-10-11-1213-14)

Submittal for Approval

Degla CFM Remarks: The Following Action Code Are Given to Item

Approval of Item Does not Relieve the Contractor from complying with requirements of Contract documents Specifications and applicable Codes.

It's not intended by the aforementioned response to constitute Engineer's Instruction for variation. In case the Contractor believes that this reply includes variation affecting the Time for Completion or the Contract Price, the Contractor shall immediately notify the Engineer with the time & cost implications, if any

.
ITEM Description No. of Copies Contract Reference Documents Action Code NOTES Specs. No. DWG No. 1 Quantity Survey For Main Stair Treads From Ground Floor To Third Floor 096340.03 QS-05-RB101_2_3_4_5_6_7_8_9_10_11_12_13_14QS036-00 2 Quantity Survey For Main Stair Skirting From Ground Floor To Third Floor 097500.01 QS-05-RB101_2_3_4_5_6_7_8_9_10_11_12_13_14QS039-00 Consultant
Remarks:
Submitted:
Section: ----------------------------------------------- Date: 14/4/2022 New Submittal Resubmittal To:
From: Contractor:
Contract
NG/NHO5/DEVICO Transmittal No:QS#181 Previous Transmittal No: Items to be submitted: Quantity Survey Samples Certificate Colored Brochure
--------- DELTA VISION
No.: ---------
Specification Sec No: -------------------------------------------------- Method Statement Calculation Sheet Others Others

A Approved as Submitted

B Approved as Noted

C Revise & Resubmission Required.

Contractors Name: DELTA VSION FOR CONSTRUCTION

Contractors Signature:

Degla CFM: Author: Degla CFM Project Manager:

It's not intended by the aforementioned response to constitute Engineer's Instruction for variation. In case the Contractor believes that this reply includes variation affecting the Time for Completion or the Contract Price, the Contractor shall immediately notify the Engineer with the time & cost implications, if any .

096340.03 40 mm polished TRIESTA beige marble for tread with non‐slipping marks including 20 mm TRIESTA beige marble for riser, as per approved sample. For the main staircase.

096340.03 40 mm polished TRIESTA beige marble for tread with non‐slipping marks including 20 mm TRIESTA beige marble for riser, as per approved sample. For the main staircase.

096340.03 40 mm polished TRIESTA beige marble for tread with non‐slipping marks including 20 mm TRIESTA beige marble for riser, as per approved sample. For the main staircase.

2.Stairs From First Floor To Second Floor

096340.03 40 mm polished TRIESTA beige marble for tread with non‐slipping marks including 20 mm TRIESTA beige marble for riser, as per approved sample. For the main staircase.

096340.03 40 mm polished TRIESTA beige marble for tread with non‐slipping marks including 20 mm TRIESTA beige marble for riser, as per approved sample. For the main staircase.

096340.03 40 mm polished TRIESTA beige marble for tread with non‐slipping marks including 20 mm TRIESTA beige marble for riser, as per approved sample. For the main staircase.

3.Stairs From Second Floor To Third Floor

096340.03 40 mm polished TRIESTA beige marble for tread with non‐slipping marks including 20 mm TRIESTA beige marble for riser, as per approved sample. For the main staircase.

096340.03 40 mm polished TRIESTA beige marble for tread with non‐slipping marks including 20 mm TRIESTA beige marble for riser, as per approved sample. For the main staircase.

096340.03 40 mm polished TRIESTA beige marble for tread with non‐slipping marks including 20 mm TRIESTA beige marble for riser, as per approved sample. For the main staircase.

9134012.06 m

213402.68 m

9150013.50 m

28.24 m

9134012.06 m

213402.68 m

9134012.06 m

26.80 m

9134012.06 m

213402.68 m

9134012.06 m

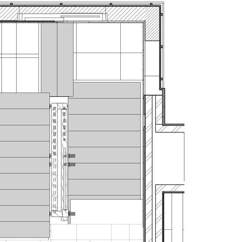
04 05 06 A A B B C C D D D03 D03 A06 D02 CW01 UP F.L(S.S) +6.00 F.F.L(2ND) +6.00 F.F.L(2ND) +6.00 F.L(S.S) +3.15 T.O.PA(FINISH) +6.12 F.L(S.S) +4.65 280.0280.0280.0280.0280.0280.0280.0 280.0320.0 280.0 280.0 280.0 280.0 280.0 280.0 280.0 280.0 1340.0300.01340.0 1340.0300.01340.0 110.01340.0 90.0 50.0 R @ Tread width 20 110 mm 320 mm 40MM ANTIQUE TRIESTA beige MARBLE TREAD FOR THE EXTERNAL STEP OF THE MAN ENTRANCE ITEM:096340.04 20MM POLISHED TRIESTA BEIGE MARBLE WALL STRING FOR THE MAIN STAIR 20MM POLISHED TRIESTA BEIGE TILES MARBLE item :096340.02 ACC TO TRANS: 1632 NH04 40MM ANTIQUE TRIESTA beige MARBLE TREAD FOR THE CODE (097500.01) 40MM ANTIQUE TRIESTA beige MARBLE TREAD FOR THE EXTERNAL STEP OF THE MAN ENTRANCE ITEM:096340.04 40MM ANTIQUE TRIESTA beige MARBLE TREAD FOR THE EXTERNAL STEP OF THE MAN ENTRANCE ITEM:096340.04 2240.0 21 22 23 24 25 26 27 28 29 3031 32 33 34 35 36 37 38 39 40 2ND STAIRS LOBBY 2ND MAIN STAIR LOBBY 167.7 F.L(S.S) +4.35 EQ EQ EQEQ 1130.0 EQEQ F.F.L(2ND) +6.00 item :096340.02 ACC TO TRANS: 1632 NH04 120MM HI. POLISHED TRIESTA BEIGE MARBLE SKIRTING ITEM CODE (097500.01) 04 05 06 A A B B C C F.L(S.S) +3.00 UP OPEN TO BELOW CW01 F.L(S.S) +0.15 ELEVATOR CORE F.L(S.S) +1.35 F.L(S.S) +1.65 280.0 280.0 280.0 280.0 280.0 280.0 280.0 280.0 1340.0300.0 1500.0 1525.0 320.0 280.0 280.0 280.0 280.0 280.0 280.0 280.0 280.0 3812.5 (9 280)+40mm = 2560.0 2200.0 110.01500.0 90.0 40MM ANTIQUE TRIESTA beige MARBLE TREAD FOR THE EXTERNAL STEP OF THE MAN ENTRANCE ITEM:096340.04 CODE (097500.01) 40MM ANTIQUE TRIESTA beige MARBLE TREAD FOR THE EXTERNAL STEP OF THE MAN ENTRANCE ITEM:096340.04 20MM POLISHED TRIESTA BEIGE TILES MARBLE 40MM ANTIQUE TRIESTA beige MARBLE TREAD FOR THE W04* 1340.0300.01500.01700.0 1 2 3 4 5 6 7 8 9 12 1011 13 14 15 16 17 18 19 20 20MM POLISHED TRIESTA BEIGE TILES MARBLE item :096340.02 ACC TO TRANS: 1632 NH04 F.F.L(1ST) +3.00 EQEQ Width OF CONC STAIR 1420 1460 40MM ANTIQUE TRIESTA beige MARBLE TREAD FOR THE EXTERNAL STEP OF THE MAN ENTRANCE ITEM:096340.04 20MM POLISHED TRIESTA BEIGE TILES MARBLE item :096340.02 ACC TO TRANS: 1632 NH04 40MM ANTIQUE TRIESTA beige MARBLE TREAD FOR THE EXTERNAL STEP OF THE MAN ENTRANCE ITEM:096340.04 120MM HI. POLISHED TRIESTA BEIGE MARBLE SKIRTING ITEM CODE (097500.01) 20MM POLISHED TRIESTA BEIGE TILES MARBLE STAIRS LOBBY 1ST MAIN STAIR 04 05 06 A A B B C C F.L(S.S) +3.00 UP OPEN TO BELOW CW01 F.L(S.S) +0.15 ELEVATOR CORE F.L(S.S) +1.35 F.L(S.S) +1.65 280.0 280.0 280.0 280.0 280.0 280.0 280.0 280.0 1340.0300.0 1500.0 (9 280)+40mm = 2560.0 2200.0 110.01500.0 90.0 40MM ANTIQUE TRIESTA beige MARBLE TREAD FOR THE EXTERNAL STEP OF THE MAN ENTRANCE ITEM:096340.04 40MM ANTIQUE TRIESTA beige MARBLE TREAD FOR THE EXTERNAL STEP OF THE MAN ENTRANCE ITEM:096340.04 20MM POLISHED TRIESTA BEIGE TILES MARBLE item :096340.02 ACC TO TRANS: 1632 NH04 20MM POLISHED TRIESTA BEIGE TILES MARBLE item :096340.02 ACC TO TRANS: 1632 NH04 45.2 40MM ANTIQUE TRIESTA beige MARBLE TREAD FOR THE EXTERNAL STEP OF THE MAN ENTRANCE ITEM:096340.04 W04* 1340.0300.01500.01700.0 1 2 3 4 5 6 7 8 9 12 1011 13 14 15 16 17 18 19 20 20MM POLISHED TRIESTA BEIGE TILES MARBLE item :096340.02 ACC TO TRANS: 1632 NH04 F.F.L(1ST) +3.00 EQEQ Width OF CONC STAIR 1420 1460 40MM ANTIQUE TRIESTA beige MARBLE TREAD FOR THE EXTERNAL STEP OF THE MAN ENTRANCE ITEM:096340.04 20MM POLISHED TRIESTA BEIGE TILES MARBLE item :096340.02 ACC TO TRANS: 1632 NH04 CODE (097500.01) STAIRS LOBBY 1ST MAIN STAIR 18 272.51255.0272.5 www com.ecgsa. www com.ecgsa. www com.ecgsa. Client Project DRAWING TITLE: Extracted from BIM model: REVIEWED BY: SCALE DRAWN BY: DWG.No: Sheet No: Owner: KEY PLAN Revision NO. DATE CHECKED: GENERAL NOTES :Symbols :Drawing Revision Number Revision Description Revision Date Buiding Number SD Number REFERENCES Discription Drawing Architectural Designer: Supervision Consultant: Main Contractor: Structural Designer: MEP Designer: DESIGNED 1. ALL DIMENSION ARE IN MILLIMETERS ,UNLES INDICATED OTHERWISE. 2. ALLSHOWN LEVELS ARE IN METERS UNLES INDCATED OTHERWISE. 3. CHARACTERSTIC CONCRETE CUBE COMPRESSIVE STRENGH AFTER 28 DAYS FOR THE REINFORCEMENT CONCRETE AND TIE BEAMS EQUAL 30N/MM^2 4. THE MAXIMUM AGGREGATE SIZE DOES NOT EXCEED 20mm. 5. ALL FOOTINGS ARE CONCENTRIC WITH COLUMNS UNO. 6. THE FOUNDATION FNL IS THE BOTTOM OF PC FOOTING. 7.ALL FOUNDATIONS ARE DESIGNED ON A MINIMUM SAFE BEARING C APACITY Of 150 KN/M^2 AT THE FOUNDATION LEVEL 8. FOR LOCATUON AND LEVELSOF OPENING AND SLEEVES IN ALL MEMBERS REFER TO GENERAL ARRANGEMENT DRWINGS IN CONJUNCTION WITH ALL OTHER ENGINEERING DRAWINGS. -T.O.C = TOP OF CONCRETE -T.O.B = TOP OF BEAM -S.B = SIDE BARS -C.J. = CONSTRUCTION JOINT -E.F. = EACH FACE -A.C. = APPROVED COUPLER -FNL = As indicated ENG :SHERY RAOUF Checker 14/4/2022 Quantity Survey For Main Stair Treads From Ground Floor To Third Floor NEWGIZA -NH05 LAKESIDE (RB-10-01&02&03& 04&05&06&07&08& 09&10&11&12&13&14) QS036 ECG QS#181 SCALE 1 40 QS036 SECOND FLOOR PLAN - MAIN STAIR MARBLE STAIR STEPSFROM 1ST TO 2ND 02 SCALE 1 40 QS036 FIRST FLOOR PLAN - MAIN STAIR - MARBLE STAIR STEPSFROM GD TO 1ST 01 SCALE 1 35 QS036 FIRST FLOOR PLAN - MAIN STAIR - MARBLE STAIR STEPS FROM GD TO 1ST 3 SCALE QS036 3D VIEW FOR MARBLE TILES & SKIRTING FOR GROUND FLOOR 4 SCALE QS036 3D VIEW FOR MARBLE TILES & SKIRTING FOR GROUND FLOOR 5 QS Main Stair Marble  Treads Item CodeDescription No. Of Treads Width Total Length 1.Stairs From Ground Floor To First Floor
26.80 m 81.84 m NH 05-RB-10 -01-AR -R 00 (LIGHT THEME) QS‐ 05‐ RB 10‐ 4 10 11 12 13 14‐QS036‐00 00
04 05 06 A A B B C C 04 04 05 05 06 06 A B C 600600 12681336 272.51407.5 513.7272.51407.5272.5272.51587.5 272.51407.5272.5272.51315.0272.5 513.7272.5 513.7 272.5 1587.5 513.7 1407.5272.5272.51315.0272.5 1315.0 365.01315.0272.5 272.5627.5627.5272.5 627.5 627.5 272.5 272.5 1315.0 657.5657.5832.5832.5657.5657.5272.5 1315.01665.01315.0272.5 272.5657.5657.5832.5832.5657.5657.5272.5 1255.0272.5 272.51315.01665.01315.0272.5 S.P S.P 333.2 657.5 365.0 657.5 657.5 S.P 2995.0 272.5 272.5627.5 1820.0 1820.0 D03 S.P F.F.L(GD) +0.00 F.F.L(GD) +0.00 F.F.L(GD) +0.00 W04* 1587.5365.01315.0272.5 272.51255.0272.5 1560.004 05 06 A A B B C C D D D03 D03 A06 D02 CW01 F.L(S.S) +6.00 F.F.L(2ND) +6.00 F.F.L(2ND) +6.00 F.L(S.S) +3.15 F.L(S.S) +4.65 280.0 280.0 280.0 280.0 280.0 280.0 280.0 280.01450.0 1340.0300.01340.0 1340.0300.01340.0 2200.0 110.01340.0 90.0 50.0 2240.0 280.01450.0 04 05 06 A A B B C C UP F.L(S.S) +9.00 F.F.L(3RD) +9.00 F.F.L(3RD) +9.00 F.L(S.S) +6.15 D02 CW01 ELEVATOR CORE 41 42 43 44 45 46 47 48 49 5051 52 53 54 55 56 57 58 59 60 280.0 280.0 280.0 280.0 280.0 280.0 280.0 280.0 280.0 280.0 280.0 280.0 280.0 280.0 280.0 280.0 280.0320.0 (9 280)+40mm = 2560.0 110.0 90.0 1340.0300.01340.0 1340.0300.0 2240.0 280.0 50.0 120MM HI. POLISHED TRIESTA BEIGE MARBLE SKIRTING ITEM CODE (097500.01) 120MM HI. POLISHED TRIESTA BEIGE MARBLE SKIRTING ITEM CODE (097500.01) 120MM HI. POLISHED TRIESTA BEIGE MARBLE SKIRTING ITEM CODE (097500.01) 120MM HI. POLISHED TRIESTA BEIGE MARBLE SKIRTING ITEM CODE (097500.01) www com.ecgsa. www com.ecgsa. www com.ecgsa. Client Project DRAWING TITLE: Extracted from BIM model: REVIEWED BY: SCALE DRAWN BY: DWG.No: Sheet No: Owner:
PLAN Revision NO. DATE CHECKED: GENERAL NOTES :Symbols :Drawing Revision Number Revision Description Revision Date Buiding Number SD Number REFERENCES Discription Drawing Architectural Designer: Supervision Consultant: Main Contractor: Structural Designer: MEP Designer: DESIGNED 1. ALL DIMENSION ARE IN MILLIMETERS ,UNLES INDICATED OTHERWISE. 2. ALLSHOWN LEVELS ARE IN METERS UNLES INDCATED OTHERWISE. 3. CHARACTERSTIC CONCRETE CUBE COMPRESSIVE STRENGH AFTER 28 DAYS FOR THE REINFORCEMENT CONCRETE AND TIE BEAMS EQUAL 30N/MM^2 4. THE MAXIMUM AGGREGATE SIZE DOES NOT EXCEED 20mm. 5. ALL FOOTINGS ARE CONCENTRIC WITH COLUMNS UNO. 6. THE FOUNDATION FNL IS THE BOTTOM OF PC FOOTING. 7.ALL FOUNDATIONS ARE DESIGNED ON A MINIMUM SAFE BEARING C APACITY Of 150 KN/M^2 AT THE FOUNDATION LEVEL 8. FOR LOCATUON AND LEVELSOF OPENING AND SLEEVES IN ALL MEMBERS REFER TO GENERAL ARRANGEMENT DRWINGS IN CONJUNCTION WITH ALL OTHER ENGINEERING DRAWINGS. -T.O.C = TOP OF CONCRETE -T.O.B = TOP OF BEAM -S.B = SIDE BARS -C.J. = CONSTRUCTION JOINT -E.F. = EACH FACE -A.C. = APPROVED COUPLER -FNL = 1 50 ENG :SHERY RAOUF 14/4/2022 00 Quantity Survey For Main Stair Skirting From Ground Floor To Third Floor NH04‐RB‐10‐01,02‐AR‐R00 NEWGIZA -NH05 LAKESIDE (RB-10-01&02&03& 04&05&06&07&08& 09&10&11&12&13&14) QS039 ECG QS#181 (RB‐10‐01&02&03& 04&05&06&07&08& 09&10&11&12&13&14) 00 ISSUED FOR APPROVAL SCALE 1 50 QS039 FIRST FLOOR PLAN - MAIN STAIR - MARBLE STAIR STEPSFROM GD TO 1ST QS Copy 1 Copy 1 1 SCALE 1 50 QS039 GROUND FLOOR PLAN - MAIN STAIR - TILES & SKIRTING FOR EXTERNAL MAIN ENTRANCE & MAIN LOBBIES QS 2 SCALE 1 50 QS039 SECOND FLOOR PLAN MAIN STAIR - MARBLE STAIR STEPSFROM 1ST TO 2ND 3 SCALE 50 QS039 THIRD FLOOR PLAN MAIN STAIR - MARBLE STAIR STEPS FROM 2ND TO 3RD 4 QS Lobby Base Skirting Item CodeDescriptionCountTotal Length 097500.01 120mm Height polished TRIESTA beige marble base skirting as per approved sample, for main entrance lobby, main lobbies and Stairs. 4196.08 m SCALE QS039 Main Stair Base Skirting 5 SCALE QS039 Main Stair Base Skirting 6 NH 05-RB-10 -01-AR -R 00 (LIGHT THEME) QS‐ 05‐ RB 10‐ 4 10 11 12 13 14‐QS039‐00
KEY

DEGLA PROJECT MANAGEMENT

New Giza Project (NH.05 – NEWGIZA)

RB-10 (1-2-3-4-5-6-7-8-9-10-11-1213-14)

Submittal for Approval

Degla CFM Remarks: The Following Action Code Are Given to Item

Approval of Item Does not Relieve the Contractor from complying with requirements of Contract documents Specifications and applicable Codes.

It's not intended by the aforementioned response to constitute Engineer's Instruction for variation. In case the Contractor believes that this reply includes variation affecting the Time for Completion or the Contract Price, the Contractor shall immediately notify the Engineer with the time & cost implications, if any

.
ITEM Description No. of Copies Contract Reference Documents Action Code NOTES Specs. No. DWG No. 1 Quantity Survey For Main Stair Treads From Ground Floor To Third Floor 096340.03 QS-05-RB101_2_3_4_5_6_7_8_9_10_11_12_13_14QS036-01 2 Quantity Survey For Main Stair Skirting From Ground Floor To Third Floor 097500.01 QS-05-RB101_2_3_4_5_6_7_8_9_10_11_12_13_14QS039-02 Consultant
Remarks:
Submitted:
Section: ----------------------------------------------- Date: 28/5/2022 New Submittal Resubmittal To:
From: Contractor:
Contract
NG/NHO5/DEVICO Transmittal No:QS#201 Previous Transmittal No: QS#181 Items to
Quantity Survey Samples Certificate Colored Brochure
--------- DELTA VISION
No.: ---------
be submitted:
Specification
Method Statement Calculation Sheet Others Others
Sec No: --------------------------------------------------

A Approved as Submitted

B Approved as Noted

C Revise & Resubmission Required.

Contractors Name: DELTA VSION FOR CONSTRUCTION

Contractors Signature:

Degla CFM: Author: Degla CFM Project Manager:

It's not intended by the aforementioned response to constitute Engineer's Instruction for variation. In case the Contractor believes that this reply includes variation affecting the Time for Completion or the Contract Price, the Contractor shall immediately notify the Engineer with the time & cost implications, if any .

1.Stairs From Ground Floor To First Floor

096340.03 40 mm polished TRIESTA beige marble for tread with non‐slipping marks including 20 mm TRIESTA beige marble for riser, as per approved sample. For the main staircase.

096340.03 40 mm polished TRIESTA beige marble for tread with non‐slipping marks including 20 mm TRIESTA beige marble for riser, as per approved sample. For the main staircase.

096340.03 40 mm polished TRIESTA beige marble for tread with non‐slipping marks including 20 mm TRIESTA beige marble for riser, as per approved sample. For the main staircase.

2.Stairs From First Floor To Second Floor

096340.03 40 mm polished TRIESTA beige marble for tread with non‐slipping marks including 20 mm TRIESTA beige marble for riser, as per approved sample. For the main staircase.

096340.03 40 mm polished TRIESTA beige marble for tread with non‐slipping marks including 20 mm TRIESTA beige marble for riser, as per approved sample. For the main staircase.

096340.03 40 mm polished TRIESTA beige marble for tread with non‐slipping marks including 20 mm TRIESTA beige marble for riser, as per approved sample. For the main staircase.

3.Stairs From Second Floor To Third Floor

096340.03 40 mm polished TRIESTA beige marble for tread with non‐slipping marks including 20 mm TRIESTA beige marble for riser, as per approved sample. For the main staircase.

096340.03 40 mm polished TRIESTA beige marble for tread with non‐slipping marks including 20 mm TRIESTA beige marble for riser, as per approved sample. For the main staircase.

096340.03 40 mm polished TRIESTA beige marble for tread with non‐slipping marks including 20 mm TRIESTA beige marble for riser, as per approved sample. For the main staircase.

9126011.34 m

213002.60 m

9146013.14 m

27.08 m

9130011.70 m

213002.60 m

9130011.70 m 26.00 m

9130011.70 m

213002.60 m

04 05 06 A A B B C C D D D03 D03 A06 D02 CW01 UP F.L(S.S) +6.00 F.F.L(2ND) +6.00 F.F.L(2ND) +6.00 F.L(S.S) +3.15 T.O.PA(FINISH) +6.12 F.L(S.S) +4.65 280.0280.0280.0280. 0280.0280.0280.0 280.0320.0 1320.0340.01300.0 1320.0320.01340.0 2220.0 130.01320.0 70.0 50.0 R @ Tread width = 20 110 mm 320 mm 40MM ANTIQUE TRIESTA beige MARBLE TREAD FOR THE EXTERNAL STEP OF THE MAN ENTRANCE ITEM:096340.04 20MM POLISHED TRIESTA BEIGE MARBLE WALL STRING FOR THE MAIN STAIR 20MM POLISHED TRIESTA BEIGE TILES MARBLE item :096340.02 ACC TO TRANS: 1632 NH04 40MM ANTIQUE TRIESTA beige MARBLE TREAD FOR THE EXTERNAL STEP OF THE MAN ENTRANCE ITEM:096340.04 120MM HI. POLISHED TRIESTA BEIGE MARBLE SKIRTING ITEM CODE (097500.01) 40MM ANTIQUE TRIESTA beige MARBLE TREAD FOR THE EXTERNAL STEP OF THE MAN ENTRANCE ITEM:096340.04 40MM ANTIQUE TRIESTA beige MARBLE TREAD FOR THE EXTERNAL STEP OF THE MAN ENTRANCE ITEM:096340.04 2240.0 21 22 23 24 25 26 27 28 29 3031 32 33 34 35 36 37 38 39 40 STAIRS LOBBY ROOM 2ND MAIN 13 2ND LOBBY F.L(S.S) +4.35 515.0 515.0 EQEQ 1130.0 EQEQ F.F.L(2ND) +6.00 20MM POLISHED TRIESTA BEIGE TILES MARBLE item :096340.02 ACC TO TRANS: 1632 NH04 120MM HI. POLISHED TRIESTA BEIGE MARBLE SKIRTING ITEM CODE (097500.01)04 05 06 A A B B C C F.L(S.S) +3.00 UP OPEN TO BELOW CW01 F.L(S.S) +0.15 ELEVATOR CORE F.L(S.S) +1.35 F.L(S.S) +1.65 280.0 280.0 280.0 280.0 280.0 280.0 280.0 280.0 1340.0320.0 1460.0 1525.0 320.0 280.0 280.0 280.0 280.0 280.0 280.0 280.0 280.0 3812.5 (9 x 280)+40mm = 2560.0 2220.0 130.01460.0 90.0 CODE (097500.01) 40MM ANTIQUE TRIESTA beige MARBLE TREAD FOR THE EXTERNAL STEP OF THE MAN ENTRANCE ITEM:096340.04 20MM POLISHED TRIESTA BEIGE TILES MARBLE item :096340.02 ACC TO TRANS: 1632 NH04 45.2 40MM ANTIQUE TRIESTA beige MARBLE TREAD FOR THE EXTERNAL STEP OF THE MAN ENTRANCE ITEM:096340.04 W04* 1340.0300.01500.01700.0 1 2 3 4 5 6 7 8 9 12 10 11 13 14 15 16 17 18 19 20 20MM POLISHED TRIESTA BEIGE TILES MARBLE item :096340.02 ACC TO TRANS: 1632 NH04 F.F.L(1ST) +3.00 EQEQ Width OF CONC STAIR 1420 1460 40MM ANTIQUE TRIESTA beige MARBLE TREAD FOR THE EXTERNAL STEP OF THE MAN ENTRANCE ITEM:096340.04 item :096340.02 ACC TO TRANS: 1632 NH04 40MM ANTIQUE TRIESTA beige MARBLE TREAD FOR THE EXTERNAL STEP OF THE MAN ENTRANCE ITEM:096340.04 CODE (097500.01) 20MM POLISHED TRIESTA BEIGE TILES MARBLE item :096340.02 ACC TO TRANS: 1632 NH04 1ST LOBBY 1ST STAIR 272.51255.0272.5 1440 1460 04 05 06 A A B B C C F.L(S.S) +3.00 UP OPEN TO BELOW CW01 F.L(S.S) +0.15 ELEVATOR CORE F.L(S.S) +1.35 F.L(S.S) +1.65 280.0 280.0 280.0 280.0 280.0 280.0 280.0 280.0 1340.0320.0 1460.0 1525.0 320.0 280.0 280.0 280.0 280.0 280.0 280.0 280.0 280.0 3812.5 (9 x 280)+40mm = 2560.0 2220.0 130.01460.0 90.0 40MM ANTIQUE TRIESTA beige MARBLE TREAD FOR THE EXTERNAL STEP OF THE MAN ENTRANCE ITEM:096340.04 40MM ANTIQUE TRIESTA beige MARBLE TREAD FOR THE EXTERNAL STEP OF THE MAN ENTRANCE ITEM:096340.04 20MM POLISHED TRIESTA BEIGE TILES MARBLE item :096340.02 ACC TO TRANS: 1632 NH04 20MM POLISHED TRIESTA BEIGE TILES MARBLE item :096340.02 ACC TO TRANS: 1632 NH04 45.2 40MM ANTIQUE TRIESTA beige MARBLE TREAD FOR THE EXTERNAL STEP OF THE MAN ENTRANCE ITEM:096340.04 W04* 1340.0300.01500.01700.0 1 2 3 4 5 6 7 8 9 12 10 11 13 14 15 16 17 18 19 20 20MM POLISHED TRIESTA BEIGE TILES MARBLE item :096340.02 ACC TO TRANS: 1632 NH04 F.F.L(1ST) +3.00 EQEQ Width OF CONC STAIR 1420 1460 40MM ANTIQUE TRIESTA beige MARBLE TREAD FOR THE EXTERNAL STEP OF THE MAN ENTRANCE ITEM:096340.04 20MM POLISHED TRIESTA BEIGE TILES MARBLE item :096340.02 ACC TO TRANS: 1632 NH04 120MM HI. POLISHED TRIESTA BEIGE MARBLE SKIRTING ITEM CODE (097500.01) 1ST MAIN STAIRS LOBBY 17 MAIN STAIR 272.51255.0272.5 www com.ecgsa. www com.ecgsa. www com.ecgsa. Client Project DRAWING TITLE: Extracted from BIM model: REVIEWED BY: SCALE DRAWN BY: DWG.No: Sheet No: Owner: KEY PLAN Revision NO. DATE CHECKED: GENERAL NOTES :Symbols :Drawing Revision Number Revision Description Revision Date Buiding Number SD Number REFERENCES Discription Drawing Architectural Designer: Supervision Consultant: Main Contractor: Structural Designer: MEP Designer: DESIGNED 1. ALL DIMENSION ARE IN MILLIMETERS ,UNLES INDICATED OTHERWISE. 2. ALLSHOWN LEVELS ARE IN METERS UNLES INDCATED OTHERWISE. 3. CHARACTERSTIC CONCRETE CUBE COMPRESSIVE STRENGH AFTER 28 DAYS FOR THE REINFORCEMENT CONCRETE AND TIE BEAMS EQUAL 30N/MM^2 4. THE MAXIMUM AGGREGATE SIZE DOES NOT EXCEED 20mm. 5. ALL FOOTINGS ARE CONCENTRIC WITH COLUMNS UNO. 6. THE FOUNDATION FNL IS THE BOTTOM OF PC FOOTING. 7.ALL FOUNDATIONS ARE DESIGNED ON A MINIMUM SAFE BEARING CAPACITY Of 150 KN/M^2 AT THE FOUNDATION LEVEL 8. FOR LOCATUON AND LEVELSOF OPENING AND SLEEVES IN ALL MEMBERS REFER TO GENERAL ARRANGEMENT DRWINGS IN CONJUNCTION WITH ALL OTHER ENGINEERING DRAWINGS. -T.O.C = TOP OF CONCRETE -T.O.B = TOP OF BEAM -S.B = SIDE BARS -C.J. = CONSTRUCTION JOINT -E.F. = EACH FACE -A.C. = APPROVED COUPLER -FNL = As indicated ENG :SHERY RAOUF Checker 23/5/2022 Quantity Survey For Main Stair Treads From Ground Floor To Third Floor NEWGIZA -NH05 QS036 ECG QS#181 SCALE 1 40 QS036 SECOND FLOOR PLAN - MAIN STAIR - MARBLE STAIR STEPSFROM 1ST TO 2ND 02 SCALE 1 40 QS036 FIRST FLOOR PLAN MAIN STAIR - MARBLE STAIR STEPSFROM GD TO 1ST 01 SCALE 1 : 35 QS036 FIRST FLOOR PLAN - MAIN STAIR - MARBLE STAIR STEPS FROM GD TO 1ST 3 SCALE QS036 3D VIEW FOR MARBLE TILES & SKIRTING FOR GROUND FLOOR 4 SCALE QS036 3D VIEW FOR MARBLE TILES & SKIRTING FOR GROUND FLOOR 5
Item CodeDescription No. Of Treads Width Total Length
QS Main Stair Marble  Treads
26.00 m 79.08 m NH 05 -RB-10 - 01 -AR - R 00 (LIGHT THEME) QS ‐05‐ RB10‐ 1 4 7 10 11 12 13 14‐ QS036‐ 01 01 QS# 201 LAKESIDE (RB - 10- 01& 02& 03& 04 & 05 & 06& 07& 08& 09 & 10& 11& 12& 13 & 14
9130011.70 m

QS Lobby Base Skirting

120mm Height polished TRIESTA beige marble base skirting as per approved sample, for main entrance lobby, main lobbies and Stairs. 4196.01 m

FLOOR PLAN - MAIN STAIR - TILES & SKIRTING FOR EXTERNAL MAIN

04 05 06 A A B B C C QS056 04 04 05 05 06 06 A B C 600600 12681336 272.51407.5 513.7272.51407.5272.5272.51587.5 272.51407.5272.5272.51315.0272.5 513.7272.5 513.7 272.5 1587.5 513.7 1407.5272.5272.51315.0272.5 1315.0 365.01315.0272.5 272.5627.5627.5272.5 627.5 627.5 272.5 272.5 1315.0 657.5657.5832.5832.5657.5657.5272.5 1315.01665.01315.0272.5 657.5657.5832.5832.5657.5657.5272.5 272.5 272.5627.5627.5272.5 272.5 627.5 627.5 272.5 1255.0272.5 1315.01665.01315.0272.5 S.P S.P 990.7 365.0 1315.0 333.2 657.5 365.0 657.5 657.5 S.P 2995.0 272.5 272.5627.5 1820.0 1820.0 D03 S.P F.F.L(GD) +0.00 F.F.L(GD) +0.00 F.F.L(GD) +0.00 W04* ELEVATOR CORE 1587.5365.01315.0272.5 272.51255.0272.5 1560.0QS056 04 05 06 A A B B C C D D D03 D03 A06 D02 CW01 F.L(S.S) +6.00 F.F.L(2ND) +6.00 F.F.L(2ND) +6.00 F.L(S.S) +3.15 F.L(S.S) +4.65 280.0 280.0 280.0 280.0 280.0 280.0 280.0 280.01450.0 280.0 280.0 280.0 280.0 280.0 280.0 280.0 280.0 1320.0340.01300.0 1320.0320.01340.0 2220.0 130.01320.0 70.0 50.0 2240.0 280.01450.0 QS05604 05 06 A A B B C C UP F.F.L(3RD) +9.00 F.F.L(3RD) +9.00 D02 CW01 ELEVATOR CORE 41 42 43 44 45 46 47 48 49 5051 52 53 54 55 56 57 58 59 60 120MM HI. POLISHED TRIESTA BEIGE MARBLE SKIRTING ITEM CODE (097500.01) 120MM HI. POLISHED TRIESTA BEIGE MARBLE SKIRTING ITEM CODE (097500.01) 120MM HI. POLISHED TRIESTA BEIGE MARBLE SKIRTING ITEM CODE (097500.01) 120MM HI. POLISHED TRIESTA BEIGE MARBLE SKIRTING ITEM CODE (097500.01) QS056 www com.ecgsa. www com.ecgsa. www com.ecgsa. Client Project DRAWING TITLE: Extracted from BIM model: REVIEWED BY: SCALE DRAWN BY: DWG.No: Sheet No: Owner: KEY PLAN Revision NO. DATE CHECKED: GENERAL NOTES :Symbols :Drawing Revision Number Revision Description Revision Date Buiding Number SD Number REFERENCES Discription Drawing Architectural Designer: Supervision Consultant: Main Contractor: Structural Designer: MEP Designer: DESIGNED 1. ALL DIMENSION ARE IN MILLIMETERS ,UNLES INDICATED OTHERWISE. 2. ALLSHOWN LEVELS ARE IN METERS UNLES INDCATED OTHERWISE. 3. CHARACTERSTIC CONCRETE CUBE COMPRESSIVE STRENGH AFTER 28 DAYS FOR THE REINFORCEMENT CONCRETE AND TIE BEAMS EQUAL 30N/MM^2 4. THE MAXIMUM AGGREGATE SIZE DOES NOT EXCEED 20mm. 5. ALL FOOTINGS ARE CONCENTRIC WITH COLUMNS UNO. 6. THE FOUNDATION FNL IS THE BOTTOM OF PC FOOTING. 7.ALL FOUNDATIONS ARE DESIGNED ON A MINIMUM SAFE BEARING CAPACITY Of 150 KN/M^2 AT THE FOUNDATION LEVEL 8. FOR LOCATUON AND LEVELSOF OPENING AND SLEEVES IN ALL MEMBERS REFER TO GENERAL ARRANGEMENT DRWINGS IN CONJUNCTION WITH ALL OTHER ENGINEERING DRAWINGS. -T.O.C = TOP OF CONCRETE -T.O.B = TOP OF BEAM -S.B = SIDE BARS -C.J. = CONSTRUCTION JOINT -E.F. = EACH FACE -A.C. = APPROVED COUPLER -FNL = 1 50 ENG :SHERY RAOUF 23/5/2022 01 Quantity Survey For Main Stai Skirting From Ground Floor To Third Floor NH04‐RB‐10‐01,02‐AR‐R00 NEWGIZA -NH05 QS039 ECG QS#181 01 ISSUED FOR APPROVAL SCALE 1 50 QS039 FIRST FLOOR PLAN - MAIN STAIR - MARBLE STAIR STEPSFROM GD TO 1ST QS Copy 1 Copy 1 1 SCALE 1 50 QS039 GROUND
ENTRANCE & MAIN LOBBIES QS 2 SCALE 1 50 QS039 SECOND FLOOR PLAN - MAIN STAIR MARBLE STAIR STEPSFROM 1ST TO 2ND 3 SCALE 1 50 QS039 THIRD FLOOR PLAN - MAIN STAIR - MARBLE STAIR STEPSFROM 2ND TO 3RD 4
Item CodeDescriptionCountTotal Length 097500.01
SCALE QS039 Main Stair Base Skirting 5 SCALE QS039 Main Stair Base Skirting 6 NH 05 -RB-10 - 01 -AR - R 00 (LIGHT THEME) QS ‐05‐ RB10‐ 1 4 7 10 11 12 13 14‐ QS039‐ 01 LAKESIDE (RB - 10- 01& 02& 03& 04 & 05 & 06& 07& 08& 09 & 10& 11& 12& 13 & 14 QS# 201

Section:

Date:

From: Contractor: --------- DELTA VISION

Submittal for Approval

Previous

Transmittal No: QS#184

DEGLA PROJECT MANAGEMENT

New Giza Project (NH.05 – NEWGIZA)

RB-10 (1-2-3-4-5-6-7-8-9-10-11-1213-14)

Contract No.: --------- NG/NHO5/DEVICO

Consultant Remarks:

Degla CFM Remarks:

The Following Action Code Are Given to Item

Submitted:

A Approved as Submitted

B Approved as Noted

C Revise & Resubmission Required.

Method Statement Calculation Sheet Others Others

Approval of Item Does not Relieve the Contractor from complying with requirements of Contract documents Specifications and applicable Codes.

Contractors Name:

It's not intended by the aforementioned response to constitute Engineer's Instruction for variation. In case the Contractor believes that this reply includes variation affecting the Time for Completion or the Contract Price, the Contractor shall immediately notify the Engineer with the time & cost implications, if any

.
ITEM Description No. of Copies Contract Reference Documents Action Code NOTES Specs. No. DWG No.
9340.03 QS-05-RB101_2_3_4_5_6_7_8_9_10_11_12_13_14QS046-01
1 QUANTITY SURVEY INTERNAL MARBLE FLOORING FROM GROUND TO THIRD FLOOR
DELTA
VSION FOR CONSTRUCTION
-----------------------------------------------
Contractors Signature: 28/5/2022 New Submittal Resubmittal
To:
Transmittal No:QS#204
Quantity Survey Samples Certificate Colored Brochure
Items to be submitted:
Specification Sec No: --------------------------------------------------

QS INTERNAL MARBLE FLOORING

ITEM CODEDescriptionAreaUNITCount

1.Ground Floor

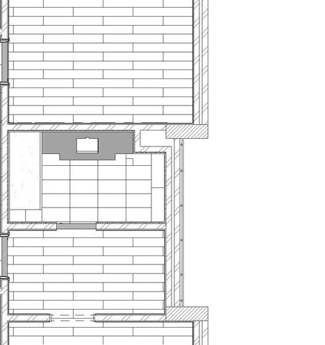
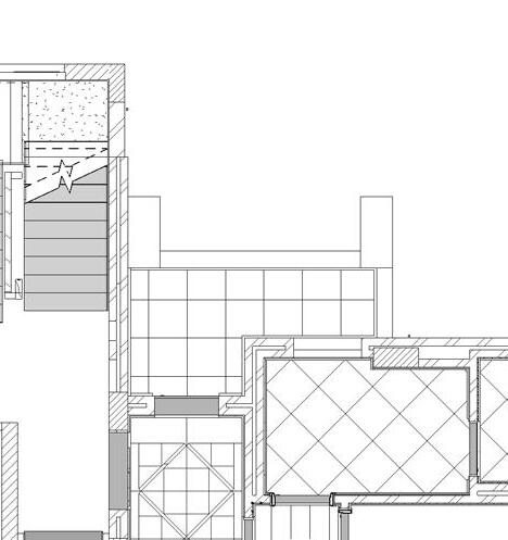
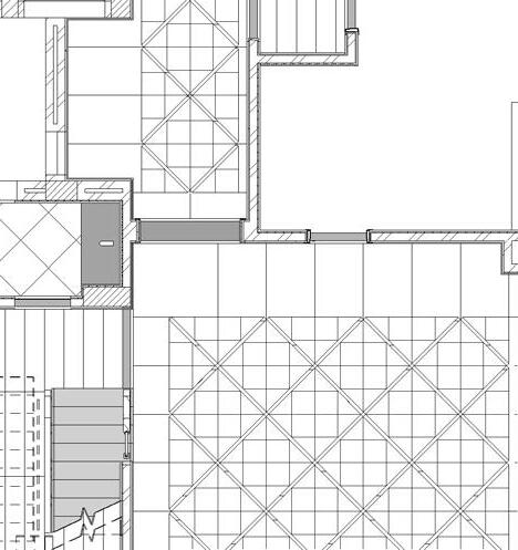
09340.0120 mm Thickness Triesta Grey Marble With Terriesta Beige Marble strips As Per Approved Sample ,as per DWG ,For Reception, Dinning , Enterance, Kitchen Enterance, Stair Lobby .

2.First Floor

09340.0120 mm Thickness Triesta Grey Marble With Terriesta Beige Marble strips As Per Approved Sample ,as per DWG ,For Reception, Dinning , Enterance, Kitchen Enterance, Stair Lobby .

3.Second Floor

09340.0120 mm Thickness Triesta Grey Marble With Terriesta Beige Marble strips As Per Approved Sample ,as per DWG ,For Reception, Dinning , Enterance, Kitchen Enterance, Stair Lobby .

170.70 m²m216

44.65 m²m212

168.46 m²m223

01 01 02 02 03 03 04 04 05 05 06 06 07 07 08 08 09 09 A A B B C C D D E E F F G G H H J J K K 20MM TH. TRIESTA GREY POLISHED MARBLE ITEM CODE (09340.01) 20MM TH. TRIESTA BEIGE POLISHED MARBLE STRIPS ITEM CODE (09340.01) 20MM TRIESTA BEIGE MARBLE STRIPS ITEM CODE 09340.01 20MM TH. TRIESTA BEIGE POLISHED MARBLE STRIPS ITEM CODE (09340.01) 20MM TH. TRIESTA GREY POLISHED MARBLE ITEM CODE (09340.01) 20MM TH. TRIESTA BEIGE POLISHED MARBLE STRIPS ITEM CODE (09340.01) 20MM TH. TRIESTA GREY POLISHED MARBLE ITEM CODE (09340.01) 20MM TH. TRIESTA BEIGE POLISHED MARBLE STRIPS ITEM CODE (09340.01) 20MM TRIESTA BEIGE MARBLE STRIPS ITEM CODE 09340.01 20MM TH. TRIESTA BEIGE POLISHED MARBLE STRIPS ITEM CODE (09340.01) 20MM TH. TRIESTA GREY POLISHED MARBLE ITEM CODE (09340.01) 20MM TH. TRIESTA BEIGE POLISHED MARBLE STRIPS ITEM CODE (09340.01) QS055 4 01 01 02 02 03 03 04 04 05 05 06 06 07 07 08 08 09 09 A A B B C C D D E E F F G G H H J J K K BEDROOM TERRACE 1ST09/A 1ST BATHROOM 08/A DRESSING ROOM 07/A 1ST MASTER 06/A TERRACE 05/A LIVING ROOM KITCHENETTE 1ST STAIR LOBBY 02/A LAUNDRY BATHROOM 14/A DRESSING ROOM 1ST TERRACE 11/A MAIN STAIRS 1ST TERRACE 11/B 1ST DRESSING ROOM 1ST BATHROOM 14/B 1ST BATHROOM 15/B LAUNDRY STAIR LOBBY 02/B 1ST KITCHENETTE 03/B LIVING ROOM 04/B TERRACE 05/B MASTER BEDROOM DRESSING ROOM 07/B 1ST MASTER BATHROOM 08/B 1ST BEDROOM 09/B 1ST TERRACE 1ST10/B BEDROOM 12/B STAIR 01/A STAIR 01/B BEDROOM 20MM TH. TRIESTA BEIGE MARBLE STRIPS ITEM CODE (09340.01) 20MM TH. TRIESTA GREY POLISHED MARBLE ITEM CODE (09340.01) 20MM TH. TRIESTA GREY POLISHED MARBLE ITEM CODE (09340.01) 20MM TH. TRIESTA BEIGE MARBLE STRIPS ITEM CODE (09340.01) 20MM TH. TRIESTA GREY POLISHED MARBLE ITEM CODE (09340.01) 20MM TH. TRIESTA GREY POLISHED MARBLE ITEM CODE (09340.01) QS055 4 01 01 02 02 03 03 04 04 05 05 06 06 07 07 08 08 09 09 A A B B C C D D E E F F G G H H J J K K BEDROOM BATHROOM KITCHEN 05/A 2ND DINNING ROOM 2ND RECEPTION 07/A TERRACE 2ND STAIR LOBBY 10/A GUEST TOILET 2ND ENTRANCE 01/A 2ND TERRACE 02/A STAIRS LOBBY TERRACE 2ND ENTRANCE 01/B 2ND GUEST 11/B 2ND STAIR 10/B TERRACE DINNING ROOM 2ND KITCHEN 05/B 2ND BEDROOM 03/B ROOM 2ND STAIR 09/B STAIR 2ND MAIN 13 LOBBY BATHROOM 44304/B 6305710 430 6980 5190 5710 6980 5190 3620 6380 7425693 5915197591 600 670 7425693 5915789 20MM TH. TRIESTA BEIGE POLISHED MARBLE STRIPS ITEM CODE (09340.01) 20MM TH. TRIESTA BEIGE POLISHED MARBLE STRIPS ITEM CODE (09340.01) 20MM TH. TRIESTA GREY POLISHED MARBLE ITEM CODE (09340.01) 20MM TRIESTA BEIGE MARBLE STRIPS ITEM CODE 09340.01 20MM TH. TRIESTA BEIGE POLISHED MARBLE STRIPS ITEM CODE (09340.01) 20MM TH. TRIESTA BEIGE POLISHED MARBLE STRIPS ITEM CODE (09340.01) 20MM TH. TRIESTA GREY POLISHED MARBLE ITEM CODE (09340.01) 20MM TRIESTA BEIGE MARBLE STRIPS ITEM CODE 09340.01 QS055 4 www com.ecgsa. www com.ecgsa. www com.ecgsa. Client Project DRAWING TITLE: Extracted from BIM model: REVIEWED BY: SCALE DRAWN BY: DWG.No: Sheet No: Owner: KEY PLAN Revision NO. DATE CHECKED: GENERAL NOTES :Symbols :Drawing Revision Number Revision Description Revision Date Buiding Number SD Number REFERENCES Discription Drawing Architectural Designer: Supervision Consultant: Main Contractor: Structural Designer: MEP Designer: DESIGNED 1. ALL DIMENSION ARE IN MILLIMETERS ,UNLES INDICATED OTHERWISE. 2. ALLSHOWN LEVELS ARE IN METERS UNLES INDCATED OTHERWISE. 3. CHARACTERSTIC CONCRETE CUBE COMPRESSIVE STRENGH AFTER 28 DAYS FOR THE REINFORCEMENT CONCRETE AND TIE BEAMS EQUAL 30N/MM^2 4. THE MAXIMUM AGGREGATE SIZE DOES NOT EXCEED 20mm. 5. ALL FOOTINGS ARE CONCENTRIC WITH COLUMNS UNO. 6. THE FOUNDATION FNL IS THE BOTTOM OF PC FOOTING. 7.ALL FOUNDATIONS ARE DESIGNED ON A MINIMUM SAFE BEARING CAPACITY Of 150 KN/M^2 AT THE FOUNDATION LEVEL 8. FOR LOCATUON AND LEVELSOF OPENING AND SLEEVES IN ALL MEMBERS REFER TO GENERAL ARRANGEMENT DRWINGS IN CONJUNCTION WITH ALL OTHER ENGINEERING DRAWINGS. -T.O.C = TOP OF CONCRETE -T.O.B = TOP OF BEAM -S.B = SIDE BARS -C.J. = CONSTRUCTION JOINT -E.F. = EACH FACE -A.C. = APPROVED COUPLER -FNL = As indicated ENG :SHERY RAOUF Checker 23/5/2022 QUANTITY SURVEY INTERNAL MARBLE FLOORING FROM GROUND TO THIRD FLOOR NEWGIZA -NH05 QS046 ECG QS#184 SCALE 1 90 QS046 GROUND FLOOR PLAN 1 SCALE 1 100 QS046 PLAN MARBLE FLOORING DETAILS (KEY PLAN) 2 SCALE 100 QS046 SECOND MARBLE FLOORING (KEY PLAN) 3 SCALE QS046 QS MARBLE FLOORING 4
51 383.81 m² SCALE QS046 QS MARBLE FLOORING 5 NH 05 -RB-10 - 01 -AR - R 00 (LIGHT THEME) QS ‐05‐ RB10‐ 1 4 7 10 11 12 13 14‐ QS046‐ 01 QS#204 LAKESIDE (RB - 10- 01& 02& 03& 04 & 05 & 06& 07& 08& 09 & 10& 11& 12& 13 & 14 01

Section: -----------------------------------------------

To:

DEGLA PROJECT MANAGEMENT

New Giza Project (NH.05 – NEWGIZA)

RB-10 (01)

Submittal for Approval

Date: 22/5/2022

From:

Contractor: --------- DELTA VISION

Contract No.: --------- NG/NHO5/DEVICO

Transmittal No:QS#197

Items to be submitted:

Previous Transmittal No: QS#159

Quantity Survey Samples

Certificate

Colored Brochure

Specification Sec No: --------------------------------------------------

1 Quantity Survey For Marble Base Cladding

Consultant Remarks:

Degla CFM Remarks: The Following Action Code Are Given to Item

Submitted:

A Approved as Submitted

B Approved as Noted

C Revise & Resubmission Required.

Degla CFM: Author: ................................................

Method Statement

Calculation Sheet Others Others

Approval of Item Does not Relieve the Contractor from complying with requirements of Contract documents Specifications and applicable Codes.

Contractors Name: DELTA VSION FOR CONSTRUCTION

Contractors Signature:

Degla CFM Project Manager: .................................................

It's not intended by the aforementioned response to constitute Engineer's Instruction for variation. In case the Contractor believes that this reply includes variation affecting the Time for Completion or the Contract Price, the Contractor shall immediately notify the Engineer with the time & cost implications, if any

ITEM Description No. of Copies Contract Reference Documents Action Code NOTES Specs. No. DWG No.
QS-05-RB10-01-QS028-01
097500.01
Submittal Resubmittal
New

QS Marble Base Cladding

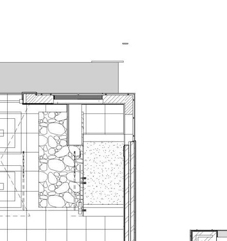
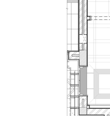
20mm thick From TRIESTA Grey Antique Marble base CLADDING for Elevation as per Drawings, Approved sample and According to Detail 02/AR‐901

Front elev 097500.01 20mm thick From TRIESTA Grey Antique Marble base CLADDING for Elevation as per Drawings, Approved sample and According to Detail 02/AR‐901

Side elev 01 097500.01 20mm thick From TRIESTA Grey Antique Marble base CLADDING for Elevation as per

Drawings, Approved sample and According to Detail 02/AR‐901

20mm thick From TRIESTA Grey Antique Marble base CLADDING for Elevation as per

Drawings, Approved sample and According to Detail 02/AR‐901

01 01 02 02 03 03 04 04 05 05 06 06 07 07 08 08 09 09 A A B B C C D D E E F F G G H H J J K K 7660 1840 285 20MM ANTIQUE TRIESTA BEIGE MARBLE SKIRTING 20MM ANTIQUE TRIESTA BEIGE MARBLE SKIRTING 640 1440 20MM ANTIQUE TRIESTA BEIGE MARBLE SKIRTING 1180 640 640 640 640 20MM ANTIQUE TRIESTA BEIGE MARBLE SKIRTING 20MM ANTIQUE TRIESTA BEIGE MARBLE SKIRTING 20MM ANTIQUE TRIESTA BEIGE MARBLE SKIRTING 20MM ANTIQUE TRIESTA BEIGE MARBLE SKIRTING 20MM ANTIQUE TRIESTA BEIGE MARBLE SKIRTING 20MM ANTIQUE TRIESTA BEIGE MARBLE SKIRTING 20MM ANTIQUE TRIESTA BEIGE MARBLE SKIRTING 20MM ANTIQUE TRIESTA BEIGE MARBLE SKIRTING 20MM ANTIQUE TRIESTA BEIGE MARBLE SKIRTING 50 20MM ANTIQUE TRIESTA BEIGE MARBLE SKIRTING 20MM ANTIQUE TRIESTA BEIGE MARBLE SKIRTING 20MM ANTIQUE TRIESTA BEIGE MARBLE SKIRTING 613613613613613613 1840 D08* 4060 285 20MM ANTIQUE TRIESTA BEIGE MARBLE SKIRTING 20MM ANTIQUE TRIESTA BEIGE MARBLE SKIRTING 720720 1440 1180 720720 1990 1400 720720 1440 720 1990 1840 613613613 7575 1840 613613613 20MM ANTIQUE TRIESTA BEIGE MARBLE SKIRTING 20MM ANTIQUE TRIESTA BEIGE MARBLE SKIRTING 20MM ANTIQUE TRIESTA BEIGE MARBLE SKIRTING 20MM ANTIQUE TRIESTA BEIGE MARBLE SKIRTING 600600600620620600600 20MM ANTIQUE TRIESTA BEIGE MARBLE SKIRTING 20MM ANTIQUE TRIESTA BEIGE MARBLE SKIRTING L.S-01 (L) L.S-01 (R) 583040 20MM ANTIQUE TRIESTA BEIGE MARBLE SKIRTING 20MM ANTIQUE TRIESTA BEIGE MARBLE SKIRTING 20MM ANTIQUE TRIESTA BEIGE MARBLE SKIRTING 3610 20MM ANTIQUE TRIESTA BEIGE MARBLE SKIRTING 3995 3065 20MM ANTIQUE TRIESTA BEIGE MARBLE SKIRTING 20MM ANTIQUE TRIESTA BEIGE MARBLE SKIRTING 20MM ANTIQUE TRIESTA BEIGE MARBLE SKIRTING 20MM ANTIQUE TRIESTA BEIGE MARBLE SKIRTING 20MM ANTIQUE TRIESTA BEIGE MARBLE SKIRTING 40 40 40 40 40 40 40 4040 2020 40 40 40 40 20 20 20MM ANTIQUE TRIESTA BEIGE MARBLE SKIRTING 20MM ANTIQUE TRIESTA BEIGE MARBLE SKIRTING 5830 3570 20MM ANTIQUE TRIESTA BEIGE MARBLE SKIRTING 665 600 600 600 600 40 20 40 20 20MM ANTIQUE TRIESTA BEIGE MARBLE SKIRTING 20MM ANTIQUE TRIESTA BEIGE MARBLE SKIRTING 20MM ANTIQUE TRIESTA BEIGE MARBLE SKIRTING 440600600600600600600600600600600600600600600600600600600440 58405840 680 680 271 40 271 1450725725 2820705705705705 40 40 CW01 610610610610610 220220 470 20MM ANTIQUE TRIESTA BEIGE MARBLE SKIRTING 20MM ANTIQUE TRIESTA BEIGE MARBLE SKIRTING 20MM ANTIQUE TRIESTA BEIGE MARBLE SKIRTING 40MM ANTIQUE TRIESTA beige MARBLE TREAD FOR THE EXTERNAL STEP OF THE MAN ENTRANCE ITEM:096340.04 20MM ANTIQUE TRIESTA BEIGE MARBLE TILES ITEM :096340.01 20MM ANTIQUE TRIESTA BEIGE MARBLE SKIRTING 680 680 1360 271271 1820 20MM ANTIQUE TRIESTA BEIGE MARBLE SKIRTING 20MM ANTIQUE TRIESTA BEIGE MARBLE SKIRTING 1020 1820 GR.F.F.L.+145.50 20MM TRIESTA BEIGE MARBLE STRIPS ITEM CODE 09340.01 40MM ANTIQUE TRIESTA beige MARBLE TREAD FOR THE EXTERNAL STEP OF THE MAN ENTRANCE ITEM:096340.04 20MM TH. TRIESTA BEIG POLISHED MARBLE THRESHOLD ITEM CODE (09340.02) 20MM TH. TRIESTA BEIG POLISHED MARBLE THRESHOLD ITEM CODE (09340.02) 20MM TRIESTA BEIGE MARBLE STRIPS ITEM CODE 09340.01 40MM ANTIQUE TRIESTA beige MARBLE TREAD FOR THE EXTERNAL STEP OF THE MAN ENTRANCE ITEM:096340.04 AR28 16 AR28 16
600 600 600 600 600 600 600 600 600 4320 470-
QS056 QS055 4 -
-
www com.ecgsa. www com.ecgsa. www com.ecgsa. Client Project DRAWING TITLE: Extracted from BIM model: REVIEWED BY: SCALE DRAWN BY: DWG.No: Sheet No: Owner: KEY PLAN Revision NO. DATE CHECKED: GENERAL NOTES :Symbols :Drawing Revision Number Revision Description Revision Date Buiding Number SD Number REFERENCES Discription Drawing Architectural Designer: Supervision Consultant: Main Contractor: Structural Designer: MEP Designer: DESIGNED 1. ALL DIMENSION ARE IN MILLIMETERS ,UNLES INDICATED OTHERWISE. 2. ALLSHOWN LEVELS ARE IN METERS UNLES INDCATED OTHERWISE. 3. CHARACTERSTIC CONCRETE CUBE COMPRESSIVE STRENGH AFTER 28 DAYS FOR THE REINFORCEMENT CONCRETE AND TIE BEAMS EQUAL 30N/MM^2 4. THE MAXIMUM AGGREGATE SIZE DOES NOT EXCEED 20mm. 5. ALL FOOTINGS ARE CONCENTRIC WITH COLUMNS UNO. 6. THE FOUNDATION FNL IS THE BOTTOM OF PC FOOTING. 7.ALL FOUNDATIONS ARE DESIGNED ON A MINIMUM SAFE BEARING CAPACITY Of 150 KN/M^2 AT THE FOUNDATION LEVEL 8. FOR LOCATUON AND LEVELSOF OPENING AND SLEEVES IN ALL MEMBERS REFER TO GENERAL ARRANGEMENT DRWINGS IN CONJUNCTION WITH ALL OTHER ENGINEERING DRAWINGS. -T.O.C = TOP OF CONCRETE -T.O.B = TOP OF BEAM -S.B = SIDE BARS -C.J. = CONSTRUCTION JOINT -E.F. = EACH FACE -A.C. = APPROVED COUPLER -FNL = 1 50 Eng. shery raouf 22/5/2022 01 Quantity Survey For Marble Base Cladding NH04‐RB‐10‐01‐AR‐R00 NEWGIZA -NH05 QS028 ECG QS#159 01 ISSUED FOR APPROVAL
600600600600600600600600600430430
-
-
-
Back elev 097500.01
4.45 m²
Item CodeDescriptionAreaCountMark
20Back elev 4.45 m²
8.37 m²
8.37 m² 21Front elev
6.93 m² 8Side elev 01 6.93 m²
Side elev 02 097500.01
5.35 m² 8Side elev 02 5.35 m² 25.10 m² SCALE QS028 Marble Base Cladding 3D 1 SCALE QS028 Marble Base Cladding 2 SCALE 1 50 QS028 SKIRTING
3 QS ‐05‐ RB10‐ 01‐ QS028‐ 01 LAKESIDE (RB - 10 - 01 ) QS#197
DETAILS - GROUND FLOOR

General Architectural Comments:

• Marble skating on the floor is carried out according to the drawings of the International Finance Corporation.

• All levels must be according to the last review of the institution Table of levels transmitted by NEWGIZA.

• External landscaping levels must be considered with marble edges

• The width of the corner cutting shall not be less than 400 mm.

• Angle detail is required (1:1 scale).

• Coordination between disciplines is the responsibility of the contractor.

• The contractor has been directed to create a template on the site for final approval.

• Contractor is responsible for providing any missing details required after approval as per site supervision needs.

- Mock up is Required for Final Approval.

UP UP DN DN 01 02 03 04 04 05 05 06 06 07 07 08 08 09 09 A A B B C C D D E E F F G G H H J K K 7660 AR28 2 1840 285 20MM ANTIQUE TRIESTA BEIGE MARBLE SKIRTING 20MM ANTIQUE TRIESTA BEIGE MARBLE SKIRTING 1440 20MM ANTIQUE TRIESTA BEIGE MARBLE SKIRTING 1180 640 640 20MM ANTIQUE TRIESTA BEIGE MARBLE SKIRTING 20MM ANTIQUE TRIESTA BEIGE MARBLE SKIRTING 20MM ANTIQUE TRIESTA BEIGE MARBLE SKIRTING 20MM ANTIQUE TRIESTA BEIGE MARBLE SKIRTING 20MM ANTIQUE TRIESTA BEIGE MARBLE SKIRTING 20MM ANTIQUE TRIESTA BEIGE MARBLE SKIRTING 20MM ANTIQUE TRIESTA BEIGE MARBLE SKIRTING 20MM ANTIQUE TRIESTA BEIGE MARBLE SKIRTING 20MM ANTIQUE TRIESTA BEIGE MARBLE SKIRTING AR28 3 4 AR28 6 AR28 AR28 AR28 10 AR28 13 4840 20MM ANTIQUE TRIESTA BEIGE MARBLE SKIRTING AR28 9 AR28 12 20MM ANTIQUE TRIESTA BEIGE MARBLE SKIRTING 20MM ANTIQUE TRIESTA BEIGE MARBLE SKIRTING 20MM ANTIQUE TRIESTA BEIGE MARBLE SKIRTING AR28 11 613613613613613613 1840 D08* 4060 75 20MM ANTIQUE TRIESTA BEIGE MARBLE SKIRTING 20MM ANTIQUE TRIESTA BEIGE MARBLE SKIRTING 720720 1440 590 590 720720 1990 590 590 1400 720720 1440 720720 1840 613613613 75 1840 613613613 20MM ANTIQUE TRIESTA BEIGE MARBLE SKIRTING 20MM ANTIQUE TRIESTA BEIGE MARBLE SKIRTING 20MM ANTIQUE TRIESTA BEIGE MARBLE SKIRTING 20MM ANTIQUE TRIESTA BEIGE MARBLE SKIRTING 600600600620620600600600 20MM ANTIQUE TRIESTA BEIGE MARBLE SKIRTING 20MM ANTIQUE TRIESTA BEIGE MARBLE SKIRTING L.S-01 (L) L.S-01 (R) 20MM ANTIQUE TRIESTA BEIGE MARBLE SKIRTING 20MM ANTIQUE TRIESTA BEIGE MARBLE SKIRTING 20MM ANTIQUE TRIESTA BEIGE MARBLE SKIRTING 20MM ANTIQUE TRIESTA BEIGE MARBLE SKIRTING 600 600 600 600 600 600 600600600600665 20MM ANTIQUE TRIESTA BEIGE MARBLE SKIRTING 20MM ANTIQUE TRIESTA BEIGE MARBLE SKIRTING 20MM ANTIQUE TRIESTA BEIGE MARBLE SKIRTING 20MM ANTIQUE TRIESTA BEIGE MARBLE SKIRTING 20MM ANTIQUE TRIESTA BEIGE MARBLE SKIRTING 40 40 40 40 40 40 40 2020 40 40 20 20 20MM ANTIQUE TRIESTA BEIGE MARBLE SKIRTING 20MM ANTIQUE TRIESTA BEIGE MARBLE SKIRTING 5830 3995 20MM ANTIQUE TRIESTA BEIGE MARBLE SKIRTING 40 20 40 20 20MM ANTIQUE TRIESTA BEIGE MARBLE SKIRTING 20MM ANTIQUE TRIESTA BEIGE MARBLE SKIRTING 20MM ANTIQUE TRIESTA BEIGE MARBLE SKIRTING 440600600600600600600600600600 40 600600600600600600600600600440 58405840 15 271271 725725 705705705705 40 40 CW01 610610610610610 220 470 20MM ANTIQUE TRIESTA BEIGE MARBLE SKIRTING 20MM ANTIQUE TRIESTA BEIGE MARBLE SKIRTING 20MM ANTIQUE TRIESTA BEIGE MARBLE 40MM ANTIQUE TRIESTA GREY MARBLE TREAD FOR THE EXTERNAL STEP OF THE MAN ENTRANCE ITEM:096340.04 20MM ANTIQUE TRIESTA GREY MARBLE TILES ITEM :096340.01 20MM ANTIQUE TRIESTA BEIGE MARBLE SKIRTING 271271 1820 20MM ANTIQUE TRIESTA BEIGE MARBLE SKIRTING 20MM ANTIQUE TRIESTA BEIGE MARBLE SKIRTING 1020 300 1820 GR.F.F.L.+145.50 20MM TRIESTA BEIGE MARBLE STRIPS ITEM CODE 09340.01 40MM ANTIQUE TRIESTA GREY MARBLE TREAD FOR THE EXTERNAL STEP OF THE MAN ENTRANCE ITEM:096340.04 20MM TH. TRIESTA BEIGE POLISHED MARBLE THRESHOLD ITEM CODE (09340.02) 20MM TH. TRIESTA BEIGE POLISHED MARBLE THRESHOLD ITEM CODE (09340.02) 20MM TRIESTA BEIGE MARBLE STRIPS ITEM CODE 09340.01 40MM ANTIQUE TRIESTA GREY MARBLE TREAD FOR THE EXTERNAL STEP OF THE MAN ENTRANCE ITEM:096340.04 396 4320 470 GRD +145.50 m GRD +145.50 m B.O.SKI.. +145.35 m - B.O.SKI.. +145.35 m01 02 03 04 05 720680 20MM ANTIQUE TRIESTA BEIGE MARBLE SKIRTING DRY MIX PAINT ON CEMENT PLASTER LIGHT COLOR CODE (REFERS TO MS#64/NH05) 20MM ANTIQUE TRIESTA BEIGE MARBLE SKIRTING 18401840 680680 20MM ANTIQUE TRIESTA BEIGE MARBLE SKIRTING SPLIT FACE FROM TERIESTA BEIGE MARBLE FIXED WITH CEMENT MORTAR AS PER APPROVED SAMPLE 20MM ANTIQUE TRIESTA BEIGE MARBLE SKIRTING DRY MIX PAINT ON CEMENT PLASTER LIGHT COLOR CODE (REFERS TO MS#64/NH05) TOP OF SKIRTING +0.15 T.O.SKI +145.65 m FFL T.O.SKI +145.65 m FFL 40MM TRIESTA BEIGE POLISHED MARBLE FOR STAIR STEP ITEM CODE (9340.03) 1840 613613613613613613 D08* 1360 40360 360620620 300 1840 613613613613613613 40MM TRIESTA BEIGE POLISHED MARBLE FOR STAIR STEP ITEM CODE (9340.03) D08* L.S-01 (L) GRD +145.50 m GRD +145.50 m B.O.SKI.. +145.35 mB C D E F G H K 20MM ANTIQUE TRIESTA BEIGE MARBLE SKIRTING 150 DRY MIX PAINT ON CEMENT PLASTER LIGHT COLOR CODE (REFERS TO MS#64/NH05) 20MM ANTIQUE TRIESTA BEIGE MARBLE SKIRTING 25*25MM ALUMINUM LOUVER SPACING 25MM 20MM ANTIQUE TRIESTA BEIGE MARBLE SKIRTING DRY MIX PAINT ON CEMENT PLASTER LIGHT COLOR CODE (REFERS TO MS#64/NH05) ALUMINIUM CLADDING BOXES(20*80*1.5)MM WITH SPACING 8MM BETWEEN EACH BOX T.O.SKI +145.65 m FFL T.O.SKI +145.65 m FFL 500300300 L.S-01 (R) 600600600665600600600600600600396600600585585600600600600600600600600600600600430 300 280 .B.O.SKI +145.15 m 40 600 GRD +145.50 m B.O.SKI.. +145.35 mK 20MM ANTIQUE TRIESTA BEIGE MARBLE SKIRTING 20MM CEMENT PLASTER DRY MIX PAINT ON CEMENT PLASTER LIGHT COLOR CODE (REFERS TO MS#64/NH05) T.O.SKI +145.65 m FFL GRD +145.50 m GRD +145.50 m B.O.SKI.. +145.35 m - B.O.SKI.. +145.35 mJ 20MM CEMENT PLASTER 20MM ANTIQUE TRIESTA BEIGE MARBLE SKIRTING 300 T.O.SKI +145.65 m FFL T.O.SKI +145.65 m FFL 40 SPLIT FACE FROM TERIESTA BEIGE MARBLE FIXED WITH CEMENT MORTAR AS PER APPROVED SAMPLE GRD +145.50 m B.O.SKI.. +145.35 m01 BOTTOM OF SKIRTING TOP OF SKIRTING +0.15 T.O.SKI +145.65 m FFL T.O.SKI +145.65 m FFL 150 150 20MM ANTIQUE TRIESTA BEIGE MARBLE SKIRTING 20MM ANTIQUE TRIESTA BEIGE MARBLE SKIRTING 20MM ANTIQUE TRIESTA BEIGE MARBLE SKIRTING 20MM ANTIQUE TRIESTA BEIGE MARBLE SKIRTING DRY MIX PAINT ON CEMENT PLASTER LIGHT COLOR CODE (REFERS TO MS#64/NH05) 20MM ANTIQUE TRIESTA BEIGE MARBLE SKIRTING 20MM ANTIQUE TRIESTA BEIGE MARBLE SKIRTING 20MM ANTIQUE TRIESTA BEIGE MARBLE SKIRTING 20MM ANTIQUE TRIESTA BEIGE MARBLE SKIRTING 20MM ANTIQUE TRIESTA BEIGE MARBLE SKIRTING DRY MIX PAINT ON CEMENT PLASTER LIGHT COLOR CODE (REFERS TO MS#64/NH05) 25*25MM ALUMINUM LOUVER SPACING 25MM 20MM ANTIQUE TRIESTA BEIGE MARBLE SKIRTING SPLIT FACE FROM TERIESTA BEIGE MARBLE FIXED WITH CEMENT MORTAR AS PER APPROVED SAMPLE GRD +145.50 m GRD +145.50 m 01 02 03 04 05 06 07 08 09 20MM ANTIQUE TRIESTA BEIGE MARBLE SKIRTING DRY MIX PAINT ON CEMENT PLASTER LIGHT COLOR CODE (REFERS TO MS#64/NH05) 25*25MM ALUMINUM LOUVER SPACING 25MM DRY MIX PAINT ON CEMENT PLASTER DARK COLOR CODE (REFERS TO MS#64/NH05) 20MM ANTIQUE TRIESTA BEIGE MARBLE SKIRTING ALUMINIUM CLADDING BOXES(20*80*1.5)MM WITH SPACING 8MM BETWEEN EACH BOX TOP SKIRTING 0.15 T.O.SKI +145.65 m FFL T.O.SKI +145.65 m FFL 440600600600600600600600600600 5840 300300 271 150 150 150 271470271 150340 271600600600600600600600600600440 300150 20MM ANTIQUE TRIESTA BEIGE MARBLE SKIRTING 20MM ANTIQUE TRIESTA BEIGE MARBLE RISER FOR THE EXTERNAL STEP OF THE MAN ENTRANCE 20MM ANTIQUE TRIESTA BEIGE MARBLE RISER FOR THE EXTERNAL STEP OF THE MAN ENTRANCE 20MM ANTIQUE TRIESTA BEIGE MARBLE SKIRTING 20MM ANTIQUE TRIESTA BEIGE MARBLE SKIRTING 20MM ANTIQUE TRIESTA BEIGE MARBLE SKIRTING L.S-01 (L) L.S-01 (R) .B.O.SKI +145.15 m 610610610610610470 GRD +145.50 m GRD +145.50 m B.O.SKI.. +145.35 mB.O.SKI.. +145.35 mB C D E F G H K TOP SKIRTING +0.15 150 20MM ANTIQUE TRIESTA BEIGE MARBLE SKIRTING DRY MIX PAINT ON CEMENT PLASTER LIGHT COLOR CODE (REFERS TO MS#64/NH05) 25*25MM ALUMINUM LOUVER SPACING 25MM 20MM ANTIQUE TRIESTA BEIGE MARBLE SKIRTING 20MM ANTIQUE TRIESTA BEIGE MARBLE SKIRTING T.O.SKI +145.65 m FFL T.O.SKI +145.65 m FFL L.S-01 (L) 430600600600600600600600600600600600585585600600396600600600600600600600600600600 150300300300300300 ALUMINIUM CLADDING BOXES(20*80*1.5)MM WITH SPACING 8MM BETWEEN EACH BOX DRY MIX PAINT ON CEMENT PLASTER LIGHT COLOR CODE (REFERS TO MS#64/NH05) 20MM ANTIQUE TRIESTA BEIGE MARBLE SKIRTING 665 GRD +145.50 m GRD +145.50 m B.O.SKI.. +145.35 mB.O.SKI.. +145.35 mA B C 20MM ANTIQUE TRIESTA BEIGE MARBLE SKIRTING T.O.SKI +145.65 m FFL T.O.SKI +145.65 m FFL 725725 1450 680680705705705705 SPLIT FACE FROM TERIESTA BEIGE MARBLE FIXED THRESHOLD ITEM CODE (09340.02) 20MM TRIESTA BEIGE MARBLE STRIPS ITEM CODE 09340.01 FOR THE EXTERNAL STEP OF THE MAN ENTRANCE ITEM:096340.04 GR.F.F.L.+145.50 T.O.EX (FINISH) GRD +145.50 m GRD +145.50 m B.O.SKI.. +145.35 m - B.O.SKI.. +145.35 mA B C T.O.SKI +145.65 m FFL T.O.SKI +145.65 m FFL 720600600600600600600680680 300 20MM TRIESTA BEIGE MARBLE STRIPS ITEM CODE 09340.01 40MM ANTIQUE TRIESTA GREY MARBLE TREAD ITEM:096340.04 20MM ANTIQUE TRIESTA BEIGE MARBLE SKIRTING SPLIT FACE FROM TERIESTA BEIGE MARBLE FIXED GRD +145.50 m GRD +145.50 m B.O.SKI.. +145.35 m - B.O.SKI.. +145.35 m09 BOTTOM OF SKIRTING -0.15 TOP OF SKIRTING +0.15 T.O.SKI +145.65 m FFL 300 20MM ANTIQUE TRIESTA BEIGE MARBLE SKIRTING 20MM ANTIQUE TRIESTA BEIGE MARBLE SKIRTING 25*25MM ALUMINUM LOUVER SPACING 25MM SPLIT FACE FROM TERIESTA BEIGE MARBLE FIXED 20MM ANTIQUE TRIESTA BEIGE MARBLE SKIRTING 40MM ANTIQUE TRIESTA GREY MARBLE TREAD FOR THE EXTERNAL STEP OF THE MAN ENTRANCE 20MM ANTIQUE TRIESTA BEIGE MARBLE SKIRTING 20MM ANTIQUE TRIESTA BEIGE MARBLE SKIRTING GRD +145.50 m B.O.SKI.. +145.35 mB C 3001020 150100 20MM TRIESTA BEIGE MARBLE STRIPS ITEM CODE 09340.01 20MM ANTIQUE TRIESTA BEIGE MARBLE SKIRTING 40MM ANTIQUE TRIESTA GREY MARBLE TREAD FOR THE EXTERNAL STEP OF THE MAN ENTRANCE ITEM:096340.04 04 04 B B C C 15 1820
20MM TH. TRIESTA BEIGE POLISHED MARBLE THRESHOLD ITEM CODE (09340.02) 20MM TRIESTA BEIGE MARBLE STRIPS ITEM CODE 09340.01 40MM ANTIQUE TRIESTA GREY MARBLE TREAD FOR THE EXTERNAL STEP OF THE MAN ENTRANCE ITEM:096340.04 GR.F.F.L.+145.50 www com.ecgsa. www com.ecgsa. www com.ecgsa. Client Project DRAWING TITLE: Extracted from BIM model: REVIEWED BY: SCALE DRAWN BY: DWG.No: Sheet No: Owner: KEY PLAN Revision NO. DATE CHECKED: GENERAL NOTES :Drawing Revision Number Revision Description Revision Date Buiding Number SD Number REFERENCES Description Drawing Architectural Designer: Supervision Consultant: Main Contractor: Structural Designer: MEP Designer: DESIGNED 1. ALL DIMENSION ARE IN MILLIMETERS ,UNLES INDICATED OTHERWISE. 2. ALLSHOWN LEVELS ARE IN METERS UNLES INDCATED OTHERWISE. 3. CHARACTERSTIC CONCRETE CUBE COMPRESSIVE STRENGH AFTER 28 DAYS FOR THE Slab on Grade ARE EQUAL 25N/MM^2 4. THE MAXIMUM AGGREGATE SIZE DOES NOT EXCEED 20mm. 5. ALL FOOTINGS ARE CONCENTRIC WITH COLUMNS UNO. 6. THE FOUNDATION FNL IS THE BOTTOM OF PC FOOTING. 7. FOR LOCATUON AND LEVELS OF OPENING AND SLEEVES IN ALL MEMBERS REFER TO GENERAL ARRANGEMENT DRWINGS IN CONJUNCTION WITH ALL OTHER ENGINEERING DRAWINGS. ISSUED FOR APPROVAL As indicated ENG.SHERY RAOUF ENG.NABIL 19/10/2021 01 SHOPDRAWING FOR ELEVATION EXTERNAL skirting DETAILS-GROUND FLOOR NEWGIZA -NH05 AR28 ECG ENG.MOSTAFA MAGDY SD‐05‐RB10‐(01)‐AR28‐01 SD#155 NHO5-RB-10-(01)-AR-R00 SCALE 1 50 AR28 skirting for north elevation 2 SCALE 45 AR28 skirting for east elevation 3 SCALE 1 25 AR28 SEC 01 for skirting 4 SCALE 1 20 AR28 SEC 02 for skirting 5 SCALE 1 20 AR28 SEC 03 for skirting 6 SCALE AR28 3D - skirting 7 SCALE AR28 3D - skirting 2 8 UNIT RB-10-01 ZERO LEVEL 145.65 -0.15 145.35 +0.15 145.50 SCALE 1 50 AR28 skirting for south elevation 9 SCALE 1 43 AR28 skirting for west elevation 10 SCALE 50 AR28 skirting for front elevation detail 1 11 SCALE 1 50 AR28 skirting for front elevation detail 2 12 SCALE 1 20 AR28 Sec 04 for skirting 13 SCALE AR28 3D skirting 3 14 SCALE 1 14 AR28 Sec 15 SCALE 1 15 AR28 MARBLE DETAILS - ENTRANCE 16 LAKESIDE (RB - 10-01 SD#253 725 725 705 705 705 705
3001020300300300300120
6x600+720 Same as the other side

Section: ----------------------------------------------- Date: 9/4/2022

To:

DEGLA PROJECT MANAGEMENT

New Giza Project (NH.05 – NEWGIZA)

Submittal for Approval

From: Contractor: --------- DELTA VISION

Transmittal No:QS#165

Quantity Survey Samples Certificate Coloured

Brochure

Method Statement Calculation Sheet Others Others

1 QUANTITY SURVEY FOR LIGHT HDF FLOORING (FIRST& THIRD) 096400.01

Consultant Remarks:

Degla CFM Remarks: The Following Action Code Are Given to Item

Submitted:

A Approved as Submitted

B Approved as Noted

C Revise & Resubmission Required.

QS-05-RB10-1_2_3_4_5_6_7_8 _9_10_11_12_13_14-AR044-00

Approval of Item Does not Relieve the Contractor from complying with requirements of Contract documents Specifications and applicable Codes.

Contractors Name:

Contractors Signature:

Degla CFM: Author: ................................................ Degla CFM Project Manager: .................................................

It's not intended by the aforementioned response to constitute Engineer's Instruction for variation. In case the Contractor believes that this reply includes variation affecting the Time for Completion or the Contract Price, the Contractor shall immediately notify the Engineer with the time & cost implications, if any

.
ITEM Description No. of Copies Contract Reference Documents Action Code NOTES Specs. No. DWG No.
DELTA VSION
FOR CONSTRUCTION
New Submittal Resubmittal
Contract No.: --------- NG/NHO5/DEVICO Previous Transmittal No:
Items to be submitted:
RB-10 (1-2-3-4-5-6-7-8-9-10-11-1213-14)
Specification Sec No: --------------------------------------------------

QS FOR HDF FLOORING ITEM CODEECG_TypeAreaCount

2.First Floor

BEDROOMS

096400.014282 ( Reykjavik oak – 2 strip  ) Krono Flooring19.00 m²1

096400.014282 ( Reykjavik oak – 2 strip  ) Krono Flooring15.09 m²1

096400.014282 ( Reykjavik oak – 2 strip  ) Krono Flooring19.00 m²1

096400.014282 ( Reykjavik oak – 2 strip  ) Krono Flooring15.09 m²1

MASTER BEDROOMS

096400.017209 ( Liberty Oak – Planket )Krono Flooring22.76 m²1

096400.017209 ( Liberty Oak – Planket )Krono Flooring22.76 m²1

4.Third Floor

BEDROOMS

096400.014282 ( Reykjavik oak – 2 strip  ) Krono Flooring18.97 m²1

096400.014282 ( Reykjavik oak – 2 strip  ) Krono Flooring15.09 m²1

096400.014282 ( Reykjavik oak – 2 strip  ) Krono Flooring18.97 m²1

096400.014282 ( Reykjavik oak – 2 strip  ) Krono Flooring15.09 m²1

MASTER BEDROOMS

096400.017209 ( Liberty Oak – Planket )Krono Flooring24.58 m²1

096400.017209 ( Liberty Oak – Planket )Krono Flooring24.58 m²1

230.95 m²

01 01 02 02 03 03 04 04 05 05 06 06 07 07 08 08 09 09 A A B B C C D D E E F F G G H H J K K BEDROOM 1ST MASTER BATHROOM 08/A DRESSING MASTER BEDROOM 1ST TERRACE 05/A LIVING 1ST BATHROOM 15/A BATHROOM 14/A DRESSING TERRACE 1ST STAIRS LOBBY TERRACE 1ST DRESSING ROOM 13/B BATHROOM 14/B BATHROOM LOBBY KITCHENETTE ROOM 1ST TERRACE 05/B MASTER BEDROOM 06/B DRESSING 1ST MASTER BATHROOM 08/B BEDROOM STAIR 01/A STAIR 01/B 1ST MAIN 01 01 02 02 03 03 04 04 05 05 06 06 07 07 08 08 09 09 A A B B C C D D E E F F G G H H J J K K AR135 7 AR139 5BEDROOM 11/A 3RD TERRACE 09/A BEDROOM 08/A MASTER BATHROOM DRESSING 06/A BEDROOM 3RD STAIR LOBBY 02/A LAUNDRY 3RD BATHROOM 13/A 3RD DRESSING 12/A MAIN STAIR LOBBY ROOM TERRACE DRESSING BATHROOM 3RD BATHROOM 14/B LAUNDRY 15/B 3RD STAIR LOBBY 02/B 3RD KITCHENETTE 03/B 3RD MASTER BEDROOM 05/B 3RD DRESSING 06/B MASTER BATHROOM BEDROOM TERRACE STAIR 01/A STAIR 01/B MAIN STAIR AR129 AR129 AR131 www com.ecgsa. www com.ecgsa. www com.ecgsa. Client Project DRAWING TITLE: Extracted from BIM model: REVIEWED BY: SCALE DRAWN BY: DWG.No: Sheet No: Owner: KEY PLAN Revision NO. DATE CHECKED: GENERAL NOTES :Symbols :Drawing Revision Number Revision Description Revision Date Buiding Number SD Number REFERENCES Discription Drawing Architectural Designer: Supervision Consultant: Main Contractor: Structural Designer: MEP Designer: DESIGNED 1. ALL DIMENSION ARE IN MILLIMETERS ,UNLES INDICATED OTHERWISE. 2. ALLSHOWN LEVELS ARE IN METERS UNLES INDCATED OTHERWISE. 3. CHARACTERSTIC CONCRETE CUBE COMPRESSIVE STRENGH AFTER 28 DAYS FOR THE REINFORCEMENT CONCRETE AND TIE BEAMS EQUAL 30N/MM^2 4. THE MAXIMUM AGGREGATE SIZE DOES NOT EXCEED 20mm. 5. ALL FOOTINGS ARE CONCENTRIC WITH COLUMNS UNO. 6. THE FOUNDATION FNL IS THE BOTTOM OF PC FOOTING. 7.ALL FOUNDATIONS ARE DESIGNED ON A MINIMUM SAFE BEARING C APACITY Of 150 KN/M^2 AT THE FOUNDATION LEVEL 8. FOR LOCATUON AND LEVELSOF OPENING AND SLEEVES IN ALL MEMBERS REFER TO GENERAL ARRANGEMENT DRWINGS IN CONJUNCTION WITH ALL OTHER ENGINEERING DRAWINGS. -T.O.C = TOP OF CONCRETE -T.O.B = TOP OF BEAM -S.B = SIDE BARS -C.J. = CONSTRUCTION JOINT -E.F. = EACH FACE -A.C. = APPROVED COUPLER -FNL = As indicated ENG :SHERY RAOUF Checker 9/4/2022 QUANTITY SURVEY FOR LIGHT HDF FLOORING (FIRST& THIRD) NEWGIZA -NH05 LAKESIDE (RB-10-01&02&03& 04&05&06&07&08& 09&10&11&12&13&14) QS044 ECG QS#165 SCALE QS044 QS HDF FLOORING 1
SCALE 1 50 QS044 FIRST FLOOR HDF KEY PLAN 2 SCALE 1 50 QS044 THIRD FLOOR HDF KEY PLAN 3 SCALE QS044 QS HDF FLOORING 4 NH 05-RB-10 -01-AR -R 00 (LIGHT THEME) QS‐ 05‐ RB 10‐ 4 10 11 12 13 14‐QS044‐00 00
A _ WALLVSP _ PIPEToleranceClashesNewAcveReviewedApprovedResolvedTypeStatus 0.025m 1 0 1 0 0 0 Hard OK Item1 Item2 Image Clash Group Clash Name StatusDistanceGrid LocaonDescriponDateFound Clash Point ItemID LayerItemName Item Type ItemID Layer ItemName Item Type Com New Group Acve-0.177 Hard 2020/10/6 08:32 x:-10.040, y:8.820, z:-0.640 Element ID: 2663061 GRD SKIRTING MARBLE ANTIQUE_NGDS Solid Element ID: 1846272 GRD uPVC Line #12020 11:5 will solv SITE New Group Clash1 Acve -0.177 Hard 2020/10/6 08:32 x:-10.040, y:8.820, z:-0.640 Element ID: 2663061 GRD SKIRTING MARBLE ANTIQUE_NGDS Solid Element ID: 1846272 GRD uPVC Line New Group Clash2 Acve -0.153 Hard 2020/10/6 08:32 x:-10.340, y:6.805, z:-0.636 Element ID: 5175109 GRD SKIRTING MARBLE ANTIQUE_NGDS Solid Element ID: 2493961 GRD uPVC Line New Group Clash3 Acve -0.146 Hard 2020/10/6 08:32 x:-10.000, y:9.477, z:-0.701 Element ID: 2663061 GRD 20mmCement plaster Solid Element ID: 3208062 GRD uPVC Line New Group Clash4 Acve -0.145 E-06: 3RD Hard 2020/10/6 08:32 x:1.420, y:9.885, z:9.532 Element ID: 2688847 3RD Brick,Common Solid Element ID: 2402797 2ND uPVC Line New Group Clash5 Acve -0.145 Hard 2020/10/6 08:32 x:-10.040, y:9.514, z:-0.687 Element ID: 2663061 GRD SKIRTING MARBLE ANTIQUE_NGDS Solid Element ID: 3208062 GRD uPVC Line New Group Clash6 Acve -0.140 Hard 2020/10/6 08:32 x:-10.040, y:8.982, z:-0.575 Element ID: 2663061 GRD SKIRTING MARBLE ANTIQUE_NGDS Solid Element ID: 1846265 GRD uPVC Line New Group Clash7 Acve -0.137 F-02: 1ST Hard 2020/10/6 08:32 x:-8.598, y:11.191, z:5.650 Element ID: 2656004 1ST Brick,Common Solid Element ID: 3271466 3RD uPVC Line New Group Clash8 Acve -0.135 D-01: 3RD Hard 2020/10/6 08:32 x:-9.540, y:6.582, z:11.650 Element ID: 9703739 3RD Brick,Common Solid Element ID: 1848671 2ND uPVC Line New Group Clash9 Acve -0.135 Hard 2020/10/6 08:32 x:-10.300, y:6.291, z:-0.614 Element ID: 5175109 GRD 20mmCement plaster Solid Element ID: 1846407 GRD uPVC Line New Group Clash10 Acve -0.130 Hard 2020/10/6 08:32 x:-10.040, y:8.566, z:-0.652 Element ID: 2663061 GRD SKIRTING MARBLE ANTIQUE_NGDS Solid Element ID: 3208199 GRD uPVC Line New Group Clash11 Acve -0.129 E-04: 1ST Hard 2020/10/6 08:32 x:-1.935, y:10.390, z:3.149 Element ID: 9285088 1ST Brick,Common Solid Element ID: 2248898 1ST uPVC Line
ClashReport
New Group Clash12 Acve -0.127 D-09: 3RD Hard 2020/10/6 08:32 x:9.566, y:6.620, z:11.650 Element ID: 2688831 3RD Brick,Common Solid Element ID: 2290252 2ND uPVC Line New Group Clash13 Acve -0.126 E-06: 1ST Hard 2020/10/6 08:32 x:1.949, y:10.390, z:3.136 Element ID: 9287392 1ST Brick,Common Solid Element ID: 3321156 1ST uPVC Line New Group Clash14 Acve -0.124 F-02: PAV Hard 2020/10/6 08:32 x:-8.667, y:11.189, z:-0.100 Element ID: 2658060 GRD Brick,Common Solid Element ID: 3272132 3RD uPVC Line New Group Clash15 Acve -0.120 Hard 2020/10/6 08:32 x:-10.340, y:6.290, z:-0.614 Element ID: 5175109 GRD SKIRTING MARBLE ANTIQUE_NGDS Solid Element ID: 1846407 GRD uPVC Line New Group Clash16 Acve -0.113 Hard 2020/10/6 08:32 x:-10.300, y:6.789, z:-0.689 Element ID: 5175109 GRD 20mmCement plaster Solid Element ID: 2493961 GRD uPVC Line New Group Clash17 Acve -0.113 E-06: BOSS Hard 2020/10/6 08:32 x:2.306, y:10.010, z:8.952 Element ID: 9669552 3RD Brick,Common Solid Element ID: 2376809 3RD uPVC Line New Group Clash18 Acve -0.113 E-04: TO.SKI Hard 2020/10/6 08:32 x:-2.361, y:10.010, z:2.941 Element ID: 9678758 1ST Brick,Common Solid Element ID: 2247084 1ST uPVC Line New Group Clash19 Acve -0.113 E-04: BOSS Hard 2020/10/6 08:32 x:-2.351, y:10.010, z:8.951 Element ID: 9669226 3RD Brick,Common Solid Element ID: 2374230 3RD uPVC Line New Group Clash20 Acve -0.113 E-05: B.O.SS Hard 2020/10/6 08:32 x:0.334, y:10.390, z:5.959 Element ID: 2688753 2ND Brick,Common Solid Element ID: 3360244 2ND uPVC Line New Group Clash21 Acve -0.112 E-05: B.O.SS Hard 2020/10/6 08:32 x:-0.336, y:10.390, z:5.959 Element ID: 2656034 2ND Brick,Common Solid Element ID: 3360169 2ND uPVC Line New Group Clash22 Acve -0.112 E-04: 3RD Hard 2020/10/6 08:32 x:-1.540, y:9.050, z:9.232 Element ID: 2660281 3RD Brick,Common Solid Element ID: 2647853 3RD uPVC Line New Group Clash23 Acve -0.111 Hard 2020/10/6 08:32 x:-10.300, y:6.911, z:-0.547 Element ID: 5175109 GRD 20mmCement plaster Solid Element ID: 2480816 GRD PP-R Line New Group Clash24 Acve -0.111 Hard 2020/10/6 08:32 x:-10.000, y:8.962, z:-0.628 Element ID: 2663061 GRD 20mmCement plaster Solid Element ID: 1846265 GRD uPVC Line New Group Clash25 Acve -0.110 F-08: B.O.SS Hard 2020/10/6 08:32 x:8.990, y:11.246, z:5.830 Element ID: 2690782 2ND Brick,Common Solid Element ID: 2401195 1ST uPVC Line
New Group Clash348Acve -0.026 E-05: 3RD Hard 2020/10/6 08:32 x:0.569, y:10.090, z:9.734 Element ID: 2688897 3RD Brick,Common Solid Element ID: 1670313 3RD Standard Solid New Group Clash349Acve -0.026 D-04: R00 Hard 2020/10/6 08:32 x:-1.690, y:8.495, z:12.142 Element ID: 2660224 R00 DRYMIXPAINT DARK_NGDS Solid Element ID: 1642207 ROOF CastIron Solid New Group Clash350Acve -0.026 D-06: R00 Hard 2020/10/6 08:32 x:1.690, y:8.516, z:12.144 Element ID: 5187526 R00 DRYMIXPAINT DARK_NGDS Solid Element ID: 1643144 ROOF CastIron Solid New Group Clash351Acve -0.025 E-06: 3RD Hard 2020/10/6 08:32 x:1.400, y:9.955, z:9.183 Element ID: 2690903 GRD Mortar_NGDS Solid Element ID: 2376309 3RD Standard Solid New Group Clash352Acve -0.025 E-04: 3RD Hard 2020/10/6 08:32 x:-2.488, y:9.090, z:9.343 Element ID: 2656127 3RD Brick,Common Solid Element ID: 2647878 2ND Standard Solid New Group Clash353Acve -0.025 E-04: 3RD Hard 2020/10/6 08:32 x:-2.488, y:9.090, z:9.343 Element ID: 4618164 3RD Brick,Common Solid Element ID: 2647878 2ND Standard Solid New Group Clash354Acve -0.025 B-02: TO.SKI Hard 2020/10/6 08:32 x:-8.428, y:4.470, z:0.631 Element ID: 2655948 GRD Brick,Common Solid Element ID: 3278695 GRD uPVC Line New Group Clash355Acve -0.025 B-02: 2ND Hard 2020/10/6 08:32 x:-8.428, y:4.470, z:6.631 Element ID: 2656032 2ND Brick,Common Solid Element ID: 3324130 2ND uPVC Line A WALLVSHVAC PIPESToleranceClashesNewAcveReviewedApprovedResolvedTypeStatus 0.025m 1 0 1 0 0 0 Hard OK Item1 Item2 Image Clash Group Clash Name StatusDistanceGrid LocaonDescriponDateFound Clash Point ItemID LayerItemName Item Type ItemID Layer ItemName Item Type Comment New Group Acve-0.130 C-03: R00 Hard 2020/10/6 08:32 x:-6.850, y:6.110, z:12.215 Element ID: 2656164 R00 Brick, Common Solid Element ID: 1918556 ROOFTransparent Grille Line #2-Pc2020/10/ 11:54 willbe solvedin site New Group Clash1 Acve -0.130 C-03: R00 Hard 2020/10/6 08:32 x:-6.850, y:6.110, z:12.215 Element ID: 2656164 R00 Brick, Common Solid Element ID: 1918556 ROOFTransparent Grille Line New Group Clash2 Acve -0.128 C-07: R00 Hard 2020/10/6 08:32 x:6.600, y:6.201, z:12.232 Element ID: 4772473 R00 Brick, Common Solid Element ID: 2134352 ROOFTransparent Grille Line New Group Clash3 Acve -0.127 E-03: 2ND Hard 2020/10/6 08:32 x:-4.660, y:8.943, z:8.498 Element ID: 2656037 2ND Brick, Common Solid Element ID: 2311257 2ND Transparent Grille Line
New Group Clash4 Acve -0.120 E-06: 1ST Hard 2020/10/6 08:32 x:4.066, y:9.090, z:5.509 Element ID: 2688720 1ST Brick, Common Solid Element ID: 2232409 1ST Transparent Grille Line New Group Clash5 Acve -0.118 G-03: 1ST Hard 2020/10/6 08:32 x:-5.580, y:14.601, z:5.540 Element ID: 2656170 1ST Brick, Common Solid Element ID: 1857256 1ST Transparent Grille Line New Group Clash6 Acve -0.118 E-03: TO.SKI Hard 2020/10/6 08:32 x:-4.660, y:9.351, z:2.524 Element ID: 2655953 GRD Brick, Common Solid Element ID: 1877335 GRD Transparent Grille Line New Group Clash7 Acve -0.117 E-04: 1ST Hard 2020/10/6 08:32 x:-1.400, y:8.977, z:5.533 Element ID: 2658184 GRD Mortar_NGDSSolid Element ID: 2231112 1ST Transparent Grille Line New Group Clash8 Acve -0.115 D-06: 1ST Hard 2020/10/6 08:32 x:1.420, y:8.759, z:5.535 Element ID: 2692984 1ST Brick, Common Solid Element ID: 2309354 1ST Transparent Grille Line New Group Clash11 Acve -0.111 G-07: 1ST Hard 2020/10/6 08:32 x:5.580, y:14.573, z:5.507 Element ID: 2688889 1ST Brick, Common Solid Element ID: 2232401 1ST Transparent Grille Line New Group Clash12 Acve -0.108 D-04: 1ST Hard 2020/10/6 08:32 x:-1.420, y:8.633, z:5.535 Element ID: 2660265 1ST Brick, Common Solid Element ID: 2231194 1ST Transparent Grille Line New Group Clash13 Acve -0.107 D-04: 2ND Hard 2020/10/6 08:32 x:-1.420, y:8.703, z:8.602 Element ID: 2658184 GRD DRYMIX PAINT LIGHT_NGDS Solid Element ID: 2311237 2ND Transparent Grille Line New Group Clash14 Acve -0.107 E-04: 3RD Hard 2020/10/6 08:32 x:-1.540, y:9.695, z:11.512 Element ID: 2656128 3RD Brick, Common Solid Element ID: 2332377 3RD Transparent Grille Line New Group Clash15 Acve -0.106 E-06: 2ND Hard 2020/10/6 08:32 x:1.420, y:9.000, z:8.601 Element ID: 2690903 GRD DRYMIX PAINT LIGHT_NGDS Solid Element ID: 2311297 2ND Transparent Grille Line New Group Clash16 Acve -0.102 D-06: 1ST Hard 2020/10/6 08:32 x:1.400, y:8.739, z:5.508 Element ID: 2690903 GRD Mortar_NGDSSolid Element ID: 2309354 1ST Transparent Grille Line New Group Clash17 Acve -0.101 E-04: 2ND Hard 2020/10/6 08:32 x:-1.420, y:8.928, z:8.584 Element ID: 2658184 GRD DRYMIX PAINT LIGHT_NGDS Solid Element ID: 2311243 2ND Transparent Grille Line New Group Clash18 Acve -0.101 C-07: R00 Hard 2020/10/6 08:32 x:6.600, y:6.197, z:12.246 Element ID: 2692489 R00 Mortar_NGDSSolid Element ID: 2134352 ROOFTransparent Grille Line New Group Clash19 Acve -0.101 C-07: R00 Hard 2020/10/6 08:32 x:6.580, y:6.196, z:12.246 Element ID: 2692489 R00 DRYMIX PAINT DARK_NGDS Solid Element ID: 2134352 ROOFTransparent Grille Line
New Group Clash144Acve -0.030 D-09: 2ND Hard 2020/10/6 08:32 x:9.437, y:6.633, z:8.650 Element ID: 2693045 2ND Brick, Common Solid Element ID: 1920550 2ND Transparent Grille Line New Group Clash145Acve -0.028 D-09: B.O.SS Hard 2020/10/6 08:32 x:9.378, y:6.615, z:5.830 Element ID: 2690783 2ND Brick, Common Solid Element ID: 1919514 GRD Transparent Grille Line New Group Clash146Acve -0.026 C-09: 2ND Hard 2020/10/6 08:32 x:9.419, y:6.440, z:8.470 Element ID: 2693045 2ND Brick, Common Solid Element ID: 2311320 2ND Transparent Grille Line New Group Clash147Acve -0.026 C-09: T.O.SKI Hard 2020/10/6 08:32 x:9.352, y:6.440, z:2.470 Element ID: 4053740 GRD Brick, Common Solid Element ID: 2213301 GRD Transparent Grille Line New Group Clash148Acve -0.026 C-01: 2ND Hard 2020/10/6 08:32 x:-9.419, y:6.440, z:8.470 Element ID: 2660326 2ND Brick, Common Solid Element ID: 2311268 2ND Transparent Grille Line New Group Clash149Acve -0.026 C-01: TO.SKI Hard 2020/10/6 08:32 x:-9.352, y:6.440, z:2.470 Element ID: 2660324 GRD Brick, Common Solid Element ID: 1916017 GRD Transparent Grille Line A WALLVSHVAC DUCTToleranceClashesNewAcveReviewedApprovedResolvedTypeStatus 0.025m 27 0 0 0 0 27 Hard OK Item1 Item2 Image Clash Group Clash Name Status DistanceGrid LocaonDescriponDateFound Clash Point ItemID LayerItemName Item Type ItemID LayerItemName Item Type Comments Clash1 Resolved-0.253 F-07: 3RD Hard 2020/10/6 08:32 x:7.571, y:12.810, z:11.490 Element ID: 2688825 3RD Brick, Common Solid Element ID: 2322491 3RD Rectangular Duct Solid Clash2 Resolved-0.253 G-07: 1ST Hard 2020/10/6 08:32 x:7.571, y:13.010, z:5.537 Element ID: 2688924 1ST Brick, Common Solid Element ID: 2231752 1ST Rectangular Duct Solid Clash3 Resolved-0.250 F-02: 3RD Hard 2020/10/6 08:32 x:-7.731, y:12.930, z:11.532 Element ID: 2656106 3RD Brick, Common Solid Element ID: 2322455 3RD Rectangular Duct Solid Clash4 Resolved-0.250 G-02: 1ST Hard 2020/10/6 08:32 x:-7.731, y:13.010, z:5.544 Element ID: 2656205 1ST Brick, Common Solid Element ID: 1856973 1ST Rectangular Duct Solid Clash5 Resolved-0.233 E-07: 1ST Hard 2020/10/6 08:32 x:5.183, y:8.960, z:5.555 Element ID: 2688725 1ST Brick, Common Solid Element ID: 2232074 1ST Rectangular Duct Solid Clash6 Resolved-0.218 E-03: 3RD Hard 2020/10/6 08:32 x:-4.785, y:8.960, z:11.555 Element ID: 2656132 3RD Brick, Common Solid Element ID: 2322482 3RD Rectangular Duct Solid
Clash7 Resolved-0.215 D-07: 3RD Hard 2020/10/6 08:32 x:5.183, y:8.840, z:11.542 Element ID: 2688851 3RD Brick, Common SolidElement ID: 2322511 3RD Rectangular Duct Solid Clash8 Resolved-0.192 H-06: 1ST Hard 2020/10/6 08:32 x:3.869, y:16.780, z:5.581 Element ID: 9299309 1ST Brick, Common Solid Element ID: 2231528 1ST Rectangular Duct Solid Clash10Resolved-0.189 E-03: 1ST Hard 2020/10/6 08:32 x:-5.298, y:8.960, z:5.397 Element ID: 2656006 1ST Brick, Common Solid Element ID: 2225616 1ST Rectangular Duct Solid Clash12Resolved-0.179 H-07: 1ST Hard 2020/10/6 08:32 x:5.227, y:16.780, z:5.397 Element ID: 9299309 1ST Brick, Common Solid Element ID: 2231521 1ST Rectangular Duct Solid Clash13Resolved-0.156 G-03: 1ST Hard 2020/10/6 08:32 x:-6.858, y:13.130, z:5.575 Element ID: 2656205 1ST Brick, Common Solid Element ID: 1858036 1ST Rectangular Duct Solid Clash14Resolved-0.155 D-06: 1ST Hard 2020/10/6 08:32 x:4.260, y:8.289, z:5.487 Element ID: 2688714 1ST Brick, Common Solid Element ID: 2232019 1ST Rectangular Duct Solid Clash15Resolved-0.154 D-06: 3RD Hard 2020/10/6 08:32 x:4.260, y:8.289, z:11.487 Element ID: 2688840 3RD Brick, Common Solid Element ID: 2322505 3RD Rectangular Duct Solid Clash11Resolved-0.136 H-03: 1ST Hard 2020/10/6 08:32 x:-5.417, y:16.900, z:5.397 Element ID: 2656084 1ST Brick, Common Solid Element ID: 1856848 1ST Rectangular Duct Solid Clash16Resolved-0.128 D-04: 1ST Hard 2020/10/6 08:32 x:-4.260, y:8.259, z:5.458 Element ID: 2655995 1ST Brick, Common Solid Element ID: 1857004 1ST Rectangular Duct Solid Clash17Resolved-0.127 D-04: 3RD Hard 2020/10/6 08:32 x:-4.260, y:8.659, z:11.395 Element ID: 2656121 3RD Brick, Common Solid Element ID: 2322461 3RD Rectangular Duct Solid Clash18Resolved-0.104 F-07: 3RD Hard 2020/10/6 08:32 x:7.155, y:12.930, z:11.499 Element ID: 2688825 3RD Brick, Common Solid Element ID: 2322650 3RD Standard 70Degree Solid Clash19Resolved-0.096 G-07: 1ST Hard 2020/10/6 08:32 x:7.083, y:13.130, z:5.432 Element ID: 2688924 1ST Brick, Common Solid Element ID: 2231762 1ST Rectangular Duct Solid Clash20Resolved-0.096 D-07: 3RD Hard 2020/10/6 08:32 x:5.580, y:8.406, z:11.425 Element ID: 2688894 3RD Brick, Common Solid Element ID: 2322512 3RD Rectangular Duct Solid Clash27Resolved-0.089 F-06: TO.SKI Hard 2020/10/6 11:23 x:3.444, y:10.710, z:2.453 Element ID: 4043932 GRD Brick, Common Solid Element ID: 2249463 GRD Standard 45Degree Solid Clash9 Resolved-0.084 H-04: 1ST Hard 2020/10/6 08:32 x:-3.682, y:16.780, z:5.381 Element ID: 2656084 1ST Brick, Common SolidElement ID: 1856881 1ST Rectangular Duct Solid
Clash23Resolved-0.075 D-03: 3RD Hard 2020/10/6 08:32 x:-5.580, y:8.122, z:11.425 Element ID: 2656175 3RD Brick, Common Solid Element ID: 2322483 3RD Rectangular Duct Solid Clash25Resolved-0.061 F-04: 2ND Hard 2020/10/6 08:32 x:-2.850, y:11.010, z:8.573 Element ID: 2656166 2ND Brick, Common Solid Element ID: 2311944 2ND Standard 45Degree Solid Clash26Resolved-0.050 F-03: 3RD Hard 2020/10/6 08:32 x:-6.551, y:12.810, z:11.425 Element ID: 2656106 3RD Brick, Common Solid Element ID: 2322475 3RD Standard 70Degree Solid Clash24Resolved-0.045 F-04: T.O.SKI Hard 2020/10/6 08:32 x:-2.850, y:10.990, z:2.415 Element ID: 2656165 GRD Brick, Common Solid Element ID: 2245371 GRD Standard 45Degree Solid Clash21Resolved-0.039 F-06: TO.SKI Hard 2020/10/6 08:32 x:3.444, y:10.710, z:2.405 Element ID: 2249463 GRD Standard 45 Degree Solid Clash22Resolved-0.039 F-06: 2ND Hard 2020/10/6 08:32 x:3.483, y:10.710, z:8.366 Element ID: 2688885 2ND Brick, Common Solid Element ID: 2311954 2ND Standard 45Degree Solid A DOORSVSA DOORSToleranceClashesNewAcveReviewedApprovedResolvedTypeStatus 0.025m 1 0 1 0 0 0 Hard OK Item1 Item2 Image Clash Group Clash Name StatusDistanceGrid LocaonDescriponDateFound ClashPoint ItemID LayerItemName Item Type ItemID LayerItemName Item Type Comments New Group Acve-0.025 C-04: 2ND Hard 2020/10/6 08:32 x:-3.155, y:5.122, z:8.155 Element ID: 2656058 2ND wood(4) Solid Element ID: 2656058 2ND wood Solid #3-Pc2020/10/6 11:54 willbe solvedin site New Group Clash1 Acve -0.025 C-04: 2ND Hard 2020/10/6 08:32 x:-3.155, y:5.122, z:8.155 Element ID: 2656058 2ND wood(4) Solid Element ID: 2656058 2ND wood Solid New Group Clash2 Acve -0.025 C-04: 2ND Hard 2020/10/6 08:32 x:-3.356, y:5.122, z:8.155 Element ID: 2656058 2ND wood(4) Solid Element ID: 2656058 2ND wood(10)Solid New Group Clash3 Acve -0.025 G-04: 3RD Hard 2020/10/6 08:32 x:-3.516, y:14.658, z:11.155 Element ID: 2656108 3RD wood(4) Solid Element ID: 2656108 3RD wood Solid New Group Clash4 Acve -0.025 G-04: 3RD Hard 2020/10/6 08:32 x:-3.894, y:14.658, z:11.155 Element ID: 2656108 3RD wood(10)Solid Element ID: 2656108 3RD wood(4) Solid New Group Clash5 Acve -0.025 G-06: 3RD Hard 2020/10/6 08:32 x:4.095, y:14.658, z:11.155 Element ID: 4542100 3RD wood(10)Solid Element ID: 4542100 3RD wood(4) Solid
New Group Clash6 Acve -0.025 G-06: 3RD Hard 2020/10/6 08:32 x:3.145, y:14.658, z:11.155 Element ID: 4542100 3RD wood Solid Element ID: 4542100 3RD wood(4) Solid New Group Clash7 Acve -0.025 C-06: 2ND Hard 2020/10/6 08:32 x:3.526, y:5.122, z:8.155 Element ID: 4389950 2ND wood(4) Solid Element ID: 4389950 2ND wood Solid New Group Clash8 Acve -0.025 C-06: 2ND Hard 2020/10/6 08:32 x:3.904, y:5.122, z:8.155 Element ID: 4389950 2ND wood(4) Solid Element ID: 4389950 2ND wood(10)Solid A _ WALLSVSA _ WALLSToleranceClashesNewAcveReviewedApprovedResolvedTypeStatus 0.025m 1 0 0 0 0 1 Hard OK Item1 Item2 Image Clash Group Clash Name Status DistanceGrid LocaonDescriponDateFound ClashPointItemID LayerItemName Item Type ItemID LayerItemName Item Type Comments Clash1 Resolved-0.056 F-06: GRD Hard 2020/10/6 11:23 x:4.600, y:10.710, z:0.000 Element ID: 4043932 GRD Brick, CommonSolid Element ID: 4046767 GRD Brick, CommonSolid A _ CEILINGVSA _ CEILINGToleranceClashesNewAcveReviewedApprovedResolvedTypeStatus 0.025m 0 0 0 0 0 0 Hard OK Item1 Item2 ImageClashGroup Clash Name StatusDistanceGrid Locaon DescriponDateFound Clash Point Item ID LayerItemName Item Type Item ID LayerItemName Item Type Comments A CEILINGVSA COLUMNSToleranceClashesNewAcveReviewedApprovedResolvedTypeStatus 0.025m 0 0 0 0 0 0 Hard OK Item1 Item2 ImageClashGroup Clash Name StatusDistanceGrid Locaon DescriponDateFound Clash Point Item ID LayerItemName Item Type Item ID LayerItemName Item Type Comments A CEILINGVSA CURTAINWALLToleranceClashesNewAcveReviewedApprovedResolvedTypeStatus 0.025m 0 0 0 0 0 0 Hard OK Item1 Item2 ImageClashGroup Clash Name StatusDistanceGrid Locaon DescriponDateFound Clash Point Item ID LayerItemName Item Type Item ID LayerItemName Item Type Comments A _ CEILINGVSA _DOORS(A)ToleranceClashesNewAcveReviewedApprovedResolvedTypeStatus 0.010m 0 0 0 0 0 0 Hard OK Item1 Item2 ImageClashGroup Clash Name StatusDistanceGrid Locaon DescriponDateFound Clash Point Item ID LayerItemName Item Type Item ID LayerItemName Item Type Comments A CEILINGVSA FLOORSToleranceClashesNewAcveReviewedApprovedResolvedTypeStatus 0.025m 0 0 0 0 0 0 Hard OK Item1 Item2
ImageClash Group Clash Name StatusDistanceGrid Locaon DescriponDate Found Clash Point Item ID LayerItem Name Item Type Item ID LayerItem Name Item Type Comments A _ WALLSVSA _ WINDOWSToleranceClashesNewAcveReviewedApprovedResolvedTypeStatus 0.025m 0 0 0 0 0 0 Hard OK Item1 Item2 ImageClashGroup Clash Name StatusDistanceGrid Locaon DescriponDateFound Clash Point Item ID LayerItemName Item Type Item ID LayerItemName Item Type Comments A WALLSVSA STAIRSToleranceClashesNewAcveReviewedApprovedResolvedTypeStatus 0.025m 0 0 0 0 0 0 Hard OK Item1 Item2 ImageClashGroup Clash Name StatusDistanceGrid Locaon DescriponDateFound Clash Point Item ID LayerItemName Item Type Item ID LayerItemName Item Type Comments A WALLSVSA ROOFToleranceClashesNewAcveReviewedApprovedResolvedTypeStatus 0.025m 0 0 0 0 0 0 Hard OK Item1 Item2 ImageClashGroup Clash Name StatusDistanceGrid Locaon DescriponDateFound Clash Point Item ID LayerItemName Item Type Item ID LayerItemName Item Type Comments A WINDOWSVSA WINDOWSToleranceClashesNewAcveReviewedApprovedResolvedTypeStatus 0.025m 0 0 0 0 0 0 Hard OK Item1 Item2 ImageClashGroup Clash Name StatusDistanceGrid Locaon DescriponDateFound Clash Point Item ID LayerItemName Item Type Item ID LayerItemName Item Type Comments A WINDOWSVSA STAIRSToleranceClashesNewAcveReviewedApprovedResolvedTypeStatus 0.025m 0 0 0 0 0 0 Hard OK Item1 Item2 ImageClashGroup Clash Name StatusDistanceGrid Locaon DescriponDateFound Clash Point Item ID LayerItemName Item Type Item ID LayerItemName Item Type Comments A WINDOWSVSA ROOFSToleranceClashesNewAcveReviewedApprovedResolvedTypeStatus 0.025m 0 0 0 0 0 0 Hard OK Item1 Item2 ImageClashGroup Clash Name StatusDistanceGrid Locaon DescriponDateFound Clash Point Item ID LayerItemName Item Type Item ID LayerItemName Item Type Comments A STAIRSVSA STAIRSToleranceClashesNewAcveReviewedApprovedResolvedTypeStatus 0.025m 0 0 0 0 0 0 Hard OK Item1 Item2 ImageClashGroup Clash Name StatusDistanceGrid Locaon DescriponDateFound Clash Point Item ID LayerItemName Item Type Item ID LayerItemName Item Type Comments A _ STAIRSVSA _ ROOFSToleranceClashesNewAcveReviewedApprovedResolvedTypeStatus 0.025m 0 0 0 0 0 0 Hard OK Item1 Item2 ImageClashGroup Clash Name StatusDistanceGrid Locaon DescriponDateFound Clash Point Item ID LayerItemName Item Type Item ID LayerItemName Item Type Comments A ROOFSVSA STAIRSToleranceClashesNewAcveReviewedApprovedResolvedTypeStatus
A RAILINGVSS STRUCTURALFRAMINGToleranceClashesNewAcveReviewedApprovedResolvedTypeStatus 0.025m 0 0 0 0 0 0 Hard OK Item1 Item2 ImageClashGroup Clash Name StatusDistanceGrid Locaon DescriponDateFound Clash Point Item ID LayerItemName Item Type Item ID LayerItemName Item Type Comments A RAILINGVSS SHEARWALLToleranceClashesNewAcveReviewedApprovedResolvedTypeStatus 0.025m 0 0 0 0 0 0 Hard OK Item1 Item2 ImageClashGroup Clash Name StatusDistanceGrid Locaon DescriponDateFound Clash Point Item ID LayerItemName Item Type Item ID LayerItemName Item Type Comments A RAMPSVSS STRUCTURALCOLUMNSToleranceClashesNewAcveReviewedApprovedResolvedTypeStatus 0.025m 0 0 0 0 0 0 Hard OK Item1 Item2 ImageClashGroup Clash Name StatusDistanceGrid Locaon DescriponDateFound Clash Point Item ID LayerItemName Item Type Item ID LayerItemName Item Type Comments A RAMPSVSS SLABSToleranceClashesNewAcveReviewedApprovedResolvedTypeStatus 0.025m 0 0 0 0 0 0 Hard OK Item1 Item2 ImageClashGroup Clash Name StatusDistanceGrid Locaon DescriponDateFound Clash Point Item ID LayerItemName Item Type Item ID LayerItemName Item Type Comments A RAMPSVSS STAIRSToleranceClashesNewAcveReviewedApprovedResolvedTypeStatus 0.025m 0 0 0 0 0 0 Hard OK Item1 Item2 ImageClashGroup Clash Name StatusDistanceGrid Locaon DescriponDateFound Clash Point Item ID LayerItemName Item Type Item ID LayerItemName Item Type Comments A _ RAMPSVSS _ FOUNDATIONToleranceClashesNewAcveReviewedApprovedResolvedTypeStatus 0.025m 0 0 0 0 0 0 Hard OK Item1 Item2 ImageClashGroup Clash Name StatusDistanceGrid Locaon DescriponDateFound Clash Point Item ID LayerItemName Item Type Item ID LayerItemName Item Type Comments A RAMPSVSS STRUCTURALFRAMINGToleranceClashesNewAcveReviewedApprovedResolvedTypeStatus 0.025m 0 0 0 0 0 0 Hard OK Item1 Item2 ImageClashGroup Clash Name StatusDistanceGrid Locaon DescriponDateFound Clash Point Item ID LayerItemName Item Type Item ID LayerItemName Item Type Comments A RAMPSVSS SHEARWALLToleranceClashesNewAcveReviewedApprovedResolvedTypeStatus 0.025m 0 0 0 0 0 0 Hard OK Item1 Item2 ImageClashGroup Clash Name StatusDistanceGrid Locaon DescriponDateFound Clash Point Item ID LayerItemName Item Type Item ID LayerItemName Item Type Comments A _SPECIALTYEQUIPMENTVSS_STRUCTURALCOLUMNSToleranceClashesNewAcveReviewedApprovedResolvedTypeStatus 0.025m 0 0 0 0 0 0 Hard OK Item1 Item2
0.025m 0 0 0 0 0 0 Hard OK Item1 Item2 ImageClashGroup Clash Name StatusDistanceGrid Locaon DescriponDateFound Clash Point Item ID LayerItemName Item Type Item ID LayerItemName Item Type Comments A WALLSVSS STAIRSToleranceClashesNewAcveReviewedApprovedResolvedTypeStatus 0.025m 0 0 0 0 0 0 Hard OK Item1 Item2 ImageClashGroup Clash Name StatusDistanceGrid Locaon DescriponDateFound Clash Point Item ID LayerItemName Item Type Item ID LayerItemName Item Type Comments A WALLSVSS FOUNDATIONToleranceClashesNewAcveReviewedApprovedResolvedTypeStatus 0.025m 0 0 0 0 0 0 Hard OK Item1 Item2 ImageClashGroup Clash Name StatusDistanceGrid Locaon DescriponDateFound Clash Point Item ID LayerItemName Item Type Item ID LayerItemName Item Type Comments A WALLSVSS STRUCTURALFRAMINGToleranceClashesNewAcveReviewedApprovedResolvedTypeStatus 0.025m 0 0 0 0 0 0 Hard OK Item1 Item2 ImageClashGroup Clash Name StatusDistanceGrid Locaon DescriponDateFound Clash Point Item ID LayerItemName Item Type Item ID LayerItemName Item Type Comments A WALLSVSS SHEARWALLToleranceClashesNewAcveReviewedApprovedResolvedTypeStatus 0.025m 0 0 0 0 0 0 Hard OK Item1 Item2 ImageClashGroup Clash Name StatusDistanceGrid Locaon DescriponDateFound Clash Point Item ID LayerItemName Item Type Item ID LayerItemName Item Type Comments A WINDOWSVSS STRUCTURALCOLUMNS(A)ToleranceClashesNewAcveReviewedApprovedResolvedTypeStatus 0.010m 0 0 0 0 0 0 Hard OK Item1 Item2 ImageClashGroup Clash Name StatusDistanceGrid Locaon DescriponDateFound Clash Point Item ID LayerItemName Item Type Item ID LayerItemName Item Type Comments A WINDOWSVSS SLABSToleranceClashesNewAcveReviewedApprovedResolvedTypeStatus 0.025m 0 0 0 0 0 0 Hard OK Item1 Item2 ImageClashGroup Clash Name StatusDistanceGrid Locaon DescriponDateFound Clash Point Item ID LayerItemName Item Type Item ID LayerItemName Item Type Comments A WINDOWSVSS RAMPSToleranceClashesNewAcveReviewedApprovedResolvedTypeStatus 0.025m 0 0 0 0 0 0 Hard OK Item1 Item2 ImageClashGroup Clash Name StatusDistanceGrid Locaon DescriponDateFound Clash Point Item ID LayerItemName Item Type Item ID LayerItemName Item Type Comments A WINDOWSVSS STAIRSToleranceClashesNewAcveReviewedApprovedResolvedTypeStatus 0.025m 0 0 0 0 0 0 Hard OK Item1 Item2 ImageClashGroup Clash Name StatusDistanceGrid Locaon DescriponDateFound Clash Point Item ID LayerItemName Item Type Item ID LayerItemName Item Type Comments

Turn static files into dynamic content formats.

Create a flipbook
Issuu converts static files into: digital portfolios, online yearbooks, online catalogs, digital photo albums and more. Sign up and create your flipbook.