P O R
L F I O O architecture design interior retail store
T
![]()
P O R
L F I O O architecture design interior retail store
T


A highly creative and passionate Architect and Interior Designer with a diverse background, I hold a BEng, MSc, and MA in Architecture and Ubanism, with over 6 years of experience working on projects ranging from small to large-scale across Europe and Asia.
Specializing in conceptual design, space planning, and 3D modeling, I craft visually impactful store layouts aligned with brand identity. I lead teams with a strong focus on project management, consistently delivering designs that exceed stakeholder expectations and drive success.
My work has earned prestigious awards, including a Gold Winner at the Muse Design Awards and Best Office Architecture at the Forbes Property Awards. I was recognized as Outstanding Employee in 2021 and Quality Star in 2022.
ARCHITECT
AECOM, Shanghai
Led the conceptual design of architectural and interior design projects ensuring high-quality solutions that met client needs and regulatory requirements.
Project Management: Managed project timelines, budgets, and resources, coordinating with contractors and consultants to deliver projects on time and within budget.
Created detailed architectural sections, 3D models, and visual presentations using Rhino, Revit, and Photoshop to communicate concepts and designs to clients and stakeholders.
Directed and mentored junior architects and design teams, providing guidance and ensuring adherence to project scope, timeline and quality standards.
VECTORWORKS
ASSISTANT ARCHITECT
AECOM, Shanghai
Contributed in the development of architectural designs for residential, commercial, and institutional projects, collaborating with an international team of senior architects to ensure project alignment with clients’ needs and stakeholders’ expectations.
Coordinated with contractors & engineers while conducting regular site visits to assess project progress, resolve issues, ensuring compliance with design specifications and building codes.
Conducted research on materials, construction techniques, and sustainability practices to enhance project outcomes.
JUNIOR RETAIL DESIGNER
ISE, Shanghai
Designed store layouts, visual displays, and interior designs to align with the brand’s identity and target market, and procured materials, furniture and fixtures for store development.
Collaborated with merchandising and marketing teams to create seasonal and promotional displays that showcased new collections and maximized product visibility.
Developed 3D renderings and floor plans to communicate design concepts using Sketchup and Enscape.






For ISE, a Shanghai-based clothing brand, we designed a retail space that reflects the brand’s minimalist and timeless identity through a wabi-sabi inspired interior. The space is anchored by beige concrete, which serves as the primary material for both the walls and flooring, creating a muted, calming backdrop that enhances the natural beauty of the space.
Accents of natural wood and stone introduce warmth and contrast, complementing the brand’s simple, clean lines. Soft, earthy tones and handcrafted details further embody the philosophy of simplicity and elegance. This design approach aligns seamlessly with ISE’s clothing—classic, understated, and effortlessly stylish—creating a cohesive, tranquil environment for customers to experience the brand’s philosophy through both its garments and its surroundings.
















The interior features natural, raw materials like unfinished wood, stone, and concrete, celebrating the beauty of imperfection and the passage of time. Soft, earthy tones dominate the space, with subtle variations in textures and materials creating a serene and organic atmosphere.













The 200 sqm retail space is thoughtfully designed to enhance the shopping experience. Near the entrance, a table display showcases the latest collections, drawing immediate attention. In the center, a comfortable couch area offers a relaxing space for guests to rest. The wall displays are diverse, featuring three types: recessed wall displays, marble slab displays, and column displays, creating dynamic visual interest throughout the store. Additionally, a coffee corner is incorporated to attract more visitors and encourage them to linger, seamlessly blending lifestyle and retail.


















O’Mills, a Chinese restaurant in Manchester, specializes in authentic Shanghai cuisine. The interior blends mid-century modern style with subtle Chinese influence. Olive green and soft beige tones create a warm, welcoming atmosphere, while clean lines and functional furniture add sophistication. Traditional motifs and art pieces enrich the space, with custom brass lighting fixtures enhancing its elegance.
The combination of mid-century design and cultural elements provides a unique environment, offering guests an immersive dining experience that fuses Shanghai’s charm with Manchester’s modern sophistication.

















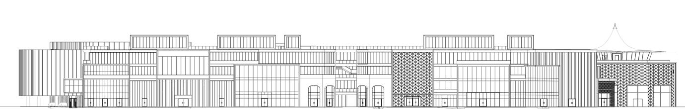
The facade design adopts a minimalist approach, featuring beige concrete and wooden window frames that establish a subtle yet sophisticated aesthetic.
Large glass windows are strategically incorporated to enhance transparency, creating an inviting atmosphere while allowing seamless integration of the window ledges with the bar area, optimizing both functionality and design. The expansive glass surfaces not only attract passersby but also maximize natural light within the interior, enriching the overall ambiance.






































Located atop a hotel tower, the VIP lounge offers unparalleled views of the Dalian coastline. Spanning 1,200 sqm, with a core area of 350 sqm, the interior features an industrial design that combines luxury with raw, modern elements. Dark marble surfaces enhance the space’s sense of elegance and sophistication, while wooden walls and furnishings add warmth and comfort, creating an inviting, home-like atmosphere.
The open, high-ceilinged design, complemented by floor-to-ceiling windows, further amplifies the expansive views, fostering a sense of openness and tranquility. This design seamlessly combines comfort, luxury, and stunning views.



















The VIP lounge is thoughtfully divided into distinct areas, including a vintage bar, coffee bar, dining area, and lounge seating. A mezzanine level introduces a sense of privacy, offering intimate dining spaces while enhancing the overall spatial hierarchy.To elevate the ambiance, a piano and performance stage are incorporated, offering live music that enriches the atmosphere.









































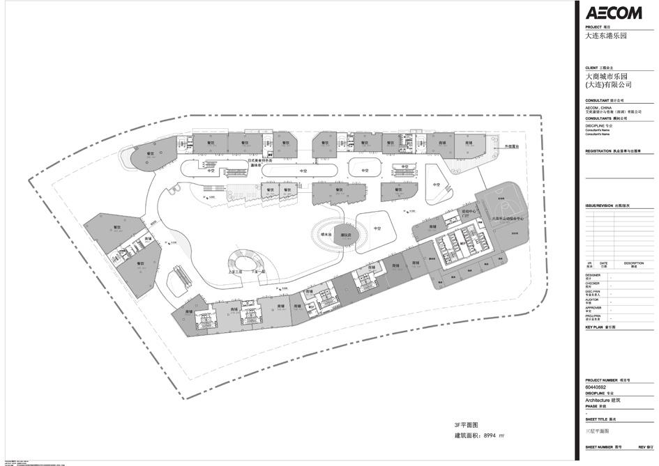
The thoughtful layout and distinctive architecture foster a dynamic outdoor commercial atmosphere. Retail spaces, weekend markets, and cultural performances infuse the area with vibrancy, transforming the central plaza into the heart of commercial activity. This vibrant space establishes a regional business benchmark, offering an unmatched blend of fashion and cultural experiences. The design prioritizes interactivity and innovation, creating an engaging environment for visitors and ensuring a memorable experience that seamlessly integrates commerce and culture.












Adhere to the boundaries of the land on which construction is permitted


Take the T form according to the site condition as a concept for the project

Substract unnecessary parts of the block to adhere to the speacial structural ratio


Extrude the blocks until they reach the appropriate height

Extrude some parts of the buildings to distinguish them, and create an internal courtyard for ventilation

Achieve the form that is appropriate for the function and design needs





VEHICLE CIRCULATION






Pedestrian circulation is efficiently organized into three distinct routes: production, R&D, and residential, ensuring seamless movement without overlap. The production area is equipped with a dedicated truck entrance, separate from general vehicle traffic, optimizing circulation and maintaining clear functional separation across the site.
参观动线分析图
PEDESTRIAN

Visitor circulation is optimized through a shuttle system along a circular route, linking the R&D center and factory, with designated pick-up points. Surrounded by water on three sides, the design features landscaped interfaces and an elevated first floor, enhancing unobstructed views and fostering a sustainable, ecological campus environment.



















Source: www.design.museaward.com


S ource: www.propertyawards.net




Amsterdam, Netherlands
+31618291813
sherrywangxuanyi@gmail.com
www.linkedin.com/sherry-wang-xuanyi

