Portfolio- SHERMINEH AFSARY-Nov 2024

Page 1


Shermineh Afsary , Ph.D. EDAC.

Email: shermineh.afsary@gmail.com

Portfolio Link: https://issuu.com/sherminehafsary

Contents

Brief Bio & CV

Selected Projects: Design, Construction & Research

Creative works: Sketches and Drawings

Teaching Projects (Students’ Works)

Sample of Peer-Reviewed Publications

Bio: I am an architectural designer, Interior designer, urban planner, educator, and researcher. I got my Ph.D. in Architecture with the major focus on health & wellness in design, and healthcare architecture, and a minor area of building technology from the University of Kansas. I am EDAC certified from the Center for Health Design. I have been involved in several research projects collaborating with the National Institute of Health (NIH), KU Institute of Health & Wellness Design, KU Institute for Smart Cities, KU Center for Sustainability, KU Facilities Planning & Development, and KU Robotic Lab. Moreover, I have more than five years of teaching experience in architectural courses and have several years of professional experience in great architectural and design-build firms and have worked on the design and planning of multiple large and middle-scale projects including hospitals and clinics, wellness and sports complex, office buildings, and urban projects.

SPECIALTIES & INTERESTS:

 Healthcare design and construction:

• Evidence-Based Practice

• Ergonomics and Human Factors in Buildings

• Post Occupancy Evaluation (POE)

• Psychological & Behavioral design

• Space Syntax Analysis (SSA)

 Sustainability

• Sustainable Smart Buildings

 Building Technology

• Environmentally Conscious Buildings EDUCATION:

• Ph.D. in Architecture 2016- 2023

The University of Kansas, GPA: 3.89

• Master of Arts (MA) in Architecture 2020

The University of Kansas, GPA: 3.88

• Master of Urban and Regional Planning 2011

The University of Tehran, GPA: 17.84/20

• Bachelor of Architectural Engineering 2007 Azad University of Central Tehran, GPA: 17.77/20

POSITIONS & EXPERIENCE:

January 2024Present

June 2023October 2023

Fall 2019Spring 2023

Fall 2016Fall 2020

Fall 2016Fall 2020

Spring 2018Fall 2019

Spring 2018Spring 2019

Fall 2016- Fall 2020 \

Fall 2018

Architectural Design Researcher Paradigm Office

Architectural Design Researcher Hutton Design-Build Firm

Ph.D. Candidate Researcher

School of Architecture & Design, The University of Kansas

Graduate Research Assistant

School of Architecture & Design, The University of Kansas

KU Institute of Health & Wellness

Design- Advisor: Dr. Mahbub Rashid

KU Institute for Smart Cities

KU Robotic Lab

Teaching Positions

School of Architecture & Design, The University of Kansas

Graduate Researcher

School of Architecture & Planning, Morgan State University

A National Project Granted by the National Institute of Health (NIH)

Spring 2018

Co-Leader of Design and Construction

KU Center for Sustainability, University of Kansas, Collaboration w ith Thornton Tomasetti Engineering Firm, and KU Facilities Planning & Development

Fall 2015Spring 2016

Oct. 2013Jun. 2016

Jun. 2011Sep. 2013

Oct. 2007Sep. 2009

Lecturer

Department of Architecture, Azad University

Architect Niroo Eshba Consulting Engineers

Architectural Designer & Urban Planner

E-Lood Architectural Firm & Consulting Engineers

Associate Architect

Shora Architectural Firm & Consulting Engineers

PROFESSIONAL CERTIFICATES

• EDAC (Evidence-based Design Accredited & Certification)

The Center for Health Design. The U.S.

• Architecture Registration

Tehran Construction Engineers Organization (TCEO). Tehran

PROFESSIONAL CERTIFICATES

• EDAC (Evidence-based Design Accredited & Certification) certificate

The Center for Health Design. The U.S.

• Architecture Registration

Tehran Construction Engineers Organization (TCEO). Tehran

COMPLETED RESEARCH GRANT

National Institute of Health (NIH)

Research project: The Evaluation of a Community Health Center At Morgan State University.

PI: Dr. Mohammad Gharipour

My Role: Graduate Researcher

HONORS AND AWARDS

• Graduate Teaching Assistantship and tuition grant Fall 2020 School of Architecture & Design. The University of Kansas

• Graduate Research and Teaching Assistantship and tuition waiver Fall 2016 to Spring 2020 School of Architecture & Design. The University of Kansas

• KU Doctoral Student Research Fund (KU DSRF). Graduate Awards. The University of Kansas Spring 2020

• Nana Kirk Scholarship. EDRA51 conference Spring 2021

• Nana Kirk Scholarship. EDRA51 conference Spring 2020

• Nana Kirk Scholarship. EDRA50 conference Spring 2019

SOFTWARE SKILLS

Auto CAD 3D Studio Max+ V- Ray plug-in Rhinoceros + Grasshopper

REVIT Arc GIS SPSS Depth map

Sketch-Up Adobe Photoshop Adobe Illustrator Adobe InDesign

Honeybees & Ladybug plugins of Grasshopper Microsoft Office (Word, PowerPoint, Excel)

Selected Projects

Design, Construction & Research

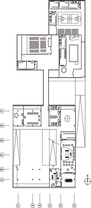
A large Super Specialty Hospital

This super special hospital with capacity of 500 beds is located in Tehran. I was an associate archiect in this project at E-lood architectural firm and consulting engineers. I contributed in research and planning, schematic design, design development for this Architectural project and also studies of urban capacity and needs for distriction. I Also prepared physical planning for this project . In addition, I contributed to the coordination of architecture with AC and structure team.

Brain lab (Intra operative MRI)
Hybrid operation room with C.ARM

ANALYSIS OF BUILDINGS OF COMMUNITY HEALTH CENTERS

The University of Kansas Awarded Doctoral Student Research Fund by Graduate Studies

Case Studies: 14 large, medium, and small Community Health Centers (CHCs) from different parts of the country.

Purpose: To find out how visibility, accessibility, spatial configuration and space allocation improve efficiency, privacy, and interaction between nurses, physicians and patients within these CHC buildings.

Method: Mixed Method Findings:

• Contribute to a better understanding the relation of building, its spatial configuration and allocation to users’ efficiency

• Improving a Post Occupancy Evaluation Tool (POE) for buildings of CHCs.

• Developing new building index in POE of buildings of CHCs

• Finding significant correlations between some of the measures of staff Spaces and staff-staff interaction to and the way they are associated with each other

• With these findings, new solutions and strategies is recommended.

Evaluation of Building of a Community Health Center

National Institute of Health (NIH) Granted

School of Architecture & Planning, Morgan State University

PI: Dr. Mohammad Gharipour, Researcher: Shermineh Afsary

Method: Mixed Methods

One of the Methods used: Space Syntax Analysis (SSA) Findings:

• This clinic cannot provide a proper wayfinding in the circulation for the users

• This research proposed affordable solutions to improve visibility and circulation through the spatial layout of the building of the CHC for renovation and reconstruction

Samuel Rodgers CHC Connectivity
Samuel Rodgers CHC Integration
Samuel Rodgers CHC

The Application of Smart Homes for Elderly Care within Healing Environments and Community Health

Institute for Smart Cities, The University of Kansas

PI: Joe Colistra, Researcher: Shermineh Afsary

The Presentation accepted in Environment for Aging (EFA) Conference, 2020

• A futuristic project

• The project led by the KU Institute for Smart Cities

• Key aspects of smart homes for elderly care, healing spaces, and healthy living within the scale of community healthcare

• Research on Healing environments and community healthcare

• A multifamily prototype-housing unit

• utilizing smart technologies such as sensors

My contribution:

To explore how smart homes and Community Health Centers can be utilized and developed to impact the healing environment as well as community healthcare

Prototype “Smart” Unit, Institute for Smart Cities, University of Kansas (Colistra, Joe, 2017)

An Environmental-Economic Friendly Construction Robot-Aided Fabrication with Clay Robotic lab, School of Architecture & Design, The University of Kansas

I have conducted this experimental design research in collaboration with Dr. Paola Sanguinetty at Robotic lab of the University of Kansas. This design research in 3D printing technologies for architecture, engineering, and construction focuses on the use of building materials that can be integrated into an additive manufacturing (AM) framework. This research will investigate the design, modeling, simulation of 3D-printing and production process of a self-supported/ stackable clay system by robotic fabrication. Most of the research in AM have been done on concrete, and less on Clay. Using Clay in this industry is important as an environmental-economic friendly material. Some of the previous research have been done on Robot Aided Fabrication with clay, however this research contribute to finding a new material mixture and tiling system which support a stable and flexible shape. Material and printing parameters are evaluated.

Computer Simulation for Environmental Design

The University of Kansas

The project for this analysis by computer simulation and environmental design is a full-service restaurant with the area of 600m2. For the analysis I have considered this project is in Kansas City, Missouri. Digital tools including Honeybees & Ladybug plugins of Grasshopper was utilized for the simulation and analysis.

Sustainable Urban Development by Improving Healthy Environment, Economic Viability and Social Equity

A study on the City of Abilene, KS

The University of Kansas I have conducted this urban planning project at the University of Kansas, under supervision of Dr. Mahbub Rashid. The purpose of this project is to assess sustainable urban development in the context of a City in the USA by improving three main aspects of sustainability including a healthy environment, economic viability, and social equity. Equal access to healthy environment, prosperous economic and urban services is considered and the criteria in this research are selected according to the available resources of three aspects of sustainable local development to be assessed in terms of access to all the residents including the households with a different level of income. This assessment is conducted by mapped spatial distribution systems in the form of accessibility patterns in different areas of the city with different household median income.

Akbar Children's hospital

As a special hospital for children, this project needed many spaces due to children’s flavors. A lobby and a place for playing Children for improving these children was a necessity for this project. As an associate architect, I developed the design by using many tools like 3D modelling, doing research about chil-dren's needs and mood, using appropriate colors for improving their mood. I also studied about the design for children and psychological effects of colors.

Shiraz Golestan Poly Clinic

This Poly Clinic has a building area of 5’500 sq.m . In this project, I coordinated between HV AC and false ceiling design in architectural drawings and prepared some of the construction documents for this project.

Center of Research & Culture, Tehran

Project manager in Construction Documents

Architectural Designer, and Facade Designer

Yazd University

The alternative design of department of human science

As a large-scale project, this alternative for design of department of human science of this University is presented here. The concept of design of this project with its central yards is due to climatic issues in hot & arid climates. As an associate architect, I developed the plans, physical planning and developed the elevation, form, connection between spaces by preparing 3D modelling and plans of the building. I also conducted research on the physical planning for universities and educational centers.

Guiltech Factory

Guiltech Factory as an industrial project with its special structural form has a building area of 2500 m2. In this project I developed the architectural design in Schematic design, design development construction documents for the needs of this industrial project as an associate ar-chitect. I also utilized software tools like 3D modelling. Design and construction of this project is now completed.

Lavasan Recreational Center

This recreational center with 800 m2 is under operation. I developed the design of building and site plan designed the elevation in a 3D modelling. A tensile structure on the roof of the project seemed to be a good combination for this recreational project.

Fardis Sport Complex -the Pool Building

Villa on a Sloped Ground

This Villa with its special structure and form located on a sloped ground. I designed elevation of this project, and as an assossiate architect developed plans and improving the form of this building in a 3D modelling.

Fardis sport complex is a super scale project. I contributed in design and planning for this project as an associate architect in design of the pool building and the site plan of this complex. The structure for ceiling of this pool building is designed by space frames to eliminate some of the columns in the structure of the building for better utilizing for placement of the pool.

Multi-family Residential Complex, Wichita, Kansas

With 250 residential units, this multi-family residential complex located in the downtown area of Wichita, KS requires urban and design considerations and planning. In this multi-family residential complex, as the architectural design researcher and planner, I redesigned almost half of the residential unit layouts to provide daylight for the living areas specially the bedrooms, by design solutions and considerations, which improves the spatial quality and the health and wellness of the residents through increasing the access to the daylight. Additionally, I conducted an evidence -based research on the parking requirements, spatial allocations, and the parking spatial ratio to residential ratio considering building codes and urban requirements to guide the design and spatial planning based on the research results.

National Apartment Association (2021)

Source: Seth Goodman, graphicparking.com

Planning for Childcare Development Center Prototype, Kansas

In this project of the prototype for Childcare Development Center in the State of Kansas, as the planner and design researcher, I conducted planning, including the identifying optimal locations for potential childcare Development Center (CDC). In addition, I utilized a tool developed by the center for American progress, to calculate approximate cost of childcare for planning purposes.

CostofChildCare.org Interactive cost Estimate tool (Developed by center for American Progress, 2018)

Two Civic Facilities, and a Senior Community Center, Kansas

This project involves the need assessment, and spatial programming for the renovation and changing the function of existing buildings of two civic buildings, including the city council, and court, and the police department, as well as a senior community center in the state of Kansas. One of the buildings was an existing church, which will be replaced by a senior community center.

As the design researcher, I contributed to the proposal writing for a Space Study, as well as conducted space evaluation and need assessment. We utilized evidence-based design, and user- experience through mixed methods. In addition, as the planner, I conducted the scheduling and planning for these projects, through preparing a road map for the space need assessment of these projects.

The existing layout plans and the buildings of two civic facilities and a senior community center for space need assessments

Ghaemshahr Hospital

This large-scale project was the result of a continuous teamwork. It is clear that such a large-scale project needs research on healthcare spaces for a better planning and design. I contributed in the teamwork of design, planning & research for this project for about 10 months as an associate architect. The design & construction of this hospital has been completed & the hospital is utilized.

Capacity 220 beds

Floors 7

Site Area

Planning for Promoting Environmental and Social Quality through Sustainable Community Development

The University of Tehran Case Study: Sadaf Residential Neighborhoods in Kish Island

My master’s thesis project was evaluation of the physical and social quality through sustainable community development and planning to improve it by prioritizing policies. The methodology in my thesis was mix method of quantitative and qualitative analysis. I used tools including survey, questionares, and urban plans. The software of ArcGIS, Spss, and AutoCAD was used. Case study is seven neighborhoods located in Kish Island.

Community Plaza & Cultural Center

I designed a neighborhood plaza & cultural center. After many scrutinizing, I chose a site with a cultural landuse. A special placement of the site with its strong connection with urban axes, and needs for public service for this neighborhood, made this site an appropriate place for a plaza and a cultural center. I designed this project with 30 pages of construction documents.

An Educational & Sport Complex

This project was one of my projects, in which I designed a continuous surface for structural design and a hightech shell for this educational & sport complex.

A Residential & Commercial Complex

This residential & commercial complex was one of my projects. I presented 3 alternatives for designing units of this complex and finally improved and finalized one of the alternatives with the attention to physical planning, site analyzing, climate etc.

A Cultural Center

This cultural design with a high-tech structure was my projects. A high-tech surface with its special structural frame is combined with a composition of volumes which have suspended structures in some points. The architecture was combined to structure of the building. The function of this project is cultural including the spaces for cultural, artistic, recreational, and educational activities for the young population.

House of Collaboration

This house of collaboration was the combination of a house & workplace of an artist. This project was one of my projects. I utilized a fractal form with a continuous surface in the design. In this design I combine the two parts with each other and the building with environment. The building and the environment in this design are in interaction with each other.

This is one of my research projects on a climatic house. I chose a memorial house in my country as case study which is one of the masterpieces in achievement through climatic design especially on that time in about 200 years ago. I analyzed and presented the climatic features in this building. One of these features is wind tower of this house which I analyzed the separate parts of this. The placement and design of this house was done with the attention to the sun path in different seasons of the year in the location.

JANUARY 15 @ 12 PM, ALT=80, AZ=180

JULY 15 @ 12 PM, ALT=35, AZ=180 L1=39CM, L2=467CM

The analysis of the wind

The Climatic House
Tan (Alt)=H/L
tower

Creative Works: Sketches

& Drawings

Teaching Projects (Students’ Works)

Design+ Build Studio

Design & Building of an Outdoor Classroom on Campus

The University of Kansas

Client: KU Center for Sustainability

In Collaboration with: KU Facilities Planning & Development, Thornton Tomasetti firm & Midwest Concrete Materials (MCM)

Some of the key points in design & construction of this project were computational tools in design build, customized concrete blocks and curved concrete surfaces, support the environment, and utilizing different construction materials

I was a GTA in design+ build studio at the University of Kansas, in which an outdoor classroom on campus was designed and built within a teamwork. The client was KU facilities planning and development. In this process, we had collaboration with KU Center for Sustainability, Thornton Tomasetti engineering firm in Kansas City, and Midwest Concrete Materials (MCM).

As a GTA, I led students within a collaborative work to become familiar with budget consideration, and site opportunities. Since there were available stones on the sites, a gabion wall was designed and built with a metal framework, filling with the existing stones. In addition, the digital tools were utilized to design and build the curved forms of sitting areas made with concrete

Design+ Build Studio Design & Building An Outdoor Classroom On Campus

The University of Kansas

Drawn by student: Dan

Checked by student: Tiffany Nguyen

Checked by student: Tiffany Nguyen

Drawn by student: Dan Aboucaya, Checked by student: Tiffany Nguyen
Drawn by student: Dan Aboucaya, Checked by student: Tiffany Nguyen
Drawn by student: Graham Andrews
Aboucaya

Design+ Build Studio

Design & Building an Outdoor Classroom On Campus

The University of Kansas

Collaborative work of students with each other and industry

Visualizing Site and Natural Environmental Systems

The University of Kansas

I was GTA in visualizing site and natural environmental systems at the University of Kansas.

This course had two modules of lecture and lab. As GTA I guided and evaluated students on their annotated sketches that summarize the reading assignments, evaluated their in-class exercise, and solve their issues on the lecture module.

This course introduces concepts of building science and performance in the area of materials, environmental systems and larger environmental relationships. The course is intended to develop intuitive and technical understanding of the natural, environmental forces working on buildings.

Here is a part of one of the students’ sample projects, which was the result of their learning from the lecture, readings, sketches and exercises, and labs.

Students: Katie Neyer and Lydia Juengling

Architectural Foundations II Design Studio

The University of Kansas

I was a GTA in the Architectural foundation II design studio. As a GTA, I tried to lead students to find the design relationships among people, architectural space, and the environment. Issues such as scale, light, proportion, and rhythm were introduced about the human body, as well as architectural forms, and environments. I taught and review the students’ works and solve their issues on freehand drawing, perspective projection, building modeling, and computer graphics.

Student: Liz Putnam
Student: Ethan Witt
Student: Ethan Witt
Student: Ethan Witt

Architectural Foundations II Design Studio

The University of Kansas

SAMPLE OF PEER-REVIWED PUBLICATIONS

Peer-reviewed Journal Articles and Conference Proceedings

1. Gharipour, Mohammad, Tyne, Intisar Ameen, Afsary, Shermineh, Hemme, Naomi, and Trout, Amber (2023). A community healthcare clinic in Baltimore: healing environment, design criteria, and assessment metrics, Archnet-IJAR: International Journal of Architectural Research, Emerald Publishing, ISSN: 2631-6862.

2. Afsary, Shermineh & Sanguinetti, Paola (2020). An Environmental-Economic Friendly Construction, RobotAided Fabrication with Clay: An Experimental Study. Proceedings of EDRA51: Transform: socially embedded collaboration. Tempe, AZ: Environmental Design Research Association.

3. Afsary, Shermineh (2019). Toward Sustainable Urban Development by Improving Healthy Environment, Economic Viability, and Social Equity: A Study on the City of Abilene, KS. Proceedings from EDRA 50: Sustainable urban environments. Brooklyn, NY: Environmental Design Research Association.

Peer-reviewed Journal Articles in Progress

1. Afsary, Shermineh & Rashid, Mahbub (n.d.). A Comparative Analysis of Community Health Centers in terms of Spatial Allocation, and Functional Distribution, in preparation for a peer-reviewed journal article.

2. Afsary, Shermineh & Rashid, Mahbub (n.d.). The Analysis of Community Health Centers in terms of Spatial Configuration, and Organizational Construct, Using Space Syntax Analysis, in preparation for a peer-reviewed journal article.

3. Afsary, Shermineh (n.d.). Planning for “promoting physical and environmental quality” through sustainable local development; Case study: Sadaf residential town, Kish Island, in preparation.

Peer-reviewed Conference Presentations

1. Afsary, Shermineh & Rashid, Mahbub (2022), The Analysis of Community Health Centers in Terms of Spatial Configuration, and Functional Distribution. Proceedings from EDRA 53: Health in All Design. Greenville, SC: Environmental Design Research Association.

2. Afsary, Shermineh (2021), Planning for Promoting Physical and Environmental Quality through Sustainable Community Development within Islands of Developing Countries. Proceedings from EDRA 52: Just Environment. Virtual Detroit, MI: Environmental Design Research Association.

3. Afsary, Shermineh & Rashid, Mahbub (2020). Post Occupancy Evaluation of Community Health Facilities in Terms of Staff Spaces and Clinician Interactions. Proceedings of EDRA51: Transform: socially embedded collaboration. Tempe, AZ: Environmental Design Research Association.

4. Afsary, Shermineh & Gharipour, Mohammad (2020). The Analysis of Visibility and Circulation in the Community Health Clinic, Using Space Syntax: A Case Study in Baltimore. Proceedings of EDRA51: Transform: socially embedded collaboration. Tempe, AZ: Environmental Design Research Association.

5. Colistra, Joe, Afsary, Shermineh (2020), The Application of Smart Homes for Elderly Care within Healing Environments, Environment for Aging (EFA) Conference & Expo, Louisville, KY.

6. Afsary, Shermineh (2020). The Impact of attributes of layout in inpatient units and rooms on the perceived quality of care. Proceedings of the AMPS. Florida State University. Florida. Publications by PARADE (Publication in Art, Architectures, Design, and Environments).

7. Afsary, Shermineh & Rashid, Mahbub (2019). The Impact of Visibility on in-bed Length of Stay in Emergency Room. Proceedings from EDRA 50: Sustainable urban environments. Brooklyn, NY: Environmental Design Research Association.

Peer-reviewed Conference Proceeding Non-English

1. Afsary, Shermineh (2015). Sustainable metropolitan development planning with a concentration on developing countries; "Tehran" and "Beijing". The Proceeding of the international conference in new research of civil engineering, architecture, and urban development. The University of Tehran, Tehran

2. Afsary, Shermineh & Ahmadi, Ehsan (2015). The design of urban green corridors and infrastructure; a comparison between Charbagh Avenue in Isfahan and Champs- Elysees Avenue in Paris. The Proceeding from. The International Congress on sustainability in architectural, civil, and urban development at the beginning of the third millennium. Tehran: National Association of Iranian Architects.

The Analysis of Community Health Centers in Terms of Spatial Configuration, and Functional Distribution

Shermineh Afsary (The University of Kansas); Mahbub Rashid (The University of Kansas)

In the USA, Community Health Centers (CHCs) provide affordable primary healthcare services to all patients including the uninsured, low-income ones, or those living in remote areas (NACHC, 2015). The main purpose of this research is to systematically analyze CHCs in terms of spatial configuration and functional distribution. The focus of spatial configuration is overall layout configuration; decentralized/ centralized organization of main functional spaces including nursing stations, clinicians’ offices, registration offices, as well as the spatial visibility within the spatial configuration. This study is needed since there is a lack of rigorous studies on the design of CHCs. Studies in other healthcare settings have already shown that spatial efficiency can improve the quality of healthcare, but only a few studies of these studies involve CHCs. This research will contribute to a better understanding of typological variation, spatial configuration, functional distribution, and visibility within the building of CHCs. This study will include several large CHCs from different parts of the USA. These CHCs have different layouts, and their floor areas vary between 35’000 sq.ft and 68’000 sq.ft. The methodology of this research will involve a systematic spatial analysis. Firstly, using the evidence-based healthcare design literature, the study will provide an assessment of the spatial attributes of these CHCs. In addition, using systematic spatial analysis of layout plans, the study determines layout typology, and decentralized/ centralized organization of main functional spaces, space allocation, and functional distributions and their relationships within the CHCs. As one of the method, Space Syntax Analysis (SSA) is conducted to evaluate the spatial visibility in different spatial configuration of the CHCs. For visibility analysis, visual attributes of connectivity, integration will be analyzed. As one of the findings and contribution of this research, to fill the gap of the current literature on different layout configurations, this research has defined 6 new different typology of layout configurations and functional distributions in CHCs. Another contribution of the research is to develop new indexes of design. Based on the findings, the study will provide guidelines for better CHC design.

Planning for Promoting Physical and Environmental Quality through Sustainable Community Development within Islands of Developing Countries

Shermineh Afsary

EDAC, PhD Candidate, Graduate Teaching and research Assistant, Department of Architecture, The University of Kansas, shery.afsary@ku.edu

Neighborhood is the major cell of the urban space. And, the realization of sustainable development can be attained through sustainable neighborhood and community development within the cognition of the sentence of “Think globally, act locally" (Geddes, 1915; Dubos, 1977). The main purpose of this research is to identify the factors affecting the environmental and physical quality through sustainable community development, and evaluation of physical and environmental quality of community within Islands of developing countries. Previous Studies have been conducted on physical and environmental quality and sustainable community development (Afsary, 2020). This research is needed, since there is a lack of these studies on neighborhoods of Islands in developing countries. The case study is a residential district consisting from seven neighborhoods located in Kish Island. The methodology of this research is causal analysis as a mixed of quantitative and qualitative methods. In this research, both objective and subjective criteria are defined and evaluated. This research is done in two parts: 1- Evaluation of objective and subjective indicators and indices with experimental research by developing an evaluation tool of a questionnaire completed by taking a survey from residents. 2- Identification and assessment of physical and objective dimensions by systematic physical assessment. For understanding the relation between the indicators of environmental and physical quality, following statistic tools are used: 1- Reliability assessment test of the questionnaire through Chronbach's Alpha coefficient 2- Regressions and using Beta coefficient (standardized regression’s coefficients) in analysis of the effects of factors on variables for prioritizing them. 3Assessment of the level of residents’ satisfaction from physical and environmental quality in Likert scale 4Quantitative analysis of the mean value of the evaluation by survey. Based on the findings and prioritization of the criteria, the study will provide prioritized strategies for improving physical and environmental quality.

Keywords:

Sustainable community development, Neighborhood planning, Physical and environmental quality, Developing Countries, Island Planning.

1.1 Keywords

Fabrication and Robotic crafts, Digital Fabrication, Automated Construction, Additive Construction, Clay 3D printing.

The Application of Smart Homes for Elderly Care within Healing Environments

Joe Colistra

Associate Professor, RA, Chair of Department of Architecture, Director of KU’s Institute for Smart Cities, School of Architecture and Design

The University of Kansas

Shermineh Afsary

Graduate Research and Teaching Assistant, Ph.D. student in Architecture

School of Architecture and Design, The University of Kansas

This presentation showcases research that defines the key aspects of smart homes for elderly care, healing spaces, and healthy living within the scale of community healthcare. It explores how smart homes, with special characteristics, are developed to impact healing environments and community healthcare. Additionally, a developed multifamily prototype-housing unit will be described, which demonstrates best practices in aging-in-place strategies with smart technologies such as sensors to collect information such as human vital signs, physical activity, and environmental factors. Presenters will show how utilizing prefabricated construction to bring plug-and-play technology infrastructure for seniors can lead to healthy and happy living for their caregivers and families, too.

1 Experiential Design – Rethinking relations between people, objects and environments

• PaperTitle:

The Impact of Attributes of Layout in Inpatient Unit and rooms on Perceived Quality of Care

• Author(s) Name:

Shermineh Afsary

• University or Company Affiliation:

Department of Architecture, School of Architecture & Design, The University of Kansas

• Abstract:

The purpose of this research is to understand how the layout of inpatient unit and room affects the quality of care from the perspective of physicians, nurses, supporting staff members, patients and visitors. Layout attributes is a key part of inpatient unit. Quality of care is among the most important outcome in health service. Previous studies have conducted research on inpatient unit attributes or quality of care; however, less has focused on the impact of all the selected four major attributes of the layout in this research on perceived quality of care. The research methodology is the correlational study with using interviews and surveys as the qualitative method and statistical analysis of the evaluation in Likert scale as the quantitative method Selected attributes of layout are unit shape, placement of support core, patient room layout and size. Measures of quality of care in this research are control, positive distraction and attractiveness, rest and comfort each of them has their own indices according to the literature review. The questionnaire for the surveys and interviews is based on the metrics of the quality of care and attributes of the layout. The quality of care metrics is evaluated in relation to attributes of the layout. The case study is the inpatient unit of the International Ghaem Rasht hospital located in the City of Rasht, Iran. This unit is proper for this research, since it has different placement of support core, different patient room layout and size including private, two beds and VIP In Findings, about the unit shape, it seems that in corridor shape, there is low level of control, which might be improved by decentralized support core. About the placement of support core, it seems that decentralized staff stations increase quality of care by increasing control. About the patient room layout, since all of the rooms was mirror rooms except one room, interview is done with staff members who had experience at other inpatient units with same-handed rooms. It seems that mirror rooms increase the level of quality of care more than same-handed rooms. About patient room size, it seems that bigger rooms improve the quality of care. However, it seems that two-bed rooms improve positive distraction.

The Impact of Visibility on in-bed Length of Stay in Emergency Room

Shermineh Afsary

EDAC, Ph.D. student, Graduate Research and Teaching Assistant, Department of Architecture, The University of Kansas, shery.afsary@ku.edu

Dr. Mahbub Rashid

Professor, Ph.D., AIA, Interim Dean of School, Associate Dean of Research and Graduate Studies, School of Architecture and design, University of Kansas, mrashid@ku.edu

Open Access From https://cuny.manifoldapp.org/read/the-impact-of-visibility-on-in-bed-length-of-stay-inemergency-room/section/653e6023-b47f-491f-9659-41d93054708b

Abstract

This research aims to study how visibility from caregivers’ station to patients’ spaces affects the in-bed length of stay (in-bed LOS) in Emergency Room (ER) taking into account patient severity. The data was collected from one of the ER units of Regions Hospital in Minnesota, USA. This unit with fifteen beds is located close to the main entrance and treats high-acuity patients. Visibility can improve caregivers’ awareness to patients, themselves, and care settings. Previous studies have evaluated visibility in other healthcare units, but seldom in ERs. In addition, ER designs generally focus more on physical connections rather than visual connections. This research is significant because it focuses on a lack of study on visual connections in ERs, and it is hoped that it will lead to innovations in the layout of ERs. The methodology of this research is a correlational study. Visual connectivity, integration, and step depth from the caregivers’ station to patients’ rooms is analyzed, using space syntax techniques. In-bed LOS and patient severity or the emergency severity index (ESI) is extracted from the emergency department database. Spearman correlation coefficients are used to find out the relations of three attributes to in-bed LOS taking to the account of the ESI. In findings, no correlations were found between in-bed LOS and three visual attributes. The Emergency Severity Index (ESI) and in-bed LOS showed significantly strong inverse correlations, which after removing trauma rooms, it is improved. One limitation was that the dataset used for statistical analysis was for one ER unit. In future studies, a larger dataset may help improve the statistical significance of correlations. Another limitation was that in-bed LOS used in this study was defined by the time a patient stayed in ER. It is not known if the patient was moved to other rooms and/or units or not.

Keywords: Evidence-Based Design, Healthcare Design, Emergency Room, Visual Surveillance, Visibility, Nurse Efficiency, Patient Outcomes, ER Layout Configuration.

Toward Sustainable Urban Development by Improving Healthy Environment, Economic Viability and Social Equity; A study on the City of Abilene, KS

EDAC, Graduate Research and Teaching Assistant, PhD student in Architecture, School of Architecture and Design, The University of Kansas, Lawrence, KS

Open Access:

https://cuny.manifoldapp.org/read/untitled-632ba339-c103-4b97-b9b5-52dd857a38bd/section/356838d4-cde0480f-97fe-c72990c6a6cb

Abstract

Sustainable urban development covers a range of development to build cities so that they become economically strong, socially equitable, and environmentally healthy. The purpose of this research is to assess sustainable urban development in the context of a City in the USA by improving three main aspects of sustainability including a healthy environment, economic viability, and social equity. In this regard, equal access to healthy environment, prosperous economic and urban services is considered and the criteria in this research are selected according to the available resources of three aspects of sustainable local development to be assessed in terms of access to all the residents including the households with a different level of income. As WHO reported, more than 80% of people live in urban areas. This research is significant since the planning for sustainable cities can improve urban life of present and future generation. The methodology of this research is a qualitative phenomenological study with a case study of the City of Abilene, KS. This Assessment is conducted by mapped spatial distribution systems in the form of accessibility patterns in different areas of the city with different household median income. A healthy environment is assessed by the spatial distribution of health centers, hospitals, park, and recreations. Economic viability is assessed by equal access to employment and source of income. Social equity is assessed by mapping different urban services, housing, and educational services and its access by a different zone of the city with different household median income. Finally, lack of equal access to the healthy environment, health service, employment and source of income, urban services, housing, and education is found which mostly created by social-economical segregation of urban spaces. Then, some strategies and solutions are recommended to solve it.

Keywords: Sustainable Urban development, Healthy Environment, Economic Viability, Social Equity, Abilene, Kansas

Turn static files into dynamic content formats.

Create a flipbook
Issuu converts static files into: digital portfolios, online yearbooks, online catalogs, digital photo albums and more. Sign up and create your flipbook.
Portfolio- SHERMINEH AFSARY-Nov 2024 by Shermineh Afsary - Issuu