Architecture Portfolio

Page 1

ARCHITECTURE PORTFOLIO

Salah Kamel

Sherin
2015-2022 Professional Academic
INDEX 01 Restoration Projects: - Restoration of Khedive Cairo - Akri Palace Hotel - German Archaeological Institute - Port Said Heritage Building Restoration 02 Industrial Projects: - Andria and Georige Gold Factory Green Liner Paper recycling Factory 03 Educational Projects: - Faculty of Law Port Said University 06 College Work 04 Freelancing Work(Interior Design) - Reception Design - Livingroom Design 05 Graduation Project - Revivalism of sour magra al-oyon zone (MagraAl-Oyoun Cultural Node)

PROFESSIONAL WORK

RESTORATION OF KHEDIVE CAIRO

Location: Egypt, Cairo Governorate , Qasr El Nile St.

Year: 2022 In Progress

Consulting Office: Bit-Design Category: Restoration Project

Project Brief: The Khedivial Cairo is the central part of Downtown Cairo it has had significant importance as downtown and a heritage area. The project scope and boundaries include the 32 buildings in Qasr el-Nile St. / Talaat harb sq. and Mostafa kamel sq., The aim of the project is to conserve the elevation of heritage buildings and return elevation to the original after the infringements from shops owners and population.

Role in the project:

- Elevations drawing - Shops Redesign -

Lighting

Software used: - Auto Cad Photoshop

Elevation
Landscape

Restoration

Cairo

Examples for Some Restored buildings

of Khedive
/
Restoration of Khedive Cairo / Building no. :22 Qasr el-Nile
Restoration of Khedive Cairo / Building no. :22 Qasr el-Nile
Restoration Of Khedive Cairo / Building no. :17 Qasr el-Nile

Restoration

El Borsa El Gededa

of Khedive Cairo / Building no. :2

Restoration of Khedive Cairo

Building no. :12 alwey st.

/

Restoration of Khedive Cairo

Building no. :12 alwey st.

/

Restoration of Khedive Cairo / Lighting and Electricity boxes

AKRI PALACE HOTEL

Location: Egypt, Port said Governorate , El Gomhoria El Nahda st.

Year: 2021 In Progress

Consulting Office: Bit-Design

Category: Restoration Project

Project Brief: The project aim is to restore and make a redesign for a heritage hotel in Port Said and reopen it again, the redesign will be from inside only and the heritage Facade will be kept as in the past, the Style used is modern classic to become suitable for the style of the heritage and the original style of the hotel in the past. the hotel was composed of three floors. The last floor of the hotel view the panorama of the Suez Canal clearly. The roof of the hotel was exploited and turned into a restaurant.

Role in the project:

- Plans redesign -

shots for hotel Suite, Guest Room and Double Room

Software used:

- Auto Cad -

Max - Photoshop

3D
3D

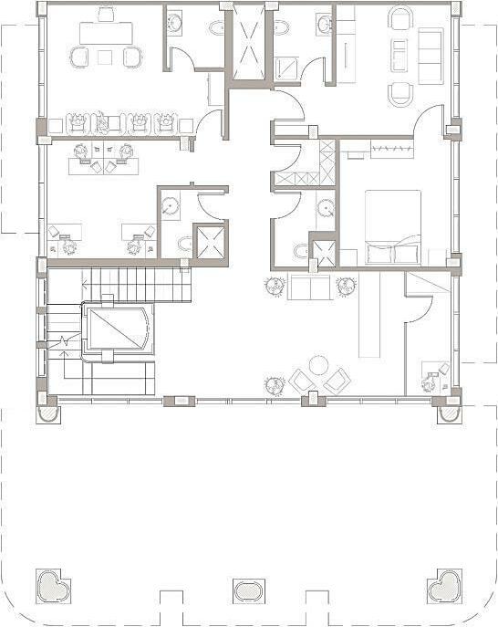
AKRI PALACE HOTEL

Ground Floor Plan

Mezanin Floor Plan

- Plans

AKRI PALACE HOTEL

Typical Floor Plan Roof Plan

- Plans

AKRI PALACE HOTEL

- 3D Shots For
Suite Bedroom

AKRI PALACE HOTEL

- 3D Shots For Suite
Bedroom

PALACE HOTEL

For Suite Reception

AKRI
- 3D Shots

PALACE HOTEL

Shots For Suite Reception

AKRI
- 3D

PALACE HOTEL

Double Room

AKRI
- 3D Shots For

AKRI PALACE HOTEL

- 3D Shots For Double Room

AKRI PALACE HOTEL

Room Bedroom

- 3D Shots For Guest

AKRI PALACE HOTEL

Guest Room Reception

- 3D Shots For

PALACE HOTEL

Guest Room Reception

AKRI
- 3D Shots For

AKRI PALACE HOTEL

Guest Room Reception

- 3D Shots For

DEUTSCHES ARCHÄOLOGISCHES INSTITUT

(GERMAN ARCHAEOLOGICAL INSTITUTE)

Location: Egypt, Suhag Governorate ,Abydos

2022 In Progress

Office: Bit-Design

Restoration Project

Brief: The Project aim to restore the building from inside with a suitable design and theme that capable with the theme of the environment and keep the structure of the building.

in the project:

Year:
Consulting
Category:
Project
Role
- Plans redesign - 3D shots for hotel Suite, Guest Room and Double Room Software used: - Auto Cad 3D Max - Photoshop

(GERMAN ARCHAEOLOGICAL INSTITUTE)

Plan

-
- Layout

(GERMAN ARCHAEOLOGICAL INSTITUTE)

Dining Room

Mood Board

Before Restoration

Restoration of Dining room with keeping the structure of windows , doors and the dome and choose a mood board suitable for the style of the place and its theme.

(GERMAN ARCHAEOLOGICAL INSTITUTE)

After Restoration

(GERMAN ARCHAEOLOGICAL INSTITUTE)

After Restoration

(GERMAN ARCHAEOLOGICAL INSTITUTE)

After Restoration

(GERMAN

INSTITUTE)

After Restoration

ARCHAEOLOGICAL

(GERMAN ARCHAEOLOGICAL INSTITUTE)

After Restoration

(GERMAN ARCHAEOLOGICAL INSTITUTE)

After Restoration

(GERMAN ARCHAEOLOGICAL INSTITUTE)

Kitchen Before Restoration

Mood Board

(GERMAN ARCHAEOLOGICAL INSTITUTE)

After Restoration

(GERMAN ARCHAEOLOGICAL INSTITUTE)

After Restoration

(GERMAN ARCHAEOLOGICAL INSTITUTE)

After Restoration

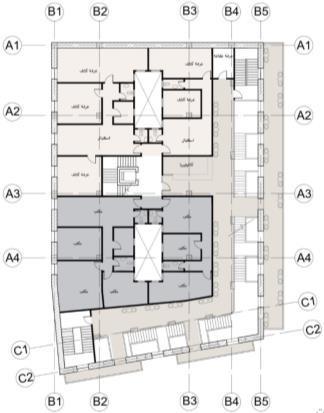
PORT SAID HERITAGE BUILDING RESTORATION

Location: Egypt, Port said Governorate , 31 Safeya Zagloul Street

Year: 2022 In Progress

Consulting Office: Bit-Design

Category: Restoration/Renovation Project

Project Brief: The project aim is to restore and make a redesign for a heritage Building in Port Said and transfer it from residential to Mixed use building by redesign it from inside and keeping the original heritage elevation as before. There are two options for the project, option 1 restore the heritage building and redesign it, option 2 is a restoration and renovation for the building by adding a new building to it.

Role in the project:

- Plans Design option 1/option 2

- Elevation Design

Software used:

Cad

- Photoshop

up

Auto
Sketch

PORT SAID HERITAGE BUILDING RESTORATION

- Project Concept: The project concept is to make the user live the experience of merging the old with the new and Exploit the heritage façade and the balcony in it as a Heritage place to visit. The contrast strategy used to assure the existence of the heritage building by designing modern style with heritage facade so that it form a background for the heritage building that contrasts with and emphasizes it.

Materials Used:

shots

Option 1 Restoration for the heritage building and redesign it from inside with keeping the heritage façade as in the past

Elevation

-
- Conceptual
Steel Stairs Glass -
-
The Current ElevationThe Proposed Elevation

BUILDING

the heritage building

from inside with keeping the heritage façade as in the past

PORT SAID HERITAGE
RESTORATION
Ground Floor Plan
First
Floor Plan
Second
Floor Plan
Third Floor PlanFourth Floor PlanFifth Floor Plan - Option 1 Restoration for
and redesign it
- Plans

PORT SAID HERITAGE BUILDING RESTORATION

- Option 2 Restoration for the heritage building and redesign it from inside with keeping the heritage façade as in the past and also adding new building to it.

Plans

Ground Floor Plan

Floor Plan

The Heritage Building

The site for the new building

Typical floor Plan

The Proposed Elevation

Second Floor Plan

-
First

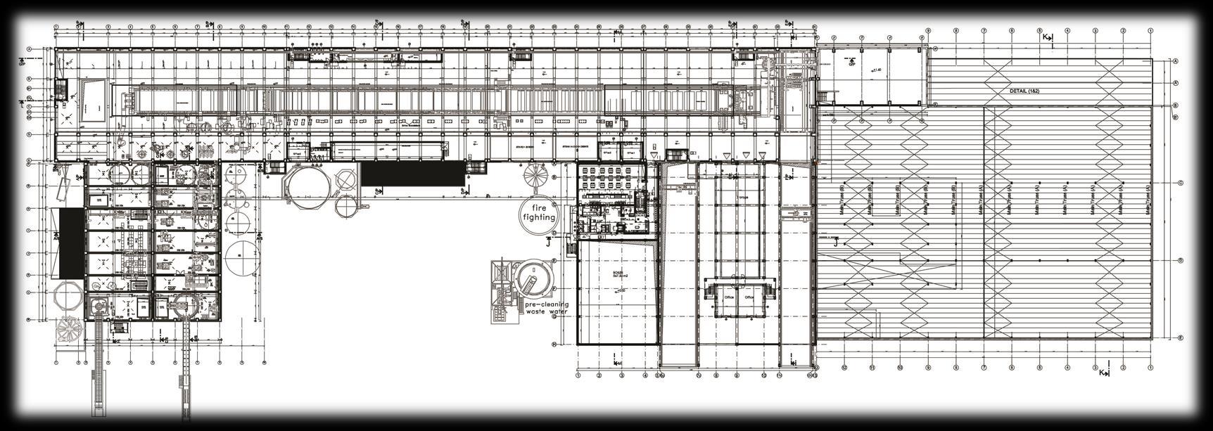
ANDRIAAND GEORGE

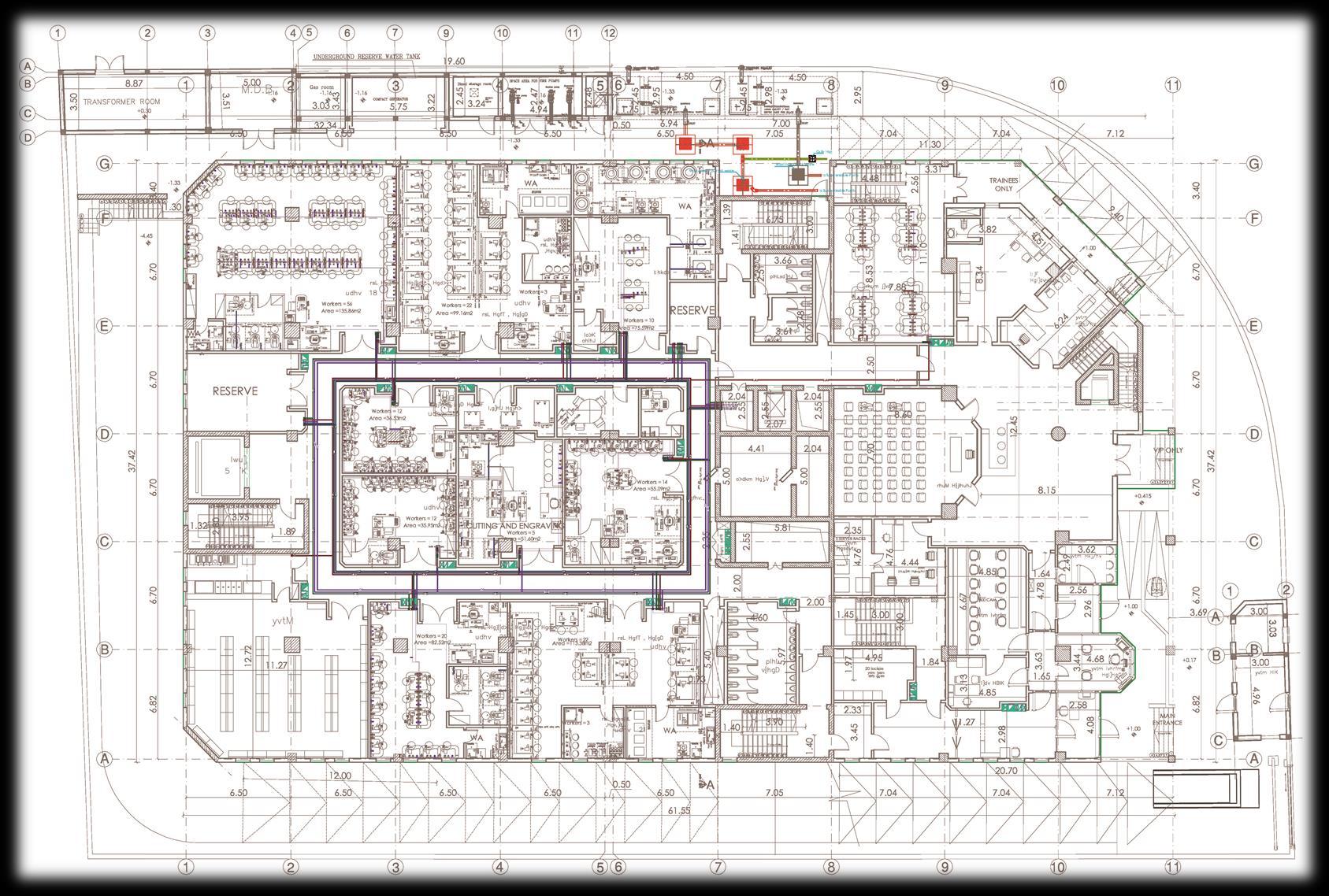
GOLD FACTORY

Location: Egypt, Qalyubia Governorate El-Obour City Year: 2021 In Progress Consulting Office: Bit-Design Category: Industrial Project Project Brief: Designing a gold factory with design and security standards.. Role in the project: - Plans design - 3D shots (proposal) - Infrastructure drawings Software used: - Auto Cad - 3D Max - Photoshop

First

Ground floor

Second

AGG Factory / Architecture Plans
-1 Basement Floor
Floor
Floor
Plan Detail AGG Factory / Infrastructure - Electricity
Plan Detail AGG Factory / Infrastructure - Pluming
plan Detail AGG Factory / Infrastructure - Pluming
Plan Detail AGG Factory / Infrastructure - Gases
Plan Detail AGG Factory / Infrastructure - CCTV

AGG

Factory 3D Shots (Proposal)

AGG

Factory 3D Shots (Proposal)

AGG

Factory 3D Shots (Proposal)

AGG

Factory 3D Shots (Proposal)

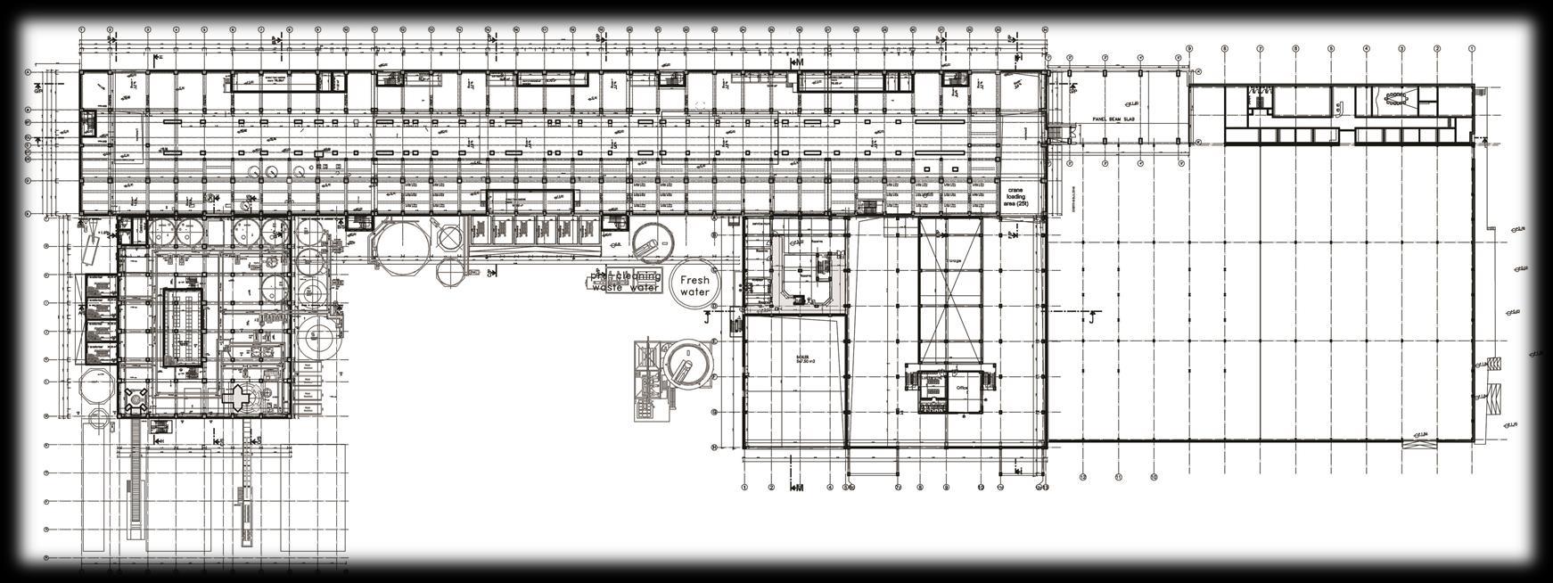
GREEN LINER FACTORY

FOR PAPER RECYCLING

Location: Egypt,Al Sharkaya Governorate

th of Ramdan city

Year: 2020 In Progress

Office: Bit-Design

Industrial Project

Role in the project:

Plans design

Coordination between German Consultant Offices BHM and Mconsult to organize the architecture plans with the machines.

drawings

Software used:

Auto Cad

10
Consulting
Category:
-
-
Infrastructure
-

Green liner Factory for Paper Recycling

Level +3.02 Level +6.50 Ground floor ± 0.00 Plans

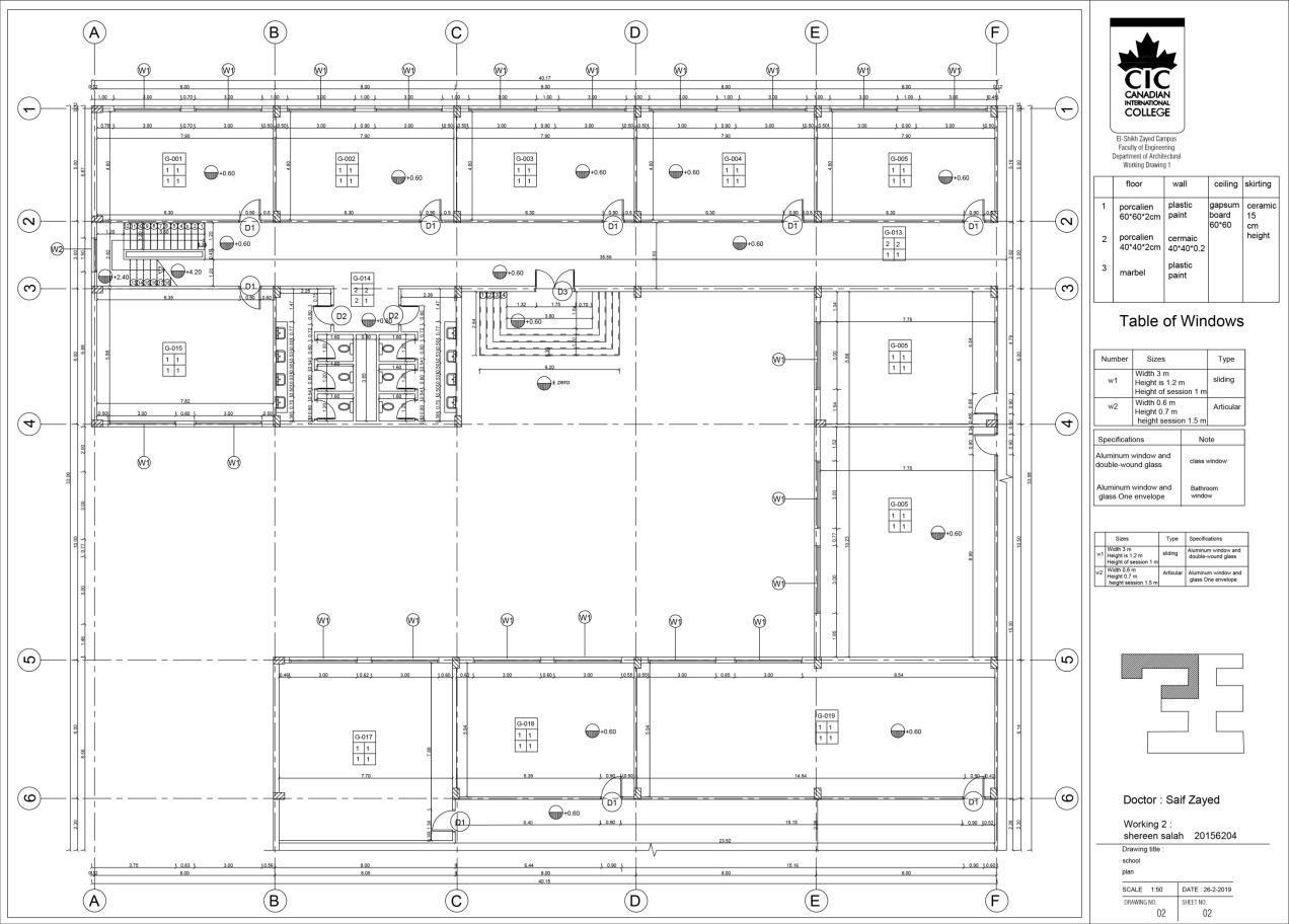
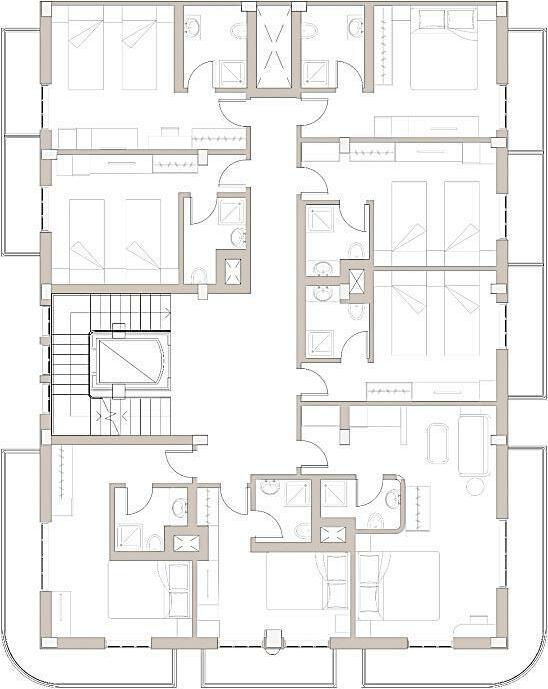
FACULTY OF LAW

SAID UNIVERSITY

Location: Port Said Governorate Year: 2021 In Progress

Consulting Office: Bit-Design Category: Educational Project

Project Brief: Designing new Faculty of Law at Port Said University taking into consideration all the design standards for educational buildings.

Role in the project: - Plans Design

Software used: - Auto Cad

– PORT

Faculty of law

Port said university

Ground floor / Typical First floor

Second floor Typical third floor

Plans

INTERIOR DESIGN

Freelancing work

Location: Cairo Year: 2022 Category: Interior design Role in the project: 3D Shots for Reception and Livingroom Software used: Auto Cad - 3d Max
Location: Cairo Governorate Year: 2022 Software used: 3D Max INTERIOR DESIGN Reception Design Freelancing work
Location: Cairo Governorate Year: 2022 Software used: 3D Max INTERIOR DESIGN Reception Design Freelancing work
Location: Cairo Governorate Year: 2022 Software used: 3D Max INTERIOR DESIGN Livingroom Design Freelancing work
Location: Cairo Governorate Year: 2022 Software used: 3D Max INTERIOR DESIGN Livingroom Design Freelancing work
Location: Cairo Governorate Year: 2022 Software used: 3D Max INTERIOR DESIGN Livingroom Design Freelancing work

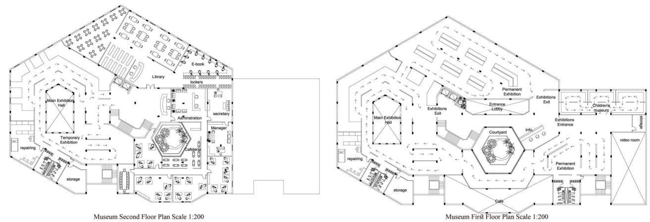
ACADEMIC WORK

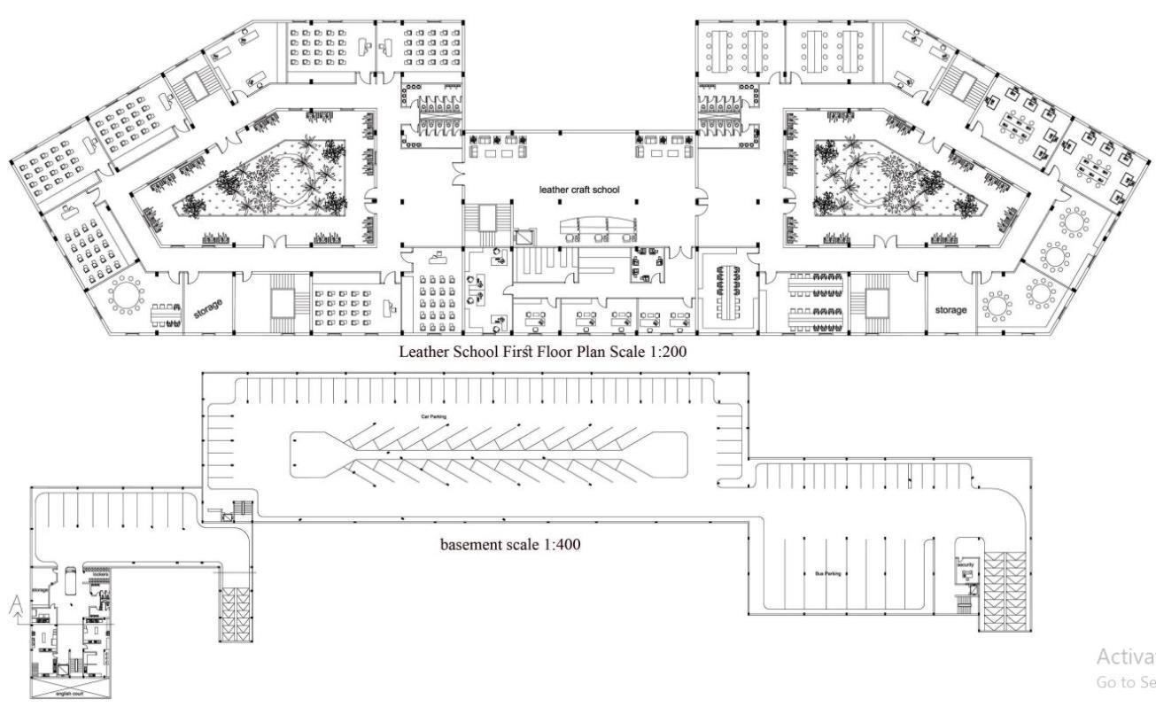
GRADUATION PROJECT

Cultural Node)

Location: Cairo Governorate

Year: 2020

Project Brief: The project aim is to revive that hidden heritage and history and telling the story of that important building.Also the site was the center of tannery industry it has been laying in Magra El Oyoun since the Fatimid era. The government is relocating the Tannery industry; thus the project attempts to foresee the area’s urban renewal scheme. The propose focuses on how it can assist employment generation and strengthening the skills of the workers so the project will be a historical site rich with local crafts generally leather craft which will attract tourists and rise the economy.

Software used: - Auto Cad - 3D Max Photoshop Revivalism of sour magra al-oyon zone (MagraAl-Oyoun
GRADUATION PROJECT(Revivalism of sour magra al-oyon zone (MagraAlOyoun Cultural Node) Studies

magra

Oyoun Cultural Node)

The aim of the project is to revive the hidden history of the place that surrounded by informal houses and rubbish.

Zoning

Project Layout:

The project contain a tourist walkway with bazars and cycling lanes.Also there is abridge to make people across the metro line found in this zone to make them transfer from the cultural area to the crafts center area.

Software Programs: 3ds max with vray - photoshop

GRADUATION PROJECT(Revivalism of sour
al-oyon zone (MagraAl-
GRADUATION PROJECT(Revivalism of sour magra al-oyon zone (MagraAlOyoun Cultural Node) Master plan

sour

GRADUATION PROJECT(Revivalism of
magra al-oyon zone (MagraAlOyoun Cultural Node) plans
Project Sections and Elevation Presentation: Photoshop GRADUATION PROJECT(Revivalism of sour magra al-oyon zone (MagraAlOyoun Cultural Node)
GRADUATION PROJECT(Revivalism of sour magra al-oyon zone (MagraAlOyoun Cultural Node)
GRADUATION PROJECT(Revivalism of sour magra al-oyon zone (MagraAlOyoun Cultural Node) Night shoots show the aqueduct and the entertainment area behind it Hologram show on the aqueduct
The cafes and tourists walkway in front of the aquaduct software: 3ds max - vray - photoshop
GRADUATION PROJECT(Revivalism of sour magra al-oyon zone (MagraAlOyoun Cultural Node)
Exterior shots Modern villa software: 3ds max – vray - photoshop
Exterior shots Modern villa software: 3ds max – vray - photoshop

Training

Exterior shots classical villa software: 3ds max vray photoshop
Vision
Architects Consulting
Office

Training

Exterior shots - classical villa - software: 3ds max – vray - photoshop
VisionArchitects Consulting Office

Training

Exterior
shots - classical
villa
- software: 3ds max –
vray
-
photoshop
VisionArchitects Consulting Office

Training

Exterior shots
-
classical villa
-
software: 3ds max vray
-
photoshop
VisionArchitects Consulting Office

Training

Exterior
shots - classical
villa
- software: 3ds max –
vray
-
photoshop
VisionArchitects Consulting Office

Training

Exterior shots
-
classical villa
-
software: 3ds max
vray
-
photoshop
VisionArchitects Consulting Office
Interior shots software: 3ds max vray - photoshop
Interior shots software: 3ds max vray - photoshop

Nubian hospital project

Nubian hospital project

3d Max

Elevation
presentation : photoshop

Working

drawings

Working

drawings

Working

drawings

Working

drawings

Manual

sketches
Manual Work

THANK YOU

Turn static files into dynamic content formats.

Create a flipbook
Issuu converts static files into: digital portfolios, online yearbooks, online catalogs, digital photo albums and more. Sign up and create your flipbook.