Shenyuan Li Portfolio 2024

Page 1

Building System Integration- Cecil Way Lab

Community Thinking- Library

Pg.2-7

Pg.8-13

Pg.14-17 Environment- Stack Ecology

Pg.18-21

Pg.22-25

Pg.26 Competition Project

Urban Planning- Reimagine a City

Pg.27 ACADIA Publication

AI Integration- Reimagine Capsule Tower

1
JimmyLi portfolio
2

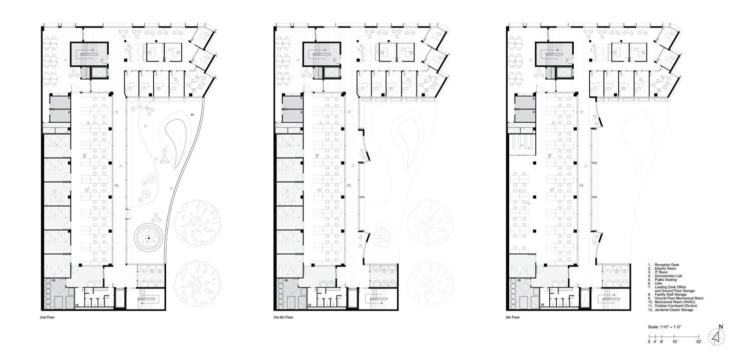
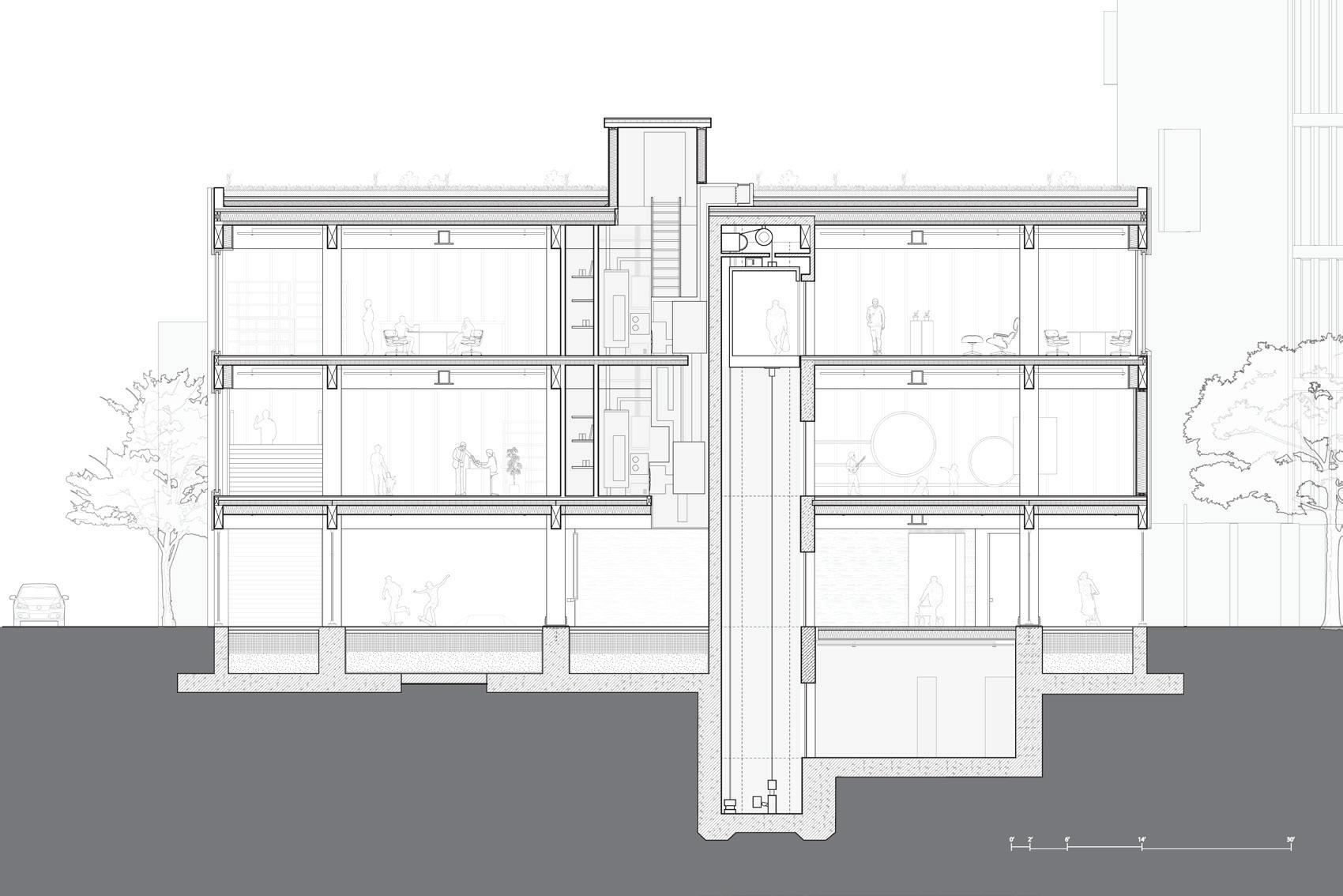
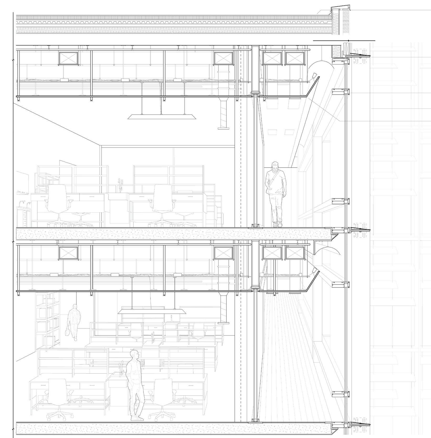
120 Cecil Place Pittsburgh, PA

Laboratory facilities are typified as being rational, modular buildings which act as extensions of the activities and instruments they contain. Large consumers of energy to support research and ensure the safety of their human occupants, the building is designed witth thoughtful arrangement of space and systems.

Collaboration with: Jai Bhatnagar, Dickson Yau

3
4

View Display

The Lab offers fantastic views for the researchers while accomplishing science on display, welcoming the curiouity of a passer-by and creating palpable excitment circulating the building. and

5
6
7

Architecture & Human Interaction

8

A Place for People

The project is positioned to benefit the neighborhood, serving as a catalyst for urban interaction and revitalization in the local area. Its primary objective is to enhance the community by reclaiming a vibrant and functional public street space for the residents. The project functions as a dynamic creative workspace, fostering interaction among diverse groups of people.

Situated within a densely populated mixed commercial and residential urban context, the library fosters urban and social interaction. Additionally, it serves as a mediator, bridging the gap between the dynamic urban environment and the serene cemetery.

619

Dorchester

Library

9
Columbia Rd, Dorchester, MA
02125
10

The North end is a dynamic playground to spark movements and the south side is static, offering peace and rest. Together, the two outdoor spaces facilitate foot traffic through the building. It allows conversations to carry on by providing a sheltered space as well as intriguing elements to explore. At the same time, it welcomes actions to happen, making people themselves part of the view of the architecture.

11
12
13
14

INHABITING STACKED ECOLOGIES

This project is founded on the premise that architecture is a part of a larger planetary ecology and access to housing is a human right. Focused on architecture's response to the local environment, this project investigates conditions of aging infrastructure as a substrate for new forms of human and non-human habitation.

Considering projections of rising waters and extreme weather events, the site is located within a landscape ecology of perpetual flooding, along the north-eastern part of Pittsburgh's Allegheny River waterfront.

"The major problems in the world are the result of the difference between how nature works and the way people think"

Shell House Architecture as Ecomachine

15
A diverse ecosystem for organisms of all kinds. A renewable and sustainable environment. A living ecomachine. Washington Blvd Lckwy, Pittsburgh, PA 15206

With the ShellHouse, each housing unit's is driven by the ecomachines water collection and bioswale, feeding it and supplying the area with a new diverse ecosystem for organisms of all kinds. With the help of stormwater runoff nourishing the wetland, a renewable and sustainable environment is preserved.

The housing aggregation follows a literal interpretation of what a new architectural addition is; the tearing-apart of a pre-exisiting landscape to make way for an area with a new purpose. Like how fabric tears at seams, the housing units follow guides that split apart, which is further reinforced through the shape of the bioswale. The wetland islands draws path for water flow towards the river following the shape of the threads.

In the time periods when pittsburgh does not rain, the bioswale has the opportunity to gradually drain and provide another interactive experience where the wetland is dry. By slightly separating the housing units from being completely level with the wetland, occupants are encouraged to explore the landscape and the many seasonal experiences it can offer.

16
17

JOR City

Project metropolis builds upon an industrial complex through an imposition of a vertically layered city. This city seeks to minimize its occupied footprint to free up landscape for environmental rejuvenation and ecological healing from past industrial impacts. The occupiable levels are zoned to separate human activities from the lower-city through a hyperobject layer, mitigating hazards resulting from the intersection of human movement, industry, and infrastructure.

- reimagining city

Collaborators: Owen Zhang, Robert Yang

The upper city is configured for human inhabitation and leisure. Urban nucleuses are formed through overlays of concentric urban zones that connect with the orthogonal format beneath which guides the development of function below. This vertical design juxtaposes and reconfigures systems that conventionally collide or are segregated horizontally.

This hyperobject layer sets a new post-human condition that encompasses an autonomous industrial complex arranged in a gridded system. This reorganization of industry and infrastructure sets to increase density, and mediate activities in the upper city's with existing ground infrastructure through a spine-and-branch system. This mechanization allows for a new ground plane above to coexist and separate spaces for human interaction apart from industrial complexities and densification.

As technological advancements make manufacturing and infrastructure fully automated, the robotically enabled lower-city is in service for upper-city function. Operating through urban nucleuses, connections are created through the lower city that interacts with vertical circulation points. Industrial, rapid transportation, movement of goods, and utility systems such as energy, water, and ventilation works in parallel within the grid in new modes of networking of land and coastal forces.

19 Industrial 1 Train Station Industrial 2 Harbour Highway
Bird's eye QR Code for Phone VR
Highrise
20
Middle layer Structure System Diagram
21
Skylight Robotic Factory Human Transport Subway Station Industrial Complex Cargo Transport Water
Facility
22

Reimagine Capsule Tower

Through

AI

23
Image+Prompt Word Prompt + “Tile” This project utilizes AI tools to reimagine Capsule Tower. This process involves employing artificial intelligence to generate new iterations from hand sketches. AI is also employed in the generation of massing studies and facade massing. Subsequently, it utilizes AI to create facade textures by combining textual prompts with images to achieve precise materiality.
24
Greenery is integrated into the conceptual massing through an AI image remapping process.
floor plan generation. 25
AI

Epic Metal Competition

Third Place Winning Project

CFA Arts Pavilion

The Pavilion is located adjacent to the College of Fine Arts of Carnegie Mellon University; a structure and canopy covering an area of approximately 1,000 square feet marks the location of the School of Architecture's makerspace and storage units.

The structure is held up by an orthogonal glulam structure that is perpetually open for pedestrian traffic, and in the winter months, translucent polycarbonate is slid down to create an insulated work environment. The Epic Metal ceiling decking is hung by a tensile steel structure and further supported by glulam beams underneath. The storage unit is held up by a wooden substructure mounted on sliders on said beams for ease of movement around the workshop.

Above the pathway between the workspace and CFA, steel bolts and plates hold up a parametric 3D-printed roof system to protect moving pieces and models and for ease-of-access to the School of Architecture woodshop.

Collaboration with:

Movable Storage Custom Space with Epic Metal Deck Rail Details Tensile Wood Facade Rainwater Collection Translucent Polycarbonate MetalDeck Vertical Sliding Facade for Weather Protection Full Enclosure 26
27 works on ACADIA
"
"

Jimmy Li

https://issuu.com/shenyuanli/docs/li_2023_portfolio_high_quality

EXPERIENCE

Stantec,Pittsburgh-InternArchitect

Stantec,Pittsburgh-InternArchitect

May2023-August2023

May2023-August2023

2533 Wharton Street, Pittsburgh, PA, 15203 949-887-7397

shenyuanli0316@gmail.com

AssistedMainArchitectinDrawingSets:Providedvaluablesupporttothemainarchitectbyassistinginthe preparationofpermitsets.Coordinatedwithengineersandbuildingenvelopespecialiststodevelopdetailed drawings,andcollaboratedcloselywiththearchitecturalteamtorectifyerrorsandimprovedrawingsets.Workedon schematicdesign,designdevelopment,andconstructiondocuments.

AssistedMainArchitectinDrawingSets:Providedvaluablesupporttothemainarchitectbyassistinginthe preparationofpermitsets.Coordinatedwithengineersandbuildingenvelopespecialiststodevelopdetailed drawings,andcollaboratedcloselywiththearchitecturalteamtorectifyerrorsandimprovedrawingsets.Workedon schematicdesign,designdevelopment,andconstructiondocuments.

ScienceFacilityPlanning:Developedandoptimizedlaboratorylayouts,consideringfactorssuchasworkflow, equipment placement,safety,andaccessibility.Createdfunctionalandefficient floorplans.Workedwithinalimited budgettoproposeadesignthatoptimizedthearchitecturalconditions,activelytryingtobenefitthecommunity.

ScienceFacilityPlanning:Developedandoptimizedlaboratorylayouts,consideringfactorssuchasworkflow, equipment placement,safety,andaccessibility.Createdfunctionalandefficient floorplans.Workedwithinalimited budgettoproposeadesignthatoptimizedthearchitecturalconditions,activelytryingtobenefitthecommunity.

InteriorDesign:Selectedandsubmittedevaluationforappropriatematerials, fixtures,andequipmentforprojects, takingintoaccountdurability,sustainability,andthespecificneedsofresearchorexperimentation.

InteriorDesign:Selectedandsubmittedevaluationforappropriatematerials, fixtures,andequipmentforprojects, takingintoaccountdurability,sustainability,andthespecificneedsofresearchorexperimentation.

Collaboration:Workedcloselywiththeteamandstakeholderstounderstandtheirrequirementsandtranslated themintodesignsolutions.Developeddesignofproposalsforsignificantprojectswithintheorganization.

Collaboration:Workedcloselywiththeteamandstakeholderstounderstandtheirrequirementsandtranslated themintodesignsolutions.Developeddesignofproposalsforsignificantprojectswithintheorganization.

EPIPHYTELab,Pittsburgh-InternArchitect

EPIPHYTELab,Pittsburgh-InternArchitect

June2022-August2022

June2022-August2022

ComputationalModelingandMaterialResearch:Collaboratedwiththeteaminconductingextensive computationalmodelingandresearchonmaterials.Thisinvolvedexploringinnovative3Dprintingtechniquesand theirapplicationindesigningfurniturescalemodels.

ComputationalModelingandMaterialResearch:Collaboratedwiththeteaminconductingextensive computationalmodelingandresearchonmaterials.Thisinvolvedexploringinnovative3Dprintingtechniquesand theirapplicationindesigningfurniturescalemodels.

PhysicalPrototyping:Playedapivotalroleinthephysicalprototypingprocess,translatingdigitaldesignsinto real-worldprototypes.Involvedinmaterialselection,testing,andtheexecutionofintricatedesignconcepts.

PhysicalPrototyping:Playedapivotalroleinthephysicalprototypingprocess,translatingdigitaldesignsinto real-worldprototypes.Involvedinmaterialselection,testing,andtheexecutionofintricatedesignconcepts.

ACADIAPublication:Participatedinthepreparation andpublicationofresearch findingsanddesigninsights, contributingtotheacademicandprofessionaldiscourseinthe fieldofarchitectureanddesign.

ACADIAPublication:Participatedinthepreparation andpublicationofresearch findingsanddesigninsights, contributingtotheacademicandprofessionaldiscourseinthe fieldofarchitectureanddesign.

NewModelDevelopment:Activelycontributedtotheongoingdevelopmentofinnovativedesignmodels,helping toshapethedirectionofprojectsandstayattheforefrontofdesigntrendsandmethodologies.

NewModelDevelopment:Activelycontributedtotheongoingdevelopmentofinnovativedesignmodels,helping toshapethedirectionofprojectsandstayattheforefrontofdesigntrendsandmethodologies.

JUNYIInformationTechnologyCo.Ltd.,Shenzhen-InternDesigner

JUNYIInformationTechnologyCo.Ltd.,Shenzhen-InternDesigner

May2021-August2021

May2021-August2021

FloorPlanProduction:Produceddetailed floorplans,providingclearandaccuratevisualrepresentationsofthe officelayout.

FloorPlanProduction:Produceddetailed floorplans,providingclearandaccuratevisualrepresentationsofthe officelayout.

InteriorDesign:Playedapivotalroleingeneratinginteriorrenderingsthathelpedstakeholdersvisualizethe proposeddesignchanges.Involvedinmaterialselection,ensuringthatchosenmaterialsalignedwiththeproject's vision,andcontributingtoacohesivedesignconcept.

InteriorDesign:Playedapivotalroleingeneratinginteriorrenderingsthathelpedstakeholdersvisualizethe proposeddesignchanges.Involvedinmaterialselection,ensuringthatchosenmaterialsalignedwiththeproject's vision,andcontributingtoacohesivedesignconcept.

VisualDesign:Contributedtothevisualdesignandimprovementofthecompany'smarketing,enhancingits appeal. Createdacohesiveandprofessionalimageforthecompany.

VisualDesign:Contributedtothevisualdesignandimprovementofthecompany'smarketing,enhancingits appeal. Createdacohesiveandprofessionalimageforthecompany.

CarnegieMellonUniversity, Pittsburgh

CarnegieMellonUniversity, Pittsburgh

DoubleMajorinArchitecture,BusinessAdministration

DoubleMajorinArchitecture,BusinessAdministration

August2019-May2024

August2019-May2024

EDUCATION SOFTWARES

AutoCAD Grasshopper

Keyshot

Revit

Rhinoceros 3D

Excel

Microsoft Suite

R Studio

Bluebeam Climate Studio

Photoshop Illustrator

InDesign

Premiere Pro

Figma

AWARDS

Epic Metals Competition (3rd Place)

CMU Dean’s List (2019- 2023) University and College Honors

CURRICULUM

Digital Media & Drawing Materials and Assembly Building Physics

Environment I & II: Climate and Energy in Architecture Management Game

28

Turn static files into dynamic content formats.

Create a flipbook
Issuu converts static files into: digital portfolios, online yearbooks, online catalogs, digital photo albums and more. Sign up and create your flipbook.
Shenyuan Li Portfolio 2024 by shenyuan li - Issuu