Skip to main content

求職作品集-林聖哲

Page 1

PORTFOLIO

/ Emotional ×
Sheng Zhe Lin
Rational
Interior Design Academic & Interests
CONTENTS
� HYPERSTATION-無痕充電棧 /複合式商業空間設計
� 剪・黏-LG 台北辦公室 /辦公空間設計 PROJECT � 流光濾曲-與海共生的海洋仿生學 /展場設計 RESUME 個人簡歷 空間介紹影片 空間介紹影片 �� �� �� ��
PROJECT
PROJECT

CONTACTS

關於我 ABOUT ME

享受思考設計的過程,將生活中的種種元素轉換成設計的靈感, 亦或是反覆咀嚼文學方面的道理,並內化使其成為思考設計的養分; 在設計進行的過程中,樂於跟他人分享想法、交流意見,激盪出 更多不同的火花,讓設計變得更加完善,更加創新。

興趣方面很廣泛,喜歡各種類型的電影與展覽, 喜歡上山下海,發現不一樣的風景,也喜歡探索美食。

這些興趣源源不斷的提供著做設計的養分,滋養著我的思考邏輯、 美感與空間概念的發展,有好的生活,才會有好的設計。

關於設計 ABOUT DESIGN

我認為一個好的設計師,能充分瞭解業主的需求,並且為其量身打造 一具美感的空間,追求的是「漂亮的解決問題」。

Resume. 林聖哲 ����/��/�� ���������� 新北市 zhe����@gmail.com
/

學歷 EDUCATION

2019-2023

中原大學室內設計學系 畢

Department of Interior Design

Chung Yuan Christian University

獎項 AWARD

Steven Leach

《Student Design Excellence Award》

李肇勳室內設計優秀青年卓越設計獎

第二名 / Steven Leach

《Student Design Excellence Award》

李肇勳室內設計優秀青年卓越設計獎

People’s Choice Award ( Best of Social media marketing ) /

International Interior Design Exhibition 2022

Spatial Category Superjury Nominee

學經歷 EXPERIENCE

五系聯合迎新宿營 總召 2021

◆團隊領導

◆協調溝通

◆危機處理

歐渥克室內裝修 2021暑期實習

Steven Leach Associates SL+A (李肇勳室內設計) 2022暑期實習

技能 SKILLS

專業證照 LICENSE

建築物室內裝修工程管理乙級技術士

/��

流光濾曲-與海共生的海洋仿生學

台北市科學教育館『仿生展』展示設計

期許觀展者能夠在展中體驗到大自然的智慧,以及海洋仿生科技是如何影響我們的日常生活、如何運用於未來人類的生活。

由「與海共生」的主題,認知到全球暖化的嚴重性,進而提高參觀者對保護環境的意識。

期許觀展者能夠在展中體驗到大自然的智慧,以及海洋仿生科技是如何影響我們的日常生活、如何運用於未來人類的生活。

/��
由「與海共生」的主題,認知到全球暖化的嚴重性,進而提高參觀者對保護環境的意識。

設計概念

全球暖化造成海平面上升,因此讓人類居住空間越來越少 「到了 2050 年,世界上最大的 10 個城市中,有 9 個將面臨海平面上升。 海洋決定了我們的命運,但也可能是我們的未來。」

Sheng Zhe Lin Portfolio ����-����

與海共生

在不傷害海洋生態系統的前提下達到人類和海洋共生共存的設計目標,解決住房短缺 和海平面上升帶來的威脅。

與海共生定義 生存 生命 生活

策展單元 食 衣 住 行 育 樂

育樂

食衣住行

藉由展覽的參觀及利用設計手法的 運用達到充實知識、提升自我, 進而達到自我需求及自我實現

認識仿生設計的自然 科學應用對日常生活 的助益

/��

透過半透明的材質搭以空間燈光的渲染呈現出海水清透的意象,營造出沉浸式的體驗 空間,彷彿置身於海底世界中。

並且經由玻璃、中空板所透出的光線,以及塗料、水膜與仿生皮層材質給予的觸感來 滿足參觀者五感體驗中的視覺與觸覺體驗。 / 空間中曲線的動線規劃配置無既定的行走限制,參觀者可於空間中自由穿梭,彷彿徜 徉於同樣自由的海洋中,但藉由策展的分區規劃,參觀者從入口逐漸移動到出口時仍 會藉由展覽資訊與不同的空間體驗感受到情緒與心境的渲染轉變。

Sheng Zhe Lin Portfolio ����-����
藍色漸層玻璃 中空板 特殊塗料 PVC 透明塑料水膜 仿生皮層材質
材質計畫&動線規劃
/��
8F空間 7F空間

平面配置圖

Sheng Zhe Lin Portfolio ����-����
8F平面配置圖

空間中曲線的動線規劃配置無既定的行走 限制,參觀者可於空間中自由穿梭,彷彿 徜徉於同樣自由的海洋中,但藉由策展的 分區規劃,參觀者從入口逐漸移動到出口 時仍會藉由展覽資訊與不同的空間體驗感 受到情緒與心境的渲染轉變。

/��
8F 天花配置圖

平面配置圖

Sheng Zhe Lin Portfolio ����-����
7F平面配置圖

7F 天花配置圖

於空間中挑空處做了水盤、水膜的設計作 為此次的空間亮點,結合水光漫射的效果 達到營造沉浸式體驗的目的,並且借助坡 道的動線設計,創造出垂直視線的交流。

/��

空間立面圖

AA’剖立面圖

BB’剖立面圖

Sheng Zhe Lin Portfolio ����-����

CC’剖立面圖

DD’剖立面圖

/��
Sheng Zhe Lin Portfolio ����-����
空間爆炸圖 空間亮點

曲面動線與量體

沉浸式空間投影

/�� 交叉流過濾空間體驗
Sheng Zhe Lin Portfolio ����-���� 觸覺牆體驗 濾食意象-地坪與燈光 浮光量體呼應漂浮城市主題文本 空間亮點
/��
空間爆炸圖
Sheng Zhe Lin Portfolio ����-����
/��

HYPERSTATION-無痕充電棧

現今人類科技的日新月異,卻引發了破壞環境的問題,因此減緩全球暖化的氣候危機成為了重要議題; 同時間,全球政策一致推動淨零轉型,油車轉型電車,更是值得被注意的焦點。

在燃油車逐漸轉型為電動車的過程中,相對應的加油站逐漸轉型為充電站必定是勢在必行,

/

現今人類科技的日新月異,卻引發了破壞環境的問題,因此減緩全球暖化的氣候危機成為了重要議題; 在燃油車逐漸轉型為電動車的過程中,相對應的加油站逐漸轉型為充電站必定是勢在必行,因此,此設計將探討當電車充能時,人與空間的關係。

/��

設計背景

01 放眼世界

為達成《巴黎氣候協定》承諾,歐洲

必須在 2028 年禁止銷售新的燃油車

及油電車,而全球其他地區,則必須

在 2030 年以前達成。

02 聚焦臺灣

在2022永續設計行動高峰會中,蔡 英文總統宣示「2050淨零轉型是全 世界的目標,也是台灣的目標」

推動了《溫室氣體減量及管理法》的 修法工作,將「2050年淨零排放」 的目標入法。

Sheng Zhe Lin Portfolio ����-����

03 政策推動

經濟部於2021年推動「公共充電樁 建置計畫」,首階段目標是2025年 在全台建置7,200個慢充、600個快 充,合計達7,800個。

04 造成效益

台灣電動車登記數呈現逐年上升 趨勢,五年內電動車登記數成長約 18倍。

/��

設計概念

現代電動車使用者常為車輛的電力問題感到困擾,甚至產生里程焦慮

。對於車輛剩餘可行駛距離的焦慮感,正如在黑夜中迷失方向的航船 ,此時 HYPERSTATION 的存在正如燈塔,為內心焦灼的人們指引方 向,使人心緒安寧,不再憂慮。

Sheng Zhe Lin Portfolio ����-����

將地面層以上之量體設置為透光之 量 體,由此營造出燈塔之意象,使 HYPERSTATION 成為城市或郊區中 的「療癒點」,一個同時給予車輛和 使用者回復能量的充電棧。

/��

情感回饋-From Emotion to E-MOTION

期許 HYPERSTATION 可以作為一個能同時為車輛以及使用者補充能量,並且可以充分療癒身心、紓解壓力的場域, 成為陸上的燈塔,給每個迷途的靈魂帶來安心感。

保留了基地中原有加油站的位置,將其轉型為超級充電站, 直接對應至能源轉型的設計議題,並置入一長形發光量體於原有基地分散的各個建築體之上,既作空間整合,也呼應陸地燈塔的設計概念。

Sheng Zhe Lin Portfolio ����-����
/

可以作為一個能同時為車輛以及使用者補充能量,並且可以充分療癒身心、紓解壓力的場域,

直接對應至能源轉型的設計議題,並置入一長形發光量體於原有基地分散的各個建築體之上,既作空間整合,也呼應陸地燈塔的設計概念。

/��

設計設想_電車超充站兼微型服務區

服務機能串連垂直空間,讓趕時間的使用者在充電的同時可以在車邊直接進行簡單的 購物,更加符合快節奏的未來生活。

Sheng Zhe Lin Portfolio ����-����

設計策略

HYPERSTATION_郊區型 空間定位 : 微型渡假村

HYPERSTATION_都市型 空間定位 : 販賣機樣式

TA

客群鎖定未來老舊社區住戶、沒有車位的住戶、租房族、管委會不同意興建充電裝者、 長短途行駛之過路客 等。

/��

設計手法-Retail Strategy

Sheng Zhe Lin Portfolio ����-����

商品零售通道

管道直徑 : 50 CM

運行方式 : 藉由與手機軟體之連動點餐並透過隱藏於天花的倉儲系統出貨。

簡易商務包廂

管道直徑 : 150 CM

運行方式 : 提供簡易空間做商務聯絡用途,圓管之壁面使用電控玻璃,可 視需求調整可視度。

/��

設計手法-Environmental Strategy

Sheng Zhe Lin Portfolio ����-����

室內植栽通道

管道直徑 : 200 CM

運行方式 : 為室內空間妝點綠意,同時起到調節氣溫、濕度與光線的作用。

瀑布洗手通道

管道直徑 : 視環境需求

運行方式 : 管道內設置全時活水系統,並依使用者人因尺度調整開口高低位置。

/��
Sheng Zhe Lin Portfolio ����-����
HYPERSTATION_郊區型 1F平面圖
/�� HYPERSTATION_郊區型
2F平面圖

HYPERSTATION_都市型 1F平面圖

Sheng Zhe Lin Portfolio ����-����
/��
HYPERSTATION_都市型 2F平面圖

HYPERSTATION_郊區型 外觀立面圖

HYPERSTATION_都市型 外觀立面圖

將地面層以上之量體設置為透光量體,由此營造出燈塔之意象,使HYPERSTATION 成為城市或郊區中的「療癒點」,一個同時給予車輛和使用者回復能量的充電棧。

Sheng Zhe Lin Portfolio ����-����
/��
Sheng Zhe Lin Portfolio ����-����
/��

剪・黏-LG電子 台北辦公室

在國際企業的台灣辦公室中融入在地傳統文化,以全球在地化的概念作為此設計的亮點。 /

萃取傳統文化的精隨 ,與企業精神的相似處做碰撞融合,以串聯國際企業文化與本土情感的連結。

/�� 在國際企業的台灣辦公室中融入在地傳統文化,以全球在地化的概念作為此設計的亮點。
,與企業精神的相似處做碰撞融合,以串聯國際企業文化與本土情感的連結。

企業分析

•創立於1947年

•經營理念 :

人和團結、開拓精神、研究開發 創造價值、正道經營

• L ife’s G ood

商標解析

圓圈中的字母,反白的字母L構成人的鼻子, 反白的字母G以3/4的圓構成臉的輪廓,

左上角的小圓點代表眼睛。通過點、線、面 ,整個標識將世界、未來、年輕、人類、技術

5個概念和情緒形象化成一張微笑的臉。

字母L和G擺在外圓的內部,代表著LG

以人為本的理念,同時也表示著LG為

拉近與全球客戶之間的關係的努力。

紅色為主要色系,代表著我們的友好

,也強烈地表達了LG傳遞最佳成果的承諾。

Sheng Zhe Lin Portfolio ����-����

設計概念

以台灣廟宇建築傳統技藝-剪黏文化

做設計的發想,解構出剪黏文化的精神 ,並且串聯品牌理念,將公司夥伴們的

向心力、創造力「剪黏」在一起,營造出 能不斷互相激盪出創新想法的辦公空間。

LG以倫理經營 為基礎,通過 不斷的培養 實力,發展 取得成功。

LG透過創新科技 、技術先鋒,持續 成長為一個快速 發展、更明智的 全球品牌。

全球化、未來、能源 、人性化和科技是LG 建立的理念,大寫

字母 L 和 G 在圓圈 中代表了我們將“人 性化”做為中心考量。

LG 了解並貼近 消費者的需求, 透過不斷創新來 提供生活最佳 解決方案,為您 帶來更美好的 質感生活。

/��
剪黏 文化 企業 精神 正派 經營 開拓 精神 人和 團結 創造 價值
基底 破碎 聚合 重獲新生

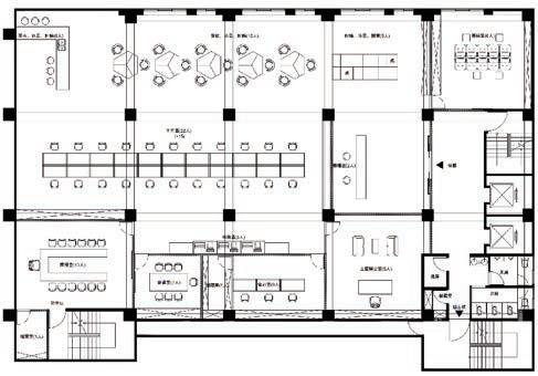
配置計畫

以明確的空間切割界定出不同的機能區域

Sheng Zhe Lin Portfolio ����-����
開放 封閉 直接 間接 工作區 休息/用餐/討論區 等待室 接待區 主管辦公室 資料室 簡報室 會議室 事務區 會計室 儲藏室 服務空間 會議與辦公室區域 正式工作區

材質與色彩計畫

色彩計畫以代表著企業的友好的紅色 為主 , 材質配置方面帶入剪黏文化 概念 , 以不同材質的拼接為空間 帶來更生動的變化 。

/��
Sheng Zhe Lin Portfolio ����-����
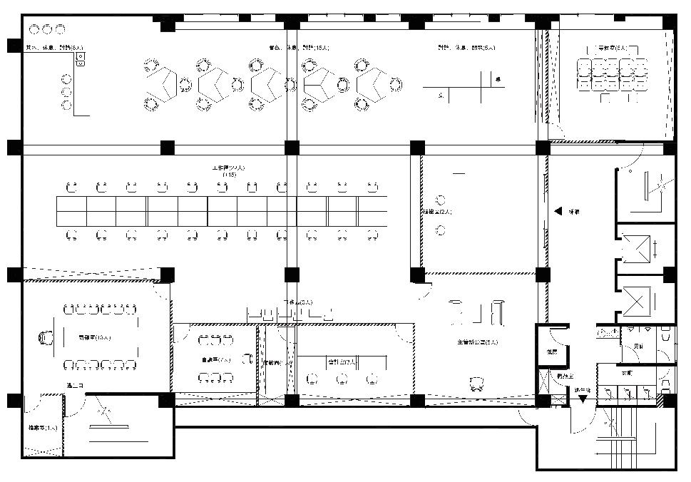
平面配置圖

天花配置圖

/��
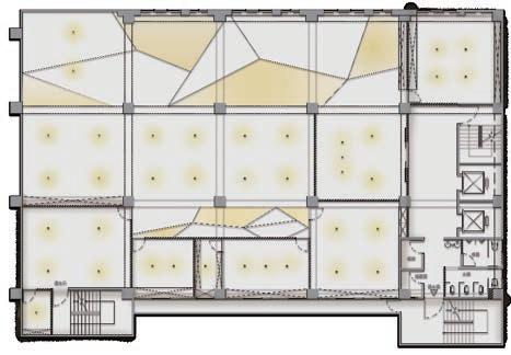
照明設計同樣延伸剪黏文化之概念,將天花分割後做造型流明天花 , 與牆面的設計做整合 。
Sheng Zhe Lin Portfolio ����-����
AA’立面圖 BB’立面圖 CC’立面圖 DD’立面圖
/�� A A’ C
B
D
C’
B’
D’
Sheng Zhe Lin Portfolio ����-����
/��
THANK YOU CONTACT INFORMATION PHONE : ���������� EMAIL : zhe����@gmail.com

Turn static files into dynamic content formats.

Create a flipbook