A R C H I T E C T U R E P O R T F O L I O



![]()
A R C H I T E C T U R E P O R T F O L I O



GRADUATE ARCHITECT
9986671899
sheetalmayanna31@gmail.com
jnanabharathi bengaluru
Irecentlyreceivedmybachelorofarchitecturefrompesuniversityandlookingforachanceto usemyknowledgeandtalentsindesigntocontributetoprojectsthatinspireandimprovethe builtenvironment eagertoworkwithindustryexpertsandobtainpracticalexperience Ihave exceptional cooperative skills, a keen eye for details, a will to learn new things and possess differentarchitecturesoftwareskills.
June - dec 2023
studio archesign
internship
autodesk autocad
sketchup
Revit
Power Point
Adobe Photoshop
Enscape
MICROSOFT OFFICE
CANVA
Renderpub Workshop (renderpub team)
Motion Design And Animation (pixel
height studio)
undergraduate course pes college (2019 - 2024)
bachelors in architecture
pre university kle ind pu College (2017 - 2019)
acedemic excellence in science (pcmb)
high school
V V S Sardar Patel High School (2014 - 2017)
Creativity
Flexibility
Responsibility
Team coordination
Presentation
English Kannada
Hindi
TRANSIT HUB (BUS TERMINAL)
MISCELLENEOUS 01 02 03 04 05 06
WORKING DRAWINGS

ELECTRA HEIGHTS (MIXED USE HIGH RISE)
MODERN ELEGANCE (ABODE DESIGN)
POND DESIGN (AQUASCAPING PROJECT)
INTERNSHIP WORK STUDIO ARCHESIGN 07
Site Area - 33,386 SQM
FAR – 4
Ground Coverage – 15,024
Permissible Built Up Area – 1,33,544
Site Location - Hebbal, Bengaluru
The site is located in a prime region and is prone to traffic but the Hebbal lake on the west side of the lake offers great views. Hebbal, a bustling locality in the city, has witnessed significant urban development, leading to an increase in population and transportation requirements. This project addresses these needs by providing a bus terminal facility that enhances connectivity, reduces congestion, and improves overall transportation infrastructure. Its primary function is to function as a bus terminal but it also houses commercial, a multiplex, co-working space, hospitatility, restaurant and multi level parking space

A concrete shell, also called “thin shell” concrete structure, is composed of a thin shell of concrete formed in such a way as to be self-supporting, often with no interior columns or exterior buttresses The shells are most commonly flat plates and domes
A design concept in architecture may start as a philosophy, a powerful idea, or a simple set of guidelines From there, it slowly evolves into a conceptual design for the project that becomes a roadmap or guide to follow throughout the rest of the project. A design concept is the basic DNA of a project
INITIAL STAGE


LATER STAGE





PLATFORM

INTRACITY ENTRY
INTERCITY ENTRY
BUSEXITS





TYPICAL COMMERCIAL FLOOR PLAN

OFFICE FLOOR PLAN

TYPICAL MULTIPLEX FLOO





Site area - 47,422.26sq m
FAR - 2.5sq m - 1,21,405sq m
Built up area - 1,18,550sq m
Road width - 18m
Ground coverage - 50% - 24,281sq m
Core - 14% of built up area - 17,000sq m
Site location - Electronic City Phase 1
The site is located in Electronic City Phase 1, the IT hub of Bengaluru, an enviable location exposed to major technology companies, educational institutions, healthcare facilities, and recreational hubs. Electra Heights is a mixed-use high-rise development that combines luxurious residences, offices, coworking spaces, entertainment, restaurants and cafes and vibrant retail spaces. It has been meticulously designed to offer a harmonious blend of comfort, convenience, and a vibrant community atmosphere.


Electra Tower, is designed in a way where it is undergone a transformation from its initial triangular concept into a visionary mixed-use highrise tower. The project's genesis began with a simple triangular design concept, inspired by the notion of creating a unique landmark in the everexpanding Electronic City Phase 1. The triangular shape represents stability, strength, and harmony, aligning with the vision to bring together diverse elements and create a cohesive community. The shift from a triangle to a high-rise tower opened up possibilities for an array of uses, including residential, commercial, and recreational spaces.

1 - VEHICULAR / SERVICE ENTRY
2 - VEHICULAR ENTRY (RESIDENCE)
3 - PEDESTRIAN ENTRY
4 - VEHICULAR ENTRY (RETAIL)
5 - WAY TO RAMP & DROP OFF (OFFICE)
6
7 - OFFICE VEHICULAR EXIT
(OFFICE)
8
VEHICULAR EXIT








The Abode Design Project is a residential space that exemplifies the artistry and attention to detail in modern interior design. The openconcept living area seamlessly connects the kitchen and dining spaces, promoting a sense of togetherness. Large windows and a backyard contribute to maximize natural light.
LIVING ROOM DINING ROOM


LIVING ROOM




INTERIOR VIEW FROM KITCHEN

INTERIOR VIEW TOWARDS BACKYARD


VIEW FROM BACKYARD











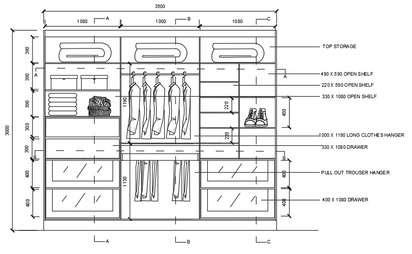
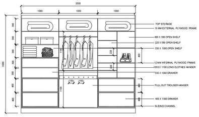
DRAWER RUNNER Source-wwwebayie

DRAWER RUNNER Source-wwwblogspotcom







DRAWER DETAIL
Source-wwwebayie

Source-wwwebayie





















Source-wwwpnterestcom-




Cabinet Drawer Runners
Source-wwwebayie
HARDWARES AND APPLIANCES USED






















































































































































































































































sheetalmayanna31@gmail