Polo_Tri-County_Press-05-10-2024

Page 1

POLO TRI-COUNTY PRESS

NEWS

Art on display

The Coliseum Museum opens its first juried art exhibit featuring 25 artists and 50 works of art / 5

SPORTS

High school roundup

Find out how local teams fared in baseball, softball, soccer and track and field / 10, 12-13

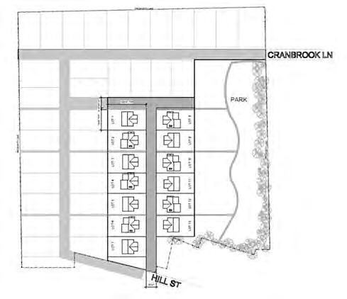
Hill Street Neighborhood Mt. Morris housing development backed by Illinois Housing Development Authority / 3

GREENHOUSE

OPENS

DEATHS

VOLUME 166 NO. 9 • SERVING THE POLO AREA SINCE 1857 Friday, May 10, 2024 • $1.00
One section • 20 pages Published every Friday by Ogle County Newspapers, a division of Shaw Media INDEX Betty’s Column ........ 4 Classifieds ......... 16-19 Colbert Column 14 Mt. Morris Police ..... 8 Oregon Police ........... 8 Otto’s Column 4 Property Transfers .. 15 Sheriff Activity ......... 8 Sports 10-14
Donald F. Brown, Elizabeth A. Corcoran, Page 9
Earleen Hinton}
speak about Polo High School’s new greenhouse at its ribbon-cutting May 1. The structure is located just to the east of the Ag shop at Polo High School. The greenhouse will be open from 8 a.m. to 2 p.m. Saturday, May 11, and 3:30 to 6 p.m. Wednesday, May 15. Story: Page 10.
Steve Shaffer, president of the Polo FFA Alumni, and Polo High School agriculture education teachers and FFA advisers Stephanie Schultz and Alec Wetzell

POLO TRI-COUNTY PRESS

Forreston man dies in auto accident

POLO TRI-COUNTY PRESS

TRI-COUNTY PRESS

oglecountynews.com

ShawLocal.com

Included in every subscription

Activate your digital access today. Visit: ShawLocal.com/digital-activation Call: 866-979-1053

OFFICE

113-115 Peoria Ave. Dixon, IL 61021

815-732-6166, ext. 2592

SUBSCRIPTIONS

1 month – $4.33

13 weeks – $13

26 weeks – $26

52 weeks – $52

To subscribe, make a payment or discuss your delivery, call 815-732-6166, ext. 2518, from 7:30 a.m. to 6:30 p.m. Monday-Friday or send an email to subscriptions@oglecountynews.com.

You also can subscribe online by going to oglecountynews.com and clicking on Subscribe.

CLASSIFIED SALES classified@shawlocal.com

HELP WANTED employment@shawlocal.com

LEGAL NOTICES

sauklegals@shawlocal.com

OBITUARIES

saukobits@shawlocal.com

Deadline for obituaries is 2 p.m. Tuesday for Friday’s edition

SEND NEWS news@oglecountynews.com

Publisher

Jennifer Heintzelman 815-632-2502 jheintzelman@shawmedia.com

General Manager Earleen Hinton 815-632-2591 ehinton@shawmedia.com News

Alexa Zoellner 815-632-2590 azoellner@shawmedia.com

Advertising Sales

Jennifer Heintzelman 815-632-2502 jheintzelman@shawmedia.com

The Tri-County Press, Ogle County News and oglecountynews.com are a division of Shaw Media. Ogle County Newspapers also prints the Mt. Morris Times, Forreston Journal and Oregon Republican Reporter.

The TRI-COUNTY PRESS (USPS No. 638-530) is published weekly by B.F. Shaw Printing Co., Shaw Media. Periodical postage paid at Polo, Illinois. POSTMASTER Send address changes to: Shaw Media, P.O. Box 598, Sterling, IL 61081 All rights reserved. Copyright 2024

SHAW LOCAL NEWS NETWORK contact@shawmedia.com

OGLE COUNTY – A Forreston man was killed Monday after the car he was driving left Freeport Road between Polo and Forreston, coming to rest after striking a creek embankment.

Michael Glick, 67, of Forreston, was

pronounced dead at the scene after the 5 p.m. accident.

According to an Ogle County Sheriff’s Office news release, deputies and Polo Fire Department personnel responded to the 1000 block of North Freeport Road for the report of a single-vehicle crash with injuries about 5 p.m.

“A preliminary investigation by the

sheriff’s office determined that a maroon 1993 Buick Regal was traveling northbound when it traveled across the southbound lane and into the west ditch,” according to the release. “The Buick continued north for a short distance before coming to rest after striking a creek embankment. This incident remains under investigation.”

City Council OKs purchase of police body, dashboard cameras

POLO – The Polo Police Department soon will add body cameras to its list of equipment.

Polo City Council members May 6 voted unanimously to buy six body cameras and four squad dashboard cameras from Axon Enterprise of Scottsdale, Arizona, for a total of $74,901 over five years.

The costs will be broken down as follows: $33,822 for the first year, $9,673 the second year, $10,060 the third year, $10,463 the fourth year and $10,881 the fifth year.

There is a state grant that the police department plans to apply for when the grant application period opens in October. The grant would allow the city to recoup some of the Year 1 cost, Police Chief Matt Coppotelli said.

The city budgeted for the cost of the

cameras, City Clerk Sydney Bartelt said.

“The body cams are required per the SAFE-T Act,” said Alderman Keith Chestnut, who heads the Police Committee. “We’re coming up on the deadline. There’s no getting around it. It’s something we’ve got to do.”

In January 2021, the state Legislature passed House Bill 3653, also known as the SAFE-T Act. Gov. JB Pritzker signed it into law on Feb. 22, 2021. It requires, among other things, that all law enforcement officers be equipped with body cameras by 2025.

The deadline to implement a body camera program depends on the size of the municipality or county served – the greater the population, the earlier the deadline.

According to the 2020 census, Ogle County’s population is 51,788, which put the Ogle County Sheriff’s Office’s deadline at Jan. 1, 2024. All other Ogle County

Polo Lions Club makes donations

CORRECTIONS

law enforcement agencies have a Jan. 1, 2025, deadline.

Axon’s bid includes in-person training, removal of existing equipment and installation of the new cameras, Coppotelli said. The body cameras automatically will be upgraded at the end of the second year of the contract and the squad cameras will be upgraded at the end of the fifth year, he said.

“Axon will actually come out to our site and they’ll explain all the storage, how everything works and to upload to the Cloud and all that,” Coppotelli said. “The initial training, they will break down everything that needs to be done during the process after implementation because these are a brand-new product. … Everything will be explained by them, so that’s very important when we’re starting out.”

The Polo police department has four full-time officers, Coppotelli said.

HOW ARE WE DOING?

Accuracy is important to the Polo Tri-County Press. Please call errors to our attention by email at news@oglecountynews.com.

We want to hear from you. Email us your thoughts at feedback@shawmedia.com.

UNLIMITED DIGITAL ACCESS
Photos provided by Jeff Short Polo Lions Club member Jeff Short presents a $500 donation to Polo Police Chief Matt Coppotelli for the police department.
2 Ogle County Newspapers / ShawLocal.com • Friday, May 10, 2024 OGLE COUNTY NEWS
Polo Lions Club Vice President Nate White (center) hands Polo Fire Chief Jim Ports (right) a $500 donation to the fire department April 28 during the Polo Fireman’s Breakfast. Also pictured is Asstistant Fire Chief Brent Shipman..

Mt. Morris housing development backed by IHDA

Kreider Services and Village of Progress’ Hill Street Neighborhood project will ‘flip the script’ on disability housing

MT. MORRIS – A proposed Mt. Morris neighborhood dedicated to providing disabled residents who require support services the opportunity to live alongside those without disabilities earned Illinois Housing Development Authority backing to the tune of $8 million.

The Hill Street Neighborhood is the brainchild of Village of Progress and Kreider Services, organizations that serve people with developmental disabilities based in Oregon and Dixon respectively. The multiphase project, which will be located in Mt. Morris’ northeast corner, is expected to cost about $10 million.

“Most people with disabilities, they’re not looking for anything exceptional. They just want to be able to live an ordinary life,” Village of Progress Executive Director Brion Brooks said. “What we’re trying to do with Hill Street is give them that opportunity.”

The Hill Street Neighborhood will contain 12 one- and two-bedroom duplexes, half of which will be for individuals with developmental disabilities and half of which will be low-income housing. There also will be a community center and a 4-acre public park on the subdivision’s east side.

Many disabled people don’t get to live in an integrated neighborhood where those with disabilities live next door to those without, Brooks said.

“All the things that most people in most neighborhoods take for granted, a lot of people with disabilities have never had the chance to experience,” he said, pointing to things such as being a renter or homeowner, caring for property, planting a personal garden or having a cookout as examples.

If all goes well, there’s room to construct more housing around the initial buildings, Brooks said.

Phase 2 would be a mix of market-based and subsidized housing built on the original 16.97-acre parcel, he said. The third phase would be constructed on a 5.86-acre lot directly to the left of the main parcel and contain predominately market-based housing with a small amount of supportive housing, Brooks said.

On April 19, the IHDA Board voted to award the project $8,022,497 under Round X of the agency’s Permanent Supportive Housing Development Program.

The IHDA is an independent, self-supporting agency created by the state Legislature in 1967 to finance affordable housing across Illinois by leveraging state and federal resources with private sector investments.

With the IHDA funding in hand, the Village of Progress and Kreider Services must find another $1 million to $2 million, which they expected, Brooks said.

They’ve met with the Federal Home Loan Bank of Chicago and feel there’s a good chance of getting the cash from there, Kreider Services Executive Director Jeff Stauter said. There also are other grants and partnerships they’ve been exploring as potential revenue sources, he said.

Hill Street Neighborhood was one of 14 developments that received funding totaling more than $123 million on April 19, according to an April 29 IHDA news release. The developments contain 392 units of affordable housing integrated with flexible support services, according to the release.

“The Permanent Supportive Housing Development Program was created to increase the community-based housing options available to vulnerable populations and those leaving institutional settings,” according to the release.

While not the largest project the IHDA funded, the Hill Street Neighborhood probably is the most unique, Stauter said.

It’s an experiment they expect will go well overall, but also expect will surprise them along the way, he said.

“I bet if you talk to us in two years or three years, we’d be like, ‘Whoa, we didn’t see that coming. This is better than we thought it would be,’ or ‘This is worse,’ ” Stauter said. “It’s very exciting from the aspect that we don’t know anybody doing this and that’s pretty cool.”

Local support

On Dec. 12, 2023, Mt. Morris Village Board members unanimously voted to provide an official letter of support for the Hill Street Neighborhood. On Jan. 23, they unanimously voted to rezone the land on which the Hill Street Neighborhood will be located from I-1 Light

The proposed site layout for the Hill Street Neighborhood in Mt. Morris. The neighborhood would be built in phases, starting with 24 units and a community center, with half of the units reserved for people with developmental disabilities, allowing them to live in an integrated community setting with services tailored to their individual needs.

Industrial to R-2 Multi-Family Residential and to approve a special-use permit for a community center and a conditional-use permit for the park.

The zoning change and permits are contingent upon the project getting state funding and on Kreider Services and Village of Progress’ purchase of the property.

The property where the Hill Street Neighborhood would be is owned by David Luepkes, who uses it for farming. Luepkes wrote a letter, dated Nov. 22, 2023, expressing his support of the project and willingness to sell the land once the IHDA fully approves it.

“The village of Mt. Morris has been very supportive and positive through the whole process,” Stauter said. “I think they see it as a differentiating thing for their town.”

Alexa Zoellner Village of Progress Executive Director Brion Brooks talks to the Mount Morris Planning Commission on Jan. 8 about the proposed Hill Street Neighborhood, which would provide housing for people with disabilities and those with low income. Photo provided by Brion Brooks Jeff Stauter
See HOUSING DEVELOPMENT, page 5 3 OGLE COUNTY NEWS Ogle County Newspapers / ShawLocal.com • Friday, May 10, 2024
Brion Brooks

Surprise visitor asks to look at early Polo maps

This week I had an unexpected surprise when the phone rang early on Tuesday. The voice said, “This is Nick who is painting the wall in the park. I need some information from you. I need to look at some early Polo maps.”

I was thrilled to be able to help him. I also felt I would find out what was going on the wall in the way of a painting. We would meet in an hour. I called Beth and she also was available. We had talked about the logo on the wall and she said, “I think it needs to say, ‘Polo. Est. in 1857.’ ” I said I thought the same thing but you have added the word “Established.” That gives it class and polishes it up. We were ready with our thoughts to Nick.

We really never had to even open our mouths with our ideas when we saw the drawing on the piece of paper. Nick knew exactly what

needed to go on the wall. He opened his computer with the drawing on it so one could make it larger or smaller. It said, “Polo. Est. in 1857.” It fit perfectly with Abraham Lincoln, Zenas Aplington, Aplington House, the shadow of the train and the rest of the drawing.

We talked about the map in the background and we all liked the map he had picked out. It was a Galena Trail map he had found. It was the Galena Trail that opened this Northwest Territory in the very beginning from Peoria to Galena. All the important pieces were there. Galena Trail, Buffalo Grove and Polo.

Nick was a delightful person and when we had finished talking about our history, he looked over the museum. By that time, Kevin had arrived and he helped find a signature of Zenas Aplington. Nick, of course, was blown away by the museum. How nice to have the wall right beside it. Keep your eyes on the wall and see what appears each day Nick works.

I had another big surprise when my daughter Krista called and said she was coming down at the end of the week and would stay overnight. We were to go up to Susan’s to talk about wedding shower plans.

Krista also had plans for a trip to Dixon and Sterling. On Thursday, we bought flowers for the cemetery, visited Leydig Center, shopped at the new Hobby Lobby, ate at Wendy’s and stopped at Goodwill. I had not done any of that since the pandemic and I

think everyone spruced up their places during COVID-19 or the places have disappeared. Places were gone and there were new stores I had not seen before.

I loved my surprise outing even though I was tired.

Now I need to turn my attention to my flower beds outside and get over to the high school for flowers. What can I handle and take care of in the way of watering?

Right now I have a cardinal family in my crab apple tree and they do not want me bothering anything in that area. I love to hear them talking to me as I sit on my patio. Next, the Jenny wrens will come and I love to hear their early morning songs. Spring is here.

• Betty Obendorf is a retired teacher and volunteer for the Polo Historical Society.

Butchering day involved everyone on the farm

The following story was written by Jane Shoemaker and appeared in her book “Pine Creek Recollections – a Storytelling Book” in 2001. I will be sharing selections of her book in my column for a few weeks. – Otto Dick

One day was chosen to be butchering day. The big, old, black, cast-iron butchering kettle was lugged from the cellar and placed outside. A pile of wood was ready for the fire under it. Scaffolding was erected to hold the carcass. Long tables were set up to be used to process the meat. If there weren’t enough men in the household, the closest neighbor was called to assist with the butchering. He would go home that evening with some of the

bounty, usually fresh liver, kidneys or perhaps a well-cut roast or a fresh slab of bacon.

Everyone worked and nothing went to waste. There was wood to be fetched, fires to be tended, hides to be cleaned for tanning. The actual slaying, butchering and cutting up was done by men. The trimming, rendering and cleaning up was done by women.

The other fetch-it jobs were done by countless children underfoot.

The following day, the canning, frying down, crocking, smoking, stuffing and bundling took place. Equipment was taken down, the large kettle went back in the cellar way, what had been borrowed from neighbors was returned. Usually the neighbors across the creek walked across the plank and came to help, just as this

trip was reversed by my parents when the neighbors butchered. As in threshing or making hay, shipping cattle, picking corn, butchering day was a day of neighbor helping neighbor.

My memories of butchering day were not all pleasant! I did not like anything about it, except that perhaps a neighbor’s daughter might come along to help us with our chores in the task.

I didn’t like the killing, the scalding, the scraping, the hanging of the carcass or the cutting up. But everything was done at a hectic pace and everyone had a job. I just wanted to disappear into the woods and spend a day there. But that was not to be and I had my job.

Everyone was called forth to complete the task before us – to put meat on the table for a few months. In the

evening of the second day of storing up and cleaning, we were allowed to run free – yelling to the others, rolling in the grasses and listening to the birds and animals for the night.

We raised livestock. Milking cows, our own bull for breeding, hogs, some sheep, horses and pet animals. The livestock supported our basic needs –food and work. Cattle supplied milk and milk products and beef when butchered. Hogs were not only a commodity to be sold, but also furnished pork for the table. We sheared sheep and sold wool to the sheep shearer in the neighborhood. And we liked a little “mutton” now and then.

• Otto Dick is a retired teacher and has researched Ogle County history for several years.

Quilt guild meeting May 20 to feature Wisconsin quilter

SHAW LOCAL NEWS NETWORK contact@shawmedia.com

FORRESTON – The Country Crossroads Quilt Guild will present Linda Halpin from Reedsburg, Wisconsin, at its meeting Monday, May 20.

Halpin will be presenting a trunk show of quilts featuring her diminutive 1-inch-by-1-inch pieced squares and

triangles. This style of quilt started with Halpin’s fascination with using tiny scraps that were cutaways during the construction of quilts. Finding creative ways for using these scraps became a trademark of her quilts.

Halpin will have copies of her books for sale as well as some retired quilts available to buy. Cash or check only.

“We look forward to viewing her quilts and learning more about this use of scraps we all generate. The program will be followed by refreshments, a business meeting and show and tell,” said Ruth Whitney, publicity chair. Guild meetings are at 7 p.m. at the Forreston Grove Church, 7246 Freeport Road in Forreston, on the third Monday of each month (except Decem-

ber). There is ample time to meet and greet members before the meeting. Visitors are welcome to attend the meetings for a fee of $5 at the door. Membership dues are $20.

For more information, call Program Committee chairs Shelly Holverson at 815-297-2381 or Karen Bolen at 815-2339836 or Guild President Chyree Rohde-Lincoln at 815-275-2759.

LOCAL HISTORY
4 Ogle County Newspapers / ShawLocal.com • Friday, May 10, 2024 OGLE COUNTY NEWS

Monte Nixon to celebrate 90 years

Monte Nixon will turn 90 on May 18. Join in his celebration by sending cards to 5921 W. Oregon Trail Road, Mt. Morris, IL 61054.

Art Dash organizers say thanks

Thank you to everyone who made the third Art Dash for Serenity Hospice and Home a success. It was great to see the community come together, interact and support such a worthwhile organization. Serenity Hospice provides care to patients and their families in nine counties in northern Illinois as well as in our beautiful “home.”

Seventy-five artists, the business community, corporate and individual sponsors and volunteers contributed to this memorable evening at the River’s Edge Experience. The fun-filled evening included “dashers” going home with an original piece of art while spectators watched them dash.

Everyone enjoyed culinary delights during the art preview and at intermission the guests were treated to desserts from local businesses and friends. We appreciate everything everyone did to make this fundraiser a success and look forward to next year on April 9, 2025. Regards,

Karen Virnoche and James Brown Event organizers, Oregon

All faiths are equal in America

As Christians, we must condemn Chris-

• HOUSING DEVELOPMENT

Continued from page 3

Flipping the script

Unlike most disability housing, Hill Street Neighborhood puts disabled residents in a position to choose where they live, which support provider they want, what services they need, when they need them and how they’re delivered, Stauter said.

The way it works now is if someone gets funding to live in a group home, the service provider owns the home and provides the services there, he said. If someone doesn’t want that service provider, they have to leave the home and find somewhere else to live,

tian nationalism as a distortion of the gospel of Jesus and a threat to American democracy.

Christian nationalism demands Christianity be the privileged religion in the United States and implies that to be a good American, one must be Christian. However, true American patriotism requires that we be loyal to our U.S. Constitution, which established both the free exercise of any religion and also prohibited the establishment of any specific religion by the U.S. government. Whether we worship at a church, mosque, synagogue or temple, America has no second-class faiths. All are equal under the U.S. Constitution. We must stand up to and speak out against Christian nationalism, especially when it inspires acts of violence and intimidation, including vandalism, bomb threats, arson, hate crimes and attacks on houses of worship of other faiths.

In the Bible, Matthew 7:15 and 24:4, Jesus said, “Beware of false prophets. Take heed that no one leads you astray. For many will come in my name saying, ‘I am the Christ’ and they will lead many astray.”

Stauter said.

That won’t be the case in the Hill Street Neighborhood, which is “an important and empowering difference in this than most disability housing,” he said.

“It flips the script, which is just so long overdue,” Brooks said.

A decade ago, it was extremely difficult to get the Illinois Department of Human Services to think flexibly about support services for people, he said.

“DHS had 24/7 supports or they had what was called intermittent supports and even the intermittent supports had to meet pretty strict guidelines –not less than this many hours, not more than that many,” Brooks said.

CMAAA focuses on photos through June 15

SHAW LOCAL NEWS NETWORK contact@shawmedia.com

OREGON – The Coliseum Museum in Oregon opened its first juried art exhibit featuring 25 artists with 50 works of art on display through June 15.

Designed to showcase photography in all formats, the exhibit covers a wide range of subjects in both color and black and white. Visitors to the Coliseum Museum will be allowed to vote for their favorite art piece with the People’s Choice Award winner announced at the close of the exhibit.

The May schedule also includes new exhibits by Wolf and Linnea Koch on the Feature Walls, Joy Meyer in the Taft Gallery and the Bob Diven Art Exhibit, “A Pilgrim’s Portraits” in the Lowden Gallery.

The May programming also introduces two workshops on photography including Digital Photography Fundamentals on May 11 and Mastering Smartphone Photography on May 18. Both are free to attend. The workshops are from 10 a.m. to 1 p.m.

The CMAAA’s mission is to present art, antiques, Americana and history through permanent and rotating

exhibits, workshops, music, theater and more. More information can be found on the website, www.cmaaa. org, and Facebook page, www.facebook.com/ColiseumMuseum.

Kat Heitzman’s “Elephants” is one of the photos currently on display at CMAAA. Heitzman is from Freeport. The juried art exhibit featuring 25 artists with 50 works of art is on display through June 15.

That has changed over the past few years, with DHS recognizing more and more that support works best when tailored to the needs of individuals, Brooks said. That flexibility and change in mindset helped as a catalyst to make Hill Street Neighborhood become a reality, he said.

“We’re moving into a new territory where we’re going to say, ‘You know what, you find your house, we’ll provide your supports and we’ll provide them there,’” Stauter said.

It’s a system that will require Kreider Services, Village of Progress and any other interested service providers to compete for a client’s business, he said, noting that kind of competition is healthy and good

for the clients.

To keep the playing field even, Hill Street Neighborhood will be run by a yet-to-be-created nonprofit, Stauter said. The new nonprofit will have its own board of directors, keeping it separate from Kreider Services and the Village of Progress, he said.

“You’re always surprised at how, when you just take what seems like a small step forward, how it could have an outsized impact on peoples lives,” Brooks said. “When I was sitting at the [April 19] IHDA meeting, that’s what really comes to me. The outsider looks at these projects and says, ‘It’s just money that’s being spent on housing,’ but to the person that gets the housing, it’s personal. It changes lives.”

HAPPY BIRTHDAY!
IT’S YOUR WRITE
Photo by Nixon Monte Nixon is pictured with his wife Judy. Photo provided by Michael Glenn, CMAAA Peter Toth’s “Visions of Iceland” is one of the photos on display at CMAAA. Toth is from Sterling. Photo provided by Robert Logsdon Bob Logsdon’s “The Lonely One” is one of the photos on display at the CMAAA. Logsdon is from Grand Detour.
5 OGLE COUNTY NEWS Ogle County Newspapers / ShawLocal.com • Friday, May 10, 2024
Photo provided by Michael Glenn, CMAAA

Rochelle man pleads not guilty to cocaine charges

OREGON – A Rochelle man pleaded not guilty May 1 to five drug charges and one weapons charge.

Darnell A. Wilson, 37, is charged with three counts of possessing cocaine with the intent to deliver in a drug-free zone, one count of possessing fentanyl with the intent to deliver and one count of possessing MDMA, commonly known as ecstasy.

Wilson also is charged with one count of possessing a firearm without a firearm owner’s identification card.

The Ogle County State’s Attorney’s Office initially charged Wilson with nine counts but amended the charging information April 25 to drop some of the firearms charges.

Two of the drug charges are Class X felonies, which carry a maximum sentence of six to 30 years in the Illinois Department of Corrections.

According to court documents, the offenses occurred on or about April 9.

The drug-free zone cited in two of

the counts is Connolly Park, a public park in Rochelle. According to those charges, Wilson was within 500 feet of the park when he possessed 1 to 15 grams of cocaine and fentanyl.

The firearm charge accuses Wilson of possessing a handgun when he is not eligible to have a FOID card because of a juvenile adjudication in 2002.

Wilson, who is in custody in the Ogle County Correctional Center, appeared in court May 1 for a preliminary hearing with his attorney, William Wolf of Chicago.

During the hearing, Rochelle police officer Trevor Owen testified that his department’s drug team and the Illinois State Police searched Wilson’s apartment in Rochelle on April 9.

Owen said four handguns were

found, but only one was thought to belong to Wilson, with the others belonging to his family members who also lived in the apartment.

Owen said the drugs were found on a dresser in Wilson’s bedroom and plastic gloves, small plastic bags, a scale and baking soda – which he believed to be a cutting agent for the cocaine – were found in another room.

Owen said $3,000 was found in Wilson’s safe. Owen said the scale tested positive for cocaine.

Under cross-examination, Wolf said, Wilson never admitted to “anything he intended to sell.”

“Correct,” Owen replied, adding that Wilson said he used ecstasy when the search warrant was being executed.

The May 1 hearing follows an April 11 detention hearing during which Judge John “Ben” Roe determined not to release Wilson from custody as his case proceeds through the court system.

Criteria used by judges to make that decision include the nature of the

alleged offenses, whether the defendant’s release would be a “clear and present danger” to the community or individuals and whether the defendant is considered to be a “flight risk” and likely not appear again for scheduled court cases.

At that hearing, Assistant State’s Attorney Matthew Leisten said Wilson was being investigated for illegal guns and selling cocaine, arguing that he be detained.

Wolf argued the guns belonged to Wilson’s common law wife, who legally has a FOID card. Wolf also said four people lived with Wilson at the time of the search.

Wolf argued again May 1 that Wilson does not have a history of violence nor a felony criminal background, noting his juvenile offense was adjudicated 22 years ago. He again asked that Wilson be released from custody. Roe denied that request and ordered that Wilson continue to be held in the Ogle County Correctional Center. Roe set Wilson’s next court appearance for 1:30 p.m. May 9.

Woosung man tells judge he has license to grow cannabis

Anderson pleads not guilty to criminal charges

OREGON – A Woosung man pleaded not guilty May 1 to the unlawful possession of cannabis with the intent to deliver, telling the court he has a medical marijuana card and was growing the plants for his own use.

Joshua T. Anderson, 38, was arrested April 10 after the Ogle County Sheriff’s Office Special Operations Unit executed a search warrant at his home in the 700 block of South Central Street in Woosung.

Police said they seized more than 46 pounds of cannabis with an estimated street value of more than $200,000 after what they described as a lengthy investigation.

Anderson appeared in court May 1 for a preliminary hearing with his attorney, Aaron Buscemi of Rockford.

After hearing testimony from an Ogle County deputy and Anderson, Judge John Redington ruled that probable cause existed to continue the case through the court system. He set the next status hearing for 1:30 p.m. May 30.

Anderson is charged with unlawful

possession with the intent to deliver more than 5,000 grams of cannabis, possession of 20 to 50 cannabis plants and possession of less than 15 grams of a substance containing the painkiller tramadol.

Deputy John Shippert, a member of the Special Operations Unit for the sheriff’s department, testified that police seized the cannabis and plants during a search of Anderson’s home. He said Anderson was home at the time of the search and was “very worried about his business.”

Shippert said 27 cannabis plants taller than 6 inches were seized during the search.

Under questioning by Ogle County State’s Attorney Mike Rock, Shippert said vacuum bags, a bag sealer and scales also were found, which indicated to him that there was an intent to deliver the cannabis. He said ledgers also were found but not investigated.

Buscemi said Anderson had a valid medical marijuana card and maintains the cannabis found was for his personal use.

“If you have a medical marijuana

card, you can grow plants,” Buscemi said.

“Yes,” Shippert said.

“You don’t know exactly how much each of these plants will produce. He could have been growing and storing for many years,” Buscemi said. “He didn’t say his ‘business’ was growing to sell. He told you it was for his use.”

“Yes,” Shippert said.

Anderson testified he has had a medical marijuana card for at least eight years and some of the plants were slated to be destroyed after the strongest ones were selected to complete their growing cycle.

He said the ledgers kept track of his “cannabis consulting clients.” He said all of the cannabis found was slated for personal use.

Buscemi asked Redington to examine state statutes outlining guidelines for having cannabis and growing cannabis plants for personal use.

May 1 was Anderson’s third court appearance since the charges were filed. On April 11, Anderson appeared before Judge John “Ben” Roe for a pretrial detention hearing.

During detention hearings, a judge determines whether to release a defendant from custody as the case proceeds through the court system. Criteria used by judges to make that decision include the nature of the alleged offenses, whether the defen -

dant’s release would pose a “clear and present danger” to the community or certain individuals and whether the defendant is considered to be a “flight risk” and likely will not appear again for scheduled court cases.

At the April 11 hearing, Rock argued the charges against Anderson were detainable and he should not be released from custody.

Buscemi said conditions could be set by the court to allow his client to be released.

Roe agreed to release Anderson with the additional conditions that he be placed on home detention and be subject to GPS monitoring and random drug and alcohol testing. He also ordered Anderson to refrain from the use of illegal drugs and alcohol.

Redington continued those conditions May 1 despite Buscemi’s request that the GPS monitoring device be removed.

The possession with the intent to deliver charge is a Class X felony punishable by six to 30 years in the Illinois Department of Corrections and a maximum fine of $200,000.

The possession of the plants is a Class 3 felony punishable by two to five years in prison with a maximum fine of $25,000. The controlled substance charge is a Class 2 felony that carries a one- to three-year sentence with a $25,000 fine.

Darnell
CRIME AND COURTS
Joshua T. Anderson
6 Ogle County Newspapers / ShawLocal.com • Friday, May 10, 2024 OGLE COUNTY NEWS

Attorney for Stillman Valley man accused of killing ex-wife seeks more detail from prosecution expert

OREGON – An Ogle County judge will decide in June whether to grant a Stillman Valley man’s motion asking for more detail on what a state witness has to say about phone records that could be used at his trial.

Duane Meyer, 42, charged with killing his ex-wife in 2016, appeared in court May 2 as his attorney Christopher DeRango, of Rockford, told Judge John “Ben” Roe that an expert witness expected to testify against his client needs to provide more information to the defense before taking the stand.

Meyer is charged with four counts of first-degree murder, two counts of aggravated arson and one count of concealment of a homicidal death in connection with the Oct. 19, 2016, Byron house fire in which Margaret “Maggie” (Rosko) Meyer, 31, was found dead. The couple’s son, 3-year-old Amos Meyer, also was home at the time of the fire and later died. Charges against Duane Meyer were filed in October 2019.

DeRango filed a motion April 16 seeking additional disclosure including a written summary of testimony that he believes prosecutors intend to use from FBI analyst Joseph Raschke, who analyzed cellphone data before the fire.

DeRango told Roe that slides in PowerPoint presentations given to the defense are too general and need to be more specific. He argued that Raschke had not provided a written report on his findings.

“There are thousands of pages of discovery,” DeRango argued. “Some of the information is the same and some is different. It is impossible to know what the state’s expert is going to say about these

slides. Because we don’t have a report, we don’t know data the expert used. How am I to decipher how he reached these conclusions?”

Ogle County Assistant State’s Attorney Matthew Leisten argued that Raschke’s slides should be sufficient for the defense.

“Agent Raschke’s slides are his report,” Leisten said. “He is not required to provide some type of narrative for the defense.”

Leisten said Raschke will be testifying about Meyer’s cellphone data and how it relates to cell towers in the area. He said case law only mandates that prosecutors provide a “gist” of what an expert will testify to at trial.

“This is something [Raschke] can be cross-examined about,” Leisten said.

DeRango suggested original data that may have been used by Raschke could have been “altered or removed.”

“All I am asking is the court tell us what materials this expert relied on,” said DeRango, adding he needed to know how Rashke reached his conclusions to make sure the data was interpreted correctly.

Leisten said no data was altered or removed.

“There is no substantial showing that any evidence has been tampered with in any way,” Leisten said.

DeRango said he was not suggesting that the state was hiding anything.

“All we have here is a PowerPoint slide. Nothing here says what the terms mean,” DeRango said, likening some of the data being presented as “hiero -

glyphics” leaving the defense to “figure it out.”

DeRango said he just wants to know what Raschke used to reach his decision so the defense’s expert could evaluate the same data.

Roe said he would study case law and each side’s arguments and render his decision at 9 a.m. June 18.

In a September 2022 hearing, Leisten said Raschke was a member of the FBI’s cellular analyst support team and had “plotted the estimated locations” of Meyer’s cellphone using methods he had employed in hundreds of cases.

Such analytical evidence has been allowed in state and federal courts for well over a decade and Raschke has testified multiple times as an expert in cellsite analysis, despite defense objections, Leisten told Roe at that hearing.

It would be “preposterous” for a court in Ogle County to disallow evidence and expert testimony that’s been ruled admissible over and over again in state and federal courts, Leisten said.

In September 2023, DeRango petitioned prosecutors for any data obtained by electronic service providers, internet service providers, mobile phone carriers and digital investigation platforms.

After receiving that information, DeRango requested and received a continuance, telling Roe he needed more time for his expert to review the reports and data provided by prosecutors.

Leisten said the state had provided the defense with “major forensic copies,” including phone records and text messages.

In January 2023, DeRango entered 21 motions in limine and asked that they be sealed before debate in open court.

The purpose of a motion in limine,

Man cleared of felony aggravated domestic battery, found

Cory Love accused of pushing woman off toilet, trying to strangle her and shove her head into toilet

OREGON – A Mt. Morris man was found not guilty of felony aggravated domestic battery but guilty of two lesser charges of domestic battery after a three-hour bench trial April 30. Cory Love, 47, was charged in December 2023 after police investigated a Nov. 23 altercation in a Mt. Morris home.

In the felony case, Love was accused of intentionally trying to strangle a woman after an argument escalated into a fight on Thanksgiving Day. After hearing testimony from three witnesses and Love, Ogle County Judge John “Ben” Roe ruled that prosecutors had not proved Love intended to strangle the woman after an argument and fight that led into the home’s bathroom.

Love was found guilty of the misdemeanor offenses of slapping the woman with an open hand and pushing her off a toilet.

The woman testified that she and Love were arguing when the incident

Latin for “on the threshold,” is to determine whether certain evidence may be presented to the jury.

Motions in limine commonly are entered and argued before a trial begins, allowing evidentiary questions to be decided by the judge. The motions are made by attorneys when seeking to exclude certain evidence from being presented to a jury.

Some of the motions pertain to crime scene photos, autopsy photos, internet searches, cellphone photos, text messages between Meyer and others, surveillance videos of vehicles and comments made to police officers during the investigation.

Some motions filed in the case have been ordered to be sealed and cannot be viewed by the public.

Prosecutors have argued that the evidence is relevant and, based on case law, should be allowed, adding that “the jury can weigh the evidence.”

At a hearing in December 2023, DeRango argued that because of the “cyberdata age,” there were hundreds of “antiquated file formats” that the defense team was trying to review.

Maggie Meyer was a teacher at the Chana Education Center at the time of her death. She filed for divorce in 2014 and court records show the divorce was finalized in September 2016.

Murder charges were filed against Duane Meyer in October 2019. In November 2022, Roe ruled Duane Meyer’s cellphone records would be allowed as evidence at the trial.

Duane Meyer remains at the Ogle County Correctional Center on a $10 million bond.

A trial date has not yet been set.

guilty

escalated into him slapping her, breaking household items and then pushing her off a toilet. The woman did not report the incident to police, but she said when she began experiencing pain in her chest a few days later, she went to the Rochelle Hospital to be examined.

Under questioning by Assistant State’s Attorney Melissa Voss, the woman said she was scared when she asked Love to leave because he had never been violent before. Under questioning by Love’s attorney, Ogle County Public Defender Michael O’Brien, the woman claimed Love was trying to put her head in the toilet to “shut her up.”

of lesser charges

Love testified that he and the woman had an “on-and-off again” relationship and were arguing back and forth. He admitted to breaking household items to get her attention and said he slapped her on the chin during the argument.

In his ruling, Roe said he reviewed the evidence in the case and determined it was plausible that Love didn’t intend to strangle the woman while wrestling by the toilet. But he characterized trying to put someone’s head in a toilet as a “despicable act.”

Love’s sentencing hearing on the misdemeanor charges is set for 2:30 p.m. June 28.

Duane Meyer
CRIME AND COURTS
7 OGLE COUNTY NEWS Ogle County Newspapers / ShawLocal.com • Friday, May 10, 2024

Ogle County Sheriff Brian VanVickle reports the following police activity.

May 1

Jared Mathias, 25, of Baileyville, was arrested for driving while license revoked after a traffic stop near the intersection of Washington Street and Jones Terrace in Oregon about 5:44 a.m. Mathias also was cited for operating an uninsured vehicle, operation of a vehicle when the registration is suspended and no rear splash guards. Mathias was taken to the Ogle County jail, released on a notice to appear and given a future court date.

Anthony Wolfe, 21, was cited for no insurance after a traffic stop at Ridge and Pines roads about 8:51 a.m. The front passenger, Austin Bettner, 23, of Mt. Morris, was arrested for an outstanding Carroll County warrant for failure to appear. Bettner was taken to Carroll County where Carroll County deputies took custody of Bettner.

May 2

John Roberts, 46, of Sterling, was arrested for driving while license suspended after a traffic stop in the 2600 block of south Illinois Route 2 about 10:29 a.m. Roberts also was cited for operating an uninsured vehicle and operating a vehicle with a suspended registration. Roberts was released from the scene on a notice to appear and given a future court date.

Daniel Walters, 54, of Rockford, was arrested for possession of a controlled substance (crack/cocaine), possession of

MT. MORRIS POLICE

April 22

Jacob Huffman, 26, of Mt. Morris, was arrested at 7:30 a.m. in the 300 block of Sunset Lane on an Ogle County warrant for operation of a vehicle with canceled, suspended or revoked registration. Huffman was transported to the Ogle County jail.

April 26

About 7:30 p.m., police made contact

OREGON

April 23

At 8:43 a.m., police responded to a disturbance in the 700 block of Jackson Street resulting in the arrest of David W. Smith, 63, of Oregon, for domestic battery. Smith was transported to the Ogle County jail where he was left in the custody of the corrections officers.

April 24

At 2 p.m., an Oregon SRO officer

methamphetamine, possession of drug paraphernalia and a Winnebago County warrant for aggravated fleeing to elude after a traffic stop at the intersection of Illinois Routes 2 and 72 about 2:19 p.m. Walters also was cited for multiple traffic violations. Walters was taken to the Ogle County jail, given a notice to appear for the Ogle County charges and held in lieu of bond for the Winnebago County warrant. Deputies, Illinois State Police and Lynn-Scott-Rock, Stillman Valley and New Milford fire protection districts responded to a three-vehicle crash at the intersection of Illinois Route 251 and Rolling Meadows Drive in rural Davis Junction about 2:35 p.m. An investigation showed Sebastian Polanco-Castaneda, 27, was southbound in a 2010 Volkswagen Tiguan, followed by Kimberly Cicala, 41, in a 2019 Jeep Cherokee. As Polanco-Castaneda was slowing down to turn onto Rolling Meadows Drive, Cicala was distracted by objects inside the Jeep and unaware the Volkswagen had slowed down. Cicala did not have enough time to stop and swerved into the northbound lane. In the process, Cicala collided with the rear of the Volkswagen and sideswiped the driver’s side of a northbound 2022 Mitsubishi Outlander driven by Bethany Anderson, 28. Cicala and Anderson were taken to SwedishAmerican Hospital for non-life-threatening injuries. Polanco-Castaneda was arrested and taken to the Ogle County jail for processing,

where he was cited for no valid license. Polanco-Castaneda was released on a notice to appear and given a future court date. The investigation is ongoing.

May 3

Malayiah R. Stewart, 20, of Rockford, was arrested for driving while license suspended after a traffic stop on Interstate 39 mile marker 110 northbound about 7:49 a.m. Stewart was released from the scene on a notice to appear.

Deputies and the Polo Fire Protection District and EMS responded to a two-vehicle crash at the intersection of U.S. Highway 52 and Freeport Road about 5:27 p.m. An investigation showed Benjamin Horn, 25, of Brooklyn, Wisconsin, was driving a yellow pickup truck north and made a complete stop at U.S. 52 and Freeport Road before proceeding through the intersection. At that time, Samuel Decrane, 27, of Dixon, was traveling west on U.S. 52 and struck Horn’s vehicle in the intersection, causing both vehicles to leave the roadway and come to rest in the ditch. Horn was cited for failure to yield.

Juan Gutierrez-Ordaz, 42, of Rockford, was arrested for driving while license suspended after a traffic stop near the intersection of Illinois Route 64 and Daysville Road about 7:36 p.m. Gutierrez-Ordaz also was cited for operating an uninsured motor vehicle, suspended registration and expired registration. Gutierrez-Ordaz was released on a notice

to appear.

Joshua Seaton, 29, of Rochelle, was arrested for aggravated driving while under the influence of alcohol and driving while license suspended after deputies checked a vehicle in the area of Illinois Route 38 and Thorpe Road that was parked at a rest area at 9:41 p.m. Seaton was released on a notice to appear and given a future court date.

May 4

Michael A. Onley-Carr, 30, of Winnebago, was arrested for driving while license suspended after a traffic stop at South Fourth and Webster streets in Oregon at 6:15 p.m. Onley-Carr also was cited for operating a motor vehicle with registration suspended. Onley-Carr was released on a notice to appear and given a future court date.

Eduardo Valerio-Ibarra, 45, of Rockford, was arrested for driving while under the influence of alcohol after a traffic stop in the 16000 block of East Ritchie Road about 8:51 p.m. Valerio-Ibarra also was cited for no taillights. Valerio-Ibarra was released on a notice to appear.

Noe G. Rosas, 32, of Hillcrest, was arrested for domestic battery after deputies responded to a report of a domestic disturbance in the 300 block of Errett Road in Hillcrest at 9:34 p.m. Rosas was taken to the Ogle County jail and held pending a court appearance. Charges are accusations and all people are presumed innocent unless proved guilty in a court of law.

with a subject in the 10 block of East Center Sreet to investigate a reported theft. After a brief investigation, Robert D. Vandyke, 43, of Mt. Morris, was arrested for theft of utility services. He also was arrested for criminal trespass to property. Vandyke was transported to the Ogle County jail where he was released with a notice to appear.

Kristina L. Tinkler, 33, of Mt. Morris,

investigated a crash report that occurred earlier in the day at 10 a.m. in the Blackhawk Center student parking lot involving a car driven by a 16-year-old of Oregon and a parked 1993 Jeep owned by Steven E. Currier, 37, of Mt. Morris. No citations were issued.

April 25

Keegan A. Rodden, 30, of Loves Park, was arrested at 4:29 a.m. for driving

was arrested at 10:10 p.m. in the 10 block of East Center Street for criminal trespass to property. Tinkler was transported to the Ogle County jail where she was released with a notice to appear.

April 27

Kristen A. Krug, 34, of Mt. Morris, was issued a citation at 4:30 a.m. for speeding 51 mph in a 30-mph zone. Krug

was released on scene.

May 2

Richard W. Majors, 57, of Mt. Morris, was arrested at 9 p.m. in the 300 block of East Lincoln Street on an Ogle County warrant for a probation violation. Majors was transported to the Ogle County jail. Charges are accusations and all people are presumed innocent until proved guilty in a court of law.

while license suspended and also issued a citation for operating an uninsured motor vehicle. Rodden was transported to the Ogle County jail where he was processed and released with a notice to appear. The violations occurred in the 200 block of West Washington Street.

Destiny J. Kahly, 29, of Oregon, was issued a citation at 4:44 p.m. for use of a cellphone while driving. The violation

occurred in the 200 block of West Washington Street.

April 27

At 2:57 p.m., police investigated a two-vehicle traffic crash in the Jay’s Drive In parking lot, 107 W. Washington Street, involving a 2014 Honda driven by Darrel L. Fischer, 82, of Rochelle, and a

See OREGON POLICE, page 9

COUNTY SHERIFF REPORTS
OGLE
POLICE
8 Ogle County Newspapers / ShawLocal.com • Friday, May 10, 2024 OGLE COUNTY NEWS

Brown, age passed 2024

Living years

health. He surrounded by family John and up in High Patricia L. (the Dixon

OBITUARIES

DONALD F. BROWN

Born: January 13, 1942

Died: May 2, 2024

version of the Lena Drive Inn), where she was a car hop. They married on September 4 1965 and shared 58 years together. They were blessed with two daughters, Brenda and Kathy.

Donald F. Brown, age 82 of Lena, passed away May 2, 2024 at the Lena Living Center after 2 years of declining health. He was surrounded by love from his family and friends during his last few days. He was born January 13, 1942 to John and Vivian (Boumgarden) Brown. He grew up in Dixon, IL, and graduated from Dixon High School in 1960. He met his bride, Patricia L. Dempsey, at the Dixon Dog n Suds (the Dixon

The family lived in Grand Detour and Franklin Grove, IL before moving to Lena in 1980, where has lived for the past 44 years. Don worked for Commonwealth Edison for 38 years retiring in 2005. He spent his retirement years helping Pat with her real estate business and maintaining various rental properties owned by he and Pat. He was often seen driving around Lena in one of his many classic cars, window rolled down and arm resting on the door. He has an extensive model train collection and enjoyed sharing it with his grandsons and any interested extended family or community member. He

version of the Lena Drive Inn), where she was a car hop. They married on September 4 1965 and shared 58 years together. They were blessed with two daughters, Brenda and Kathy.

stated he wanted to be remembered for his work ethic, which he has passed on to his daughters. He stated he had 3 loves in this world, his wife and daughters, grandsons, and his passion for classic cars. He was a member of St. John’s Lutheran Church and the Lena Lions Club. He was the chairman of the street committee for Fall Festival for 40 years and was very proud at the success of Fall Festival.

ELIZABETH A. CORCORAN

Born: February 25, 1928 in Sterling, IL

Brown of New Lenox, IL; and special friend of the family, Jacyn Stultz (Jon) Harris of Rowley, MA.

Died: April 25, 2024 in Mt. Morris, IL

Brown, age passed 2024 Living years health. He surrounded by family John and up in High Patricia L. (the Dixon

she September They Brenda Lena in years. Edison for 38 retireestate rental was of his down and extensive sharing interested member. He

version of the Lena Drive Inn), where she was a car hop. They married on September 4 1965 and shared 58 years together. They were blessed with two daughters, Brenda and Kathy.

stated he wanted to be remembered for his work ethic, which he has passed on to his daughters. He stated he had 3 loves in this world, his wife and daughters, grandsons, and his passion for classic cars. He was a member of St. John’s Lutheran Church and the Lena Lions Club. He was the chairman of the street committee for Fall Festival for 40 years and was very proud at the success of Fall Festival.

The family lived in Grand Detour and Franklin Grove, IL before moving to Lena in 1980, where has lived for the past 44 years. Don worked for Commonwealth Edison for 38 years retiring in 2005. He spent his retirement years helping Pat with her real estate business and maintaining various rental properties owned by he and Pat. He was often seen driving around Lena in one of his many classic cars, window rolled down and arm resting on the door. He has an extensive model train collection and enjoyed sharing it with his grandsons and any interested extended family or community member. He

Don is survived by his wife, Pat of Lena, children Brenda (Bob) Werhane of Lena, IL, and Kathy (Alan) Carda of Eagan, MN; grandchildren Fritz (Amy) Werhane of McFarland, WI, Adam (Credence) Werhane of Lena, and Aleks and Georgiy Carda of Eagan, MN; great-grandchildren, Bryce Werhane and Vivian Werhane; beloved granddogs,Captain, Rookie, and Aspen; brother, Russell (Sue)

• OREGON POLICE

Continued from page 8

parked 2011 Honda owned by Christian J. Jacobs, 29, of Mt. Carroll. No citations were issued.

Capria L. Allen, 24, of North Chicago, was arrested at 4:02 p.m. for driving while license suspended. Allen also was issued citations for speeding 51 mph in a

The family lived in Grand Detour and Franklin Grove, IL before moving to Lena in 1980, where has lived for the past 44 years. Don worked for Commonwealth Edison for 38 years retiring in 2005. He spent his retirement years helping Pat with her real estate business and maintaining various rental properties owned by he and Pat. He was often seen driving around Lena in one of his many classic cars, window rolled down and arm resting on the door. He has an extensive model train collection and enjoyed sharing it with his grandsons and any interested extended family or community member. He

Don is survived by his wife, Pat of Lena, children Brenda (Bob) Werhane of Lena, IL, and Kathy (Alan) Carda of Eagan, MN; grandchildren Fritz (Amy) Werhane of McFarland, WI, Adam (Credence) Werhane of Lena, and Aleks and Georgiy Carda of Eagan, MN; great-grandchildren, Bryce Werhane and Vivian Werhane; beloved granddogs,Captain, Rookie, and Aspen; brother, Russell (Sue)

Brown of New Lenox, IL; and special friend of the family, Jacyn Stultz (Jon) Harris of Rowley, MA.

Don was preceded in death by his parents, John and Vivan Brown, and Brother Warren Brown.

stated he wanted to be remembered for his work ethic, which he has passed on to his daughters. He stated he had 3 loves in this world, his wife and daughters, grandsons, and his passion for classic cars. He was a member of St. John’s Lutheran Church and the Lena Lions Club. He was the chairman of the street committee for Fall Festival for 40 years and was very proud at the success of Fall Festival.

Funeral services were held at 11:00 AM on Thursday, May 9, 2024 at St. John’s Lutheran Church in Lena, IL. A visitation wasfrom 4:00-7:00 PM on Wednesday, May 8, 2024 at St. John’s Lutheran Church in Lena, IL. Burial took place at Lena Burial Park in Lena, IL. Pastor Jason Shaw will officiate the services. In lieu of flowers, a memorial has been established for the Lena Lions Club and for St. John’s Lutheran Church. Condolences may be sent to the family at www.leamonfh.com.

Don is survived by his wife, Pat of Lena, children Brenda (Bob) Werhane of Lena, IL, and Kathy (Alan) Carda of Eagan, MN; grandchildren Fritz (Amy) Werhane of McFarland, WI, Adam (Credence) Werhane of Lena, and Aleks and Georgiy Carda of Eagan, MN; great-grandchildren, Bryce Werhane and Vivian Werhane; beloved granddogs,Captain, Rookie, and Aspen; brother, Russell (Sue)

30-mph zone and two failure to secure a child under age 8 in appropriate child restraint system citations for two children within the vehicle. Allen was transported to the Ogle County jail where she was processed and released with a notice to appear at a future date. The violations occurred in the 600 block of North Fourth Street.

See OREGON POLICE, page 15

stated he wanted to be remembered for his work ethic, which he has passed on to his daughters. He stated he had 3 loves in this world, his wife and daughters, grandsons, and his passion for classic cars. He was a member of St. John’s Lutheran Church and the Lena Lions Club. He was the chairman of the street committee for Fall Festival for 40 years and was very proud at the success of Fall Festival.

Brown of New Lenox, IL; and special friend of the family, Jacyn Stultz (Jon) Harris of Rowley, MA.

Don was preceded in death by his parents, John and Vivan Brown, and Brother Warren Brown.

Funeral services were held at 11:00 AM on Thursday, May 9, 2024 at St. John’s Lutheran Church in Lena, IL. A visitation wasfrom 4:00-7:00 PM on Wednesday, May 8, 2024 at St. John’s Lutheran Church in Lena, IL. Burial took place at Lena Burial Park in Lena, IL. Pastor Jason Shaw will officiate the services. In lieu of flowers, a memorial has been established for the Lena Lions Club and for St. John’s Lutheran Church. Condolences may be sent to the family at www.leamonfh.com.

Brown of New Lenox, IL; and special friend of the family, Jacyn Stultz (Jon) Harris of Rowley, MA.

Don was preceded in death by his parents, John and Vivan Brown, and Brother Warren Brown.

Oregon, IL - Elizabeth (Betty) Corcoran,96, of Oregon, died on April 25, 2024, with her family by her side. She was born on February 25, 1928, in Sterling, Illinois. Elizabeth was the third of five children born to James A. and Hazel (Bailey) Kereven. Elizabeth graduated from Oregon High School in 1946. After school, she worked at the Circuit Clerk’s Office at the Ogle County Court House. Elizabeth loved children and enjoyed operating Neighborhood Nursery School for over 20 years. In later years, she organized literacy seminars and tutored children in reading. She married Thomas Corcoran on August 2, 1948, and he died in 1994. Together, they raised four children in Oregon, Illinois. Elizabeth’s priority was raising her family and being involved in their activities and sports throughout the years. She enjoyed being with her family and grandchildren. She was a member of the Oregon Church of God. Elizabeth is preceded by her husband; parents; son Jim Corcoran; two sisters: Ruth Selmer and Carol Rauch; two brothers: James and Bill Kereven. Elizabeth is survived by her children: Tom (Peggy) Corcoran of Oregon

Don was preceded in death by his parents, John and Vivan Brown, and Brother Warren Brown.

Don is survived by his wife, Pat of Lena, children Brenda (Bob) Werhane of Lena, IL, and Kathy (Alan) Carda of Eagan, MN; grandchildren Fritz (Amy) Werhane of McFarland, WI, Adam (Credence) Werhane of Lena, and Aleks and Georgiy Carda of Eagan, MN; great-grandchildren, Bryce Werhane and Vivian Werhane; beloved granddogs,Captain, Rookie, and Aspen; brother, Russell (Sue)

Funeral services were held at 11:00 AM on Thursday, May 9, 2024 at St. John’s Lutheran Church in Lena, IL. A visitation wasfrom 4:00-7:00 PM on Wednesday, May 8, 2024 at St. John’s Lutheran Church in Lena, IL. Burial took place at Lena Burial Park in Lena, IL. Pastor Jason Shaw will officiate the services. In lieu of flowers, a memorial has been established for the Lena Lions Club and for St. John’s Lutheran Church. Condolences may be sent to the family at www.leamonfh.com.

Funeral services were held at 11:00 AM on Thursday, May 9, 2024 at St. John’s Lutheran Church in Lena, IL. A visitation wasfrom 4:00-7:00 PM on Wednesday, May 8, 2024 at St. John’s Lutheran Church in Lena, IL. Burial took place at Lena Burial Park in Lena, IL. Pastor Jason Shaw will officiate the services. In lieu of flowers, a memorial has been established for the Lena Lions Club and for St. John’s Lutheran Church. Condolences may be sent to the family at www.leamonfh.com.

Il; Jean (John) Deuth of Polo Il: Jan (Richard) Alcumbrack of Byron Center, Mi; daughter-inlaw Jill Corcoran of Oregon, Il.; grandchildren: Ryan (Jamie) Corcoran of Waukesha, Wi; Kevin (Jennifer) Corcoran of Oregon, Il; Daniel (Ashley) Deuth of Polo, IL; Michael (Mallory) Deuth of Polo, Il; Renee (Matt) Scholl of Polo, Il; Matthew (Jaclyn) Alcumbrack of Walker, Mi; Michelle (Clayton) Bretschneider of Byron Center, Mi; Melissa(Ryan) DeWitt of Byron Center, Mi; Brittany (Adam) Groenhagen of Oregon, Il; Sarah (Mychal) Messenger of Oregon, Il; Anna (Matt Ajvazi) Corcoran of Oregon, Il; great grandchildren: Henry Corcoran; Jasmine and Andrew Herbst; Brayden, Brock, Ellis and Emery Deuth; Logan Scholl; Olivia, Colton and Celine Alcumbrack; Noah, Broden, Asher, Judah, Bianca, Elizabeth and Zoe Bretschneider; Janiyah, Rhowen and Ennyx DeWitt; Callum, Lane, and Blair Groenhagen; Macy and Amos Messenger. A memorial service will be held at 11:00 AM on Saturday, May 11, 2024, at the Oregon Church of God, with Pastor Michael Hoffman officiating. A visitation will be held prior to the service from 9:30 AM to 11:00 AM. A private burial will be held after the luncheon. The family would like to thank Pinecrest Manor and Serenity Hospice for the wonderful care given to Elizabeth. A memorial fund for Serenity Hospice and Home has been established in Elizabeth’s name. Please visit www. farrellhollangale.com to leave a condolence or memory of Elizabeth.

9 OGLE COUNTY NEWS Ogle County Newspapers / ShawLocal.com • Friday, May 10, 2024 SM-ST2162381 Boarding • Grooming Dentistry • X-ray Surgical Laser • Gas Anesthetic Laser Therapy Dr. Nicole Marquardt Dr. Lynn Deets Rochelle Veterinary Hospital 1381 North 7th Street, Rochelle www.rochellevet.com 815-562-5207 Hours: M-F 8am-5pm • Sat 8am -Noon

Ribbon-cutting for Polo’s new FFA greenhouse

Sheryl

HIGH SCHOOL SPORTS ROUNDUP

Baseball

Oregon 10, Rock Falls 6: The visiting Hawks scored four runs in the fifth, two in the sixth and one in the seventh to pull away for the win. Jack Washburn homered, scored two runs and drove in a run, Keaton Salsbury was 2 for 4 with two runs scored and Kade Girton was 2 for 5 with two RBIs for Oregon. Austin Castaneda was 3 for 5 with two doubles and two RBIs and Cadon Schulz was 2 for 3 for Rock Falls.

Forreston 20, Polo 0: The Cardinals scored eight runs in the second inning and 10 in the third for a runrule win. Carson Akins was 3 for 3 with two doubles, a triple, three runs scored and three RBIs, Daniel Koehl was 3 for 4 with a double, two runs scored and five RBIs and Brendan Greenfield went 2 for 2 with a double, four runs scored and an RBI for Forreston (16-7).

Byron 10, Dixon 0 : Byron’s Braylon Kilduff pitched a two-hitter with five strikeouts and the Tigers scored seven runs in the second and took advantage of six Dixon errors. Aiden Wiseman and Brady Lawrence had hits for Dixon.

Polo 15, South Beloit 1 (5 inn.): The biggest offensive output of the season lifted the Marcos to the win over the Sobos. Nolan Hahn led the attack

with four hits and four RBIs. Carter Merdian, Gus Mumford and Jeffrey Donaldson had two RBIs each for Polo (6-14).

Galena 6, Forreston 5: The Pirates scored three times each in the fifth and sixth innings to take the NUIC contest from the Cardinals. Carson Akins doubled twice and drove in three runs for Forreston (18-8-1).

Rock Falls 7, Oregon 3: Six runs in the first two innings were more than enough as the Rockets rolled in the BNC. Carter Schueler struck out eight in just over five innings for Rock Falls (13-12, 11-5). Carter Hunter led the offense for the Rockets with two RBIs.

Keaton Salsbury had two RBIs for Oregon (11-15, 6-10).

Forreston 5-7, Milledgeville 1-3: Carson Akins homered and scored two runs, Brendan Greenfield was 2 for 3 with a double, two runs scored and an RBI and Daniel Koehl was 2 for 3 with a double and two RBIs for the Cardinals in Game 1. Bryson Wiersema was 2 for 3 and drove in Milledgeville’s lone run.

In the second game, Alec Schoonhoven was 2 for 4 with two doubles, two runs scored and two RBIs and Akins was 2 for 4 with two doubles

See ROUNDUP, page 12

Alcohol

10 Ogle County Newspapers / ShawLocal.com • Friday, May 10, 2024 OGLE COUNTY NEWS 800-242-7642 www.sinnissippi.org Dixon • Freeport • Mt. Carroll Sterling • Rochelle • Oregon
million
in the United States.
status,
factors.
APRIL is
Awareness MONTH • Alcohol Use Disorder (AUD) affects about 15
adults
• Anyone can have an AUD, regardless of education, economic
or other
• The later in life an individual starts drinking alcohol, the lesser the odds they will develop an AUD. • Treatment works, recovery is possible. Take a free, confidential, online screening at www.sinnissippi.org/links
Polo High School’s new greenhouse officially opened May 1. The building is located just east of the high school. Alec Wetzell and Stephanie Schultz, Polo High School ag teachers and FFA advisers, cut the ribbon to officially open the school’s new greenhouse May 1. Standing with Wetzell are Polo FFA members and members of the community who helped support the new structure. Lyle and Hopkins, representing Pine Creek Christian Church, look over some of the plants for sale inside Polo High School’s new greenhouse. The church made a sizable donation toward the greenhouse project.

Oregon outslugs Rock Falls in Big Northern clash

ROCK FALLS – There weren’t too many zeroes put up on the scoreboard Monday when Rock Falls hosted Oregon in a Big Northern Conference softball clash.

The teams combined for 32 runs, 31 hits and 26 RBIs as the Hawks avenged a loss earlier in the season with a 21-11 win in six innings.

Both teams got the bats going. Ten Oregon players had hits, nine drove in runs and eight players scored runs. Rock Falls saw all 10 players reach base. Eight of them had hits and seven recorded RBIs in the slugfest.

The Hawks (16-10, 9-7 BNC) got the fireworks started with six runs in the top of the first. Olivia Paul ripped a two-run single and scored on a double steal when the throw went to second base. Brooke Halverson added an RBI single and two runs scored on a twoout error in the outfield.

“It means a lot to get that fast start.

It gets the team going, gets our energy up. It’s pretty big for us to get that big lead,” Abree Barker said. “It was very nice to see this today. It gives us all confidence that we all can get the job done personally and that helps us play better as a team.”

Another two-out error in the second led to Sarah Stevens’ RBI single and it was 7-0 Hawks through an inning and a half.

Rock Falls (11-5, 7-7 BNC) got its bats warmed up in the bottom of the second. Nicolette Udell scored on a wild pitch before Emma Skinner and Jeslyn Krueger had RBI hits. Kaltrina Lecaj added a run-scoring sacrifice bunt.

“We just have really good team chemistry and we’re always trying to keep our energy up even when we’re down,” Olivia Osborne said. “In the dugout, we’re always cheering for our teammates, we’re always picking each other up and supporting each other and it really goes a long way when we stay together as a team.”

Oregon answered in the top of the third. Hayleigh Heuerman smacked a two-run homer to left-center and Ella Dannhorn, Barker and Paul ripped

back-to-back-to-back doubles for an 11-4 lead.

“I felt like we kept going and our

team kept pushing each other. We were very loud today in the dugout, supporting each other all the time,” Paul said.

The Rockets left the bases loaded in the bottom of the third, but reliever Korah Hosler worked a 1-2-3 inning in the top of the fourth before Rock Falls rallied again.

Jeslyn Krueger beat out an infield single, stole second and scored on an error. Maddie Morgan blooped a single into short right field for an RBI. Osborne scored on a wild pitch. Udell ripped an RBI single into left to cut the deficit to 11-8.

“I think our attitudes were good, but we had too many errors and misplays and they were silly errors, just fundamentals. That’s on us. That shouldn’t happen. I think we’ve just got to learn to calm down and just not take those bunnies for granted,” Udell said. “Normally we have a problem where we take our fielding into our at-bats and we’ve really been working on that. We didn’t let the errors bother us at the plate today and we all trusted each other.

Hawks, Rockets combine for 32 runs, 31 hits in slugfest
Shaw
Brian Hurley Oregon’s Hayleigh Heuerman is all smiles after hitting a home run against Rock Falls in Oregon’s 21-11 win May 6.
PREP SOFTBALL: OREGON 21, ROCK FALLS 11 See SLUGFEST, page 13 11 OGLE COUNTY NEWS Ogle County Newspapers / ShawLocal.com • Friday, May 10, 2024 CALL FOR A FREE LITERATURE PACKAGE 779-861-3542 ROCKYR@IBYFAX.COM WE SPECIALIZE IN PORTABLE STRUCTURES! Large or Small, You Name It, We Design It, We Build It...YOU LIKE IT! STOP & SEE OUR DISPLAY MODELS 3500 S. CHANA RD., CHANA, IL 61015 To request your FREE copy, simply call us at (815) 632-2566 or email your requests and address to: knull@saukvalley.com Now Available

• ROUNDUP

Continued from page 10

and a run scored for Forreston, which rallied with four runs in the sixth and one in the seventh.

Kendall Erdmann threw three innings of shutout relief. Connor Nye was 2 for 3 with a double and two RBIs for Milledgeville.

Warren/Stockton 17, Polo 4: Nolan Hahn was 3 for 3 with a double, a run scored and an RBI for Polo.

Softball

Polo 17, Forreston 5 (6 inn.) : Sydnei Rahn went 5 for 5 with five singles and an RBI, Cheyenna Wilkins had a single, two doubles and two RBIs, Alissa Marschang had two singles and two RBIs and Karlea Frey had two doubles and an RBI for Polo. Camrynn Jones struck out four and allowed no earned runs on three hits in relief.

Oregon 9, Byron 4: Led by three hits from Ella Dannhorn and three RBIs by Gracen Pitts, Oregon notched the triumph.

Brooke Halverson (4 IP, 1 R) earned the win. Alexi Czochara (3 IP, 5 K) picked up the save. Olivia Paul added two hits for the Hawks (14-9).

North Boone 12, Oregon 0: The Hawks were limited to one hit.

Polo 10, South Beloit 0 (5 inn.): Camrynn Jones went all five innings in the circle, striking out nine. She also had a pair of RBIs to pace the Marcos offense. Cheyenna Wilkins had four hits and

drove in two. Sydnei Rahn had three RBIs for Polo (7-12, 4-6).

Galena 10, Forreston 2: The Pirates scored seven times in the first inning and never looked back in the NUIC contest. Ayla Kiper had three hits and McKenna Rummel had two hits for Forreston (7-17).

Oregon 13, Hall 1: Ella Dannhorn, Olivia Paul and Gracen Pitts each had three RBIs and winning pitcher Brooke Halverson struck out four over five innings for the Hawks.

Girls track and field

Forreston Girls Meet: The host Cardinals captured the team title, scoring 203 points. West Carroll was fourth and Aston-Franklin Center took sixth.

Laynie Mandrell won the 300 hurdles, Sydni Badertscher won the shot put and discus and Letrese Buisker was first in the high jump. Ashlyn Rinaldi won the long jump for the Cardinals. Emma Randecker won the 100 and 200 meters for West Carroll.

Boys track and field

Milledgeville Missile Invite: Morrison captured the team title with 104 points. Newman was third and Forreston was fourth.

Brady Anderson took the 100 and Levi Milder won the 200 for Morrison. Lucas Simpson won the 800 and Lucas Schaab was first in the 3,200 for Newman. Eli Ferris won the high jump for Forreston.

See ROUNDUP, page 13

12 Ogle County Newspapers / ShawLocal.com • Friday, May 10, 2024 OGLE COUNTY NEWS
ACCIDENT LAWYERS CALL NOW FOR A FREE CASE REVIEW (630) 232-7450 WEBSITE: www.fmcolaw.com EMAIL: plc@fmcolaw.com THIS IS ATTORNEY ADVERTISING sponsored by Foote, Mielke, Chavez & O’Neil, LLC (“FMCO”), 1541 E Fabyan Pkwy, Suite 101, Geneva, Illinois 60134. The information contained herein is provided as general reference not intended to be legal advice. Past performance is not an indication of future results. Attorney-client relationship is not formed until a fee agreement is signed by you and the law firm.
TRUCK
Earleen Hinton Polo’s Cheyenna Wilkins scores a run as she collides with Forreston catcher Maddie Chesnek ahead of the throw to home plate May 2 at Forreston High School. Earleen Hinton Forreston’s Isabella Thiel (left) and Ella Ingram go after a pop fly during a May 2 game against Polo at Forreston High School.

• ROUNDUP

Continued from page 12

Soccer

Oregon 7, Hinckley-Big Rock 1: The visiting Hawks were led by two goals and two assists from Mya Englekes and two goals from Anna Stender. Deborah Schmid added one goal

• SLUGFEST

Continued from page 11

“When someone else went up today, we knew we could count on them to get the job done.”

The Hawks again had an answer in the next inning, scoring eight runs in the top of the fifth. Barker smacked her second RBI double in as many at-bats and Paul singled her in. Haleigh Burkhart and Kaelin Shaffer ripped RBI singles and Dannhorn and Barker drew bases-loaded walks before Paul collected her second RBI single of the inning with a two-run base hit to center for a 19-8 lead.

“I just feel where the ball is. I’m not very picky about where it’s at. I just try to put it in play every time,” Paul said. “Our team is very good about doing our best and playing as well as we can no matter where we play in the field or in the batting order.”

“We were very eager to get back up to bat every time,” Barker said. “They beat us before and we just wanted to get ahead and keep it going, keep our energy up.”

Rock Falls wasn’t done. Osborne and Ari Reyna ripped RBI singles and Morgan added a run-scoring groundout to extend the game with the Rockets trailing 19-11.

Halverson’s two-run single stretched the lead to 21-11 in the top of the sixth and she came back into the circle to pitch a 1-2-3 bottom of the

and an assist, Kenna Wubbena tallied a goal and two assists and Sarah Eckardt scored a goal. Mili Zavala recorded three saves.

Oregon 8, Rochelle 1: Deborah Schmid had three goals and two assists, Anna Stender had two goals and three assists and Sarah Eckardt added two goals and an assist for the Hawks. Mili Zavala made seven saves in goal.

inning to end the game. Halverson had started the game before giving way to reliever Alexya Czochara in the fourth inning.

Paul was 4-for-5 with a double, two runs and six RBIs. Barker was 3-for-4 with two doubles, three runs and three RBIs. Burkhart had two hits, two runs and an RBI, Stevens and Halverson each had two hits and an RBI and Czochara and Heuerman each drove in a pair of runs for Oregon.

Udell was 3-for-3 and reached base in all four plates appearances for Rock Falls, scoring a run and driving in another. Skinner had two hits, scored twice and drove in a run. Krueger had two hits, two runs and an RBI, Lecaj scored twice and drove in a run and Morgan added two RBIs for the Rockets.

“We learned a lot this game. We need to clean some things up, but I think overall we didn’t do too bad,” Osborne said. “We have to cut out the errors and communicate more and just keep fighting when we’re behind.”

“It was a strange game. I don’t know what it was, we just couldn’t get over the hump,” Udell said. “Even though we lost, we were keeping positive thoughts and not focusing on the bad things. We were all trying to have fun, staying loose and just playing softball. I don’t think we thought about the fact that we were losing. We were in the mindset that it was just a game and we can keep working on things. Everyone was contributing and doing their job.”

13 OGLE COUNTY NEWS Ogle County Newspapers / ShawLocal.com • Friday, May 10, 2024 ConfidentHardworking Empathy hopeful PRACTICAL Independent diligent persistent Disciplined Bold ExperiencedThoughtful dauntless CURIOUS attentive Integrity Professional Resourceful Authoritative BRAVEgenerous Calm Adaptable Innovative DEDICATED Compassionate powerful IDEAS Courageous Trust knowledge skilled resilient WWW.CGHMC.COM All year long, CGH nurses go above and beyond to care for patients and families and improve the delivery of healthcare. During National Nurses Week, CGH Medical Center is proud to honor and celebrate the dedication these caregivers show every day in our hospital, clinics, and in our communities. To all of our CGH nurses – Thank You! Your dedication, commitment and tireless effort does not go unnoticed. Happy Nurses Week! 100 E LeFevre Road Sterling, IL 61081 (815) 625-0400
Earleen Hinton Oregon goalie Mili Zavala covers a shot during a May 4 game at Rochelle High School.

Ogle County Track & Field meet did not disappoint

There were a couple of notable items from the Ogle County Track & Field Meet. In the boys portion, the 119.33 to 119 win by Forreston-Polo over Rochelle was the closest margin in the 50-year plus history of the meet. Additionally, Andrew Nuyen of Rochelle became the first pole vaulter in the county to crack the 15-foot barrier.

Not having any pole vaulters, let alone facilities to practice on, Forreston-Polo gave up 14 points in that event to Rochelle in the team scoring. It made up that handicap by winning the meet’s final event, the 1,600-meter relay.

However, Forreston-Polo needed one other team to finish ahead of Rochelle in the relay to pull out the narrow .33 win. It was Stillman Valley coming to the rescue by taking second, while Rochelle settled for third.

Instead of focusing only on baseball and weightlifting in the spring, Stillman Valley boys track team recently has made strides under coach Matt McMullen, a former state medalist pole vaulter for Byron.

For now, though, the balance of power lies with Forreston-Polo. The perennially strong team looks to be even stronger in the years to come with a standout freshman group.

Congratulations to the F-P girls for

Andy Colbert GUEST VIEW

making it a clean sweep with a 102-96 win over Rochelle. It was its second straight county title.

It was almost 50 years ago in this same meet that I competed against eventual Class A state champ Jerry Champlain of Stillman Valley in the pole vault. Thus, it was special for me to witness a kid young enough to be a grandson make that momentous 15-foot vault.

Sophomore Andrew Nuyen has the potential to be one of the finest ever to come out of Illinois in the vault. But there is another sophomore from Bloomington Central Catholic that has gone over 17 feet.

These youngsters keep getting better and better. One advantage Nuyen has is a pole vault pit to practice on at his Creston home. His exploits might be the biggest thing in town since Lyle Headon put it on the map for his meat market.

It’s not just the boys either. On Friday at the conference meet, Mia Strahm of Elmwood became the first girl in Illi-

nois to make 14 feet in the pole vault. That effort ranks No. 3 in the country and although Strahm is a junior, she is opting to move on to college early and forgo her final season of eligibility.

It wasn’t that many years ago that a lawsuit against the IHSA was needed to allow girls to pole vault. In a chauvinistic attitude, officials at the IHSA had for many decades considered girls physically incapable of handling the rigors of vaulting.

How wrong that attitude proved to be, much in the same manner that women were not allowed to compete in the Boston Marathon.

As expected, Byron (2A) and Forreston (1A) picked up No. 1 seeds in baseball sub-sectionals. Icing on the cake will be winning regionals to advance to their own home sectionals. Postseason begins May 13.

Byron does have a long road trip with its regional at Port Byron. Forreston goes to a familiar site at AFC.

In 2A softball, Stillman Valley picked up a No. 1 sub-sectional seed and will be close to home at the Oregon Regional. Marengo, a traditional power and also a No. 1 sub-sectional seed, will host the sectional.

Another potential foe from that sectional is Aurora Central Catholic.

SV would have to get through both ACC and Marengo to make the supersectional where a tough Elmhurst IC might be waiting.

In 1A softball, Dakota looks like the area team to beat in the sectional.

With so many students driving or being dropped off at school, Oregon held a “Walk, Roll or Ride” day with awards for the best-decorated bikes. In all parts of the country something like this is badly needed to promote healthier options and get cars off the streets.

According to national data, only 1-in-10 kids walk or bike to school. Americans of all ages are less active, with students particularly at risk for long-term health issues because of being chauffeured everywhere or sitting at home more.

A comment I often hear from area coaches is that athletes come into sports with far less physical endurance than past generations although weight training has progressed.

Finally, in this day and age of fans being charged entrance fees for everything from varsity down to gradeschool age athletic events, it was refreshing to see Rochelle retain its long-standing tradition of not charging an admittance fee to the county track meet.

& Trust Services

14 Ogle County Newspapers / ShawLocal.com • Friday, May 10, 2024 OGLE COUNTY NEWS 1 W. Hitt Street | Mount Morris, IL 61054 www.unionsavingsbank.com LOCAL. TRUSTED. EXPERIENCED. Investment
Let us be your trusted partner in securing your financial future. • Trust Services Protect your legacy with customized trust solutions. • Retirement Planning Achieve your dream retirement with our expert planning. • Investment Management Tailor-made strategies for personal, business, & non-profit assets.
Estate Planning & Administration Simplify estate settlement & ensure your wishes are honored. • Farm Management Preserve your agricultural legacy & ensure a seamless transition to future generations. Reach out today for a FREE consultation & take the first step towards peace of mind. 815.235.0827 Amanda Walter Senior Trust Officer | CTFA Securities services are not FDIC insured. NOT GUARANTEED by the financial institution or any Federal Government Agency. Subject to risk and may lose value. Not a deposit of a bank. Serving Older Adults and Their Families Throughout Ogle Country Caregiver Services Education/Recreation Trips & Tours www.rockrivercenter.org 810 South 10th Street, Oregon 815-732-3252 • 800-541-5479 Community Partner Senior Information Service Transportation Medicare Counseling SM-ST2158599

Continued from page 9

At 11:05 p.m., police responded to a disturbance call in the 300 block of South Second Street resulting in the arrest of Divante C. T. Zinke, 21, of Oregon, for battery. Zinke was transported to the Ogle County jail where he was processed and released with a notice to

appear.

At 11:26 p.m., police received a driving complaint on a vehicle that was stopped in the 900 block of West Washington Street. Upon investigation, Mateus Pytlak, 26, of Zion, was arrested for driving while under the influence of alcohol, driving while license suspended, obstructing identification and resisting or obstructing a peace officer. Pytlak

OGLE COUNTY PROPERTY TRANSFERS

April 26 - May 2

Warranty deeds

The late Emma N. Brooks and Merritt M. Gray to Larry E. and Gary R. Groenhagen, 484 N. Meridian Road, Chana,$40,000.

Jocelyn Lopez and Joseph Pichon to Joesph Welu, 101 Center Ave., Chana, $95,000.

James Bass and Janaey Ericka Cox to Gaven J. and Tracy L. Meiners, 229 Deer Paint Drive, Dixon, $4,500.

William Palmer to Amanda E. Burgett and Skyler W. Miller, 02-28-379-001, 409 N. Walnut Ave., Forreston, $119,000.

National Residential Nominee Services Inc. to Christopher and Erica Jordan, 228 Irene Ave., Rochelle, $164,900.

Caden Miller to National Residential

Nominee Services Inc., 228 Irene Ave., Rochelle, $164,900.

Krista Heng and Karen Harmon to Double K. Properties LLC, 3261 S. Daysville Road, Oregon, $0.

Diorgenes and Celsa Rodriguez to Edgar Hernandez Haro, 1202 W. First Ave., Rochelle, $176,000.

Patrick and Jennifer Homeyer to Cristina Dewey and Seth Wolber, 604 Main St., Leaf River, $180,000.

Haywell LLC Westwood to Danny J. and Roxanne Sabo, 6363 S. Westwood Drive, Rochelle, $344,900.

Jill M. Peters to Nelly Hermosillo, 1061 Westview Drive, Rochelle, $182,000.

Miranda R. Cox to Zoie A. Sellers and John J. Oelrichs, 105 E. Elm St., Forreston, $135,000.

also was issued a citation for operation of a vehicle when registration is suspended for non-insurance. Pytlak was transported to the Ogle County jail where he was left in the custody of the corrections officers.

April 28

At 12:13 a.m., police responded to a disturbance call in the 300 block of North Fourth Street resulting in the

arrest of James D. Wright, 41, of Oregon, for criminal trespass to a residence. Wright was transported to the Ogle County jail where he was processed and released with a notice to appear.

Four verbal warnings and one parking citation were issued April 22-28.

Charges are accusations and all people are presumed innocent until proved guilty in a court of law.

Arrowen P. and Joy Lynn McNamara to Jaime Prehn, 207 E. Brayton Road, Mt. Morris, $179,000.

Christine Jill Poff to Timmie D. Stewart Revocable Living Trust, Timmie D. Stewart, trustee, 409 E. Buffalo St., Polo, $63,000.

Kerri Villa-Nantz to Raymond Lee and Michelle Renee Hershberger, 1500 Kings St., Kings, $255,000.

Grant and Martha Armbruster to Timothy W. and Jennifer A. Boehle, 7674 W Pines Road, Oregon, $650,000.

Roy W. and Dorothy L. Spratt to Cristapher Prusia, 201 S. Barber Ave., Polo, $80,000.

Quit claim deeds

Brigitte A. Santiago to Olivia Anne Joline Hernandez, 2763 Brooks Island

Road, Oregon, $0

Gordon Sabados to Tricia Braun, 316 Knollwood Drive, Dixon, $0. Trustees deeds

Wade W, Maradei Trust, Dale T. Maradei, trustee, to Seldal Properties LLC, six parcels in Flagg Township, Rochelle, $700,000.

Houston Family Trust, Linda D. Whitlow and William F. Houston, trustees, to Ryan R. and Marcy M. West, three parcels in Taylor Township, $15,000.

Paul J. O’Rorke Revocable Trust, Paul J. O’Rorke, trustee, and Elizabeth Anne Reed Revocable Trust, Elizabeth Anne Reed, trustee, to Michael Jongmin Cha, 820 Lincoln Highway, Rochelle, $179,000.

Source: Ogle County Recorder’s Office

• OREGON POLICE
15 OGLE COUNTY NEWS Ogle County Newspapers / ShawLocal.com • Friday, May 10, 2024 Proudly serving Ogle County for 25 years Mon-Fri 6:15a - 5:30p 108 North Second St • Oregon, IL 61061 Full-Time Day Care and Preschool 815-732-3760 SM-ST2155865

CLASSIFIED

Heavy Highway Contractor looking for motivated individuals seeking laboring positions in the S auk Valley Area. Please email resume to: info@martin coin c.net

SEMI T RUCK DRIVE RS

Heavy Highway Contractor looking for Semi Truck Drivers in Sauk Valley Area Du mp trailer experience a must. Email resume to: SemiTruckDriverS auk@yahoo.com

On-Air Talent / Audio Production

Peru

Shaw Lo cal Radio is searching for an experi enced, engaging, relatable, comm unity -focused

Full-Time On-Air Talent to complement the music in the morning o n our Classic Hits 106 station

Our goal is to super-serve the commu nity through locally focused, locally produced programs from our LaSalle / Peru, IL studios There will be some "format flexibility" with your ability to fill in on any of our sister stations, Walls 102, Q Hit Music, Classic Country WG LC, and 98.5 SPL. Proficiency in utilizing Adobe Audition to conduct client recording sessions, and produce creative commercials and on-air content is a must! We are actively involved in our communities, supporting local service organizations, and providing local news, sports, and programming content You will be ex pected to represent our stations professionally and enthusiastically at public appearances or station events. As a crea tive, passionate broadcaster, you w ill become a part of our winning team culture!

Key Responsibilities:

Host daily on-air show Monday – Friday

Conduct on-air interviews

Engage with listener s on social media

Promote the station and its events

Qualificatio ns and Skills:

At least 1 year of experience as an on-air radio personality

Proficiency in Adobe Audition

Skill in control board ope ration and remote bro adcasting

Knowledge of basic FCC rules and regulatio ns

Strong kno wledge of music and current events

What you will receive in return:

Conduct live remotes and appearances

Maintain a positive and professional attitude

Produce commercials for clients

Ex cellent communication and interpersonal skills

Ability to speak in front of an audience and interact with listeners in a public setting

Ability to work independently & as par t of a team

Ability to work flexible hours, including nights and weekends

You will get a supportive work environment, collaborating with some of the most talented colleagues in the broadcast industry, and managers who value your work, time, and per spective. In return for your contributio ns to our success, Shaw Media offers a co mprehensive benefits package, including medical, dental, vision, life, paid time off, and 401(k) with company match.

Qualified candidates, please submit a cover letter, alo ng with a resume , air-check & production sampl e: Online: www.shawmedia.com/career s or mail to:

Shaw Media - Human Resources, attn: On-Air Talent, PO Box 250, Crystal Lake, IL 60039

Shaw Media is an Equal Employment Opportunity and Drug-free Employer Pre-employment background check, motor vehicle record, and drug screen required.

MAY 25 10:00 A.M.

W. Butz Rd., Pearl City, IL 61062

Note- Largest Collection of Corn related items in Midwest: 17+ Wood & Steel 2 Row Corn Planters, all restored & painted 1850-1950: Union, Brown, Keystone, Barlow, Evans, Champion, Peters, Blackhawk, Deere, Case, Hayes, IHC, Parlin, etc; 50+ Tin Seed Corn Signs (see website for list of signs); 50+ Cast Iron Implement Seats (see website for list of seats); 1876 Hoosier Drill, 3’; 2 hp Stover, Freeport Gas Engine; Triple Wood Box w/ high wheels gear & Spring Seat, Studebaker Co; Wood Flair Box & Gear w/ IHC End gate Seeder; 30+ Seed Corn Sacks; 1870 Vulcan Wood Beam Walking Plow; Steel Walking Plow; IHC 1 Row Corn Binder, mint; 1939 IHC F-12 NF on Steel wheels; 1920 Indian Statue w/ panorama background; Seed Corn Grader; Feed Cutter; Broom Corn Cutter; Rope Check Rower; Assorted Hand Planters; Superior Cast Iron Tool Box; Horse drawn 2 R. Markers; Holbrook 1 R. Seeder; Corn Dryers; Steel Planter Box Lids; Scoop Board; 1850 Hand Push Seeder; 30+ Cloth Seed Bags; Blackhawk Corn Sheller; 4’x3’ Corn Binder; O.E. Thompson 11’ Wheel Seeder WB; Corn History Books; Many small antique items related to seed corn.

SPECIAL: Restored 1955 Willy’s Jeep. Excellent cond! MISC. FARM & HOUSEHOLD ANTIQUES: Sleepy Eye Pitcher; Shawnee Pottery; Arcade Toys; Oak Cottage Pump Organ; Cream Separator; Platform Scale; Crocks; Butcher Kettle; Hay Trolley; McDeering 1R. HD Cultivator; Other old History Books; 1880 Stephenson Co. History Book; Plus much more. 3-4 wagons full of assorted Farm Antiques.

Note: Very large auction of superb, clean, rare items collected all over the U.S.! Too many to list. Be sure to see website for listing of tin corn signs and cast iron seats. from all over the U.S. An unusual collection of corn items; quite a rare treat, so don’t miss out! Call Auctioneer with questions.

Terms: Cash or check with picture ID. Check website for pictures & more information: www.Proauctionsllc.com

GARNHART, AUCTIONEER

16 Ogle County Newspapers / ShawLocal.com • Friday, May 10, 2024 OGLE COUNTY NEWS
RICK
AUCTION SAT.
“CORN
JIM
ESTATE 9391
German Valley, IL 61039 815-238-3044 IL Lic: 440000901 • WI Lic: 2844-52
ITEMS COLLECTOR’S MUSEUM” PLUS OTHER FARM RELATED ANTIQUES
BRANDT
AUCTIONS AUCTIONS AUCTIONS EMPLOYMENT EMPLOYMENT
EMPLOYMENT EMPLOYMENT
EMPLOYMENT EMPLOYMENT EMPLOYMENT EMPLOYMENT EMPLOYMENT Find the Perfect Job Now you can access local job listings in one online location! Jobs.ShawLocal.com ROCK FALLS EFFICIENCY -Furni shedUtili ti es incl. $175/wk. 815-626-8790

IN THE CIRCUIT COURT FOR THE 15TH JUDICIAL CIRCUIT

OG LE COUNTY - OREGON, I LLINOIS

Citibank, N.A as Owner Trustee of New Residential Mortgage Loan Trust 2018-1 PLAINTIFF

Vs. Timothy J. Danner; et. al. DEFENDANTS

No. 2023FC20

NOTICE OF SHERIFF'S SALE OF REAL ESTATE

PUBLIC NOTICE IS HEREBY GIVEN that pursuant to a Judgment of Forecl osure and Sale entered in the above cause on 12/15/2023, the Sheriff of Ogle County, Illinois will on June 14, 2024 at the hour of 10:00 AM at Ogle County Public Safety Complex 202 S 1st St. Oregon, IL 61061, or in a place otherwise designated at the time of sale, County of Ogle and State of Illinois, sell at public au ction to the highest bidder for cash, as set forth below, the following described real estate: PIN 03-12-127-006

Improved with Si ngle Family Home

COMMONLY KNOWN AS: 3569 West Egan Road Egan AKA Leaf River, IL 61047

Sale terms: 10% down of the highest bid by certified funds at the close of the auction; The balance , including the Judicial sale fee for Abandoned Residential Property Municipality Relief Fund, which is calc ulated at the rate of $1 for each $1,000 or fracti on thereof of the amount paid by the purchaser not to exceed $300, in certified funds, is due within twenty-four (24) hours. The subject property is subject to general real estate taxes, special assessments, or special taxes levied against said real estate and is offered for sale without any r epresentati on as to qua lity or quantity of title and without recourse to Pla intiff and in "AS IS" condition

The sale is further subject to confirmation by the court.

If the property is a condominium and the foreclosure takes place after 1/1/2007, purchasers other than the mortgagees will be required to pay any assessment and legal fees due under The Condominium Property Act, 765 ILCS 605/9(g)(1) and (g)(4).

If the property is located in a common interest community, pur chasers other than mortgagees will be required to pay any assessment and legal fees due under the Condominium Property Act, 765 ILCS 605/18.5(g-1).

If the sale is set aside for any reason, the Purchaser at the sale shall be entitled only to a return of the deposit paid. The Purchaser shall have no fur ther recourse against the Mortgagor, the Mortgagee or the Mortgagee 's attorney. Upon pay ment in ful l of the amount bid, the purchaser shall rece ive a Certificate of Sale, which will entitle the purchaser to a Deed to the real estate after Confirmation of the sale . The successful purchaser has the sole responsibility/expense of evicting any tenants or other individuals presently in possession of the subject premises.

The property will NOT be ope n for ins pection and Plaintiff makes no represen tation as to the condition of the property. Prospective bidders are admonished to check the Court file to verify all infor mation

IF YOU ARE THE MORTGAGOR (HOMEOWNER), YOU HAVE THE RIGHT TO REMAIN IN POSSESSION FOR 30 DAYS AFTER ENTRY OF AN ORDER OF POSSESSION, IN ACCORDANCE WITH SECTIO N 15-1701(C) OF THE ILLINOIS MORTGAGE FORECLOSURE LAW.

For informati on: Examine the court file or contact Plaintiff's attor ney: Codilis & Associates, P.C., 15W030 North Frontag e Road, Suite 100, Burr Ridge, IL 60527, (630) 794-9876. Please refer to file number 14-23-00010. I3243103

May 3, 10, 17, 2024

IN THE CIRCUIT COURT FOR THE 15TH JUDICIAL CIRCUIT OG LE COUNTY - OREGON, I LLINOIS

Community Banc Mortgage Corp

PLAINTIFF

Vs. Justin Abell; et. al.

DEFENDANTS

No. 2023FC30

NOTICE OF SHERIFF'S SALE OF REAL ESTATE

PUBLIC NOTICE IS HEREBY GIVEN that pursuant to a Judgment of Forecl osure and Sale entered in the above cause on 07/07/2023, the Sheriff of Ogle County, Illinois will on June 14, 2024 at the hour of 10:00 AM at Ogle County Public Safety Complex 202 S 1st St. Oregon, IL 61061, or in a place otherwise designated at the time of sale, County of Ogle and State of Illinois, sell at public au ction to the highest bidder for cash, as set forth below, the following described real estate: PIN 24-36-228-004

Improved with Residential

COMMONLY KNOWN AS: 217 Southview Dr Rochelle, IL 61068

Sale terms: 10% down of the highest bid by certified funds at the close of the auction; The balance , including the Judicial sale fee for Abandoned Residential Property Municipality Relief Fund, which is calc ulated at the rate of $1 for each $1,000 or fracti on thereof of the amount paid by the purchaser not to exceed $300, in certified funds, is due within twent y-four (24) hours. The subject property is subject to general real estate taxes, special assessments, or special taxes levied against said real estate and is offered for sale without any r epresentati on as to qua lity or quantity of title and without recourse to Pla intiff and in "AS IS" condition

The sale is further subject to confirmation by the court.

If the property is a condominium and the foreclosure takes place after 1/1/2007, purchasers other than the mortgagees will be required to pay any assessment and legal fees due under The Condominium Property Act, 765 ILCS 605/9(g)(1) and (g)(4).

If the property is located in a common interest community, pur chasers other than mortgagees will be required to pay any assessment and legal fees due under the Condominium Property Act, 765 ILCS 605/18.5(g-1).

If the sale is set aside for any reason, the Purchaser at the sale shall be entitled only to a return of the deposit paid. The Purchaser shall have no fur ther recourse against the Mortgagor, the Mortgagee or the Mortgagee 's attorney.

Upon pay ment in ful l of the amount bid, the purchaser shall rece ive a Certificate of Sale, which will entitle the purchaser to a Deed to the real estate after Confirmation of the sale . The successful purchaser has the sole responsibility/expense of evicting any tenants or other individuals presently in possession of the subject premises.

The property will NOT be ope n for ins pection and Plaintiff makes no represen tation as to the condition of the property. Prospective bidders are admonished to check the Court file to verify all infor mation

IF YOU ARE THE MORTGAGOR (HOMEOWNER), YOU HAVE THE RIGHT TO REMAIN IN POSSESSION FOR 30 DAYS AFTER ENTRY OF AN ORDER OF POSSESSION, IN ACCORDANCE WITH SECTIO N 15-1701(C) OF THE ILLINOIS MORTGAGE FORECLOSURE LAW.

For informati on: Examine the court file or contact Plaintiff's attor ney: Codilis & Associates, P.C., 15W030 North Frontag e Road, Suite 100, Burr Ridge, IL 60527, (630) 794-9876. Please refer to file number 14-23-03345.

I3243378

May 10, 17, 24, 2024

17 OGLE COUNTY NEWS Ogle County Newspapers / ShawLocal.com • Friday, May 10, 2024 REAL ESTATE REAL ESTATE REAL ESTATE REAL ESTATE
REAL ESTATE REAL ESTATE REAL ESTATE REAL ESTATE
Job listings online Jobs.ShawLocal.com

IN THE CIRCUIT COURT OF THE 15TH JUDICIAL CIRCUIT OG LE COUNTY - OREGON, I LLINOIS SELECT PORTFOLIO SERVI CING, INC.,

PLAINTIFF

vs. UNKNOWN HEIRS AT LAW AND LEGATEES OF KATIE GREEN; U.S BANK NATIONAL ASSOCIATION; WILLIAM BUTCHER AS SPECIAL REPRESENTATIVE FOR KATIE GREEN, DECEASED; UNKNOWN OWNERS AND NON-RECORD CLAIMANTS, DEFENDANTS

NO. 2023FC57

Address: 508 W. Fulton Street Polo, IL 61064

NOTICE OF SHERIFF'S SALE OF REAL ESTATE

PUBLIC NOTICE IS HEREBY GIVEN that pursuant to a Judgment of Forecl osure and Sale entered in the above cause on March 22, 2024, I, She riff of Ogle County, Illinois, will on May 31, 2024 at the hour of 10:00 AM at the Ogle County Courthouse, 106 S 5th Street, Oregon, IL 61061 , or in a pl ace otherwise designated at the time of sale , County of Ogle, State of Illinois, sell at pub lic auction to the highest bidder for cash, as set forth below, the following described real estate:

COMMON ADDRESS: 508 W. Fulton Stree t, Polo, IL 61064

P.I.N.: 14-09-376-001

The real estate is improved with a single family residence

THE JUDGM ENT AMOUNT WAS: $90,374.52

Sale terms: 25% down by certified funds; the balance, by certified funds, is due wit hin twenty-four (24) hours. The subject property is subject to real estate taxes, special assessments or special taxes levied against said real estate and is offered for sale without any representation as to quality or quantity of title and without recourse to Plaintiff and in "as is" condition The sale is further su bjec t to confirmat ion by the court.

Upon payment in full of the amount bid, the purchase r shall receive a Certificate of Sale, which will entitle the purchaser to a Deed to the real estate after Confirmation of the sale The property will NOT be open for inspection and Plaintiff makes no representations as to the condition of the property. Prospective bidders are admonished to check the Court fil e to verify all informat ion.

Pursuant to 735 ILCS 5/15-1512, the amounts of any surplus bid will be held by the sheriff until a part y obtains a Court Order for its distribution, or for 60 days following the date of the entry of the order confirming sale, at which time, in the absence of an order directing pay ment of the surplus, it may be automatica lly forfeite d to the State without further notice

If this property is a condominium unit, the purchaser of the unit at the forecl osure sale, othe r than a mortgagee shall pay the assessments and the legal fee s required by The Condominium Prope rty Act, 765 ILCS 605/9(g)(1) and (g)(4).

IF YOU ARE THE MORTGAGOR (HOMEOWNER), YOU HAVE THE RIGHT TO REMAIN IN POSSESSION FOR 30 DAYS AFTER ENTRY OF AN ORDER OF POSSESSION, IN ACCORDANCE WITH SECTIO N 15-1701(C) OF THE ILLINOIS MORTGAGE FORECLOSURE LAW.

For information: Examine the court file or contact Plaintiff's attor ney: Johnson, Blumberg & Associates, LLC, 30 N. LaSalle St., Suite 3650, Chicago, IL 60602, telephone 312-541-9710. Please refer to file number IL 23 0506. Sheriff of Ogl e County, Illinois Johnson, Blumberg & Associat es, LLC

30 N. LaSalle St., Suite 3650 Chicago, Illinois 60602

Email: ilpleadings@johnsonblumberg.com

Ph. 312-541-9710 / Fax 312-541-9711

JB&A # IL 23 0506

I3242502

April 26, 2024 May 3, 10, 2024

STATE OF ILLINOIS IN THE CIRCUIT COURT OF THE FIFTEENTH JUDICIAL CIRCUIT COUNTY OF OGLE

I n re the E state of: RICHARD S. HEWE S, Deceased 2024 PR 24 CLAIM NOTICE

Notice is given of the death of RICHARD S HEWES. Letter s of Office were issued on May 1, 2024, to CHRISTOPH ER M HEWES, as Independent Executor.

M HEWES, as Independent Executor.

Claims against the estate may be filed within six (6) months from the date of first publication, or wit hin three (3) months from the date of mailing or delivery of Notice to creditors, if mailing ordelivery is required by Section 5/18-3 of the Illinois Probate Act, 197 5, as amended, whichever date is later Any claim not filed by the requisite date stated above shall be barred. Claims against the estate may be filed in the Office of the Circuit Clerk, Ogle County JudicialCenter, 106 South 5th Street, Oregon, IL 61061 - or with the esta te legal representative, or both

IL 61061 - or with the esta te legal representative, or both

Copies of a claim filed wit h the clerk must be mailed or delivered to the representative and to the attorney wi thin 10 days after i t has been filed.

CHRISTOPHER M. HEWES Independent Executor Law Office s of M. THOMAS SUITS, P.C. 114 W. Mason St. Polo, IL 61064 (815) 946-2276 tom@suitslegal com

May 10, 17, 25, 2024

PUBLIC NOTICE

Copies of a claim filed wit h the clerk must be mailed or delivered to the representative and to the attorney wi thin 10 days after i t has been filed.

By: CHRISTOPHER M. HEWES Independent Executor Law Office s of M. THOMAS SUITS, P.C. 114 W. Mason St. Polo, IL 61064 (815) 946-2276

No. 2023FC20

tom@suitslegal com

May 10, 17, 25, 2024

Respectfully submitted, Tricia Black, Chief County Assessment Officer

May 10, 2024

Citibank, N.A as Owner Trustee of New Residential Mortgage Loan Trust 2018-1 PLAINTIFF Vs. Timothy J. Danner; et. al. DEFENDANTS

NOTICE OF SHERIFF'S SALE OF REAL ESTATE

PIN 03-12-127-006

There wil l be a meeting of the Ogle County Farmland Assessment Review Committee on Monday, May 20, 2024 at 10:00am in the Historic Courthouse Room 319, Oregon Illinois. The commi ttee will discuss the Illinois Department of Revenue's Proposed 2025 farmland assessments, and hold a public hearing to review and adopt the values for Ogle County The proposed 2025 farmland assessments are 10% above the 2024 value s. This meeting is held pursuant to the Illinois Property Tax Code (35ILCS200/ 10-120) and is open to the pub lic.

Claims against the estate may be filed within six (6) months from the date of first publication, or wit hin three (3) months from the date of mailing or delivery of Notice to creditors, if mailing ordelivery is required by Section 5/18-3 of the Illinois Probate Act, 197 5, as amended, whichever date is later Any claim not filed by the requisite date stated above shall be barred. Claims against the estate may be filed in the Office of the Circuit Clerk, Ogle County JudicialCenter, 106 South 5th Street, Oregon, IL 61061 - or with the esta te legal representative, or both

PUBLIC NOTICE IS HEREBY GIVEN that pursuant to a Judgment of Forecl osure and Sale entered in the above cause on 12/15/2023, the Sheriff of Ogle County, Illinois will on June 14, 2024 at the hour of 10:00 AM at Ogle County Public Safety Complex 202 S 1st St. Oregon, IL 61061, or in a place otherwise designated at the time of sale, County of Ogle and State of Illinois, sell at public au ction to the highest bidder for cash, as set forth below, the following described real estate: THE PROPERTY DESCRIBED BELOW IS LOCATED IN OGLE COUNTY, ILLINOIS. LOTS ONE (1), TWO (2), THREE (3), FOUR (4), AND FIVE (5) IN BLOCK ONE (1) IN THE VILLAGE OF EGAN CITY (NOW CALLED EGAN).

Improved with Si ngle Family Home COMMONLY KNOWN AS: 3569 West Egan Road Egan AKA Leaf River, IL 61047

Respectfully submitted, Tricia Black, Chief County Assessment Officer

Sale terms: 10% down of the highest bid by certified funds at the close of the auction; The balance , including the Judicial sale fee for Abandoned Residential Property Municipality Relief Fund, which is calc ulated at the rate of $1 for each $1,000 or fracti on thereof of the amount paid by the purchaser not to exceed $300, in certified funds, is due within twenty-four (24) hours. The subject property is subject to general real estate taxes, special assessments, or special taxes levied against said real estate and is offered for sale without any r epresentati on as to qua lity or quantity of title and without recourse to Pla intiff and in "AS IS" condition

Copies of a claim filed wit h the clerk must be mailed or delivered to the representative and to the attorney wi thin 10 days after i t has been filed.

May 10, 2024 land Assessment Review Committee on Monday, May 20, 2024 at 10:00am in the Historic Courthouse Room 319, Oregon Illinois. The commi ttee will discuss the Illinois Department of Revenue's Proposed 2025 farmland assessments, and hold a public hearing to review and adopt the values for Ogle County The proposed 2025 farmland assessments are 10% above the 2024 value s. This meeting is held pursuant to the Illinois Property Tax Code (35ILCS200/ 10-120) and is open to the pub lic.

The sale is further subject to confirmation by the court.

If the property is a condominium and the foreclosure takes place after 1/1/2007, purchasers other than the mortgagees will be required to pay any assessment and legal fees due under The Condominium Property Act, 765 ILCS 605/9(g)(1) and (g)(4).

By: CHRISTOPHER M. HEWES Independent Executor Law Office s of M. THOMAS SUITS, P.C. 114 W. Mason St. Polo, IL 61064 (815) 946-2276 tom@suitslegal com

If the property is located in a common interest community, pur chasers other than mortgagees will be required to pay any assessment and legal fees due under the Condominium Property Act, 765 ILCS 605/18.5(g-1).

If the sale is set aside for any reason, the Purchaser at the sale shall be entitled only to a return of the deposit paid. The Purchaser shall have no fur ther recourse against the Mortgagor, the Mortgagee or the Mortgagee's attorney. Upon pay ment in ful l of the amount bid, the purchaser shall rece ive a Certificate of Sale, which will entitle the purchaser to a Dee d to the real estate after Confirmation of the sale . The successful purchaser has the sole responsibility/expense of evicting any tenants or other individuals presently in possession of the subject premises.

May 10, 17, 25, 2024

The property will NOT be ope n for inspection and Plaintiff makes no representation as to the condition of the property. Prospective bidders are admonished to check the Court file to verify all infor mation

IF YOU ARE THE MORTGAGOR (HOMEOWNER), YOU HAVE THE RIGHT TO REMAIN IN POSSESSION FOR 30 DAYS AFTER ENTRY OF AN ORDER OF POSSESSION, IN ACCORDANCE WITH SECTIO N 15-1701(C) OF THE ILLINOIS MORTGAGE FORECLOSURE LAW.

For informati on: Examine the court file or contact Plaintiff's attor ney: Codilis & Associates, P.C., 15W030 North Frontag e Road, Suite 100, Burr Ridge, IL 60527, (630) 794-9876. Please refer to file number 14-23-00010. I3243103

May 3, 10, 17, 2024

18 Ogle County Newspapers / ShawLocal.com • Friday, May 10, 2024 OGLE COUNTY NEWS REAL ESTATE REAL ESTATE REAL ESTATE REAL ESTATE
LEG AL NOTICES LEG AL NOTICES LEG AL NOTICES LEG AL NOTICES IN THE CIRCUIT COURT FOR THE 15TH JUDICIAL CIRCUIT OG LE COUNTY - OREGON, I LLINOIS
LEG AL NOTICES LEG AL NOTICES LEG AL NOTICES LEG AL NOTICES

ssessment Committee

OTICES

day, May 2024 at in the Courtoom 319, Illinois. mmi ttee will the Illinois rtment of venue's Pro2025 farmssessments, hold a public to review opt the valOgle Counproposed mland asts are bove the alue s. This is held to the Illiperty Tax (35ILCS200/ and is the pub lic. fully ed, ck, County ssessment Officer

y 10, 2024

IN THE CIRCUIT COURT FOR THE 15TH JUDICIAL CIRCUIT

OG LE COUNTY - OREGON, I LLINOIS

Community Banc Mortgage Corp PLAINTIFF

Vs. Justin Abell; et. al. DEFENDANTS

No. 2023FC30

NOTICE OF SHERIFF'S SALE OF REAL ESTATE

PUBLIC NOTICE IS HEREBY GIVEN that pursuant to a Judgment of Forecl osure and Sale entered in the above cause on 07/07/2023, the Sheriff of Ogle County, Illinois will on June 14, 2024 at the hour of 10:00 AM at Ogle County Public Safety Complex 202 S 1st St. Oregon, IL 61061, or in a place otherwise designated at the time of sale, County of Ogle and State of Illinois, sell at public au ction to the highest bidder for cash, as set forth below, the following described real estate: LOT THIRTY-THREE (33) IN FIRST ADDITION TO SOUTHVIEW IN THE CITY OF ROCHELLE, ACCORDING TO THE PLAT THEREOF RECORDED IN BOOK J OF PLATS, PAGE 40 IN THE RECORDER'S OFFIC E OF OGLE COUNTY, ILLINOIS; SITUATED IN THE COUNTY OF OGLE AND STATE OF ILLINOIS.

PIN 24-36-228-004

Improved with Residential

COMMONLY KNOWN AS: 217 Southview Dr Rochelle, IL 61068

Sale terms: 10% down of the highest bid by certified funds at the close of the auction; The balance , including the Judicial sale fee for Abandoned Residential Property Municipality Relief Fund, which is calc ulated at the rate of $1 for each $1,000 or fracti on thereof of the amount paid by the purchaser not to exceed $300, in certified funds, is due within twent y-four (24) hours. The subject property is subject to general real estate taxes, special assessments, or special taxes levied against said real estate and is offered for sale without any r epresentati on as to qua lity or quantity of title and without recourse to Pla intiff and in "AS IS" condition

The sale is further subject to confirmation by the court.

If the property is a condominium and the foreclosure takes place after 1/1/2007, purchasers other than the mortgagees will be required to pay any assessment and legal fees due under The Condominium Property Act, 765 ILCS 605/9(g)(1) and (g)(4).

If the property is located in a common interest community, pur chasers other than mortgagees will be required to pay any assessment and legal fees due under the Condominium Property Act, 765 ILCS 605/18.5(g- 1).

If the sale is set aside for any reason, the Purchaser at the sale shall be entitled only to a return of the deposit paid. The Purchaser shall have no fur ther recourse against the Mortgagor, the Mortgagee or the Mortgagee's attorney. Upon pay ment in ful l of the amount bid, the purchaser shall rece ive a Certificate of Sale, which will entitle the purchaser to a Deed to the real estate after Confirmation of the sale . The successful purchaser has the sole responsibility/expense of evicting any tenants or other individuals presently in possession of the subject premises.

The property will NOT be ope n for inspection and Plaintiff makes no representation as to the condition of the property. Prospective bidders are admonished to check the Court file to verify all infor mation

IF YOU ARE THE MORTGAGOR (HOMEOWNER), YOU HAVE THE RIGHT TO REMAIN IN POSSESSION FOR 30 DAYS AFTER ENTRY OF AN ORDER OF POSSESSION, IN ACCORDANCE WITH SECTIO N 15-1701(C) OF THE ILLINOIS MORTGAGE FORECLOSURE LAW.

For informati on: Examine the court file or contact Plaintiff's attor ney: Codilis & Associates, P.C., 15W030 North Frontag e Road, Suite 100, Burr Ridge, IL 60527, (630) 794-9876. Please refer to file number 14-23-03345. I3243378

May 10, 17, 24, 2024

IN THE CIRCUIT COURT OF THE 15TH JUDICIAL CIRCUIT OG LE COUNTY - OREGON, I LLINOIS

SELECT PORTFOLIO SERVI CING, INC.,

PLAINTIFF

vs. UNKNOWN HEIRS AT LAW AND LEGATEES OF KATIE GREEN; U.S BANK NATIONAL ASSOCIATION; WILLIAM BUTCHER AS SPECIAL REPRESENTATIVE FOR KATIE GREEN, DECEASED; UNKNOWN OWNERS AND NON-RECORD

CLAIMANTS, DEFENDANTS

NO. 2023FC57

Address: 508 W. Fulton Street Polo, IL 61064

NOTICE OF SHERIFF'S SALE OF REAL ESTATE

PUBLIC NOTICE IS HEREBY GIVEN that pursuant to a Judgment of Forecl osure and Sale entered in the above cause on March 22, 2024, I, She riff of Ogle County, Illinois, will on May 31, 2024 at the hour of 10:00 AM at the Ogle County Courthouse, 106 S 5th Street, Oregon, IL 61061 , or in a pl ace otherwise designated at the time of sale , County of Ogle, State of Illinois, sell at pub lic auction to the highest bidder for cash, as set forth below, the following described real estate:

PARCEL 1

ALL OF LOT SIX (6) AND PART OF LOT FIVE (5) IN BLOCK FOUR (4) IN BURNS AND GOODHUE ADDITION IN THE CITY OF POLO , ACCORDING TO THE PLAT THEREOF RECORDED IN BOOK A OF PLATS, PAGE 85, AND RE-RECORDED IN BOOK B OF PLATS, PAGE 5 IN THE RECORDER'S OFFICE OF OGLE COUNTY, ILLINOIS, BOUNDED AND DESCRIBED AS FOLLOWS: COMMENCING AT THE SOUTHWEST CORNER OF SAID LOT 6; THENCE EASTERLY ON THE NORTH LINE OF WEST FULTON STREET 79.1 FEET; THENCE NORTHERLY 140 FEET TO THE NORTH LINE OF SAID LOT 5; THENCE WESTERLY 78.2 FEET ON THE NORTH LINE OF SAID L OTS 5 AND 6 TO THE NORTHWEST CORNER OF SAID LOT 6 AND THENCE SOUTHERLY ON THE WEST LINE OF SAID LOT 6 TO THE PLACE OF BEGINNING; SITUATED IN THE TOWNSHIP OF BUFFALO , THE COUNTY OF OGLE AND THE STATE OF ILLINOIS

PARCEL 2

ALSO THE SOUTH HALF (1/2) OF VACATED ALLE Y LYING NORTH OF AND ADJACENT TO PARCEL 1; SITUATED IN THE TOWNSHIP OF BUFFALO, THE COUNTY OF OGLE AND THE STATE OF ILLINOIS

COMMON ADDRESS: 508 W. Fulton Stree t, Polo, IL 61064

P.I.N.: 14-09-376-001

The real estate is improved with a single family residence THE JUDGM ENT AMOUNT WAS: $90,374.52

Sale terms: 25% down by certified funds; the balance, by certified funds, is due wit hin twenty-four (24) hours. The subject property is subject to real estate taxes, special assessments or special taxes levied against said real estate and is offered for sale without any representation as to quality or quantity of title and without recourse to Plaintiff and in "as is" condition The sale is further su bjec t to confirmat ion by the court.

Upon payment in full of the amount bid, the purchaser shall receive a Certificate of Sale, which will entitle the purchaser to a Deed to the real estate after Confirmation of the sale The property will NOT be open for inspection and Plaintiff makes no representations as to the condition of the property. Prospective bidders are admonished to check the Court file to verify all informat ion.

Pursuant to 735 ILCS 5/15-1512, the amounts of any surplus bid will be held by the sheriff until a part y obtains a Court Order for its distribution, or for 60 days following the date of the entry of the order confirming sale, at which time, in the absence of an order directing pay ment of the surplus, it may be automatica lly forfeite d to the Sta te without further notice.

If this property is a condominium unit, the purchaser of the unit at the forecl osure sale, othe r than a mortgagee shall pay the assessments and the legal fee s required by The Condominium Prope rty Act, 765 ILCS 605/9(g)(1) and (g)(4).

IF YOU ARE THE MORTGAGOR (HOMEOWNER), YOU HAVE THE RIGHT TO REMAIN IN POSSESSION FOR 30 DAYS AFTER ENTRY OF AN ORDER OF POSSESSION, IN ACCORDANCE WITH SECTIO N 15-1701(C) OF THE ILLINOIS MORTGAGE FORECLOSURE LAW.

For information: Examine the court file or contact Plaintiff's attor ney: Johnson, Blumberg & Associates, LLC, 30 N. LaSalle St., Suite 3650, Chicago, IL 60602, telephone 312-541-9710. Please refer to file number IL 23 0506.

Sheriff of Ogl e County, Illinois Johnson, Blumberg & Associat es, LLC 30 N. LaSalle St., Suite 3650 Chicago, Illinois 60602

Email: ilpleadings@johnsonblumberg.com Ph. 312-541-9710 / Fax 312-541-9711

JB&A # IL 23 0506

I3242502

April 26, 2024 May 3, 10, 2024

19 OGLE COUNTY NEWS Ogle County Newspapers / ShawLocal.com • Friday, May 10, 2024 LEG AL NOTICES LEG AL NOTICES LEG AL NOTICES LEG AL NOTICES
LEG AL NOTICES LEG AL NOTICES LEG AL NOTICES LEG AL NOTICES
Visit us at www.oglecountynews.com
20 Ogle County Newspapers / ShawLocal.com • Friday, May 10, 2024 OGLE COUNTY NEWS Book now at booknowfci.com or call 855-337-8534 Each Floor Cover ings International® business is independently owned and operated. *Product selection varies per location. Floor Coverings International® shines. Over 400,000 Happy Customers And Counting! Carpet Luxury Vinyl Plank Hardwood Laminate Tile* Flooring to fit any style, anywhere. Rated 4.8 Stars by our Customers! Scan to Learn More!

Turn static files into dynamic content formats.

Create a flipbook
Issuu converts static files into: digital portfolios, online yearbooks, online catalogs, digital photo albums and more. Sign up and create your flipbook.
Polo_Tri-County_Press-05-10-2024 by Shaw Media - Issuu