Skip to main content

Jr. Architect Portfolio

Page 1

ARCHI ARCHI TECTURE TECTURE

Shashank Virendra Singh Selected Work 2018 2023 portfolio

About.

I am an entry level architect, Seeking for a challenging position in your architecture firm where I can contribute my skills and experience to the design of meaningful projects and can gain valuable experience and exposure in the field of architecture. I am passionate for designing sustainable and innovative buildings. Proven ability to work independently and as part of a team,and to meet deadlines under pressure. Detail-oriented team player with strong Organizational skills. Ability to handle multiple projects simultaneously with a high degree of accuracy.

19 October 2001

+919149113833

+918449515964

ar.shashank19@gmail.com

C - 225, Sector-3, Greater Noida, India
Shashank

Education Languages

B.arch

Apeejay school of architecture and planning / Gr. noida / Uttarpradesh / 2018-23

10 + 2

Bijnor Public school / Bijnor / Uttarpradesh

2017 - 2018

10

Bijnor Public school / Bijnor / Uttarpradesh

2015 - 2016

Work Experience

Ineffable Space and Design, Gr. Noida, UP [Part time] [ 2022- Present]

- Designing and conceptualizing drawings and Presentations under the guidance of Principal Architect.

- Preparing goods for construction drawings.

- Authoring Interior and Core Architecture Drawings.

- Doing 3D visualization.

- Doing Site visits occasionally.

A&A Asscoiates, Gr. Kailash, Delhi [Intern Architect] [ September 2021- January 2022]

- Designed and conceptualized the drawings and presentations under the guidance of a Principal Architect.

- Prepared goods for construction drawings.

- Authored Interior and Core Architecture Drawings.

- Prepared 3D visualizations.

- Projects done [ Residence,Interiors, Office Institutional, Restaurant and Commercial]

Architecture Software:

Software Skills Skills

Design and Visualization

Material application knowledge

Freehand sketching

Searching and analytical

Team-building

3d Modeling

Problem Solving

Critical Thinking

Attention to Detail

Teamwork and Collaboration

Professional Growth

Achievement Hobbies

2019

2020

2022

2019

Annual Nasa Design Competition [ Shortlisted in top -100 ] [Intervention of Village Interaction Nodes]

Annual Nasa Design Competition [ Shortlisted in top -50] [Redesign of Bus-stand ]

Certified for best Urban Studio Design [Revitalization of canal (River Ganga)]

Athletics At zonal, AKTU Sports Fest.

Sketching

English
Hindi
Traveling Sports Music
AutoCAD
Enscape
Photoshop InDesign Universal Software: MS Office . . . . . . . . . . . 100 100 100 100 100 100 100 100
SketchUp Revit
Lumion Design/Graphic Software:

Table of Content Table of Content

01. 01. 02. 02. 03. 03. Selected work 2018 - 2023
Architectural Thesis Page - 13-20
Urban
Page - 1-6
Mixed-use Design Page - 7-12 Emergency Shelter for flood Affected Victims Revitalization of canal Agro-Tourism
Design Studio - 10
Design Studio - 8
Design
Design Studio - 9

Intern Architect (Professional Practice)

A&A associates, Gr. Kailash

JAINS RESIDENCE, Dehradun

MANOJ KANSAL RESIDENCE

Rajnagar, Hapur

Ayurveda and Natropathy College

Rajasthan

Restaurant, Dehradun

Page - 21-26

Part- time (Professional Practice)

Miscellaneous

Ineffable Space and Design, Gr. Noida

Mr.Baidyanath Residence Community center

Page - 27-32

3D - Visualization

Exterior Interior

Page - 33-34

04. 04.
06.
05. 05. 06.

REVITALIZATION OF CANAL

Year -

Project Type

-

Role -

Area -

Location -

Contribution -

2022

Urban Design

Leader (Group of 10 ) 3.1 acre.

Greater Noida, UP, India

Conceptual designing to till completing the project

Nullah is the Sub-stream of Upper ganga canal wich directly leading to hindon to yamuna

Vision-Statement

Casting image of the city by creating ecologically sensitive social spaces.

Why this project?

- Eco-Sensitive Zone

~ Confluence to Hindon and than Yamuna

~ Kasna Agriculture land

~ Human Settlement

~ Forest and Wetlands

- Existing Structure is underutilized Objective

- Reviving canal

- Re-link park and cycle track

Strategies

- Clean Nullah

Identify existing STP’s, Providing small scale STP’s Re-channeling clean water.

- Developing activities along Nullah

Recreational park, tech park with co-working spaces, Gr. Noida Hutt with driven-in theatre.

- Transform the open drainage system

Usable transportation for pedestrians and cycling.

SOFTWARE USE

Auctocad, Sketcup, Enscape, Photoshop and InDesign

SOFTWARE WORK-FLOW

Auctocad > Sketcup > Enscape > Photoshop > InDesign

2
[
01 ]
STRUCTURE PLAN

CYCLING CITY

Cycling city is the main accessibility to the 12.5m long cycle track. It provides a vibrant visual connection between the Canal and the busy street.

Cycling showcasing the beauty of nature which act as an magnet to attract people.

CONSIDERATION FOR PHYSICALLY

WALKING

PEDISTRAIN
ENTRY
EXISTING GREEN BELT CANAL
CYCLE ENTRY DISABLES TRAIL JOGGING TRAIL RAIN-WATER HARVESTING CANAL Establishing cycle track connection with the Parichowk metro-station Creating recreational spaces at different intervals Connection of opposite sides of canal via bride Use of Orapthity and Elements of Tactical Urbanism RAIN WATER HARVESTING CYCLE TRACK RAIN GARDEN WALKING TRAIL SEATING
10 M Y
WALL GRAFFITI MS. FRAMING H.P.L. COVERING COVER WITH CREEPERS RAIN WATER HARVESTING WALKING TRAIL CONNECTIVITY SEATING WITH PERGOLA

RECREATIONAL PARK

Our Recreational Site Is In Knowledge Park. Ass The Knowledge Park Is An Educational Hub So We Decided To Create A Multipurpose Recreational Spaces That Can Cater Both Students And Working Class People Of Gr. Noida

Multi-Layer Vegetation

Curb Notches

Bio- Retention soil

Perforated Pipe

E - TREES

Bio-Retention Swale

Gravel Base

Solar Chatri Creating Image of the City, Back Entrance of Expo-Mart, Kiosks inside the park serving Expo Audience at events. The Kiosk can act 2-way to provide the park audience as well as at expo. Existing footpath in 450mm high covering a drain but breaking at point. This is made continuous and steps at entry gates.

Solar chatri's not only giving a character but also generating power which can future be used as E-cycle charge station for renting.

1. Steel core (connect to branch)

2. Steel Core

3. Mobile Device

5. Slewing Bearing

6. Gear Protection

7. Fixed Device

8. Position Control Sensor

9. Electric Motor

10. Modile Device

11. E-tree Steel Stem

12. Composite Core Cover

13. Composite Branches

Concrete Pavement

Granite Stone Pavement

Timber Boardwalk

Timber Pavement

SNO- SYMBOL SURFACE 1 2 3 4 5 6 7 8 9 Asphalt Permeable Pavement
Pavement
Clay Brick
Grey Brick Pavement
Cobblestone Pavement
4. Protection with Lock Pin
STORM WATER MANAGEMENT
Mulch

AGRO-TOURISM

Year -

Project Type -

Role -

Area -

Location -

Contribution -

2022

Mixed - use

Leader (Group of 2 Shashank and Rishabh)

3.1 acre.

Bulandshar, UP, India

Conceptual designing to till completing the project

The design intends to promote and highlight the value of agriculture and the advancement of environment friendly tourism.

Since urban life is restricted in their busy schedule and has a boundary life in their flats, so a space is needed away from the urban scenario to escape from their real busy life.

The design intends to highlight and clarify the value of agriculture and the advancement of environment friendly tourism.

It offers a place where visitors can engage in recreational activities that gradually lead into learning and experimental cores and end with a complete visual experience

SOFTWARE USE

Auctocad, Sketcup, Lumion and Enscape, Photoshop and InDesign

SOFTWARE WORK-FLOW

Auctocad > Sketcup > Lumion and Enscape > Photoshop > InDesign

8 [ 02 ]

Historical background

Sikandar Lodi built it in 1498

Agriculture 60% occupation is farming

51% are literate

PROBLEM STATE MENT ?

However the future industries will provide economic strength to the town, but on another aspect the land used for the faring will be decreased which will affect the farmers and agriculture.

MIXED-USED DEVELOPMENT

Since urban life is restricted in their busy schedule and has a boundary life in their flats, so a space is needed away from the urban scenario to escape from their real busy life.

The design intends to highlight and clarify the value of agriculture and the advancement of environment friendly tourism.

To support historical aspect conceptually design in rectangular form.

Divide that cuboid into circular form to have advantage of air and sun reflection

23%

Mixed-used 53% 13%

SPACE DISTIBUTION HOTEL EXHIBITION ORGANIC MARKET LABORATORY

Building Bye Laws

11%

VERTICAL DISTRIBUTION

Divide the zone start to play in massing height deal with S-W sun heat.

SITE AREAFAR -

GROUND COVERAGE -

PERMISSIBLE BUILT-UPNO. OF FLOORSFRONT SETBACKREAR SETBACKSIDE SETBACK -

WHY CIRCULAR FORM

Final massing to deal wind and s-w sun heat

9
Circular form of bhunga distribute the air evenly and create +ve pressure.
WHY SIKANDRABAD ?
EVOLUTION Initial form Final form
FORM
HOTEL EXHIBITION LABORATORY ORGANIC MARKET
Orientation of the sun for optimum less exterior surface exposed heat loss. Building Spaces Distribution. - Organic Market - Exhibition - Hotel - Laboratory

FORM ?

Residence

optimum solar gain. Approx 25% to the weather and possible

Residence

Unrestricted circulation of air. Opening oriented in prevailing wind direction catches the outside air and channalise it through water body before entering in central courtyard.

10
2
4700sqm 4 9m 6m 6m
13947sqm
40%
LABORATORY LABORATORY Organic MART COURTYARD STACK AFFECT ATRIUM ATRIUM ADMIN WORKSHOP WORKSHOP HOUSING CLOSED AMPHI STORE ROOM LIFT WELL
Photo
VolticA
304 kw solar energy occupies the roof top and the nearby parking structure and generate 40% of the building electricity.
Solar Panel Area on roof top - 3600
LED lighting are
throughout the building. ADMIN / STORE TOILET STAFF ROOM KHADI REATAIL WAITING LOUNGE RECEPTION ATRIUM AND COURTYARD AUDITORIUM Ground Floor Plan + 0.45 M lvl DORMETRY WORKSHOP 1,2 &3 TOILET STAFF ROOM ORGANIC RETAIL ATRIUM AND COURTYARD STAIRCASE AND LIFT First Floor Plan + 5.45 M Lvl Second & Third Floor Plan + 10.45 M lvl. and + 15.45 M lvl HOTEL ROOM ORGANIC SUPER-MART TOILET LABORATORY ATRIUM AND COURTYARD STAIRCASE AND LIFT EXHIBITION + 5.45 M LVL. +.45 M LVL. +.45 M LVL. ORGANIC SUPER MART +10.45 M LVL. Fourth Floor Plan HOTEL ROOM ORGANIC SUPER-MART TOILET LABORATORY ATRIUM AND COURTYARD STAIRCASE AND LIFT +.45 M LVL. ORGANIC SUPER MART +10.45 M LVL. ORGANIC SUPER MART +20.45 M LVL.
LightingReduce lighting level and
used

A diamond is cut in a particular form with numerous facests exceptional brilliance. The shape that of a cone and provides maximized light return through the top od the diamond. every facet has the potential to change a light ray’s plane of travel.

Direct Sunlight Projected Members

Eelevation created using multiple glass facatted panels.

Working as a shading device over the core wall.

Southern and Southwest elevation Without Envelope treatment Maximum Exposure to external sun.

Percentage of facade shaded= 30%

Southern and Southwest elevation With Envelope treatment - The Mesh protects the facade from direct sun, creating shadow.

Percentage of facade shaded= 85%

Plant materials selected is primarily native, which can sustain itself without an irrigation system. It also will restore local habitat.

S -
SW ELEVATION AT - 4pm (JUNE )
SOUTH ELEVATION AT - 12pm (JUNE ) S - SW ELEVATION AT - 4pm (JUNE ) SOUTH ELEVATION AT - 12pm (JUNE )
ENVELOPE PART SECTION
GLASS USED Southern Elevation and Envelope Shadow Analysis
BUILDING ENVELOPE
AIS
AIS
Solar panel canopy AIS Solaris Glass (8mm) Metal Frame DIAMOND SIDE VIEW 1200 1000 DIAMOND TOP VIEW DIAMOND BOTTOM VIEW 01 02 03 04 05 STAFF ROOM RECEPTION DORMETRY DORMETRY LIVING ROOM LIVING ROOM LIVING ROOM LIVING ROOM LIVING ROOM LIVING ROOM COMMON AREA COMMON AREA COMMON AREA COMMON AREA COMMON AREA TOILET TOILET TOILET TOILET TOILET TOILET TOILET TOILET TOILET COURTYARD STACK AFFECT CLOSED AMPHI FIRE STAIRCASE FIRE STAIRCASE CAFEE occupancy sensor occupancy and daylighting sensors are used in all occupied spaces to reduce lighting when spaces are not occupied and when day light is sufficient..
Solaris Reflected Sun-rays Diffused Light
Native landscaping

EMERGENCY SHELTER FOR FLOOD AFFECTED VICTIMS, BIHAR

Year -

Project Type -

Role -

AreaLocation -

2023 Portable and Temporary Shelters

Individual project

7.9 hac ( 22 sq m/ tent) Muzaffarpur, Bihar

The intent of this project is to design an Emergency Shelter for disaster (flood) Affected and displaced families in the Muzaffarpur, Bihar. Accommodating 2k people

Objective

- To design an emergency shelter accord ing to Weather and disaster.

- To design a fast derive shelter within a hours.

- To increase the use of local material and understand the materials.

- To design a healthy and comfortable en vironment.

This study connects emergency shelters to sustainability and discusses the importance that those shelters should apply to the standards

SOFTWARE USE

Auctocad, Sketcup, Enscape, Photoshop and InDesign

SOFTWARE WORK-FLOW

Auctocad > Sketcup > Enscape > Photoshop > InDesign

14
[ 03 ]

PROTOTYPE EXPLODE VIEW

TARPAULIN

Sheet of tarpaulin can be used as a roof for structure to stand against the weather.

FRAME STRUCTURE

Frame module can be opened and tied up with Knots easily on the needs. Shelter easy to distribute using various transportation system and could load more modules

FLOOR

Floor is arranged as the main areas for the activities with on line circulation straight.

FOOTING

The Footings are made up of MS. Fabricated and coated with red oxide primer to make it corrosion resistant. Footing evenly distributing the load of shelter.

KNOTS

Polyester fabric/strip is a zipper made up of poly ester knited yarn. Shall be used for the purpose of Lashing.

15
Prototype architectural form phase-wise development process.

PROTOTYPE DEVELOPMENT

Prototype architectural form phase-wise development process.

INITIAL PROTOTYPE

The basic concept is to design a module which can be form in different forms shown above.

Triangle > Hexagon hall

SECOND PROTOTYPE

The basic concept is to design a collapsible shelter with minimum number of components.

PROTOTYPE ASSEMBLED

FINAL PROTOTYPE

The basic concept is to design shelter that derive by local people in few minutes and promote local material.

Instruction for assembly and operations of temporary shelters

(A) Layout of footing will be done

(B) Layout of footing will be done

16
SLEEPING IN NIGHT
(D) Frame structure cover with Tarpaulin (C) Frame structure will be complete

Bamboo

Lashing

COMPONENTS

La-gage

Showcasing how 1 unit can be convert into different pavilions and uses on site.

17 3
50 mm Dia
ENTRY
column
Sleeping bags
50 mm Dia bamboo Sill beam
duty canvas
strand board 1 unit = 5 people 2 unit = Hall (10 people) CLUSTER #1 #2 #3 #4 #6 #5 Sr. No. DETAIL AT - E DETAIL AT - A DETAIL AT - B DETAIL AT - C Material Qty. Name Cost 1 Tarpaulin Heavy duty Canvas water-proof (900 gsm) (65sqm) 18 sq/m 65 sq/m 65/ Kg 10/piece =12 x 5 180/piece =Rs.240 =Rs.8650 300/ Box =Rs. 1170 =Rs.1300 =Rs.3900 =Rs.1440 =Rs.600 OSB Oriented Strand Board (20 sq m For flooring)
Polyester-fabric/strip MS. Footing(1footing= 5kg) (2mm Thick sheet)
Heavy
Orient
KNOTS
2.3 M length 3.1 M length 3.6 M length 1.2 M length 3.2M length Butterfly Screw (2.5”) TOTAL COST Bamboo 6 bamboo piece (50 mm Dia) 2 bamboo piece ( 75mm Dia) 11 12 10 10 4 6 2 12 24 Bamboo (50 MM Dia) CANVAS MS. FOOTING POLYESTER STRAP ALUMINUM I-LET Bolt (10 MM Dia) Ms. Fabricated LASHING RAFTER 75 MM DIA BEAM 50 MM DIA LASHING POST 50 MM DIA 300 mm E A B c JOINERY DETAIL
AND COSTING

SITE DEVELOPMENT

18 Bed Layout Electrical layout Plumbing layout ELECTRICAL Area - 22 SQ M Accommodate - 5 People Solar Panel - 1.8 X .9 M Energy generate - 1 KW Rainwater - 3” PIPE Pipe length - 8.8 M Store Tank - 10 L 2 People By Plain By Truck (6x3m) By Cargo Ship 1 Box 1 Shelter Unit 170 Box 170 Shelter Unit 20 Box 20 Shelter Unit 1000 container 20000 Box 20000 Shelter Unit SERVICES TRANSPORTATION
In Phase - 1 Administration, Loading / Unloading bays livestock, Residential zone- 1 will be started In Phase - 2 Administration, Loading/ Unloading bays livestock, Residential zone- 1 and Residential Zone - 2 will begin. In Phase - 3 Administration, Loading/ Unloading bays livestock, Residential zone- 1, Residential Zone - 2 and Future expansion will begin. Prototype architectural form phase-wise development process.

MASTER PLAN

According to NDMA guidelines we need 3-4 hectare space for 1000 people. This design proposed to accommodate 2000 people and 500 people future expansion.

19 LEGENDS ENTRY/EXIT SERVICE ENTRY/EXIT SECURITY POST REGESTRATION AREA ADMINISTRATION PARKING ADMINISTRATION ZONE SKILL DEVELOPMENT ZONE LOADING & UNLOADING BAYS WAREHOUSE LIVESTOCK ZONE RESIDENTIAL ZONE - 1 RESIDENTIAL ZONE - 2 CLASSROOMS AWARENESS CENTRE WORSHIP HEALTH CLINIC ASSEMBLY ZONE HELIPAD MALE TOILET/ BATHROOMS FEMA. TOILET/BATHROOMS FUTURE EXPENSION FOOD DISTRIBUTION ZONE 12 M WIDE SERVICE ROAD 1 2 3 4 5 6 7 8 9 10 11 12 13 14 15 16 17 18 19 20 21 22 1 3 8 9 14 15 13 16 22 15 11 11 10 4 4 5 2 MENS TOILET FEMALE TOILET COMMON AMENITIES 10M WIDE CHAKKAR MAIDAN ROAD 511 M 545M EXISTING FOREST
EXISTINGGREENLAND
MOVEMENT MAIN
SUB
COMMON FACILITIES CENTRALLY DESIGNED CLASS ROOM FOOD Dz. SKIL DEVELOPMENT CENTRE WORSHIP HEALTH CLINIC AWARENESS CENTER
10MWIDEROAD 10MWIDE CHAKKAR MAIDANROAD EXISTING RESIDENCE
+ 57.5M EXISTING WATERTANK EXISTING TRANSFORMER MAIN ROAD VEHICLE
& SERVICE ROAD (18M & 12M)
ROAD

PLOT AREA : 7.9 Hactare

TOTAL PEOPLE : 2000

ACHIEVED BUILTUP : 17660 sqm

1 SHELTER : 5 people (family) can catered 2k people and 4km radius city

PROJECT SCOPE :

20
12 M WIDE SERVICE ROAD 12 M WIDE SERVICE ROAD 18M WIDE SERVICE ROAD 18MWIDESERVICEROAD 11 11 14 15 15 13 22 22 16 12 12 12 12 17 18 21 12 6 7 571 M 100 M Existing water
10 M WIDE CHAKKAR MAIDAN ROAD
VIEWS Layout of shelters Parking for truck 50M 171 M 332M 241 M 398 M + 57.5M + 57.5M + 57M 2
NDMA BYE LAWS
tank
EXISTING GREEN LAND

INTERNSHIP WORKS

Year -

Project Type sProject Locations -

2021 Residence,Interiors, Office Institutaional, Restaurant and Commercial UP, Delhi, Dehradun

INTERN ARCHITECT IN A&A ASSOCSIATES, GRATER KAILASH, NEW DELHI

Architectural internship - Studio 7

Worked as an intern architect from September 2021- December 2021. Worked on 10+ projects, involved in various aspects of the projects from design dvelopment, preparation of working drawing, detailings, presentation works and 3d rendering.

SOFTWARE USE

Auctocad, Sketcup, Enscape, Photoshop and InDesign

SOFTWARE WORK-FLOW

Auctocad > Sketcup > Enscape > Photoshop > InDesign

22 [ 04 ]

JAINS RESIDENCE Dehradun

Project Type - Residence

Location - Dheradun

Client name - Mr. Sunny Jain

Contribution - 3d Visualization (Exterior) and Interior working drawings

DWG NO.:9

SCALE : PRINT IN A3 (SCALE TO FIT)

DATE : REVISION NO. : PRODUCED BY AN AUTODESK EDUCATIONAL

01
SOFTWARE WORK-FLOW - Auctocad > Sketcup > Enscape > Photoshop > InDesign MATERIAL TEXTURE -
Porclien Slabs, Wood, White Plaster, WPC Fluted Panels

MANOJ KANSAL RESIDENCE

Rajnagar, Hapur

Project Type - Residence

Location - Rajnagar, Hapur

Client name - Mr. Sunny Jain

Contribution - Interior working drawings, Furniture layout Electrical layout, Terrace garden Design

WARDROBE WORKING DRAWING

02
5' 6" 1'-9" 1'-6" 2" 3" 2' 3" 21 2 9'-81 2 #2 3" THICK WOODEN PARTITION STONE CLADDING 2'-6" 6" MS COLUMN WITH CEMENT SHEET CLADDING PLANTER CUT OUT GREY MARBLE FLOORING 5' LAUNDRY ZONE 2'-4" #1 WALL FEATURE AS PER DESIGN REFERENCE EXISTING STORAGE TILE/ GRANITE FLOORING 2'-2" WOODEN SEATING SWING B C A 4' 2' BRICKWORK 3" 10' PLANTER STONE CLADDING PLANTER #1 WALL FEATURE AS PER DESIGN REFERENCE BRICKWORK BRICKWORK SECTIONAL ELEVATION A SECTIONAL ELEVATION B SECTIONAL ELEVATION C LIGHT STONE CLADDING #2 3" THICK WOODEN PARTITION STONE CLADDING #2 3" THICK WOODEN PARTITION 1'-6" 41 2 10' 2'-6" 3" 10' 8'-5" 9" 6" 3'-61 2 1" LVL 4 4'-21 2 5' 9" 14'-8" 3" 7' 3"3" 3" 12'-101 2 1'-10" 3" 9'-8" 1' 3" 1'-3" CLIENT LOCATION : PROJECT : DRAWING TITLE : DRAWN BY CHECKED BY : SCALE RESIDENCE DWG NO.: PRINT IN A3 (SCALE TO FIT) DATE 03/09/2021 REVISION NO. KC-24 ,GHAZIABAD PRODUCED BY AN AUTODESK EDUCATIONAL PRODUCT PRODUCED BY AN AUTODESK EDUCATIONAL PRODUCT 5' 6" 1'-9" 1'-6" 2" 3" 2' 3" 21 2 " 9'-81 2 " #2 3" THICK WOODEN PARTITION STONE CLADDING 2'-6" 6" MS COLUMN WITH CEMENT SHEET CLADDING PLANTER CUT OUT GREY MARBLE FLOORING 5' LAUNDRY ZONE 2'-4" #1 WALL FEATURE AS PER DESIGN REFERENCE EXISTING STORAGE TILE/ GRANITE FLOORING 2'-2" WOODEN SEATING SWING B C A 4' 2' BRICKWORK 3" #1 WALL FEATURE AS PER DESIGN REFERENCE BRICKWORK BRICKWORK SWING SECTIONAL ELEVATION C LIGHT 10' 8'-5" 9" 6" 3'-61 2 1" LVL 4 4'-21 2 5' 9" 14'-8" 3" 12'-101 2 1'-3" PRODUCED BY AN AUTODESK EDUCATIONAL PRODUCT PRODUCED BY AN AUTODESK EDUCATIONAL PRODUCT PRODUCED BY AN AUTODESK EDUCATIONAL PRODUCT WALK IN C.B. 17'6"X8'4" FULL LENGTH MIRROR EQ. EQ. 6'-9" 8'-5" 4" DRAWER DRAWER DRAWER DRAWER DRAWER DRAWER EQ. EQ. 6'-9" 4' DRAWER DRAWER MIRROR 7' DRAWER DRAWER 8'-5" 4" DRAWER DRAWER DRAWER DRAWER DRAWER DRAWER DRAWER DRAWER 6'-9" 4' 6'-9" 13'-6" 3'-4" 13'-6" 3'-4" 3'-4" 3'-4" 3" 3" WALL PANEL DRAWER DRAWER PRODUCED BY AN AUTODESK EDUCATIONAL PRODUCT PRODUCED BY AN AUTODESK EDUCATIONAL PRODUCT PRODUCED BY AN AUTODESK EDUCATIONAL PRODUCT WALK IN C.B. 17'6"X8'4" FULL LENGTH MIRROR 4" DRAWER DRAWER DRAWER 6'-9" 4' 6'-9" 13'-6" 3" 3" WALL PANEL PRODUCED BY AN AUTODESK EDUCATIONAL PRODUCED BY AN AUTODESK EDUCATIONAL PRODUCT LOUNGE 17'3"X16'1 1 2 ' PANTRY 8'6"X12'10 1 2 " DN. TERRACE SHAFT LIFT 5'3"X5' SB+L.P SB+L.P LP LP LP DIA 8' DIA 8' DINING PRODUCED BY AN AUTODESK EDUCATIONAL PRODUCT PRODUCED BY AN AUTODESK EDUCATIONAL PRODUCT PRODUCED BY AN AUTODESK EDUCATIONAL PRODUCT
TERRACE GARDEN

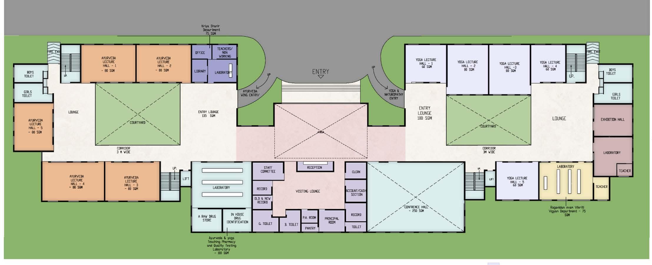
Ayurveda and Natropathy College

Rajasthan

Project Type - Institute

Location - Rajasthan

Contribution - Conceptual Designing and 3d Visualization

25
03

Project Type - Restaurant

Location - Dehradun

Contribution - 3d Visualization (Exterior) and Interior working drawings

Wall 2

26 04
Restaurant
2'-9" 9" 1'-8" 40'-6" 4" ± 00" +2" ± 00" +2" ± 00" +2" EQ EQ EQ EQ 2'-3" 1'-6" 2'-10" 3'-6" BUFFET COUNTER ELEVATION V- SHAPE GROVE 3MM BUFFET COUNTER PLAN 40'-6" 2'-6" GROVE FULL BODY TILE/ QUARTZ FULL BODY TILE/ QUARTZ GROVE +2'9" +2'9" 2'-6" FULL BODY TILE QUARTZ BISON BOARD M.S. SECTION 1" X 2" M.S. SECTION 1" X 2" P.C.C. PLATFORM SKIRTING 2" 2'-2" STORAGE M.S. SECTION 1" X 2" M.S. SECTION 1" X 1" BUFFET COUNTER ELEVATION SKIRTING SKIRTING SKIRTING 2850 SKIRTING Wall 1 1085 50 + 30 mm ± 00 50 15 45 + 25 mm + 15 mm Glazing Behind 253 865 210 392 480 383 171 180 463 300 956 2687 45 1176 329 323 393 230 50 50 800 SKIRTING Wall 1 15 865 1085 45 392 PRODUCED BY AN AUTODESK EDUCATIONAL PRODUCT PRODUCED BY AN AUTODESK EDUCATIONAL PRODUCT PRODUCED BY AN AUTODESK EDUCATIONAL PRODUCT
Dehradun
SKIRTING SKIRTING SKIRTING SKIRTING Door 50 1185 50 1009 50 45 25 15 310 190 178 370 370 785 220 160 196 480 270 412 45 45 839 270 310 189 118 310 925 323 165 835 163 370 340 452 225 370 50 912 1060 1100 50 575 50 163 405 150 480 163 163 150 721 800 50 1095 + 175 mm +100 MM +50 MM ± 00 MM 50 PRODUCED BY AN AUTODESK EDUCATIONAL PRODUCT PRODUCED BY AN AUTODESK EDUCATIONAL PRODUCT PRODUCED BY AN AUTODESK EDUCATIONAL PRODUCT PRODUCED BY AN AUTODESK EDUCATIONAL PRODUCT 100 MM SKIRTING FINISH AS PER SELECTION + 12 mm ± 00 + 24 mm + 36 mm A B FINSIH AS PER CHOICE + 75 mm 230 3905 12 12 12 110 5 15 110 5 15 10 C B DETAIL - B DETAIL - C SECTION AT -AB COVE SPACE FOR MIROR 15 10 5 25 20 10 15 DETAIL - A 30 20 10 50 40 20 30 A PRODUCED BY AN AUTODESK EDUCATIONAL PRODUCT PRODUCED BY AN AUTODESK EDUCATIONAL PRODUCT PRODUCED BY AN AUTODESK EDUCATIONAL PRODUCT SITE EXECUTION

PART - TIME JOB

Year -

Project Type s -

Project Locations -

2021 - 2023

Residence and Interior UP, Delhi, Dehradun

INEFFABLE SPACE AND DESIGN, GREATER NOIDA, UTTAR-PRADESH

Worked as an intern architect from September 2021- December 2021. Worked on 10+ projects, involved in various aspects of the projects from design dvelopment, preparation of working drawing, detailings, presentation works and 3d rendering.

SOFTWARE USE

Auctocad, Sketcup, Enscape, Photoshop and InDesign

SOFTWARE WORK-FLOW

Auctocad > Sketcup > Enscape > Photoshop > InDesign

28 [ 05 ]

Baidhynath Residence Bihar

Project Type - Residence

Location - Bihar

Client name - Mr. Baidhynath

Contribution - Conceptual design, 3d Visualization (Exterior), Architecture Working

01
SOFTWARE WORK-FLOW - Auctocad > Sketcup > Enscape > Photoshop > InDesign MATERIAL TEXTURE -
16' 8'-6 1 2 2'-5" 8'-6 1 2 5'-6" 48'-3" 67'-9" 31' 55'-10" 2' 26'-8" 4'-2 1 2 8'-1" MASTER BEDROOM STAIRCASE 24'-2 1 2 UP T: 10" R: 5.5" 3'-6" 39'-6" D2 D2 D2 V V TOILET TOILET DRESSING ROOM KITCHEN 9'-3" X 4'-81 2 D D DRAWING HALL 12'-0" X 14'-0" 5'-1" X 8'-0" 5'-5" X 8'-0" 15'-4" X 7'-81 2 W2 W1 LOBBY W 3FT HIGH WALL MS/ STEEL GRILL 14'-1" X 14'-0" W W D1 D1 15'-3" VRANDA 7'-8" X 8'-61 2 OPEN PLATFORM 19'-0" X 4'-0" LVL +24" LVL - 0" T: 11" R: 5" LVL +24" LVL +24" LVL +24" LVL +24" LVL +24" W1 MAIN GATE LIFT 5'-0" X 5'-0" 1'-81 2 3'-5" 2'-8" T: 10" R: 5" MS/ STEEL GRILL 2' 3'-41 2 8'-2" A B C D E 1 2 3 4 7 9 8 6 5" 5" 5" 5" 5" 5" 5" 5" 5" 5" 5" 5" 5" 5" 5" 5" 5" 5" 5" 5" 5" 5" 5" 5" 5" 5" 5 12"x18" 12"x18" 12"x18" 12"x18" 12"x18" 12"x18" 12"x18" 10"x18" 10"x18" 10"x18" 10"x18" 10"x18" 10"x18" 10"x18" 10"x18" 10"x18" 12"x18"
Porclien Slabs, Wood, White Plaster, WPC Fluted Panels, Microtoping

GROUND FLOOR ELECTRICAL

DESCRIPTION SYM.

GROUND FLOOR ELECTRICAL

GROUND FLOOR ELECTRICAL

FAN

EXHAUST FAN

6A 5 PIN POWER PONT SWITCH SOCKET AT 3'-9''

BUZZER (7'-8" height from the floor finish) CALL BELL POINT

16A 6 PIN SWITCH SOCKET AT 2'-0''

6/16A 6 PIN POWER POINT (FOR GEYSER)

DISTRIBUTION

TV POINT AT 2'-0''

TELEPHONE POINT

TELEPHONE JUNCTION BOX

TV JUNCTION BOX AT 2'-0''

IP ADDRESSED CCTV CAMERA

FIXED TYPE

30 KITCHEN NON VEG POOJA 3'-1" X 4'-5" 5'-0" X 7'-4" BALCONY 4 FFET WIDE 2'-6" SB2 1PP DB 2' AC SB3 3PP AC SB4 2PP SB6 1PP 2'-6" 1PP SB2 SB2 1PP 2PP 1'-2" 1'-5" 4'-3" 4'-2" 5'-3" 1'-5" 4' 5'-5" SB2 1PP 1' 1PP 3'-6" 4' 1'-6" SB2 2PP 1'-2" 1'-3" 6'-3" 7'-9" SB6 1PP SB4 2PP SB6 1PP 1' 2PP 10" AC SB2 2PP 4'-9" 4'-9" 4'-9" SB2 4'-3" SB2 3'-6" SB9 1PP 3'-6" 2PP 6'-6" 1PP 1PP 2PP 2' AC 8' 5'-6" 1PP SB2 1' SB4 2PP SB6 1PP 2'-9" 2PP 2'-5" SB6 1PP 1'-6" SB6 1PP 2'-6" AC SB2 2PP SB2 2PP 1'-4" 3'-6" 2'-6" 5'-1" 5'-1" 2'-6" 2' 2' 5' 5' 5' 2'-6" 1'-9" 1'-9" 2' 2' 2' 2' 2' 2'-2 1 2 2' 2' 2' 2'-2 1 2 " 5'-1" 5'-1" 3'-9 1 2 " 3'-9 1 2 " 4' 4' 4' 4' 2' 3'-4" 4'-3" 4'-4" 3'-4" 2' 3'-9" 3'-10" 3'-10" 3'-10" 4'-1" 4'-1" 2' 2' 2' 2' 1'-111 2 2' 2' 2' 1'-6" 2' 2' 4'-1" 4'-1" 4'-1" 1'-6" 1'-6" 1'-11" 1'-11" 1'-6" 1'-6" 1'-6" 6'-2" 6'-2" 2' 2'-10" 2'-10" 2'-10" 2'-10" 2' 2'-6" 2'-6" 1' 1' 1'
G 1x11W LED MIRROR LIGHT (4" above from the mirror) 1x10W CFL SURFACE MOUNTED CHANDELIER 2 WAY SWITCH BOARD SWITCH BOARD ( 3'-6" height from the floor finish) CEILING FAN CEILING FAN EXHAUST FAN 6A 5 PIN POWER PONT SWITCH SOCKET AT 3'-9'' BUZZER (7'-8" height from the floor finish) CALL BELL POINT IP ADDRESSED CCTV CAMERA FIXED TYPE TV JUNCTION BOX AT 2'-0'' TELEPHONE JUNCTION BOX TELEPHONE POINT TV POINT AT 2'-0'' 6/16A 6 PIN POWER POINT (FOR GEYSER) 16A 6 PIN SWITCH SOCKET AT 2'-0'' DESCRIPTION SYM. DISTRIBUTION BOARD 1x28W (WALL MOUNTED) (7'-0" height from the floor finish) 1x18W LED WALL BRACKET (7'-0" height form the floor finish) 2x18W LED SURFACE MOUNTED WIRE CONNECTIVITY SPLIT AC MAIN JUNCTION BOX 16A 6 PIN SWITCH SOCKET AT 3'-9'' 6A 5 PIN POWER POINT SWITCH SOCKET AT 2'-0'' 32A. SPN MCB A.C. POINT AT 2'-0'' ELECTRICAL LEGEND CEILING CHIMNEY POINT MASTER BEDROOM STAIRCASE UP T: 10" R: 5.5" 3'-6" D2 V V TOILET KITCHEN 9'-3" X 4'-8 1 2 D D DRAWING HALL 12'-0" X 14'-0" 5'-5" X 8'-0" 15'-4" X 7'-8 1 2 " W2 W1 LOBBY W 14'-1" X 14'-0" W W D1 D1 VERANDA 7'-8" X 8'-6 1 2 OPEN PLATFORM LVL +24" LVL - 0" T: 11" R: 5" LVL +24" LVL +24" LVL +24" LVL +24" LVL +24" W1 LIFT 5'-0" X 5'-0" T: 10" R: 5" MS/ STEEL GRILL 2'-11" 24'-6" X 4'-0" BALCONY 4 FFET WIDE 4'-5" AC SB4 2PP SB6 1PP 1'-11" 1PP SB2 1'-2" 1'-5" 4'-3" 4'-3" 4'-10" 4' 2' 2' 2' 2' 2' 2' 2'-6" 5'-1" 5'-1" 2'-6" 2' 2' 2' SB2 1PP SB2 1PP 1'-6" 2PP 2PP 1'-3" 1'-6" 1'-2" SB2 1PP SB2 1PP 3'-8" 1'-2" SB6 1PP SB6 1PP1' 2'-7" SB2 1PP 1PP TPN DB 2' 2' 1' 1'-6" 2'-7" 2'-7" 1'-6" 1'-8" 1'-7" 1' 1'-6" 2'-6" 1'-8" 2'-6" 3' 3' 1'-6" 1'-6" 2'-6 1 2 2'-6 1 2 " 1'-6" 2' 2' 1'-6" 2'-81 2 " MASTER BEDROOM BEDROOM STAIRCASE KIDS ROOM UP DINING HALL KITCHEN LEDGE WALL T: 10" R: 5" 3'-6" D2 D2 D2 D2 W1 V V TOILET 14'-1" X 14'-0" 5'-1" X 8'-0" TOILET 5'-0" X 8'-0" 12'-0" X 14'-0" DRAWING ROOM 19'-2" X 12'-3" 15'-4" X 7'-8 1 2 " 15'-4" X 6'-9" 15'-4" X 6'-5" 10'-1" X 9'-6" 5'-8" X 9'-6" BALCONY 3'-6" WIDE DRESSING ROOM W2 8'-0" X 5'-6 1 2 W2 W2 2' W W1 D1 LIFT 5'-0" X 5'-0" BALCONY 5'-10" WIDE 3'-4" TV PANNEL W 2'-2" CENTER 3'-6" SB3 3PP 5' AC SB2 1PP 1'-6" SB6 1PP 2'-6" 2'-6" 2'-6" 2'-6" 4'-6" 4'-6" 5'-4" 5'-4" 2'-6" 4'-8" 5'-6" 5'-6" 5'-6" 5'-6" 5'-6" 5'-6" 1'-9" 1'-9" 1'-9" 2' 7'-6" 7'-6" 2' 2' 2' 4'-6" 2' 2' 2' 1'-9" 1'-9" 2'-6" STORE SB3 3PP 3'-3" 2'-6" 2' 2' 1'-81 2 " FRIDGE BALCONY 4 FFET WIDE SB2 1PP DB 2' AC SB3 3PP AC SB4 2PP SB6 1PP 2'-6" 1PP SB2 4'-3" 4'-2" 5'-3" 5'-5" SB2 1PP 1' 1PP 3'-6" 4' 1'-6" SB2 2PP 1'-2" 1'-3" 6'-3" 7'-9" SB6 1PP SB4 2PP SB2 4'-3" SB6 1PP 2'-6" SB2 2PP 1'-4" 3'-6" 5'-1" 5'-1" 2'-6" 2' 2' 2' 2' 2' 2' 2'-2 1 2 " 2' 2' 2' 2'-2 1 2 " 5'-1" 5'-1" 3'-9 1 2 " 3'-9 1 2 " 4' 4' 4' 4' 4'-1" 2'
G 1x11W LED MIRROR LIGHT (4" above from the mirror) 1x10W CFL SURFACE MOUNTED CHANDELIER 2 WAY SWITCH BOARD SWITCH BOARD ( 3'-6" height from the floor finish) CEILING FAN CEILING
BOARD 1x28W (WALL MOUNTED) (7'-0" height from the floor finish) 1x18W LED WALL BRACKET (7'-0" height form the floor finish) 2x18W LED SURFACE MOUNTED WIRE CONNECTIVITY SPLIT AC MAIN JUNCTION BOX 16A 6 PIN SWITCH SOCKET AT 3'-9'' 6A 5 PIN POWER POINT SWITCH SOCKET AT 2'-0'' 32A. SPN MCB A.C. POINT AT 2'-0'' ELECTRICAL LEGEND CEILING CHIMNEY POINT MASTER BEDROOM STAIRCASE UP D2 V TOILET KITCHEN 9'-3" X 4'-8 1 2 " D D DRAWING HALL 12'-0" X 14'-0" 5'-5" X 8'-0" X 7'-8 1 2 " W1 LOBBY W 14'-1" X 14'-0" W W D1 D1 VERANDA 7'-8" X 8'-6 1 2 " OPEN PLATFORM LVL +24" LVL + - 0" T: 11" R: 5" LVL +24" LVL +24" LVL +24" LVL +24" LVL +24" W1 LIFT 5'-0" X 5'-0" T: 10" R: 5" MS/ STEEL GRILL 2'-11" 24'-6" X 4'-0" 4'-5" AC SB4 2PP SB6 1PP 1'-11" 1PP SB2 4'-3" 4'-3" 4'-10" 2' 2' 2' 2' 2' SB2 1PP SB2 1PP 1'-6" 2PP 2PP 1'-3" 1'-6" 1'-2" SB2 1PP SB2 1PP 3'-8" 1'-2" SB6 1PP SB6 1PP1' 2'-7" SB2 1PP 1PP TPN DB 2' 2' 1' 1'-6" 2'-7" 2'-7" 1'-6" 1'-8" 1'-7" 1' 1'-6" 2'-6" 1'-8" 2'-6" 3' 3' 1'-6" 1'-6" 2'-6 1 2 " 2'-6 1 2 " 1'-6" 2' 2' 1'-6" 2'-81 2 " MASTER BEDROOM BEDROOM STAIRCASE D2 D2 V 14'-1" X 14'-0" TOILET 5'-0" X 8'-0" 12'-0" X 14'-0" DRAWING ROOM 19'-2" X 12'-3" 2' W W1 D1 BALCONY 5'-10" WIDE 3'-4" W 2'-2" CENTER SB3 3PP 5' AC SB2 1PP 1'-6" SB6 1PP 2'-6" 2'-6" 2'-6" 2'-6" 4'-6" 4'-6" 4'-8" 5'-6" 5'-6" 5'-6" 5'-6" 2' 2' 4'-6" 2' 2' 2' 1'-9" 2'-6" 2'-6" 2' 2' 1'-81 2 " KITCHEN NON VEG POOJA 3'-1" X 4'-5" 5'-0" X 7'-4" BALCONY 4 FFET WIDE 2'-6" SB2 1PP DB 2' AC SB3 3PP AC SB4 2PP SB6 1PP 2'-6" 1PP SB2 SB2 1PP 2PP 1'-2" 1'-5" 4'-3" 4'-2" 5'-3" 1'-5" 4' 5'-5" SB2 1PP 1' 1PP 3'-6" 4' 1'-6" SB2 2PP 1'-2" 1'-3" 6'-3" 7'-9" SB6 1PP SB4 2PP SB6 1PP 1' 2PP 10" AC SB2 2PP 4'-9" 4'-9" 4'-9" SB2 4'-3" 1PP SB2 SB2 3'-6" 10" SB9 1PP 3'-6" 2PP 6'-6" 1PP 1PP 2PP 2' AC 8' 5'-6" 1PP SB2 1' SB4 2PP SB6 1PP 2'-9" 2PP 2'-5" SB6 1PP 1'-6" SB6 1PP 2'-6" AC SB2 2PP SB2 2PP 1'-4" 3'-6" 2'-6" 5'-1" 5'-1" 2'-6" 2' 2' 1'-11" 4'-6" 4'-6" 4'-6" 4'-6" 4'-6" 4'-6" 5' 5' 5' 5' 2'-6" 2'-6" 2'-6" 1'-9" 1'-9" 2' 2' 2' 2' 2' 2'-2 1 2 " 2' 2' 2' 2'-2 1 2 " 5'-1" 5'-1" 3'-9 1 2 " 3'-9 1 2 " 4' 4' 4' 4' 2' 3'-4" 4'-3" 4'-4" 3'-4" 2' 3'-9" 3'-10" 3'-10" 3'-10" 4'-1" 4'-1" 2' 2' 2' 2' 1'-111 2 2' 2' 2' 1'-6" 2' 2' 4'-1" 4'-1" 4'-1" 1'-6" 1'-6" 1'-11" 1'-11" 1'-6" 1'-6" 1'-6" 6'-2" 6'-2" 2' 2'-10" 2'-10" 2'-10" 2'-10" 2' 2'-6" 2'-6" 1' 1' 1' FIRST & SECOND ELECTRICAL TYPICAL FLOOR
G 1x10W CFL SURFACE MOUNTED CHANDELIER 2 WAY SWITCH BOARD SWITCH BOARD ( 3'-6" height from the floor finish) CEILING FAN CEILING FAN EXHAUST FAN 6A 5 PIN POWER PONT SWITCH SOCKET AT 3'-9'' BUZZER (7'-8" height from the floor finish) CALL BELL POINT IP ADDRESSED CCTV CAMERA FIXED TYPE TV JUNCTION BOX AT 2'-0'' TELEPHONE JUNCTION BOX TELEPHONE POINT TV POINT AT 2'-0'' 6/16A 6 PIN POWER POINT (FOR GEYSER) 16A 6 PIN SWITCH SOCKET AT DISTRIBUTION BOARD 1x18W LED WALL BRACKET (7'-0" height form the floor finish) WIRE CONNECTIVITY SPLIT AC MAIN JUNCTION BOX 16A 6 PIN SWITCH SOCKET AT 6A 5 PIN POWER POINT SWITCH SOCKET AT 2'-0'' 32A. SPN MCB A.C. POINT AT CEILING CHIMNEY POINT MASTER BEDROOM STAIRCASE UP T: 10" R: 5.5" 3'-6" TOILET KITCHEN 9'-3" X 4'-8 1 2 " D D DRAWING HALL 12'-0" X 14'-0" 15'-4" X 7'-8 1 2 W2 W1 LOBBY 14'-1" X 14'-0" W D1 D1 VERANDA 7'-8" X 8'-6 1 2 " OPEN PLATFORM LVL +24" LVL - 0" T: 11" R: 5" LVL +24" LVL +24" LVL +24" LVL +24" W1 LIFT 5'-0" X 5'-0" T: 10" R: 5" MS/ STEEL GRILL 2'-11" 24'-6" X 4'-0" 4'-5" SB6 1PP 1'-11" 1'-2" 4'-3" 4'-10" 2' 2' 2' 2' SB2 1PP SB2 1PP 1'-6" 2PP 2PP 1'-3" 1'-6" 1'-2" SB2 1PP SB2 1PP 3'-8" 1'-2" SB6 1PP SB6 1PP1' 2'-7" SB2 1PP 1PP TPN DB 2' 1' 1'-6" 2'-7" 2'-7" 1'-6" 1'-8" 1'-7" 1' 1'-6" 2'-6" 1'-8" 2'-6" 3' 3' 1'-6" 1'-6" 2'-6 1 2 " 2'-6 1 2 " 1'-6" 2' 2' 1'-6" MASTER BEDROOM BEDROOM STAIRCASE KIDS ROOM UP DINING HALL KITCHEN LEDGE WALL T: 10" R: 5" 3'-6" D2 D2 D2 D2 W1 W1 W1 V V V TOILET 14'-1" X 14'-0" 5'-1" X 8'-0" TOILET 5'-0" X 8'-0" 12'-0" X 14'-0" DRAWING ROOM 19'-2" X 12'-3" 15'-4" X 7'-8 1 2 15'-4" X 6'-9" 15'-4" X 6'-5" 10'-1" X 9'-6" 5'-8" X 9'-6" BALCONY 5 FEET WIDE BALCONY 3'-6" WIDE DRESSING ROOM W2 8'-0" X 5'-6 1 2 " W2 W2 2' W W1 D1 LIFT 5'-0" X 5'-0" BALCONY 5'-10" WIDE 3'-4" TV PANNEL W 2'-2" CENTER 3'-6" 3PP SB6 1PP 2'-6" 2'-6" 4'-6" 5'-4" 5'-4" 2'-6" 4'-8" 5'-6" 5'-6" 5'-6" 5'-6" 5'-6" 5'-6" 1'-9" 1'-9" 1'-9" 2' 7'-6" 7'-6" 2' 2' 2' 4'-6" 2' 2' 2' 1'-9" 1'-9" 2'-6" STORE SB3 3PP 3'-3" 2'-6" 2' 2' 1'-81 2 FRIDGE

Community Center

Eta-1, Gr. Noida

Project Type - Community Center

Location - Greater Noida

Client name - Eta-1, GNIDA

Contribution - Conceptual Designing

31 02
32

3D VISUALIZATION Exteriors

MATERIAL TEXTURE - Vetrified Tiles, Wood, White Plaster, WPC Fluted Panels, Steel

SOFTWARE WORK-FLOW - Auctocad > Sketcup > Enscape > Photoshop

MATERIAL TEXTURE - Vetrified Tiles, Wood, White Plaster, WPC Fluted Panels, Steel, Microtpoing

SOFTWARE WORK-FLOW - Auctocad > Sketcup > Enscape > Photoshop

MATERIAL TEXTURE - Wood, White and Red Plaster, WPC Fluted Panels

SOFTWARE WORK-FLOW - Auctocad > Sketcup > Enscape > Photoshop

MATERIAL TEXTURE - Vetrified Tiles, Wood, White Plaster, WPC Fluted Panels, Steel

SOFTWARE WORK-FLOW - Auctocad > Sketcup > Enscape > Photoshop

[ 06 ]
Miscellaneous 01
34 02 3D VISUALIZATION Interiors SOFTWARE WORK-FLOW - Auctocad > Sketcup > Enscape > Photoshop
Shashank Virendra Singh let’s Connect C - 225, Sector-3, Greater Noida, India +919149113833 +918449515964 ar.shashank19@gmail.com

Turn static files into dynamic content formats.

Create a flipbook