PORTFOLIO

Page 1


PORTFOLIO

ARCHITECTURAL DESIGN V

SHARUATH MOHAMED WAHEED | S076180

Architectural Design Project V aimed to create a guesthouse model with resilient architectural solutions to mitigate climate hazards and enhance sustainability. This involved gaining insights into social, cultural, and architectural aspects, applying sustainable design principles, integrating environmental considerations, and navigating design constraints.

The design process was informed by a comprehensive understanding of the local context, derived from field trips to the islands of AA. Mathiveri and AA. Bodufolhudhoo These islands provided unique case studies, each with distinct geographic locations and settings that significantly influenced the design approach.

ISLAND ANALYSIS

The project built on a prior exercise, a desktop study, where we were divided into two groups to explore climate change challenges in the Maldivian islands, illustratng posters depicting risks, hazards, and challenges through hazard mapping for each type of island: (a) inner atoll and (b) outer atoll islands, and developing a framework based on the findings.

The focus was on understanding the impact of these factors through surveys on local guesthouses of these islands, , along with physical assessments of the effects of climate change and local tourism.

Following the 1 week trip, we were tasked with selecting a site from AA. Mathiveri or AA. Bodufolhudhoo and developing comprehensive planning guidelines, ultimately leading to the design of a guesthouse plot with a capacity for 8-12 bedrooms. I chose AA. Mathiveri, specifically Option 1, which is a designated tourism zone on the island.

Option 1

Option 2 Option 3

3/4Guesthouses were not purpose built

75% Guesthouses had exterior wall cracks

GENERAL ANALYSIS OF GUESTHOUSES

75% Guesthouses had painting peeling off ( exterior & interor)

0% Considered orienting the guesthouse as according to the sunpath and wind direction.

75% Guesthouse owners did not consider a climate resilient design.

75% Guesthouse owners considered solar energy for future plans

1/4 Guesthouses is subjected to flooding due to heavy rainfall

0% Guesthouses collect rainwater

1/2Guesthouses were not purpose built

1/2 Guesthouses face negative effects due to its locationa nd orientation

1/2

Guesthouses had damage to outdoor furniture

2/2

Guesthouses adapts to climate change

100% Guesthouses have to do frequent renovations due to poor workmanship during construction

50% Guesthouse owners did not consider a climate resilient design

1/2

100% Guesthouses collect rain water

Guesthouses had smart tech iintergrated in to the design

CONCEPT - DESIGN NARRATION

The primary emphasis lies in tourists immersing themselves in the essence of the Maldives, where fading traditions are revitalized. This journey will serve them as an educational voyage, where visitors delve into the highlighted, restored and replicated aspects of Maldives heritage, fostering a deeper understanding and appreciation for its cultural legacy, all while being inspired by traditional architecture.

Upon stepping into the guesthouse, guests are embraced by an indoor-outdoor lifestyle, seamlessly blending the boundaries between inside and out. The courtyard - also the social heart of the building, where the majority of daytime activities unfold, fostering a feeling of openness with greenery and natural light filtering through the surrounding trees, (domesticated trees) offering a lively mix of commercial-social and cultural functions. Throughout the building, nature intertwines with architecture, becoming an integral part of the guesthouse experience.

The incorporation of earthy tones and locally sourced palm tree wood for furniture and interior design, not only mirrors the natural environment but also fosters a cozy and welcoming ambience.

Sketch of a typical maldivian traditional house
openess
earthy tones
reduced mass and volume
The tracing paper stripe symbolizes nature and its connectivity.

The island, AA.Mathiveri undergoes seasonal variations in currents, which impact the beach shapes through longshore drift and shifting ocean currents, as well as soil erosion along the northern and western shores. Additionally, the map indicates challenges with the quality of well water, often showing signs of salinity.

1.

2. Erosion

3. Extream heat

4. Plot

SITE

ANALYSIS | SITE CONTROLS

Plot size: : 43,700 sqft

Number of plots : 15 plots

Each plot ranges from : 2800 - 3000 sqft

Open space : 20%

Setback: 1000mm from 3 sides with vegetation

Built area: 2210 sqft

FLOOR HEIGHT: 3 floors

Why this plot?

- Views

- In between other plots, this bring back the eveylaa ( Pre-historic) days/ aadhakaadha, to rejuvenate Maldivian cultural and traditions that promote interaction and connection among neighbors.

- Ability to accomodate growth, opportunities for collaboration with other users or organizations using the site.

Stronger winds during hulhangu monsoon

PARTI DIAGRAMS PROGRAMMES

A structural framework that draws inspiration from traditional housing models, meticulously crafted to cater to the distinctive needs and preferences of its users.

A sensational experience embracing indoor-outdoor lifestyle.

Illustratives a traditional way of life, evolsing over hundreds of years through harmonious interaction between people and nature.

In order to diminish the visual bulk of the buildings, voids are intergrated, complemented by the seamless fusion of nature. Providing a clear solution to optimize natural light and ventilation.

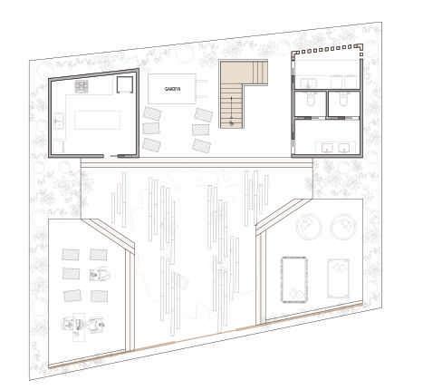
GROUND FLOOR

SCHEMATIC PLANS

EVEYLAA VESHI

Foot Print

2900 sqft

Build-Up Area

6692 sqft

Storey

4 Rooms

8

Eveylaa Gaadiya

Cultural Studio (Ambalange)

Restaurant (indoor/Outdoor)

Souvenir Store

Undhoalige

RESILIENT AND SUSTAINABLE FEATURES

1. Rainwater Harvesting - Harvested water can be reused for irrigation, flushing toilets, laundry.

2. Elevated spaces - Reduce flood risk

3. Segregated spaces - Allows the implementation of localized climate control measures, which together enhance the overall adaptability and sustainability of a building.

4. Vegetation gardens - improves air quality, reducing heat island effects, providing sustainable sources of food and green spaces for users.

5. Passive ventilation - reduces reliance on energy-consuming HVAC systems and helps regulate indoor temperatures.

6. Clerestory windows / Natural light - reduces the need for artificial lighting

7. Smart rooms (sensor lighting) - Enhances energy efficiency by minimizing unnecessary lighting usage.

8. Low energy kitchen equipments - reduce utility costs.

9. Permeable paving - manage stormwater runoff, reduce flooding.

10. Shading / Adjustable windows - reduces energy consumption for heating and cooling.

11. Materials: recycled concrete / timber - reduces the environmental impact of construction by minimizing waste and conserving natural resources.

12. Solar panels - reduce dependency on fossil fuels, lower energy bills, and mitigate greenhouse gas emissions

EXPLODED VIEW

The fencing is reminiscent of traditional thatch weaving, allowing wind passage while providing a degree of privacy.

Lime trees cultivated for their pleasant fragrance.

Reused limestone from abandoned houses on the island.

Folding windows incorporating elements reminiscent of Maldivian jaali work.

Gaze upon the garden through expansive windows, embracing a scene of natural wonder.

VIEWS

Toilets with an open sky and greenery, reminiscent of the traditional "gifili" style.

D2 - SINGLE ROOM

Incorporation of Maldivian textures on walls and furniture surfaces.

D3 - RESTAURANT (OUTDOOR)

Turn static files into dynamic content formats.

Create a flipbook
Issuu converts static files into: digital portfolios, online yearbooks, online catalogs, digital photo albums and more. Sign up and create your flipbook.