sharo hadid university of michigan masters of architecture









the 4th event
![]()
sharo hadid university of michigan masters of architecture









the 4th event
Thesis Advisor: Perry Kulper
Inside the implied boundaries of a basketball court lies The 4th Event - a dashboard of comparative evaluation that addresses spatial practices and the agency of those who are seated at the table and those who weren’t invited. From participants to spectators, access to spaces of exclusivity operate on a private to public spectrum. Every line drawn on a floor plan acts to include certain users and exclude every other. The thesis confronts this dissonant mediation of exclusiveness in the various lived forms it assumes across the country and the lines they draw: Marc Jacobs’ 2016 Fall runway show, the Inauguration of Joe Biden, and the trial of OJ Simpson. The 4th Event grants access to intimate levels of exclusivity by making it public through experiential data extraction that recreates a specialized solitude and places them in underutilized, inactive, and marginalized spaces.
The 4th Event collapses social and monetary disparities by removing the niche and loaded guest list that grants access to a specific few. Instead, it invites the multitude to examine the staged spatial choreography of the three sites where, implicit and explicit cues are both hidden, and exposed to the viewer, curating a fabricated reality that reflects our own. A simultaneous creation, and representation of reality, these re-stagings fold familiar events into a medium of representation that suddenly makes the familiar, strange by surgically removing it from behind the lens of a camera and placing it, in our local and tangible environment.
The 4th Event is a wall-breaking construction that frames fragmented memories and senses, to re-imagine what is being lived, as both a stage set and a landscape. Through questioning, theorizing, and conversing, the puzzles that comprise each stage may support a tensional and intentional play between the obvious, and the unknown that is, qualified by our own social, historical, sensorial and lived awareness.





























professor : eduardo mediero a proposition is something offered for consideration or acceptance : a proposal
_diagrammatic study









_ exterior








Working Title aims to create an inhabitable and performative space for street performers by means of thinking of the theater as lived space. The building takes on the spatial characteristics of urban typologies most occupied by street performers; alcoves, sheds, and corners. The amateur and professional performers co-habitat the space as a way to share, work, and promote; creating inclusivity in media and entertainment while challenging the narrative of the performer through the architectural synthesis of the three selected typologies.







































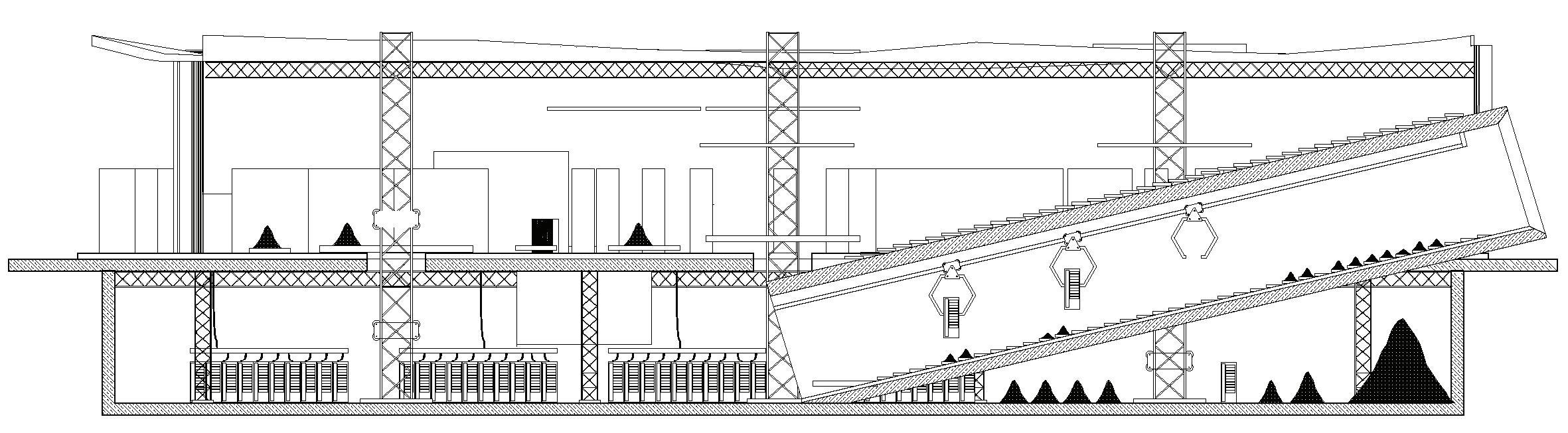
: modeled exploration of grains for a displayed warehouse design



a situation is the manner in which objects and/or people are disposed in particular location and time











_ section model













the irregularity of a grid from rhino command to physical model - how a building responds to a 30 degree skew.
with this digital translation, where is the ownership in the design?


- michael graves
- snyderman house
- case study

Undergraduate Architectural Design Portfolio






Within given parameters in preparation for thesis, studio 7 consisted of two week self driven charrettes with individual choice in program, theory, site, and user.








Midst the process of experimenting form with glue of varying tact, my project for spatial injustice took shape in the motif of a tumble weed dispersing its seeds. This structure collars disparities in socio-economic standards of an urban cityscape from block to block, ceasing to a stable construction of space sensitive to money, occupation, and race.

P A T I A L

A search for democracy in the context of territorial justice. The fair distribution of space is linked to social values.

The model stands on a steel framing welded to hold each layer. The bottom layer illustrating an urban scape at 1/8th scale, the middle layer zooming out to magnify spaces in the city facing spatial discrimination of low economy, class and education. The top layer is compiled of reminants of the map that were carved out affected by these territorial inequalities.
40’’ x 24’’ drawing + painting, exploring the conceptual mechanisms of a tumbleweed as a metaphor for my building as an accumulation of spatial discrimination.

Drawing of the individual spaces stretching and separating from the existing building folding into the skeleton of the tumbleweed structure.


Opportunities that lie in spatiality not only help form understandings about socio- economic standards but enrich the potentials of furthering democracy and using architectural identity as its the anchor. The biggest question I am asking is how can architecture dignify a community? How can space bring justice to a community?



analyzing spatial inequalities by means of a receptor planting camera lens’ throughout new york city to illustrate a visual display of condensed reality accompanying power geometries.




Invesigating the quanitative conditions of impacted populations in Charlottesville, VA to form greater perceptions of the needs, preventions and healings of the community through a series of mappings in watercolor that inspect the difference in consequential qualities between statues and sculpture.

K A I R A L O O R O

studio four // 2016
architecture as landmark
This competition revolved around the elements of spirituality and divinity of a sacred architecture located in Sengegal. The operations of light, form and space were to invite humans into an interior research of the site.
The structure is set to cease across the river of Tanaf linking two lands for a permanent architecture. Transforming into a hub for a commonwealth of ideas and support for villagers to gather. The transformation occurs when the boats are stitched together, collecting and connecting separate parties in conflict or pleasure, linking residents from one village to the next. The mobile architecture utilizes the water, promoting one-ness and connectivity to the land. _DRAWING on wood.











The boat is sailed by Griots, the storytellers, poets and musicians of Senegal. Villagers seek them for counseling, weddings and funerals. This project proposes for the Griots to sail across Tanaf, while villagers seek the Griots by ways of canoes and establish all circumstances in one location as a unifying piece. The boat is divided into planes and tiers for solitude, reflection and asssembly.

studio four // 2016
3 week project in collaboration with Kara Hannibal architecture as position
The first section of studio 4 comprised of an implimented study on borders, edges and hinderlands. Choosing a location in the world to study the effects of territorial boundaries.

Our project seeks to reprioritize spaces of play, giving children the agency to facilitate their individual, communal and societal play environments. Once arriving at Refugee Camp, Za’atari located in Jordan, families pass through a gated threshold and are assigned a tent or caravan. Materials and supplies are handed to caregivers and an instruction manual for child pods and map of play is given to each child. This allows for the child to feel accounted for. The child can navigate the landscape through their own vantage point


The manual includes a description of the assembly of a play pod given to each child. Individual pods connect and attach, providing flexible opportunities for children to play individually or collectively. Expanding upon individualized play to eventual community wide play, echoes the same spatial hierarchy of the camp’s spatial order. The connection of pods encourages interpersonal connection and inspires a familiarity of surroundings. The prototype pod is fabricated for younger children but has the capacity to be reformatted to cater to teenagers. The pod could evolve with the altering the materials, as well as additives onto the pods, including altering the material of the facade.
Located in Chelsea, Manhattan, Studio 3 aimed to tackle a pre-existing building on the site by means of inserting new architecture or demonlishing the current while drawing on augmentations to the body as building operations.
studio three // 2016

body as site _ site as body


My proposal pulls from research of body augmentation in rhinoplasty and face lifts. The inserted architecture within the existing cardboard building is a space comprised of chambers, sliding and rotating, synonymous with the operations of the body augmentations. The patients await a deceptive reality anticipating a rhinoplasty procedure yet receieving a face lift, as the two may be indistinguishable.


This space intends to please the final measure of achievable perfection in facial reconstruction. The alignments of the building correspond the inoperative spaces of nose cartilage in their adoption to suitable zones of operation while the perched addictive to the building is balanced to create a large gap from the base.
studio two // 2015
Professor William Tate

Operation of character adaptation through a series of 100 rooms. Studio 2 aimed to develop a residence for James Bond and Banksy as two indiviuals coexisting.



_program models

studio one // 2015
Professor Evelyn Tickle
Studio 1 investigated the water pump of an automobile by valuation amassing to drawings and model of an interfaith santuary jutting aside a colorado cliff.

The space of the project derived from an automobile water pump. The illustration of how I percieved it to stand, where the structure holds the greatest weight, as well as familiarizing myself with the tools to measure each crevice and angle, were the inital architectural methods in my first studio taken to reach the design.


“I don’t want to see the whole building. I know what that looks like. Show me the handrail.”
- Gregor Eichinger






