












































I hope this message finds you well My name is Sharabil Khot, age 23, and I am writing to express my interest as an Architect in position at your esteemed firm. I am graduated from Mumbai University, where I ranked 2nd in my Campus inArchitecture. In addition to my academic achievements, I am a Revit certifiedArchitect.
I am proficient in BIM 360 in collaboration with Revit skillset, I am confident that I will contribute significantly to your firm's progress and success. I bring strong communication and management skills, underpinned by a robust academic background and hands-on field experience. I am passionate about innovative design and am eager to contribute my skills and dedication to your team.

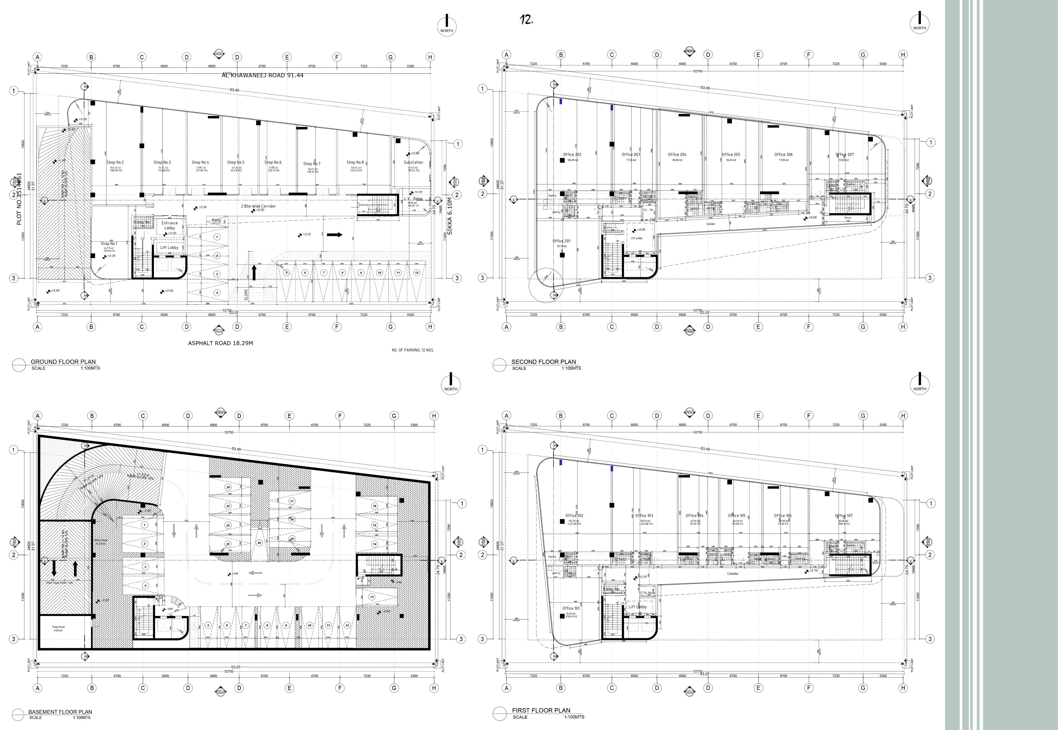
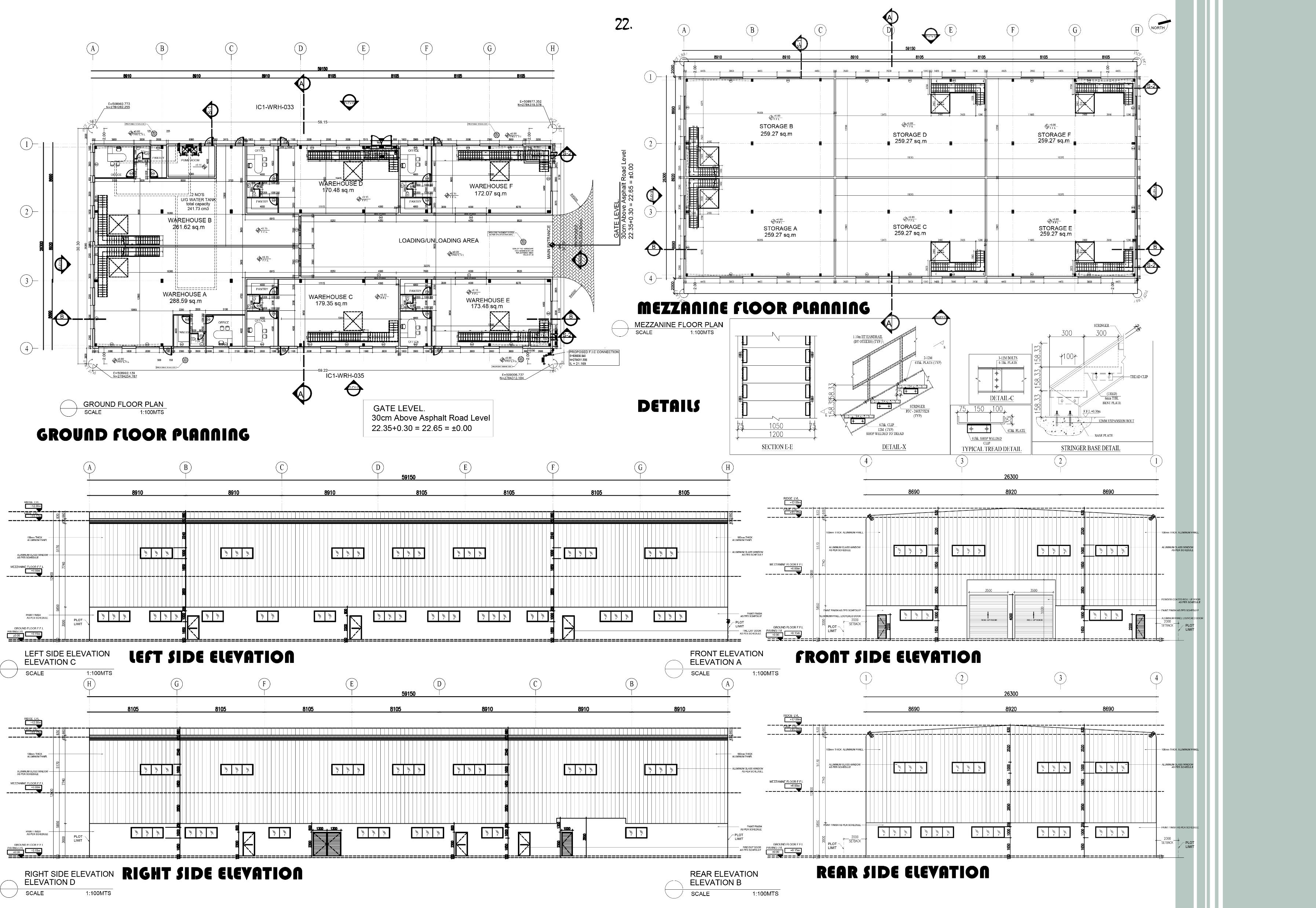
I am a dedicated architect with over a year of professional experience as a ConceptArchitect and BIM Modeler. I began my career at Al Sabat Consultancy in Dubai, contributing to 12 diverse projects across London, Dubai, and India, where I demonstrated adaptability to international architectural standards and delivered innovative designs.
Building on this foundation, I advanced my expertise as a Concept Architect at Arkiplan, focusing on high-quality BIM models and detailed drawings. My work includes seamless submissions to authorities such as Nakheel Developers, Trakhees, Dubai Municipality, and DDA. Featured in international architecture magazines, my portfolio reflects a strong commitment to design excellence and innovation.

