Portfolio SKG

Page 1


SHAQUON GIBSON

Multidisciplinary designer with a background in architectural technology and over three years of experience spanning architectural documentation, creative direction, and spatial design. Demonstrated expertise in leveraging technical and creative skills to enhance project efficiency and accuracy through architectural visualization, digital fabrication, and innovative design solutions. Proven track record in managing both architectural documentation workflows and creative studio operations, consistently delivering projects that merge technical precision with creative vision.

Work Experience

HYPSOMETRIC New York, NY

Metrologist / CAD Drafter September 2021-Present

• Create architectural presentation drawings, decreasing project rework and reducing project time by 15%, saving an estimated $50,000 annually.

• Produce over 20 existing condition models in Revit using LIDAR point cloud data, enhancing project accuracy by 20%.

• Produced architectural renderings for marketing materials used in the Columbia University Kent Hall renovation.

• Manages the production and verification of architectural drawing packages for over 20 clients, ensuring 98% accuracy.

• Utilize product and industrial design knowledge to design and 3D print parts and tools, significantly improving project efficiency.

Key Achievements:

• Lead efforts to streamline drawing production processes, achieving a 98% accuracy rate in deliverables.

• Successfully led multiple laser scanning projects, ensuring timely and accurate delivery of project deliverables.

STUDIO KIN New York, NY

Co-Founder/Creative Director August 2022-Present

• Design and co-manage a creative studio space, generating over 400 bookings in one year and increasing revenue by 30%.

• Achieve a 5-star customer rating with 50+ reviews by fostering strong relationships with local photographers and creatives.

• Coordinate weekly scheduling and management for over 20 photography clients and productions, maintaining 100% on-time project delivery.

• Direct the design of online advertisements and marketing materials, increasing client inquiries by 40%.

• Lead the design and creative direction of the company website, enhancing brand visibility and engagement by 25%.

SOM New York, NY

High School Interior Design Intern February 2016-May 2016

• Implemented an organizational system for SOM’s material and resource library, improving resource retrieval time.

• Produced specification documents based on comprehensive research of industry manufacturers and products. Referencing flooring materials, furniture, fabrics, and finishes.

• Developed mood boards and concept boards to help clients visualize design options during client presentations.

Education

Alfred State College Alfred, NY

B.S. Architectural Technology June 2017-May 2021

• Cumulative GPA: 3.2, Major GPA: 3.7

• Relevant Coursework: Construction Technology, Structural Foundations, Sustainable Design Systems.

Technical Skills

• Design & Visualization: AutoCAD, Revit, Rhino Adobe Suite (Illustrator, Photoshop),Lumion, VRAY.

• Project Management: RFP processes, RFIs management, meeting agendas, document management.

• General: Microsoft Office Suite, hand sketching, 3D printing.

3D Scan Digital Model

This 3D model was created in Rhino using laser-scanned points captured by an ATS600 laser tracker. Compared to a standard laser scanner, the ATS600 laser tracker is a metrology-grade instrument that captures point cloud data with 10x greater accuracy. For this project, the client needed an extremely precise CAD model of a test cell where they planned to perform modifications. Scanning and then building a model based on that data ensures that any new designs will fit perfectly into the existing conditions, eliminating the need for rework.

The image above shows a side-by-side comparison between laser scanners in the field (right) and the captured data overlaid on a Revit model (left). The data collected on-site allows existing conditions to be compared against the ideal model. This comparison makes it easy to identify and communicate discrepancies to architects and construction managers, helping ensure successful project completion while minimizing the need for rework.

REVIT MODEL

ACTIaS Vertical Agriculture Incubator

ALLEGANY COUNTY, NY

STUDIO 6 2021

The Allegany County Technology Incubator at Alfred State (ACTaIS) stands as a pioneering nexus for agricultural innovation, strategically positioned in Alfred, NY. This specialized facility serves as a catalyst for advancement in vertical farming technologies, fostering both research and manufacturing capabilities within its entrepreneurial ecosystem. The incubator functions as an accelerator for startups focused on revolutionizing agricultural production systems through vertical integration.

The architectural intervention responds to two critical contemporary challenges: the increasing pressure on arable land resources and the exponential growth in global food demand driven by rapid urbanization. By creating a dedicated environment for developing compact vertical farming solutions, the facility positions itself at the intersection of sustainable agriculture, technological innovation, and economic development.

The incubator facility emerges from the Alfred landscape with its striking glass-enclosed vertical farming chamber and stepped massing, where the transparent facade reveals the building’s innovative agricultural technology while harmonizing with the natural topography.

The Order of Abstraction: A Suprematist-Botanical Dialogue

The architectural expression draws profound inspiration from the Suprematist movement, a revolutionary artistic philosophy that emerged from early 20th century Russia. The movement’s hallmark exploration of geometric abstraction—where elemental forms achieve dynamic equilibrium through careful composition—serves as a compelling conceptual framework for the building’s formal strategy.

ORGANIC COMPOSITION; GEOMETRIC FORMS

GEOMETRIC COMPOSITION OF OF PLANT CELL

ORGANIC FORMS OF VEGETATION

DESIGN CONCEPT

This architectural interpretation parallels a fascinating biological phenomenon: the dichotomy between macro and microscopic botanical structures. Just as plants present themselves as seemingly organic, free-flowing forms at human scale, yet reveal precisely ordered geometric cellular arrangements under magnification, the building’s design embraces this multivalent relationship between apparent chaos and underlying order. The architecture manifests this duality through a composition that appears to challenge conventional spatial relationships while maintaining a rigorous internal logic.

GREENHOUSE
MATERIALS:

ALBRIGHT-KNOX SATELLITE ART MUSEUM

ALLEGANY COUNTY, NY

STUDIO 3 2019

The Albright-Knox Satellite Art Museum serves as an extension of Buffalo’s venerable Albright-Knox Museum, democratizing access to fine art through thoughtful architectural intervention. This auxiliary space manifests the institution’s commitment to cultural outreach, establishing a vital artistic nucleus in an underserved community.

The design’s material palette draws inspiration from the site’s industrial heritage, featuring a copper-toned façade that pays homage to the neighborhood’s historic brick architecture. This contextual approach creates a dialogue between past and present, where contemporary forms harmonize with the existing urban fabric. The result is a structure that simultaneously embraces architectural innovation while maintaining a profound connection to its surroundings.

In this atmospheric rendering, the museum’s copper-toned volumes with distinctive horizontal banding rise elegantly against a moody sky, while sculptural installations of white deer enliven the rain-dappled plaza, creating a compelling dialogue between contemporary architecture and public art that welcomes visitors through a sweeping canopy.

Helical Horizons: Redefining the Gallery Experience

SINGLE HELIX PARKING LOT CIRCULATION

CUT TAKEN FROM HELIX AND ELEVATED

GALLERY PROGRAMATIC DIVISION

CIRCULATION CONCEPT

The experiential sequence within this museum typology is paramount, where circulation becomes both a functional necessity and a curatorial instrument. Drawing unexpected inspiration from vehicular movement patterns, the design translates the elegant efficiency of the Single Helix parking structure into a sophisticated path for art appreciation.

The helical form, deconstructed and elevated, generates three distinct programmatic volumes that respond to varying exhibition requirements. This strategic manipulation of space creates a fluid progression through the galleries, where the architectural promenade becomes an integral part of the viewing experience. The careful choreography of movement echoes the mathematical precision of its utilitarian inspiration while elevating it to serve the contemplative nature of art observation. This reinterpretation of circulation transforms a pragmatic organizational system into an enriched spatial journey, where the architecture itself guides visitors through carefully curated sequences of artistic encounters.

LONGITUDINAL SECTION

The museum’s revolutionary circulation strategy transcends the conventional paradigm of two-dimensional art viewing, which has long defined traditional gallery spaces. By adopting the geometrical principles of the single helix, the design orchestrates a fully immersive viewing experience that liberates art appreciation from static, linear perspectives.

LEVEL 2 PERMANENT GALLERIES

The entrance gallery design establishes an immediate dialogue with visitors through a dramatic golden sculpture positioned beneath the geometric skylight system, drawing them into the building’s helical journey. The split-level transitions visible from this vantage point subtly introduce the spiraling circulation concept, while the diverse groups engaging with the space validate the vision for an accessible, multi-perspective art experience.

ChelseaFlex Recreational Center

The ChelseaFlex Center emerges as a vital community nexus, reimagining public health engagement through an innovative synthesis of wellness, sustainability, and interactive design. This dynamic institution transcends the conventional fitness facility paradigm, establishing itself as a catalyst for holistic community well-being.

The architecture presents a contemporary reinterpretation of Chelsea’s industrial heritage, where materiality becomes a medium for historical dialogue. Iron, a material deeply embedded in the district’s industrial narrative, is thoughtfully deployed throughout the façade, creating a visual language that both honors and reimagines the neighborhood’s architectural legacy. This selective use of industrial materials generates a distinctive architectural presence while maintaining a meaningful connection to the site’s historical context.

The building’s defining iron canopy serves a dual purpose: it functions as a powerful visual reference to Chelsea’s industrial vernacular while simultaneously operating as an integral component of the structure’s passive environmental strategy. This multifunctional element exemplifies the project’s commitment to merging cultural resonance with sustainable performance.

NEW
STUDIO
ChelseaFlex anchors its corner site with a thoughtful fusion of industrial heritage and modern design, where its signature iron screen and stepped glass volumes create a dynamic presence that honors the neighborhood’s manufacturing past while embracing contemporary urban design.

Design Response to Site

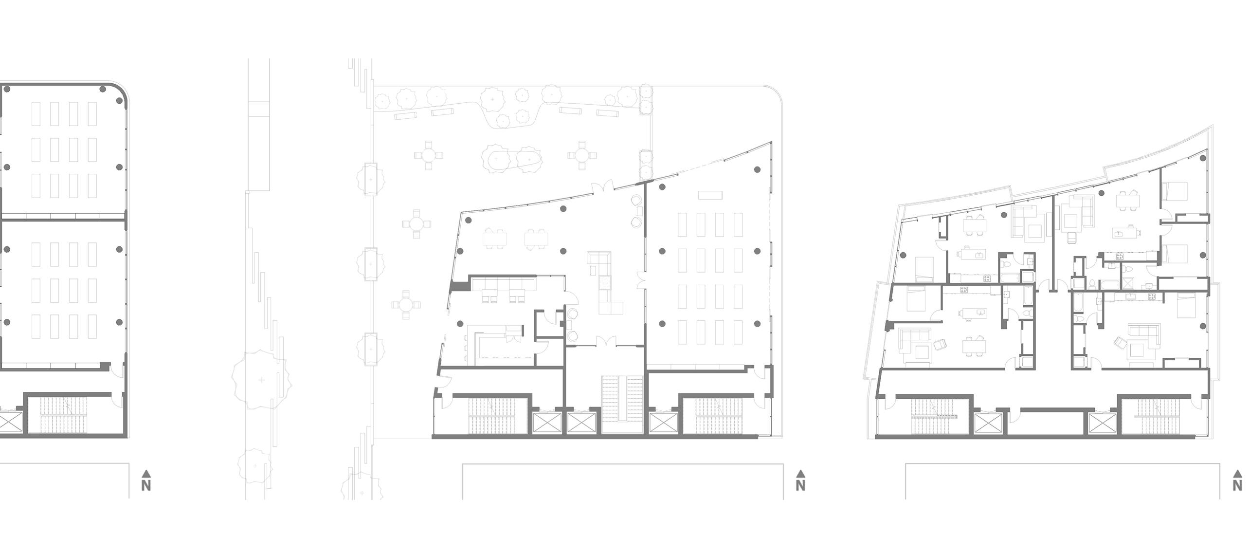
The architectural form evolved through a systematic process, beginning with a pure extrusion of the site boundaries. In response to New York City’s zoning regulations, the volume was precisely sculpted to accommodate required setbacks while carving out a vital public green space adjacent to The High Line. The resulting curvilinear geometry serves dual functions: optimizing residential sightlines toward The High Line while maximizing solar exposure to the public park below, demonstrating how regulatory constraints can inspire dynamic architectural solutions.

LEVEL 1 - FITNESS FLOOR
LEVEL 3 - LOUNGE
LEVEL 4 -

STUDIO KIN

ALLEGANY COUNTY, NY

STUDIO 6 2021

Studio Kin is a creative studio helping photographers and artists craft content in an inspiring environment, equipped with professional tools. The project exemplifies how thoughtful architectural and interior design can transform a historic industrial space into a vibrant creative sanctuary, preserving original elements like exposed brick walls and hardwood flooring while introducing contemporary functional features.

The studio’s success lies in its careful balance of practicality and inspiration. Natural light streams through large windows and is expertly controlled by terracotta curtains, while a striking mustard yellow sofa serves as both a bold design statement and versatile prop piece. The design prioritizes flexibility through modular furniture and multi-purpose areas, while biophilic elements and vintage pieces like the wooden ladder and dresser add character while providing practical storage solutions - creating a space that seamlessly blends functionality with aesthetic appeal.

The incubator facility emerges from the pastoral Alfred landscape with its striking glassenclosed vertical farming chamber and stepped massing, where the transparent facade reveals the building’s innovative agricultural technology while harmonizing with the natural topography.

The large factory windows, enhanced by adjustable dark curtains, offer crucial natural light control - a fundamental requirement for photographers. The original hardwood flooring and exposed

walls weren’t just preserved for aesthetic value; they provide authentic backdrops for shoots while maintaining the building’s historical integrity. The careful curation of

creates functional storage while serving as versatile prop pieces.

brick
vintage furniture, like the mid-century unit,

Turn static files into dynamic content formats.

Create a flipbook
Issuu converts static files into: digital portfolios, online yearbooks, online catalogs, digital photo albums and more. Sign up and create your flipbook.