INTERIOR DESIGN - ACADEMIC PORTFOLIO

Page 1

I N T E R I O R D E S I G N
2023
Shamreen Farah

A passionate undergraduate Interior Design student Looking for an internship to develop knowledge and to gain experience Proficient in designing functional and aesthetic spaces with the utmost consideration of the user and the context, with a handful of skillset Aimed at contributing a valuable work ethic and innovative design solutions

shamreenfarah@gmail com

https://www linkedin com/in/shamreen-farah-a37ba725b/ @whim to form

SHAMREEN FARAH

EDUCATION

HIGHER SECONDARY EDUCATION (2018-2020)

Velammal Matriculation Higher Secondary School, Chennai.

BACHELOR OF DESIGN (INTERIOR ARCHITECTURE) 2020-present

Crescent Institute of Science and Technology, Vandalur, Chennai

CURRICULUM

I YEAR

Hobby Corner

Master Bedroom

II YEAR

Cafeteria Design

Bridal Boutique Design

Architectural Library Design

III YEAR

Corporate Office Design

Architectural Office Design

Five Star Hotel Design

Multiplex Design

SEMINARS & COMPETITIONS

ARCHMELLO Architecture Arena Competition (Participated)

45th ISSC Architectural Panel- The lived world seminar (Attended)

SOFTWARE KNOWN

Microsoft Office

Autocad

Sketchup

Enscape

Vray for Sketchup

3DS Max

Rhinoceros + Grasshopper

Photoshop

ANALOGOUS SKILLS

Manual Drafting

Sketching

Watercolour Painting

Concept Formulating

Model Making

SOFT SKILLS

Effective Communication

Critical Thinking

Decision Making

Leadership

LANGUAGES KNOWN

English, Urdu, Tamil, Hindi, Arabic

CV

SHERATON GRAND

5STAR HOTEL DESIGN

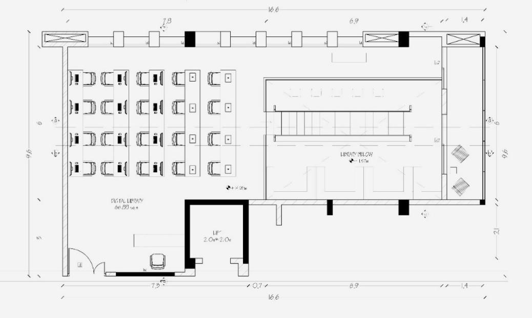
THE SOUTENIR LIBRARY DESIGN

SONI-BANNO BRIDAL BOUTIQUE DESIGN

3D RENDERINGS

RENDERINGS

2D DETAIL CAD DRAWINGS

PHOTOSHOP

MISSCELLANEOUS

SHEET COMPOSITIONS

FIVE STAR HOTEL 01

SHERATON GRAND HOTEL - LOBBY

Design of the Sheraton grand hotel lobby located in Bangalore with the concept of reflection, reflecting the architectural history of Karnataka at different allocated spaces with lobby having a design theme inspired and mimicked from the elements and design of the Mysore Palace. The idea is to make the people experience the technologies of the current world at the same time staying grounded to the history Even the pattern in the floor and in walls are motifs from the Mysore Palace iterated to form different patterns

Emperador beige marble White natural marble
FURNITURE LAYOUT REFLECTED CEILING PLAN SECTION
Armani blue marble Brass sculpting Painted mdf jaali

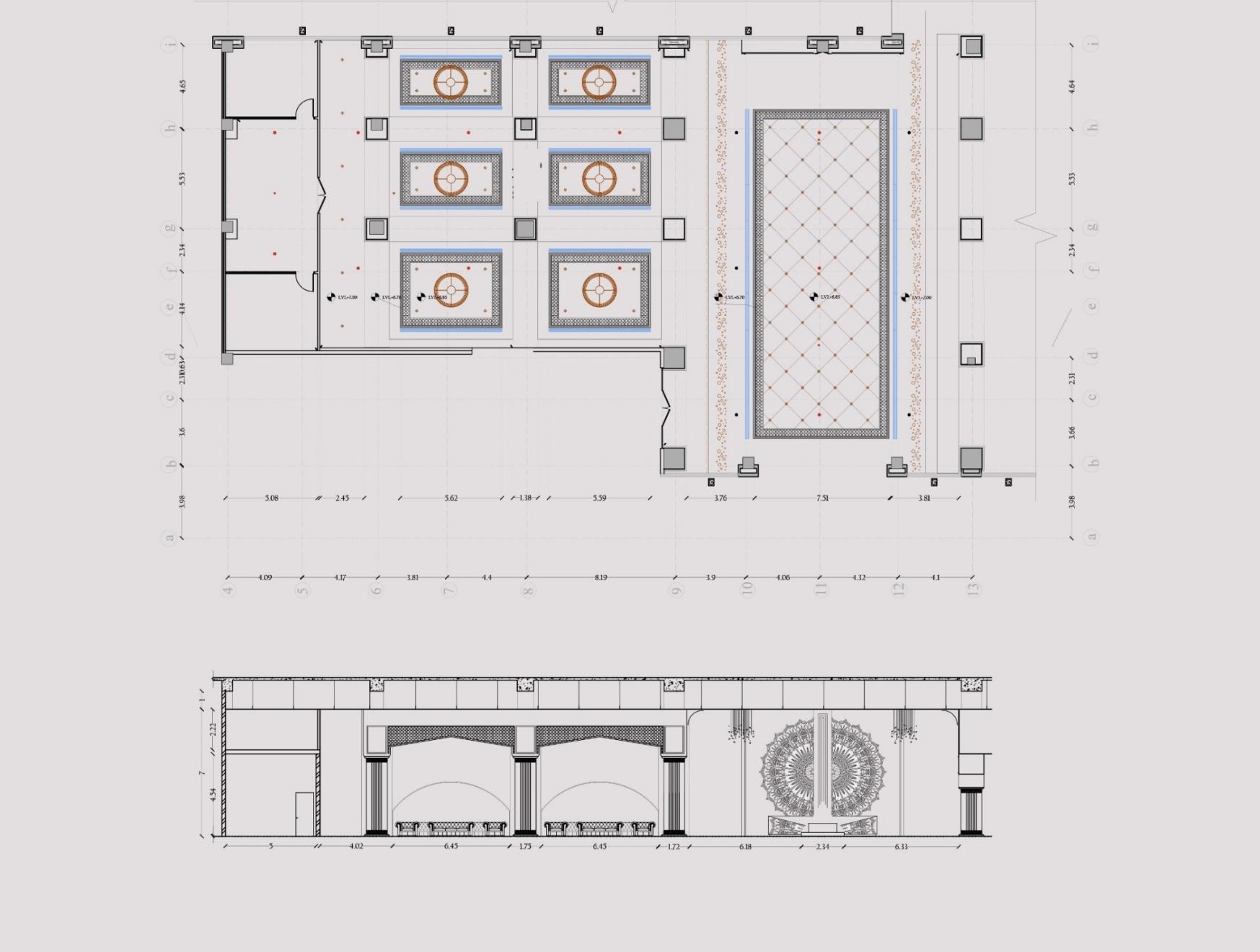
SHERATON GRAND HOTEL -RESTAURANT

FIVE STAR HOTEL

01

Design of Specialty Restaurant of the hotel Sheraton Grand. This restaurant is the reflection of the existence of Indo-Islamic Architecture in Karnataka Thus, this Arabian Restaurant is designed to make its occupants feel the luxury and yet experience the warmth and friendliness of a restaurant achieved by the use of subtle colors and elements

Emperado
FURNITURE LAYOUT
CEILING
SECTION
pop cornice carrara marble Fluted glass Brass inlay
r marble
REFLECTED
PLAN

SECTIONAL ELEVATION

pop cornice Fluted glass SS inlay Indian marble
FURNITURE LAYOUT FLOORING LAYOUT

FIVE STAR HOTEL

01

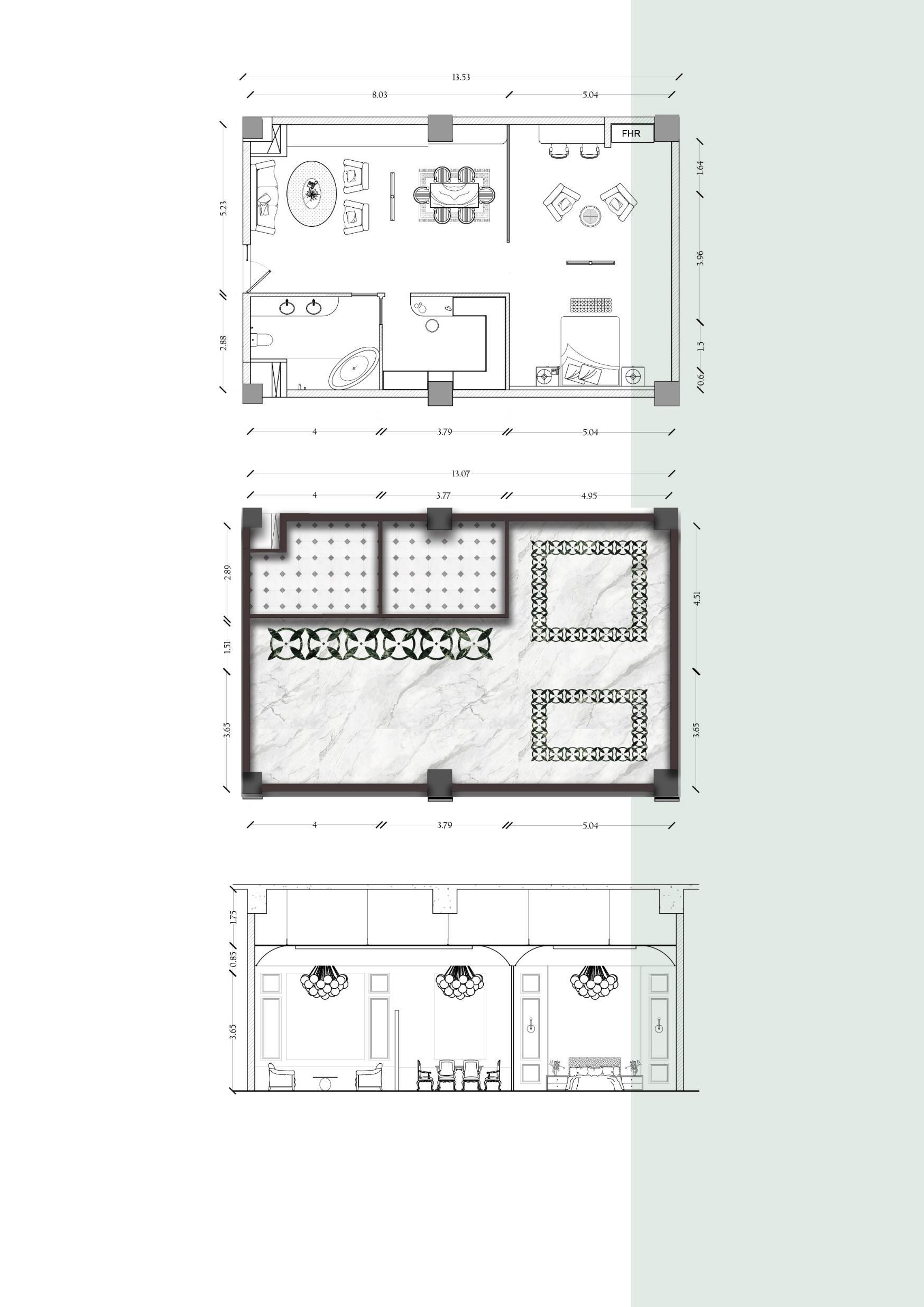
SHERATON GRAND HOTEL - SUITE ROOM

Design of the Sheraton grand hotel Suite room representing the design and architecture of the Lalitha palace, The subtle color palette is been followed. The theme is to allow the guests or users to experience a luxury yet minimalism and serenity The visual lavishness that will enchant the guests with comfortable setting and coziness The seating area has a comfortable set of chairs and a coffee table by the window so your guests can enjoy the view while reading or doing other leisure activities

02 LIBRARY DESIGN THE SOUTENIR Library

The Library design metaphorically connects the importance library being equally important to the resources of nature The whole design is made carefully analysing the energy-efficiency, sustainability of the materials and the impact of the carbon footprint. the library is designed, managed, and operated in a way that minimizes its negative impact on the environment, supports the well-being of its community, and promotes economic sustainability The heat exposure is controlled inside the library by the installation of a water wall which aids in the passive cooling of the library as well as the purification of the indoor air The chosen materials are environmentally friendly, renewable, and non-toxic

Sustainable systems and materials

FURNITURE LAYOUT SECTION photovoltaic window Green wall Indoor plants Water wall installation Recycled cardboard

BRIDAL BOUTIQUE DESIGN 03

SONI BANNO

the bridal shop

The Bridal Boutique designed in a modern ethnic theme with a north Indian touch to it and curvy forms and planning representing the natural curves of a woman aka the bride The color palette and the materials are chosen to invoke the pleasure and the bliss of being a bride

FURNITURE LAYOUT

SECTION A

SECTION A

Calcatta marble white Linen fabric cladding
Wallpaper – metallic Cushioned fabric upholstery SS inlay

3D RENDERS

I am passionately inclined towards making PHOTOREALISTIC 3D RENDERINGS. The Renderings are made with objects having depth, texture, and lighting effects The rendering process involves simulating the behavior of light and shadows, as well as the interaction of materials and textures The 3d model being deigned using sketchup is then rendered to make it look photoreaslistic using VRay Render plugin

04

MODERN CLASSIC LIVING AREA

Visualization of a warm, comfortable, friendly and luxurious Living area The seamlessly rough and subtle texture of the plaster is contrasted with the metal accents The colour palette is a mixed representation of warmth and luxe

MODERN SERENE DINING AREA

Visualization of a calm, minimalist, serene and a modern dining area Out of the four surfaces, two of them are made rough balanced with the other two made glossy The colour palette represents nature and serenity

MODULAR KITCHEN DESIGN

A visualization with the consideration of the ergonomic and functional aspects of a kitchen yet giving a clean and genuine aesthetic look with an optimistic colour palette

BEDROOM-EXPERIMENTAL LEARNING

A visualization encountering the behaviour of the lighting with the colours and textures and understanding the amount of lighting required for a good quality render

WASHROOM-EXPERIMENTAL LEARNING

Understanding the depth of fields and render quality settings This is mimicked output from a pinterest inspiration

TOILET DETAILS

STREAM ZONE-DETAIL DRAWING

05 DETAIL

HVAC LAYOUT-RESTAURANT

ELECTRICAL LAYOUT-RESTAURANT

DRAWINGS

06 PHOTOSHOP

SHEET COMPOSITIONS

06 PHOTOSHOP

SHEET COMPOSITIONS

07

TOURNE’ INFINI

Visualization of a calm, minimalist, serene and a modern dining area Out of the four surfaces, two of them are made rough balanced with the other two made glossy The colour palette represents nature and serenity

MISCELLANEOUS

MISCELLANEOUS

RENDERS FROM RHINO photography, sketches, model making and paintings
shamreenfarah@gmail.com

Turn static files into dynamic content formats.

Create a flipbook
Issuu converts static files into: digital portfolios, online yearbooks, online catalogs, digital photo albums and more. Sign up and create your flipbook.