Architecture Portfolio - Shamika Patil

Page 1

SHAMIKA

PATIL

ARCHITECTURAL WORKS

TABLE OF CONTENTS RECOVERY WITHIN COMMUNITY 01 MIXED-USE RESIDENCE 13 LIVING LINES 19 MUSEUM OF ROMAN ARTIFACTS 27 HUDSON GREENHOUSES 33 SHARP - COMMUNITY CENTER 39 ADDITIONAL WORKS 45
1

RECOVERY WITHIN COMMUNITY

MIDTOWN ATLANTA, GA

SPRING 2022 | COLLABORATIVE STUDIO PROJECT

The project is carefully designed to incorporate a diverse range of spaces which encourage recovery within a community. These spaces can be categorized into communal commerce (as exemplified on the ground level urban marketplace), community gathering spaces (as seen in the workshop spaces and outdoor terrace), and community based fitness (as seen in the fourth level exercise spaces). The intention of these spaces placed together is to encourage an active and lively environment to bolster a sense of community within the urban context.

To enable recovery within the community, the short stay housing brief was interpreted through the lens of housing as a human right with a careful consideration of the role housing plays in providing stability in lives. As such, the residences serve as transitional housing for individuals and families in homelessness situations.

The project also considers more literal recovery such as the path to recovery from substance abuse issue through the inclusion of a methadone treatment clinic within the podium. The intention of all these recovery spaces within the project is to work towards normalizing the process of recovery and supporting it by being in proximity to community.

PROJECT PARTNER: RADHIKA DHEKNE

Mass timber construction forms the residential spaces of the building on top of a concrete podium of community oriented spaces

14” Deep Glulam Beams

5 Ply CLT

Concrete Shear Walls

16” x 16” Glulam Columns

Post-tensioned Concrete Transfer Slab

Post-tensioned Two Way Flat Plate (9” Slab)

20” Deep Post-tensioned Concrete Slab

18” x 18” Concrete Columns

Isolated Column Footing

Concrete Strip Footing

3
TYPE IV-B
4

The form of the community oriented podium is carefully calibrated in order to enliven a somewhat quiet area of the Midtown Atlanta urban fabric. Given the numerous community oriented programmatic spaces on the first few floors of the building, the massing was designed to have a carved out plaza which would provide outdoor gathering space to residents and community members alike while also providing spillover space for the urban marketplace, cafe, and restaurant.

URBAN CONTEXT 5
6

METHADONE CLINIC - 3

FLOOR - 1

METHADONE CLINIC - 2

6’ 12’ 24’ 48’ RECOVERY + COMMUNITY 7
URBAN MARKETPLACE 8
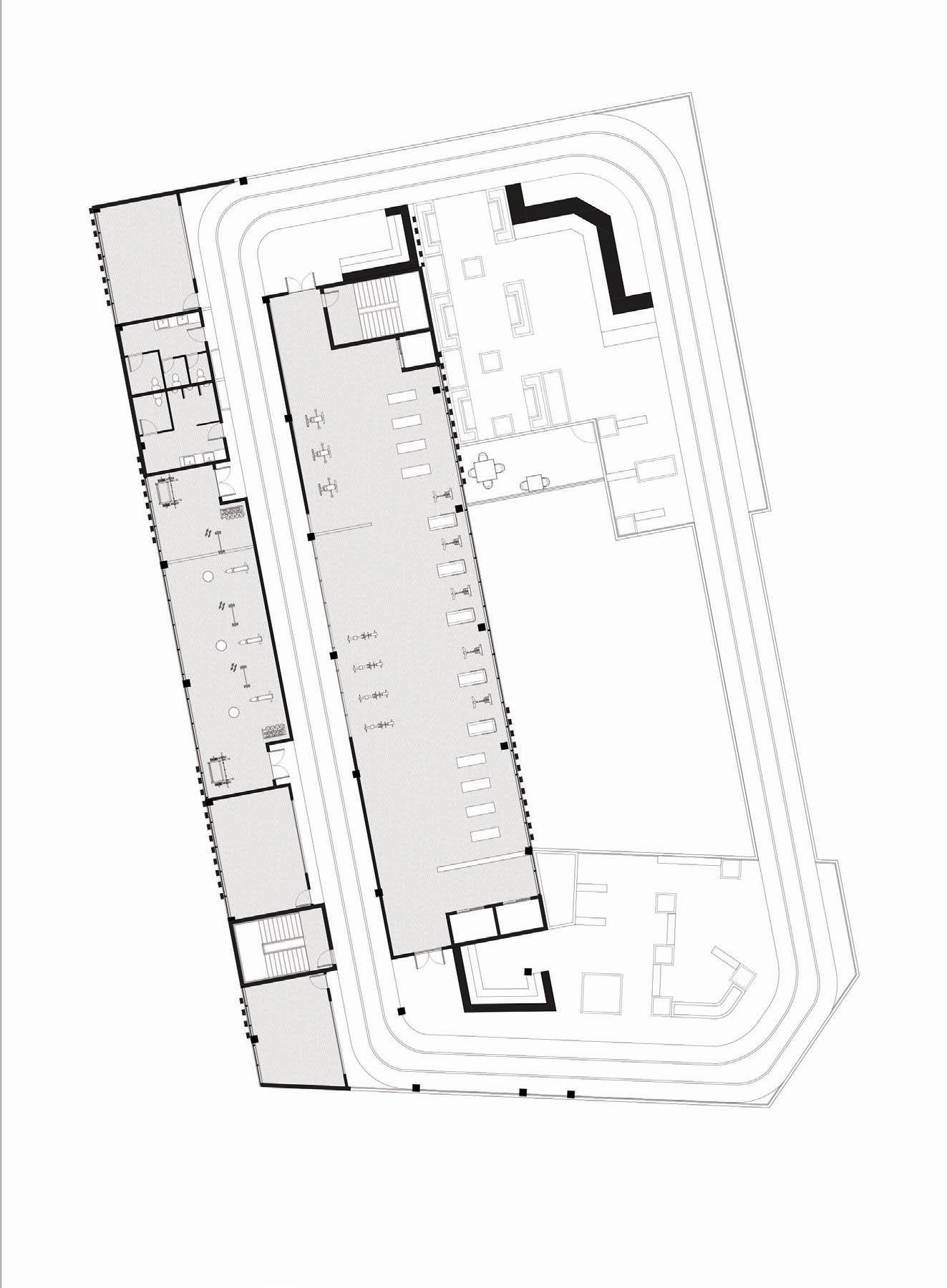
WELLNESS
FLOOR - 4
6’ 12’ 24’ 48’ 9
FLOOR - 2
10
RESIDENTIAL SPACES TYP. RESIDENTIAL PLAN 6’ 12’ 24’ 48’ 11

LOUVER DESIGN

The façade design takes into consideration the various scales of use that are present in the project. There are spaces that are fully private residential units, spaces that are communal but only for residents of the building, and spaces that are accessible to the larger public community of Midtown Atlanta. These three spaces, in addition to vertical circulation, are articulated on the façade through the difference in scale of vertical elements.

The fully private residential units have the smallest scale vertical elements which are operable louvers. These louvers give spatial agency to the residents by allowing them to control how they are oriented so solar shade as well as privacy. The louvers then shift and scale up for the communal spaces and scale up even more at the public spaces such that the program of the interior is hinted at through the façade.

LOUVER OPERABILITY PUBLIC COMMUNAL VERTICAL CIRCULATION PRIVATE
12
13

MIXED-USE RESIDENCE

SANT ANTONI, BARCELONA, SPAIN

SPRING 2020 | STUDIO PROJECT

This Mixed-Use Residential building has two apartment types (2-person apartment and 3-person apartment) while incorporating a food production element into the ground level of design. The design of this Mixed-Use Residential building is utilizing brick as the structure and veneer material while incorporating vertical farming as means for food production.

The design was largely driven by the characteristics of brick masonry construction. Since brick as a material has a strong sense of expressivity and gravity, the way it would be employed was critical. Through the use of this construction technology, a dynamic façade which houses a play of light and shadow is produced through a brick screen that provides privacy to the residents. Catalan vaults were utilized structurally in an effort to create linearly organized apartments. This vault provides great aesthetic value to the interior while also connecting it to the exterior.

The site situation is also unique for an Eixample building in Barcelona because the alley permits a third façade. Therefore, the apartments housing three people were organized facing the alley to provide greater daylighting. While, the two person apartments are oriented towards the street or courtyard. The linear organization of the spaces moves from public to private while maintaining a cohesiveness through the ever-present Catalan vault.

CARRER DE MANSO CARRER DE PARLAMENT
RONDA SANT PAU
CARRER DE COMTE BORRELL SITE PLAN 3-PERSON APARTMENT
15
2-PERSON APARTMENT
16

RESIDENTIAL LEVEL

GROUND LEVEL PLAN

ALLEY ELEVATION
LONGITUDINAL SECTION 17
18
19

LIVING LINES

NORTH LAWNDALE, CHICAGO, IL

FALL 2022 | COLLABORATIVE STUDIO PROJECT

PROJECT PARTNER: KARA O’HEARN

Living Lines suite of residential rooms (as part of a larger multi-family, co-living complex called the House of Funk) is defined by supergraphics: a concert of colorful, undulating lines that animate space while disregarding the conventional edges defined by floors, walls, and ceilings.

Often, the graphics “thicken” to produce functional architectural features, such as seating, fixtures, and ductwork that accommodate specific moments of intimacy and activity in the kitchen, dining, and bedroom areas. All the elements within the design, from the kitchen counter and pantry shelves to the apertures and tables, are defined by the supergraphic (surface) gestures that extrude or spatialize (as volumes).

Living Lines interprets how various “ingredients” of funk such as rhythm, repetition, and intentional improvisation can produce a unique architectural character within the larger “House of Funk.” The process of starting from a supergraphic design aesthetic informed by Funk music and ultimately moving towards delightful and habitable architecture, turns the conventional architectural design process on its head and challenges preconceived notions of how space must be produced.

21
22

home. Several uniquely designed spaces form the broader House of Funk, with each suite of rooms designed by different architectural authors. Each suite accommodates a different set of residential programs. The Living Lines suite of rooms includes a communal kitchen, dining space, and a small family bedroom unit.

Careful attention is especially paid to how Living Lines meets the design languages of the adjacent suites, as well as how the vibrant undulating lines and apertures of the supergraphics project themselves onto the exterior elevation of the House of Funk

23
24

Living Lines results in a space which is inherently playful, joy-filled and full of opportunities for both exuberant, social interaction as well as quiet, mindful existence all while being within a highly functional space.

While the critical driver of the design was the supergraphic, ultimately, the space is animated by more than just the moving lines, but also the people, pets, and plants which enliven the space with activity.

25
26
27

MUSEUM OF ROMAN ARTIFACTS

VOLTERRA, ITALY

FALL 2021 | STUDIO PROJECT

The Museum of Roman Artifacts is a museum located in proximity with the Roman Theater of Volterra. It was designed with a circulation based orientation, both at the micro and macro scales. The decision to divide the museum into these separate polygonal crystal-like massings was to reduce the museum’s impact on the foot traffic of Volterra’s visitors and to form two plazas, one with views to the Roman Theater and another small green plaza to the southwest. Each massing houses specific programmatic needs such as alabaster studios, a cafe, and a conference center, with the museum gallery spaces and lecture hall organized on the upper levels.

The gallery spaces are organized such that you constantly have views down to the Roman Theater and the piazza, thus visually tying the artifacts within the museum to the historic theater below.

The geometric faceted roof structure wrapped in corten steel is meant to blur the lines between what is roof and what is wall with the intention of creating the sense that the museum is growing out of the site. The intersection of the main entry’s wall with the Roman wall of the Theater further ties the museum into the context and makes it part of the fabric of Volterra.

NORTHEAST ELEVATION FIRST FLOOR PLAN
29
SECOND FLOOR PLAN
SOUTHWEST ELEVATION
30
THIRD FLOOR PLAN SITE PLAN
WALL SECTION 31

The process of determining the exact form of the polygonal crystal-like forms growing out of the site which create the plaza which is intended to be a modern piazza in constant dialogue with the historic amphitheater was highly iterative. Each iteration was tested for the quality of the plaza being created and its impact on the pedestrian circulation through the site and within the urban fabric of Volterra.

32
33

HUDSON GREENHOUSES

HUDSON YARDS, NY

SPRING 2021 | STUDIO PROJECT

The Hudson Greenhouses project is a rehabilitation of Pier 76 on the Hudson River and works to revitalize the adjacent neighborhoods by providing access to fresh locally grown food as well as access to spaces for sport, activity, and leisure by essentially splitting the pier in half. The greenhouses and the green spaces will aid in revitalizing ecosystems that have been lost to industrialization. The greenhouses which are the main pinnacle of the project serve to aid in this connection to nature while also introducing a productive element to the site since the greenhouses produce fruit, vegetables, and flora.

In addition to the green zones, the pier will feature spaces for recreation in the form of sport, play, and leisure. These spaces in conjunction with the greenery are intended to serve members of the community and provide an escape from the fast nature of the city. The stepped edges of the pier or “Living Stair” provide spaces for gathering and looking out onto the water and New Jersey. The playground is located near the Living Stair to have proximity to the water and distance from the busy street entrance. The Basketball Courts are central to the active zone and the Upper-Level Running track ambulates all the program areas of the project.

GREENHOUSE MASSING DEVELOPMENT

BASIC CUBE MASSING

CREATE SLANT FACING TOWARDS SOUTH

CREATE TROUGH FOR RAINWATER COLLECTION

EAST AND WEST FACADES OPEN UP FOR VENTILATION AND FREE CIRCULATION

35
GREENHOUSE SECTION
SPORT + ACTIVITY LIVING STAIR PRODUCE SALES FLORA VEGETATION RETAIL FRUIT 36
ENTRY PERSPECTIVE 37
38
39

SHARP - COMMUNITY CENTER

CHAMPAIGN, IL

FALL 2020 | STUDIO PROJECT

This Community Center has two primary principles driving the overall design process –Community and Sustainability. The process of developing the concept was based initially on fostering a sense of community by having two arms of the community center reaching out and beckoning members of the community. Additionally, by raising the programmatic spaces of the community center to the second level when possible, the site is enlarged and permits more spaces for greenery and community engagement.

The principle of sustainability was expressed within the project by utilizing passive daylighting strategies to reduce cooling loads in the summer. The sawtooth façade, as expressed in both plan and section, works to block direct daylight during the summer months while permitting diffused lighting to enter the building. The southern façade was also carefully designed with a colorful ceramic louver system to block the summer sun and permit the winter sun. The sustainability strategies and the community ideals, ultimately, work in conjunction to define the overall form and character of the community center.

REACHING OUT AND EMBRACING THE COMMUNITY

RAISED OFF GROUND TO ENLARGE THE GROUND SITE

SUSTAINABILTY GOALS THROUGH SAWTOOTH FACADE RAIN WATER COLLECTION

SAWTOOTH EXPRESSED IN THE ROOF + LOUVERS ON SOUTHERN FACADE

SUSTAINABILITY DIAGRAM
41
PHOTOVOLTAIC PANELS

ENTRY GALLERY CAFE

SUPPORT SPACES

COMMUNITY ROOMS

ADMIN SUITE

GYMNASIUM COMPUTER LAB

GARDEN SPACES

42
WALL SECTION DETAIL 43
WEST ELEVATION SOUTH 44

ADDITIONAL WORKS

GRAPHIC

DESIGN WORK Digital Illustration using Adobe Illustrator Ink and Water sketch on site
45
JEWISH MUSEUM | BERLIN, GERMANY Architectural Photography Digital Collage using Adobe Photoshop
46
BARCELONA PAVILION | BARCELONA, SPAIN FREE UNIVERSITY LIBRARY | BERLIN, GERMANY

Turn static files into dynamic content formats.

Create a flipbook
Issuu converts static files into: digital portfolios, online yearbooks, online catalogs, digital photo albums and more. Sign up and create your flipbook.