MA-IAD

Page 1

METAMORPHOSIS/ Shalmali Nigudkar MA I Interior Architecture and Design
03 02 01 02 03 04 05 06 Rockefeller Medical Clinic Page 06 Northwest Community Center Page 20 Baker’s Residence Page 44 Boutique store at Fisherman’s Wharf Page 50 Phu Restaurant Page 56 Personal Works Page 62 CONTENTS/

PROJECT

01 / Rockefeller Medical Clinic

Crafting a pragmatic living space to nurture healing and well-being

The project entails the interior design of a medical clinic located in Arkansas, with a focus on prioritizing patient comfort, staff efficiency, and compliance with regulatory standards. The primary goal is to create an inviting atmosphere conducive to patient relaxation, while also optimizing workflow for the staff. Key aspects of the design strategy include efficient spatial planning,calming color schemes, and appropriate lighting arrangements to enhance the overall ambiance.

With a strong commitment to supporting and serving the neighboring communities, particularly those near Winthrop, her vision is to craft a welcoming environment that seamlessly integrates comfort with contemporary aesthetics. The design concept places emphasis on the utilization of translucent materials, which effectively blend natural and artificial light to create a harmonious ambiance.

Dr. Janice Rockefeller, a seasoned medical professional with deep ties to Missouri, is embarking on the establishment of a small family medical practice in Little River County, Arkansas.

The chosen material palette for this endeavor features muted Pantone tones, selected for their soothing and visually pleasing qualities.

05 04 METAMORPHOSIS SHALMALI NIGUDKAR MA-IAD 01 ROCKEFELLER MEDICAL CLINIC
Site Course Instructor Year Little River County, Arkansas IAD 600 Studio 1 Tom Collom Spring
01 02 03 04 05 06
2023
07 06 METAMORPHOSIS SHALMALI NIGUDKAR MA-IAD 01 ROCKEFELLER MEDICAL CLINIC 01 02 03 04 05 06 01 02 03 04 05 06 FLOOR PLAN 01 / RECEPTION 02 / WAITING ARVEA & PLAY AREA 03 / NURSE STATION 04 / WORK ROOM 05 / RESTROOMS 06 / CONSULTATION ROOMS 07 / EXAM ROOMS 08 / BREAK ROOM 09 / KISOKS 10 / FOYER 11 / ENTRANCE 12 / ELEVATOR 13 / COMMUNICATION ROOM 14 / ESCAPE HATCH 01 02 03 04 05 05 06 06 08 07 07 07 07 09 11 10 12 13 14

The aim of the design was to create a pleasant and an inviting space by building a connection right at the portal. The entire built space is lucid, limited, protected and interconnected.

Lucidity is amplified in the entire composition with a hint of contrast through colors, lines and textures by making it more engaging.

09 08 METAMORPHOSIS SHALMALI NIGUDKAR MA-IAD 01 ROCKEFELLER MEDICAL CLINIC
01 / MATERIAL BOARD [LU.CID.]
01 02 03 04 05 06 01 02 03 04 05 06
11 10 METAMORPHOSIS SHALMALI NIGUDKAR MA-IAD 01 ROCKEFELLER MEDICAL CLINIC 02 / DR. ROCKEFELLER’S OFFICE 01 / WAITING & PLAY AREA 01 02 01 02 03 04 05 06 01 02 03 04 05 06
13 12 METAMORPHOSIS SHALMALI NIGUDKAR MA-IAD 01 ROCKEFELLER MEDICAL CLINIC 03 / DR. ROCKEFELLER’S OFFICE 03 01 / WAITING AREA & NURSE STATION 02 / EXAMINATION ROOM 01 02 01 02 03 04 05 06 01 02 03 04 05 06
15 14 METAMORPHOSIS SHALMALI NIGUDKAR MA-IAD 01 ROCKEFELLER MEDICAL CLINIC 01 / SECTIONAL ELEVATION A
01 02 03 04 05 06 01 02 03 04 05 06
BREAK ROOM CORRIDOR RECEPTION CORRIDOR CONSULTATION ROOM WAITING AREA
17 16 METAMORPHOSIS SHALMALI NIGUDKAR MA-IAD 01 ROCKEFELLER MEDICAL CLINIC 01 / SECTIONAL ELEVATION B 02 / SECTIONAL ELEVATION C EXAM ROOM 01 SEATING SPACE WAITING ROOM PLAY AREA RECEPTION ENTRANCE 01 02 EXAM ROOM 02 01 02 03 04 05 06 01 02 03 04 05 06
19 18 METAMORPHOSIS SHALMALI NIGUDKAR MA-IAD 01 ROCKEFELLER MEDICAL CLINIC 03 / ELEVATION B 01 / ISOMETRIC VIEW 02 / SECTIONAL ELEVATION A 01 02 03 01 02 03 04 05 06 01 02 03 04 05 06

PROJECT

02 / Northwest Community Center

Building a safe hevan that fosters empowerment and belonging

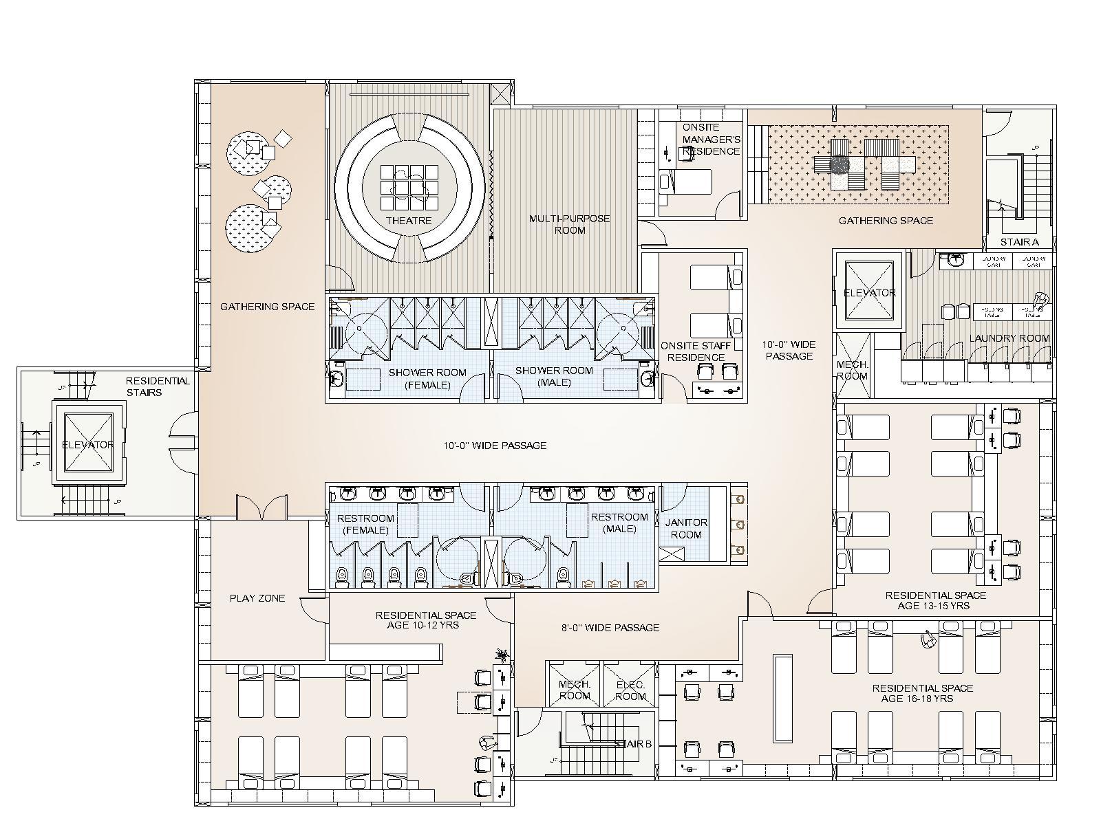
Located in Portland, Oregon, the community center serves as a sanctuary of renewal and solace for children hailing from Sudan, who have been profoundly impacted by the severe climatic crises in their homeland. Offering safety, acceptance, equality, and comfort, this center provides a confident and nurturing environment for climate refugee youths aged between 12 and 18, empowering them to develop and flourish.

The design is characterized by the exclusive utilization of continuous arcs as a recurring motif. The space is distinctly delineated through the incorporation of vibrant, warm hues such as red and blue, which play a pivotal role in establishing a distinct identity and facilitating active engagement among learners.

The material palette resonates with this harmony, integrating complementary tones with spirited accents. The convergence of two planes at the apex of an arch symbolizes the paramount significance of the center as a bridge connecting two cultures and fostering community advancement.

The space is distinctly delineated through the incorporation of vibrant, warm hues such as red and blue, which play a pivotal role in establishing a distinct identity and facilitating active engagement among learners. The material palette resonates with this harmony, integrating complementary tones with spirited accents.

21 20 METAMORPHOSIS SHALMALI NIGUDKAR MA-IAD 02 NORTHWEST COMMUNITY CENTER
Site Course Instructor Year Portland, Oregon IAD 601 Studio 2 Scott Kress Fall 2023 01 I 02 03 04 05 06
23 22 METAMORPHOSIS SHALMALI NIGUDKAR MA-IAD 02 NORTHWEST COMMUNITY CENTER 01 I 02 03 04 05 06 01 I 02 03 04 05 06 02 / SUN & WIND ANALYSIS 03 / NOISE ANALYSIS 01 / VEHICULAR ACCESSIBILTY ANALYSIS
25 24 METAMORPHOSIS SHALMALI NIGUDKAR MA-IAD 02 NORTHWEST COMMUNITY CENTER 01 / FIRST FLOOR (BLOCK) PLAN 02 / SECOND FLOOR (BLOCK) PLAN 02 01 0.1 MILE 0.1 MILE 0.4 MILE 1.2 MILE 0.4 MILE 0.9 MILE 1.2 mile 0.4 mile 0.9 mile 0.1 mile 0.1 mile 0.4 mile 0.4 mile 0.3 mile 0.9 mile 0.4 MILE 0.3 MILE 0.9 MILE 0.4 MILE 0.3 MILE 0.9 MILE 0.4 MILE 0.3 MILE 0.9 MILE 0.4 MILE 0.8 MILE 0.3 MILE 0.4 mile 0.8 mile 0.3 mile 0.4 MILE 0.8 MILE 0.3 MILE 0.4 MILE 0.8 MILE 0.3 MILE 01 I 02 03 04 05 06 01 I 02 03 04 05 06
27 26 METAMORPHOSIS SHALMALI NIGUDKAR MA-IAD 02 NORTHWEST COMMUNITY CENTER 02 / GATHERING SPACE 03 / CLASSROOM INTERIOR 01 / LIBRARY SEATING 01 I 02 03 04 05 06 01 I 02 03 04 05 06
29 28 METAMORPHOSIS SHALMALI NIGUDKAR MA-IAD 02 NORTHWEST COMMUNITY CENTER 01 / ARHAUS HOLLIS PENDANT IN NATURAL 02 / PERIGOLD MADISON COUTURE RUGS 03 / PORCELANOSA BOTTEGA CALIZA ANTISLIP 04 / PORCELANOSA DURANGO ACERO 05 / LULU & GEOGRIA TIMO DINING CHAIR 06 / KELLY WEARSTLER TROYE MEDIUM TABLE LAMP 07 / LULU & GEOGRIA FALLOW ROUND SIDE TABLE 08 / PHILLIP JEFFERIES 10106 ORIGIN TICKING STRIPE 09 / LOGAN MONTGOMERY TEXTILES CAMBUS SILVER 10 / KELLY WEARSTLER HUME MODULAR STONE BENCH 11 / PHILLIP JEFFERIES 4676 CALYPSO LINEN 12 / PORCELANOSA COLLECTION: ARS BEIGE 01 02 03 04 05 06 07 08 09 10 11 12 01 I 02 03 04 05 06 01 I 02 03 04 05 06

01 / RECEPTION + LOBBY

02 / CAFE + PANTRY

03 / COMMUNITY HALL

04 / CLASSROOMS

05 / COMPUTER ROOM

06 / ADMIN. ROOM

07 / BREAK ROOM

08 / CONFERENCE ROOM

09 / CONSULTATION ROOM

10 / STORE ROOM

11 / MANAGER’S OFFICE

12 / LIBRARY

13 / RESTROOMS + JANITOR ROOM

FIRST FLOOR PLAN

01 / GATHERING SPACES

02 / THEATRE

03 / MULTI-PURPOSE ROOM

04 / ON-SITE MANAGER’S RESIDENCE

05 / ON-SITE STAFF’S RESIDENCE

06 / LAUNDRY ROOM

07 / RESIDENTIAL SPACE (AGE 10-12)

08 / RESIDENTIAL SPACE (AGE 13-15)

09 / RESIDENTIAL SPACE (AGE 16-18)

10 / PLAY ZONE

11 / RESTROOMS + JANITOR ROOM

SECOND FLOOR PLAN

31 30 METAMORPHOSIS SHALMALI NIGUDKAR MA-IAD 02 NORTHWEST COMMUNITY CENTER
01 I 02 03 04 05 06 01 I 02 03 04 05 06
33 32 METAMORPHOSIS SHALMALI NIGUDKAR MA-IAD 02 NORTHWEST COMMUNITY CENTER 02 / RECEPTION 03 / MULTI-PURPOSE ROOM 01 / THEATRE 01 I 02 03 04 05 06 01 I 02 03 04 05 06 03 02 01
35 34 METAMORPHOSIS SHALMALI NIGUDKAR MA-IAD 02 NORTHWEST COMMUNITY CENTER 02 / LIBRARY 03 / VIEW FROM GATHERING SPACE 01 / ENTRANCE 01 02 03 01 I 02 03 04 05 06 01 I 02 03 04 05 06
37 36 METAMORPHOSIS SHALMALI NIGUDKAR MA-IAD 02 NORTHWEST COMMUNITY CENTER 02 / CONFERENCE ROOM 03 / CAFE 01 / SOCIAL SERVICE OFFICE 01 02 03 01 I 02 03 04 05 06 01 I 02 03 04 05 06
39 38 METAMORPHOSIS SHALMALI NIGUDKAR MA-IAD 02 NORTHWEST COMMUNITY CENTER 03 / THEATRE 02 / MULTIPURPOSE ROOM 01 / GATHERING SPACE 01 02 03 01 I 02 03 04 05 06 01 I 02 03 04 05 06
41 40 METAMORPHOSIS SHALMALI NIGUDKAR MA-IAD 02 NORTHWEST COMMUNITY CENTER 02 / RESIDENTIAL DORM STUDY 01 / RESIDENTIAL DORM 01 I 02 03 04 05 06 01 I 02 03 04 05 06
43 42 METAMORPHOSIS SHALMALI NIGUDKAR MA-IAD 02 NORTHWEST COMMUNITY CENTER 01 / SECTIONAL ELEVATION A 02 / SECTIONAL ELEVATION B CLINIC CONFERENCE ROOM CONSULTATION ROOM MANAGER’S OFFICE BREAK ROOM SOCIAL SECURITY OFFICE LIBRARY 01 02 01 I 02 03 04 05 06 01 I 02 03 04 05 06

PROJECT 03 / Baker Residence

A redesign space for comfort and tranquility

Situated in San Francisco, California, this apartment is primarily tailored to accommodate a family of four. The central objective of this project entailed refining the existing floor plan with a keen emphasis on design aesthetics, proficiently executed through the utilization of SketchUp and V-Ray software.

Furthermore, the project involved enhancing the plan’s visual appeal by incorporating textures, shadows, and lighting effects, with particular attention directed towards seamlessly applying textures using advanced Photoshop imaging techniques.

45 44 METAMORPHOSIS SHALMALI NIGUDKAR MA-IAD 03 BAKER RESIDENCE
Site Course Instructor Year San Francisco, California IAD 608 Digital Imaging Mark Miller Fall 2023 01 02 03 I 04 05 I 06
47 46 METAMORPHOSIS SHALMALI NIGUDKAR MA-IAD 03 BAKER RESIDENCE 01 I 02 03 04 05 06 01 I 02 03 04 05 06 03 / LIVING ROOM (SKETCH) 01 / LIVING ROOM 02 / BED ROOM 01 02 03
49 48 METAMORPHOSIS SHALMALI NIGUDKAR MA-IAD 03 BAKER RESIDENCE
02 01 I 02 03 04 05 06 01 I 02 03 04 05 06
01 / ISOMETRIC VIEW 02 / FLOOR PLAN

PROJECT 04 / Boutique store at Fisherman’s Wharf

Bayfront boutique: Creating premier space for luxury and organic crafts

Located in the bustling downtown district of San Francisco, Bare offers a selection of high-end products rooted in the concept of utilizing natural botanicals sourced from the Earth.

Positioned as an organic collection, Bare crafts classical products tailored to align with the elemental lifestyle of its clientele.

The establishment features a captivating retail front and an adjacent mini workshop, allowing visitors to observe the artisanal creation of organic preparations.

Characterized by a minimalist design ethos and captivating displays, Bare ensures an unforgettable shopping experience. The material palette underscores the use of raw and exposed materials throughout the space, providing a minimalist backdrop that directs focus towards the featured products.

Notably, the incorporation of exposed natural wood and untreated concrete textures embodies the brand’s ethos of simplicity and minimalism.

51 50 METAMORPHOSIS SHALMALI NIGUDKAR MA-IAD 04 BOUTIQUE STORE AT FISHERMAN’S WHARF
Site Course Instructor Year San Francisco, California IAD 600 Studio 1 Tom Collom Spring 2023 01 I 02 03 04 05 06
53 52 METAMORPHOSIS SHALMALI NIGUDKAR MA-IAD 04 BOUTIQUE STORE AT FISHERMAN’S WHARF 03 / VIEW OF ACCENT WALL 01 / VIEW OVERLOOKING THE COUNTER & DISPLAY 02 / VIEW OF DISPLAY WALL SHOWCASING SCENTS 01 I 02 03 04 05 06 01 I 02 03 04 05 06
55 54 METAMORPHOSIS SHALMALI NIGUDKAR MA-IAD 04 BOUTIQUE STORE AT FISHERMAN’S WHARF 01 / MATERIAL MOODBOARD 02 / FLOOR PLAN 01 / ENTRANCE 02 / DISPLAY AREA 03 / RECEPTION & PACKAGING 04 / DISPLAY AREA WITH OPEN SHELVES 05 / SCENT WALL ACCENT 06 / BACK OFFICE / WORK ROOM 07 / JANITOR ROOM 08 / BREAK ROOM 09 / STORE ROOM 10 / RESTROOM 01 I 02 03 04 05 06 01 I 02 03 04 05 06

IAD 604 Lighting Design

Site Course Instructor Year San Francisco, California

Cheryl Gulley Fall 2023

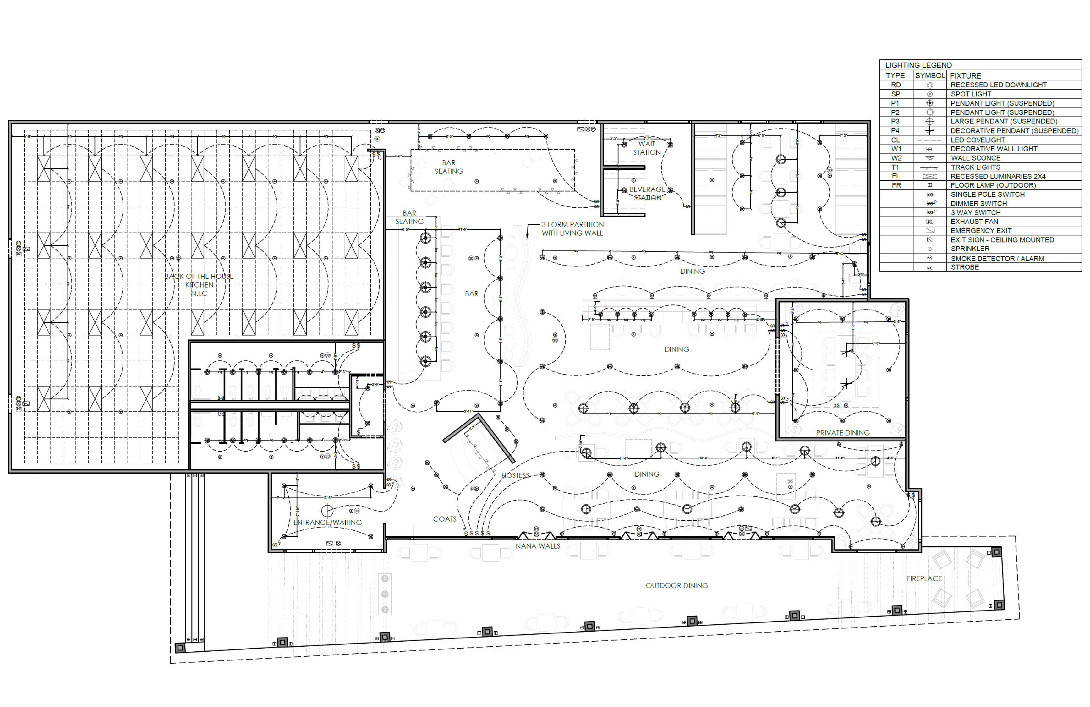
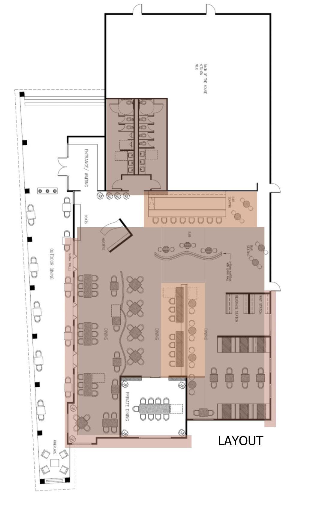
PROJECT 05 / Phu Restaurant

Crafting a cultural tapestry within vibrant heart of San Francisco

Phu restaurant is located at Fisherman’s Wharf in San Francisco and the concept is to be simplistic and authentic. The restaurant is a celebration of the rich cultural tapestry of Vietnamese cuisine, s eamlessly woven into the warmth of a brown and rustic color palette.

The space is designed to transport guests to the bustling streets of Vietnamese city and the décor is inspired by Vietnamese craftsmanship, which showcases a blend of vintage and contemporary elements, creating a harmonious environment. This fusion with urban lighting sets the stage for a dining experience that reflects the sould of the cuisine.

57 56 METAMORPHOSIS SHALMALI NIGUDKAR MA-IAD 05 PHU RESTAURANT
01 I 02 03 I 04 05 I 06
59 58 METAMORPHOSIS SHALMALI NIGUDKAR MA-IAD 05 PHU RESTAURANT
/ ELEVATION A
/ ELEVATION B 01 I 02 03 04 05 06 01 I 02 03 04 05 06
/ LIGHTING PLAN
01
02
03
61 60 METAMORPHOSIS SHALMALI NIGUDKAR MA-IAD 05 PHU RESTAURANT 01 02 04 / CONFERENCE 03 / PUBLIC DINING SPACE 03 04 02 / ELEVATIONS 01 / PRIVATE DINING 01 I 02 03 04 05 06 01 I 02 03 04 05 06

PROJECT 06 / Personal Work

As a designer, I have consistently found inspiration in the practice of creating hand-drawn sketches throughout my architectural and interior design endeavors. As a designer, enjoy hand sketching because it allows me to freely express my ideas without the limitations of computer software.

This chapter encompasses a collection of personal works that have enabled me to delve into various disciplines within art and design, utilizing hand-drawn sketches and watercolor mediums to explore and express my creative vision.

63 62 METAMORPHOSIS SHALMALI NIGUDKAR MA-IAD 06 PERSONAL WORKS
Project Course Year Hand Renderings Personal Work 2022 - 2024
the sketches! 01 02 I 03 04 05 06 01 I 02 03 04 05 06
Enjoy
65 64 METAMORPHOSIS SHALMALI NIGUDKAR MA-IAD 06 PERSONAL WORKS 01 02 I 03 04 05 06 01 I 02 03 04 05 06

ACKNOWLEDGEMENT/

Family and Friends/

My architecture and interior journey cannot be complete without the support of my family and friends. Mom and Dad, thank you for your unconditional love and for always being by my side during the most challenging times.

Special thanks to Kunal for his unwavering encouragement throughout this incredible journey. Aakanksha and my friends, thank you for giving me beautiful memories during my path in interior design and architecture education.

IAD Instructors/

Special thanks to Tom Collom for his invaluable guidance and knowledge. Your feedback and insights will always motivate me to keep striving for improvement in the future.

am immensely grateful to Mart Scott for her excellent guidance and expertise. Her remarkable eye for graphic design and insightful feedback have been instrumental in shaping this work.

Sott Kress Cheryl Gulley

Jemy Massie Mark Miller

67 66
Copyright © 2024 Shalmali Nigudkar All rights reserved. No part of this publication can be reproduced or transmitted in any form, without the prior written permission of the copywrite holder stated above. This book was produced as part of a student portfolio and other projects developed through the
program.

COLOPHON/

Portfolio/ Metamorphose

Contact/ Shalmali Nigudkar Email/ shalmali.nigudkar@gmail.com Website/ shalmalinigudkar.com

School/ Academy of Art University Degree/ Master of Arts Interior Architecture and Design Instructor/ Mary Scott Course/ GR 700 MA Portfolio Seminar

Cover/ Image wrap Matte Finish Paper Stock/ #100 Text Mohawk Superfine Eggshell Printing & Binding/ Blurb.com

Typography/ Franklin Gothic Book Franklin Gothic Demi Cond

69 68

www.shalmalinigudkar.com

- 2024
2022

Turn static files into dynamic content formats.

Create a flipbook
Issuu converts static files into: digital portfolios, online yearbooks, online catalogs, digital photo albums and more. Sign up and create your flipbook.