2024_SHAKEER HUSSAIN PORTFOLIO

Page 1

2getherments

Residential apartment, Bengaluru

MAYFAIR HOTEL KOLKATA

FOOTBALL STADIUM REDEVELOPMENT GUWAHATI

INOVATION CENTER

L&T CONSTRUCTION, CHENNAI

CONTENT

PROJECT SCOPE

• To understand client requirements and design accordingly.

• Focusing on client’s budget.

• Understanding and adhering local laws.

• Creating BOQ

PROJECT SCOPE

• To prepare construction drawings.

• Coordinate with MEP consultants.

• Understand vendor requirements & approve required ones.

• Planning site visits after every phase of construction.

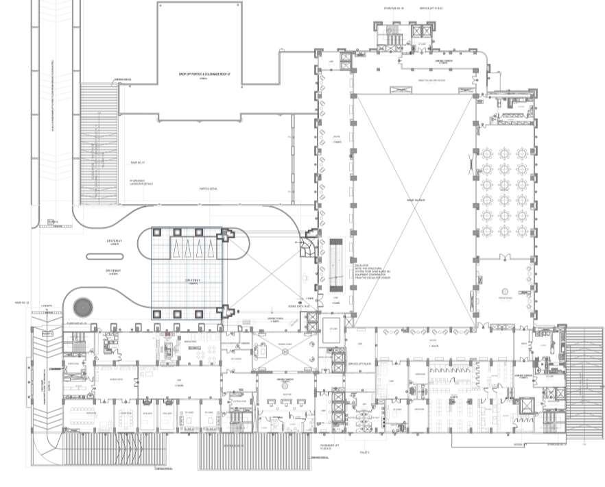
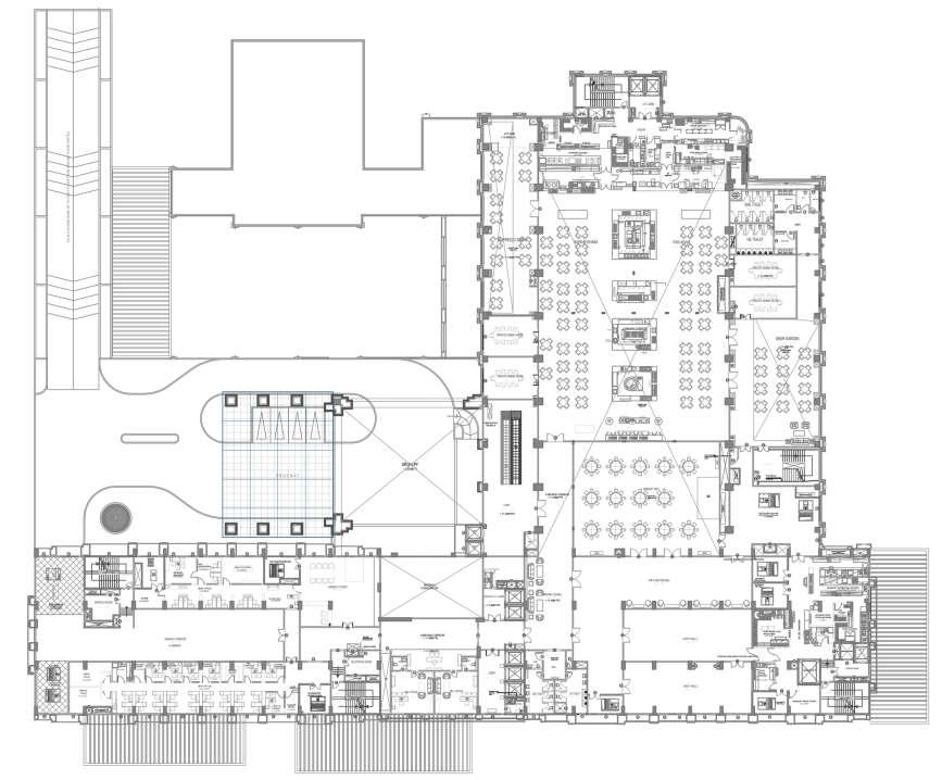
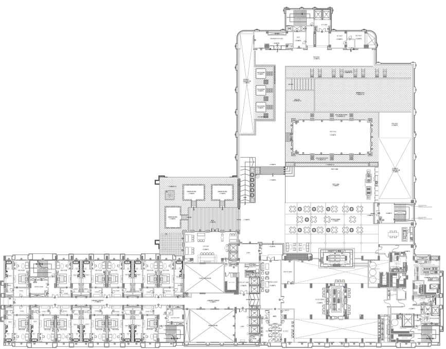
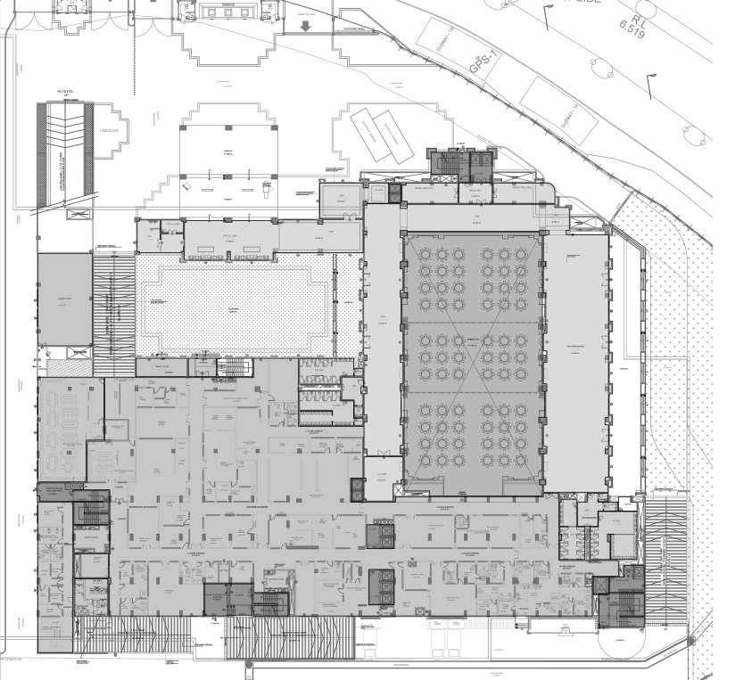
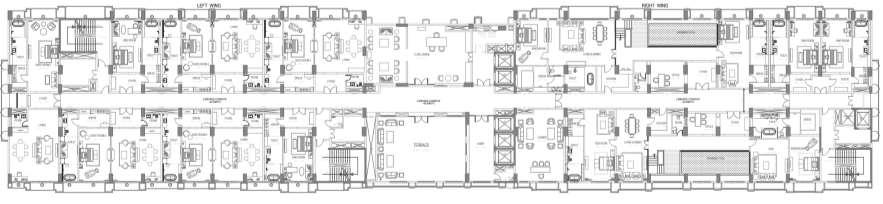
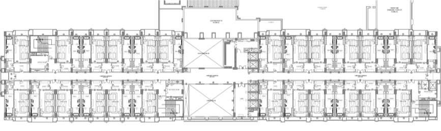
KOLKATA
MAYFAIR HOTEL

FIRST FLOOR

FLOOR
GROUND

THIRD FLOOR

SECOND FLOOR

TWIN ROOM TYPICAL FLOOR

SUITE ROOM TYPICAL FLOOR

FOURTH FLOOR
SECTION

SITE PROGRESS

STADIUM REDEVELOPMENT

To develop the existing Nehru Sports stadium to a state-of-the-art football stadium for a capacity of 30,000 spectators & FIFA category 2. The stadium is to be an iconic structure to promote and spread awareness of sports and its importance to all sections of the society.

PROJECT SCOPE

• To understand client requirements and design accordingly.

• Focusing on client’s budget.

• Creating bid documents & design brief report.

• Creating BOQ

GUWAHATI
1 2 3 4 SITE SITE ZONING 1 2 3 4 TENNIS COURT BASKETBALL COURT MAIN FOP PRACTICE FOP

WEST PAVILION

Second floor lvl +9150

Podium lvl +4650

Ground floor lvl +450

Roof lvl +36700

Third floor lvl +13430

Second floor lvl +9150

Podium lvl +4650

Ground floor lvl +450

WEST PAVILION

PLAYER’S FACILITY

Entry to upper vomitory

Corporate boxes

Entry to lower vomitory & toilets

VIP, players & press facility

LOBBY

F&B RETAIL

TOILETS

LOCKER ROOM

DINING ROOM

COACH ROOM

PHYSIO

FIRST AID ROOM

REFEREE

OFFICIALS ROOM

PRESS CONFERENCE

BROADCAST

1 2 3 4 5 6 7 8 9 10 11 12
ROOM 1 2 3 3 4 5 6 7 8 4 3 8 7 6 5 1 9 9 10 10 1 11 12
Entry
Field

EAST PAVILION

EAST PAVILION

Roof lvl +36700

Third floor lvl +13430

Second floor lvl +9150

Podium lvl +4650

Entry to upper vomitory

Ground floor lvl +450

Dormitory

Entry to lower vomitory & toilets

Association office

NORTH PAVILION

Indoor Badminton courts (6 nos)

Swimming pool, Squash, Table Tennis & Change rooms

lvl +450
ST floor lvl+4650
lvl
Ground floor
1
Roof

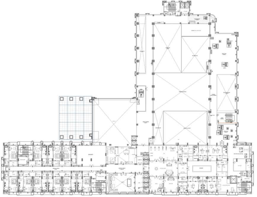
INOVATION CENTER

L&T CONSTRUCTION, CHENNAI

To develop an office space of 20 members capacity containing two floors and car parking spaces for five cars with EV station adjacent to it.

Perforated & embossed metal screen

Double glazed Structural system

Thank you Contact - 0503117394 mail - shakeerhussain.aks@outlook.com

Turn static files into dynamic content formats.

Create a flipbook
Issuu converts static files into: digital portfolios, online yearbooks, online catalogs, digital photo albums and more. Sign up and create your flipbook.
2024_SHAKEER HUSSAIN PORTFOLIO by shakeerhussainn - Issuu