Skip to main content

Chang, Jou Jou EA1-SPRING Protfolio

Page 1

PORTFOLIO

Chang,Jou-Jou

Group 7

EA1-Spring

About me

張柔柔 Chang,Jou-Jou 淡江大學建築系
TamKang University 指導老師:林宏聰老師
Dept.of Architecture,

Window-Scape: in-between 窗景:中介空間

Learning from Masters: Process and Operation principle 向大師學習:過程與操作原則 階段一:完整案例模型與圖面 階段二:空間手法研究 階段三:設計操作實踐

CONTENTS

Window-Scape: in-between

窗景:中介空間

透過局部空間行為的觀察紀錄, 探討空間內外元素的互相關係, 透過圖示揭示空間與行為之間的聯繫。 在不同尺度的空間中進行 新的配置,實現從抽象到具體的轉化, 從而創造出具有獨特空間主題的設計。

原基地

7-ELEVEN渡船頭門市的座位區

我選擇的基地對我而言,

是座位區與樓下熱炒店的中介,

也是座位區與淡水老街、淡水河、大自然的中介。

我想要透過著個座位區的向外延伸,

改善原先座位區的問題,也加強了中介對四周的關係。

座位區空間狹小,桌椅之間空隙讓人難以移動。

桌椅幾乎靠在垃圾桶、循環杯收杯處。

大部分待在這裡的人是聊天休憩或是儘速解決一餐。

座位區及後門都有不提供的時間。

後門會準時鎖門無法使用,

但是座位區在21:00以後依然會有人使用。

這家店很狹長,雖然座位區沒有隔間,

但是人流幾乎聚集在前門的櫃檯, 座位區不太會受店員或其他顧客影響。

一樓的內側是收銀台,外側是廚房。

廚房會產生熱氣、油煙。

▲第一顆草模 ▲第二顆草模 ▲第三顆草模

第一顆草模

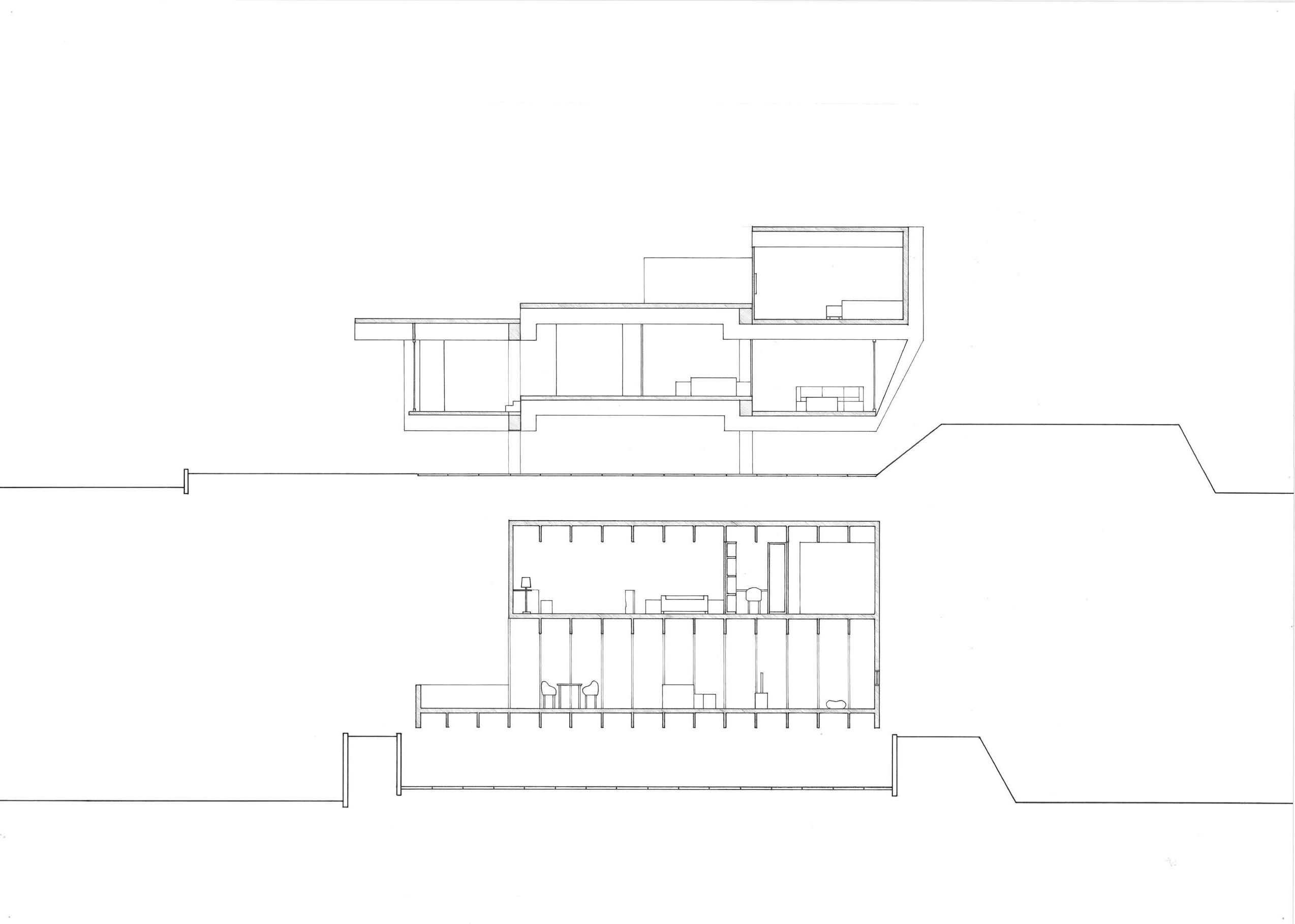
樓下有廚房,所以將對應到樓上的位子空出來, 做為廚房排放油煙的地方,讓油煙熱氣影響樓上的座位, 阻擋油煙的牆,改成椅子同時具有不同的機能。

出挑的屋簷,建立了半室外區域,將室內延伸到室外。

從室內往外看,可以看到被屋簷框住的景色,暗示了視線的方向。

在邊緣放吧台,從座位區可以無邊際的眺望淡水河。

第二顆草模

將弧形的語彙重複應用在設計中,增加綠植連結與大自然的關係。

在中間設立包廂座位區,三個包廂之間的空隙,做採光罩,

讓樓上的光可以透到一樓餐廳的座位區。

但發現包廂中產生許多視線死角,也會擋住屋簷下的座位區視野。

第三顆草模

因為將座位區延伸到屋頂,需要考慮結構的問題, 我將弧形椅子與板狀結構結合,

這個向度的結構版可以不破壞一樓的機能, 一樓的櫃子與烤箱一樣可以使用。

落下一些柱子,把柱子的延伸與座位區結合,

但發現柱子作為結構,與板狀的結構有很大的不同,

沒辦法探討板狀結構的向度,與視線穿透和機能的關係。

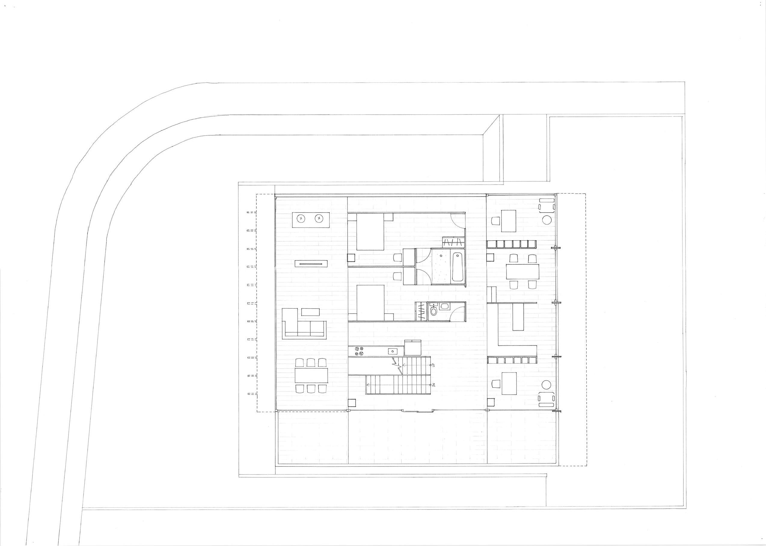
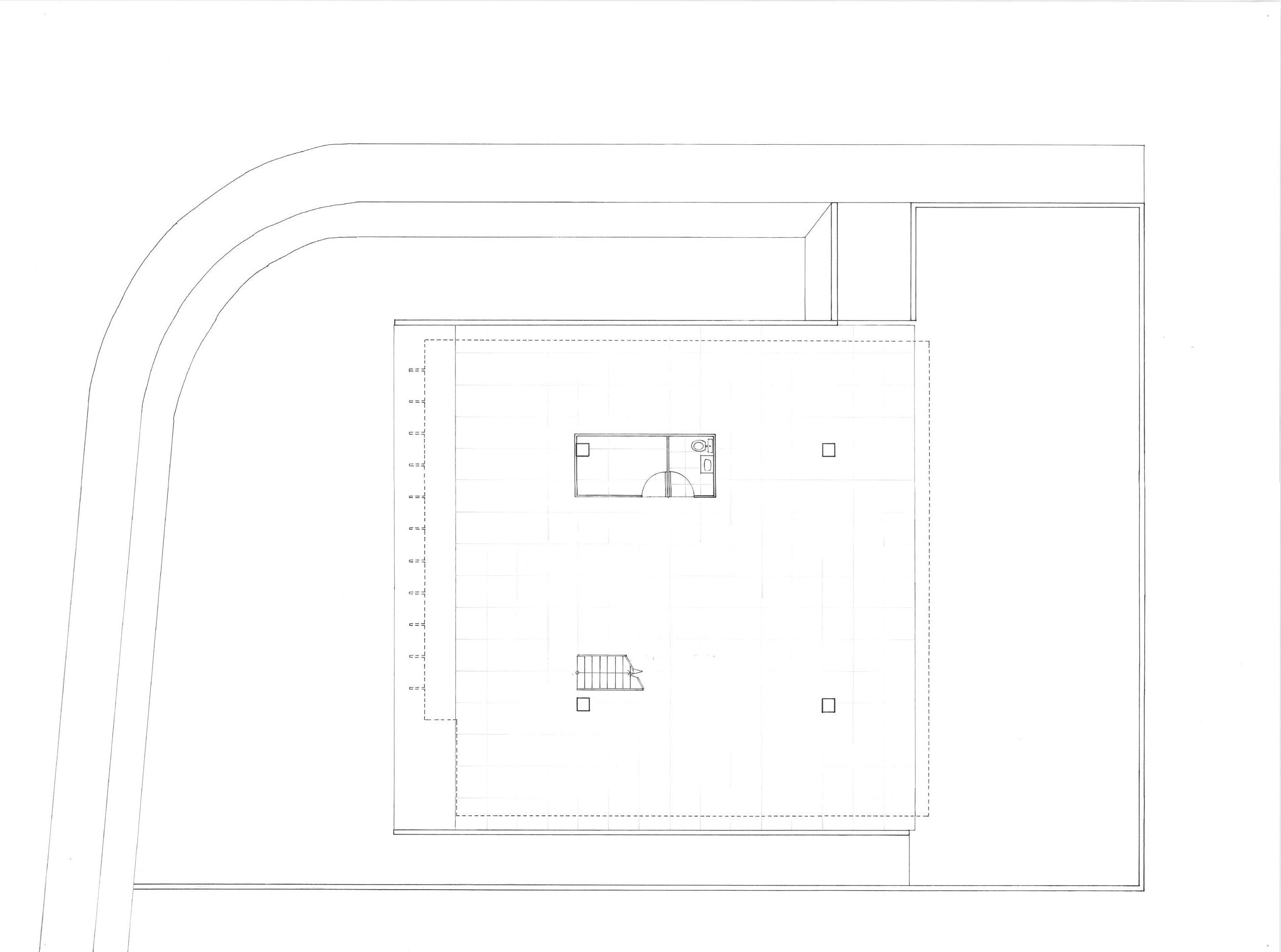
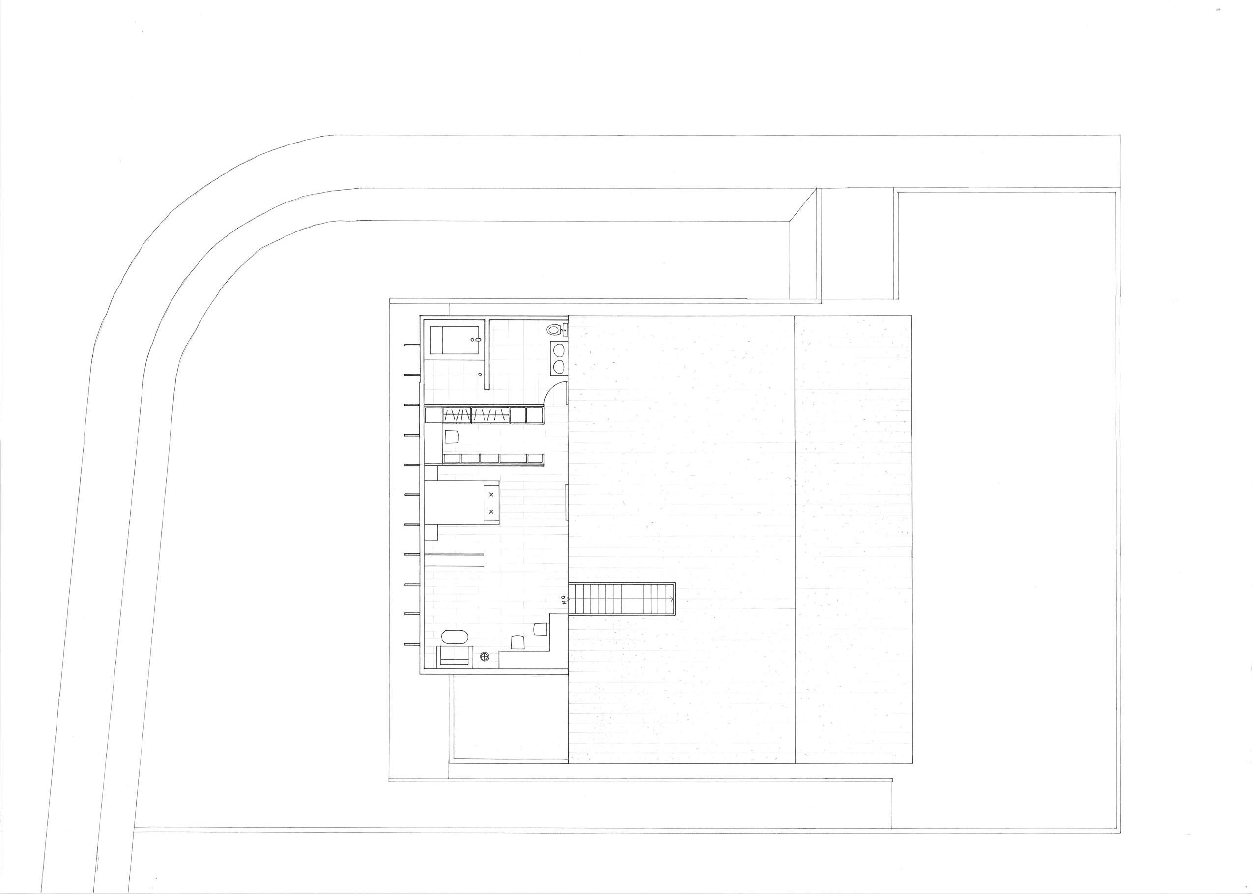
室外 室內
設計diagram 採光 模糊室內外空間

吧台落下板狀結構,將結構與家具合而為一,

板狀結構將座位分為,一人和雙人的,雙人的座位下方

是一樓餐廳的走道,不會影響到一樓的動線。

中間大的座位區與一樓連通,光線可以灑入

一樓的用餐區,一樓也能與上面有視線的互動。

室內外交界的地方,落下的結構與視線方向水平

,讓視線是穿透的,板狀結構之間 有的是椅子的尺度,可以從室外坐在椅子上, 有的是桌子的尺度,可以坐在室內用餐。

Learning from Masters

第一階段:完整案例模型與圖面

初步資料收集和解說版面

Casa no Butantã

大師簡介

巴西建築師、城市規劃師 現代主義、聖保羅學派

父親是當地著名的港口河道工程師。Rocha從小就浸染在工程技術與自然 的關係中,深受其影響。父親教會他尊重技術,教會他「tech」這個字詞 裡「構造」的涵義,他學會把它當作結構的同義詞,在建築設計領域中沿 用。在da Rocha的作品中,結構的形式構成了主要的視覺衝擊,這些結構 的形式會讓人聯想起水壩、廠房、橋樑、高架路的支撐等工業建築和基礎 設施,體現了一種工程學思維和美學偏好。

基本資料

建造時間:1964年

地點:聖保羅,巴西

Casa no Butant 是Paulo Mendes da Rocha和他姊姊的自宅,兩棟幾乎一 樣的房子,周圍是一個大公園。Casa no Butant 是da Rocha的代表作之一 ,以其現代主義風格、簡潔的結構設計和對自然環境的尊重而聞名。

概念

將建築與自然環境融合在一起。Casa no Butant 的設計充分考慮了周圍的 自然景觀,並通過大量的開口和大窗戶將室內與室外空間相連接。這不僅 提供了自然光線和空氣的流通,還讓居民可以盡情欣賞周圍的美景,同時 與自然保持著密切的聯繫。

理論背景

巴西在1950年代發展成了兩種主要的建築思路:里約學派、聖保羅學派

里約學派

用混凝土塑造流暢輕盈的效果

聖保羅學派

結構的直接性。崇尚混凝土粗糙 、厚重、雄偉的尺度

生活享樂主義的審美

起源美術學院 起源工程學院 對城市挑戰有意識

概念

這棟建築採用了混凝土作為主要建築材料,是當時許多現代主義建築師所 傾向的材料之一。

Learning from Masters

階段二:空間手法研究 理解空間特質後進行更深度之分析與操作。

保持並萃取其設計精神、概念或特性等重要資訊, 分析大師獨特的操作原則和設計手法,

並演繹出圖面與模型, 繪製成概念發展圖與不同類型空間模型。

抬升

一樓小的圓柱體,去抬升起整個二樓大的量體,創造出量體的漂浮感。

加法

外接的樓梯和由內延伸推出的窗戶,對整個量體不斷進行加法,增添趣味性,創造細節。

整個空間量體是由小量體向上堆疊更大的量體,進行向上的加法。

核狀私密空間

公共空間的向內延伸,將私密空間向內擠壓。

再細看房間裡的配置,相對更私密的浴室、廁所也被壓縮在同一側。

就整個建築而言,核狀的私密空間可以讓建築立面更不受限,不用完整包覆整個空間。

動線連續自由流動

室內的主要隔間牆都是與密肋梁同一向度,且依照著密肋梁之間的距離作為單位。

在動線上,是可以連續的往不同空間移動的,空間之間的連接可以有不同的路徑。

在視覺上,具有穿透性,風也能貫穿整個室內空間。

結構連續

連續的密肋梁結構代替了粗厚的梁。

密肋梁結構影響了整個平面。房間的隔間牆、窗戶、天窗都是依照著密肋梁之間的距離為單位。

採光

私密空間上開天窗,進行直接光的照射。

西北、東南面的水平窗帶進行間接光的照射,出挑的屋簷擋掉了多餘的直接光。

東北、西南面的窗台錯位,進行間接光的照射。

拉長量體,讓向上疊加的感覺更明顯。但是拉長後量體感覺太過笨重,失去了漂浮感。

經過模型的study發現,被抬升的量體,可以控制量體的漂浮感。

而抬升量體的形式,可以改變動詞,讓量體看起來被撐起、站起的感覺。

重新壓扁後把量體做成樓板,形成樓板的高低錯層。

將原本的平面分成量體與平面。私密空間、衣櫃做為不同高度的量體,門、隔間牆作為面。

將這些量體與面去做其他的擺放方式,拿掉隔間牆,增強平面動線流動的自由性

把密肋梁結構放入樓板中,考慮如何互相連接。

從模型的study發現,切分的向度不能切開主梁,否則結構會失效。

用樓板的錯層去進行採光,考慮每一個錯成開口的必要性。

Learning from Masters

階段三:設計操作實踐

Architect’s House + Studio

空間創作:An

Portfolio Chang,Jou-Jou Group 7

EA1-spring 2024

Turn static files into dynamic content formats.

Create a flipbook
Chang, Jou Jou EA1-SPRING Protfolio by 吳芃萱 - Issuu