By.MbusoMaseko
KSA DESIGN PROJECT...
KSA DESIGN PROCESS...
KSA PERSPECTIVE...
SANLAM OFFICE...
SANLAM OFFICE DESIGN PROCESS...
SANLAM OFFICE TECHNICAL WORK...
SANLAM OFFICE PERSPECTIVES...













P E R S P E




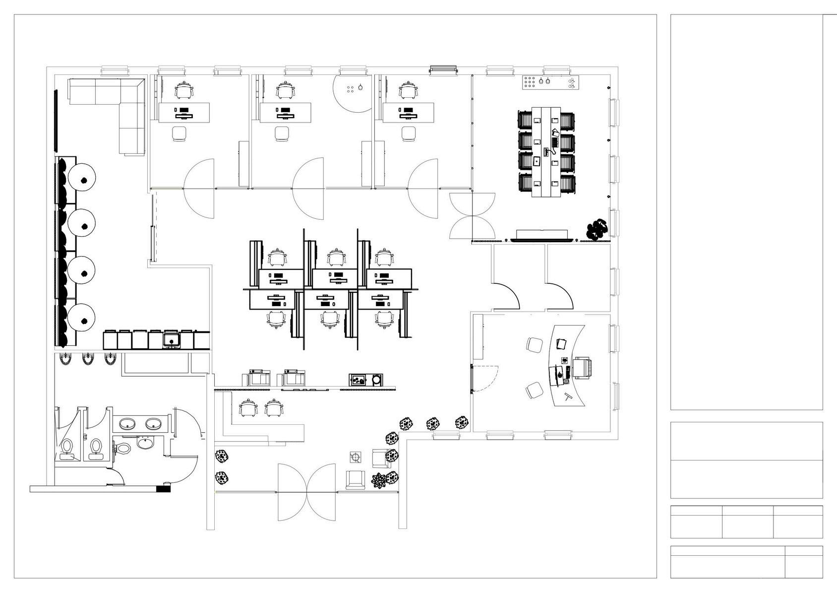
T h i s p r o j e c t f o c u s e d o n
d e s i g n i n g a c o n t e m p o r a r y
S a n l a m o f f i c e f o r 1 0 – 1 5
e m p l o y e e s , d r i v e n b y
e f f i c i e n t s p a c e p l a n n i n g
a n d a s t r o n g c o r p o r a t e
i d e n t i t y . T h e d e s i g n
t r a n s l a t e s t h e b r a n d ’ s
v a l u e s a n d w o r k c u l t u r e
i n t o a f u n c t i o n a l l a y o u t
t h a t b a l a n c e s o p e n p l a n
w o r k s p a c e s , p r i v a t e o f f i c e s
a n d c o l l a b o r a t i v e a r e a s .
C a r e f u l c o n s i d e r a t i o n w a s
g i v e n t o e r g o n o m i c s ,
c i r c u l a t i o n , m a t e r i a l i t y , a n d
n a t u r a l l i g h t t o c r e a t e a
c o h e s i v e , p r a c t i c a l a n d
b r a n d a l i g n e d w o r k i n g
e n v i r o n m e n t .






