

ARCHITECT
As a recent Bachelor of Architecture graduate, I see myself as a storyteller, crafting narratives through design I believe that architecture transcends mere visual expression it's a journey, carefully crafted to evoke emotions and create memorable experiences My work is driven by the idea that every space has a story to tell, and it's my passion to design environments that not only function but also resonate deeply with those who experience them.
PERSONAL DETAILS::



sejalranka2001@gmail.com
+91-8329994611
https://www.linkedin.com/in/sejal-ranka2001
EDUCATION :
Met School Of Architecture And Design, Nashik 2019- 2024
Wisdom High International School And Junior College, Nashik 2017-2019
Sacred Heart Convent High School, Nashik 2006-2017
EXPERIENCE :
Summer School of University of Tor Vergata , Rome. 2024(1 MONTH)
Internship at PYHT Bio Architects, Mumbai, 2023(6 MONTHS)
WORKSHOPS:
Wood cut Printing/Yogesh Ramakrishnan 2022
Terracotta workshop/ Molela Terracotta /Rajasthan-2021
Food As Design/ Ameya Purohit 2019
SOFTWARE SKILLS:
AutoCAD Sketchup
Photoshop InDesign Lumion
ACHEIVEMENTS :
Thesis Research Presented at MET’s Research Symposium 2024
Electives Work (Architectural Journalism) Presented at (Traces of old colonial Nashik) Exhibition and Mistura Art feast.2023
Winner of Documentation competition 2023(Bhopal)-Intra college
Winner of Documentation competition 2022 (Old Nashik)-Intra college
MOC at Met Utsav and multiple college events
Participated in Pandemic Memorial 2021
VOLUNTEERING AND PUBLICATIONS:
Cofounder of @Theperfectpreface Book club
Ambassador of HundrEDorg from 2021
Work displayed at Met's exhibition and publish on Met's social media pages
Blog on Bhopal's Journey from Bhojtal to Bhopal https://sejalranka2001.wordpress.com/2023/03/3 1/a-ride-from-bhopal-to-bhojtal/
HANDS ON SKILLS:
Model Making
Drafting Sketching Rendering Origami
INTERESTS:
Creative Writing Public Speaking Miniature Sketching Photography
Reading
LANGUAGE:
English Hindi Marathi
CONTENTS
01.
SCHOOL OF BLIND AND VISUALLY IMPARED CHILDREN,NASHIK
Dissertationproject:2024
04.
MASS HOUSING, ADGOAN ZONE,NASHIK
Academicproject:2022
02.
RESIDENCE DESIGN WITH STAY AREA,PUDUCHERRY
Academicproject:2020
05.
WORKING DRAWING I & II ABCS
Academicproject:2022-23
03.
CREATIVE DIGNITY CENTRE FOR KALAMKARI,NASHIK
Academicproject:2021
06.
INTERNSHIP-PYHT BIO ARCHITECTS SUMMER SCHOOL-ROME, MISCELLANEOUS
ProfessionalPractice:2023


01. School design
Semester 10 Year 05I Dissertation Project
ProjectTypology:Institutional Design
Location:Satpur, Nashik
SiteArea41000 sq m
BulitupArea10200 sq m
ProjectBrief:
The project seeks to explore the diverse ways in which visually impaired individuals interact with their surroundings. It aims to discern how these interactions can inform architectural design, enriching their experiences in any environment. Ultimately, the project aims to manifest these insights in an architectural proposal for a school tailored to the needs of the visually impaired and caters by Incorporating sensory experiences into architectural design significantly enhancing the accessibility and inclusivity of spaces for individuals.
StudioGuide:
Prof. Ragunandan Naik
STATEMENT OF PURPOSE:
India currently hosts the highest number of visually impaired individuals globally, with an alarming addition of nearly 30,000 new cases each year The leading cause of blindness in India is cataracts, affecting approximately three million people annually. Tragically, almost half of these cases could be treated, yet they often lead to complete or partial blindness due to lack of intervention Compounding this issue is the acute shortage of donated eyes, with nearly 60% of donations going unused Research in child development, sociology, and special education consistently underscores the importance of nurturing blind children in inclusive environments. Local education, facilitated by well-trained specialists, allows these children to engage in everyday experiences vital for their holistic development and understanding of the world Blind schools thus represent a beacon of hope for education and rehabilitation, offering these children the chance to integrate into society with dignity and self-sufficiency
DESIGN OBJECTIVES:
- Investigate methods for creating a barrier-free design.
- Examine the utilization of other senses by individuals with visual impairments
- Ensure smooth and unobstructed circulation within and around the building to facilitate easy movement
- Create a sensory-rich environment by incorporating various stimuli such as textures, smells, sounds, sizes, and colors
- Implement a Collaborative approach in the design process.





: MOVIE INFERENCES:SPARSH
















The movie conveys that a person's ability or worth is not defined by their blindness but by their inner qualities and emotional connection emphasizes the fact that children see through their hands and are strongly connected to the sense of sound and smell .'blind people need help and not pity or charity.'

Diagram depict how a sighted individual observes a object and then deconstructs it into component



Diagram depict how a sightless individual perceives component of Object and then mentally constructs it as whole.

The new site for the school is located in Satpur, an industrial zone in Nashik, just 250 meters away from the current school building. The decision to relocate stems from the extremely small size of the existing site, which limits the potential for future expansion and development.
The new site provides a significantly larger area to meet the growing needs of the school, offering the opportunity to build improved facilities and infrastructure. Situated near the ITI signal, the site is easily accessible via a secondary road that connects seamlessly to the main Trimbakeshwar Road, ensuring smooth access for students, staff, and visitors.
Its proximity to the existing site helps maintain familiarity for the school community, minimizing disruption during the transition. This relocation aims to create a better-equipped and more spacious environment to support the student’s education and overall development effectively.

Blind and visually impaired students participate in educational activities such as vocational programs, workshops, exhibitions, entertainment areas, and studios. Additionally, they develop essential skills including communication, orientation & mobility, and daily living skills. They navigate safely within the facility thanks to its design features tailored to their needs, including spatial landmarks, sensory gardens, sound indicators, braille labels, and tactile mapping.








Classrooms in blind schools are often arranged radially, like a C or L shape, with the teacher's desk at the center This layout ensures equal sound distribution, allowing all students to hear the teacher clearly without any voice loss. It also fosters better interaction and creates a structured environment that aids in spatial awareness, making navigation easier for visually impaired students This thoughtful design prioritizes accessibility and inclusivity, enhancing the learning experience


ACTIVITY MAPPING AT NAB NASHIK:
The majority of space in a school for visually impaired children is dedicated to classrooms, as they form the core of their learning environment. Additionally, other essential spaces specific to blind schools include vocational training rooms, which equip students with practical skills for independence, and special classrooms, tailored for activities like Braille learning, sensory development, and therapy sessions






All classrooms are connected to internal courtyard with aromatic flowers making it easy to identify. Classroom's have foldable panel to some collaborative class lectures can be performed.



Different Types Of Roof(SOUND),texture(TOUCH),Forms(SOUND),landscape(SMELL),light (VISION)is uses in Overall project to enhance mobility of students.








room.Each space (colours which are most visible to visually impaired eye).Libraryis Symbolized through YELLOW LIGHT. Whereas Music room by RED and BLUE LIGHT. Kund Area has Filtered Light .Library has Huge Dome in the center to create variation in sound as one enters.
















02.
Residence design
Semester 03 Year 02I Academic Project
ProjectTypology:Residential Building
Location:White Town, Puducherry
SiteArea:699sq m
Built-upArea:450sq m






ProjectBrief:
The studio aims to design a home that fosters physical comfort, emotional wellbeing, and a deep connection to family and surroundings. By blending functionality with seamless connectivity and climate-responsive design, the house will reflect the lifestyle and values of its inhabitants. Using a high tourist footprint, the project aims to cater by providing a homestay. It will also harmonize with the environment and cultural context, creating a sanctuary where people feel truly at home.
StudioGuide: Prof. Pooja Khairnar
The site for the residence design project is located in the historic French Quarter, or White Town, of Puducherry, bordered by the Bay of Bengal to the east, with Beach Road a prominent 24-meter-wide coastal road running nearby. The area experiences southeast to northwest winds, with a tropical climate marked by hot summers from April to June, where temperatures can peak at 41°C, and mild winters from June to October, with temperatures dropping to 9°C. Monsoon season brings significant rainfall, with an annual average of 1355mm from October to September.
Accessibility is a key advantage of this site, situated just 5.5 km from Puducherry Airport, 2 km from the railway station, and a mere 0.38 km from the bus station. Surrounded by landmarks such as the French Institute of Puducherry, the Kargil War Memorial, and the Ashram Playground, the site also benefits from natural vegetation, especially the presence of coconut trees. This location offers a unique blend of historical charm, natural beauty, and modern accessibility, making it an ideal setting for a thoughtfully designed residence that harmonizes with the cultural and environmental character of White Town.


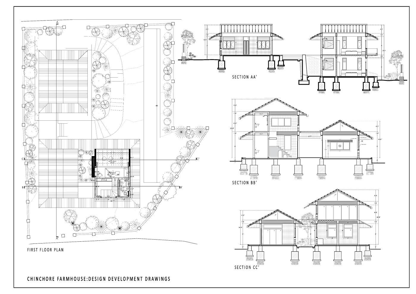
Site Area is 699 Sq.m with 23M Coverage On the road ,Side of the plot. and 35 m as its longest side.

An Offset Of 3m is Given from all four sides and then a grid is devised with reference to the area of different blocks.
VOLUMETRIC DEVELOPMENT::


Considering the offset of 3m margins required for residential building, the built area is marked.

Negative Positive Spaces are created within the grid to form Mutram that is courtyard and Thalvaram that is front





Section is from the central courtyard inspired from murtum ( franco- Tamil houses). The court acts like a buffer space and helps in keeping the house cool.



The section is from the central courtyard inspired by murtum(franco-Tamil houses). The court acts as a buffer space and helps in keeping the house cool The Section Shows the Volumetric Hierarchy of the spaces Also, the concept of Thalvaram is used in a more contemporary manner in the house. Also, it depicts the level difference concerning ground.







03.
Creative Dignity Centre
Semester 04 Year 02I Academic Project
ProjectTypology:Public Building
Location:Tapovan, Nashik
SiteArea:2600 sq m
Built-upArea:500 sq m
ProjectBrief:
The studio aims to create an environment that honors Kalamkari, an intricate and traditional Indian art form, by fostering spaces where artisans, designers, and the community can connect and collaborate. The design will elevate Kalamkari’s cultural significance, facilitating modern adaptation and preserving its heritage post-COVID-19. By blending functionality with cultural appreciation, the project will promote Kalamkari awareness and offer artisans a dignified platform, ensuring their craft thrives within a supportive ecosystem.
StudioGuide:
Prof. Krishna Rathi
ABOUT THE SITE:
The studio aims to design the campus of the National Institute of Design, with a specific focus on shared spaces. Prioritizing collaboration and community engagement, the project aims to seamlessly integrate each space into the institute's fabric. The project intends not only to meet the immediate

DESIGN CONCEPT AND FORMATION:
Half structure is beneath the ground and half above ground just similar to the roots and flower below and above ground which is used to extract colors used in kalamkari










PROCESS FOR KALAMKARI CRAFTING: :








Room
Area
pots
Room
Area
+Shop
Body
Entrance
Unloading platform
Gate
Area


The section cuts through a staircase descending toward the exhibition and display area. This staircase acts as a transitional element, guiding visitors to the heart of the underground space a central public forum. At this subterranean level, the forum is a vibrant hub for showcasing Kalamkari art, surrounded by exhibits and artisan workstations. Overlooking this central space is a public open amphitheater, seamlessly integrating with the architecture. The amphitheater's terraced seating opens up to a calming water body at the core, creating a meditative ambiance. The interplay of light, materials, and spatial flow highlights the craft’s essence while engaging visitors in an immersive cultural journey.

04. MASS HOUSING
Semester 07 Year 04I Academic Project
ProjectTypology:Residential Building
Location:Tapovan, Nashik
SiteArea:16512 sq m
Built-upArea:42210 sq m
ProjectBrief:
The studio aims to design a campus and building that reflects the unique local character and context of the Adgaon zone in Nashik. By embracing the cultural and socio-economic diversity of the area, the design seeks to create a space that resonates with its inhabitants primarily retirees, seniors, and youth from lower to middle-class backgrounds. The vision focuses on integrating affordability, inclusivity, and a sense of belonging while incorporating sustainable practices and architectural elements inspired by the local ethos.
StudioGuide:
Prof. Pallavi Pathak
The site is located in Adgaon, Nashik, and benefits from excellent road connectivity on three sides, making it highly accessible. Its proximity to a public garden enhances the area's appeal, providing a serene and green environment ideal for residential or community-centric developments.



Every unit is design as a Prefabricated pod and used in multiple, making construction affordable. A Modular of 10x4 m is designed and Repetition of the same module helps in achieving the required pods of different typologies such as 2 bhk Pods are stacked in such a way that voids are created acting as terraces.



CLUSTER ARRANGEMENT
Clusters are placed in such a way that every cluster opens to open space or towards the garden. Also, keep in mind the existing trees and peripheral trees.





Section through block B and E and through the gym area which and also be used as yoga spaces during mornings and terrace as a party space.








































































