
KOMOREBI..............................................
Hospitality
GARDEN ALLEY.......................................
Mixed Use || Thesis
4
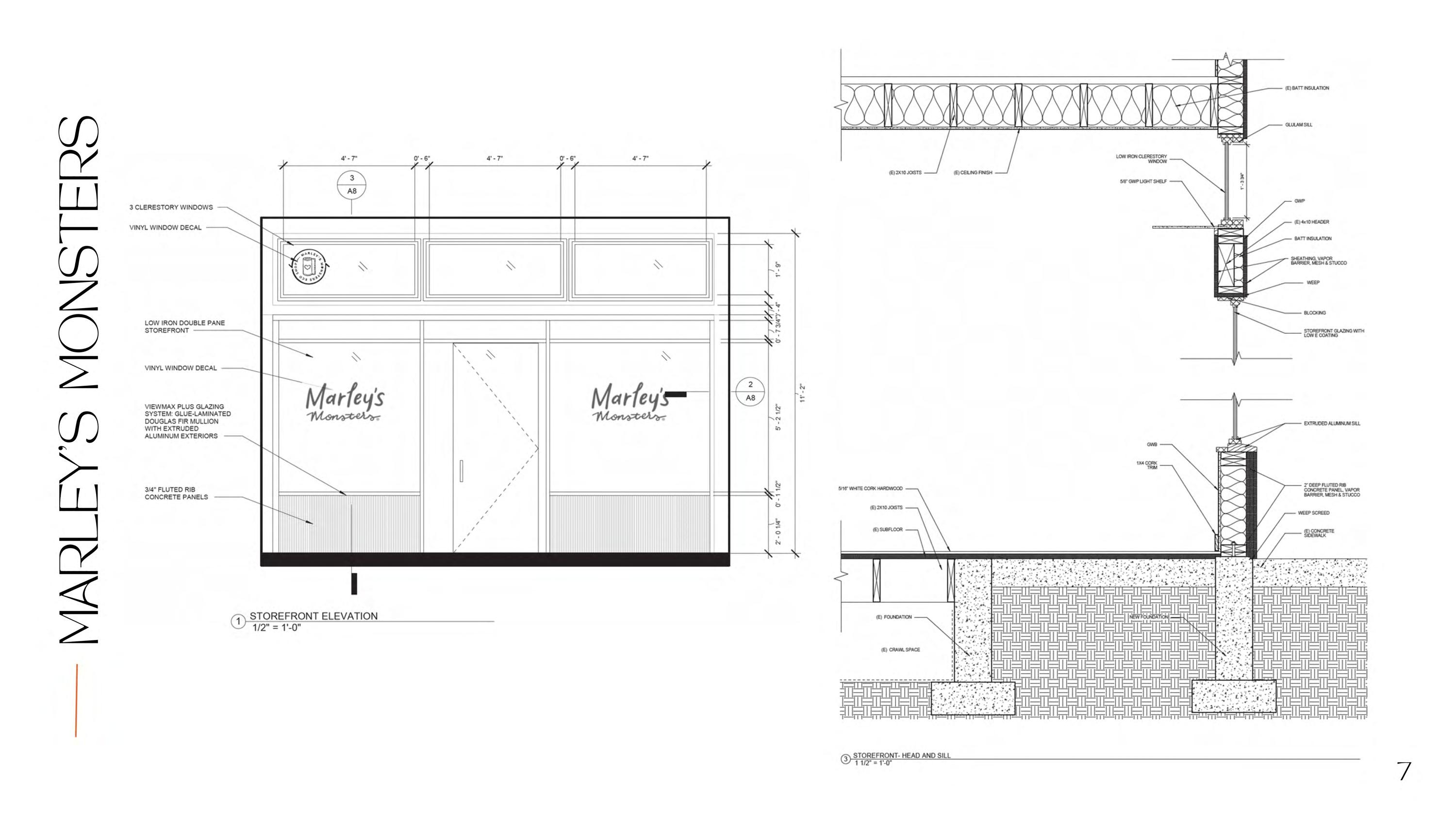
MARLEY’S MONSTERS............................
Retail
PROFESSIONAL EXPERIENCE..............
Multifamily
GRADUATE EXPERIENCE......................
Retail
6
8
15
FABRICATION EXPERIENCE.................
Applied Arts
24































