PORTAFOLIO SEBASTIAN ROJAS

Page 1

Categoríaeficienciaenergética/Segundolugar

Categoríabalanceenergético/Segundolugar

Categoríacomunicación/Tercerlugar

Publicado enlaplataforma virtual dearquitectura ArchDaily: www.archdaily.co/co/947234/maquinaverde-prototipo-de-vivienda-social-modular-adaptable ExpuestoenlaBienaldeVenecia2021

BienalColombianadeArquitectura2020

Proyecto:Maquinaverde–EquipoPEI

CategoríaViviendaSocial/MencióndeHonor

ConcursoInternacionalTheNewCabin2020

Proyecto:UmbralesySalidas.Equipo:TallerCOA Competenciageneral/MencióndeHonor

ConcursoInternacionalAfricanUrbanSchool2021

Proyecto:CO EducationalUrbanCourtyards.Equipo:TallerCOA Competenciageneral/Finalista

Proyectosrelevantes

CONCURSOVOTONACIONAL2016

RenovaciónurbanaenelsectordelBronx–BogotáDC Colombia

Ensociedadcon:Arq.CarlosHernández,Arq.PabloDonoso,Arq.CamiloRodríguez,Arq.JuliánOlaya

CONCURSOCORONAPRO HÁBITAT2018

Diseñodeviviendasocialsostenible–Sincelejo–Sucre Colombia

Ensociedadcon:Arq.CarlosHernández,Arq.JoseLópez,Arq.CamiloRodríguez,Arq.JuliánOlaya,Arq. FelipePinto

CONCURSOCOLEGIOKALAPA2019

Diseñodeuncolegiodeprimariaysecundaria Sopó–Cundinamarca Colombia

Ensociedadcon:Arq.CarlosHernández,Arq.AlbertoAranda,Arq.JoseLópez,Arq.CamiloRodríguez,Arq. JuliánOlaya,Arq.FelipePinto,Arq.JuanMuñoz,Arq.SebastianNoguera

PROYECTOMAQUINAVERDE2019

Investigación,diseño,planeaciónyconstruccióndelprototipodeviviendaMaquinaVerdeparaelconcurso SolarDecathlonLatinAmerica&Caribbean2019 Cali ValledelCaucaColombia

TÉCNICAYTRADICIÓN

Laboratoriodetécnicasvernáculasparasolucionesarquitectónicascontemporáneas

https://issuu.com/sebastianrp147/docs/laboratorio_de_t_cnicas_vern_culas_para_soluciones

PROYECTOVSSFILANDIA2019

DiseñodeviviendasocialsostenibleparalaregióndelEjecafetero–Filandia–Quindío–Colombia

Ensociedadcon:Arq.CarlosHernández,Arq.JoseLópez

LIBROHÁBITATPARALAPAZ2020

ManualdehabitabilidadparaelreasentamientodelETCRCharras–SanJosé–Guaviare–Colombia

Cargo: AsistentedeInvestigación

EquipoArquitectura–PPUAlimentoVidayHábitat PontificiaUniversidadJaverianadeBogotá

CONCURSOTHENEWCABIN2020

Diseñodeviviendamínimadebajoimpacto–Implantaciónlibre

Ensociedadcon:Arq.ValentinaRuiz,Arq.JoseLópez.

CASASUBACHOQUE2020

Diseñoyconstruccióndeampliaciónparaviviendafamiliar–Subachoque–Cundinamarca Colombia

CASATEPEYAC2021

Diseñodeviviendaprincipal,cabañaparamayordomoytinyhouse–Choachí–Cundinamarca Colombia

Ensociedadcon:Arq.JuanCuberos

CASATUTA2021

Diseñoyconstruccióndeviviendafamiliar–Tuta–Boyacá Colombia

CONCURSOAFRICANURBANSCHOOL2021

Diseñodeuncolegiodeprimariaysecundaria–Bamako–Mali

Ensociedadcon:Arq.ValentinaRuiz,Arq.JoseLópez,Arq.SebastianSalazar

CASAROZO2022

Diseñoyconstruccióndeviviendafamiliar–Rozo–ValledelCauca Colombia

Ensociedad con:Arq.Valentina Ruiz

Portafolio arquitectónico: https://issuu.com/sebastianrp147/docs/sebastian_rojas_portafolio_iss2

SEBASTIAN ROJAS PORTAFOLIO ARQUITECTÓNICO

INDICE Información personal 4 Proyectos 8 Concursos 38 Investigación 58
SEBASTIAN CAMILO ROJAS PARADA

CURRÍCULUM VITAE

Arquitecto

Bogotá, Colombia

E-mail: sebastianrp147@gmail.com

Cel: 3204768962

Dirección: cr10 #26-56 apto 201

150001 Tunja

EDUCACIÓN

Bachiller

Colegio Salesiano Maldonado Tunja

Diciembre - 2013

Arquitecto

Pontificia Universidad Javeriana de Bogotá

Marzo - 2020

EXPERIENCIA PROFESIONAL

Coordinador de proyectos

Arquitecto Carlos Hernández

Desarrollo de proyectos arquitectónicos y de investigación

Diciembre - 2016 / Diciembre - 2020

Practicante de arquitectura

Pontificia Universidad Javeriana de Bogotá

Desarrollo de proyectos arquitectónicos

Enero - 2019 / Mayo - 2019

Asistente de Investigación

Pontificia Universidad Javeriana de Bogotá

Desarrollo de cartilla de habitabilidad

Marzo - 2020 / Diciembre 2020

Co-creador

Taller Colombiano de Arquitectura

Diseño y construcción de proyectos arquitectónicos

Enero - 2020 / Actualidad

Arquitecto diseñador

AGRA Arquitectos

Diseño y gestion de proyectos arquitectónicos

Enero - 2022 / Septiembre - 2022

PROGRAMAS AUTOCAD

REVIT

RHINOCEROS

LUMION

V-RAY

PHOTOSHOP

ILUSTRATOR

INDESIGN

PREMIER

OFFICE

IDIOMAS

ESPAÑOL Nativo

INGLES Avanzado

ITALIANO Avanzado

PROYECTOS RELEVANTES

CONCURSO VOTO NACIONAL 2016

Renovación urbana en el sector del Bronx – Bogotá DC - Colombia

En sociedad con: Arq. Carlos Hernández, Arq. Pablo

Donoso, Arq. Camilo Rodríguez, Arq. Julián Olaya

CONCURSO INHAUS 2017

Diseño de vivienda modular – España

En sociedad con: Arq. Camilo Rodríguez, Arq. Julián Olaya

CONCURSO CORONA PRO-HÁBITAT 2018

Diseño de vivienda social sostenible – Sincelejo –Sucre - Colombia

En sociedad con: Arq. Carlos Hernández, Arq. Jose

López, Arq. Camilo Rodríguez, Arq. Julián Olaya, Arq. Felipe Pinto

CONCURSO COLEGIO KALAPA 2019

Diseño de un colegio de primaria y secundaria - Sopó – Cundinamarca - Colombia

En sociedad con: Arq. Carlos Hernández, Arq. Alberto

Aranda, Arq. Jose López, Arq. Camilo Rodríguez, Arq. Julián Olaya, Arq. Felipe Pinto, Arq. Juan Muñoz, Arq. Sebastian Noguera

PROYECTO MAQUINA VERDE 2019

Investigación, diseño, planeación y construcción del prototipo de vivienda Maquina Verde para el concurso Solar Decathlon Latin America & Caribbean 2019Cali - Valle del Cauca Colombia

Cargo: Project Manager

Equipo: PEI - Pontificia Universidad Javeriana de Bogotá

PROYECTO VSS FILANDIA 2019

Diseño de vivienda social sostenible para la región del Eje cafetero – Filandia – Quindío – Colombia

En sociedad con: Arq. Carlos Hernández, Arq. Jose López

LIBRO HÁBITAT PARA LA PAZ 2020

Manual de habitabilidad para el reasentamiento del ETCR Charras – San José del Guaviare – Guaviare – Colombia

Cargo: Asistente de Investigación

Equipo Arquitectura – PPU Alimento Vida y HábitatPontificia Universidad Javeriana de Bogotá

CONCURSO THE NEW CABIN 2020

Diseño de vivienda mínima de bajo impacto –Implantación libre

En sociedad con: Arq. Valentina Ruiz, Arq. Jose López.

CASA SUBACHOQUE 2020

Diseño de ampliación para vivienda familiar –Subachoque – Cundinamarca - Colombia

CASA TEPEYAC 2021

Diseño de vivienda principal, cabaña para mayordomo y tiny house – Choachí – Cundinamarca - Colombia

En sociedad con: Arq. Juan Cuberos

CASA TUTA 2021

Diseño y construcción de vivienda familiar – Tuta –Boyacá - Colombia

CONCURSO AFRIAN URBAN SCHOOL 2021

Diseño de un colegio de primaria y secundaria –Bamako – Mali

En sociedad con: Arq. Valentina Ruiz, Arq. Jose López, Arq. Sebastian Salazar

CASA ROZO 2022

Diseño y construcción de vivienda familiar – Rozo –Valle del Cauca - Colombia

CONCURSO COLEGIOS BOGOTÁ 2022

Diseño de un colegio para niveles de prescolar, primaria y bachillerato – Bogotá dc - Colombia

En sociedad con: Arq. Santiago Pradilla, Arq. Jose López, Arq. Juan Daza, Arq. Alejandra vargas

RECONOCIMIENTOS Y PREMIOS

Concurso Corona Pro-Hábitat 2018 vivienda social sostenible para Sincelejo

Proyecto: VSS Sincelejo

Director del proyecto: Carlos Hernández Correa.

- Convocatorio profesional / Primer lugar

Proyecto de Investigación, Laboratorio de Técnicas Vernáculas para Soluciones Arquitectónicas contemporáneas.

Trabajo de grado

Director: Martín Anzellini

- Publicado en la plataforma virtual de arquitectura ArchDaily

- Parte de la exposición “Maquina Verde” en la Bienal de Venecia 2021

Concurso Internacional Solar Decathlon Latin America & Caribbean. Proyecto Maquina Verde

Director del proyecto: Carlos Hernández Correa.

Equipo: PEI Pontificia Universidad Javeriana de Bogotá

- Competencia general / Segundo lugar

- Categoría arquitectura / Segundo lugar

- Categoría ingeniería y construcción / Primer lugar

- Categoría diseño urbano / primer lugar

- Categoría innovación / Segundo lugar

- Categoría eficiencia energética / Segundo lugar

- Categoría balance energético / Segundo lugar

- Categoría comunicación / Tercer lugar

- Publicado en la plataforma virtual de arquitectura ArchDaily

- Expuesto en la Bienal de Venecia 2021

- Bienal Colombiana de Arquitectura 2020

Proyecto: Maquina verde – Equipo PEI

- Categoría Vivienda Social / Mención de Honor

Concurso Internacional The New Cabin 2020 Proyecto: Umbrales y Salidas

- Competencia general / Mención de Honor

Concurso Internacional African Urban School 2021

Proyecto: CO-Educational Urban Courtyards

Competencia general / Finalista

PROYECTOS

8
9

CONCURSO SOLAR DECATHLON LATIN AMERICA &CARIBBEAN

Cali - Colombia 2019

Equipo PEI Maquina Verde - Pontificia Univeridad

Javeriana

Cargo: Project Manager

Vivienda de interés social:

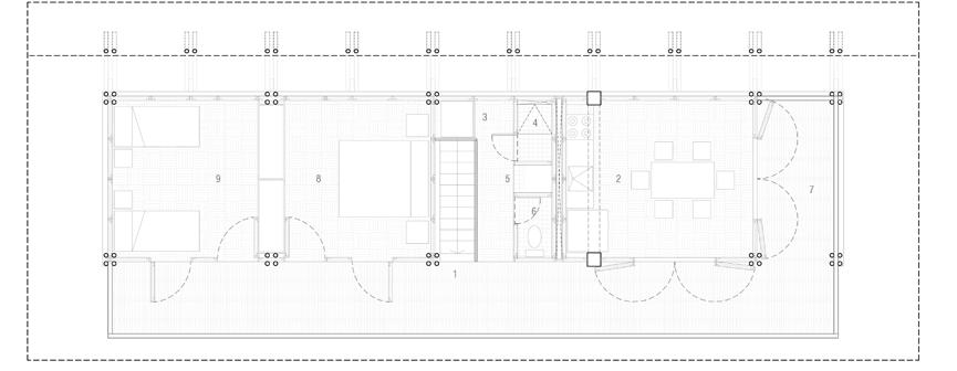
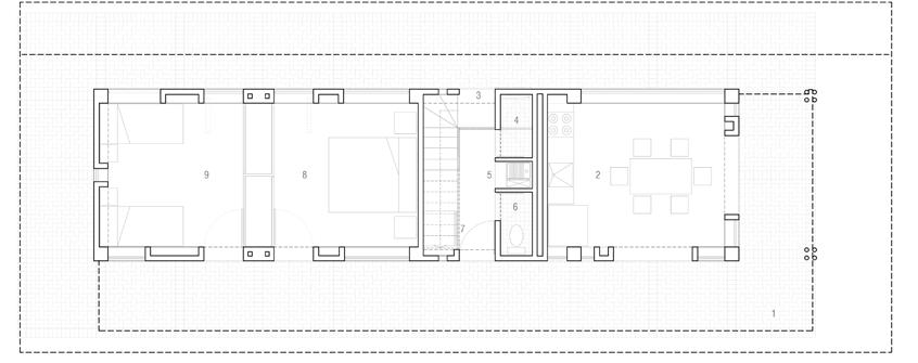
La propuesta parte de 3 conceptos principales que permiten entender la vivienda de interés social como un dispositivo Adaptable a las condiciones de cada familia, Multifuncional en términos productivos y articulador Natural - Artificial (Vernáculo - Contemporáneo como nuevo lenguaje estético). En coherencia con el territorio analizado, el proyecto se fundamenta en la reinterpretación de la vivienda caribeña basado en elementos espaciales que definen su arquitectura y la relación entre los mismos.

La sostenibilidad se establece como lineamiento transversal de diseño de la propuesta, fundamentado en el uso inteligente de los recursos, la productividad económica y el trabajo en comunidad a partir de sistemas de producción y redistribución. Se plantean múltiples estrategias en función de los objetivos del concurso, partiendo del sistema autosuficiente de energía eléctrica mediante la instalación y funcionamiento de paneles fotovoltaicos. La posibilidad de reconfiguración de la vivienda permite que, según el estudio bioclimático del territorio de implantación, se determinen las estrategias adecuadas para el funcionamiento de la vivienda, a través de sistemas pasivos de control ambiental que proporcionan condiciones óptimas de habitabilidad.

10
Proyectos - Vivienda
11
-
Proyecto
Vivienda

Diseño arquitectónico: Posterior al análisis de la vivienda caribeña, se identifican elementos arquitectónicos y relaciones espaciales esenciales de la vivienda caribeña el porche como elemento articulador con el exterior y el patio como espacio de relación en el interior de la vi-vivienda, conformando a su vez el centro de manzana. En relación con la progresividad, la vi-vivienda se proyecta como una Bicasa que mediante la distribución simétrica de los espacios, posibilita la división en dos partes con el fin de Estructura: La propuesta estructural se plantea como un sistema modular prefabricado que, por las dimensiones de sus elementos, facilita el transporte, manipulación y ensamble de la vivienda, concibiendo la propuesta como una especie de ‘Chasis’ que se adapta de múltiples maneras al usuario y al entorno. El sistema estructural está compuesto por perfiles metálicos que cumplen con la norma de sismorresistencia y se articulan con una subestructura de madera que aligera su peso.

12
Proyectos - Vivienda

Sistema de cerramientos: Son elaborados en tejido vegetal y articulados con la estructura metálica, estableciendo el lenguaje estético de la vivienda a partir de la articulación Natural - Artificial. Este sistema permite la manipulación de las fachadas según las condiciones ambientales, garantizando condiciones óptimas de confort (Ventilación, Acústico, Visual y Térmico). La vivienda puede configurarse según las necesidades de quien la habita, expandiendo sus límites sin generar mayor área de ocupación mediante un diseño de fachada móvil plegable. El material de los cerramientos se puede definir en función de los recursos que el territorio tenga a disposición. El sistema de fachadas posibilita el uso de diferentes tipos de tejido, brindando la oportunidad de que el usuario sea quien teje su casa, generando apropiación desde su construcción.

13
Proyecto - Vivienda

Mezzanine: A partir de la concepción de la vivienda en m³, este elemento arquitectónico incrementa el área habitable proyectándose como un espacio adaptable para múltiples usos, dispuesto sobre los espacios de habitaciones y baño.

Cubierta: El sistema de cubierta inclinada está diseñado a partir de la proyección de progresividad de la vivienda, estableciendo un sistema que conforme el usuario requiera, permite ubicarla de forma horizontal, ampliando el espacio del mezzanine y disponiendo una nueva superficie para continuar el crecimiento en altura.

Mobiliario: El diseño de cada mueble parte de conceptos principales de la vivienda (multifuncionalidad y adaptabilidad), configurando un mismo mueble con múltiples funciones y transformaciones que pretenden suplir diferentes necesidades del usuario. Al mismo tiempo, es posible modificar el interior de la vivienda considerando que son objetos no fijos con posibilidad de cambio entre los espacios establecidos.

Materiales: La vivienda busca establecer un equilibrio respecto al gasto energético y emisiones consecuentes del proceso productivo, incorporando materiales de producción industrial contrarrestados por elementos elaborados de manera artesanal, logrando un balance en términos naturales y artificiales, aprovechando las ventajas que proporciona ca-da proceso y material en función de calidad, eficiencia en instalación y operatividad.

14
Proyectos - Vivienda
15
Proyecto - Vivienda

CASA LA ESPERANZA

Tuta - Colombia 2021

Arq. Sebastian Rojas

El proceso de conceptualización del diseño parte de una perspectiva funcionalista, entendiendo en principio el propósito de la vivienda. Se trata de una vivienda de fin de semana para dos familias que pertenecen al mismo grupo, cada familia está conformada por los padres, y dos hijos. De esta forma se entiende que debe funcionar si bien está una sola familia o las dos al tiempo. Se estructura en tres partes, dos núcleos (uno para cada familia) que cuentan con espacio necesario para 3 personas en el primer nivel y dos en el segundo nivel, cada núcleo cuenta con su propio baño; el tercer elemento es la zona social, que se ubica en la mitad de los dos núcleos habitacionales, articulándolos y supliendo los servicios de cocina y comedor. El proyecto se encuentra localizado en el municipio de Tuta en el centro de Boyacá, una zona rural caracterizada por viviendas campesinas de dimensiones mínimas, con la intención de no irrumpir en el paisaje se establecen estructuras de cubierta que llegan hasta el suelo, reduciendo la percepción de volúmenes completos y permitiendo que el mayor porcentaje de interrupción visual sea en sentido vertical. La vivienda se encuentra en proceso de construcción.

16
- Vivienda
Proyectos
17
Proyecto - Vivienda

Proyectos - Vivienda

18
5.02 3.82 5.02 5.20 5.23 3.60 5.23 .40 .22 1.10 .03 1.09 .85 .48 .66 .40 3.60 .41 .22 .44 .48 .85 1.09 .03 1.10 .22 .40 .40 .91 1.50 .90 1.05 .06 .40 .10 3.40 .10 .35 .05.06 1.05 .90 1.50 .91 .40 5.23 3.60 5.23 1.20 .60 .10 1.50 .10 .53 .11 .76 .11 .53 .10 1.35 .10 1.20 .60 .10 1.65 2.00 .10 1.35 .10 .60 1.20 1.80 .75 .85 .15 2.00 1.45 .10 .60 .10 .65 .63 1.55 .12 .85 .10 1.25 1.20 1.80 .10 1.65 2.00 .10 1.35 .10 .60
19 Proyecto - Vivienda .28 1.04 1.34 1.26 1.30 1.36 .28 1.04 1.34 1.26 1.30 1.36 .28 1.04 1.34 1.26 1.30 1.36 .28 1.04 1.34 1.26 1.30 1.36 .91 .10 1.14 1.11 1.14 .10 .91 5.02 3.82 5.02 .28 1.04 1.34 1.26 1.30 1.36 .28 1.04 1.34 1.26 1.30 1.36 .28 1.04 1.34 1.26 1.30 1.36 .28 1.04 1.34 1.26 1.30 1.36 .13 1.50 .30 .40 .15 1.10 1.00 .94 .08 .34 .10 .13 1.11 .22 1.24 1.11 .22 .22 5.02 3.82 5.02 2.71 2.71 .85 1.03 1.03 1.02 1.03 .85 .91 .10 1.14 1.11 1.14 .10 .91 5.02 3.82 5.02 2.20 .15 .02 3.13 .10 .10 .14 .10 .07 2.71 2.71 .90 .20 1.10 .15 .50 .15 .12 .91 .10 1.14 1.11 1.14 .10 .91 5.02 3.82 5.02 .15 .25 4.77 .25 3.57 .25 4.77 .25 .15 10.89 .03 .30 .30 .20 .30

CASA LA FORTUNA

Palmira - Colombia 2022

Arq. Valentina Ruiz, Arq. Sebastian Rojas

Se trata de una ampliación a una construcción existente, una casa de campo ubicada en el corregimiento de Rozo a 20km del casco urbano de la ciudad de Cali. El reto del proyecto era sacar provecho de la infraestructura existente y ampliar un segundo nivel destinado a las habitaciones de los huéspedes permanentes de la vivienda. Entonces, la propuesta arquitectónica fue re-interpretar características de la vivienda tradicional de haciendas cañeras de la región como la materialidad, pasillos, ubicación de vanos, envolventes y tonos. logrando de esta forma una vivienda que se adapta a su contexto, y mejora las condiciones de habitabilidad de sus habitantes.

En el primer nivel funciona una sala y comedor exterior, esta zona relaciona los jardines exteriores y el interior de la vivienda. Posterior mente se encuentran la sala y comedor interior y la cocina. Ademas, en el primer nivel está ubicadas 4 habitaciones de huéspedes y 3 baños. A través de la escalera en el espacio central se accede al segundo nivel donde un pasillo de madera conecta en resto de las habitaciones y el estudio. Los vanos están pensados para aprovechar la mayor cantidad de luz sin aumentar significativamente las condiciones de confort interior, los materiales de cubiertas fueron seleccionados para evitar ganancia térmica en horas del día. Actualmente se encuentra en proceso de construcción.

20
- Vivienda
Proyectos
21
-
Proyecto
Vivienda

Proyectos - Vivienda

22
SALA COMEDOR COMEDOR SALA HABITACIÓN VISITANTES 1 BAÑO SOCIAL HABITACIÓN VISITANTES 2 HABITACIÓN VISITANTES 3 BAÑO HABITACIÓN BAÑO CLOSET PLANTA PRIMER PISO 5.02 2.85 2.81 3.13 .59 1.48 3.42 1.60 3.50 3.50 .20 .85 1.50 .95 .20 .85 1.50 .85 .20 1.40 .20 1.25 1.50 .15 .20 .80 .20 .30 .20 1.25 .15 .20 .20 1.28 .20 .30 1.92 .90 .20 .20 5.07 .05.15 .42 2.18 .20 1.77 .85 .20 2.89 .20 1.97 .10 3.32 .10 PLANTA SEGUNDO PISO SALA TV- ESTUDIO HABITACIÓN HABITACIÓN BAÑO BAÑO W/ CLOSET HABITACIÓN PRINCIPAL BALCÓN BAÑO HABITACIÓN PRINCIPAL .10.10 5.32 .90 .10 3.22 .10.10 .90 1.30 2.25 5.02 2.85 2.81 3.13 .59 1.48 3.42 .20 4.60 .20 .10 1.20 1.20 1.20 1.20 .10 6.89 .10 .05 1.10 .05.05 1.10 .05.05 1.43 .10 3.32 .10
23 Proyecto - Vivienda FACHADA OCCIDENTAL FACHADA OCCIDENTAL FACHADA NORTE FACHADA SUR

VIVIENDA SOCIAL SOSTENIBLE

Filandia - Colombia 2019

La Vivienda Social Sostenible para Filandia (VSS) es la sumatoria de una serie de reflexiones construidas alrededor del hábitat rural contemporáneo inscrito en el paisaje cultural cafetero. Es una propuesta arquitectónica que por medio de su planteamiento urbano y formal busca contener las formas de vida que se están gestando en los contextos rurales actuales para ofrecer condiciones sostenibles y coherentes con una serie de necesidades exigidas.

Luego de que el proyecto “Bio-Casa” hubiera obtenido el primer lugar en la convocatoria profesional 2018, “Vivienda Social Sostenible para Sincelejo”, y teniendo en cuenta las diferentes circunstancias que aparecieron para concretar el proyecto, el equipo ganador tuvo la oportunidad de centrar sus esfuerzos y postulados para desarrollar un prototipo de vivienda social sostenible insertado en el paisaje cultural cafetero de Colombia, particularmente en el corregimiento de La India, municipio de Filandia, Quindío. Así mismo, los planteamientos en los cuales se apoya el proyecto se pueden entender en 2 grupos principales. Por un lado, los planteamientos básicos que debe tener toda vivienda social sostenible, muchos de ellos incluso que se importan del proyecto anterior; y, por otro lado, los planteamientos conceptuales que se adquieren en esta circunstancia y con los cuales se busca formular un proyecto respetuoso y consciente de su contexto topográfico, climático, social, y

desde luego, cultural.

En ese sentido, las primeras condiciones de las cuales la propuesta se hace cargo tienen que ver con una adecuada correlación entre forma e implantación. Este escenario específico exigía la implantación del proyecto hacia la parte más plana del terreno para quedar contiguo a la vía de acceso. Entendiendo que una de las tipologías arquitectónicas más marcadas en el paisaje cultural cafetero es la vivienda en barra con un balcón desarrollado a lo largo de su eje principal y usado como circulación exterior general, el proyecto emplea este sistema espacial para aprovechar mejor las condiciones que se presentaban. Su forma, por lo tanto, se entenderá como un volumen sencillo de planta rectangular con una circulación perimetral; obteniendo una concatenación de espacios separados y distribuidos longitudinalmente y con la implementación de un sistema de cubiertas a dos aguas a distintas alturas. En ese sentido, el proyecto anexa los elementos que distinguen la arquitectura residencial rural cafetera para formular un proyecto coherente con su contexto.

24
- Vivienda
Arq. Carlos Hernández - Arq. Sebastian Rojas - Arq. Jose
Proyectos
25
-
Proyecto
Vivienda
26
Proyectos - Vivienda

Por otro lado, el equipo asume que toda vivienda social en contextos rurales debe ser digna y debe contener de manera armoniosa las formas de vida de sus habitantes. Dadas las circunstancias de un contexto cambiante e inestable, la vivienda debe incorporar sistemas de progresividad y productividad que apoyen los procesos de desarrollo y movilidad social de los usuarios. Se formula, en este caso, la construcción de un sistema aporticado en la primera planta que sea la base en la cual se apoyará una estructura liviana en guadua en la segunda. Se entiende la vivienda, en resumen, como un elemento arquitectónico estratificado por dos tipos de técnicas y materiales compatibles y complementarios dentro del paisaje cultural cafetero: Una primera vivienda que funciona como una un volumen blanco y limpio con diversas aperturas con color

en los postigos, y una segunda que se entiende como un volumen tejido y modulado que expresa el detalle y las ventajas económicas, funcionales y espaciales de seguir implementando las técnicas artesanales vernáculas.

Por último, y no menos importante, es fundamental concebir sistemas arquitectónicos y de implantación que promuevan el sano y digno desarrollo de la vida colectiva y social para tejer comunidad. El proyecto, en un escenario futuro, plantea la replicación del mismo sistema del prototipo con tal de generar patios y espacios colectivos que sean configurados a partir de los frentes más largos de los volúmenes; apoyándose en los gestos de relación exterior como balcones y postigos.

27
- Vivienda
Proyecto

Después de asumir la responsabilidad de formular 2 posibles respuestas arquitectónicas a una misma pregunta, el equipo de trabajo reconoce el valor de estas iniciativas, que construyen posibilidades reales a una problemática de carácter social-nacional. Reflexionar sobre el valor

que puede generar una intervención de vivienda social en medio de un frágil contexto rural que está constantemente amenazado por prácticas frecuentemente insostenibles e inconscientes, con el principal propósito de dignificar y enriquecer las dinámicas humanas y colectivas de los

distintos espacios y escalas, es sobre todo, la principal motivación que ha alimentado a este equipo de trabajo por

continuar realizando esfuerzos cada vez más significativos para una arquitectura social sostenible colombiana.

28
Proyectos - Vivienda
29
-
Proyecto
Vivienda

PROYECTO TEPEYAC

Choachi - Colombia 2020

Arq. Juan Cuberos - Arq. Sebastian Rojas

El proyecto Tepeyac se diseñó para una familia que tiene pensado retirarse de la densidad urbana de Bogotá y adquirió un lote en el municipio de Choachi, Cundinamarca. Se trata de una pareja que quiere cambiar de vida y vivir en un lugar tranquilo con la posibilidad de hacer provecho del área libre que tiene, además se piensa en una vivienda que tenga en cuenta su circulo familiar cercano, contando con habitaciones privadas y de huéspedes. El diseño final resulta de un proceso experimental en conjunto con los clientes, se llegó a una vivienda de grandes dimensiones que pretende no perder el sentido de cercanía entre sus habitantes, por esta razón se escoge una tipología rectangular de dos niveles, agrupando los usos de habitaciones en los extremos y las zonas sociales en el centro de la vivienda. Elementos como la cocina y su relación con el comedor y la zona social son fundamentales en el diseño. El ingreso a la vivienda se marca con una “grieta” del volumen principal por medio de una especie de invernadero que tiene como principal objetivo generar un efecto bioclimático que por el cual se regule la temperatura interior. El diseño de la vivienda principal se complementa con los diseños de la casa para el encargado de la finca y 6 módulos habitacionales individuales con fines comerciales.

30
Proyectos - Vivienda
31 Proyecto - Vivienda
32
Proyectos - Vivienda
33
Proyecto - Vivienda

CASA SUBACHOQUE

Subachoque - Colombia 2020

Arq. Sebastian Rojas

Casa Subachoque es el proyecto para la ampliación de una vivienda unifamiliar ubicada a 4km del municipio de Tabio Cundinamarca. La cabaña existente había sido construida por el propietario de forma artesanal y con los materiales del lugar. Aunque en un principio se pensó cono una vivienda de fin de semana el propietario terminó por mudarse permanentemente al lugar, requiriendo su ampliación. El proyecto comprende un gran salón para sala y comedor, cocina, alacena y baño. La ubicación del volumen elemental está dada por la dificultan de la implantación, es un terreno con un pequeño espacio plano y luego una pendiente pronunciada. La nueva construcción se añade al antiguo volumen conformando una L, de esta forma las vistas e iluminación de la construcción existente se mantienen y se crea un patio central. en el interior el gran salón se enfoca en la gran chimenea de piedra. Por su parte la cocina se mente en el bosque nativo, con una gran marquesina, llenando de iluminación todo el espacio. Por requerimiento del cliente los materiales utilizados debían ser de la región y también ser trabajados por mano de obra local. Un gran zócalo de piedra, nivela la imagen de la casa respecto de la inclinación soportando las paredes de bloque de tierra.

34
- Vivienda
Proyectos
35 Proyecto - Vivienda
36
Proyectos - Vivienda
37
Proyecto - Vivienda

CONCURSOS

38
39

CONCURSO CORONA PRO-HÁBITAT

2018

Bogotá D. C. - Colombia 2018

Equipo: Arq. Carlos Hernández - Arq. Sebastian Rojas

- Arq. Jose López - Arq. Camilo Rodríguez - Arq. Julián

Olaya - Arq. Felipe Pinto

La “Bio-Casa” es un prototipo de vivienda social, resultado de una reflexión sobre la vivienda popular en el caribe colombiano del presente. La propuesta desde el punto de vista arquitectónico y técnico es el resultado de una reflexión en torno a 4 preguntas concretas que son pertinentes para la discusión de la arquitectura que se construye hoy en día y que, a lo mejor, requiere ser pensada y proyectada desde otros puntos de vista.

Arquitectura absoluta y cerrada o arquitectura efímera y abierta: Frente a una forma de vida que ha cambiado y que sigue cambiando constantemente, ¿Cuál es la forma construida coherente, o las posibilidades en las cuales la arquitectura puede inscribirse? El principio arquitectónico de la Bio-Casa responde a una forma construida que no pretende establecer soluciones espaciales definitivas. Frente a una pregunta móvil, respuestas móviles.

En términos prácticos y específicos, proponemos reflexiones renovadas frente a aquellos elementos de la arquitectura caribeña, que ofrecen nuevas respuestas técnicas y espaciales.

Arquitectura Sostenible o arquitectura Auto suficiente: En relación con el término sostenibilidad, el proyecto asume la inquietud y la necesidad por proponer sistemas constructivos que tengan bajo impacto ambiental. Si bien, el proyecto entiende dichas preocupaciones, muy pertinentes en el presente, prefiere asumir una postura donde la arquitectura sea más que eso, no solamente se limite a saber gastar, sino a hacer más, incluso a hacer un esfuerzo por poder suministrar sus recursos de manera más eficiente: una arquitectura auto-suficiente. Para poder poner la discusión en unos términos prácticos, el proyecto se vale de diversas estrategias que promuevan una actitud más auto-suficiente que solamente sostenible.

La recolección de agua lluvia, el baño seco, los paneles solares, los patios productivos y la posibilidad de crecer, generando espacios que se pueden arrendar o viviendas independientes, son algunas de las estrategias que se proponen para la autosuficiencia.

40
Concursos - Vivienda
41 Concursos - Vivienda

Arquitectura de nido o arquitectura de cueva. Una reflexión por la relación horizontal y cultural con el usuario.

El arquitecto japonés, Sou Fujimoto, logra recrear 2 arquetipos que representan realidades opuestas. El nido es la figura de la arquitectura funcional y construida para un propósito determinado. La cueva, por su parte, es la figura del lugar donde es posible descubrir o encontrar diversas formas de vida y de habitabilidad. ¿Cuál es la arquitectura más adecuada para proyectar y ofrecer en la actualidad? En lugar de formular métodos coercitivos de hacer arquitectura, debemos formular estrategias para habitar la arquitectura de manera más estimulante. Frente a preguntas abiertas, propuestas abiertas e inesperadas que vayan más allá del propósito inicial.

42
Concursos - Vivienda
43 Concursos - Vivienda

Concursos

Por lo tanto, entendemos la vivienda como un dispositivo espacial destinado para la vida y el hábitat de manera digna y que pueda ofrecer posibilidades donde se mejoren la calidad de vida a través de diferentes estrategias como productividad, auto-suficiencia y progresividad.

Las variaciones ofrecidas por el sistema constructivo de la cubierta le ofrecen al usuario la posibilidad de recrear una forma construida cada vez más cercana al arquetipo de Cueva que Fujimoto considera la más adecuada para la habitabilidad contemporánea, donde diferentes mezzanines, y planos horizontales son dispuestos de manera abierta y flexible, evitando restricciones y provocando por el contrario diversas formas de apropiación.

44
- Vivienda

La arquitectura como acontecimiento estático o como fenómeno evolutivo.

¿La construcción de la vivienda social, así como la vivienda en general, debería situarse en una postura donde sea posible valorizarla y permitir elaborar cambios para el beneficio de sus usuarios o donde se ofrezcan soluciones estáticas que no permitan tales procesos y que incluso los pueda empobrecer?

La progresividad de la vivienda es una estrategia fundamental en el desarrollo de esta arquitectura. A partir de diversos elementos proponemos facilitar dicho proceso.

45
Concursos - Vivienda

THE NEW CABIN

Sin lugar específico 2020

No hay duda que en tiempos de inestabilidad, incertidumbre y zozobra, el ser humano busque responder construyendo y recreando situaciones estables y armoniosas para resguardarse, ya no de la naturaleza –como ocurría ancestralmente- sino ahora del propio artificio cosmopolita. Por ello, la arquitectura contemporánea recibe, nuevamente, preguntas sobre un hábitat orgánico cada vez mejor correspondido con su entorno. Sin embargo, las nuevas formas de vida, producto de este contradictorio sistema social, demanda propuestas capaces de entender la arquitectura como un facilitador para que una complejidad programática entre a convivir con espacios potentes fuertemente entrelazados con un entornos brutalmente naturales.

Umbrales y Salidas surge de una conglomeración de preguntas ligadas a la cuestión mencionada. Al entender que la arquitectura pueda ser manifestada a partir de dispositivos audaces espacial y programáticamente, elementos tan comunes y clásicos en la arquitectura como el umbral y la ventana, pueden todavía ofrecer interesantes discusiones.

Sou Fujimoto plantea una interesante discusión cuando confronta dos arquetipos como hábitats arquitectónicos en su texto ¿Nido o Cueva? (Futuro Primitivo). Sin lugar a dudas, el escenario más favorable para poder desarrollar una forma de vida contemporánea es la cueva, al ser un elemento sumamente complejo y variable, donde múltiples situaciones pueden darse de manera libre. Si bien,

asumimos que una vida actual aún conserva dinámicas sumamente antiguas, también hay que darle cabida a que la incertidumbre defina múltiples escenarios arquitectónicos. En este sentido, el proyecto asume la construcción de una paqueña “cueva arquitectónica” guiada a través de la definición de dos ejes antropométricos que siempre han acompañado al hombre en su búsqueda por la relación entre el interior y el exterior: La vertical y la Horizontal; en este sentido: Un umbral y una salida definen una cueva contemporánea para habitar la naturaleza.

Arquitectónicamente hablando, recurrimos a un elemento genérico, clásico y eficiente a la hora de construir un refugio: El techo. Cuando este termina ofreciendo una respuesta espacial, técnica, bioclimática y arquitectónica de calidad, optimizando al máximo los recursos y la energía para su construcción, entendemos que es un enorme recurso a adoptar y adaptar. Por lo tanto, con un elemento de estas condiciones, la variabilidad en materiales, formas, costos, implantación y flexibilidad espacial se convierte en un fuerte argumento para adaptar una cueva contemporánea que buscará generar las mejores relaciones posibles con su entorno.de estas condiciones, la variabilidad en materiales, formas, costos, implantación y flexibilidad espacial se convierte en un fuerte argumento para adaptar una cueva contemporánea que buscará generar las mejores relaciones posibles con su entorno.

46
Concursos - Vivienda
47 Concursos - Vivienda

Fui a los bosques porque quería vivir deliberadamente; enfrentar solo los hechos de la vida y ver si podía aprender lo que ella tenía que enseñar. Quise vivir profundamente y desechar todo aquello que no fuera vida... Para no darme cuenta, en el momento de morir, que no había vivido.

48
Concursos - Vivienda
49 Concursos - Vivienda

AFRICAN URBAN SCHOOL 2021

Bamako - Mali 2021

Arq. Jose López - Arq. Valentina Ruiz - Sebastian Salazar - Arq. Sebastian Rojas

Nuestra propuesta surge a partir de una reflexión crítica, abierta y objetiva sobre la función de la arquitectura como construcción de espacios que dignifiquen y respalden la filosofía de sus usuarios, a su vez que recoja y reúna un enriquecido conjunto de valores estéticos, espaciales, y por qué no políticos.

Entendiendo que Educación Enko es una red internacional de escuelas africanas de rápido crecimiento, cuyo objeto es incrementar y facilitar el acceso a la mejor educación universal de sus estudiantes, presentamos a continuación los 4 puntos principales que reúnen las características de la propuesta.

Arquitectura y un encuentro con una educación abierta: Para esta difícil tarea, dedicamos nuestros esfuerzos por proponer una arquitectura urbana respetuosa con el entorno, que sea abierta, porque creemos que así debe ser un edificio para la cultura, el conocimiento y la educación de Enko. Una arquitectura que vuelva a su condición de símbolo, que juegue un papel importante para sus estudiantes y ciudadanos, y que seduzca con sus recorridos sorpresivos y vuales contemplativas.

Proyecto y Lugar: Un edificio de estas características y programa exige estrategias eficientes que hagan parecer simple lo que a nivel operativo puede resultar muy complejo. El elemento estructurante del proyecto, así como claramente se manifiesta en la imponente geografía del lugar el Río Níger, debe ser el recorrido.

Arquitectura y Técnica: El recorrido se compone por un sistema de placas aéreas de sinuosa silueta que se traslapan unas a otras para componer el cuerpo horizontal del colegio que albergará las zonas de mayor área y de mayor complejidad técnica. En el centro geométrico de las placas, se crea un impluvio que amarra y enlaza dos crujías de torres de aulas. Estas torres emergen a manera de espejo rotado entre este cuerpo de placas aéreas y se elevan para gozar de excelentes condiciones espaciales y visuales. Un primer acercamiento volumétrico sugiere escalonamiento entre los volúmenes, creando retrocesos respetuosos con el entorno pero que a su vez dejan abierta la posibilidad de su incremento a medida que el edificio lo requiera.

50
Concursos - Educativo
51 Concursos - Educativo

Paisaje y Sostenibilidad: Un profundo interés por crear espacios dignos y apropiados para la educación nos invitó a proponer los patios, y las circulaciones abiertas como las primeras estrategias bioclimáticas que gobernarían la implantación racional de las torres, recibiendo el sol por medio de muros macizos y permitiendo una adecuada circulación cruzada de aire entre sus celosías.

“La arquitectura está hecha para ser vista, vivida y usada, tanto por a quien le pertenece, como por todas aquellas personas que son testigos de su presencia en la ciudad. La arquitectura es un bien común”. R. Salmona.

52
Concursos - Educativo
53 Concursos - Educativo

HOSPITAL TAMATÁ

Pereira - Colombia 2021

El concurso propone diseñar un hospital de cuarto nivel en la zona periférica de la ciudad de Pereira. EL edificio debe responder tanto a las normativas del lugar de implantación como a todos los requerimientos que el programa hospitalario requiere. Se debe promover la existencia de espacios de esparcimiento donde pacientes y acompañantes puedan tener una mejor relación con los procesos médicos.

El territorio, el paisaje cultural cafetero, el “Jardín en Movimiento” y el “Genius Loci”, son los conceptos claves de la propuesta, integrando medio ambiente y arquitectura, aprovechando los espacios y la naturaleza existentes por medio de una propuesta urbana y paisajista que recrea el microclima del lugar.

La condición rural del predio y los espacios de carácter público con los que se cuenta, permiten proponer un edificio que se integre al paisaje, a través de la idea de un jardín botánico, el cual, por medio de plazas y espacios públicos se convierte, además de un centro que brinda servicios de salud, en un lugar de encuentro y de bienestar donde pacientes, acompañantes y habitantes de la zona se pueden congregar.

Además de las propuestas paisajistas y volumétricas, el proyecto apunta a un óptimo funcionamiento de los usos que componen un hospital en búsqueda de la tranquilidad y mejor atención para los pacientes.

El programa del edificio se aborda por medio de una barra crítica y otra de consulta externa, garantizando que no exista cruce entre los tipos de usuario del hospital. La extensión de las barras permite que los servicios cuenten con las relaciones necesarias para que los procedimientos se desarrollen de la forma más eficiente. El diseño urbano se adapta a la topografía del lugar, creando espacios públicos donde los acompañantes tienen espacios confortables.

54
Concursos - Hospitalario
55 Concursos - Hospitalario
57

INVESTIGACIÓN

58
59

LABORATORIO DE TÉCNICAS VERNÁCULAS PARA SOLUCIONES ARQUITECTÓNICAS CONTEMPORANEAS

Colombia 2019

Sebastian Rojas

Tesis de grado - Investigación

La arquitectura del mundo actual expone cuestiones que van más allá de la espacialidad o funcionalidad de un proyecto. Nos encontramos en tiempos de crisis, donde el término sostenibilidad se convierte en el común denominador de quienes pretenden un futuro bienaventurado. El planeta parece sucumbir ante el fenómeno de la globalización, satisfaciendo la demanda de alrededor de 7.7 billones de habitantes a través de la explotación de recursos no renovables. Los procesos automatizados de producción han reemplazado la mano de obra del artesano quien por medio de su trabajo ha sido la representación misma de la cultura de su territorio. Pero, ¿Existe otra opción? ¿La industrialización es el único camino? Considerando que la producción artesanal con materiales locales tiene un impacto ambiental menor al de las grandes fábricas y multinacionales, ¿Qué podemos aprender de estos para el mundo contemporáneo?

La hipótesis planteada en esta investigación no busca animar conflictos en contra de los sistemas y dinámicas

actuales, por el contrario, pretende reflexionar sobre las posibilidades de generar una articulación entre lo local y lo global; entendida esta como una sinergia entre tradición e innovación. En definitiva, se trata de llevar la reflexión sobre el oficio actual de la arquitectura a un nivel de mayor interés y responsabilidad ambiental, social y cultural. Las experiencias recogidas en el presente trabajo, además de las que he podido involucrar en mi trayectoria académico-práctica, me han permitido concebir estas relaciones como herramientas de gran valor; no solamente se muestran como una gran oportunidad y capacidad para producir elementos novedosos, sino que pueden llegar a desarrollar condiciones sociales, políticas, económicas y ambientales coherentes con el lugar donde se practican estas arquitecturas. Mi propósito está en que este trabajo trascienda las barreras de la academia y motive a arquitectos curiosos a encontrar soluciones a problemas contemporáneos a través de la investigación del conocimiento local.

60
Proyectos - Investigación
61 Proyecto - Investigación

Proyectos - Investigación

62
63 Proyecto - Investigación
64
Proyectos - Investigación

En un ejercicio motivado por la metodología de Inteligencias Colectivas, el proyecto “Máquina Verde” desarrollado por el equipo “PEI” de la Pontificia Universidad Javeriana de Bogotá para el concurso Solar Decathlon Latin America & Caribbean 2019, abre la posibilidad como conclusión de este trabajo, de demostrar la implementación de técnicas vernáculas en arquitectura contemporánea.

65 Proyecto - Investigación

HÁBITAT PARA LA PAZ

San José del Guaviare, Colombia 2019

Equipo PPU Paz Vida y Hábitat Pontificia Universidad

Javeriana de Bogotá - Equipo PPU Paz Vida y Hábitat

Pontificia Universidad Javeriana de Bogotá

Cargo: Diseñador - Investigador

A través de los Proyectos de Planeación Universitaria (PPU), la Pontificia Universidad Javeriana trabaja para contribuir a la estructuración y consolidación de la paz, al cuidado de los territorios y de sus recursos naturales, y al desarrollo humano en las regiones de Colombia. Este trabajo se origina a raíz del llamado por parte de los excombatientes que viven actualmente en el antiguo Espacio Terriorial de Capacitación y Reincorporación (ETCR) ubicado en la zona veredal de Charras, cuatro horas río abajo desde San José del Guaviare. Los lineamientos registrados en este documento están motivados por la idea de llevar a cabo un traslado digno y sostenible a lo que será su nuevo hábitat sedentario, productivo y pacífico. Son el resultado del empeño y la confianza de muchos actores institucionales e individuales; particularmente las personas de la Comunidad Noble de Paz Marco Aurelio Buendía (actuales habitantes del ETCR) quienes, además de confiar en nosotros para hacer el planteamiento del nuevo asentamiento, contribuyeron enérgicamente a lo largo de todo el proceso. Los equipos de los Proyectos de Planeación Universitaria Alimento Vida y Hábitat de las Facultades de Ciencias y Arquitectura y Diseño y el Proyecto Javeriano de Paz y Reconciliación; La Agencia para la Reincorporación y la Normalización (ARN), cuyas directrices formales y su conocimiento de causa fueron determinantes en este proceso y cuya función seguirá siendo protagónica en la materialización del traslado; El equipo técnico del Consejo Nacional de Reincorporación (CNR), sus ideas y respaldo; La misión local de las Naciones Unidas y algunas instituciones locales, queremos

transmitirle un mensaje de agradecimiento a ellos y a todas las personas que han acompañado este proceso. Proyectos como el reasentamiento y la consolidación de la Comunidad Noble de Paz Marco Aurelio Buendía, que a veces tienen más cara de utopía que de meta, son posibles en la medida que los esfuerzos se sumen, que se lleven a cabo procesos metódicos e, inevitablemente, que exista una buena dosis de voluntad política, de idealismo y convicción. Este documento presenta una base sustentada para que se lleven a cabo procesos claros y concertados en los pasos por venir: La formalización de la adquisición y la entrega del predio, la reserva presupuestal para diseños y obra, los estudios técnicos definitivos (cuyos esquemas básicos y anteproyectos se presentan en este documento a forma de Anexo Técnico), los procesos de licenciamiento ante las autoridades ambientales y de planeación y, más adelante, las obras. Luego vendrá la apropiación por parte de los nuevos habitantes, tanto excombatientes como otra población civil, el trabajo de la tierra, la consolidación de los proyectos productivos, la convivencia y el desarrollo incremental de las obras, tanto en la escala doméstica como a nivel urbanístico.

El presente libro es una guía técnica, arquitectónica y urbanística que, a la manera de un manual de instrucciones plantea, en algo más de 250 lineamientos, las sugerencias para buscar un nuevo asentamiento durable, apropiado y bello. El documento se divide en cuatro capítulos en los que se plasman los elementos y procesos para la construcción y la consolidación del nuevo espacio en todos sus ámbitos, desde el territorio hasta el detalle.

66
Proyectos - Investigación
67 Proyecto - Investigación

Proyectos - Investigación

68
69 Proyecto - Investigación

PATRIMONIO EMERGENTE Y APROPIACIÓN

Cartagena de Indias - Colombia 2016

Equipo: PUJ - Zuloark - Arquitectos de Cabecera

Proyecto de quinto semestre - Investigación e intervención

Con ocasión del XVII festival de patrimonio en Cartagena se desarrolló un proyecto que comprendía la construcción de un escenario para uno de los eventos del festival en el Fuerte de San Fernando, corregimiento de Bocachica, isla de Tierrabomba. Durante las semanas de trabajo en Cartagena se hicieron actividades con profesores de la universidad

Jorge Tadeo Lozano sobre la historia e importancia del patrimonio arquitectónico de la ciudad amurallada. La construcción del escenario se realizó de la mano de dos colectivos europeos: Arquitectos de Cabecera de Barcelona y Zuloark de Madrid y Barcelona.

El desarrollo del proyecto comprendió diferentes actividades con la comunidad de Bocachica que buscaban iniciar un proyecto social en el territorio. Reuniones con diferentes grupos de todas las edades, actividades de reconocimiento del territorio e inclusión de los pobladores en la construcción del escenario y la actividad del festival de patrimonio. Entrevistas con residentes de Bocachica recolectando información e informándonos sobre el territorio, no solo la investigación etnográfica sino con datos característicos de la evolución del territorio y las dinámicas que se han desarrollado alrededor de los años. Reunión con los estudiantes de la Escuela del corregimiento donde se desarrollaron actividades didácticas donde se buscaba generar apropiación y tener un primer vínculo con la comunidad. Como

esta se desarrollaron más reuniones con niños de diferentes edades. Actividad audiovisual donde los niños de Bocachica realizaban un corto cinematográfico grabando y representando actividades típicas de su territorio.

La propuesta del escenario para el festival consistió en una cubierta de sombrillas que brindó a los espectadores del evento resguardo de los rayos del sol. Los habitantes de la región brindaron su apoyo para la construcción del mobiliario, la cubierta y la adecuación del Fuerte de San Fernando. Parte del mobiliario fue brindado por la comunidad en una actividad donde los muebles eran reparados y pintados, se utilizaban para el evento y se devolvían a las familias. La apropiación del lugar se fomentó a lo largo de las dos semanas que permanecimos en el corregimiento con actividades de adecuación y preservación del pueblo. La actividad del festival se organizó en diferentes etapas finalizando con una reunión con la comunidad y representantes de las entidades públicas de Cartagena, charla sobre patrimonio, exposición del corto cinematográfico de los niños y una presentación de bailes típicos de la región. De esta forma concluyo nuestra labor en el territorio.

70
Proyectos Academicos
71 Investigación - Intervención
72 Proyectos Academicos
73 Investigación - Intervención
74

Turn static files into dynamic content formats.

Create a flipbook
Issuu converts static files into: digital portfolios, online yearbooks, online catalogs, digital photo albums and more. Sign up and create your flipbook.
PORTAFOLIO SEBASTIAN ROJAS by sebastianrp147 - Issuu