PRESENTACION PROYECTO GNRL

Page 1

PREMIO MARIO HERNANDEZ

G N r L
EDIFICIO

INTRODUCCION

En la siguiente presentación se ilustrará y explicara, la realización del proyecto para la marca GNRL como participante del premio Mario Hernández 2024, en este se observarán los retos, la inspiración, el desarrollo, el diseño, las propuestas y el resultado que llevaron varias ideas a un diseño completo de un edificio que buscara solucionar distintas problemáticas tales como, el diseño de espacios, el contexto, el clima, la sostenibilidad y las necesidades ofrecidas por el cliente enfrentándose a una disruptividad que logre denotar el proyecto en el contexto donde se ubicara.

IA UTILIZADA: REMINI

• ACERCA DE GENERAL

• ACERCA DE MI

• MOOD BOARD

• UBICACIÓN Y CONTEXTO

• REFERENTE

• ANALISIS PLANIMETRICO

• PRESUPUESTO PRECIOS FINALES

• FICHA TECNICA DEL PROYECTO

• CONCLUSIONES

• APORTE A GENERAL

• ANEXOS:

• TEXTO DEL PROYECTO

• PLANIMETRIA

• PRESUPUESTO COMPLETO

INDICE

ACERCA DE GENERAL

GNRL studios es una marca de ropa que explora la relación entre la moda y el arte. Sus dos fundadores Santiago y Martin pintan a mano obras de arte sobre telas de las cuales fabrican prendas exclusivas y únicas con un concepto de arte llamado

WEARABLE ART.

Ofrecen un estilo innovador con una identidad propia el cual combinan diseños funcionales y disruptivos que inspiren a las personas en el diseño del arte y la moda.

ACERCA DE MI

Mi nombre es Juan Sebastián Clavijo Luna, soy de Bogotá y soy un arquitecto egresado de la universidad católica de Colombia, graduado el 31 de marzo de 2023, cuento con bases y conocimientos en el diseño

arquitectónico, constructivo y urbano, el cual busca especializarse y orientarse en el diseño de proyectos turísticos y de vivienda.

Al conocer el premio Mario Hernández decidí tomar el reto pues me considero alguien creativo y que debo tomar las oportunidades que me ofrezca la vida, salga adelante o no, tomare la experiencia que me motive y me permita llegar a nuevas oportunidades y nuevos retos de diseño, aprendizaje.

EDIFICIO G N r L
texturas
MOOD BOARD
Arte urbano
mobiliario
UBICACIÓN Y CONTEXTO BOGOTA D.C

CONTEXTO

Si bien el proyecto solo se mencionaba que debía estar localizado en la ciudad de Bogotá, se realizó una búsqueda de un lote que contara con las mismas medidas proporcionadas por la marca GNRL: lote esquinero de 20x30m2.

Se encontró un lote que contaba con estas mismas características exactas el cual está en venta y se encuentra localizado en el barrio Gran América con la dirección: Cl. 25

#31a-3, Bogotá.

REFERENTE

complejo residencial corbues

Courbes, el nombre del proyecto residencial realizado por el estudio del arquitecto Christophe Rousselle en Colombes, en el departamento de Altos del Sena, en Francia, se refiere a las sinuosas curvas de los salientes que caracterizan y diferencian las plantas de los dos edificios. El proyecto residencial forma parte del plan de renovación urbana del barrio de la ZAC Charles de Gaulle.

https://www.floornature.es/christophe-rousselle-architecte-courbesedificios-residencia-15475/

APLICACIÓN DEL REFERENTE EN EL PROYECTO

EDIFICIO REFERENTE COURBES

Propuestas realizadas con inteligencia artificial

EDIFICIO PROPUESTA GNRL

IA UTILIZADA: PROMEAI.PRO

ANALISIS PLANIMETRICO

CONCEPTUALIZACION

Modelo con las medidas solicitadas en el brief de 20x30m.

Red estructural con unas luces entre 5,30m, 7,50m y 9,50m.

Adición de elementos curvos para la fachad y eliminación de espacios para una cubierta abierta .

Se concentran los puntos fijos y los servicios para dar mayor espacialidad.

INICIAL GEOMETRIZACION
SUSTRACION
SERVICIOS
VOLUMEN
ADICION Y
CONCENTRACION DE

PROGRAMA ARQUITECTONCIO

Con la información brindada por el brief y el cliente se realizó un programa arquitectónico en el que contemplaran los espacios a diseñar en el proyecto y la relación que este tendrá con las personas dividiéndolo en 3 zonas, público, privado y mixto.

ANALISIS PLANIMETRICO

PLANTA DE SOTANO

ZONAS DEL PROYECTO:

Circulación

Rampa vehicular

Cuarto de máquinas y deposito

Parqueaderos (12

vehículos, 10 motos
AREA: 52.57 m2 80m2 63m2 180.36 m2
o bicicletas)

ANALISIS PLANIMETRICO

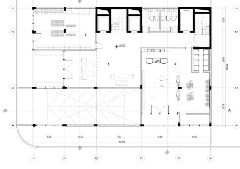
PLANTA DE ACCESO (PISO DE ACCESO Y TIENDAS)

Acceso al edificio Circulación Rampa vehicular servicios Tienda de ropa Tienda de accesorios y útiles AREA: 79.10 m2 90.57 m2 80m2 24m2 145.30 m2 71.35 m2
ZONAS DEL PROYECTO:

ANALISIS PLANIMETRICO

PLANTA DE SEGUNDO NIVEL (PISO DE SALONES Y TRABAJO)

ZONAS DEL PROYECTO: Circulación

Salón de cooworking

Salón de pintura servicios Estudio de fotografía Zona de trabajo de tela

Zona de exhibición AREA: 120m2 77m2 65m2 64.80m2 55.66m2 85m2 40m2

ANALISIS PLANIMETRICO

PLANTA DE TERCER NIVEL (PISO DE OFICINAS)

ZONAS DEL PROYECTO:

Salón de edición y música

Servicios Oficinas Zona de comida Zona de descanso Zona verde AREA: 120m2 52m2 64.80m2 141m2 52m2 45m2 60m2
Circulación

ANALISIS PLANIMETRICO

PLANTA DE CUBIERTA (PISO TERRAZA Y SALON MULTIUSOS)

Circulación Salón multiusos Servicios Zona verde AREA: 108.08m2 180m2 70m2 85m2
ZONAS DEL PROYECTO:

PRESUPUESTO PRECIOSFINALES

FICHA TECNICA DEL PROYECTO

CONCLUSIONES

GENERAL se encuentra ligado al arte urbano de diferentes modos y en el proyecto se propone plasmar este mismo arte dentro y fuera del proyecto que le dé una esencia diferente y llame más la atención por el cliente y el público a saber que esconde o que se encuentra dentro del proyecto.

ARTE URBANO

IA UTILIZADA: KREA AI. IA UTILIZADA: PROMEAI.PRO.

¿ES UN PROYECTO SOSTENIBLE?

El proyecto cuenta con los espacios necesarios para suplir las necesidades que los miembros de la marca GNRL necesitan espacios tales como el salón de pintura, de música, y coworking, para que con ellos se fomente un ambiente de trabajo agradable tanto para los usuarios de la marca como las personas que lleguen al proyecto.

En adición la propuesta cuenta con espacios para incorporar elementos que ayudan con la sustentabilidad y sostenibilidad propia del edificio gnrl tal como el cuarto de máquinas en el sótano con la intención y finalidad de emplazar un mecanismo que recoja las aguas que provengan directamente de la lluvia para su tratamiento y uso dentro del lugar.

Con la reciente escasez a la que se enfrenta la ciudad, se deben tomar medidas que aporten a la reducción del consumo del agua, y la mitigación de las altas temperaturas para ello la creación de espacios verdes y varias huertas a lo largo del proyecto para la siembra de plantas a gusto de los miembros para que con el tiempo el proyecto tenga una propia sombra y permita de cierto modo la recolección de energía solar que puede usarse igualmente del proyecto.

APORTE A GNRL

¿RESPONDE A LAS PROBLEMATICAS PLANTEADAS?

PROBLEMATICAS SOLUCIONES

• El proyecto buscaba espacios amplios para el uso de máquinas para estampar, pintar, coser, grabar entre otras.

• Un proyecto que seas accesible para todo público proponiendo distintas actividades en cada piso .

• Un parqueadero dentro del proyecto facilitando y dando más seguridad a aquellos con un vehículo.

• Una terraza abierta que se adecue al contexto en el que esta, en este caso una ciudad con ambientes y climas de cambio repentinos.

• Se propone una estructura que permita luces grandes que permita la espacialidad de los espacios solicitados

• Cada piso cuenta con una actividad sea publica o mixta que llame al público a recorrer y conocer el proyecto.

• El sótano cuenta con 12 parqueaderos vehiculares y 10 para motocicletas, ascensores para las personas y un ascensor de carga, además de contar con un punto fijo de emergencia para cualquier situación.

• La terraza cuenta con dos espacios principal uno abierto a la ciudad y uno cubierto siendo este un salón multiusos, en el área verde un mobiliario que permita a las personas descansar sin preocuparse de los cambios climáticos

ANEXOS

PROYECTO GNRL

Teniendo en cuenta todos los parámetros, reuniones realizadas a lo largo del mes y los retos planteados en el brief de la marca GENERAL, se diseñó el proyecto edificio GNRL. Para llegar al diseño final mostrado en la presentación se inició un proceso de búsqueda de varias condiciones tales como un lote, un referente y un estilo, todo esto con la finalidad de arrancar con un volumen “normativo” ofrecido por la marca.

El proyecto inicia con una bocetacion a mano sobre la propuesta estructural y a partir de este sacar los primeros espacios importantes en un proyecto, los puntos fijos y los servicios, esto porque son espacios que van en todos los niveles en bloque y sacando estos espacios ya se sabe con exactitud que espacio restante queda para circulación y espacialidad para distribuir todas las áreas que el cliente quiere en este caso. Seguido de ello un programa arquitectónico que define que espacios son públicos, privados y mixtos da una idea mayor de como ajustar los espacios, esto teniendo en cuenta que para cada nivel ya había un uso destinado: un sótano como parqueadero, un primer nivel para el acceso y para tiendas. Un segundo nivel para los salones de pintura, fotografía, tela, y otros propuestos adicionalmente como un área de coworking y una zona de exhibición. Un tercer nivel donde se encontrarían principalmente las oficinas del edificio y un cuarto nivel que tendría una terraza accesible y abierta hacia la ciudad contemplado el contexto donde se iba a encontrar.

Ya con las áreas, espacios, pisos, estructura y circulación definidas se inicia el planteamiento de materialidades y como se vera el proyecto en la ciudad. Una de las mayores tendencias que tiene GENERAL es ser y hacer cosas completamente diferentes en la moda y el arte, entonces aplicar este mismo concepto o idea de romper con lo cotidiano se diseña una fachada con curvaturas en cada nivel como voladizos creando así una doble fachada en el proyecto, una fachada interior opaca que cubre varios espacios privados y una fachada completamente abierta y cristalizada que relacione cada piso con su entorno y ciudad pero sin mostrar a la población que es en realidad lo que hay dentro del proyecto creando esa duda de que ofrece o que hay en el proyecto interiormente.

Otra variable a considerar es la sostenibilidad del proyecto y para ello se buscaron otros referentes principalmente de edificios inteligentes y autosustentables, y se tomaron algunas ideas una y la principal teniendo en cuenta la situación a la que la

ciudad de Bogotá se encuentra en la actualidad se plantea unos tanques de recolección de agua en la cubierta que están conectados directamente con los ductos del proyecto llevando el agua recogida hasta el sótano a un cuarto de máquinas donde se trataría esta y se podría usar en el proyecto futuramente, otra idea es el hecho de hacer inteligente los espacios para ello un sistema de detección de caras y huellas se implementaría el cual permita el acceso fácil a los miembros pertenecientes a la marca.

Un proyecto como este inicia de analizar que pautas, directrices y problemas nos da el cliente y a partir de eso un análisis minucioso de cual puede ser la respuesta pertinente a ello, el edificio GNRL recopilo todas estas variables y las soluciono en lo máximo agregando gustos o detalles que el cliente menciono tales como la inclusión del arte urbano o la disruptividad de los objetos a nuestro alrededor y a nuestro alcance, todo con la finalidad de que la identidad de la marca se vea plasmada en la identidad del proyecto y así relacionarlos directamente mostrando a la población quienes son y porque la marca GENERAL se caracteriza en el día de hoy.

La oportunidad de participar en el premio Mario Hernández en una categoría así y mostrar como puede surgir un proyecto que muestre una semejanza con su cliente propio demuestra lo cauteloso, preciso que hay que se a la hora de realizar un diseño además de que en esta ocasión se cuenta con la ayuda de las inteligencias artificiales que si bien son un debate en la actualidad sobre si son un peligro para los profesionales de cualquier carrera, son en parte una gran ayuda que nos permite visualizar, analizar, desarrollar un proyecto mas real y detallado.

GSPublisherVersion 0.2.100.100 CONCURSANTE: JUAN SEBASTIAN CLAVIJO LUNA CATEGORIA: DISEÑO DE ESPACIOS PROYECTO: EDIFICIO DE INNOVACION GNRL CONTENIDO: ESCALA: 1:75 N° PLANO: FECHA DE ENTREGA: 15-ABRIL-2024 10 11 12 13 14 15 16 17 18 10 11 12 13 14 15 16 17 18 4 5 6 7 8 9 10 11 12 1 2 13 14 15 16 17 18 1 1 4 4 2 2 3 3 A A F F E E B B C C D D 4,00 9,40 6,30 20,00 30,00 5,30 5,30 7,50 6,30 5,30 0,30 5,00 0,30 5,00 0,30 7,20 0,30 6,00 0,30 5,00 0,30 30,00 5,30 5,30 7,50 6,30 5,30 0,30 5,00 0,30 5,00 0,30 2,00 0,30 2,60 0,30 2,00 0,30 6,30 2,20 0,30 2,50 0,30 6,72 0,30 6,38 0,30 6,00 0,30 -3,500 -3,500 A A B B C C A1 A1 DEPOSITO DEPOSITO DEPOSITO CUARTO DE MAQUINAS PLANTA DE SOTANO 1:15 COTA NIVEL PROYECTO: N - 3,50
GSPublisherVersion 0.2.100.100 CONCURSANTE: JUAN SEBASTIAN CLAVIJO LUNA CATEGORIA: DISEÑO DE ESPACIOS PROYECTO: EDIFICIO DE INNOVACION GNRL CONTENIDO: ESCALA: 1:75 N° PLANO: FECHA DE ENTREGA: 15-ABRIL-2024 10 11 12 13 14 15 16 17 18 10 11 12 13 14 15 16 17 18 1 1 4 4 2 2 3 3 A A F F E E B B C C D D A A B B C C 30,00 5,30 5,30 7,50 6,30 5,30 20,00 4,00 9,40 6,30 30,00 5,30 5,30 7,50 6,30 5,30 ±0,00 PLANTA DE ACCESO 2:15 COTA NIVEL PROYECTO: N + 0,00 ESPACIOS: 1. ACCESO AL EDIFICIO 2. TIENDA DE ROPA 3. TIENDA DE ACCESORIOS 2 3 1
GSPublisherVersion 0.2.100.100 CONCURSANTE: JUAN SEBASTIAN CLAVIJO LUNA CATEGORIA: DISEÑO DE ESPACIOS PROYECTO: EDIFICIO DE INNOVACION GNRL CONTENIDO: ESCALA: 1:75 N° PLANO: FECHA DE ENTREGA: 15-ABRIL-2024 10 11 12 13 14 15 16 17 18 10 11 12 13 14 15 16 17 18 1 1 4 4 2 2 3 3 A A F F E E B B C C D D A A B B C C 30,74 5,30 5,30 7,50 6,30 5,30 20,76 4,00 9,40 6,30 30,23 5,30 5,30 7,50 6,30 5,30 +3,50 CUARTO DE ASEO CUARTO DE ALMACENAMIENTO PLANTA DE SEGUNDO PISO 3:15 COTA NIVEL PROYECTO: N + 3,50 ESPACIOS: 1. ESTUDIO DE FOTOGRAFIA 2. ESPACIO DE COOWORKING 3. SALON DE PINTURA 4. SALON DE ESTAMPADO Y TELAS 5. ZONA DE EXHIBICION 2 3 1 5 4
GSPublisherVersion 0.2.100.100 CONCURSANTE: JUAN SEBASTIAN CLAVIJO LUNA CATEGORIA: DISEÑO DE ESPACIOS PROYECTO: EDIFICIO DE INNOVACION GNRL CONTENIDO: ESCALA: 1:75 N° PLANO: FECHA DE ENTREGA: 15-ABRIL-2024 10 11 12 13 14 15 16 17 18 10 11 12 13 14 15 16 17 18 1 1 4 4 2 2 3 3 A A F F E E B B C C D D A A B B C C 31,48 5,30 5,30 7,50 6,30 5,30 21,79 4,00 9,40 6,30 31,32 5,30 5,30 7,50 6,30 5,30 +6,50 CUARTO DE ASEO CUARTO DE ALMACENAMIENTO PLANTA DE TERCER PISO 4:15 COTA NIVEL PROYECTO: N + 6,50 ESPACIOS: 1. AREA VERDE 2. ESTUDIO DE EDICION 3. ESTUDIO DE GRABACION Y MUSICA 4. OFICINA PRINCIPAL 5. OFICINAS 6. SALA DE REUNIONES 7. ZONA PARA COMER 2 3 1 5 4 6 7
GSPublisherVersion 0.2.100.100 CONCURSANTE: JUAN SEBASTIAN CLAVIJO LUNA CATEGORIA: DISEÑO DE ESPACIOS PROYECTO: EDIFICIO DE INNOVACION GNRL CONTENIDO: ESCALA: 1:75 N° PLANO: FECHA DE ENTREGA: 15-ABRIL-2024 1 1 4 4 2 2 3 3 A A F F E E B B C C D D A A B B C C 30,74 5,30 5,30 7,50 6,30 5,30 20,76 4,00 9,40 6,30 11,90 5,30 5,30 7,50 6,30 5,30 11,13 +9,50
DE ALMACENAMIENTO PLANTA DE TERRAZA 5:15 COTA NIVEL PROYECTO: N + 9,50 ESPACIOS: 1. AREA VERDE 2. SALON MULTIUSOS 2 1
CUARTO

CONCURSANTE: JUAN SEBASTIAN CLAVIJO LUNA

CATEGORIA: DISEÑO DE ESPACIOS

PROYECTO: EDIFICIO DE INNOVACION GNRL

CONTENIDO:

ESCALA:

GSPublisherVersion 0.2.100.100
1:75 N° PLANO: FECHA DE ENTREGA: 15-ABRIL-2024 F E D C B A
PRINCIPAL 6:15
FACHADA

CONCURSANTE: JUAN SEBASTIAN CLAVIJO LUNA

CATEGORIA: DISEÑO DE ESPACIOS

PROYECTO: EDIFICIO DE INNOVACION GNRL

CONTENIDO:

GSPublisherVersion 0.2.100.100
1:75 N° PLANO: FECHA DE ENTREGA: 15-ABRIL-2024 F E D C B A 5,30 5,30 7,50 6,30 5,30 CORTE LONGUITUDINAL A-A´ 7:15
ESCALA:

CONCURSANTE: JUAN SEBASTIAN CLAVIJO LUNA

CATEGORIA: DISEÑO DE ESPACIOS

PROYECTO: EDIFICIO DE INNOVACION GNRL

CONTENIDO: ESCALA:

GSPublisherVersion 0.2.100.100
1:75 N° PLANO: FECHA DE ENTREGA: 15-ABRIL-2024 1 2 3 4 4,00 9,40 6,30 CORTE TRANSVERSAL B-B´ 8:15

CONCURSANTE: JUAN SEBASTIAN CLAVIJO LUNA

CATEGORIA: DISEÑO DE ESPACIOS

PROYECTO: EDIFICIO DE INNOVACION GNRL

CONTENIDO: ESCALA:

GSPublisherVersion 0.2.100.100
1:75 N° PLANO: FECHA DE ENTREGA: 15-ABRIL-2024 4 3 2 1 CORTE TRANSVERSAL C-C´ 9:15
GSPublisherVersion 0.2.100.100 CONCURSANTE: JUAN SEBASTIAN CLAVIJO LUNA CATEGORIA: DISEÑO DE ESPACIOS PROYECTO: EDIFICIO DE INNOVACION GNRL CONTENIDO: ESCALA: 1:75 N° PLANO: FECHA DE ENTREGA: 15-ABRIL-2024 10 11 12 13 14 15 16 17 18 10 11 12 13 14 15 16 17 18 1 1 4 4 2 2 3 3 A A F F E E B B C C D D 4,00 9,40 6,30 20,00 30,00 5,30 5,30 7,50 6,30 5,30 0,30 5,00 0,30 5,00 0,30 7,20 0,30 6,00 0,30 5,00 0,30 30,00 5,30 5,30 7,50 6,30 5,30 0,30 5,00 0,30 5,00 0,30 2,00 0,30 2,60 0,30 2,00 0,30 6,30 2,20 0,30 2,50 0,30 6,72 0,30 6,38 0,30 6,00 0,30 3,50 1,50 3,80 1,50 6,25 1,00 5,05 1,50 3,50 3,70 7,90 1,50 4,50 2,20 1,50 8,15 1,00 4,75 -3,50 A A B B C C PLANTA DE CIMENTACION 10:15 COTA NIVEL PROYECTO: N - 3,50
GSPublisherVersion 0.2.100.100 CONCURSANTE: JUAN SEBASTIAN CLAVIJO LUNA CATEGORIA: DISEÑO DE ESPACIOS PROYECTO: EDIFICIO DE INNOVACION GNRL CONTENIDO: ESCALA: 1:75 N° PLANO: FECHA DE ENTREGA: 15-ABRIL-2024 10 11 12 13 14 15 16 17 18 10 11 12 13 14 15 16 17 18 1 1 4 4 2 2 3 3 A A F F E E B B C C D D A A B B C C 30,00 5,30 5,30 7,50 6,30 5,30 20,00 4,00 9,40 6,30 30,00 5,30 5,30 7,50 6,30 5,30 0,30 1,75 0,20 1,75 0,30 1,42 0,20 1,32 0,20 1,32 0,20 1,32 0,20 1,32 0,20 1,42 0,30 2,90 0,20 2,90 0,30 0,30 2,40 0,20 2,40 0,30 2,40 0,20 2,40 0,30 3,50 0,20 3,50 0,30 2,90 0,20 2,90 0,30 2,40 0,20 2,40 0,30 0,30 1,52 0,20 1,57 0,20 1,52 0,30 1,52 0,20 1,57 0,20 0,30 1,86 0,30 1,42 0,20 1,47 0,20 1,47 0,20 1,42 0,30 1,85 0,20 1,90 0,20 1,85 0,30 0,30 1,85 0,20 1,90 0,20 1,85 0,30 0,30 1,85 0,20 1,90 0,20 1,85 0,30 PLANTA DE ENTREPISO PRIMER NIVEL 11:15 COTA NIVEL PROYECTO: N - 0,17
GSPublisherVersion 0.2.100.100 CONCURSANTE: JUAN SEBASTIAN CLAVIJO LUNA CATEGORIA: DISEÑO DE ESPACIOS PROYECTO: EDIFICIO DE INNOVACION GNRL CONTENIDO: ESCALA: 1:75 N° PLANO: FECHA DE ENTREGA: 15-ABRIL-2024 10 11 12 13 14 15 16 17 18 10 11 12 13 14 15 16 17 18 1 1 4 4 2 2 3 3 A A F F E E B B C C D D A A B B C C 30,74 5,30 5,30 7,50 6,30 5,30 20,76 4,00 9,40 6,30 30,23 5,30 5,30 7,50 6,30 5,30 0,52 2,40 0,20 2,40 0,30 2,40 0,20 2,40 0,30 3,50 0,20 3,50 0,30 2,90 0,20 2,90 0,30 2,50 0,10 2,40 0,30 0,30 1,75 0,20 1,75 0,30 1,42 0,20 1,32 0,20 1,32 0,20 1,32 0,20 1,32 0,20 1,42 0,30 1,85 0,20 1,90 0,20 1,85 0,30 1,69 0,30 0,30 1,86 0,30 1,42 0,20 1,47 0,20 1,47 0,10 1,52 0,30 1,85 0,20 1,90 0,20 1,85 0,30 1,39 0,31 0,30 1,82 0,21 1,88 0,20 1,85 0,30 1,62 0,20 1,65 0,20 1,66 0,20 1,62 PLANTA DE ENTREPISO SEGUNDO NIVEL 12:15 COTA NIVEL PROYECTO: N - 0,17
GSPublisherVersion 0.2.100.100 CONCURSANTE: JUAN SEBASTIAN CLAVIJO LUNA CATEGORIA: DISEÑO DE ESPACIOS PROYECTO: EDIFICIO DE INNOVACION GNRL CONTENIDO: ESCALA: 1:75 N° PLANO: FECHA DE ENTREGA: 15-ABRIL-2024 10 11 12 13 14 15 16 17 18 10 11 12 13 14 15 16 17 18 1 1 4 4 2 2 3 3 A A F F E E B B C C D D A B B C C 31,48 5,30 5,30 7,50 6,30 5,30 21,79 4,00 9,40 6,30 31,32 5,30 5,30 7,50 6,30 5,30 0,30 1,75 0,20 1,75 0,30 1,42 0,20 1,32 0,20 1,32 0,20 1,32 0,20 1,32 0,20 1,42 0,30 2,90 0,20 2,90 0,69 0,31 0,60 0,30 1,52 0,20 1,57 0,20 1,52 0,30 1,52 0,20 1,57 0,20 1,52 0,30 0,30 1,29 0,30 2,40 0,20 2,40 0,30 2,40 0,20 2,40 0,30 3,50 0,20 3,50 0,30 2,90 0,20 2,90 0,30 2,40 0,20 2,40 0,30 PLANTA DE ENTREPISO TERCER NIVEL 13:15 COTA NIVEL PROYECTO: N + 6,00
GSPublisherVersion 0.2.100.100 CONCURSANTE: JUAN SEBASTIAN CLAVIJO LUNA CATEGORIA: DISEÑO DE ESPACIOS PROYECTO: EDIFICIO DE INNOVACION GNRL CONTENIDO: ESCALA: 1:75 N° PLANO: FECHA DE ENTREGA: 15-ABRIL-2024 1 1 4 4 2 2 3 3 A A F F E E B B C C D D A A B B C C 30,74 5,30 5,30 7,50 6,30 5,30 20,76 4,00 9,40 6,30 11,90 5,30 5,30 7,50 6,30 5,30 11,13 PLANTA DE ENTREPISO CUARTO NIVEL 14:15 COTA NIVEL PROYECTO: N + 9,00
GSPublisherVersion 0.2.100.100 CONCURSANTE: JUAN SEBASTIAN CLAVIJO LUNA CATEGORIA: DISEÑO DE ESPACIOS PROYECTO: EDIFICIO DE INNOVACION GNRL CONTENIDO: ESCALA: 1:75 N° PLANO: FECHA DE ENTREGA: 15-ABRIL-2024 1 1 4 4 2 2 3 3 A A F F E E B B C C D D A A B B C C 16,00 1,84 0,20 1,90 0,20 1,88 0,30 1,75 0,20 1,75 0,30 0,30 1,75 0,20 1,75 0,30 1,42 0,20 1,32 0,20 1,32 0,20 1,32 0,20 1,32 0,20 1,42 0,30 1,85 0,20 1,90 0,20 1,85 0,30 1,63 0,30 0,51 0,30 2,40 0,20 2,40 0,30 2,40 0,20 2,40 0,30 PLANTA DE ENTREPISO CUBIERTA 15:15 COTA NIVEL PROYECTO: N + 9,00
ITEM DESCRIPCION UNIDAD CANTIDAD GLOBAL VALOR UNITARIO VALOR PARCIAL 1 PRELIMINARES 1,1 Campamento de obra GL 1,00 860.000,00 $ 860.000,00 $ 1,2 Alquiler baño provisional MES 12,00 406.100,00 $ 4.873.200,00 $ 1,3 Cerramiento provisonal en polisombra 2m ML 50,00 6.951,00 $ 347.550,00 $ 1,4 Localizacion y replanteo M2 600,00 2.700,00 $ 1.620.000,00 $ 1,5 Instalación provisional de acueducto UN 1,00 106.989,00 $ 106.989,00 $ 1,6 Factura promedio de agua MES 12,00 200.000,00 $ 2.400.000,00 $ 1,7 Instalación provisional red electrica UN 1,00 400.000,00 $ 400.000,00 $ 1,8 Factura promedio de energia electrica MES 12,00 200.000,00 $ 2.400.000,00 $ 1,9 Descapote 0,50 M3 600,00 10.000,00 $ 6.000.000,00 $ 1,1 EXCAVACION MANUAL 1,10.1 Excavacion manual general M3 600,00 25.000,00 $ 15.000.000,00 $ 1,10.2 Retiro material M3 600,00 40.000,00 $ 24.000.000,00 $ SUBTOTAL 58.007.739,00 $ 2 CIMENTACION 2,1 zapatas de concreto de 1,00 x 1,50 x 1,00 M3 7,50 510.000,00 $ 3.825.000,00 $ 2,1.2 zapata de concreto corrida 1,00 x long x 1,00 M3 591,20 510.000,00 $ 301.512.000,00 $ 2,2 vigas de cimentacion en concreto = 0,30 x 0,30 x long ML 94,70 151.000,00 $ 14.299.700,00 $ 2,3 vigas en concreto de entrepiso primer piso de 0,30 x 0,40 x long ML 213,10 201.958,00 $ 43.037.249,80 $ 2,5 placa de entrepiso concreto 3000psi primer piso M2 420,13 157.000,00 $ 65.960.410,00 $ 2,6 placa de contrapiso concreto 3000psi M2 63,30 105.000,00 $ 6.646.500,00 $ 2,7 vigas en concreto de entrepiso segundo piso de 0,30 x 0,40 x long ML 253,10 201.958,00 $ 51.115.569,80 $ 2,9 placa de entrepiso concreto 300psi segundo piso M2 61,06 157.000,00 $ 9.586.420,00 $ 2,1 vigas en concreto de entrepiso tercer piso de 0,30 x 0,40 x long ML 273,04 201.958,00 $ 55.142.612,32 $ 2,12 placa de entrepiso concreto 300psi tercer piso M2 58,93 157.000,00 $ 9.252.010,00 $ 2,13 vigas en concreto de entrepiso cuarto piso de 0x30 x 0,40 x long ML 213,10 201.958,00 $ 43.037.249,80 $ 2,14 vigas en concreto de entrepiso cubierta de 0,30 x 0,40 x long ML 114,67 201.958,00 $ 23.158.523,86 $ 2,15 columnas metalica 0,60x0,30, mano de obra, equipo ML 200,00 204.295,00 $ 40.859.000,00 $ 2,16 Escalera sotano M3 7,00 426.000,00 $ 2.982.000,00 $ 2,17 escalera de circulacion M3 18,00 426.000,00 $ 7.668.000,00 $ 2,18 Ascensores publico y de carga M2 3,00 7.947.841,00 $ 23.843.523,00 $ SUBTOTAL 701.925.768,58 $ 3 MAMPOSTERIA No. 5 E =0.12 3,1 Muros en bloque sotano. H 3,10 M2 175,82 102.118,00 $ 17.954.386,76 $ 3,2 Muros en Bloque 1 piso. H 2,40 M2 153,32 102.118,00 $ 15.656.731,76 $ 3,3 Muros en Bloque 2 piso. H 2,40 M2 216,49 102.118,00 $ 22.107.525,82 $ 3,4 Muros en bloque 3 piso. H 2,40 M2 188,03 102.118,00 $ 19.201.247,54 $ 3,5 Muros en bloque 4 piso. H 2,40 M2 83,23 102.118,00 $ 8.499.281,14 $ SUBTOTAL 83.419.173,02 $ 4 PAÑETES 4,1 PANETE LISO SOBRE MURO e=1.5 CM M2 816,89 19.340,00 $ 15.798.652,60 $ 4,2 Filos y Dilataciones ML 408,44 102.118,00 $ 41.709.075,92 $ SUBTOTAL 57.507.728,52 $ 5 ACABADOS DE PISOS 5,1 Enchape de piso en Porcelanato 60 x 60 Beige M2 1933,86 107.786,00 $ 208.443.033,96 $ 5,3 Piso Baños en Ceramica de 0,45 X 0,45 M2 144,75 33.904,00 $ 4.907.604,00 $ 5,4 Guardescoba en porcelanato de 9 cmx 60 ML 1039,30 14.724,00 $ 15.302.653,20 $ SUBTOTAL 228.653.291,16 $ 6 CIELO RASOS 6,1 Cielo raso cocina y baño en drywall antihumedad M2 144,75 54.993,00 $ 7.960.236,75 $ 6,2 Cielo raso area social y habitaciones en yeso drywall M2 1933,86 54.232,00 $ 104.877.095,52 $ SUBTOTAL 112.837.332,27 $ 7 PINTURAS 7,1 Estuco mas pintura 3 manos muros interiores y exteriores M2 816,89 24.212,00 $ 19.778.540,68 $ 7,3 Filos y Dilataciones ML 408,44 102.118,00 $ 41.709.075,92 $ SUBTOTAL 61.487.616,60 $ 8 APARATOS SANITARIOS Y COCINA 8,1 SANITARIOS LINEA ECOLOGICA EN BAÑOS UN 31,00 210.900,00 $ 6.537.900,00 $ 8,2 CUBICULO PARA BAÑOS METALICO M2 20,48 761.600,00 $ 15.597.568,00 $ 8,3 LAVAMANOS BAÑOS UN 34,00 269.900,00 $ 9.176.600,00 $ 8,4 GRIFERIA LAVAMANOS MONOC JAVA COLOR CROMO UN 34,00 80.000,00 $ 2.720.000,00 $ 8,5 LLAVE TERMINAL 1/2" UN 8,00 38.600,00 $ 308.800,00 $ 8,6 REJILLA DE VENTILACION UN 8,00 12.000,00 $ 96.000,00 $ 8,7 REJILLA SIFON DE PISO PLASTICA 3" X 2" UN 8,00 19.800,00 $ 158.400,00 $ SUBTOTAL 34.595.268,00 $ 9 CARPINTERIA EN MADERA 9,1 Puerta en madera corredera de 1.00 x 2,30 mt UN 34,00 188.818,00 $ 6.419.812,00 $ 9,2 Puerta en cristal de 0.90 x 2,30 mt UN 11,00 1.773.850,00 $ 19.512.350,00 $ SUBTOTAL 25.932.162,00 $ 10 CARPINTERIA METALICA Y ALUMINIO 10,1 PASAMANOS EN TUBO 2"EN ESCALERAS ML 48,00 42.000,00 $ 2.016.000,00 $
PROYECTO GNRL
PRESUPUESTO
10,2 VENTANERIA EN ALUMINIO EN FACHADAS, M2 130,92 620.000,00 $ 81.170.400,00 $ 10,3 BARANDA BALCON EN MADERA CON MARCOS DE VIDRIO EN FACHADA ML 137,37 493.529,00 $ 67.796.078,73 $ SUBTOTAL 150.982.478,73 $ 11 RED ELECTRICA, GAS, SANITARIA 11,1 Instalaciones y red de Gas 11,1.1 Punto de salida de gas UND 2,00 $20.769 $41.538 11,1.2 Accesorios en cobre (codos, uniones, tapones, valvulas) UND 30,00 $4.850 $145.500 11,2 Instalaciones hidrosanitarias 11,2.1 Acometida, armario, medidores ML 6,00 $1.000.000 $6.000.000 11,2.2 Tanque de agua 500L UND 2,00 $260.000 $520.000 11,2.3 Accesorios (Adaptadores, bujes, codos, tapones, uniones ) UND 52,00 $5.200 $270.400 11,2.4 Tuberia pvcp 1/2" ML 152,00 $9.027 $1.372.104 11,2.5 Puntos (Lavadora, lavadero, baños, cocina) UND 14,00 $50.000 $700.000 11,2.6 Accesorios (Adaptadores, bujes, codos, tapones, uniones ) UND 54,00 $5.200 $280.800 11,2.7 Tuberia PVC S 2" ML 154,00 $18.440 $2.839.760 11,3 Instalaciones y red electrica 11,3.1 Puntos UND 17,00 $160.000 $2.720.000 11,3.2 Tablero de circuitos UND 1,00 $2.000.000 $2.000.000 11,3.3 Derivacion caja de inspeccion frente inmueble AE 239-1 DE 9 A 15KW UND 1,00 $718.751 $718.751 11,3.4 Acometida de circuito cable cu 3x8 + 1 x 10 awg 1" pvc ML 5,00 $70.623 $353.115 11,3.5 Barraje premodelado 6 salidas UND 1,00 $322.246 $322.246 11,3.6 Tuberia pvc conduit 1" ML 98,00 $17.276 $1.693.048 SUBTOTAL $19.977.262 12 ASEO Y OBRA EXTERIOR 12,1 Aseo General M2 530,00 5.000,00 $ 2.650.000,00 $ 12,2 SUBTOTAL $1.535.325.819,88 SUBTOTAL Administracion 8% 122.826.066 $ Imprevistos 3% 46.059.775 $ Utilidad 4% 61.413.033 $ Iva sobre utilidad 19% 11.668.476 $ TOTAL 241.967.349 $ 1 PRELIMINARES 2 CIMENTACION 3 MAMPOSTERIA No. 5 E =0.12 4 PAÑETES 5 ACABADOS DE PISOS 6 7 PINTURAS 8 APARATOS SANITARIOS Y COCINA 9 CARPINTERIA EN MADERA 10 CARPINTERIA METALICA Y ALUMINIO 11 RED ELECTRICA, GAS, SANITARIA 12 ASEO Y OBRA EXTERIOR SUBTOTAL AIU

Turn static files into dynamic content formats.

Create a flipbook
Issuu converts static files into: digital portfolios, online yearbooks, online catalogs, digital photo albums and more. Sign up and create your flipbook.