Waterloo Architecture Portfolio | 2024

Page 1


Selcen Elif Aydar

Hello!

My name is Selcen Aydar, and I am currently a thirdyear architecture student at the University of Waterloo.

My passion for architectural design is driven by its potential to serve communities. I am deeply interested in the transformative power of architecture—how it shapes our experiences, serves as a form of expression, embodies values and traditions, and responds to its environment, landscape and people alike.

Through drawings and renderings, I aim to create thoughtful spaces that fulfill communal functions and enhance individual experiences.

The following is a selection of my academic work. I hope you enjoy!

CV

Achievements

Jan 2021-Present

F RMLab – University of Waterloo

Cambridge, ON

Nov 2021

Feb-May 2021

Experience

Jun-Aug 2024, Oct-Dec 2023

2022-2023

Jan-April 2022

2019-2020

Dec 2018-May 2019

Email: seaydar@uwaterloo.ca

Phone: (519) 249-1069

LinkedIn: https://www.linkedin.com/in/selcen-aydar/

• Collaborated with various students to design and fabricate an installation showcased at DesignTO

Concrete Canoe Club Finalist – University of Waterloo Waterloo, ON

• Worked with a multidisciplinary team of engineering students to design, construct, and compete with a concrete canoe at a national competition

Innovator – Zero Experience – University of Waterloo

Remote

• Gained essential skills for entrepreneurship, including problem-solving, innovation, and strategic thinking

• Developed an understanding of the start-up process, from identifying realworld problems to creating and prototyping practical solutions

Architectural Intern – ABBARCH Architecture Inc.

Cambridge, ON

• Revised Revit model and floor plans to align with client and supervisor needs

• Played a key role in preparing detailed drawing packages and Revit sheets for an ongoing prototypical project

• Developed and implemented strategies to improve workflow efficiency for office tasks

Bridge Center for Architecture and Design – University of Waterloo

Cambridge, ON

• Worked with a team of students to plan and organize school events

• Assisted with the publication of the student-run website

Student Event Volunteer – University of Waterloo School of Architecture

Cambridge, ON

• Coordinated with classmates to organize student events and orientations

• Lead Q&A sessions and assisted prospective students in resolving their questions and concerns

Floater – Thrift on Kent Kitchener, ON

• Handled and processed merchandise in the warehouse and on floor in an efficient and ordered fashion

• Worked efficiently by organizing and preparing donated items to be sold

• Excelled in various other positions such as customer service and cashier

Student Intern – Built by Engineers (BBE)

Cambridge, ON

• Designed floor plans for local commercial and institutional projects using AutoCAD

• Assisted with other office administrative tasks such as compiling and filing construction documents

Education

B.Arch University of Waterloo 2021-Present Second year student

Jacob Hespeler Secondary School 2014-2019

Specialized High Skills Major in Visual Arts

Skills

Digital

Rhinoceros 7

Enscape

Grasshopper

Illustrator

Photoshop InDesign

AutoCAD

Sketchup

Revit

Analog

Dynamo Hand drafting

Sketching

Model Making

3D Printing

Laser cutting

CNC Milling

Painting

Stained glass

Other

Microsoft Office

G-Suite

AI PromptEngineering

W2323 Yonge Street Suite 700 Toronto, ON M4P 2C9

416.340.8441 T abbarch.com W

October 17, 2024

To Whom It May Concern:

Selcen Aydar was employed as an Intern with ABBARCH Architecture Inc. from June 10, 2024, to August 23, 2024.

Her Duties as an Intern Technologist included Complying with the policies, directions and instructions given to her by the company its designated representatives. Furthermore, Selcen provided broad assistance to the project managers and Architects in the practice. She contributed drafting support to projects in construction; assisted with design presentations; and assisted with design development and construction documents.

Selcen is very reliable, dependable and processes strong work ethic.

We would be happy to re-employ Selcen Aydar if the opportunity arouses, and I consider her to have been a valuable member of the team.

Should you require additional information, do not hesitate to contact me at 416-340-8441.

Yours truly, ABBARCH Architecture Inc.

Mehdi Rassaf, Principal M.Arch. OAA AIBC AAA SAA MAA NSAA MRAIC LEED Green Assoc.

CONTENTS

FRENCH RIVER WATERSHED STEWARDSHIP CENTER

Expressing landscape sensitivity through architectural design and purpose

RIVER STREET LIBRARY

Enhancing a library with integrated community workshop space

THE TUNNEL

Creating spatial journeys driven through sensory experiences

CAMBRIDGE BOULEVARD HOUSING

Fostering connectivity and integration between community housing and the broader social milieu

EROSION

Visualizing a landscape transformation process

French River Watershed Stewardship Center

Water Research and Conservation Center, Pine Cove, French River, ON

Studio | 2B Spring 2023

Softwares | Rhino 7, Illustrator, Photoshop

Supervisors | Lola Sheppard, Di Tang

Situated on the Canadian Shield, the French River Watershed Stewardship Center is a research and community space dedicated to studying the French River’s water quality in response to challenges like pollution and climate change. As Canada’s first designated heritage river and now a recreational waterway, the French River holds both ecological and cultural significance, which the center seeks to preserve and highlight.

The facility integrates its research mission with the recreational activities of the provincial park, offering programs that connect restoration efforts with local engagement. These initiatives aim to deepen the relationship between people and the region’s natural environment while addressing the pressing need for conservation

With thoughtfulness for the landscape in mind, the buildings registers the landscape’s natural deviations and draws from one of its main phenomenon: the transformation of the landscape due to erosion (a concept representationally explored on page 34). Each building aims to carefully respond to its environmental context, creating a space where the natural environment and human stewardship come together to protect and celebrate a vital ecosystem.

View: Exterior Approaching

Fissures and separation of rocks occurs as granite transforms over time due to erosion and other natural phenomena. Using this as inspiration, the separation of the rock creates volumes of which spaces can be separated and connected.

Buildings that relate to the river are physically and visually connected to it, allowing direct observation of the water and fostering moments of inspection, relaxation and contemplation.

The research facility registers the throughout the site. Located along allows as little alteration to the site possible.

the natural varying elevations the rocky shores, this further site and the historic granite as possible.

Given the site’s cold temperatures caused by constant winds and its higher elevation, the main buildings are strategically positioned to act as a barrier against the prevailing westerly winds, creating a favorable microclimate for outdoor gathering spaces.

Similarly, living lodges are located deeper into the site where the lower elevation and the density of foliage protect the site from the cold winds and allow a more comfortable living zone. Top: Site Response Diagram

A. Reception

B. Lounge Area

C. Sunken Fireplace

D. Dining

E. Janitorial

F. Storage

G. Pantry

H. Kitchen

I. Patio

J. Exhibition

K. Reception

L. BioChem Lab

M. Hydro Lab

N. Specimen Room

O. Conference Room

P. Cafeteria

Q. Open Research Room

R. Offices

Isotope sampling kits, currently provided by the University of Nippissing north of the river, allows local volunteers to contribute to the research in measuring oxygen and hydrogen isotope levels and changes in water quality. Supervised hiking around the and visitors opportunity the sites history while ensuring alteration

A.
H.

hiking activities on trails the site engage residents visitors and provide the opportunity to actively learn about history and significance ensuring no harmful alteration or damage.

The open lab offers civilian science programs and a dedicated space for processing isotope samples, enabling participants to engage in hands-on exploration of the French River’s hydrology.

Exhibition space provides information on the different program and research studies that take place and educates visitors about the French River’s ecological history.

French River Clean-up event, an existing bi-annual event just north of the Georgian Bay, is extended upriver where volunteers can help maintain the waterway, especially within the cove, where garbage build-up is common.

Cross Section

Longitudinal Section

02

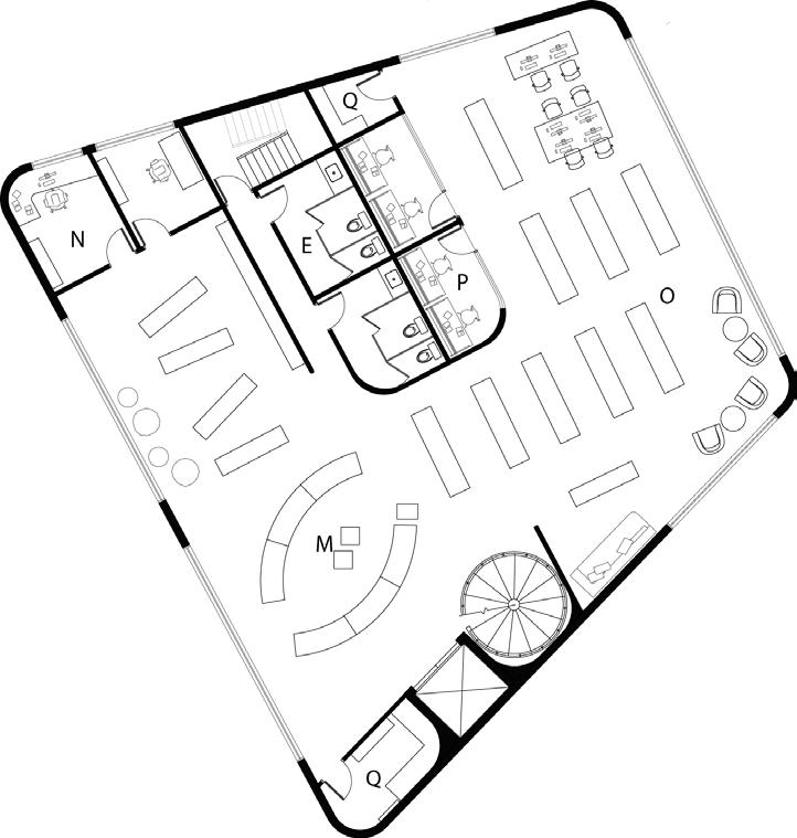
River Street Library

Public Library and Community Space, River Street, Toronto, ON

Studio | 1B | Spring 2021

Softwares: Rhino 7, Enscape, Grasshopper, Illustrator, Photoshop Supervisor | Rick Andrighetti

River Street Library re-imagines the traditional library as both a repository of knowledge and a dynamic space for cultural exchange. Located near the intersection of King Street West and Queen Street in Toronto, the library integrates a pottery workshop and gallery, blending artistic practice with learning and community engagement. It serves as a sanctuary within the bustling urban environment, offering a space where users can reflect, create, and connect.

The library’s design draws inspiration from craftsmanship and materiality. A parametric brick facade weaves a contemporary aesthetic with tactile warmth, inviting curiosity and interaction. Inside, the use of recycled brick walls in various textures and patterns adds depth and character, grounding the space in sustainability and history.

The highlight of the design is a kiln-inspired cafe, where the circular form echoes the building’s focus on creativity and transformation, while providing a cozy, communal space for relaxation.

By merging traditional elements with modern techniques, River Street Library fosters a harmonious relationship between its architecture, programs, and users. It not only offers a place to read and create but also cultivates an atmosphere of inspiration, making it a beacon of culture and connection within the city.

Segment Drawing: Cafe Area

Interior View: Second Floor Clay and Ceramics Workshop
Site Plan

A. Pottery/Ceramic Gallery

B. Cafe

C. Kitchen

D. Storage

E. Restrooms

F. Checkout

G. Quiet Space

H. Administration Rooms

I. Multi-Use Room

J. Conference Room

K. Pottery Studio

L. Storage

M. Children’s Section

N. Office Space

O. Main Library Space

P. Study Rooms

Q. Utility Rooms

Ground Floor

The Tunnel 03

Pedestrian Bridge in the Dundas Valley Conservation Area, Hamilton, ON

Studio | 1A Winter 2021

Softwares | Rhino 7, Enscape, Illustrator, Photoshop

Supervisor | Jaliya Fonseka

The Tunnel is a pedestrian bridge that not only connects a trail across a stream but also amplifies the sensory experience of the surrounding forest, waterfall, and stream for those crossing it. Designed with a steel encasement, the bridge captures and reflects the natural sounds of the environment against its cave-like geometric canopy, creating an immersive and atmospheric auditory experience.

The bridge’s foundations are strategically placed beneath the center of the deck at two evenly spaced points, mimicking the function of a speaker. This allows for slight structural movement, enhancing sound reverberation and amplifying the natural acoustics of the landscape. The Tunnel transforms the act of crossing into a unique sensory journey, enveloping users in the sounds of the forest as they move through its dynamic structure.

Longitudinal Section
Top: Conceptual Diagram Right: Exploded Axonometric
A. Steel beam foundation
B. I-beams
C. HSS
D. Steel bar grating
E. Thin sheet metal
F. 1” Steel pipe
G. 1 37/64” Steel pipe
H. 1 3/16” Steel pipe

Detail Plan

Interior View
Exterior Collage

Cambridge Boulevard Housing 04

Affordable Housing Project in Galt, ON

Studio | 2A Fall 2022

Softwares: Rhino 7, Enscape, Illustrator, Photoshop

Supervisor | Val Rymnimeri

Cambridge Boulevard Housing is a co-operative housing initiative designed to tackle housing alienation and foster a sense of belonging. Located in the heart of the downtown core, the project not only provides housing but also serves as a bridge between residents and the broader community. By prioritizing open, accessible design and integrating public-facing spaces, the housing complex encourages interaction, creating opportunities for informal encounters that combat the isolation often faced by lower-income households and post-pandemic families.

The design maximizes usable outdoor space, turning the site into an inviting, multi-functional hub that serves both residents and the surrounding community. Shared social spaces are at the heart of the project, including an indoor-outdoor kitchen and café, a dance studio, and various community support programs that create a welcoming hub for residents and the broader community, seamlessly blending housing with vibrant public life

This deeply affordable, locally managed housing project accommodates a diverse group of residents, including students and small to medium-sized families. The complex integrates commercial spaces to support local businesses and provide essential services. By combining housing with a rich variety of uses and spaces, Cambridge Boulevard Housing becomes a catalyst for community growth and inclusivity.

Site Conditions: Different elevations separate the site from East to West.

Preliminary Massing:

Commercial/service spaces placed longitudinally along site to encourage pedestrian circulation and preserve as much site area as possible.

Housing: Residential floors extended upwards.

Site Condition:

Segments subtracted to enhance accessibility and create an inviting space. Terraces along the shorter wing offer semi-private outdoor areas while connecting to the social space. Stairs link all site levels, forming a piazza and further activating the site.

Site Manipulation:

Slab extended to provide access to second floor public spaces and to create parking underneath.

Final Site:

The final volume is designed to maximize public circulation and engagement, preventing the site from becoming isolated from its social context. A slightly sunken area in the square doubles as an ice rink in winter, ensuring yearround activity.

Ground Floor
Second Level
Roof
Bedroom Student Unit
Apartment
Bedroom Unit
Bedroom Student/Youth Unit
Bedroom Unit 78m2
Exterior View: Plaza
Exterior View: Plaza Rink

Exploded Programmatic Axonometric

Section Fragment

Cross Section

Erosion 05

Modeling Project Depicting a Landscape Transformational Process

Studio | 2B | Spring 2023

Materials | Steel Fencing, Sheet Metal

Supervisor | Faye Sifei Mo

Crafted by meticulously shaping rigid steel fencing and other metal materials, “Erosion” captures the transformative effects of water-driven deterioration. The sculpture reflects processes such as cracking, separation from repeated freeze-thaw cycles, weathering, and the gradual corrosion caused by fluctuating water levels. It also evokes the organic presence of algae and lichen, which thrive and contribute to these changes over time.

Past Projects

Hill House

Community Housing for Students, Galt, ON

Studio | 1A | Fall 2022

Softwares | Rhino 7, Enscape, Illustrator, Photoshop

Supervisor | Rick Andrighetti

Site Collaborators | Nathan Man, Solo Raelisonandrasana, Alisha Ali

Axonometric Drawing
Site Plan Left: Concept Diagram
West Elevation
South Elevation
Longitudinal Section
Cross Section

Thank you!

seaydar@uwaterloo.ca (519) 249-1069

https://www.linkedin.com/in/selcen-aydar/

Turn static files into dynamic content formats.

Create a flipbook
Issuu converts static files into: digital portfolios, online yearbooks, online catalogs, digital photo albums and more. Sign up and create your flipbook.
Waterloo Architecture Portfolio | 2024 by seaydar6227 - Issuu