UsingSquare: Stack
Stack is a multi-storey pavilion offering a consistent floorto-floor experience with tension - dark interior vs. light exterior. The asymmetry of the offset creates a large tapering atrium, promoting circulation and a more unified vertical experience.
typical plabn


UsingSquare: Condenser
Condenser building’s offset-pagoda form creates a clear division of spaces - circulation, active, and leisure. The elegant lean creates a large, tapered atrium on one side for vertical circulationilluminating the wire-hung ceremonial staircase which ventures further from each floor. The other side offers ample sunlight for common areas with wide balconies for horizontal circulation.






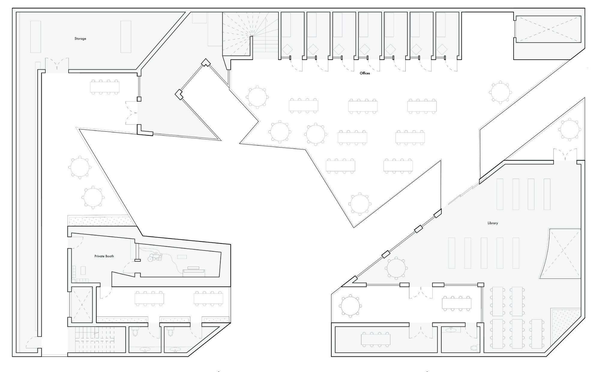
CavitiesandCuriosity
How can a 12” x 16” x 24” volume be manipulated using a contemporary art piece that can be duplicated 4 times, rotated or scaled twice, and skewed once? With emphasis on the negative, the unassuming, largely blank exterior lacks orientation, creating skepticism in viewers. The seemingly benign exterior shapes extend, clash, and combine to create a dynamic, chaotic labyrinthian interior void that is completely hidden at first glance.






CavitiesandCuriosity: Community Music Center
Using the labyrinth from Cavities and Curiosity, this community music center in Downtown Los Angeles contains obscure geometry and sharp angles to create a structure that is dynamic and inviting. The diagonal slash allows for efficient travel from the perpendicular sidewalks that leads to an unexpected invitation into a community of art and music. The ample balcony space promotes interpersonal engagement while simultaneously promoting the music center and enticing the public.













Pavilion
Located on Irish Hill, San Francisco, this pavilion is inspired by Lauren Marsolier’s “Transition - Part 3”, in which she creates tension by manipulating perspective through competing angles and low-contrast shadows. The large suspended plane serves as a dividing threshold, creating a grey space underneath, with a 20’ ceiling height. The tapered cones of varying size and height pierce the plane, connecting the two levels, and vertical circulation is experienced via natural hillside or spiral concrete steps.



Triptych
Adjacent to the pavilion and inspired by Lauren Marsolier’s “TransitionPart 3”. This research center/archive explores grey space and is evenly divided, with each side building having unique purpose. Colors, texture and site lines unify the structures, with the central structure acting as a unifier, bridging both sides vertically and horizontally with a multi-storey atrium and wide catwalks and stairways at each floor, promoting unobstructed flow.




TranslatingArt
The following slides illustrate the progression of a three-part project based on works from Torkwase Dyson.
Part1
A series of drawings that examine separation, boundary, thickness, mass, void, form, space, circulation, and order in two dimensions. I experimented with the evolution of organic shapes into geometric forms formed from visual cues of some components.
Part2
Translates2Doverlay drawings into 3D models. The concept of stack and depth allowed me to imagine a dynamic 3D space that is unified with the 2D overlay but feels wholly unique, leveraging multiple geometries to suggest broader geometry using the negative space.
Part3
Construction of a Duplex was the culmination of the design exercise.




TranslatingArt: Duplex
A peer-directed design challenge to create a dwelling with two roommates.(1) A highly social rice farmer who owns ducks and prefers a warm climate, (2) A highly introverted quantum computer repairman who owns spiders and prefers a cold climate.
The concept features two large bedroom spaces with ample storage and display features, separated by a rice paddy. The elevation differences help naturally manage climate and create two uniquely hospitable environments: darker, more isolated and lighter with exposure to the world. The common area being an area of compromise with opportunities for personal isolation.


Unroll
The Sony Playstation 4 controller features many compound curves, rivets, joysticks, and buttons. Unrolling this into a 2D drawing as efficiently as possible was challenging. My approach was to look for any areas of symmetry and break them down individually to find other areas of symmetry. I found this mirroring created fewer cuts and folds.



Gold
Award - Scholastic, 2021. Displayed in Pacific Grove Art Center,


AP 2D Art and Design Portfolio, 2021. 1 of 15 in collection, score of 5 received on AP

