M Arch Portfolio

Page 1


My Story

For most of my life, I have worked in the quick-service restaurant industry as a part of my father’s company, Arthur’s Garden Deli, Inc.

I do not have an architectural background, but have always been inherently fascinated by the field. I received my bachelor’s degree in Business Management from Clemson University in 2011.

I recently completed the 2024 YArch Summer Architecture Program at the University of Illinois at Chicago and it made me even more certain that architecture is the career for me.

I am intrigued by fine details, the arts, sustainability and structural design. After many years of deep contemplation, I have decided to follow my passion and change career paths to pursue the field of architecture.

Project 1

Summer Home

Summer Home

This project was completed during the 2024 YArch 1 month architecture program at the University of Illinois at Chicago (UIC). We were each tasked with designing a 1600 sq ft Summer Home.

I designed a Summer Home with Panoramic Views.

My home is set on a mountainous, rocky slope along a rushing rivers-edge in Montana, surrounded by tall thin pine trees and wild greens. 3 sides of the home are completely made of floor-to-ceiling window panes. The windows on the 2nd level are on a track that completely slide open, connecting the indoors with the outdoors.

Residents enter the home on a bridge over the sloping terrain.

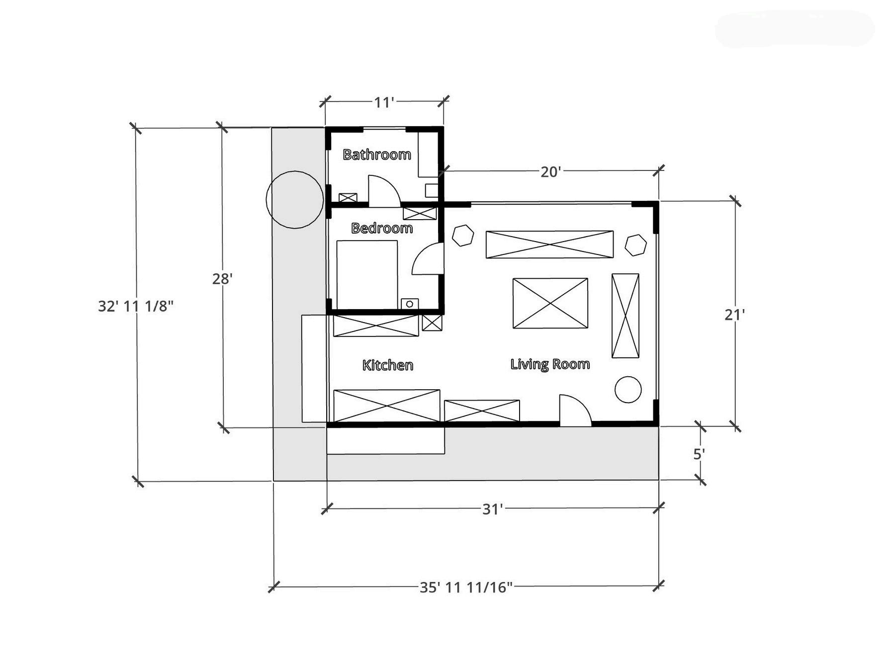
2nd Level

AutoCAD Floor Plans

I intentionally did not include interior walls in the 2nd level to prevent blocking of the panoramic views. It’s also a minimalist layout that creates plentiful openness.

In my final 3D rendering design, I decided to eliminate the spiral stairwell to give residents better access to the balcony. I also decided to double the width of the back portion of the balcony to give residents necessary space to convene and overlook the surrounding scenery.

AutoCAD/Photoshop Elevations

The front and back elevations showcase the cantilevered sides of the home and the dramatic change of material between the two. The front of the home consists of a dark rusty metal, while the other 3 sides of the home are floor-to-ceiling sliding window panes.

The AutoCAD drawings were embellished with various textures via Photoshop to show necessary detail.

Front Elevation
Back Elevation

The side elevation shows how guests would enter the home on a bridge, creating a unique and suspenseful entrance.

Side Elevation

AutoCAD Sections

The sections of the Summer Home show a layout of the home’s interior The 2nd level is for scenic views, cooking meals and dining and a space to convene.

The glass panes on the 2nd level are all on a track that slide completely open. So when the hosts are cooking and hosting a dinner party, the guests feel as if they are eating outside, accompanied with amazing scenery. The 1st level is quite small and a space for the hosts to rest.

As I progressed with the project, I continually made changes to the interior layout.

Front Section
Side Section

Physical 3D Model

I constructed this model out of 1/4" white foam board and 1/4" balsa sticks that were spray painted white.

The scale of the model was 1/4" = 1'.

This part of the project was very challenging but also exciting. It gave myself and everyone in our program a clearer idea of my design.

3D Renderings

This part of the project was competed, on my own, after the UIC YArch Program concluded.

It gives a much clearer idea of my design compared to the physical foam board model. Reviewers can now envision the materials, color scheme and flow of the house much clearer. I was able to draw and input furniture, plants and other accents into the home to make it more realistic.

In this phase, I removed the spiral stairwell that was awkwardly blocking the view and rear balcony access. Instead, I put a diagonal stairwell that runs along the interior wall in the front of the home.

All 2nd level window panes are on a track and slide open.

Grand entrance when guests enter he home through the tall double doors and see the panoramic views or the 1st time.

1st level is where the hosts rest and where the restroom is.

When all windows are slid open, he person cooking and guests can eel as if they’re having an outdoor dining experience.

Project 2

Contemporary Arthur’s Garden Deli

AutoCAD/Photoshop Elevation

It’s been 40 years since our restaurant company, Arthur’s Garden Deli, Inc. has added a new location. In that time, restaurant design and industry trends have drastically changed to fit today’s fast-paced culture.

A quick-service restaurant industry trend I have noticed, is the elimination of dining rooms and focusing solely on drive-thru, online take-out and delivery. Today’s culture strongly values convenience.

My design showcases a quick-service restaurant that would emphasize today’s customers needs and would give them a quick enjoyable experience, without losing our company ’ s identity.

drive thru

rder Screens (2)

aping Area

trance

Station

stroom

d Prep Table

yment Drive-Thru Window

rder Prep Station

d Refrigerator

der Prep Station

Window 2

oda Machine

nks Station

a Station

der Station

da Station

rance

o Dining Area

Kitchen Flow

The kitchen in this design keeps everything in close the amount of footsteps e double-sided fridge is rig and would give prep emp more food product, when stations would have fridg

This kitchen layout would All competed orders wou they need to go, which w impact on order prep tim

Entrance Appeal

The entrance to the restaurant is the most critical component of displaying a restaurant’s culture. It oftentimes is the difference in whether a customer decides to stop in.

All of our current Arthur’s locations place an emphasis on beautiful landscaping. I wanted to make the entrance to this location very inviting and casual.

The entrance to this design has beautiful flowerbeds that also act as a barrier to drive-thru traffic, 2 small trees integrated into the patio for natural shading, loose hanging vintage amber lights, standing tables and 2 benches for quick casual eating. It also features large windows that allow you to see right into the building.

Kitchen Viewing & Natural Ligh

While customers are waiting in the drive-thru line to pla order, they can be entertained by seeing the inner-wor the kitchen through the large window panes on the sid building.

When a kitchen has no windows, it makes the workpla very enclosed. The large windows also give the restau fresher appeal to customers when they see lots of natur shining through the building and will give the employe much brighter workplace.

Project 3

Tiny Home

Tiny Home

The following project is a tiny sustainable home I designed. The design primarily consists of concrete, wood and glass - a low-maintenance, eco-friendly materials.

As the housing supply crisis continues, it is more important tha ever to consider reducing the amount of raw materials neede for homes and using local recycled raw materials, to make th home lower-cost, resourceful and sustainable.

3D Renderings

The home would run on solar power and would be heated by a hanging fireplace. The kitchen, though small, has ample space for prepping small meals and an in-wall wooden dining table with stool seats that would save space.

The home is mainly comprised of thick concrete, many windows of various sizes and would be set in a secluded open section of pine for that would require little-to-no tree removal.

Since the majority of the structure is concrete it would provide the hom with significant insulation and heat protection. The numerous large windows in the home would give residents abundant natural lighting and views to the outdoors.

Abundant natural lighting with the plentiful large window panes, creating a home that is highly dependent on nature

Kitchen Detail

Small space with 2 prep counters and sufficient cabinetry. Also, the area has ambient natural lighting with several large window panes. It also includes a small dining area with an in-wall dining table that conserves space and gives residents a view to the outdoors, while eating.

Patio Detail

With this being a tiny home, I felt there needed to be a space for some solitude for the residents. This area would give them some space to be by themselves, read a book, meditate or connect with nature. The tree that grows through the patio creates a shaded area and a habitat for birds and other nature.

Project 4

Photography

The following photographs are pictures I have taken over the years that display architectural elements that intrigued me.

Institute of Design Chicago, IL

The light fixtures create a leading line all the way down the corridor.

US Post Office - Chicago Loop Chicago, IL

Passerby can see all the way through this near y all-glass post office creating a stunning visual in a downtown Chicago plaza The height of the building also makes it stand out amongst the surrounding high-rises. Also, the minimal smooth black metal framing pulls it all together beautiful y and gives it an industrial fee .

Chicago, IL

The interesting curved concrete exterior and repeated rounded window frames gives this assisted living center an appearace of something you would see in a post-apocolyptic film.

Raymond Hilliard Homes

Portfolio

Turn static files into dynamic content formats.

Create a flipbook
Issuu converts static files into: digital portfolios, online yearbooks, online catalogs, digital photo albums and more. Sign up and create your flipbook.
M Arch Portfolio by scottwolber - Issuu