

QUALIFICATIONS▲ EXPERIENCES
We elevate our projects through design intelligence and technical excellence.
Cross-Pollination
The benefits of studio organization
Mixed-Use
Privacy & Light
Comfort & Livability
Contextual Design
Affordability
Layout
Civic
Transparency
Presence
Durability & Resiliency
Sustainability
Adaptability
Retail & Commercial
Brand Expression
Customer Experience
Easily Reconfigurable
Ease of Operation
Digital Integration
Healthcare
Stress/Trauma Reduction
Flexibility for Growth
Hygiene & Separation
Streamlined Efficiency
Wayfinding & Accessibility
Education
Safety & Security
Engaging Environments
Acoustics & Focus
Community &Identity
Technology
Ideas and innovations to flow freely between studios. This cross-pollination enriches each project, blending specialized expertise with fresh perspectives to create more thoughtful, adaptive, and future-ready architectural solutions.
Client Team
Expertise
Joshua Burdick Founding Principal Creative Director

SBLM: Core Team
George Fanous Principal Mixed-Use Director

David Jaffoni Project Architect
Support
Adam Demler BIM Manager

Sonya Smith Project Manager


Anthony Koehler Principal Design Director

Oriel Mor Quality Control

Trusted Team of Consultants
Jardim
New York, New York
Client: Centaur Properties
Address: 527 West 27th Street, New York, NY
Size: 90,000 SF, 36 Units

in brief
An 11-story twin-tower oasis nestled along the High Line in West Chelsea, Jardim offers ultra-private residences surrounding a serene, multi-level garden— the inspiration for its name. Within this lush landscape, concealed from the busy city, lies a suite of refined amenities, creating a rare blend of tranquility, luxury, and architectural elegance.







design concept
While neighboring buildings embraced hyper-modern designs and high-tech materials, Jardim’s palette was rooted in timeless elegance. Materials were chosen for their craftsmanship, hand-made character, warmth, and texture—elements that evoke authenticity. Every finish was selected to endure New York’s weather, wear, and energy, aging gracefully amidst the city’s constant motion.


Jardim


the oasis
At the heart of Jardim is its namesake garden—a true escape from the city’s relentless pace. Immersed in its layered greenery, you step outside of time, away from noise, screens, and schedules. It’s a form of sensory reset— tranquil, grounding, and quietly transformative in the midst of New York’s chaos.



The Olivia
New York, New York
Client: MD Carlisle
Address: 315 West 33rd Street, New York, NY
Size: 600,000 SF, 333 Units

in brief
The Olivia pioneered large-scale mixed-use development on Manhattan’s West Side. Combining luxury residences, offices, and retail, it introduced amenity-rich living—fitness center, rooftop lounge, and concierge services—uncommon at the time. Its scale, design, and proximity to Penn Station helped catalyze the area’s transformation into a vibrant residential corridor.

location location location
The building capitalizes on its elevation and orientation to frame sweeping city and river views. Expansive glazing and strategically placed amenity spaces transform the skyline into a defining architectural feature, connecting residents to the city’s energy and dynamic urban landscape.






mixed-use efficiency
The building’s design maximized retail efficiency by incorporating an offset core and a transfer floor that allowed stairs to pass unobtrusively through the retail floorplates.

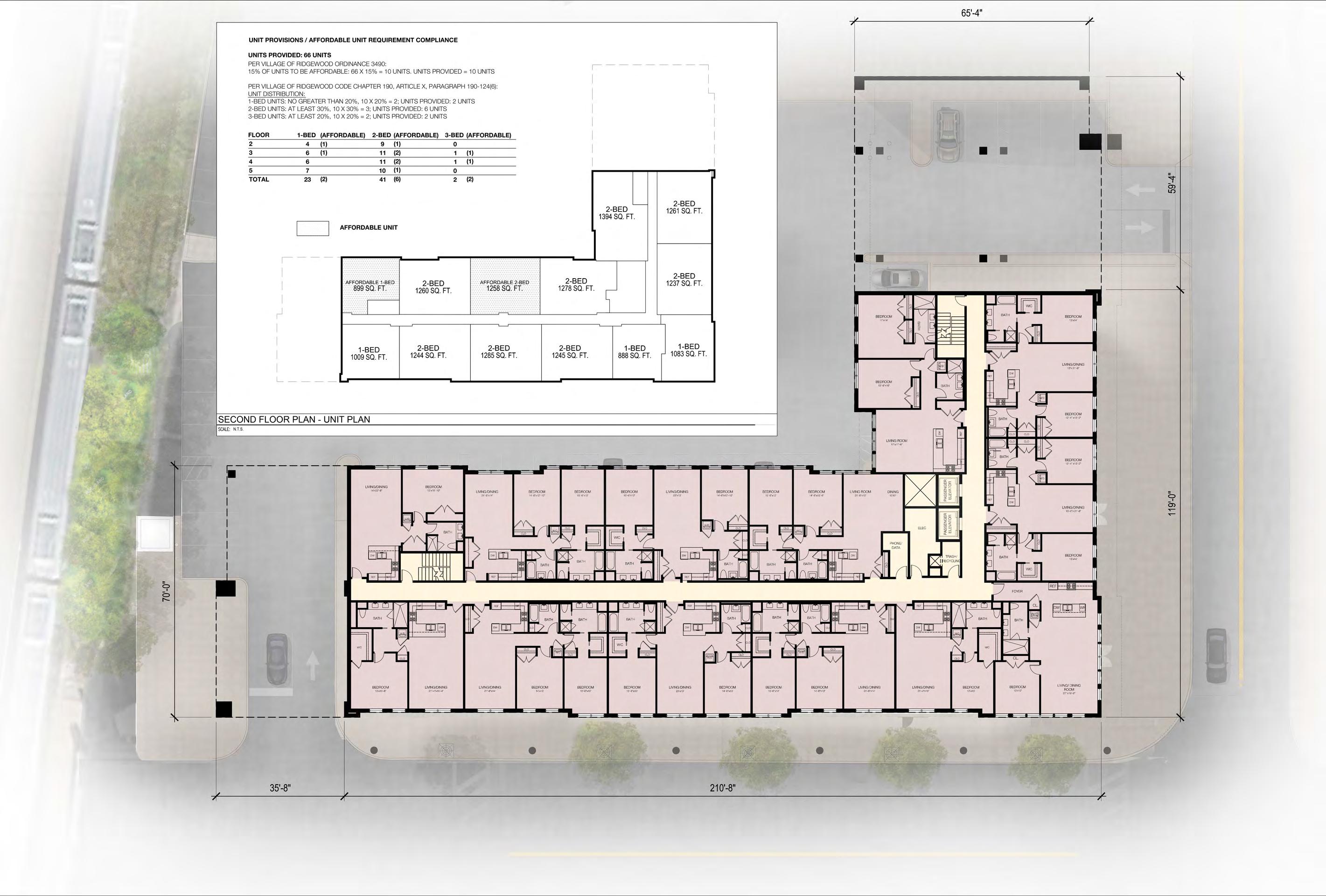
The Benjamin Ridgewood, New Jersey
Client: Onyx Equities
Address: 1 Franklin Avenue, Ridgewood, NJ
Size: 103,000 SF, 70 Units in brief a contemporary response that honors the architectural language of the neighborhood, integrating thoughtfully designed units, modern lifestyle amenities sited with proximity to the train, shops, and restaurants of the village center

a good neighbor the village’s historic buildings reflect timeless architectural styles and community heritage. Preserved with original materials and detailing, they contribute to a cohesive streetscape and a strong sense of place. Because the Benjamin’s design fits in, rather than stands out, it was welcomed into the community.







design concept
The design for The Benjamin won swift approval from Ridgewood’s strict planning board. By arranging the massing to conceal parking, improve pedestrian flow, and align with the neighborhood’s character, SBLM addressed key concerns. Its standout achievement— an extra floor despite a firm 50’-0” height limit— was made possible by carefully leveraging the site’s sloping topography and tightly coordinating building systems.






Jersey City, New Jersey
Client: Coalco
Address: 50 Dey Street, Jersey City, NJ
Size: 400,000 SF, 202 Units
in brief a balanced preservation of the industrial character with modern residential design standards, ensuring spatial efficiency, natural light optimization, and compliance with current codes while transforming the historic complex into a vibrant mixed-use community.

CanCo Lofts
community
The redevelopment revitalized a once-vacant industrial site, bringing new residents, retail, and public amenities that activated the surrounding neighborhood. By introducing street-level engagement, landscaped areas, and accessible community spaces, the project fostered pedestrian activity and economic growth, contributing to Jersey City’s broader urban renewal and sense of place.











transformation
The design of transformed its industrial legacy into a defining architectural statement. Original structural elements, expansive windows, and high ceilings were preserved and contrasted with refined contemporary finishes, celebrating the building’s historic character while expressing a bold synthesis of industrial heritage and modern living.



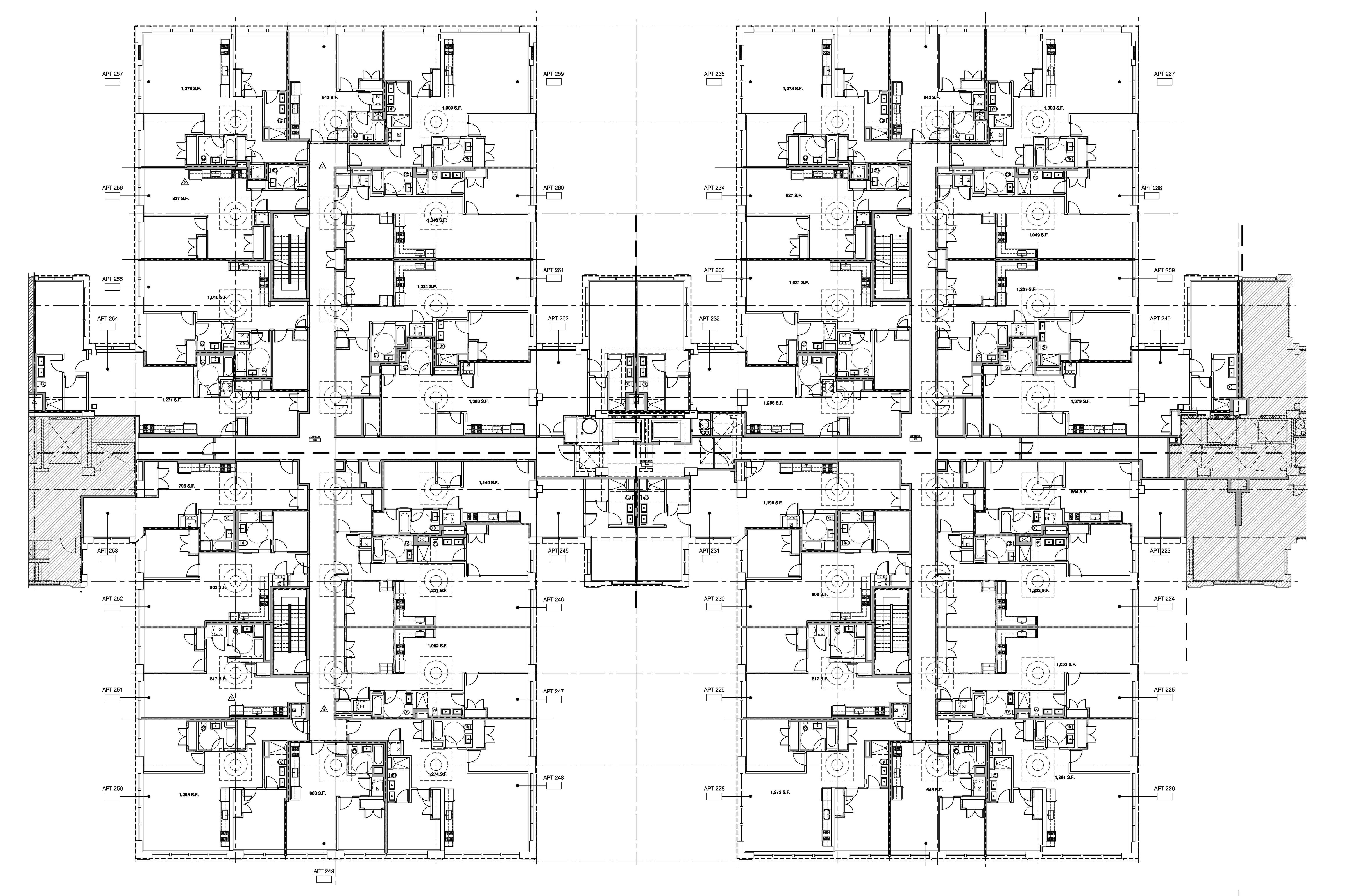
New York, New York
Client: JD Carlisle
Address: 851 6th Avenue, New York, NY
Size: 620,000 SF, 302 Units, 292 Keys
in brief a vertical catalyst bringing hospitality, residential, retail, and public space into a previously underdeveloped corridor. Its restrained yet expressive architectural language differentiates hotel and residential functions while maintaining a unified formal identity. As the tallest tower in its immediate surroundings, it celebrates views both westward toward the Hudson and eastward toward the city’s dense skyline.

Beatrice & The Eventi

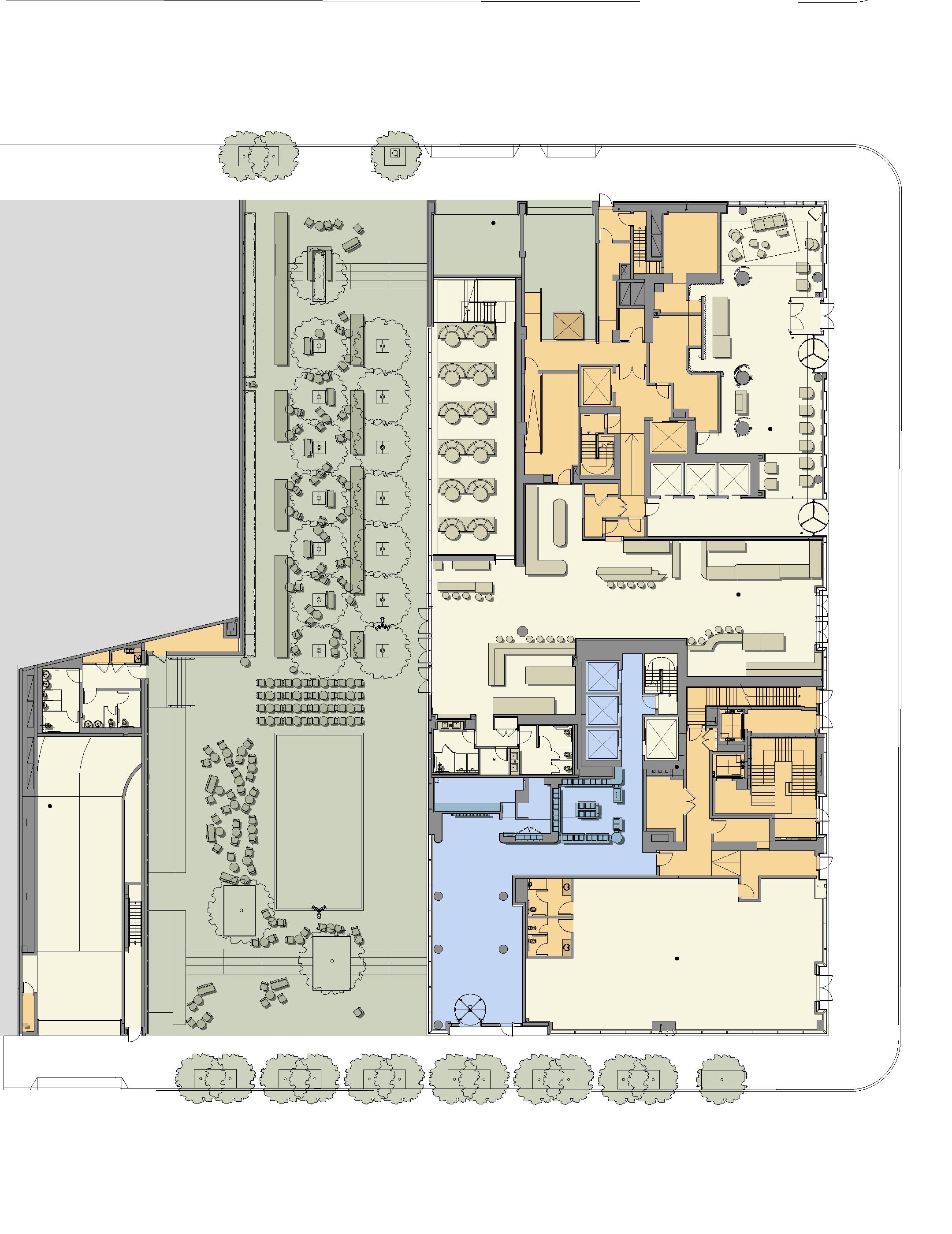
public realm
The building rises from a landscaped+ public plaza featuring a reflecting pool, LED-lit windows, trees, movable seating, and a large jumbotron-style display— offers a public-facing amenity directly integrated into the hotel’s ground-floor programming. The plaza leads into retail and restaurant spaces and serves as a semi-public transitional zone.






Eventi (Hotel) Floors 2-24
Beatrice (Apartments) Floors 25-53


ON THE BOARDS▲































































































































SBLM ▲
YOU
We build trust before we build anything else.