SAYAKA WELLS - ARCHITECTURE PORTFOLIO

Page 1

POR TFO LIO

SAYAKA WELLS selected works 2022

SAY AKA WELLS about me

Upon completing my Bachelor’s degree in Architectural Studies in 2022, I have been actively seeking opportunities to immerse myself in the architecture industry.

Driven and detail-oriented, I am eager to expand my architectural expertise. I am hands-on when necessary and thrive on tackling challenges head on.

My passion for architecture centers on the interplay between historical architecture and contemporary spaces. Inspired by architects like Kengo Kuma, who seamlessly integrates traditional techniques and natural materials into modern contexts. Additionally, I admire the work of interior architect Kelly Wearstler, who skillfully blends Art Deco references and vintage design with modern influences.

Outside of work I enjoy painting, practicing yoga, following sports, and spending quality time with friends.

sayakawells@gmail.com

0211303273

Christchurch, New Zealand contact

Portfolio Sayaka Wells 2

CURRICULUM VITAE

education

Victoria University of Wellington Bachelor of Architectural Studies (BAS)

Burnside High School

NCEA level 1,2 and 3 endorsed with excellence

work experience

Misola Hair and Style Wigram - assistant 033486280

Ace Wasabi - dishes/kitchen hand 021684882

Roadways Ltd - vehicle groomer 0273444488

Vinewise Viticulture - season work/shoot thinning 0275745034

Kazaguruma Japanese Dining - waitress 02102991961

Kinji Japanese restaurant - waitress 033594697

Superette - retail assistant 032602753

Victoria University of Wellington SARC223 - Human Environmental Science/ Te Ahurutanga o te Taiao - teaching assistant.

Miles Toyota - service coster 0273153901

Burnside

software skills

Drafting/Modelling - Sketchup - ArchiCAD

- Revit

Rendering -Vray - Twinmotion - Enscape

Adobe

languages

English - native

Japanese - native - Japanese-Language Proficiency Test (JLPT) - N1

2020 - 2022 2015 - 2019 2018 2019 2019 2021 2022 2022 2022 2022 2023present
Zealand Junior
Dancing Champion
achievements New
Ballroom
Service award gold
prefect
High School -
- Top in painting - Divisional
-
2015 2019 2019 2019 References available on request.* Curriculum Vitae 3
Creative Suite - Indesign - Photoshop - Rhinoceros 3D
Grasshopper - Illustrator
CONTENTS Te Papa Tongarewa 2022 01 - DESIGN Core design 2022 02 - TECHNICAL Portfolio Sayaka Wells 4
Selected works 5
A photograph I took in 2023, capturing the complex Japanese wood joinery used to support the roof of Daisho-in temple on Miyajima island in Hiroshima bay, Japan.

01

TE PAPA TONGAREWA

ARCHITECTURE DESIGN INTEGRATION, 2022. A PROJECT EXPLORING THE RELATIONSHIP BETWEEN FORM AND THE ENVIRONMENT,

This structure focuses on Kupe and his wifes story of travelling across from the Eastern Pacific. Kupe was the first Pacific explorer to discover New Zealand. The form of this structure embodies the obervations of Kupes wife, as she describes New Zealand as ‘the land of the long white cloud’. In combination with this narrative, the timber and steel skeleton of the building is inspired by the various canoes and shipping vessels used by the navigators to travel to this new land. The structure delicately envelops national treasures to preserve and acknowledge the history of our country.

Softwares used: Rhinoceros 3D Grasshopper

Vray

Adobe Photoshop

Portfolio Sayaka Wells
View from Wing 2, looking across to Wing 1.
6

The first point of exploration was the site and how we as humans respond to a setting in between Wellington CBD and the harbour. Upon this examination, the historical narrative was integrated to generate responsive forms and visualisations.

Working sketches.

CONCEPT > SKETCH >DIGITISATION FLOOR PLAN - LEVEL 1
SECTION 001
NOT TO SCALE Design Selected works 7
Portfolio Sayaka Wells 8
North side entry render. Design Selected works 9
Stairwell with dim exhibition spaces on each side.
Portfolio Sayaka Wells 10
Perspective shot of Te Papa Tongarewa from Jervois Quay.

Spaces throughout this building are designed whilst considering human comfort. Some factors taken into consideration were light, sound and temperature.

This was achieved through testing forms, materials, and engagement with the existing environmental factors.

Light and temperature were also crucial to monitor while designing exhibiton space. This was to ensure historical artifacts are safely preserved and protected from environmental factors with damaging effects..

SECTION - 001
Perspective shot looking out to performer and auditorium.
Design Selected works 11 NOT TO SCALE

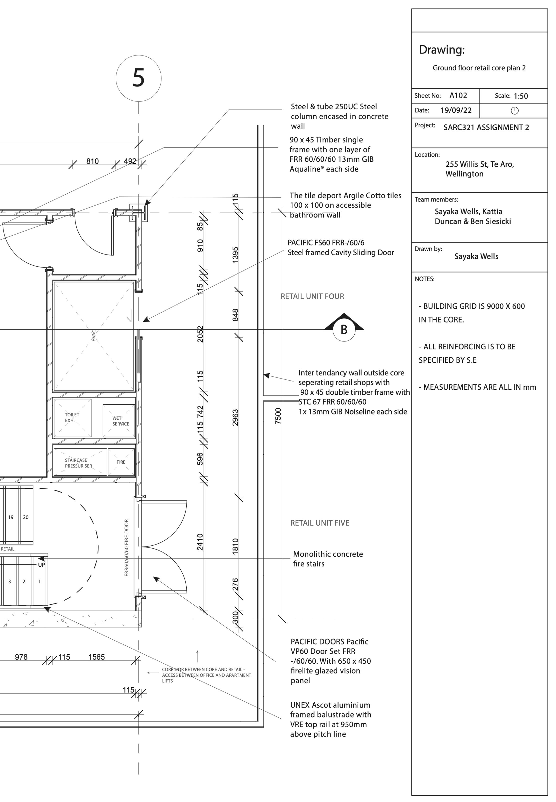
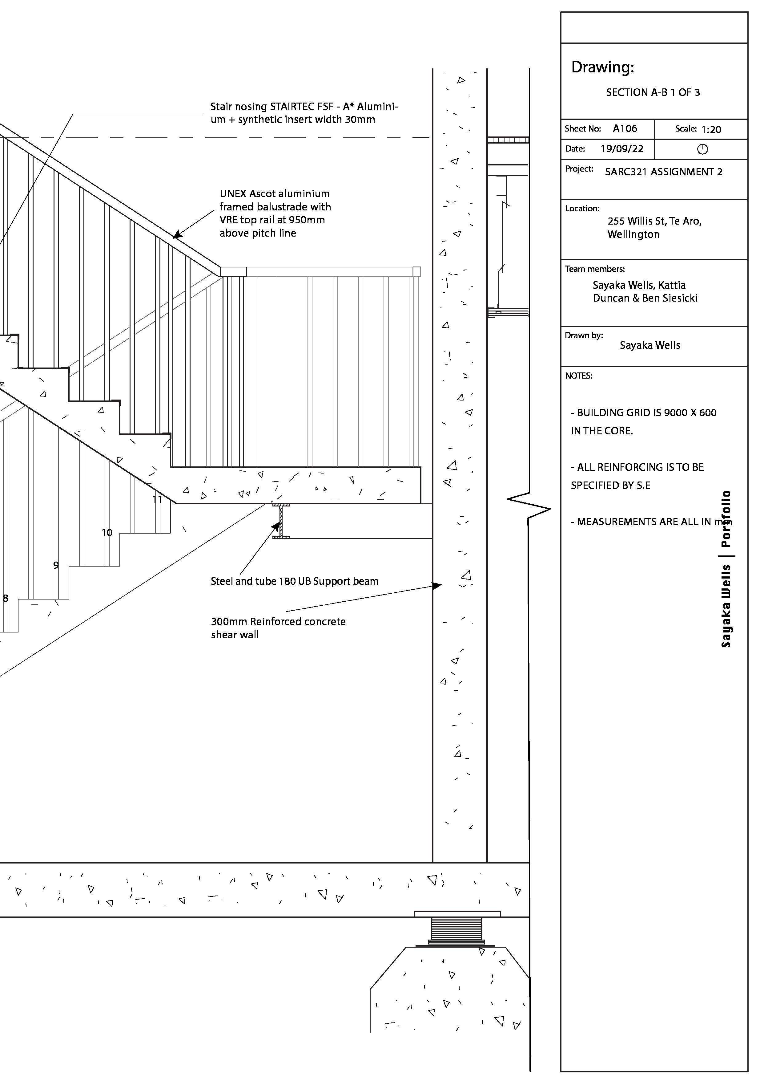
CORE DESIGN

TECHNICAL/CONSTRUCTION DRAWINGS, 2022.

This project involved developing the core of a medium scale mixed used building which includes ground floor retail spaces, offices and apartments. The design of the ground retail floor core carefully considers building regulatory systems, building performance and the various uses of the structure.

The second half of the project involved designing a facade system to envelope the structure not only to add unique aesthetics, but to improve functionality of the structure by shielding it from elements such as light, wind and acoustics.

The following pages display a selection of work from this project.

02
St, Te
Portfolio Sayaka Wells
Revit Rhinoceros 3D
Adobe Illustrator 12
255 Willis
Aro, Wellington facade design.
Softwares used:
Vray
Technical Selected works 13
Portfolio Sayaka Wells 14
Technical Selected works 15
Portfolio Sayaka Wells 16
Technical Selected works 17
Portfolio Sayaka Wells 18 ONE BAY OF FACADE PERSPECTIVE RENDER D101 3D PERSPECTIVE FACADE WALL TO FLOOR SLAB DETAIL

END.

Further information available upon request.

sayakawells@gmail.com

Turn static files into dynamic content formats.

Create a flipbook
Issuu converts static files into: digital portfolios, online yearbooks, online catalogs, digital photo albums and more. Sign up and create your flipbook.