

SELECTED STUDENT WORK
CHATFIELD
Littleton, CO FARM
RiNo, Denver, CO
BESSEMER
Pueblo, CO

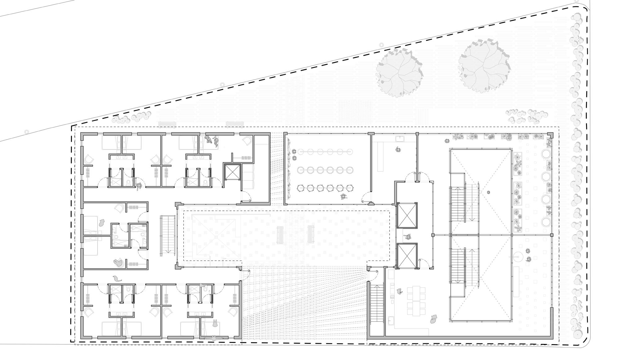
CHATFIELD CENTER FOR CLIMATIC AND ANTHROPOGENIC RESILIENCE
Littleton, CO
Course ARCH 5130 Design Studio III
Instructor Michael Jensen
This project seeks to establish a research center for natural resilience through a design which responds to site conditions present and future. The building is adaptive climatically and functionally to ensure its continued relevance for years after initial construction. Beyond location, minimal constraints were placed on the initial design of the building, instead finding form through analyzing site conditions of sun, wind, and water level. Through this method the research center seeks to embody its purpose of resilience against man made and natural conditions.
A modular approach is taken to reduce construction time on a sensitive ecological site. Mass timber was chosen to allow for the precise tolerances required for prefabrication, while photo-catalytic self-cleaning concrete was used to mitigate the use of a high embodied carbon material.
Tools/Software Used:
Rhino, Photoshop, Illustrator, D-5 Render, SketchUp, 3D Printing, Laser Cutter, CNC




Concept Sketch



Concept Sketch

Extensive Vegetated Roof
Substrate Layer
HDPE Drainage Sheet
Polyester Geotextile Fabric
Water Proofing Membrane
Pebble Border
Metal Parapet Coping
Zinc Cladding
5 Ply CLT Roof
Rigid Insulation Sloped for Drainage
Structural Gluelam Beam
Gluelam Slice as Cladding
Self Tapping Wood Screws
Yakisugi Radiata Cladding
Horizontall Batten
4” Rigid Insulation, Double Layer
Insulation Framework
Water Resistant Barrier
5 Ply CLT Wall
Polished Concrete Floor
Radiant Heating Underlay
3” Rigid Insulation
Concealed Metal Plate
Tight Fit Dowel
Metal Fastener
Precast Concrete Slab
Precast Concrete Column

Steel Reinforcement
Heavy Duty Pier With Concrete Core
Rigid Pier Joint
End Bearing Helical Plates
Vegetated Roof provides insulation and mitigates runoff while promoting bio-diversity.

Gluelam Framing arrives to site preassembled and are connected via grooves to the roof and walls.
Yakisugi Cladding improved weather resistance reduces building maintinence.
Frosted Glass and Wood Panels diffuse light from skylights and conceal services.
Beam and Column Ornamentation conceals panel seams and gutter downspouts.
Helical Pier Foundation minimal on site excavation and reduced material usage.







URBAN FARM DISTILLERY
WORK-LIVE
RESIDENCY
RiNo, Denver, CO
Course
ARCH 2121 Design Studio IV
Instructor Michelle Frankel
Partner Vanessa Rodriguez Gomez
The Farm-Distillery Residency seeks to highlight the synergistic possibilities between industry and agriculture by representing the cycle of production of a product from cultivation through manufacture. Closed loop feedback systems between the distillery and greenhouse and regenerative design principles highlighted through material choice seek to offer an alternative to the industry dominated history of the surrounding neighborhoods.
Balance between nature and development are sought through organization strategies. A courtyard allow the greenhouse to be placed on the northern side of the building, allowing the residences to move away from the high traffic intersection. Centralized around this courtyard the programming of the building branches upwards from mixed use spaces of the basement, increasing in privacy and specificity along with the upwards ascension.
Tools/Software Used:
Rhino, Photoshop, Illustrator, Bella Render, 3D Printing, Laser Cutter






Longitudinal Section Perspective



Courtyard


Baths


Model Photography

Photography Continued

Model

BESSEMER CENTER FOR VISUAL COMMUNICATION
Bessemer, Pueblo, CO
Course ARCH 3111 Design Studio III
Instructor Francois Long
The Bessemer Center for Visual Communication seeks to create a community space which reflects the neighborhood’s history as an intersection between community and industry. It serves as a space for the community to document it’s stories through visual media, as well as a gallery space to reflect upon the work of local artists.
The design concept looks to the vernacular architecture of the neighborhood, particularly combined work-live spaces that arose out of necessity and rationalizes this through a double grid determined by the angle in which the streets of Bessemer meet with the streets of downtown Pueblo. The materials of the building reflect the concept of patina, and the ways in which that intersection of exposure and time reach beyond the expected towards manmade applications such as graffiti, photocatalytic concrete, and charred wood.
Tools/Software Used:
Rhino, Photoshop, Illustrator, V-Ray, 3D Printing, Laser Cutter

Top Left Site Plan.
Center Left
Local precedent study Auntie Bev’s; located directly West of the site.
Bottom Left
Mid-term concept as seen before the shift of the central structure along the grid of downtown Pueblo.
Top Right
Exterior view from Auntie Bev’s door.
Bottom Right
Exterior view from the Northeast, the direction of the steel mill.








Top Left
Plan, Floor 1
Bottom Left
Plan, Floor 2
Top Right
Interior view, gallery space approaching screening room.
Center Right
Interior view, second floor common area facing south
Bottom Right
Interior view, second floor common area, facing north approaching an office, overlooking the archive.




Top Left South Elevation W
Bottom Left Section A-A: cutting through the double height spaces.
Right Model photoghraphy
Section isometric anaglyph



VISITING SCHOLAR RESIDENCES
Auraria Campus, Denver, CO
Course AEC 104 Architectural Drawing
Instructor Mark Broyles
The Visiting Scholar Residences sit along the Ninth St Historic Park on the Auraria Campus. The design responds to a program which asks for the design of three housing units as well as three functional outdoor spaces to serve the occupants. The orientation of the houses was arranged following the lines created by modular bed, bath and kitchen units with the intent of created varying degrees of privacy and exposure.
The buildings center around a communal outdoor space to be shared among the residents while an outdoor classroom and reading garden occupy locations along the perimeter of lot adjacent to nearby circulation. Clerestory windows reinforce the perimeter created by the modular units while bringing additional lighting to the interior of the building.
Tools/Software Used:
Scaled Freehand Sketching



Top Left Site Plan

Bottom Left Site Section
Top Right
Interior perspective of the East Residence
Bottom Right Plan and elevations of the North residence.


PLATTE ST DENIM CO
MUSEUM & POP-UP
Commons Park, Denver, CO
Course
Instructor
ARCH 2121 Design Studio II
Jami Daniels
The Platte St. Denim Co. Museum and pop-up is located along a north facing slope in Commons Park. The design seeks to fulfill the programmatic needs of Platte St. Denim company by delivering a modular design which can serve as a temporary structure in the park as well as fulfill future functions for the company as they expand and grow.
Three wooden structures rest upon a stepped stone courtyard which will remain as a permanent feature of the park once the pop-up has ended. The denim sliding wall panels and screened skylighting employed seek to immerse visitors in dynamic lighting and shadows as they move through the three structures housing displays, information, and a retail showroom. The door panels also offer the opportunity for up-cycling of denim, allowing for natural fading of the material, or reuse of denim scraps.
Tools/Software Used:
Hand Drafting, Rhino, Photoshop, Illustrator, Laser Cutter

Center Right Plan of park highlighting permanent structures.
Bottom Left
Compass atop hillside the project sits on. Inspiration to leave a permanent structure behind after the temporary nature of the design.
Top Right West and South Elevations
Bottom Right Plan







Rendering of view from the top unit.
Rendering of Northern approach

detailing potential arrangement of units after removal from site.
Rendering of entrance of bottom unit
Diagram

Model photography.


Model photography continued.

Sawyer Janney
Architectural Designer
PROFILE
Architecture student with a passion for contextual and responsive design
CONTACT
(719)306-1307
4354 Umatilla St. Denver, CO 80211
sawyerjanney@gmail.com

https://issuu.com/sawyerjanney/docs/sj23_portfolio
SKILLS
Rhino 3D
Revit
Sketch-Up
Rendering Software
Adobe Suite
Office365
3D Printing
Laser Cutting
Model Making
Sketching
ACTIVITIES
ColoradoBuildingWorkshop 2024-25
Freedom by Design 2023-24
Minor Home Renovations
EDUCATION
UNIVERSITY OF COLORADO DENVER
2022 - Current
Masters of Architecture 2026
Bachelor of Science in Architecture 2024
-Studio Excellence Award Spring 2023 Studio II
-Studio Excellence Award Spring 2024 Studio IV
COMMUNITY COLLEGE OF DENVER
2020 - 2022
Associates of Architectural Studies.
WORK EXPERIENCE
OWNER @ PRINT VERNACULAR
May 2024 - Current
Designs and 3D prints household goods to be sold online and at local shops. Models objects (primarily planters) in Rhino and refine 3D printer settings to optimize the final product. Manages online store presence and marketing.
BARTENDER @ ROGERʼS LIQUID OASIS
October 2020 - Current
Provides guests with knowledgeable and timely service in a high volume cocktail bar located in the Edgewater Public Market. Assists with menu organization, design, and costing for a spirit list of over 600 bottles. Leads trainings for newly hired employees on bar procedures and product details.
GENERAL MANAGER @ BOOKMAKERʼS
September 2017 - March 2020
Served as General Manager and Beverage Director for a high volume cocktail and whiskey bar. Curated a seasonal menu of over 20 cocktails and 500 whiskeys. Oversaw training of bar and FOH staff. Implemented a new menu design and dining room layout. Worked with the chef to create cohesive event menus. Booked, planned, and personally ran private events in a 50 person upstairs space. Operated social media.
INTERESTS
PROFESSIONAL
Sustainable Building Design
Historical Preservation and Restoration
Bar and Restaurant Design
Design-Build
Parametric Design
PERSONAL
Reading
Cooking
Sketching
3d Printing
Hiking
