Skip to main content

Architecture Portfolio

Page 1


sarah al dulaimi

architecture & design portfolio

Recently Completed Projects

University Coursework

Work

M_39
321 Sports
MAKE + SEAF
4. The Eco Machine
The Contemporary School of Graffiti
Kintsugi: Healing with Nature
Pandemic Recuperation Facility
Unfiltered
The Nautilus
Furniture Design

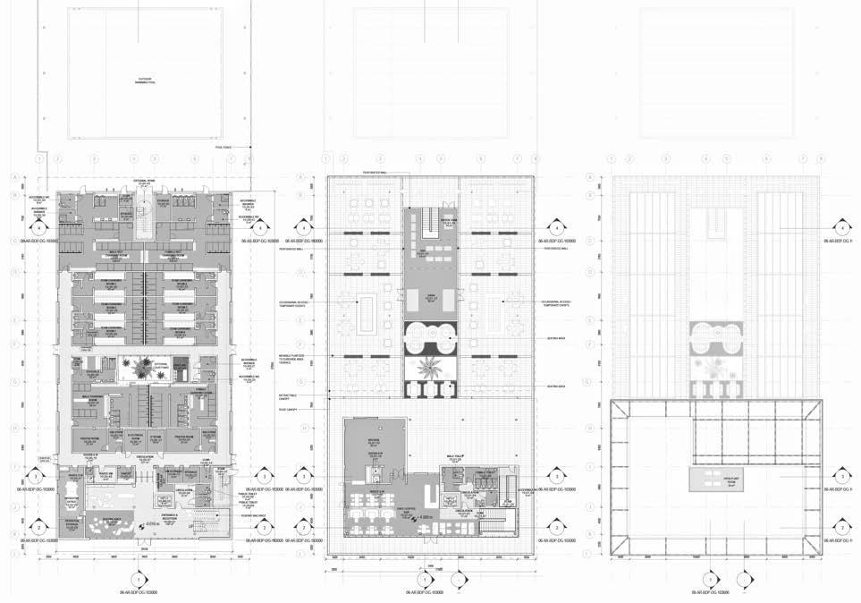
M 39 (MiZa)

Office Space & Commercial (Artist Offices & Studios) | 5900 SQM

Assistant Architect | SD, DD and Site Supervision

M _39 is a key asset in the innovation district of Mina Zayed, providing a workspace and hub for entrepreneurs and creatives to work, learn and collaborate. It features shared workspaces, dedicated studio spaces, meeting spaces, project spaces, an auditorium, and podcast recording studios. The architectural form reflects the innovative spirit of the MIZA district, encouraging creativity and collaboration with a welcoming entrance enveloping the visitor.

During my time on the project, I supported with the architectural package, from schematic design, production of a final DD drawing set and finalized renders. My involvement also continued to site supervision stage where I supervised the FF&E, and lighting review and coordination.

321 Sports

Recreational (Sports & Leisure)

Assistant Architect | CD, IFC

321 Sports is a state-of-the-art sports complex designed to promote an active lifestyle and bring the community together on Hudayriyat Island. The modernist architecture of the Community and Elite building reflects functionality and simplicity, supporting the activities within the outdoor facilities. The 321 Sports masterplan includes sports fields, courts, and cycling tracks which are complemented by the air dome that serves as a visual landmark to the area.

During my work experience, I contributed to the early concept development, collaborating with the team to shape the project’s design identity. I returned to the project later for the submission of the IFC package, addressing client feedback, and conducting final quality checks.

MAKE + SEAF (MiZa)

Commercial/Mixed-Use (Creative Workshops) | 4,300 SQM

Lead Architect (Interior Architecture DD onwards)

Assistant Architect (Architecture Package SD & DD) | SD, DD and Site Supervision

MAKE + SEAF is a workshop intended to provide a space for creative individuals in the local community to practice their craftsmanship and learn new skills. The building’s form evokes the memory of the original industrial warehouses through repetition of the existing language, whereas the sharply juxtaposed pavilion breaks this repetition, serving as a visual landmark in the neighborhood.

MAKE + SEAF was a meaningful project for me as I am also a long-term member at MAKE. Through many evening seminars for my furniture fellowship at MAKE, I would be dialled in while working from the office to complete packages for their new building. During the design process, I handled the Interior Architecture package independently with supervision from an associate. My involvement in this project followed through to roughly 6 months of site supervision work where I led on coordinating FF&E, lighting, and finishes.

The Eco-Machine

Independent Thesis Studio under Prof. George Katodrytis (2022)

A big misconception lies in thinking that the desert is one big homogenous landscape; in fact, many different conditions exist all over the UAE. One particularly interesting landscape to me is the sabkha, which is an environment created by extreme levels of ground salinity, that leads to the formation of a crystal salt crust. This is a landscape that has always been considered as permanently and completely uninhabitable.

I decided that this landscape deserved more recognition, and began experimenting with the use of this salt as a locally sourced construction material to attempt to create elevated landscapes and gardens, a ā€œnature-made spaā€. These gardens serve as a node to bring wildlife and vegetation into the landscape. Through the use of the spa, it also creates a point of contact between sabkha landscapes and humans to instill a sense of curiousity and sensibility for this neglected landscape. The use of temporary salt structures and permanent concrete forms create an aggregating structure which grows over time, being shaped by both natural chemical processes of crystallisation as well as manual human processes.

(3) Salt crystals expand and grow. Architect visits to regulate growth and start to control space making

(4) Multiple pour layered concrete on salt-fabric formwork to freeze the spaces and create roof and floor, and create habitable spaces with no need for formwork wastage.

(2) Pipes carrying disposed brine water from desalination plants is sprayed onto mesh fabric, causing crystallisation
(1) Recycled metal structural grid erected onto sabkha and then wrapped in absorptive mesh

The Contemporary School of Graffiti

Studio under Prof. Marisa Oliver (2019)

Inspired by the sudden take-over of street art within Amman, this project takes on the infamous street artist’s dream of commissioning a hub for these activities to take place in freely. This project focuses on creating a vertical path connecting two main streets at different levels, with ample space to nurture the practice and production of street art. The interior spaces consist of preparation and learning spaces, whereas the exterior function as exhibition spaces. It is accessible by the public who can pass through and experience street art culture in a place where it is finally allowed to exist in.

Kintsugi: Healing with Nature

Studio under Prof. Igor Peraza | Group project with Afra Alfalasi (2021)

Maggie’s centres are a network of drop-in centres aimed to help those affected by cancer and their families. Since patients spend so much time at the hospital, the centre provides a homely environment much different to that of the hospital and a space for support, information and practical advice. Leading on from studies showing the improvements in healing within hospitals that have green spaces, this project breaks down the solid exterior mass with courtyard gardens, pervading greenery into all sections of the interior. It is a play of dark and shadow; void and mass; yin and yang. This leads to a balanced interior which is just as connected to the exterior, creating a warm and welcoming atmosphere; one that contrasts with a traditional hospital setting. Through the exploration of rammed earth as a construction material, we were able to add additional tones and textures of nature into the project, while also reducing its environmental and economic impact with the use of thermal mass technology.

37

38

39

36

33

34

35

32

29

30

28

25

26

23

24

21

22

19

20

17

18

40

42 MORTAR (200mm)

43

Pandemic Recuperation Facility

Shortlisted for ARCHISEARCH’s Pandemic Architecture competition | Group project with Afra Alfalasi and Noor Nidal (2020) https://www.archisearch.gr/pandemicarchitecture/the-versatile-grid-virus-control-andrecuperation-facility-pandemic-architecture-top100/

For centuries we’ve celebrated architecture that lasts, but now comes a time where we need architecture that doesn’t. In response to the recent pandemic crisis, we explored the idea of a ā€˜formula’ for a quick and cost efficient method of building which can be easily modified to suit different circumstances. But how does one build a cost-efficient and practical medical facility that can be readapted whenever necessary?

Our concept stems from the question of temporality. By using a standard steel 3x3 grid, combined with the modified shipping container to house inpatients, the building time is greatly reduced, as well as allowing for an adaptable program and function. Considering the rapid, widespread transmission of the disease, we found that this could be reflected within the growth of the building’s structure. As more cases appear in an area, more modules are placed in the grid until it reaches full capacity. Thus, this facility acts as an illuminated beacon for citizens, illustrating the progress of the pandemic in the area.

Unfiltered

Shortlisted for the Christo-Jeane Claude Award 2023 | Mentored by Ammar Kalo

ā€œUnfilteredā€ is an art installation that explores the distorted and blurred reality, both visual and social, that social media perpetuates in our daily lives. Composed of interlocking blocks that resemble digital screens, this mosaic of pieces with differing transparencies, colour & textures stack together to form a barrier that only allows for blurred and distorted views of what lays behind it. This playful array of distorted realities mirrors the artificiality that defines our online personas, and the lenses we often view others’ lives through.

The entire voxelized artwork is blurred and inaccessible, apart from one moment where there’s a physical and visual opening that users are able to see through unobstructed. This small space also has two opposing seats nestled within, allowing two people from either side of the artwork to physically connect and have a face to face conversation, without any filters. At this moment, authentic human interaction is celebrated, away from the distortions of social media. ā€œUnfilteredā€ encourages visitors to momentarily step outside the curated landscapes of digital illusions and rediscover the genuine connections that lie beneath.

The Nautilus

Pedestrian Bridge Commissioned by Turner & Townsend for Atlantis the Royal | Group project with Sarah Alchaar under the mentorship of Professor George Katodrytis (2023)

As a group we were commissioned to design a sculptural bridge to aid in pedestrian movement as well as boost the presence of the area prior to the opening of Atlantis The Royal. After research into organic ocean forms, we took inspiration from the skeletal structure of the Nautilus. The bridge’s form curves, grows, and creates a meandering path that opens up towards a framed view of the Atlantis.

The Nautilus is designed to be a sculptural piece, serving as a visual landmark that harmonises with the coastal surroundings, as well as inviting visitors to explore and connect with the area.

The Wave & The Tea Table

The Wave - Exhibited in the 2023 Dubai Design Week UAE Designer’s Exhibition https://www.dubaidesignweek.ae/programme/2023/seigaiha-wave/

The Tea Table - Exhibited in MiZA library 2022 and MAKE in 2023, completed under Athath Fellowship

On top of architectural projects, I spend my free time designing and making furniture. Within the past two years, I have completed a furniture fellowship, exhibited at Downtown Design during Design Week 2023, as well as sold a few commissioned pieces and I continue to design many more. The skills I gained from furniture-making helps inform my design decisions in the technical realm and keep me updated with new processes and materials.

My first piece, ā€œIzina (The Tea Table)ā€, is an Sumerian inspired tea serving table designed under the Athath Fellowship in 2022. It was designed in MAKE Abu Dhabi, one of the projects I played a significant role in designing during my time at BDP, making me both an end user as well as the architect. The second piece, ā€œThe Waveā€ is a feature armchair inspired by the iconic Japanese painting, ā€˜Great Wave of Kanagawa’, which celebrates the often overlooked rear view of the armchair, making this the focal point for the piece that is seen even when viewed from the front.

email: saa.dulaimi@gmail.com

tel: +971 52 521 3963

linkedin:linkedin.com/in/sarah-al-dulaimi-9b9bb018a

Turn static files into dynamic content formats.

CreateĀ aĀ flipbook