Sarah Chriss Design Portfolio

Page 1


SARAH CHRISS

PORTFOLIO | 2025

Architectural Designer | Brooklyn, NY

SARAH CHRISS

Castelli Design | Professional

Spring 2024

Miniature World | Professional

Spring 2023

Rhode Island School of Design | Academic

Spring 2021

Spring 2022

Kent State University | Undergraduate

Spring 2020

CHASE SAPPHIRE LOUNGE, DFW

Castelli Design

Role

Client

Software

2024

Lighting Designer Corgan

Revit, AutoCad, AGi32, Adobe

Illustrator, Adobe InDesign, Bluebeam

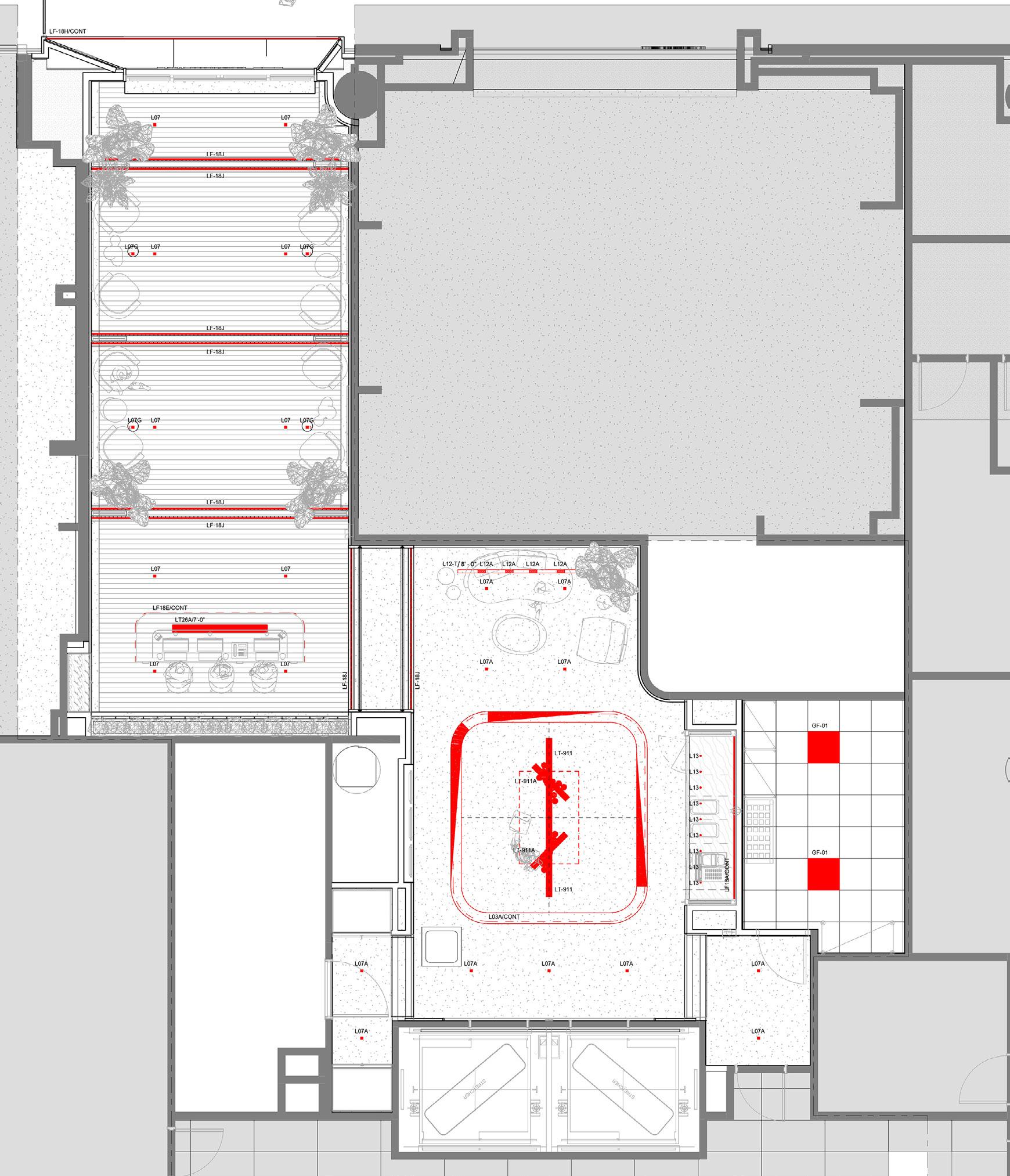
Castelli Design collaborated with Corgan to develop a lighting design optimization packet for future Chase Sapphire Airport Lounges, with the Dallas Fort Worth location serving as the first to implement these strategies.

As a lighting designer, I integrated lighting elements into the Revit model to align seamlessly with the architectural design. I produced diagrams and drawings to test lighting layouts and communicate design intent to the architecture team. My responsibilities also included contributing to the lighting power density packet for electrical submissions, conducting lighting calculations to ensure proper illumination and code compliance, and assembling a comprehensive lighting specification package for the project.

REFLECTED CEILING PLAN

CONCIERGE SECTION

BAR HEADER DETAIL

BAR LIGHTING CALCULATION MODEL CHARACTERISTICS

CLG HEIGHT: 8’-10” CALC POINT SPACING: 2’X2’ @ 2’-6” AFF

CLG: 5% REFLECTANCE WALLS: 50% REFLECTANCE FLOOR: 20% REFLECTANCE

i2 SYSTEM COMPOSE 7W; 870 DEL. LUMENS 90+CRI; 2700K MOUNTING HEIGHT: 8’-5” AFF LLF = 0.95X0.95

LUCIFER

ONE ASTOR PLAZA

Miniature World

Role

Collaborators

Software

Spring 2023

Lead Digital Designer

Carlos Castillo, Edison Toledo, Julian Linares, Claudia D’Argenio Rhinoceros 3D

Miniature World is an immersive gallery experience showcasing architectural models of landmarks from around the world. The exhibition features dynamic model trains and intricate figurine scenes, with models representing landscapes across Asia, Latin America, Russia, Africa, Europe, the Middle East, and New York City.

A highlight of the New York City model, One Astor Plaza is a 72-inch illuminated structure depicting a well-known Times Square building. The model includes detailed interiors, miniature figurines, LED-lit ceilings, and functioning video screens, making it one of the most intricate and fully developed pieces in the exhibition.

TAFT ELEMENTARY SCHOOL

Rhode Island School of Design Course

Critics

Location

Spring 2021

After Nature

Cara Liberatore & Almin Prscic Pawtucket, RI

Neighboring the Taft Street Community Garden in Pawtucket, RI, the design for this early and elementary education center is an effort to reimagine conventional American educational spaces and practices. This series of intersecting A-frames focuses on nature, play, and food as necessary learning tools.

The four primary structures are scattered on the site to implement a nature-based learning environment for the early education center. Inspired by the framework of Danish forest schools, physical immersion into nature became a driving factor for the structural and aesthetic design.

SITE OBLIQUE

SECTION

REMNANTS

Rhode Island School of Design Course

Advisor Location Spring 2022 Revisionist Histories Graduate Thesis

Amy Kulper Westerly, RI

Remnants is a revision of our interaction with land extraction through reimagining processes of representation and image-making. By altering perspective and focus, the visual effects of commodity culture shift to highlight the consequences that occur before and after our consumption. Dependably lost in translation, spatial and temporal information of material exchanges across the globe uphold and preserve the synergy of our commodity transactions. In a field constantly playing with and pushing against the boundaries of representation, remnants aim to redraw lost connections of material transformations through a granite quarry in Rhode Island. Representation becomes a tool to revise narratives that obscure the material and ecological connections behind consumer culture.

Site Research

WESTERLY GRANITE INDUSTRY, 1840-1950

BRADFORD QUARRY REOPENING, 2010-PRESENT

Site Context and History

Westerly granite, formed during the late Pennsylvanian period, comes from the southwest corner of Rhode Island and became the foundation of a thriving extraction industry beginning in the 1840s. Valued for its consistent material properties, the stone was initially used for foundations and paving before gaining national demand for monuments, tombstones, and architectural materials. Its widespread use reshaped both the regional economy and local culture.

By the 1950s, most of Westerly’s quarries had closed, with only a few continuing intermittent operations. As the granite industry declined, the local economy shifted toward tourism and beach development. Over time, residential neighborhoods emerged around dormant quarry sites, with homes built close to the edges of former extraction zones.

Contemporary Impact

In December 2010, a long dormant quarry in the historic village of Bradford, located at the border of Westerly and Charlestown, resumed operations after thirty years. The land, owned by a prominent Westerly family, was leased to Copar Quarries LLC. This renewed activity, operating at a far more aggressive scale than in the past, exposed nearby residents to repeated dynamite blasts and airborne crystalline silica, a known carcinogen. The company faced multiple lawsuits, inspections, and public testimony citing a range of harms, from daily disturbances to serious health concerns.

The operators remained in business while local residents endured the invisible consequences. The ongoing noise from extraction and crushing was unrelenting, and the process released silica dust that accumulated in large mounds across the site. Although neighbors reported that dust regularly blanketed their properties, the quarry maintained that on site levels remained within federal limits. A town funded study later measured the extent of dust diffusion and found the highest daily average concentration occurred at an elementary school one mile from the site.

Drawing as Method

The privatized quarry challenged conventional academic methods of site analysis, prompting a spatial approach rooted in observation from above, below, and around to interpret, represent, and reimagine the site.

Scan the QR code for access to external links to videos

On August 30, 2016, residents, officials, and journalists toured the Bradford Quarry, documenting the site in a 55 minute video that remains the only visual record of its interior.

The site is interpreted as both a standing reserve and a place of ecological return. The drawing reconfigures a video into a series of layered panoramas that reflect fragmented, future-facing memories. Delineated by strata, each image tracks the movement of people, rock, and machines. Horizontal divisions represent durations of activity, while vertical seams mark shorter intervals of motion.

BOSTON INSTITUTE OF ART

Kent State University Course

Critic Collaborator

Location Spring 2020

Integrated Design Systems

Undergraduate Thesis

Nick Safley

Jose Padilla Boston, MA

The Boston Institute of Art proposal investigates an ambiguous perception of form through structural illusions of inflation and carving. The space consists of three main zones of program layered in plan, parallel to the water’s edge. The street side termed the ‘Bar’ consists of exhibition spaces. Adjacent to the waterfront include an auditorium, offices, and dining with a view over the Harbor and Boston skyline. Between the two zones runs a large public atrium with seating underneath the tessellated roof. Following the structural grid, the roof appears inflated, enclosing the atrium and creating shelter for the outdoor roof space. The planar structure then creates the illusion of moving through the bar, reemerging at the northern entrance as an overhang.

FLOOR PLANS 1-4

STRUCTURAL DIAGRAM

SECTION

SARAH CHRISS

contact | sarahchriss42@gmail.com

Turn static files into dynamic content formats.

Create a flipbook
Issuu converts static files into: digital portfolios, online yearbooks, online catalogs, digital photo albums and more. Sign up and create your flipbook.
Sarah Chriss Design Portfolio by Sarah Chriss - Issuu