Skip to main content

PORTFOLIO

Page 1

PORTFOLIO
Architectural Technologist S.A.I.T 2022

Plans

Drawings

Project 2 Information

Plans

Drawings

Project 3 Information

CONT ENTS - Project 1 Information - Floor
- Technical
- Renders -
- Floor
- Technical
- Renders

ANGLE HOUSE

Location: 2515 17A ST NW, Calgary Category: Bungalow Software: AutoCAD First Semester

Bungalow house with basement and rear garage, located at Capitol Hill area, near University Train Station, university of Calgary, SAIT, Foothills Hospital, and Nose Hill Park, connecting with 14th street which facilitates commuting. With this project I acquired important knowledge about timber framing construction in cold weathers, building science and project planning.

FLOOR PLANS

With an area of 1140 sq ft, this house offers a master bedroom with ensuite and walk-in closet, a second bedroom, bathroom.

On the lower floor it has a bedroom, bathroom, office, and library.

TECHNICAL DRAWINGS

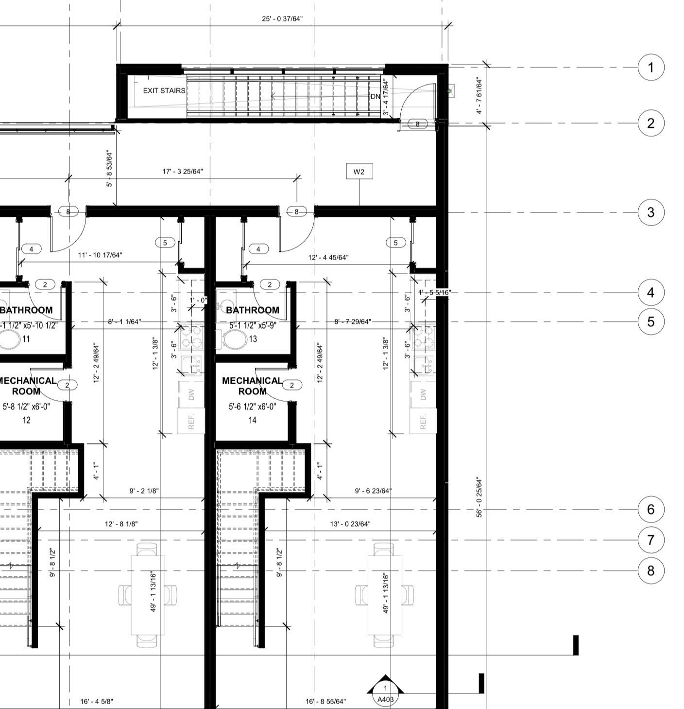
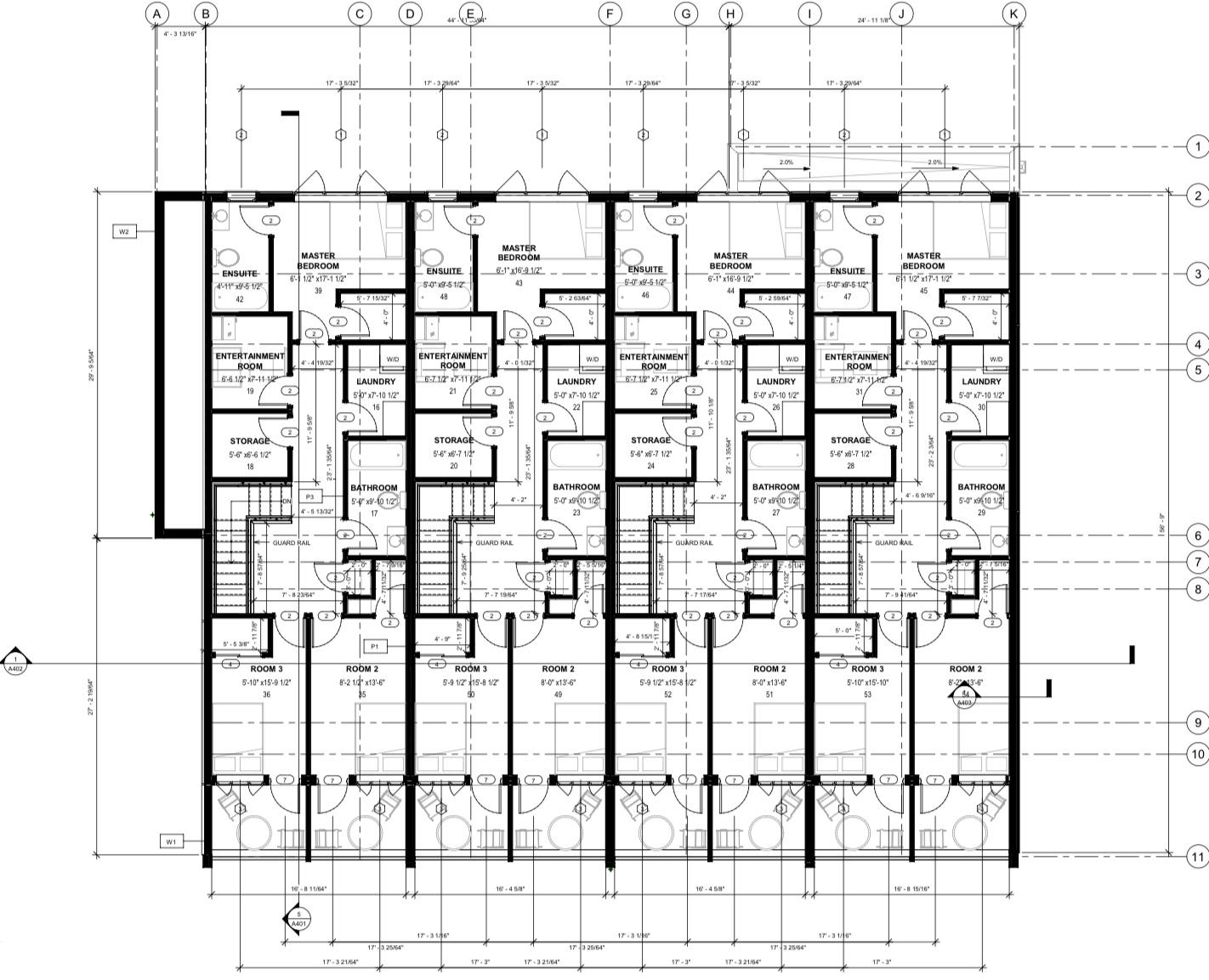
Location: 2408 4 ST NW, Calgary

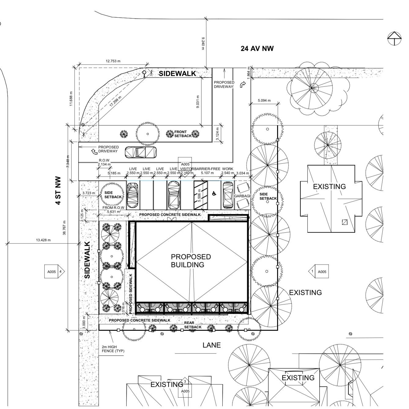
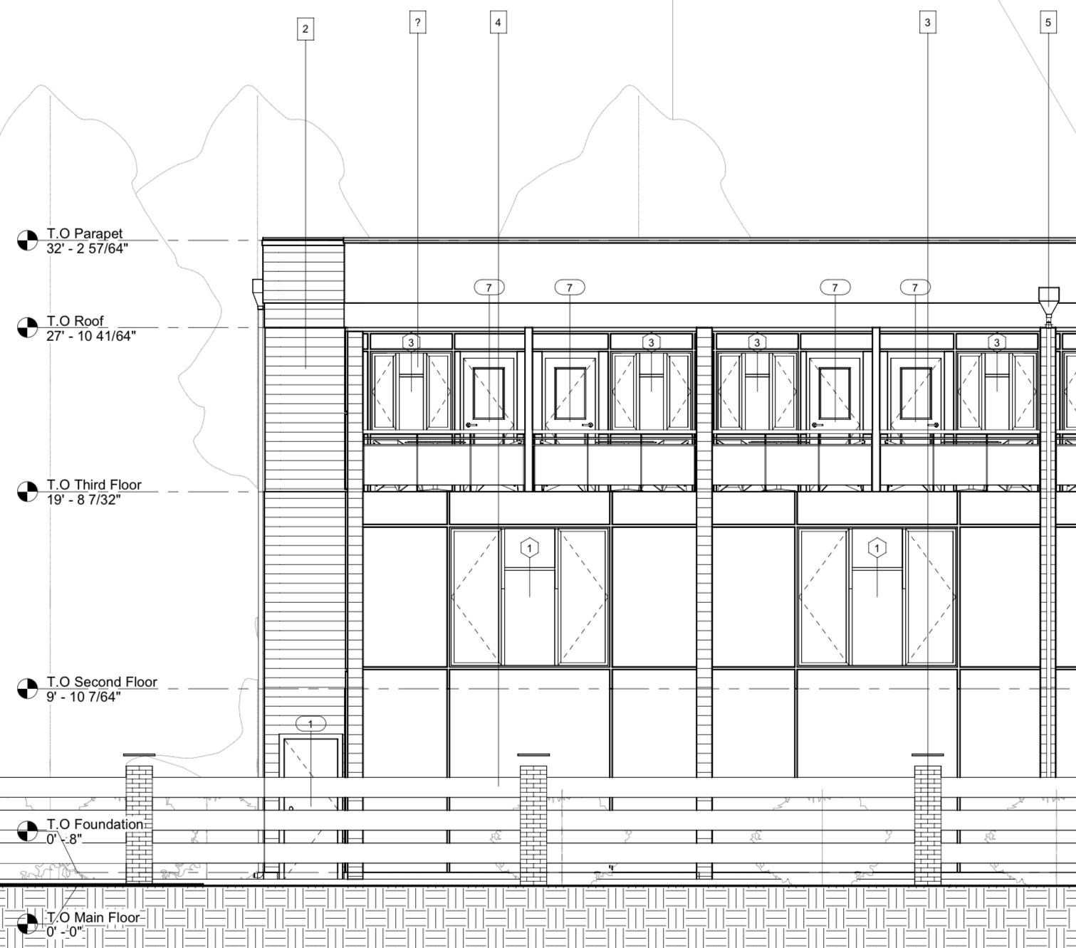
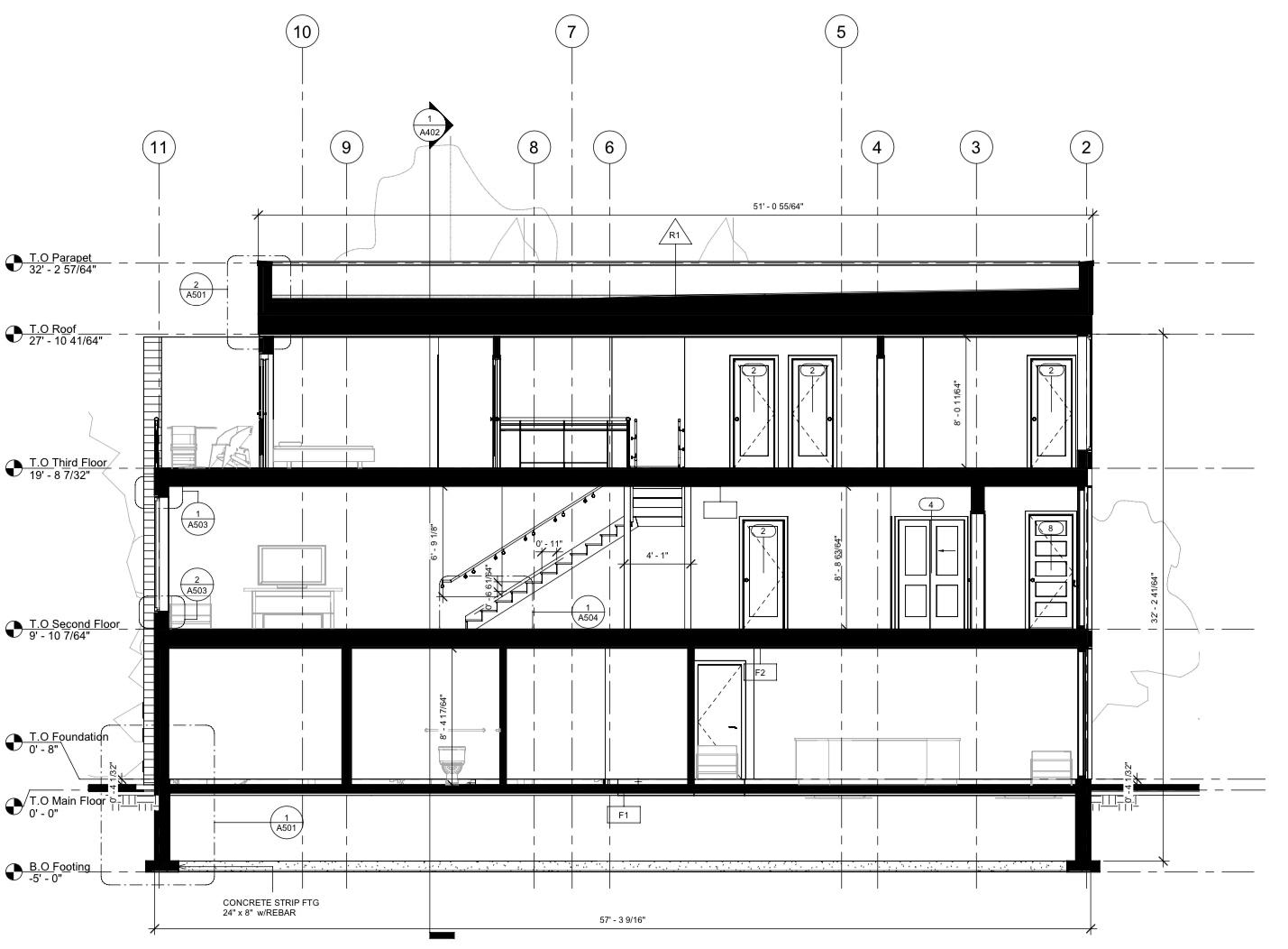
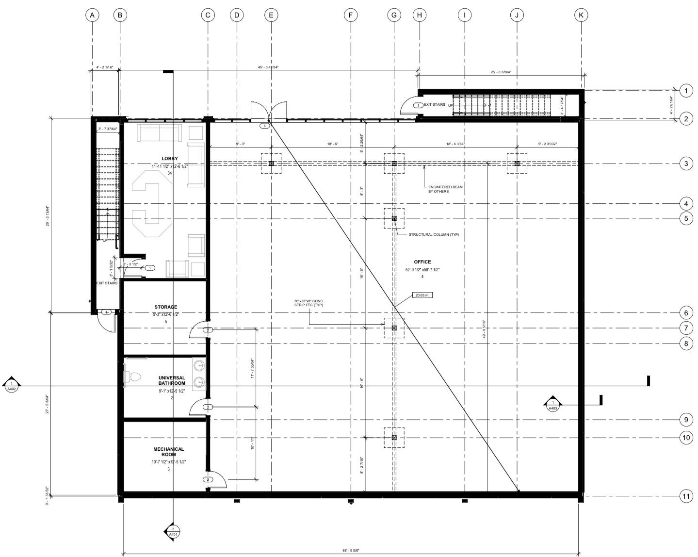
Category: Mixed-use Software: Revit Second Semester

Three storey mixed-use building, first floor developed for office space and upper developed for residential space. Located at 2408 4 St NW, close to downtown, S.A.I.T, schools, a small mall, and a convenience store next to it. They can be easily accessible through 4 St and the volume of transit is high.

With this project I got to obtain further knowledge on timber framing construction. On the other hand, I learnt about commercial architecture and planning, stepping into a big sector of the industry.

TWO BLOCKS

With an area of 273 sq. ft, this space offers a lobby, storage, mechanical room and universal bathroom

On the second and third floor, there is planned 4, two storey apartment units with the basic spaces, and a balcony overlooking downtown. The area is 353 sq. ft plus two exits on the west and north side of the building.

FLOOR PLANS
TECHNICAL DRAWINGS

Location: 2408 4 ST NW Category: Mixed-use Software: Revit Third Semester (In Progress)

Façade Inspiration

Case studies about Bowness vegetation and landscape were taken as inspiration to design the front façade, providing a meaningful building the community of Bowness can relate to.

BOWRIVER

BOW CRES NW

67STNW

Real representation of Bowmont Park vegetation

The way trees trunks are straight in Bowmont served as inspiration to design the glazing shadow system

Bowness Bow River area plan view

A small proportion of this plan view is represented with glazing and panels

BOWMONT

Turn static files into dynamic content formats.

Create a flipbook