
SunstarassociatesisanchennaibasedarchitectureandinteriordesigncompanyinIndiawithalmost






SERVICESAND
STUDIO
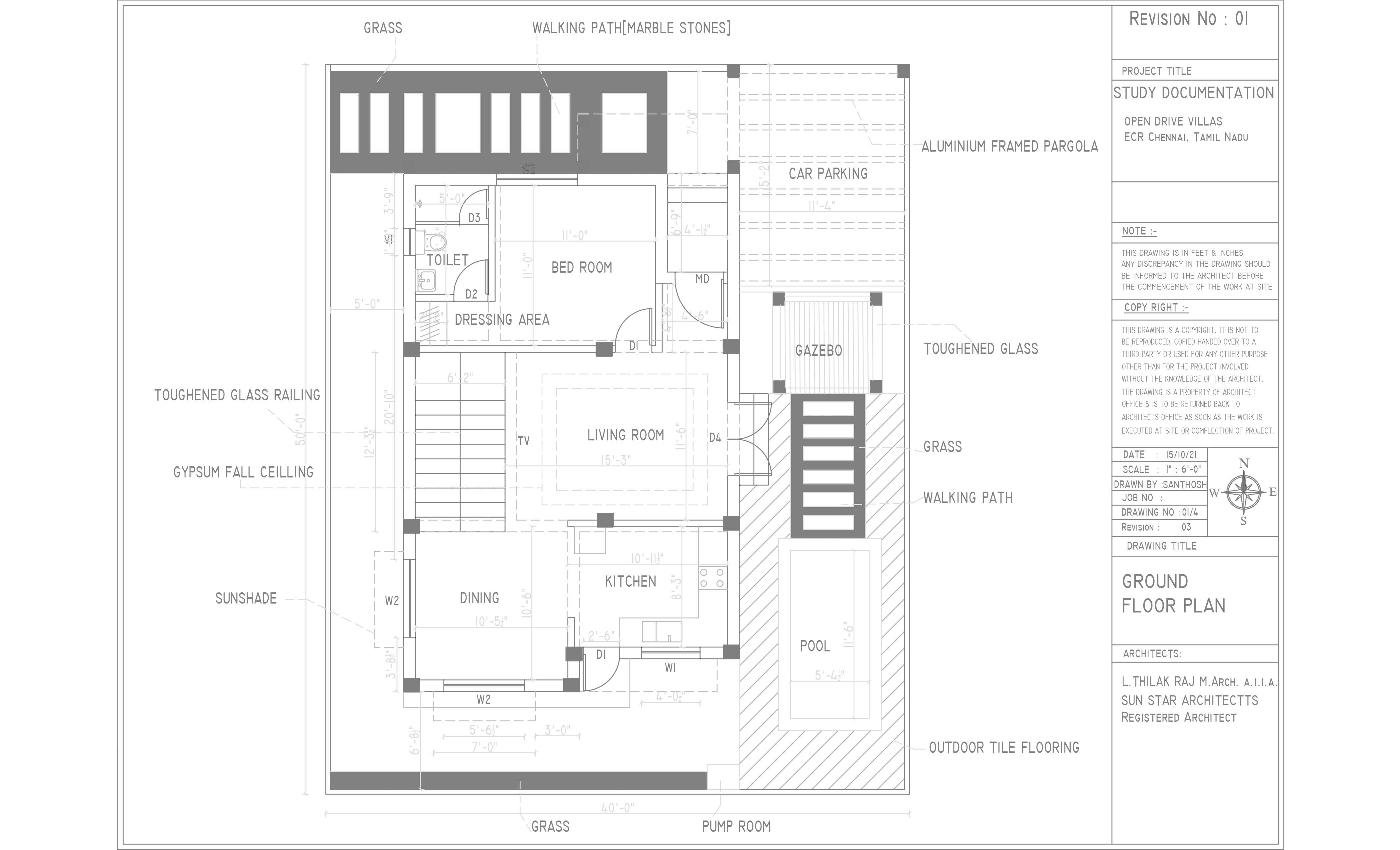
BLOCKS PUBLICAREASARESEPERATED 4.MARKETANDMANAGEMENT



smallpiecesofmarbleorgranitearesetin upto40yearswithoutlosingtheirbrilliance.
lightweight,itrequiresminimalstructural



thesedays.Butithasseenmanydecadesofvibranttradewiththe RomansandGreeksduring17thcentury.Thetownhasonlyone standoutfeaturenow—oneofthemostvisitedRomanCatholicLatin Riteshrines,knownastheBasilicaofOurLadyofGoodHealth.Itis visitedbylakhsofpeopleeachyear.
planningregulationsincludingtheexistingnormsof


PROVIDINGSEQUENCEOFSTREETLIGHTWILL MAKETHISZONEMOREACTIVEANDREDUCES



PLACERIVER[VELLAIYAR]MIXED
WITH
OCEAN.SADLYINTHISPLACEWHERE
THETOWN’S


















