Via Ratti, 3 - Milano




![]()





In via Ratti 3/7 sorge un complesso che coniuga l’eleganza del suo passato con la straordinaria versatilità degli spazi. Su tre piani si articolano attività commerciali e unità residenziali, incorniciate da un ampio cortile interno che rappresenta il cuore pulsante della proprietà. Ogni elemento, dalle vetrine su strada agli affacci privati, è stato concepito per valorizzare sia le funzioni abitative che quelle professionali, offrendo un equilibrio unico tra vivibilità e opportunità di sviluppo.






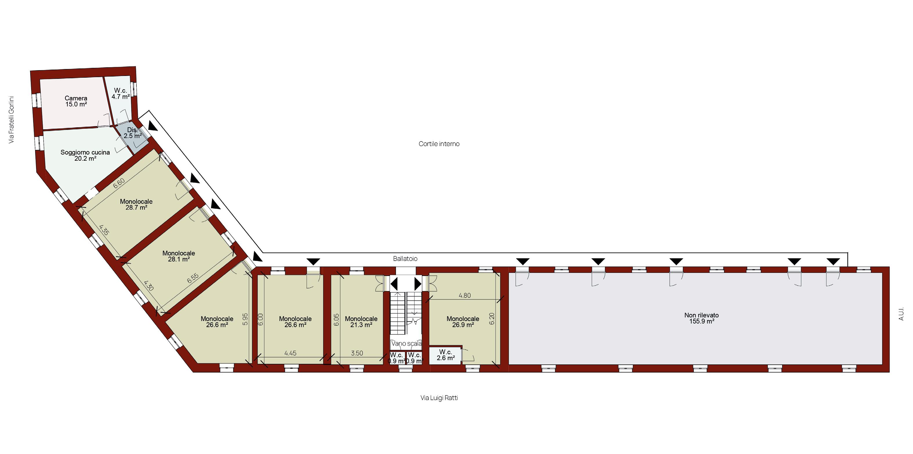
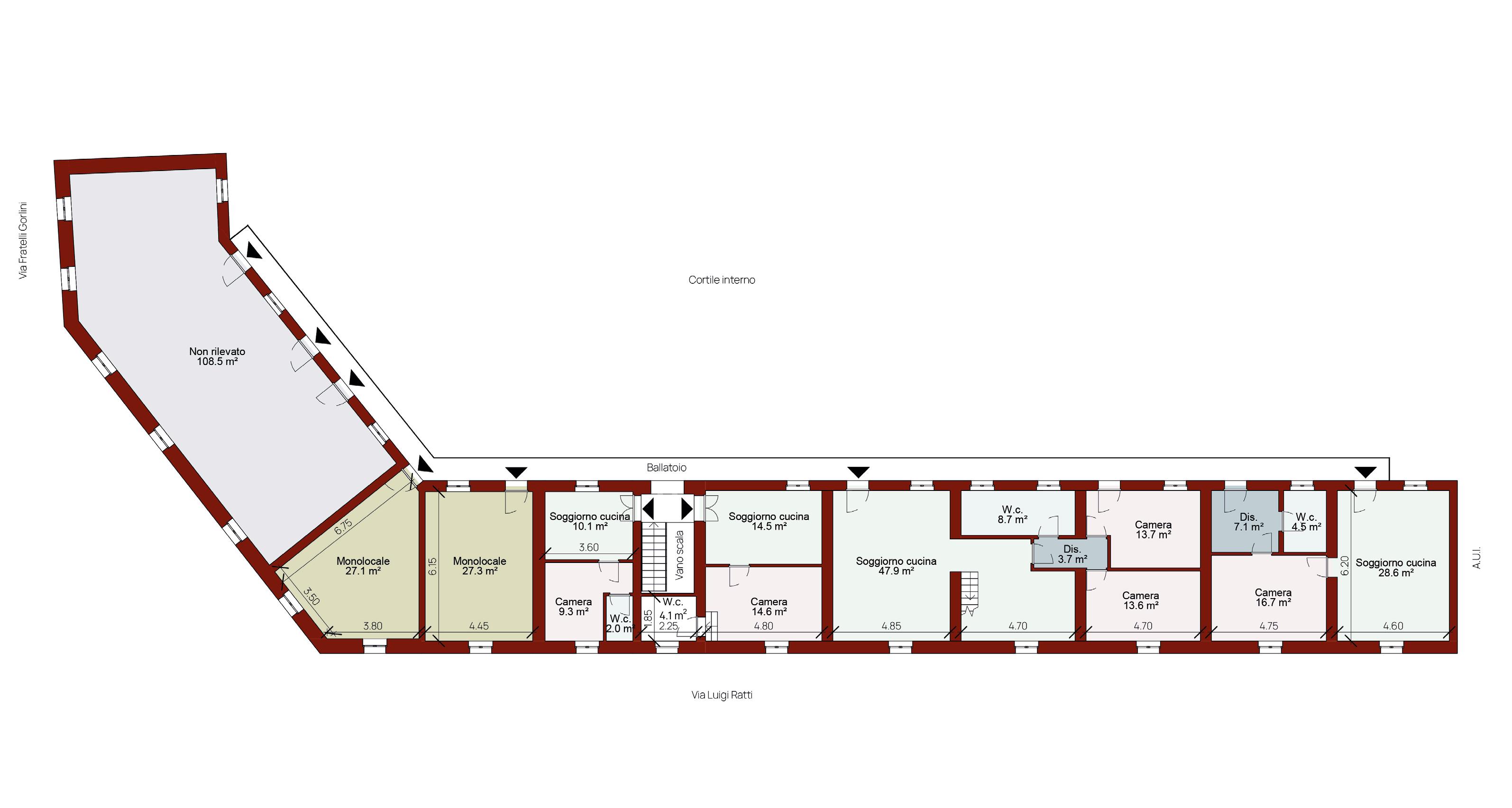
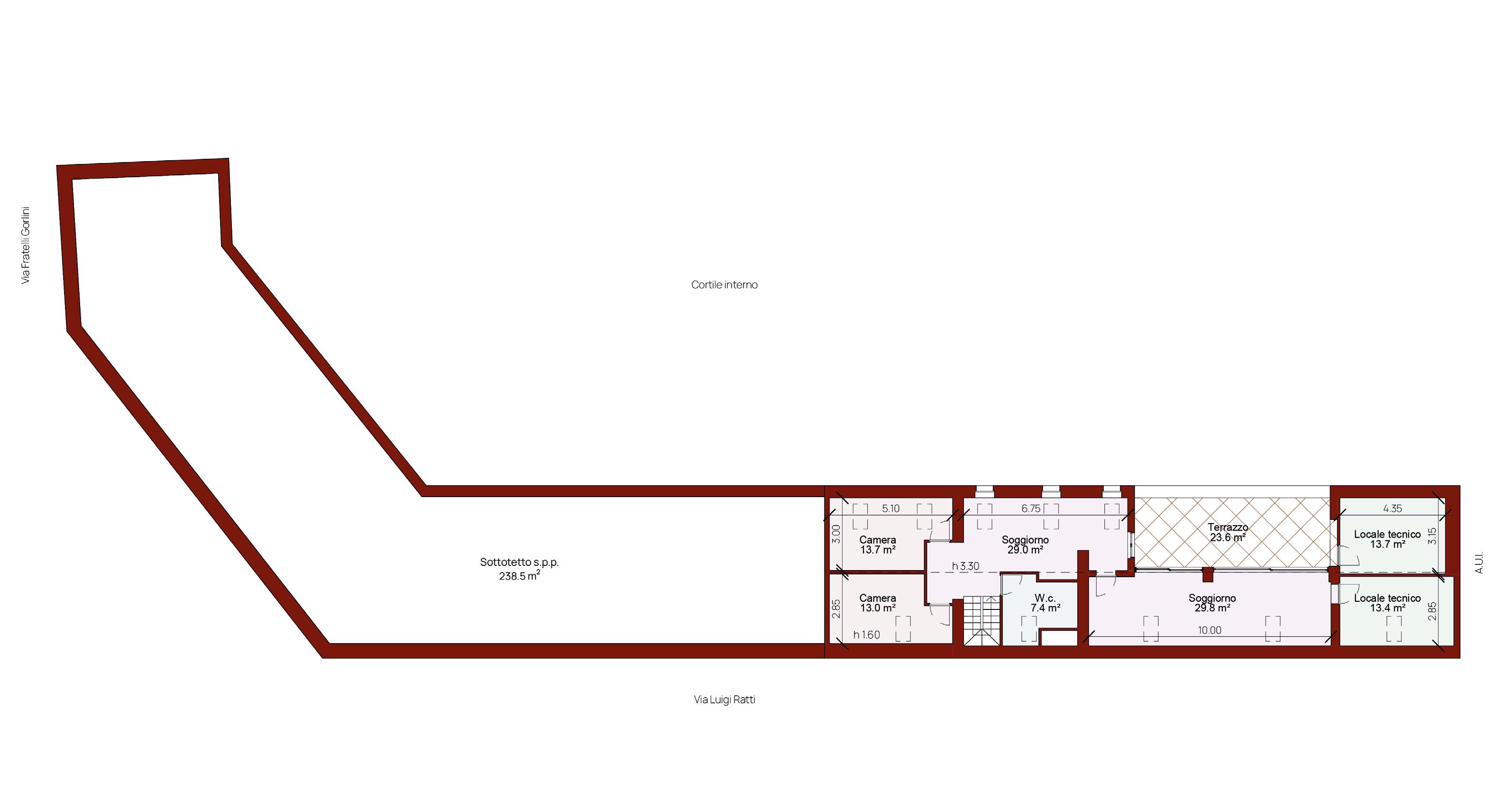
Questo complesso unico si sviluppa su oltre 800 mq, abbracciando esigenze diversificate: le unità abitative, distribuite tra monolocali, bilocali e trilocali, regalano ambienti funzionali e luminosi, mentre il cortile centrale, con un locale convertibile di 350 mq, apre le porte a infinite possibilità di riconfigurazione. Non solo un luogo in cui vivere, ma una piattaforma progettuale per chi vuole immaginare spazi personalizzati e flessibili. Completa il quadro la possibilità di recuperare il sottotetto, aggiungendo valore e superficie a un investimento già ricco di potenzialità.

























Il complesso di via Ratti 3/7 rappresenta una soluzione unica per chi cerca spazi flessibili e versatili. Con oltre 30 unità abitative, distribuite tra monolocali, bilocali e trilocali, offre opzioni che si adattano a ogni esigenza abitativa, dal single alla famiglia. Le attività commerciali al piano terra, con oltre 10 vetrine, aggiungono valore e vitalità a una struttura già ricca di potenzialità. Ogni unità gode di affacci doppi, interni ed esterni, per garantire luminosità e privacy, elementi essenziali per vivere in tranquillità in uno dei quartieri più verdi di Milano.





Le unità abitative, progettate con una disposizione funzionale e moderna, offrono ambienti luminosi e accoglienti, come si vede dalle immagini che catturano l’anima di questo complesso. Oltre agli appartamenti, il cortile condominiale ospita un ampio locale di 350 mq con possibilità di conversione in spazi abitativi, rendendolo ideale per chi cerca personalizzazione e sviluppo. La versatilità di questo immobile non si ferma qui: il recupero del sottotetto offre ulteriori 170 mq da destinare a nuove soluzioni abitative o professionali, rendendo il complesso un vero hub di opportunità.




Questa proprietà unica offre un perfetto equilibrio tra funzionalità e raffinatezza. Al primo e secondo piano, le unità residenziali sono progettate per accogliere esigenze diverse, dai monolocali ai trilocali, garantendo doppi affacci che inondano gli spazi di luce naturale. Ogni appartamento è un microcosmo di comfort e versatilità, ideale per chi cerca soluzioni abitative in una posizione strategica. I dettagli curati e l’armonia tra architettura storica e modernità rendono ogni angolo speciale, perfetto per vivere o per il tuo investimento.





Ogni appartamento del complesso offre soluzioni pensate per soddisfare le diverse necessità abitative. Dai monolocali funzionali ai bilocali accoglienti fino ai trilocali spaziosi, tutti gli spazi si distinguono per la loro luminosità e per una progettazione razionale che valorizza ogni metro quadrato.
L’atmosfera calda e familiare si percepisce nei dettagli: soffitti con travi a vista, cucine ben attrezzate e ampie finestre che inondano gli ambienti di luce naturale. Questi appartamenti, con affacci interni ed esterni, rappresentano una soluzione ideale sia per vivere in un contesto accogliente sia per chi cerca un investimento sicuro e personalizzabile.





LATTERIA
STUDIO AGOSTINI
VESTITI BIMBO
CARROZZERIA
PIZZERIA
FOTOGRAFO
SARTORIA CINESI
CARTOLERIA
TABACCHI
TINA ABBIGLIAMENTO
01/11/2015 01/07/2017 01/11/2020 01/07/2010 15/10/2015 01/04/2004 16/05/2022 20/06/2007 01/10/2003 14/10/2016
31/10/2027 30/06/2029 31/10/2032 30/06/2028 14/10/2027 31/03/2028 15/05/2034 19/06/2025 30/09/2027 13/10/2028
N. 21 / PART.101 / SUB. 26
N. 16 / PART.101 / SUB. 11
N. 20 / PART.101 / SUB. 10
N. 18 / PART.101 / SUB. 706
N. 15 / PART.101 / SUB. 12
N. 28 / PART.101 / SUB. 27
N. 10 / PART.101 / SUB. 3
N. 17 / PART.101 / SUB. 707
N. 19 / PART.101 / SUB. 705
ABITAZIONE N° / PART. / SUB INIZIO LOC. FINE LOC. CAUZIONE 20/06/07 15/06/17 01/07/22 01/10/19 01/10/19 15/10/18 NO CONTR. 01/10/22 01/10/22 19/06/27 14/06/25 30/06/30 30/09/27 30/09/27 14/10/26
31/09/2030 31/09/2030

VIA RATTI, 3 - MILANO (MI)

Superficie vani principali e accessori direttI
/ porticati / soppalchi
cantine / soffitte comunicanti
cantine / soffitte non comunicanti
Totale balconi / terrazzi / portici
Totale aree esclusive

































Descrizione immobile Palazzina cielo terra via Ratti3 / via Ratti 7
Superficie complessiva A3/A4/A5 1059 mq
Superficie complessiva C1 350 mq
Superficie complessiva C2 80 mq
Superficie complessiva C3 170 mq
Superficie complessiva A10 140 mq
Superficie complessiva cortile 900 mq
Anno di costruzione 1920
Riscaldamento Autonomi
Posti auto Sì
Richiesta € 4.000.000
Possibilità di recupero sottotetto e possibilità di cambio di destinazione d’uso di C3/A10 Sì





info@santateclaimmobiliare.com santateclaimmobiliare.com