

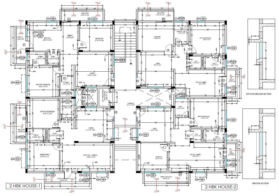
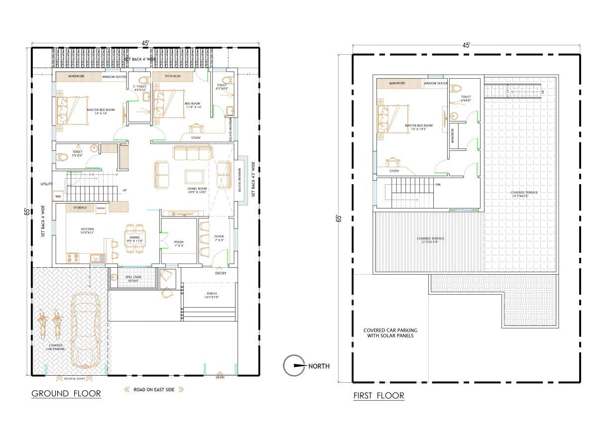
SANKAR K

RESIDENCIAL PROJECT AT KOPPAL




















LOCATION: KOPPAL
BUILT UP AREA : 5500 SFT
SITE AREA : 12275 SFT
APPROX BUDGET: 1.6 CR
STATUS: COMPLETED JAN 2018
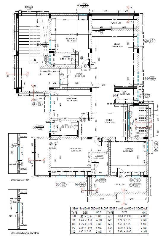
ANUP NAGRALLI RESIDENCE

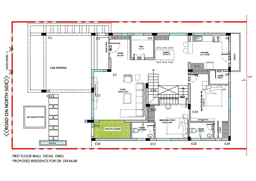
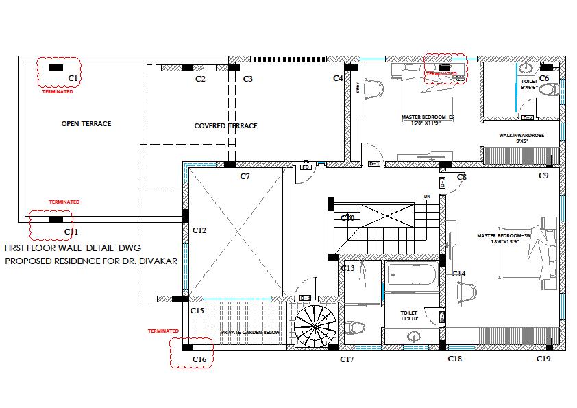
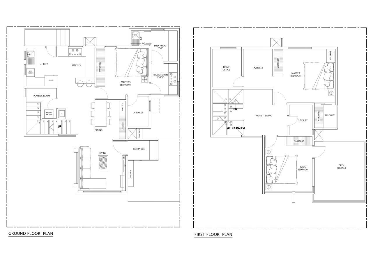
RESIDENCE FOR SHIVAGANGA
LOCATION: DAVANGERE
BUILT UP AREA : 4450 SFT
SITE AREA : 1440 SFT
APPROX BUDGET: 1.20 Cr.
STATUS: COMPLETED NOV 2016

























































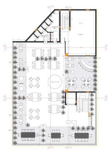
HOTLE PROJECT HUBBALI


TERRACE ROOF

ELECTICAL LAYOUT SECTION




TOILET LAYOUT



















































