Saniya Agrawal_Undergraduate Portfolio KRVIA

Page 1

KAMLA RAHEJA VIDYANIDHI INSTITUTE OF ARCHITECTURE AND ENVIRONMENTAL STUDIES SANIYA AGRAWAL portfolio

SANIYA AGRAWAL

Currently studying in the fourth year at Kamla Raheja Vidyanidhi Institute for Architecture and Environmental studies, seeking internship for a period of 6 months.

I firmly believe that the key to a successful design lies in the meticulous attention to details, particularly when considering the user experience. Given the current environmental challenges, I’ve made it a priority to integrate sustainability principles into my design work. I’m particularly drawn to contoured landscapes and sites, and I find them quite captivating.

During my leisure hours, I take pleasure in embarking on photowalks and exploring different foodjoints. Additionally, I make it a point never to let a sunset slip by without capturing its beauty!

+91 9607710044

saniya.agrawal@krvia.ac.in

@saniya_agrawal19

@prettyyy_skies (Photography)

https://www.linkedin.com/in/ saniya-agrawal-502739209

19.08.2002

education

2020 - present

Kamla Raheja Vidyanidhi Institute for Architecture and Environmental studies

Juhu, Mumbai

2020 - XII SSC

Student Council KRVIA

2020-21: Archival Team

2021-22: Archival Secretary

2022-23: General Secretary and Archival Head

Rotaract Club of KRVIA (RCKRVIA)

2021- present : HRD officer and Treasurer

Exhibitions

Online : Curated the following College

Exhibitions :

1) Colloqium Dissertion 2021-22

2) Drawing as a Building

3) Matthew and Ghosh Architects: Praxis Exhibition

4) Chidambaram Photography Exhibition

5) Year End Exhibition 2021-22

Offline: 1) Representing the Sacred: Curation team

2018 - X CBSE

LVGG secondary and higher secondary school Ahmednagar, MH Nath Valley School Aurangabad, MH

2) Chidambaram Exhibition

3) 26 Ways of seeing Bhopal

Study Trip Committee

contact responsibilities interests

Photography

Travelling Cooking Painting Cafe Hopping

June 2023: Kolhapur

Summer Internship

Environ Planners, Nashik, MH

skill sets

Softwares

AutoCAD

Adobe Photoshop

College Newletter: Landscape Sem 5

Work Published Competitons

Solar Decathlon 23- present

RED 22-23 : Gold Medal in Best out of Waste category

work experiences workshops

Electives

“Unravelling the Anthropocene” by Sandeep Menon

“FEW Nexus” by Minal Yerramshetty

“What the Folly” by Lorenzo Fernandes

“Sustainable Design and Building Performance” by Udeet Methala

“Just Chill: Finding Rest and relaxation in the city” by Ranjana Dave

“Photo Studio for Screenshots” by Archana Hande

“Every Mind Matters” by Neha Patel

Revit

Rhino

Sketchup

Shaper 3D

Design Builder

QGIS

KunsMatrix

Adobe Indesign

Adobe Illustrator

Adobe Premier Pro

Microsoft Office

Grasshopper

Enscape

Others

Hand Model Making

Laser Cut Models

Hand Drafting

Painting

extra curriculars

Sports

KRVIA Girls Football Team

KRVIA Girls Badminton Team

library and study center

working drawing

contents 01 05 07 13 17 21 23 24
pottery workshop and drummers institution chidambaram exhibition uttan: landscape study professional work drawing as building online exhibitions

casestudy: synthesis

imaginary cities

lost in the depths of space

staircase exhibition

material explorations

miscellaneous

travelling and photography

artworks

26
25
27 28 29 29 30 30

01 library and study center

Softwares used: Revit, Photoshop

AD SEM 5 I GOVANDI, MUMBAI

GUIDE: George Jacob and Shail Bajaria

01
02

Situated in the heart of Govandi, Mumbai, this project has a primary goal of establishing a secure study environment for children, emphasizing peer learning and student interaction. The incorporation of both public and private courtyards is a fundamental aspect of the design, creating spaces that promote social engagement.The use of brick jali walls introduces a captivating interplay of light and shadow, particularly among the twisted columns.

Furthermore, the inclusion of northfacing windows in the study center allows ample natural light and ventilation, and the entire structure is supported by solar panels. This north orientation not only enhances natural lighting but also helps maintain a cooler environment. The spiral staircase stands out as a central feature, leading to the green roof, making it a focal point of the design.

PUBLIC COURTYARD STUDY CENTER (north facing windows) OUTDOOR LIBRARY
Softwares used: AutoCAD, Revit, Photoshop, Design Builder
PRIVATE COURTYARD
03
Sun path analysis Daylight Analysis Simulations
A 04 1 2 3 4 5 6 7 8
1. RESTAURANT
2. PUBLIC COURTYARD
3. WATER FILTER AND WASHROOMS 4. STUDY CENTER AND BOOK STORE 5. PRIVATE COURTYARD 6. COUNCELLOR’S OFFICE
7. AV ROOM
8. LIBRARY
SECTION BB’ A’ B B’ PLAN
SECTION AA’

02 working drawings

C1,C4, C11

WD SEM 6 I GOVANDI, MUMBAI

GUIDE: Kimaya Kelsulkar

C2,C5, C12, C19

SC1,C55

SC2, C13, C20, C56

SC3, C21, C25, C30, C34, C41

SC4, SC5, SC6, C22,C27,C31,C35 C6,C8,C17, SC7, SC10,C36, C42

SC8, C37, C43, C46

C7, C14, C18

SC9, C9, C15, C38, C47, C50 C16,C23,C28,C32 C39,C44,C48,C51

C24,C26,C29,C33, C40,C45,C49

SC4, SC5, SC6, C22,C27,C31,C35 C6,C8,C17, SC7, SC10,C36, C42

SC8, C37, C43, C46

C7, C14, C18

SC9, C9, C15, C38, C47, C50 C16,C23,C28,C32 C39,C44,C48,C51

C24,C26,C29, C33,C40,C45,C49

C52

C53, C54

9745 2500 2770 5055 5595 6825 8195 2605 6065 2080 2185 6430 505 2285 1465 11460 9785 4355 6825 245 550 555 530 1420 1355 2910 1305 265 3635 810 7935 4205 3190 335 2035 3335 2870 3255 1325 5540 5270 2835 10110 7510 530 6400 485 12185 3335 4455 2555 255 7090 3720 4375 4985 3140 11000 5280 4865 6265 2920 4000 3515 2540 3710 6550 7490 4455 2190 950 375 955 2380 9775 5335 8995 2975 6180 4540 6405 3020 4310 15635 8755 1630 4250 3830 1405 6150 6185 8135 5310 3770 3710 9000 1:15 slope 1:15 slope A B C D E F G H J K L M N 0m +0.3m -0.5m -1m 0.3m -1m -1.5m -0.8m -0.8m -1.5m -1m -0.8m -1.2m 0 0 -1.2m -0.8m 1.5m -1.2m 4120 4995 5555 5000 4510 4550 2355 2810 2105 2245 3735 AV ROOM 11.3 x 11 m ROOF ACCESS 6.4 x 6.7 m STUDY CENTRE BOOK STORE 4.7 x 4.3 m INDOOR DINING 9.5 x 5.3 m KITCHEN 7.4 x 3.9 m OUTOOR DINING 6 x 5.3 m LIBRARY COUNSELOR'S OFFICE CHANGING ROOM -0.8m CONTROL ROOM 6.6 x 3.4 m D1 D1 D1 D1 D1 D1 D2 D3 D3 D3 D3 D3 D3 D3 D3 D4 D4 D3 D2 D2 D2 2590 2575 -1m P Q 6855 UP UP UP UP DOWN DOWN DOWN DOWN DOWN UP 1.5m UP SW1 DOWN DOWN UP 16 15 14 13 12 11 10 9 8 7 6 5 4 3 2 1 16 15 14 13 12 11 10 9 8 7 6 5 4 3 2 1 17 17 5375 4150 3335 1630 1440 2230 2540 2465 2560 2475 2500 3325 3120 3400 5135 3650 5375 4150 3335 1630 1440 2230 2540 2465 2560 2475 2500 3325 3120 3400 5135 3650 W1 W1 W1 W1 W1 W1 W1 W1 W1 W1 W1 W1 W1 W1 W1 W2 W2 W2 W2 W2 W2 W3 W3 W3 W3 W3 W4 W4 W4 W4 W4 W4 W4 W4 W4 W4 W4 W4 W4 W4 W4 W4 W4 W4 W4 W4 W5 W5 W5 W5 W5 W5 W5 W5 W5 W5 W5 W5 W5 W5 W5 SW1 W5 D2 D2 D2 D2 D2 D2 D2 D2 D2 0m 0m DOWN DOWN LADIES TOILET MENS TOILET WATER FILTER DOWN UP UP DOWN BACK STAGE C3,C10 C1,C4, C11 C2,C5, C12, C19 SC1,C55 SC2, C13, C20, C56 SC3, C21, C25, C30, C34, C41 4120 4995 5555 5000 4510 4550 2355 2810 2105 2245 3735 2590 2575 6855
A B C D E F G H J K L M N P Q C3,C10
C52 C53, C54 C 1 C 2 C 7 C 6 C 5 C 4 C 3 C 9 C 8 C 13 C 12 C 11 C 10 C 16 C 15 C 14 C 18 C 17 C 24 C 23 C 22 C 21 C 20 C 19 C 25 C 26 C 27 C 28 C 29 C 30 C 31 C 32 C 33 C 34 C 35 C 36 C 37 C 38 C 39 C 40 C 41 C 42 C 43 C 44 C 47 C 45 C 46 C 48 C 49 C 50 C 51 C 52 C 53 C 54 C 55 C 56 SC 1 SC 2 SC 3 SC 4 SC 5 SC 6 SC 7 SC 8 SC 9 SC 10 -1m +0.3m +0.3m WF1 F1 S1 C1 WF1 F1 S1 C1 WF1 F1 S1 C1 WF1 F2 S2 C1 WF1 F2 S2 WF2 F1 S2 C2 WF2 F1 S2 C2 WF2 F1 S2 C2 WF2 F1 S2 C2 WF2 F1 S2 C2 WF2 F1 S2 C2 WF2 F1 S2 C2 WF2 F1 S2 C2 WF2 F2 S1 C2
Softwares used: AutoCAD 05

SECTION BB'

SECTION BB'

SECTION BB'

WOODEN ROOF DETAIL

1. ALL DIMENSIONS ARE IN MM .

WOODEN ROOF DETAIL

2. DO NOT SCALE THE DRAWINGS .

3. FOLLOW WRITTEN DIMENSIONS ONLY .

4.THIS DRAWING IS THE PROPERTY OF THE ARCHITECT AND SHOULD NOT BE COPIED WITHOUT HER PERMISSION.

5. ALL STRUCTURAL DIMENSIONS ARE TO BE REFERRED FROM THE STRUCTURAL ENGINEER'S DRAWINGS.

6. ALL THE SERVICES TO BE REFERRED FROM THE SERVICES CONSULTANT DRAWINGS .

7. FOR ALL OTHER DETAILS,REFER TO OTHER RELEVANT DRAWINGS .

8. ALL EXISTING GROUND LEVELS TO BE VERIFIED BY THE CONTRACTOR BEFORE COMMENCEMENT OF WORK.

9. IN CASE OF DISCREPANCY , IT SHOULD BE IMMEDIATELY BROUGHT TO NOTICE OF THE ARCHITECT / CONSULTANT .

16 15 14 13 3325 3120 3400 5135 W4 W4 W4 D3 W5 D1 12 11 10 9 8 7 6 5 4 3 2 1 5375 4150 3335 1630 1440 2230 2540 2465 2560 2475 2500 11 10 9 8 7 6 5 4 3 4150 3335 1630 1440 2230 2540 2465 2560 2475 W4 W4 11 10 9 8 7 6 5 4 3 2 1 5375 4150 3335 1630 1440 2230 2540 2465 2560 2475 -1.5M +3.5M +5M -1M -0.8M 0M +0.3M TERRACE RAILING COPING PARAPET(530mm) GREEN ROOF RAIN CHAIN STAGE PCC 150mm thk RUBBLE SOLING 220mm thk RAMMED EARTH PLASTER (20mm) PCC 150mm thk RUBBLE SOLING 220mm thk RAMMED EARTH TWISTED COLUMN GLASS WINDOW 9mm thk RISER 150mm TREAD 300mm RAIN CHAIN TWISTED COLUMN TERRACE RAILING COPING PARAPET(530mm) GREEN ROOF
12MM TOUGHENED GLASS SILICONE WEDGE RUBBER FASTNER ALUMINIUM CHANNEL RUBBER SETTING BLOCK COUNTERSUNK SCREW 20MM STONE FINISH 20MM MORTAR 12MM DIA MAIN REINFORCEMENT BARS 16 15 14 13 3325 3120 3400 5135 12 11 10 9 8 7 6 5 4 3 2 1 5375 4150 3335 1630 1440 2230 2540 2465 2560 2475 2500 11 10 9 8 7 6 5 4 3 2 4150 3335 1630 1440 2230 2540 2465 2560 2475 W4 W4 W4 11 10 9 8 7 6 5 4 3 2 1 5375 4150 3335 1630 1440 2230 2540 2465 2560 2475 +3.5M +5M -1M 0M +0.3M +0.7M PCC 150mm thk RUBBLE SOLING 220mm thk RAMMED EARTH GLASS WINDOW 9mm thk RISER 150mm TREAD 300mm RAIN CHAIN TWISTED COLUMN TERRACE RAILING COPING PARAPET(530mm) GREEN ROOF
SECTIONS STUDY CENTER GOVANDI, SHIVAJI NAME: SANIYA AGRAWAL YEAR: DATE: SHEET: SIGN: 15.03.2023 3rd YEAR COPIED WITHOUT 5. ALL STRUCTURAL TO BE REFERRED STRUCTURAL 6. ALL THE SERVICES FROM THE SERVICES DRAWINGS . 7. FOR ALL OTHER OTHER RELEVANT 8. ALL EXISTING VERIFIED BY COMMENCEMENT 9. IN CASE OF BE IMMEDIATELY OF THE ARCHITECT 16 15 14 13 12 11 10 9 8 7 6 5 4 3 2 1 5375 4150 3335 1630 1440 2230 2540 2465 2560 2475 2500 3325 3120 3400 5135 16 15 14 13 3325 3120 3400 5135 W4 W4 W5 12 11 10 9 8 7 6 5 4 3 2 1 5375 4150 3335 1630 1440 2230 2540 2465 2560 2475 2500 11 10 9 8 7 6 5 4 3 2 1 5375 4150 3335 1630 1440 2230 2540 2465 2560 2475 W4 W4 11 10 9 8 7 6 5 4 3 2 1 5375 4150 3335 1630 1440 2230 2540 2465 2560 2475 -1.5M +3.5M +5M -1M -0.8M 0M +0.3M +3.5M +5M -1M 0M +0.3M +0.7M TERRACE RAILING COPING PARAPET(530mm) GREEN ROOF RAIN CHAIN STAGE PCC 150mm thk RUBBLE SOLING 220mm thk RAMMED EARTH PLASTER (20mm) PCC 150mm thk RUBBLE SOLING 220mm thk RAMMED EARTH TWISTED COLUMN GLASS WINDOW 9mm thk RISER 150mm TREAD 300mm RAIN CHAIN TWISTED COLUMN TERRACE RAILING COPING PARAPET(530mm) GREEN ROOF KEY PLAN
A B ROOFING TILE WATER PROOFING BATTENS COMMON RAFTER PURLINS CLEATS WAY MS STRAP STRUT BOLTS PRINCIPAL RAFTER TIE BEAM CLEAT PURLIN QUEEN POST STRUT PRINCIPAL RAFTER TIE BEAM 12MM TOUGHENED GLASS SILICONE WEDGE RUBBER FASTNER ALUMINIUM CHANNEL RUBBER SETTING BLOCK COUNTERSUNK SCREW 20MM STONE FINISH 20MM MORTAR 12MM DIA MAIN REINFORCEMENT BARS CRANKING 1/5TH SPAN 12MM DIA CHAIRS 8MM DIA DISTRIBUTION BARS 12MM DIA MAIN REINFORCEMENT BARS 50MM MS BALUSTRADE STAINLESS STEEL GLASS CLAMP BASE PLATE NUT AND BOLT GROOVING 25MM HALF ROUND NOSING 20MM STONE TREAD 20MM STONE RISER RCC SOFT 12MM INTERIOR PLASTER 16 15 14 13 12 11 10 9 8 7 6 5 4 3 2 1 5375 4150 3335 1630 1440 2230 2540 2465 2560 2475 2500 3325 3120 3400 5135 16 15 14 13 3325 3120 3400 5135 W4 D3 D1 12 11 10 9 8 7 6 5 4 3 2 1 5375 4150 3335 1630 1440 2230 2540 2465 2560 2475 2500 11 10 9 8 7 6 5 4 3 2 1 5375 4150 3335 1630 1440 2230 2540 2465 2560 2475 W4 W4 11 10 9 8 7 6 5 4 3 2 1 5375 4150 3335 1630 1440 2230 2540 2465 2560 2475 -1.5M +3.5M +5M -1M -0.8M 0M +0.3M +3.5M +5M -1M 0M +0.3M +0.7M TERRACE RAILING COPING PARAPET(530mm) GREEN ROOF RAIN CHAIN STAGE PCC 150mm thk RUBBLE SOLING 220mm thk RAMMED EARTH PLASTER (20mm) PCC 150mm thk RUBBLE SOLING 220mm thk RAMMED EARTH TWISTED COLUMN GLASS WINDOW 9mm thk RISER 150mm TREAD 300mm RAIN CHAIN TWISTED COLUMN TERRACE RAILING COPING PARAPET(530mm) GREEN ROOF SECTION
SECTION
WOODEN 12MM TOUGHENED GLASS SILICONE WEDGE RUBBER FASTNER ALUMINIUM CHANNEL RUBBER SETTING BLOCK COUNTERSUNK SCREW 20MM STONE FINISH 20MM MORTAR 12MM DIA MAIN REINFORCEMENT BARS 9. 16 15 14 13 12 6 1440 2230 2500 3325 3120 3400 5135 W4 TERRACE RAILING COPING PARAPET(530mm) GREEN ROOF RAIN CHAIN STAGE PCC 150mm thk RUBBLE SOLING 220mm thk RAMMED EARTH PLASTER (20mm) TWISTED COLUMN
AA'
BB'
ROOFING TILE WATER PROOFING BATTENS COMMON RAFTER PURLINS CLEATS 3 WAY MS STRAP STRUT BOLTS PRINCIPAL RAFTER TIE BEAM CLEAT PURLIN QUEEN POST STRUT PRINCIPAL RAFTER TIE BEAM 1. 2. 3. 4.THIS THE COPIED 5. 6. ALL 7. 8. ALL 9. IN 16 15 14 13 12 11 10 4 3335 2475 2500 3325 3120 3400 5135 16 15 14 13 3325 3120 3400 5135 D1 12 11 10 9 8 7 6 5 4 3335 2475 2500 TERRACE
COPING PARAPET(530mm) GREEN ROOF RAIN CHAIN STAGE PCC 150mm thk RUBBLE SOLING 220mm thk RAMMED EARTH PLASTER (20mm) TWISTED COLUMN KEY A B
RAILING
ROOFING TILE WATER PROOFING BATTENS COMMON RAFTER PURLINS CLEATS 3 WAY MS STRAP STRUT BOLTS PRINCIPAL RAFTER TIE BEAM CLEAT PURLIN QUEEN POST STRUT PRINCIPAL RAFTER TIE BEAM 06
SCALE - 1:10 1 2 3 4 5 6 7 8 9 10 11 12 13 14 15 16 17 18 19 20 21 22 23 24 25 26 27 28 29 30 31 32 90 90 90 90 90 90 90 90 90 90 90 90 90 90 90 90 90 90 90 90 90 90 90 90 90 90 90 90 90 90 90 90 A 20° 30° 40° 50° 60° 70° 80° PLAN-COURSE : 1,2,11,20,29 PLAN-COURSE : 3,12,21,30 PLAN-COURSE : 4,13,22,31 PLAN-COURSE 5,14,23,32 PLAN-COURSE : 6,15,24 PLAN-COURSE : 8,17,26 PLAN-COURSE : 9,18,27 PLAN-COURSE : 10,19,28 NOTE: ROTATION ANGLE IS 10 DEGREE FOR EACH COURSE 350 PLAN-COURSE : 7,16,25 15MM THICK MORTAR EXPOSED BRICK FLOORING AS PER SPECIFICATION 50MM STONE RCC SLAB STUB COLUMN 100 DIA STEEL COLUMN TWISTED BRICK PEIR DETAIL A AT 1: 5 75 75 75 75 KEY PLAN DOWN SECTIONS WOODEN ROOF DETAIL TWISTED COLUMN DETAIL

AD SEM 6 I CHIDAMBARAM, TAMIL NADU

03 pottery workshop and drummers institution

GUIDE: Krish Shah

Softwares used: AutoCAD, Photoshop 07
08

Balance the consistency principle with the inconsistency principle

This oblique strategy serve as lenses through which we can reevaluate and reconfigure relationships and hierarchies, potentially leading to new ways of connecting the temple and the city. The primary emphasis of this project centers around the Pariyar community, traditionally known for their roles as drummers and potters. The aim is to establish an institution that empowers and provides a dedicated space for this community.

Nature is a crucial element in this endeavor, contributing to a sense of comfort and tranquility.The project places a significant focus on the circulation within the spaces. The mounds, which introduce a sense of irregularity amidst the uniform program spaces, play a key role in how individuals move through the area.

PLAN CUT AT 4500mm SITE PLAN 1. Pottery exhibition 2. Pottery Workshop
2 1 3 Softwares used: AutoCAD, Photoshop 09
3. Drummers Institution
AA’
10
SECTION
SECTION BB’
PLAN CUT AT 1000mm 11 Softwares used: AutoCAD, Photoshop 1 3 2 4 5
1. Pottery exhibition 2. Hands on Pottery Workshop 3. Washrooms 4. Pottery Shop 5. Kitchen and Restaurant

PHYSICAL MODEL Illustrating the diverse areas and the variations in topography created by the mounds.

SECTION CC’
SECTION DD’
12

04 chidambaram exhibition

SEM 6 I CHIDAMBARAM,TAMIL NADU Collaborative work

13
14

The Third Year Study of Institutions is Interested in the ways in which the architecture of the temple town makes a community. This enables one to question spatial systems, beliefs and practices that are deployed to create and structure the society, and the resistances and emerge when subversions that this community is challenged by other value systems.

We’ve studied the temple town of Chidambaram in Tamil Nadu, famous for the Nataraja Temple and the chariot festival. 250 kms away from the city of Chennal, the city plan is representative of a typical South Indian Temple Town, with a central temple complex and concentric rings of caste based streets around. Through the study the we aimed to unpack some of the Institutions that structure everyday life in the town. The study on the basis of the role that theinstitution is meant to play, the way in which it performs this programmatically and architecturally, and how these Institutions intersect witht the everyday life of the town.

15
16

LANDSCAPE STUDIO SEM 6 I UTTAN,MUMBAI

GUIDE: Swati Seshadri, Neha Shah

05 UTTAN: landscape study

Collaborative work

17
18
19
20

06 professional work

ENVIRON PLANNERS, NASHIK

Project Team : WADE AISA Second Runners up in Sustainable Design Category for Yellow Stone Farmstay

Plans for Sanjay Jadhav Residence, Nashik

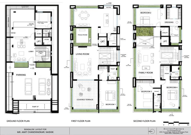
Plans for Mr.Amit Chandwadkar, Nashik

Rendered exploded axonometric for Sanjay Jadhav Residence, Nashik
21

Designed a library layout for Proposed Mumbai University’s Model College at Talkere, Kankavli

PASSAGE 3M WIDE

Diagrams made for Entry Panel for WADE ASIA 2023 (yellow stone resort)

Rendered plans for a proposed residence at Solapur

Exploded Jerokha Detail for Sanjay Jadhav Residence, Nashik

DOOR SCHEDULE DESCRIPTION SIZE (All doors should be built as per detail) AL. GLAZED SLIDING WINDOW (sill=1000mm) hieght of ventilator) SPECIFICATIONS: --ACRYLIC CEMENT PAINT (APEX ASIAN PAINTS). SHADE AS PER SELECT.. -----5. DOORS, WINDOWS WITH 6. PAINTING WEATHER PROOF EMULSION (APEX-ASIAN PAINT). - INTERNAL STEELWORKAND SYNTHETIC ENAMEL PAINT OF APPROVED SHADE AND QUALITY. - R.C.C SLAB/ LYSAGHT KL770 INSULATED ROOFING SYSTEM AS PER DETAIL 8. WATERPROOFING BRICK BAT COBA WITH POLYMERIZE TREATMENT MATERIAL 9. PLUMBING AND EARTHENWARE 10. FIXTURES AND FASTENING-SPECIFICATIONS FOR FINISHING OF SURFACES shade as per selection.as specified. 60 mm thk. paver block as per specification P2- 80 mm thk. paver block as per specification (600 600) vitrified tiles. (RAK ASIAN: as per selection). G- 100 mmx600 mm vitrified tiles same flooring - Steel Gray granite flooring (leather finish) External sand face plaster M China mosaic tiles with waterproofing brick bat coba and cementGhota AL. GLAZED WINDOW (as per detail) W5 AL. GLAZED SLIDING WINDOW (sill=1000mm) AL. GLAZED LOUVERED (sill=1330mm) (as per detail) GLAZING (as per detail)(sill=1000mm) AL. GLAZED SLIDING WINDOW (sill=1000mm)
LIBRARY 58'3" X 38'6" CLASS ROOM D1 D1 FG3 FG3 W1 W2 W3 W3 W3 W3 W4 550X550 C69 550X550 C66 550X550 C67 550X550 C68 550X550 C76 550X550 C96 550X550 C97 550X550 C77 550X550 C85 550X550 C84 550X550 C86 550X550 C87 550X550 MAGAZINE AND NEWS PAPER RACK COMMON READING AREA INFORMATION DESK COMP LAB 1800 BOOK STACKING AREA 1200 1455 2400 500 1455 1700 1585 800 900 2835 8450 1500 3000 600 400 600 750 1030 5965 4660 1500 1500 1310 1635 1180 2940 400 1325 425 900 900 1800 1800 815 800 800 800 800 800 1570 820 1925 5200 2009 400 400 400 3075 SECOND FLOOR PLAN TITLE: DRAWING NO: Ar.Sanjay M Patil Environ Planners www.environplanners.com PROJECT: PROPOSED MUMBAI UNIVERSITY'S MODEL COLLEGE AT TALERE, KANKAVLI CLIENT: JOB NO.: DEALT BY: SCALE: LANDSCAPE CONSULTANT: PLUMBING CONSULTANT: MHASKE ROHIT Y. TUSHAR M. SHRUTHI S. 2.3 1. THIS DRAWING IS THE EXCLUSIVE PROPERTY OF ENVIRON THEIR PERMISSION. IS NOT TO BE SCALED FOR ANY EXECUTION WORKS. 4. ANY ADDITION OR ALTERATION TO THIS DRAWING SHOULD CONSULTANTS. THIS DRAWING SHOULD BE BROUGHT TO THE NOTICE OF 6. ALL WORKS SHOULD BE EXECUTED IN ACCORDANCE WITH INDIAN STANDARD CODES OF PRACTICES. ARCHITECTURAL AND ENGINEERING DRAWINGS. 9. THIS DRAWING MUST BE READ IN CONJUNCTION WITH ALL ARCHITECTURAL ENGINEERING, INTERIOR, MECHANICAL DRAWINGS AND AS PER SITE CONDITIONS. GENERAL NOTE 2016.06.22 REVISION 2016.06.22 MODIFICATION OF SECTION MARKED WITH CLOUD 22

07 drawing as building

TECHNOLOGY STUDIO SEM 4 I LUCKNOW

Collaborative Work (group of 4)

SHAHI BAOLI The Shahi baoli built on the left flank of Nawab Asaf - ud - daula’s Imambard in Lucknow is a typical Indo - Mughal architectural design. The structure is 5 storeyed set in a rectangular plan having open interconnected galleries and cells at each level. The first 2 storeys were above water and the rest were perennially under water.

23

08 online exhibitions

Made on : KUNSMATRIX 26 ways of seeing bhopal
24
Drawing as building

AD SEM 3 I NHOUSE BY SOU FUJIMOTO

GUIDE: Rutika Parulkar

09 casestudy: synthesis

Group of 3

25

10 imaginary cities

GUIDE: Misbah Hararwala

There is a precipice between two steep mountains: the city is over the void, bound to the two crests with ropes and chains and catwalks. You walk on the little wooden ties, careful not to set your foot in the open spaces, or you cling to the hempen strands. Below there is nothing for hundreds and hundreds of feet: a few clouds glide past; farther down you can glimpse the chasm’s bed.

This is the foundation of the city: a net which serves as passage and as support. All the rest, instead of rising up, is hung below: rope ladders, ham- mocks, houses made like sacks, clothes hangers, ter races like gondolas, skins of water, gas jets, spits, baskets on strings, dumb-waiters, showers, trapezes and rings for children’s games, cable cars, chande-liers, pots with trailing plants. Suspended over the abyss, the life of Octavia’s inhabitants is less uncertain than in other cities. They know the net will last only so long.

26

ESQUISSE DESIGN COMPETITION

11 lost in the depths of space

Collaborative work (group of 5)

Libraries can indeed create an immersive environment that transports you through time, the larger the scale- slower the time, providing an unique experience. The spaces in there can create a feeling of getting lost in time and through the depths of knowledge. Imagining a space where we can get lost in none less than a maze, getting lost with the ideas of how the books gives us infinite knowledge. The process follows by going ahead through keywords. Abstract - Experential - Preliminary

SPACE SERIES CONTOUR TIME COVERED PLAY EVENT LEVELS LOST SHADOW MOMENT MODERN SEMIOPEN ANCIENT MEDIEVAL DOME WAVES SPACE - TIME FABRIC ENLIGHTMENT 27

12 staircase exhibition

TECHNOLOGY STUDIO SEM 4 I RCC DOG LEGGED

Collaborative work (group of 3)

Reinforcements inside for structure

Final Model made using WAX

28

material explorations

watchmaker sticks (allied studio tensigrity model)

cement (TOS : cycle parking)

mud (AD sem6 mound exploration)

paper (AD sem3 explorations)

29
sunboard (horse stable prototype) greyboard (uttan site model) filecard (allied design studio)

Introductory workshop

“Unravelling the Anthropocene” by Sandeep Menon school as a machine coastway to catastrophe

The school was imagined to turn into a factory where students worked like robots, day and night to produce work. The life inside and outside of the college was depicted to be completely opposite, transforming the student based on the environment. To escape from this monotous machine life, students were imagined to go outside to the garden and ground to play, gossip and unload their burden, again ending up spending their nights crawling back to those studio spaces to repeat the cycle all over again. The drawing depicts that cyclic rhythm that is imbibed by the student while they work like machines.

https://youtu.be/2mANYD3k1SI?si=MhsVldgae9mx5zbv

The video aims at questioning the existing notions of development in Mumbai. Mainly focusing the recent coastal road project. It proposes the viewers to have an open mind towards the issues faced by the Koli community and the wildlife affected by it.

30 miscellaneous
ACRYLIC ON CANVAS STEADLERS ON PAPER WATERCOLOURS ON PAPER
RESIN ART
31
ACRYLIC ON COLUMN
artworks

travelling and photography

32
+91 9607710044 saniya.agrawal@krvia.ac.in thank you :)

Turn static files into dynamic content formats.

Create a flipbook
Issuu converts static files into: digital portfolios, online yearbooks, online catalogs, digital photo albums and more. Sign up and create your flipbook.
Saniya Agrawal_Undergraduate Portfolio KRVIA by saniyaagrawal19 - Issuu