

PORTFOLI-O
Sandrik Vizarraga Pavloff Architecte KUL - HES
Rue Jean-Charles Amat 1, Genève CH-1202 +41 76 616 35 21 sandrik.v.p@hotmail.com
2021-2024... Architecte chez LRS Architectes SA (CH) 2019-2021 Master of Science KU Leuven (BE) 2015-2018 Bachelor of Arts HES-SO (CH) 2010-2014 CFC Dessinateur en Architecture d’Intérieur (CH)
Architecture- Composition
Materiality -
Mon parcours a débuté par une formation enrichissante en tant que dessinateur en architecture d’intérieur aux Arts Appliqués de Genève. Cette expérience m’a non seulement permis de développer une forte sensibilité à la matérialité et à l’espace, mais elle a également suscité en moi un intérêt marqué pour la rigueur de la composition architecturale. Cette approche pluridisciplinaire m’a immédiatement fasciné et a confirmé mon souhait de poursuivre mon cursus à une échelle plus vaste : celle de la ville.
Je suis profondément convaincu que la richesse créative se matérialise par une conception technique rigoureuse. Cette dualité, inhérente à la pratique architecturale, me passionne et a été au cœur de l’enseignement que j’ai reçu lors de mon Bachelor en architecture à la Haute École du Paysage, d’Ingénierie et d’Architecture de Genève. Durant cette même période, les écrits de Peter Zumthor ainsi que les textes théoriques de Jacques Lucan et Martin Steinemann ont nourri ma pratique, accordant une place centrale à la composition formelle et à la sensorialité de l’espace.
Cet attrait pour la forme se complète par une approche centrée sur l’humain et ses multiples environnements. Pour moi, il s’agit d’une composante primordiale, que j’ai notamment développée grâce au Master of Science que j’ai suivi à la KU Leuven en Belgique. L’enseignement y était axé sur la valorisation de l’existant et sur l’utilisation des usagers comme ressource et moteur du projet. Conscient des enjeux socio-environnementaux de notre époque, mon engagement se tourne vers une pratique responsable et critique vis-à-vis de la production architecturale contemporaine et du rôle des architectes dans l’articulation d’une transition paradigmatique globale.
02-07
LRS - FER
08-13 14-19
Diplôme BArch
20-23
24-27
LRS - LCU
28-33
Diplôme MArch
34-37
Batiments Coopératifs
Logements coopératifs et Crèche.
Nations (GE) / Suisse
Playhouse
«Haute Ecole de Musique» à la Place des Nations.
Nations (GE) / Suisse
Hybridspace
Développement résidentiel du quartier de Matongé.
Bruxelles / Belgique
One and a half Villas contiguës dans le quartier des Moraines.
Carouge (GE) / Suisse
Cité universitaire
Tour de logements étudiants à la Cité Universiatire
Champel (GE) / Suisse
Polyrhythmic Territories
Un projet pour la Vallée de la Limmat.
Limmattal (ZH) / Suisse
Projets personnels
Différents projets effectué lors de mes BArch & MArch
Différents lieux

Référent·e : William Jaulain (Chef de projet)
LRS - FER
Type : Logement / Crèche
M.O : Socoop / Codha
Lieu : Route de Ferney 27, 1202 (GE), CH
Date : 2021-2025
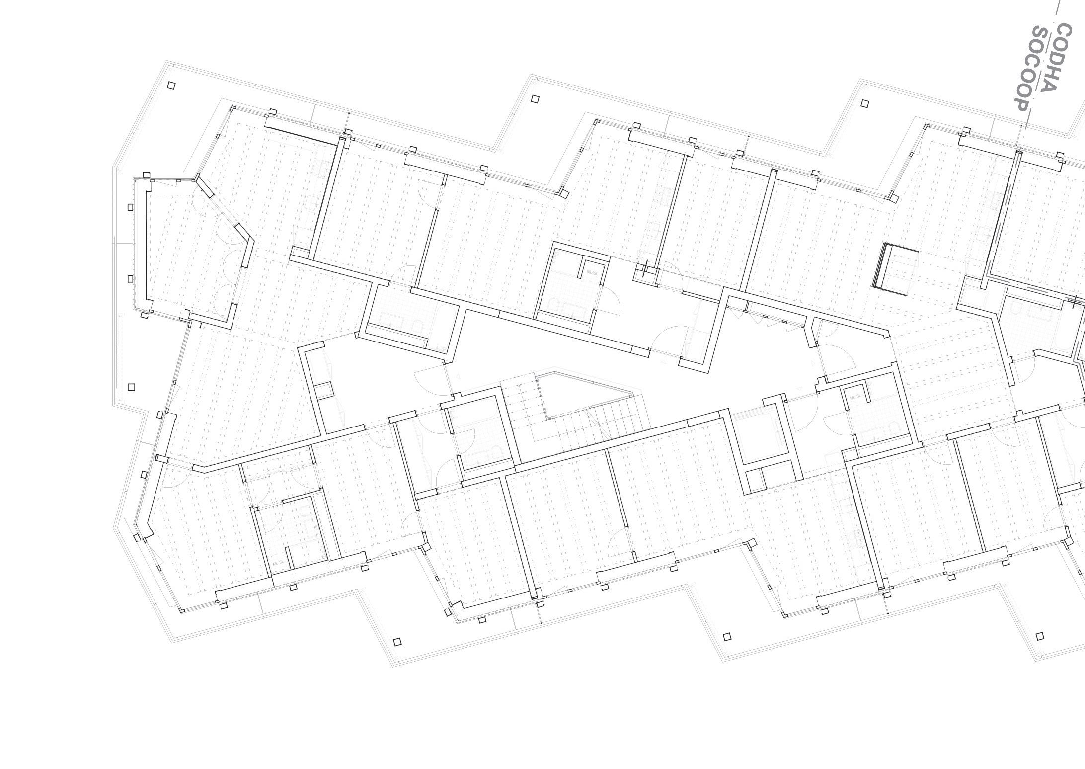
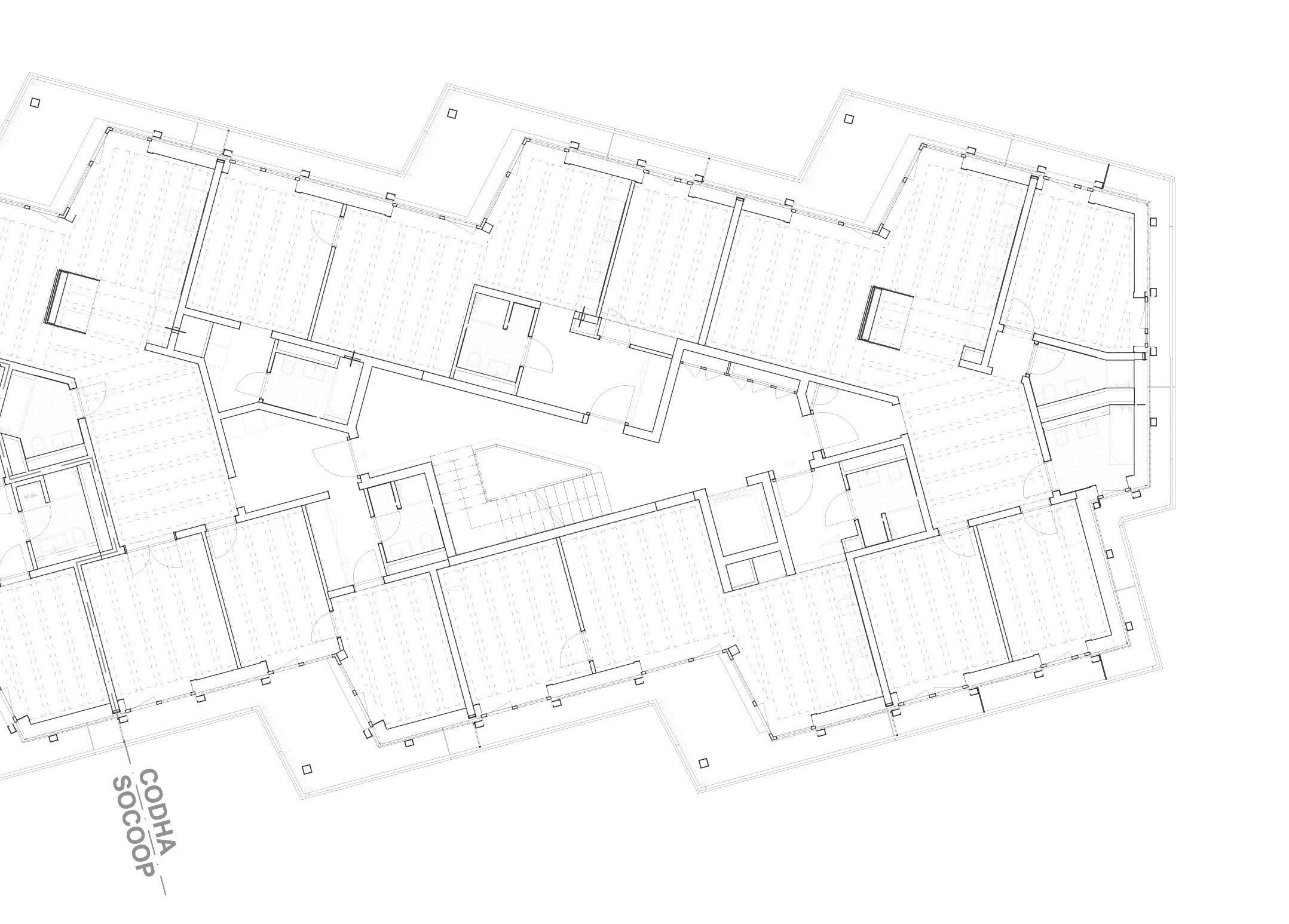
Issu d’un concours lancé par deux coopératives (Socoop/ Codha), le projet FER est composé de deux bâtiments de logements (Crocodile) et activités (Tortue), en construction mixte bois-béton. Ma participation intervient à la reprise de l’affaire, suite à un recours, tant dans la coordination que pour le développement des phases SIA liées à l’exécution. En parralèle, j’ai participé à l’élaboration du bâtiment de la crèche pour la Ville de Genève (TCR), effectué la procédure de demande complémentaire, assurer la communications avec la Ville et développé de multiples lots en appel d’offres, puis en exécution.
(FER) Phase SIA
Recours (1 an)
33. Demande d’autorisation
41. Appel d’offre
51 Projet d’exécution
52 Exécution de l’ouvrage
53 Mise en service
02. Perspectives photoréalistes du concours, vue depuis la route de Ferney ©LRS Lien du projet : https://www.lrs.ch/projet/logements-cooperatifs-route-de-ferney/


02.
03.Bâtiment Crocodile : Etage type illustrant la typologie en arrête de poisson, offrant des vues multiples et une orientation portée vers l’intérieure de la parcelle. Le solivage brut suit l’orientation des pièce et structure les différents espaces articulés.
04. Bâtiment Tortue : Façade Nord-Est du bâtiment donnant sur le chemin du Petit-Saconnex, qui sera une des deux entrées principale de la crèche.

03.
04.
05. Bâtiment Tortue : Façade Nord-Est du bâtiment donnant sur la cour collective par laquelle les parents peuvent également accéder à la crèche.

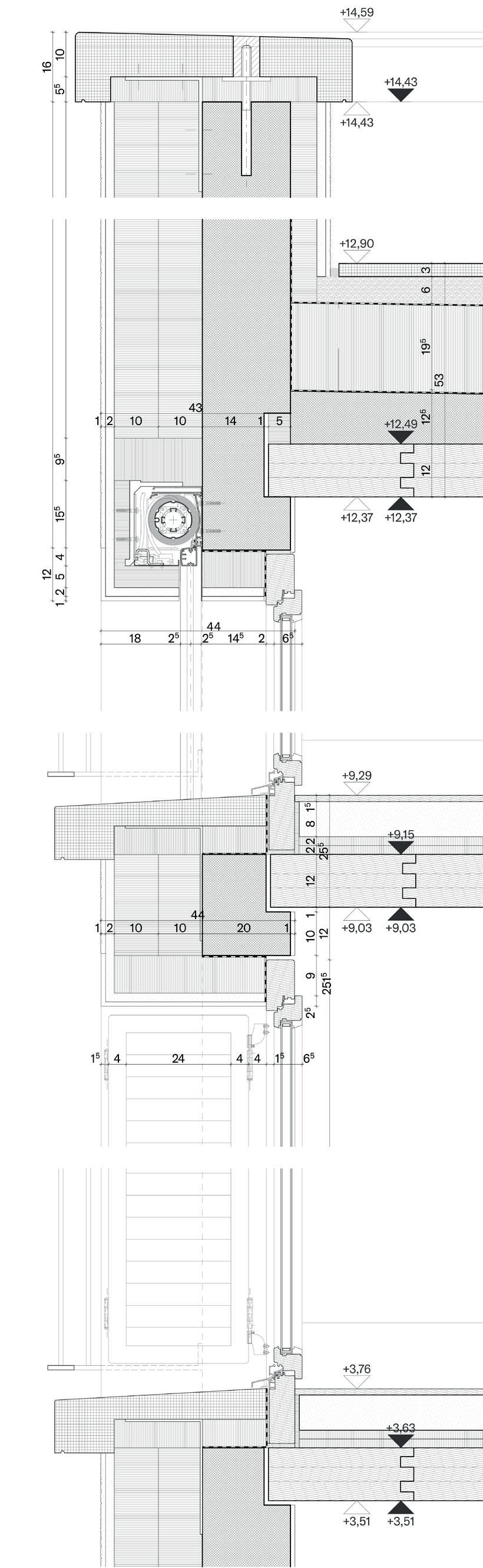
06. Bâtiment Tortue (TCR) : Recherche par séquence spatiale, des potentiels d’amménagement intérieur et impact constructif. Tableau synthétique développé lors de la phase exécution gros-oeuvre du bâtiment Tortue.

07. Bâtiment Tortue (TCR) : Recherche de matérialité pour les différents espaces intérieurs de la crèche. Image supérieur, vue depuis la salle de vie des petits donnant sur local de change. Perspective du dessous, vue depuis la salle de change mutualisée des deux groupes de grands. (Photo d’études)
(TCR) Phase SIA
31 Avant-projet
32 Projet de l’Ouvrage
33. Demande d’autorisation
41. Appel d’offre
51 Projet d’exécution
52 Exécution de l’ouvrage
53 Mise en service



Diplôme BArch
Playhouse
Type : Haute Ecole de Musique (HEM)
Lieu : Place des Nations, Genève (GE), CH
Date : BArch 3ème année, Bachelor Project
Etudiant(s) : Sandrik Vizarraga Pavloff
Enseignant(s) : Pr. Dr. Paola Tosolini + Pr. Lionel Rinquet
Le nouveau bâtiment pour la Haute école de musique s’insère dans le quartier des Nations, faisant front à la place et au palais de l’ONU. La parcelle se situe à la frontière entre la ville dense et le début de la campagne genevoise. Le tissu urbain de ce site, constitué essentiellement de bâtiments autonomes, favorise l’implantation d’une forme unitaire composée de deux volumes imbriqués.
Le bâtiment principal, implanté en retrait du front de rue, dégage un parvis permettant de marquer l’entrée principale. Le second, plus bas, s’aligne avec l’avenue Giuseppe Motta et génère des espaces verts semi-publics pour les utilisateurs de la HEM.

01. Plan du Rez avec les deux entrées (deux niveaux)
02. Plan du 1er étage (Bibliothèque)
03. Coupe-perspective longitudinale




04. Plan du 2ème étage (restaurant) 05. Plan du 3ème et 4ème étage (double-hauteur pour l’auditoire principal)


Les deux volumes imbriqués sont articulés par un atrium central recevant les circulations verticales et permettant un apport en lumière naturelle. Les différentes parties du programme sont disposées autour des paliers d’étages, laissés libres et servant de circulation et de zone de repli pour les utilisateurs.

La multiplicité de langage architectural, à proximité du site, a favorisé une composition de façade sobre et silencieuse. Cette volonté de banalité se traduit par une grande standardisation des éléments de construction qui a été une thématique forte tout au long du processus constructif.

02. Détails des panneaux en béton pré-fabriqués révélant les ombres générées pas les différents plans
La double hauteur de l’auditorium se lit par le couronnement aveugle du coté de la Place des Nations


Hybridspace
Type : Projet urbain lié au thème de la migration
Lieu : Matongé & European Quarter, Bruxelles, BE
Date : MArch 2ème semestre
Etudiant(s) : Sandrik Vizarraga Pavloff
Enseignant(s) : Dr. Caroline Sohie & Dr. Cecilia Chiapini
Matongé, historiquement habité par la diaspora africaine encouragée à s’établir en Belgique par le gouvernement dans les années 60, a perdu progressivement ses résidents dû au développement du Quartier Européen et d’un nouveau flux migratoire engendrant une gentrification du quartier historique et modifiant l’identité culturelle du lieu. Ce projet cherche à intervenir à l’échelle urbaine sur les possibilités de développement pour pérénniser l’enracinement des habitants de Matongé à travers l’habitat bruxellois traditionnel et les possibilités d’hybridation représentées en trois degrés d’interventions sur un îlot urbain.
Interprétation personnelle symbolisant l’hybridation culturelle et son impact sur la ville appliquée aux quartiers de Matongé et Européen (ancien Saint Leopold) à Bruxelles.

01. Tissu urbain médiéval du quartier de Matongé, constitué de parcelles étroites d’habitations privées.
02. Tissu urbain du Quartier Européen représenté par des blocs orthogonaux de grande taille.
Biology
« ‘Hybrid’: offspring of parents that differ in genetically determined traits. The parents may be of different species, genera, or (rarely) families. The term hybrid, therefore, has a wider application than the terms mongrel or crossbreed, which usually refer to animals or plants resulting from a cross between two races, breeds, strains, or varieties of the same species »
ENCYCLOPAEDIA BRITANNICA (2018)
Social sciences
« ‘Hybridity’ has been used by authors in the social sciences, literary, artistic, and cultural studies to designate processes in which discrete social practices or structures, that existed in separate ways, combine to generate new structures, objects, and practices in which the preceding elements mix »
GARCÍA-CANCLINI N. (2001) ‘International Encyclopedia of the Social & Behavioral Sciences’
03. Tableau des îlots urbains classés par quartier et leurs caractéristiques archétypales.
04. Collage évoquant un scénario avec un niveau de densification «extrême».

Ilôts
Matongé
05. Plan d’intervention à trois degrés: Niveau minimum (faible profondeur et possibilité de collectiviser les rez pour accéder aux cours intérieures); Niveau intermédiaire (Modification des typologies intérieures et collecitivisation des jardins); Niveau extrême (Surrélévation des bâtiments exisants et/ou nouvelles typologies avec habitations privées + collectives).

PrimarySchool
FactoryGarage FactorySupermarket
06. Coupe d’une maison bruxelloise traditionnelle dites à deux ou trois cellules (enfilade), scénario minimum favorisant un accès extérieur pour tous les locataires.
07. Coupe d’une maison bruxelloise traditionnelle avec modification des typologies du rez et 1e, scénario intermédiaire conservant un accès commun aux jardins collectifs de plusieurs maisons.



Niveau minimum
Niveau extrême
Niveau intermédiaire

One and a half
Type : Villas contiguës: familles, seniors et ateliers
Lieu : Rue des Moraines, Carouge (GE), CH
Date : BArch 2ème année
Etudiant(s) : Sandrik Vizarraga Pavloff
Enseignant(s) : Timothée Giorgis
La ville de Carouge se distingue par son tissu historique du XVIIIème siècle qui côtoie de grands ensembles d’architecture moderne. Il s’agit, ici, de proposer une solution de logements contigus, dans une parcelle faisant office de lien entre la ville classée et le nouveau quartier en construction. Les logements sont divisés en trois catégories, regroupés dans deux typologies différentes, chacune travaillant les espaces au sein de son volume. Les villas s’agrègent autour de trois cours qui desservent les accès aux maisons et ateliers. Des passages offrent une grande perméabilité à l’ensemble bâti et invite à la déambulation. 01. Plan de site exprimant les
Les espaces intérieurs sont en demi-niveaux et offrent des vues diagonales et des interactions entre les différentes zones de vie. Ces dernières bénéficient d’une plus grande hauteur sous plafond et sont en lien avec des patios et mezzanines donnant accès à des toits-terrasses.

01. Plan du rez-de-chaussée mettant en évidence les trois cours et les entrées des villas
02. Façades des maisons depuis la nouvelle voie piétonne


03. Détails de la façades au niveau des percements 04. Façade de la «maison-atelier» exprimant le deux types d’ouvertures


01. Plan d’implantation des quatre bâtiments avec nouvelle tour d’habitation et socle de liaison au théatre et bâtiment adjacent.

Référent·e : Alain Robbe (Pilote)
LRS - LCU
Type : Logement étudiant
Lieu : Cité Universitaire, 1206 (GE), CH
Date : 2021
Phase SIA: Autorisation
Le projet d’immeuble à la Cité universitaire vise à remplacer un bâtiment obsolète et à améliorer les flux de circulation. Situé aux Crêtes de Champel, il propose une tour avec des loggias en double hauteur, offrant des vues dégagées et des espaces favorisant les rencontres et les échanges entre résidents.
Pour cette affaire, nous avons travaillé pendant trois mois afin de déposer le dossier auprès de l’OAC. Les principaux sujets traités ont concerné la façade, notamment les premières esquisses constructives ainsi que la composition de la modénature générale.
(LCU) Phase SIA 103
31 Avant-projet
32 Projet de l’Ouvrage
33. Demande d’autorisation
41. Appel d’offre
51 projet d’exécution
52 Exécution de l’ouvrage
53 Mise en service
02. Perspective photoréaliste du concours ©LRS
Lien du projet : https://www.lrs.ch/projet/residences-cite-universitaire/

02. Première esquisse constructive abordant le thême du béton préfabriqué avec éléments en double-hauteur.
03. Recherche de composition de façade sur les thème de la matière (béton-béton / béton-serrurerie) et de composition du «canage».




04. Plan d’étage type illustrant les différentes suites étudiantes et les espaces de circulation aboutissants sur des loggias en double hauteur.


Diplôme MArch
Polyrhythmic territories
Type : Projet territorial basé sur la rue
Lieu : Limmattal Valley (ZH), CH
Date : MArch 4ème semestre
Etudiant(s) : Sandrik Vizarraga Pavloff
Enseignant(s) : Prof. Dr. Martino Tattara
Ce travail de mémoire investigue le potentiel de la rue pour réunifier la vallée de la Limmat qui, par un processus d’urbanisation de Zurich, a perdu le rapport qu’elle entretenait avec ses différents environnements. Par la revalorisation de structures de mobilité existantes et grâce au renforcement des voies piétonnes et cyclables, le projet ambitionne de reconquérir la Limmattal et de rompre avec la logique de développement territorial traditionnel suisse, basée sur la commune indépendante. Ce système unifié est rendu visible par un ensemble d’éléments itératifs, simples dans leur matérialisation mais utilisant la répétition et le rythme comme outil de lecture et de réappropriation d’un territoire diffus.
Abstract
«With the expansion of the Swiss urban metropolis, the landscape has become a generic background for cities to expand and proliferate. Despite the tradition of autonomous communes, metropolitan areas have absorbed once independent villages, erasing original configurations and subsequently their relation to the natural scenery. This phenomenon brings the notion of landscape to the forefront by considering human activity as a main component. It gains in complexity and considers other forms of environment, breaking with the polarised conception of urbanity over nature. In this particular context, this master dissertation investigates the potential of the street to reclaim the Limmattal Valley that has been taken over by the urban development of Zurich. Furthermore, this work suggests the possibility to reappropriate urbanised regions through a system based on ‘iterative elements’ and the notion of rhythm to comprehend spread territories. Therefore, to understand the potential of the road and its architecture, a first analysis has been done on Leman Lake and its historical ‘Leman Road’. This particular territory offers a favourable relationship between the street and its scenery providing specific lessons to be applied in the Limmattal Valley.»
https://youtu.be/-A1qZcpk_E0

Lien de la vidéo du projet:
03. Carte ‘polyrythmique’ des divers éléments itératifs permettant de reconnaître le ‘Ladder System’ de la vallée ainsi que la Limmattal comme un territoire propre.
04. Etat du système de la vallée de l’existant au stade du projet et son impact sur le développement territorial future.

I. Existant
-Système déconnecté
-Communes autonomes
-Développement horizontal (ZH)
II. Système réunifié
-Système adapté au territoire vallonné
-Relations intercommunales
-Lieu où vivre et travailler
III. Impact
-Collectivisation des équipements publiques communaux
-Différents modes de déplacement dans la vallée promouvant la mobilité douce
-Renforcement des corridors naturels et clarification des zones à densifier
02. Vue sur la Vallée de la Limmat depuis une tour d’observation en direction de Zurich. Inventaire des éléments itératifs représentés dans la ‘carte polyrythmique’, classés par ordre de grandeur.
a. Fontaine
b. Cyclopark
c. Bancs
d. Plateformes paysagères
e. Drapeaux
f. Structure panoramiques
g. Arrêt de bus/tram
h. Pont
i. Station pédestre
j. Couvert à stockage
k. Marche de rivière
l. Tour de guet












06. Noeud multimodal du ‘Limmattal Ring’ offrant une connexion en transport public continue et la possibilité de rejoindre les sentiers pédestres ainsi que les voies cyclables.
07. Abbey de Kloster Fahr bénéficiant d’une nouvelle connexion avec les sentiers pédestres existants.




08. Structure panoramique à Dietikon offrant un espace public élargi construit sur le sentier existant offrant différents arrêts sur la Limmat pour les promeneurs, les sportifs et les locaux.




BA-AR171 Structure accessible : Méthodologie et atelier de projet, 1er semestre 02. Maquette 1:20 d’une structure accessible au parc des Bastions. Utilisation d’un module de construction en bois

Projets personnels
Les projets présentés dans cette dernière partie sont, pour la plupart, des travaux de groupes ou des workshops pluridisciplinaires effectués lors de mes trois années de Bachelor à hepia.
Pour l’ensemble de ces rendus, nous avons amorcé les projets par une analyse préalable, appuyée par des écrits théoriques. Ces recherches sont ensuite traduites sous forme de rendus travaillant le thème de la représentation qui me passionne particulièrement. Chacun de ces travaux tente de souligner la poésie d’un tissu urbain, d’une structure, ou encore du fantasme de ce qui est dissimulé derrière une enveloppe bâtie.
Dans le même esprit, le projet de scénographie pour la distinction romande d’architecture tente de lever le voile sur une région linguistique suisse et démontre, par des médiums multiples, la richesse du lieu dans la conception architecturale contemporaine.
BA-AR324 Atelier des outils : History and theory of architecture and urbanism, 3ème semestre 02. Façade existante d’une des barres de logement à Budé (Genève), construite entre 1955 - 1962, par Honegger frères and Addor & Julliard 03. «Behind the Grid» Interprétation critique du «monde secret» dissimulé derrière la façade. En collaboration avec : Arnaud Beetschen, Fabio Da Costa, Julien Orozco, Grégoire Thédy


DRAIIII Workshop : Distinction Romande d’Architecture (HEPIA + HEAD)
01. Maquette 1:20 d’une des «valises» exprimant le concept général de l’exposition
Concours pour le scénario scénographique: 1er Prix
En collaboration avec : Arnaud Beetschen, Elise Chauvigne, Coralie Grandjean, Aliénor Näf

Workshop 2 HEAD
Tâches :
Définir la matérialité
Choisir le type de présentation
Travailler les détails
Workshop 1 HEPIA + HEAD 1er Prix
Tâches : Imaginer le scénario général
Concevoir le support d’exposition
Imaginer la signalétique

©HEAD Interior Design students axonometric drawing

Studio 1 HEPIA + HEAD
Tâches :
Finaliser la forme selon les contraintes d’exposition
Rationaliser les assemblages (structure + textile)
Dessiner les plans d’exécution
Penser au montage/démontage ainsi qu’au transport
Définir l’éclairage
Chercher les entreprises et chiffrer le coût total
DRAIIII Workshop : Distinction Romande d’Architecture (HEPIA + HEAD)
02. Photo de l’exposition au Pavillon Sicli (Genève) avec tous les projets lauréats


Exposition
Vernissage : Genève (Pavillon Sicli)
Itinérance vers (Suisse) : Lausanne, Fribourg, Zurich, Mendrisio, ...
Itinérance vers (Europe) : Barcelona, Bruxelles, ...
Photo Credits : ©Baptise Coulon (HEAD)
Photo Credits : ©Baptise Coulon (HEAD)
Photo credits couverture
©Marcel Kohler - «Minerality» Geneva (GE), Switzerland
https://www.behance.net/gallery/49413189/Minerality
