

sandra cervantes interior design portfolio
The University of Texas at Arlington
Graduated May 2024


E S P E R A N Z A










04 05 03


c a s a
esperanza
Deportee Reintegration Center
Spring 2024
Location : Matamoros, Tamaulipas, MX
Individual Project
Using Revit and Enscape
Project Recognition:
2024 ASID Celebrating Design
Texas Student Design: Commercial 2nd Place
Senior Capstone: Best Presentation
The dangers of the US-Mexico border, being split from family and the country you learned to see as home, puts a big toll on deportees (Golash-Boza, 2019). Casa Esperanza, a sanctuary for deportee reintegration, encapsulates the dedication to providing a refuge where deportees embark on a transformative journey toward self-empowerment and cultural reconnection. Through thoughtfully crafted spaces addressing physiological and psychological burdens, we foster an environment of healing and resilience with the use of Maslow’s Hierarchy of Needs, Comfort Theory & Change Theory (Kopec, 2018). Safety and security are paramount, ensuring deportees feel protected and supported as they navigate the challenges of reintegration.




haciendas
The architectural features and design elements of thick walls, central courtyards, and natural materials evoke a sense of homecoming, belonging, familiarity and security, as they resonate with Mexican Hacienda style homes and cultural identity

design theories
Maslow s Hierarchy of Needs: the most essential human needs are the ones that keep us alive, like food, water, shelter and air.
Casa Esperanza offers food, shelter, healthcare, clothing, safety, therapy, financial services and transportation resources
Comfort Theory: when peoples' comfort is valued, people are more satisfied, more committed, and able to work harder.

Casa Esperanza crafted spaces that support reintegration and self-empowerment. Material culture is also utilized
Change theory: approach to understanding and managing the process of change
Casa Esperanza resonates with Mexican culture identity through architectural features, biophilic design, community integration and care
cultural studio

An in-house cultural studio is offered to allow deportees to reconnect and embrace their culture while they are here. Mexico is known for its craftmanship in ceramics and pottery

bus terminal









terracotta
wood stucco
talavera
tile
talavera
0 2

encuentros
Art Exhibition
Spring 2023
Location : Dallas, TX
Individual Project
Using Revit and Enscape
Encuentros is an art exhibition featuring Latin American acquisitions that is strategically organized to showcase the artwork efficiently. The design emphasizes equality and inclusivity. The exhibition is presented in both Spanish and English, honoring a duallanguage approach for broader accessibility. The design further pays homage to the vibrant and stacked architecture of Latin America.



the experience
To enhance accessibility, English and Spanish art labels stand side by side, equal in prominence, fostering a dual-language experience Echoing the playful spirit of Latin American communities, an interactive area invites children to engage with colorful blocks, allowing them to recreate the iconic stacked homes of the region At the end of the exhibition, cases inspired by the stacking concept prevalent in Latin American sculptures and homes showcase the artistic heritage in a dynamic and visually striking manner




object layout & floor plan
The placement of objects and artworks was carefully orchestrated, taking into account chosen categories and paying meticulous attention to light sensitivity

















f o u r
ventures
Commercial Office Space
Fall 2023
Location : Fort Worth, TX
Individual Project
Using Revit and Enscape
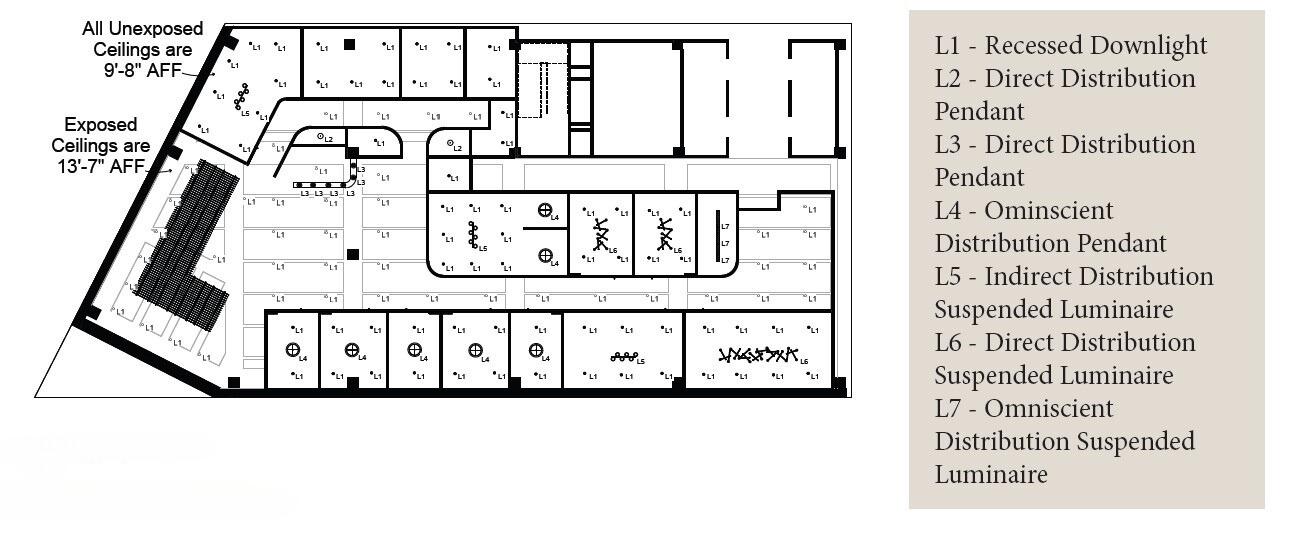
In the realm of long working hours, the significance of feeling at ease within a workspace cannot be overstated. At Four Ventures, it is understood that individuals have diverse working styles and preferences. Whether you thrive in collaborative open areas or seek solace in private nooks, the design offers a spectrum of seating and workplace options. Four Ventures is committed to enhancing both physical and mental health by introducing spaces like the Tonal Room, Mother’s Room, and various small wellness and focus rooms.


floor plan

reflected ceiling plan
custom reception desk
Basswood model was made to scale from the detailed annotations








The Cafe was placed at a central point to serve as a gathering, and resting space reception
meeting room











0 4 produce Neighboorhood Bus p a r a d i s e
Spring 2023
Location : DFW Metroplex
Individual Project Using Revit and Lumion
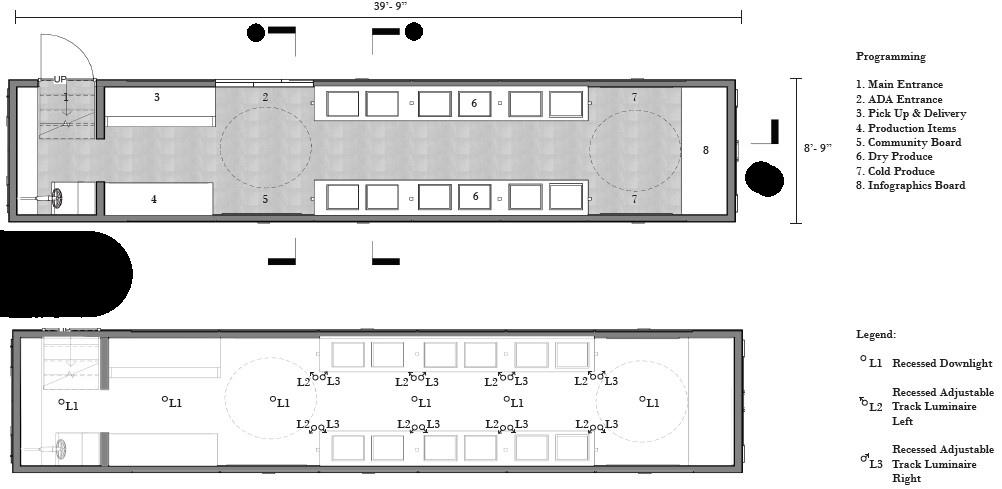
This mobile produce service, Produce Paradise, is designed with your everyday community in mind, aiming to deliver the freshest produce directly to customers. The vehicle provides customers with the flexibility to personally select their items, utilize convenient curbside service, or choose from a selection of pre-sliced produce options.

functionality
Operating on a daily basis, the mobile produce bus travels through various neighborhoods and returns weekly to familiar locations Additionally, on weekends, the bus sets up shop in new areas The daytime route focuses on senior communities, where residents are available, while in the afternoons, it targets homes where customers may be at work during the day The bus also provides refrigerated and dry storage underneath the bus to refill produce if needed
floor plan

reflected ceiling plan

An ADA ramp with appropriate clearances is integrated into the design to be convenient to all users




Custom racks were designed to withstand the challenges of movement during transit They provide stability and durability, preventing damage to both the produce and the racks themselves








0 5

the neutral
Residential Kitchen
Spring 2023
Location : Corsicana, TX
Individual Project Using Revit and Lumion
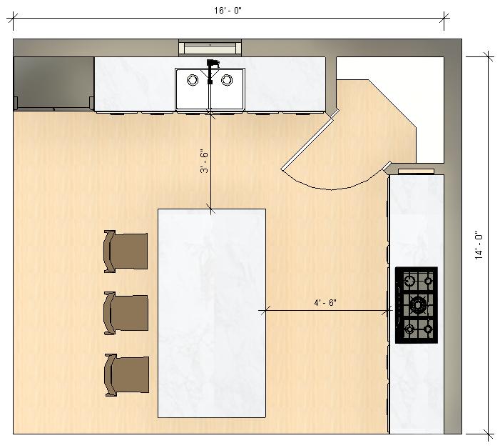
The Neutral Kitchen was designed with the intent to optimize space and minimize clutter while still enhancing kitchen workflolw and allow for personlization The neutral color palette allows for tenants of the space to take ownership and bring their personal style to their space Suited with custom-built cabinets and storage solutions that make the most of every inch in places like the island and pantry “The Kitchen Triangle” theory is used to smooth movement between the workflow, reducing unnecessary steps and enhancing overall functionality

floor plan
The kitchen is designed using “the kitchen triangle," layout also known as "the golden triangle " This theory states that a kitchen’s three main work areas should form a triangle That being, the sink, the refrigerator, and the stove It seems to enhance traffic flow in the kitchen



custom millwork drawings
The millwork designed is to optimize space and storage There is areas for open storage, displays and closed storage , as well as a small niche built into the pantry wall for te client’s favorite recipe books and magazines to be held.

The design offers a pantry to help minimize clutter and serve as an additional source of storage









site visit drawings

charcoal drawing

wrench tool

hand rendered plan


inspiration sketch
path to class sketches

precedent study scaled model

building elevation
rendered sketch
root drawing
other work

Drawing and sketching is a tool many designers continue to use despite level of expertise Above are some drawings, sketches and models I ve created and accumulated over time
