An
Academic Architecture Portfolio
Samuel Vallejo
My name is Samuel Vallejo, a 21-year-old student currently pursuing a Bachelor of Architecture at California College of the Arts. I am an open-minded and dedicated individual with a passion for learning across a wide range of subjects. I consistently approach projects, activities, and daily tasks with effort and a positive mindset. I enjoy model-making, exploring new ethods of learning, working with various mediums, and collaborating with teams. I’m always excited to connect with others to share ideas and stories.
Table of Contents
Pg. 3
2022 Locomotion Hostel
Pg. 4 2022 Workhouse 1/2” Model
2024
Pg. 13 2024 White Pines
Pg. 21 20204 (continuity) Continued
Pg. 7
2023 Strigiforme Hostel
Pg. 5
2023 Continuity Experience Center
Pg. 17 2023 Starless Mediatheque
Pg. 19
2023 Atacama Thermal Refuge
Pg. 17 Additional Images
Pg. 9
Tansu: Vessel of Value
Pg.
Locomotion Hostel
The Locomotion Hostel employs a loose-fit strategy, scattering its parts to highlight the spaces in between, emphasizing their importance. This approach harmonizes with the site, nestled in an open grassland habitat. The hostel’s design mimics the continuous pathways used by animals, with a tunnel-like circulation inside. Skylights in key areas resemble surface holes found in burrows. The structure’s materiality, featuring weathered wooden shingles, integrates it with the natural surroundings. Offering sleeping quarters, cooking facilities, meditation areas, and reception spaces, the hostel provides a tranquil setting for both productivity and relaxation.
Workhouse by Guthrie+Buresh Architects 2022
WorkHouse is an innovative 1800-square-foot residence and studio designed for a small family, located behind an existing dwelling near a bustling boulevard and the Pacific Design Center. Emphasizing visually shared exterior spaces that seamlessly extend indoors, the design balances the daily rhythm of living, working, and privacy through strategic plan and section adjustments, along with a mix of transparent, translucent, and opaque materials. This collaborative project involved comprehensive research and hands-on craftsmanship, including mold making, 3D printing, cement mixing, and precise model construction at a 1:1/2 scale. Iterative study models were pivotal in refining the home’s circulation and spatial dynamics.
CA
Marin Headlands,
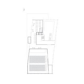
Strigiforme Hostel
The Marin Headlands offers a serene escape from Bay Area bustle, boasting stunning ocean views and diverse wildlife. It’s a haven for hikers and bikers seeking respite from modern distractions. Nestled within this natural beauty lies the Rodeo Stgiforme Hostel, featuring elevated cabins overlooking lush foliage. The cabins, connected by a recycled highway girder pathway, blend seamlessly into the environment, fostering harmony with local critters. This design encourages visitors to immerse themselves in nature while enjoying panoramic vistas. In essence, it’s a sanctuary that exemplifies the harmonious coexistence of human structures and the environment, enriching the overall experience of the space whilst providing shelter for species such as the northen spotted owl.
Marin Headlands, CA
Continuity Experience Center
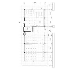
The Continuity Rodeo Experience Center, replacing the Rodeo Beach Station, serves as a versatile public facility catering to visitors of Rodeo Beach, Lagoon, and Marin Headlands trails. It replaces existing amenities like picnic grounds and shower facilities while adding a café, kitchen, event hall, and spaces for sporting activities. The striking mass timber construction balances the paved world of cars and the natural hiking and biking terrain, the project minimizes impact on the land using a unique strategy inspired by tension, compression, and tensegrity principles. Supported by a mass timber columns, the building integrates with the surrounding marsh, allowing natural expansion. The site offers diverse views, from historical military structures to the north, a complex lagoon-ocean beach relationship to the south, and natural hills and marsh to the west. Opposite the west, a parking lot and historic cabins serve as traditional indicators of arrival to the Marin Headlands.



Section, Plan
Elevation,
Tensile Study Sketches
Tansu: vessels of Value
Tansu: a Japanese assortment of chest often crafted with wood, originally intended to hold household items, clothing, or other valuables. This collaborative project presents a transformative opportunity to re-imagine the relationship between the land we inhabit and the food we consume. This project exemplifies the tansu trunk concept, a space that deeply intertwines local cultural history with the agrarian values of the community—cultivating the land and living from its bounty. By thoughtfully incorporating the needs of Arroyo Grande’s local communities, regeneration 2.0 will introduce dynamic programmatic spaces for teaching, connecting, and fostering growth.
The project features a variety of buildings with programs tailored to benefit the community. During our visit to Arroyo Grande, CA, we engaged with locals to understand what programs would support their needs while preserving the area’s historical character. The site includes a live-work home which houses a farmers market style store and at the same time houses the family which runs the business, to integrate with the surrounding residential community, an outdoor kitchen complementing the nearby Great Hall—which houses an exhibition space and a kindergarten. Towards the end lies rentable cabins designed to generate revenue and introduce visitors to this vibrant community.
Site Plan
Section Perspective of Corner Building with Detail Call-outs
In our visual representation, we chose to create renderings without including people. This decision was influenced by the fact that the site we were working with had been abandoned or neglected for some time. However, during our visits, we sensed an energy that suggested the site's historically rich environment still lingered despite its neglect. To capture this, we created images that conveyed a sense of life without directly depicting people.
Work Live Home
Great Hall Kindergarten
Work Live Home
Cabin with Ofuro
Accessible Cabin
Structural Assemblage
The White Pines apartment complex, a 20-unit development, serves the Portola neighborhood, drawing inspiration from the area’s traditional materials and vernacular architecture. “White Pines” originates from Eastern white pine wood, known for its lighter tone than its Western counterpart. This wood is incorporated alongside other types in the building’s mass timber structural system, creating a cohesive and inviting facade that complements the neighboring homes. The homes represent a unification between the existing community and future developments for the neighborhood. The buildings design takes into consideration many perspectives, and techniques, for optimal and affordable execution as well as a well balanced design that does not distract but welcomes modern design.
OKATECH® Curtain Wall
Starless Mediatheque
Floor Plans 2023 Interior Perspectives
Section Perspective
The Starless Mediatheque, a versatile media library, underwent a rigorous redesign resulting in a host of new features. Notably, the main lobby is now visible from the rooftop, adorned with a large skylight that floods the space with bright natural light, creating a warmer tone for the concrete structure. The continuous stairway in the main lobby connects all floors to the central atrium, enhancing accessibility. The upper area features private meeting rooms with breathtaking views of the bay and historic surroundings. A redesigned cantilever at the top integrates seamlessly with the building’s form, appearing to grow organically. The large concrete structure in the center houses elevators and bathrooms while providing essential structural support. Utilizing OKATECH curtain walls the media library comes together as a starless yet very bright place for knowledge and interaction.
Atacama Thermal Refuge
The Atacama Refuge in Calama, Chile, offers sanctuary for travelers and an ideal platform for astronomers. Its location shields from desert winds, and its design, with thick rammed earth walls and a subterranean floor, maintains a comfortable temperature despite fluctuations. Natural light is managed through clerestory and south-facing windows, along with a skylight for dramatic effect. A sunshade blocks excess sunlight during observation. This design harmonizes functionality, sustainability, and the desert environment, providing a serene space for rest and stargazing.












The Apple-Core three dimensional tile comes from a study on tile arrangements and members that interconnect in one or more ways. The ceramic tile is crafted from a five part mold in which was 3d printed, plaster molded and slip casted. The complex design allows immersive experiences no matter the angle from which it is viewed. This project brought me back to my time as a ceramicist during all of my four years of high school and allowed me to introduce a newer level of complexity learned in architecture school.
Apple-Core Tile Instalation
Apple-Core Tile
Atacama Thermal Refuge
Building on my exploration of natural materials and my architectural interests, I ventured into furniture design as the next step in applying my research to real-world implications. Through extensive research and iterative design, I developed a simple yet effective tensile structure with practical applications. This process presented challenges beyond typical furniture-making, particularly with the incorporation of tensile steel wire and its unique complexities. Navigating these difficulties deepened my understanding of the material and highlighted the importance of perseverance when taking on not only a new medium but also a new approach to an already existing tradition.
Sketches