Samuel Tso | Architecture + Design Portfolio

Page 1

DESIGN PORTFOLIO SAMUEL TSO 2021-2024

SAMUEL TSO

P: 604-369-9277

E: tsosamuel@gmail.com

TECHNICAL SKILLS EXPERIENCE

Site Labour

Eldeck Construction

Adobe Photoshop

Adobe Illustrator

EDUCATION

Bachelor of Design in Architecture, Landscape Architecture, and Urbanism

University of British Columbia

Vancouver, BC (September 2021 - Present)

Adobe After Effects

Vancouver, BC (Summers 2021 - 2023)

• Operated on various construction sites throughout Vancouver’s Lower Mainland

• Adapted and communicated effectively with industry professionals to complete work quickly and safely

• Fulflled technical duties such as sanding, cementing and setting home foundations

• Constructed furniture, cabinets and various equipment for commercial use

Sales Associate

ZARA Metrotown

Adobe InDesign

Rhinoceros 3D

B.C. Dogwood Diploma

John Knox Christian Secondary New Westminster, BC (September 2017 - June 2021)

AWARDS

UBC Capacity Design Challenge

3rd Place Finalist (2024)

AutoCAD

TwinMotion

Vancouver, BC (April 2022 - September 2022)

• Sold and restocked products from all company departments productively

• Progressed company sales goals through a profcient work ethic alongside coworkers and management

• Handled cash fows through selling, exchanging, refunding, and online orders

Shipping and Packaging

ZYIA Active

Vancouver, BC (July 2020 - September 2020)

Revit

• Packaged and sorted athletic apparel effciently for shipping worldwide

• Met consistent daily quotas throughout designated teams and arrangements

• Organized and processed incoming shipments for stock and sale

VOLUNTEER + COMMUNITY

Events and Community Team

Power to Change UBC

Vancouver, BC (April 2022 - December 2023)

• Organized over a dozen large and small scale club events across UBC campus and Vancouver lower mainland such as Care Package Night, Christmas Party, and Games Night

• Assisted in administrative tasks such as taking meeting minutes, creating club surveys, and hosting community functions

Fellowship Committee Head

Newbern Alliance Church Vancouver, BC (January 2022 - Present)

• Supervised and arranged weekly events such as cooking competitions, egg drop contests, summer retreats, and Jeopardy nights

• Collaborated with multiple churches around Vancouver to coordinate and facilitate games, music, and discussions

Student Council

John Knox Christian Secondary/Carver Christian High School

Vancouver, BC (September 2017 - June 2021)

• Completed various roles - Class Representative, Secretary, Vice President, and President

• Spearheaded and organized over 80 events to fundraise and promote future school activities

• Provided leadership in mentoring, disciplining, delegating and supporting the student body

CONTENTS

NODAL

DES 301, Design Studio 3 - Co-housing Study, Fall 2023

TOKYO APARTMENT

DES 301, Design Studio 3 - Precedent Study, Fall 2023

TIMEFRAME

DES 302, Design Studio 3 - Landscape Study, Winter 2024

Sponge City

DES 302, Design Studio 3 - Urban Study, Winter 2024

1 7 11 17

NODAL

DES301 | 2023

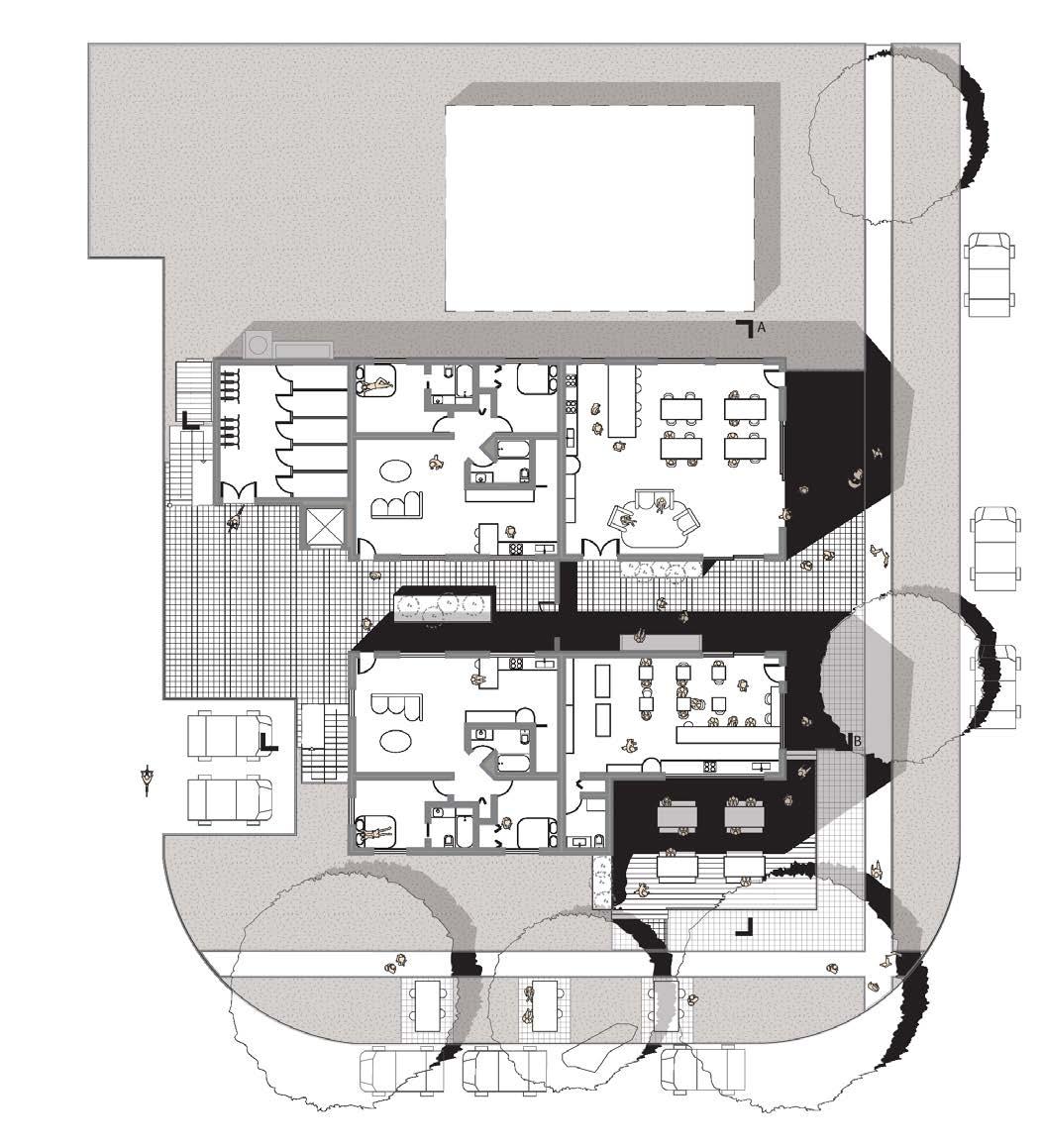
Project Nodal is a cohousing project offering a solution to Vancouver’s growing separation between its communities and people. Aiming to cultivate and facilitate a new heart for their neighborhoods, Nodal aims to create spaces that preserve community, is a stepping stone to long-term housing, and connects to the present network of interaction throughout the site. Providing increased dwelling units and public and semi-public amenities, multipurpose common spaces are created on various levels catering to different scales of gathering. Available programs include a cafe/ convenience store, central courtyard connecting the public and semi-public spaces, and sidewalk seating which further activates the use of the corner.

1

After identifying existing site conditions, attention was focused on the northwest corner of the intersection as high frequency pedestrian traffc was identifed to accumulate throughout the day. Large demographics of students, parents, and families were seen crossing this corner; therefore, programmatic interventions such a cafe/cornerstore, resident common space, and central courtyard all aim to activate the northwest corner for public, semi-public, and private use.

Parti Diagram
Existing Relationship Level 01 Level 02 Level 03 Proposed Strategy Proposed Relationship
Program Diagram
2

With the primary focus on connecting members of the community and the neighborhood together, many areas in this project are designed to create spaces for such interaction. The ground foor’s cafe operates for both the children and parents coming and going from the elementary school 1 block away. The center courtyard is designed to become a multipurpose space opening into the cafe as well as residential common space.

Level 02 Level 03 3
A
B
C 4
Section
Section
Section
East Elevation
5
West Elevation 1:50 Model Replica
6
3D Fabricated 0.6mm Panels + Hand Cut Basswood

TOKYO APARTMENT

DES301 | 2023

Assigned with exploring various co-housing projects as precedents for this studio class, the Tokyo Apartment by Sou Fujimoto stands to be one unique project which increases the site’s density while boasting in its unique form. Exploring the movement and circulation patterns existing for each of the separate four units of this project, a diagrammatic investigation was done regarding how each unit (represented by yellow, green, blue, and red) accesses and utilizes their space.

7
Second Floor Section A Ground Floor
Floor Section B 8
Basement
Third

With four different units residing together in one lot, independent access points and characteristics were developed following the unique form of this project. Utilizing a system of stairs and ladders, designated green and orange units are accessed on the ground level whereas the blue and red units are accessed via available exterior staircases. This project’s distinctive characteristic is also demonstrated through the exterior staircase and ladder which exists as the only point of connection between the red unit’s upper and lower foor. Although this project boasts a fun and distinctive form and circulation, the question of accessibility must be questioned especially if one were to rebuild such a project in a rain-heavy city such as Vancouver.

9

This 1:50 project model was made through primarily 3D fabrication and millwork techniques. Individual wood dowels were cut and glued to o.6mm white panels and assembled to make a modular assembly. Two large timber blocks were cut and glued together for the base of the model. Each dwelling unit was made to be removed from one another, showcasing the individual layouts and circulation of the four separate living spaces that make up the Tokyo Apartment.

Model was accomplished alongside team mebers Cameron Taylor and Mitchell Fong.
10
1:50 Model

TIMEFRAME

DES302 | 2024

The Timeframe project situates itself within UBC Vancouver’s forested landscape of Totem Ravine. Located between Northwest Marine Drive and the existing beachside, this conceptual assignment identifes the existing division created from the site.

Understanding the location to be an inaccessible boundary, the site refects the common approach society has had to ecological management of either pushing it away to the outskirts of our cities or binding it within human construction, framing it the way our cities dictate. Therefore, this project aims to explore this idea of constricting ecology within our own defned limits. Ultimately helping individuals understand nature’s current position within our society through both visual and material senses utilizing a new path connecting to the heart of Totem Ravine, a 65m tall Grand Fir.

11
Selected Works 12
13
Elevation B - Site Context Plan - UBC Vancouver
Site Plan
- Site 14
Elevation A

Utilizing concrete and timber frames, the path connecting campus and Totem Ravine’s 400 year old grand fr represent a temporal change in time with each step representing 2 decades. As users enter the site from the campus ground, descending down into the forest, the frame of the path becomes less constricting and rigid, changing from concrete to timber, alluding to a journey back to the past to a time without human construction and more ecological freedom. However, this experience not only symbolizes a journey to the past but also represents entering into the future, as modern cities erode and break apart, returning back to their original state, so do the frames as nature reclaims the surrounding environment. Ultimately, this project is designed to use the natural properties of our material to change in condition as time erodes and breaks apart these frames.

Past Isometric - 1700 Present Isometric - 2024 Future Isometric - 2300 R o o t C o n n e c t F r a m e E x p l o r e Parti Diagram Detail Section B Detail Section A Detail Section C 15
1:1000
Site Model
16
Combination of plywood, mdf, and silicone was used to create the model. Work was accomplished alongside team mebers Hedy Wei and Paul Zheng.

SPONGE CITY

DES302 | 2024

With the rise of climate change and unstable weather patterns, Vancouver's traditional water systems and flood mitigation designs are no longer optimal. Our winter rain overwhelms city infrastructure and our summers reflect drought-like conditions leaving the unhoused and vulnerable at most risk. Therefore, Sponge City addresses these concerns through a flood-mitigating, drought resistant and de-polluting intervention that still maintains the social and economic life of the neighbourhood. Incorporating an interconnected system of retention gardens and permeable surfaces, Gastown's Maple Tree Square will serve as the nexus of this design, collecting water during heavy rain, redirecting it to a local pump station, and reusing the water for local businesses and residents during drought seasons.

17

Initial site analysis reveals that Vancouver currently draws water from the Capilano, Seymour, and Coquitlam watersheds, requiring dozens of kilometres of infrastructure and concrete to operate. In addition, existing services subsequently fail to bear the burden of heavy storms and rainfall leading to frequent sewage overfow and the pollution of adjacent water systems, killing off biodiversity and indigenous food sources.

18
Site Plan - Maple Tree Square Proposal
Detail Plan B - Stone Bridge Commons Perspective 2 - Street Life Detail Plan C - Maple Tree Square Central Plaza
19
Perspective 3 - Central Plaza

Accounting for the human scale, opportunities for social interaction through intentional spots of rest encourage the use and development of Maple Tree Square. Stone crosspaths additionally serve as experiential spaces that can further integrate the human experience with the natural and hydrological aspects of Sponge City together.

Section B - Permeable Pavement and Retention Garden Section C - Maple Tree Square Central Plaza
20
Section A - Underground Flow of Water
21
Perspective 3 - Birds Eye 22
S A M U E L T S O | P O R T F O L I O | T S O S A M U E L @ G M A I L . C O M

Turn static files into dynamic content formats.

Create a flipbook
Issuu converts static files into: digital portfolios, online yearbooks, online catalogs, digital photo albums and more. Sign up and create your flipbook.