http://linkedin.com/in/samanthataylor-468276169





![]()
http://linkedin.com/in/samanthataylor-468276169





Repositioning
The goal for this office space and it’s amenities was to involve not only the brands colors, but also to take inspiration from it’s environment in Miami, FL.
• Open floor plan with a dividing wall to hide a utility closet door and passage to doors leading to elevator and garage
• Amenities for day time and after hour function
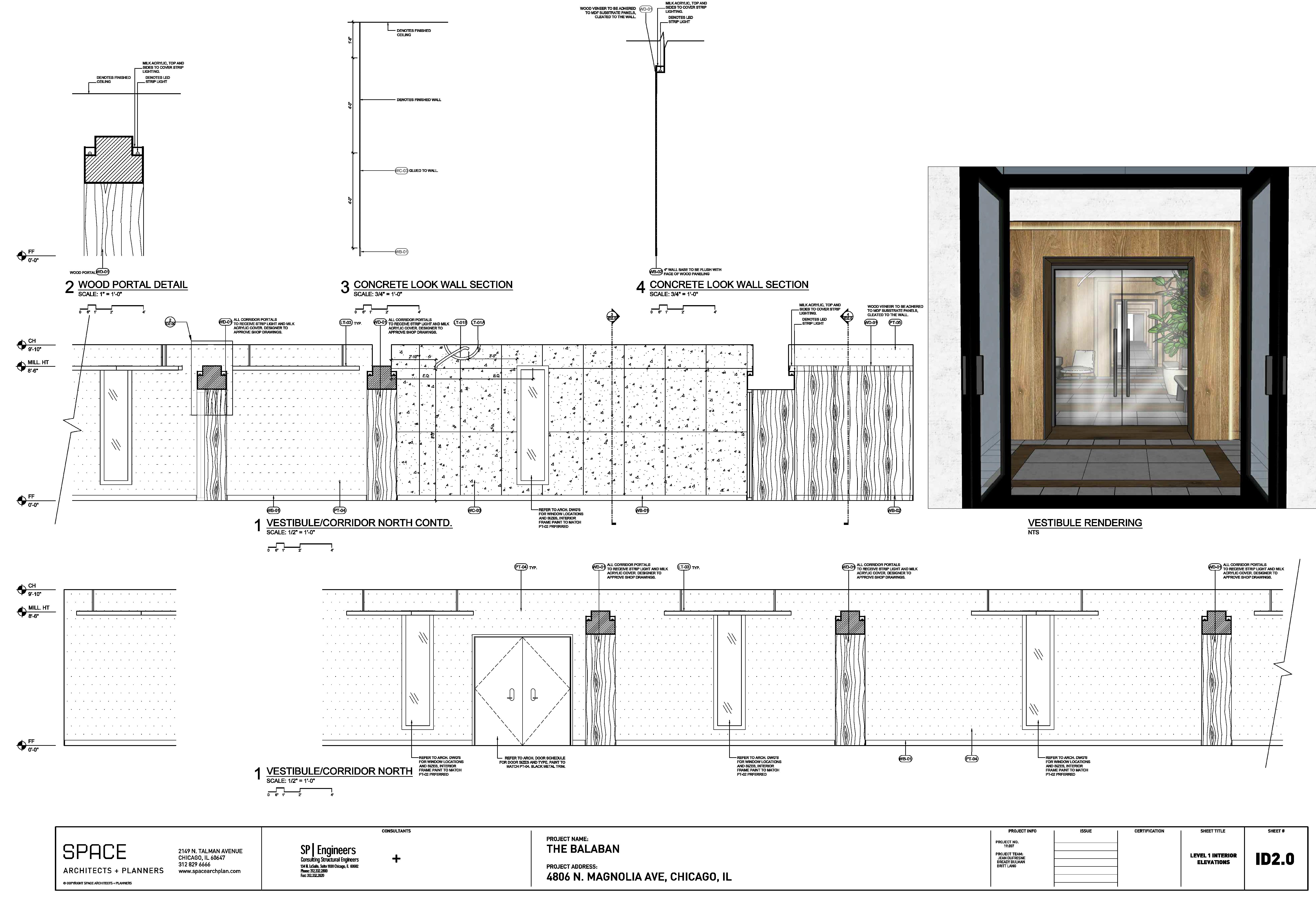
• Architectural feature added by installing a LED lit soffit and dropping the ceiling in pathway ways and utility rooms



SCHEDULED CEILING SOFFIT; REFER TO ELEVATIONS AND REFLECTED CEILING PLAN FOR LOCATIONS
FINISHED REVEAL AT SOFFIT LOCATIONS
SCHEDULED FINISH ON 3/4" SUBSTRATE, WRAP ALL SIDES OF SUBSTRATE
CABINET DOOR LIFT SYSTEM, AVENTOS HK-S OR APPROVED EQUAL, TYP.
SCHEDULED LIGHT FIXTURE ROUTED INTO TOP OF CABINET
SOLID WOOD CLEATS BLOCKING AS REQUIRED
SCHEDULED METAL MESH INSERT. REFER TO ELEVATIONS AND FINISH SCHEDULE
1.01REFER TO ACCESSIBILITY CODE AND TYPICAL MOUNTING HEIGHTS FOR INSTALLATION HEIGHTS AND LOCATIONS.
1.02REFER TO A003 FOR TYPICAL MOUNTING HEIGHTS AND ACCESSIBILITY CLEARANCES AND NOTES.
1.03COORDINATE ALL MILLWORK CLEARANCES WITH EQUIPMENT SIZES.
1.04REFER TO HARDWARE SCHEDULE ON SHEET A651 FOR CABINET PULL SPECIFICATIONS.
1.05REFER TO ELEVATIONS FOR ALL FINISHES.
1.06REFER TO ELEVATIONS FOR BACKSPLASH LOCATIONS AND SIZES.
1.07PROVIDE SIDE SPLASH AT COUNTERS WITH SCHEDULED BACKSPLASHES.
1.08REFER TO PLUMBING SCHEDULE A120 FOR SINK AND FAUCET SPECIFICATIONS. COORDINATE WITH FOOD SERVICE DRAWINGS WHERE REQUIRED.
1.09PROVIDE SCRIBE STRIPS AND INTERNAL CABINET DOOR STOPS AT CABINETS LOCATED AGAINST SIDE WALLS OR SIDE MILLWORK TO INSURE THAT CABINET HANDLE DOES NOT HIT AND DAMAGE ADJACENT WALL.
SCHEDULED FINISH ON BACK PANEL, TYP. MATCH FRONT FACE OF CABINET. REFER TO ELEVATIONS.
SCHEDULED FINISH ON 3/4" SUBSTRATE TOP AND BOTTOM. MATCH FRONT FACE OF CABINET. REFER TO ELEVATIONS.
1.10MILLWORK CABINET INTERIOR TO BE WHITE MELAMINE AT PLASTIC LAMINATE CABINETS IN PANTRIES AND STORAGE/ COPY MAIL ROOMS.
1.11MILLWORK CABINET INTERIOR TO BE BLACK MELAMINE AT WOOD VENEER CABINETS.
1.12REFER TO ENLARGED DETAILS FOR COUNTERTOP AND BACKSPLASH CONSTRUCTION.
1.13WHEN STACKING HOMOGENEOUS MATERIALS TO ACHIEVE A SPECIFIED THICKNESS, SEAM MUST NOT BE VISIBLE AND COLOR, PATTERN AND TEXTURE MUST MATCH BETWEEN COUNTERTOP AND VERTICAL EDGE.
SCHEDULED FINISH AT ALL INTERIOR SIDES. MATCH FRONT FACE OF CABINET. REFER TO ELEVATIONS.
SCHEDULED PULL, REFER TO ELEVATIONS
SCHEDULED COUNTOP
SCHEDULED METAL LAMINATE FINISH AT 1/4" REVEAL
SCHEDULED METAL LAMINATE FINISH, REFER TO ELEVATION AND FINISH SCHEDULE
SCHEDULED WALL TILE, REFER TO ELEVATION AND FINISH SCHEDULE
SCHEDULED FLOOR













T.V. TO BE FLUSH (OR SLIGHTLY RECESSED) WITH FACE OF SURROUND WHEN PUSHED BACK INTO THE "RESTING" POSITION -ADJUST DEPTH OF NICHE AS REQUIRED. ALL CORNERS TO BE MITERED AND ALL EXPOSED EDGES TO BE FINISHED. PL-2 TYP
SCHEDULED WALLCOVERING INTEGRATED LIGHTING AT EACH LIQUOR LOCKER, TYP. SEE SHEET A120-02
MILLWORK LIQUOR LOCKERS, PL-2 WITH METAL MESH INSERT, MT-3. CP2 PULL, LOCK & NUMBERING PLATES, TYP.
SOLID SURFACE, SS-2
METAL TRIM, MT-1
SCHEDULED TILE, T-12
MT-1
CABINET PULL, LOCK AND HINGES AT EACH LOCKER, CP2, CL1 AND CH1




































Drawings + Renderings: Revit + Enscape
FIRST FLOOR GAME ROOM


MEZZANINE LOUNGE

This industrial company wanted to have a new look to the building they are set to move into. What design would be more fitting than an industrial one?
• Open floor plan with dividing screens to section off different spaces of use
• Amenities for day time and after hour function
• A flowing circulation weaving throughout the floor plan
• Bountiful acoustics throughout
• Use of lost of mixed metals and design
• First floor is solely a cafe while two floors were designated for the majority of the workers while the third level is to be for the CEO and party







































































































































































































































































































































































































After successfully completing a previous project, this community-driven company, passionate about making a local impact, sought our team’s expertise to transform a space that had remained vacant for nearly two decades. With enthusiasm, we set out to breathe new life into the building, infusing the design with the energy of dance and movement, creating a dynamic and vibrant environment.
• Large “flex room” for pop-ups, meetings, luncheons and other community programs
• Interchangable community board
• Extensive renovation to an existing building
• Versatile amenity space was desired capable of being rented out to large parties










SCHEDULED STONE
PROVIDE GROMMET AND PASS THROUGH FOR ACCESS TO POWER AND DATA IN CABINET BELOW
PROVIDE GROMMET AND PASS THROUGH FOR ACCESS TO POWER AND DATA IN CABINET
SCHEDULED COUNTERTOP; SEE ELEVATIONS FOR FINISH. COUNTERTOP TO BE SCRIBED TO ALL ADJACENT PARTITIONS
HEAVY DUTY FULL EXTENSION SELF-CLOSING GLIDES AND CUSHION SILENCERS SCHEDULED PULL, MHDW-1
REVEALS TO MATCH CABINET DOOR FINISH
HEAVY DUTY FULL EXTENSION SELF-CLOSING GLIDES AND CUSHION SILENCERS SCHEDULED PULL, MHDW-1
SCHEDULED FINISH ON 3/4" PLYWOOD; SEE ELEVATIONS FOR FINISH
SELF-CLOSING HINGES AND CUSHION SILENCERS, TYPICAL
CONTINUOUS BASE TO MATCH CABINET FINISH, SCRIBED TO FLOOR
FINISH, SCRIBED TO FLOOR
SCHEDULED COUNTERTOP; SEE ELEVATIONS FOR FINISH. COUNTERTOP TO BE SCRIBED TO ALL ADJACENT PARTITIONS
HEAVY DUTY FULL EXTENSION SELF-CLOSING GLIDES AND CUSHION SILENCERS
REVEALS TO MATCH CABINET DOOR FINISH

COORDINATE LOCATION OF
SCHEDULED PULL, MHDW-1
SCHEDULED FINISH ON 3/4" PLYWOOD; SEE ELEVATIONS FOR FINISH
SELF-CLOSING HINGES AND CUSHION SILENCERS, TYPICAL
CONTINUOUS BASE TO MATCH CABINET FINISH, SCRIBED TO FLOOR
LAMINATE


Entry, Flex Room, Sales Floor Drawings + Renderings: Revit + Enscape

A student center in Reno, Nevada reached out to the firm in hopes of designing their newest student center. To truly embrace the nature surrounding the area, the deign of the building features a RENO them - full of popping color blocks that accent a timeless black & white theme. To reach into the nightlife of Reno, industrial/glam lighting was involved throughout the building along with a custom LED sign leading the on goer to the leasing office.
See below for some of the spaces curated to bring a student’s year to life:
• Private study rooms
• Group study lounge
• Rooftop terrace
• Public ADA bathrooms
• Student hosing units
• Gym • Parking garage
• Bike storage




Renderings: Sketchup + Photoshop











































This original vanilla box, five story 54 unit apartment complex was in need of a fun design theme. Thus the design intent was to implement a unique but modern theme throughout the entry to the top floor amenity space that over sees Lake Michigan and the rentable units.
• Playing with LED light configurations to make an impactful entrance
• Mailboxes to be at suitable ADA height
• Wayfinding methods utilized through LED lit portals
• Versatile amenity space was desired capable of being rented out to large parties









Professional Portfolio
EMAIL: taylorsam1109@gmail.com
PHONE: (630) 746-1143
WEB: http://www.issuu.com/samtaylorr
LINKEDIN: http://linkedin.com/in/samanthataylor-468276169
Samantha Taylor is a motivated Interior Designer with a strong track record in the architecture and planning industry, creating dynamic spaces of all sizes. Through internships early on during schooling years, she developed a hands-on approach and honed her skills in tackling complex design challenges with creativity and efficiency.
Known for her organization and attention to detail, Samantha thrives in fast-paced, multi-tasking environments. As a Midwest camper at heart, she brings a passion for sustainable design, efficient lighting, and a focus on material costs and ADA compliance to every project.
With a BFA in Interior Architecture from Columbia College Chicago and an AAS in Interior Design from the College of DuPage, she pairs formal education with self-taught expertise in design tools like Revit, AutoCAD, Adobe InDesign, Adobe Photoshop, SketchUp, and V-Ray.