M.Arch Retrofit Project

Page 1

3

CONCEPT

URBAN FARMING

What is Urban Farming?

The practice of growing plants, fruits, and vegetables in an urban environment, such as a city or town. It involves cultivating gardens in limited spaces, such as balconies, rooftops, and small yards, to provide fresh produce and greenery to urban dwellers. Urban gardening can be done using a variety of techniques, including container gardening, hydroponics, and community gardening.

Why Urban Farming?

With the rapid urbanization, the productive soil near city centers are limited. The aim of this project is to create an urban farming center in the heart of Coventry, where people will gather and learn about urban farming and harvesting their own food, new methods of farming and contribute to the city by being part of the production process.

Aim

The project aims to become a public attraction where communities can participate in open community gardens along with the ability to purchase organic produce from the farms. The organic restaurant will promote different types of vegan meals while the workshop/learning hub will be used to educate communities.

The residential block will be mainly targetted for the families with proffessionals where they are provided with terrace garden spaces with privacy as well as the communal gardens. This creates the ability to take a break from their busy day today life and engage in farming, which indirectlky create cohesive agricultural community.

Fluidity in vertical and horizontal circulation

Maximum space provided for Urban Farming

Connectivity between vloumes

4 DESIGN PRINCIPLES
Winter Gardens Organic Market Urban Garden

CONCEPT

Vertical Farming

Vertical farming is more cost and space efficient. The requirement of a scissor lift is not there to reach the upper teirs. The height of the racks are between 2.4m-2.7m where two sides can be used. For lighting LED based horizontal plates can be used and the colours can be chnaged according to the requirement.

Products

Hydroponics

Hydrophonic is soilless production where inert,sand,pea gravel,hydrogen,plastic fiber matrix media, a tub of water wil be used. Nutrients will be provided with fertilizer. The positive of this method is that it produce healthy and safe food.

MASSING DIAGRAM

Site with the existing building (49-51 Corporation Street and adjacent garden, Coventry, UK)

Placing the allowed site coverage and area in the site to understand the massing.

Dividing the mass in to two masses according to the brief.

Adding circulation spaces and dividing the commercial mass in to three portions according to the design idea.

Incorporating the stacking strategy to provide maximum natural lighting and to absorb maximum views from the site.

Using bridges to connect masses in the residential mass. Adding the structural grid to the design and connecting all masses together. Cores are added to each function to connect them seperately.

5
Urban Farming Residential Units Terrace Gardens Workshop/ Learning Hub Organic Market Organic Restaurant Communal Gardens
Mint Cabbage Kale Bellpepper Chive Lettuce
Growing Units
Basil Hands on Experience Creating agricultural communities in Urban context Awareness and exposure to Urban farming Tomato
6
Corporation Street Corporation Street in Coventry is in the West Midlands region of England. The postcode is within the St Michael’s ward/electoral division, which is in the constituency of Coventry South
SITE ANALYSIS
Adjacent building facade of 49-51 corporation street Corporation Street Corporation Street in Coventry is in the West Midlands region of England. The postcode is within the St Michael’s ward/electoral division, which is in the constituency of Coventry South Old Bablake
Hospital An almshouse in Coventry, England, established for old bedesmen.It is a Grade II listed building. 1506/Current day St John the Baptist Church English church located in the Medieval area of Spon Street in the city centre of Coventry, West Midlands. The church is a Grade listed building. 1344/current day
Lower Precinct Shopping Centre
School & Bond’s
Land Use Positive and negative views Density

SITE ANALYSIS

this illustration highlights the site in a macro context that helps to indicate a combination of re sponse areas which includes local singmnificances, construction constraints and opportunities. The spacial strategy of massing, planing entries, grid alignment, zoning and vertical/horizontal circulation were influenced upon this analysis.

7
Old Bablake School & Bond’s Hospital

DESIGN BRIEF

8
9 SITE PLAN
St John’s Baptist Church Lower Precint Shopping Centre Town Hall Traven General Charities of Coventry Cafe Morso
CorporationStreet CorporationStreet PROPOSEDSITE
1:500
Cafe Morso
SCALE

SCALE 1:200 ADJACENCY

11
GROUND FLOOR PLAN
DIAGRAM

ADJACENCY DIAGRAM

SCALE 1:200

12
LEVEL 1 FLOOR PLAN

GROUND FLOOR : ISOMETRIC 3D PLAN

e ground oor is used as a organic market where people have the ability to sell their products which they cultivate in the Urban farms as well as the communal gardens in the residential units.

e restaurant in the level 1 is acting as a mezanine oor for the grounbd oor organic market. e purpose of this restaurant is to reduce the waste of the products in the market as well as to promote vegan meals created with the crops produced inhouse.

Weekly cooking workshops will be organized in the market space where people can learn new recipes. is will minimize the bio waste while bringing the community together.

SCALE 1:200 ADJACENCY

14
LEVEL 2 FLOOR PLAN
DIAGRAM

LEVEL 3 FLOOR PLAN

SCALE 1:200 ADJACENCY DIAGRAM

15

LEVEL 3 : ISOMETRIC 3D PLAN

As it has limited knowledge and training regarding urban farming concepts for the public, Workshop/learning hub will be used to educate the people about urban farming methods that can be used in the premises as well as in their own homes.

Apart from educational trainings, workshops where there will be hands on training provided will be organized in this area.

16

LEVEL

SCALE 1:200 ADJACENCY

17
4 FLOOR PLAN
DIAGRAM

SCALE

18
LEVEL 5 FLOOR PLAN
1:200 ADJACENCY DIAGRAM

LEVEL 5 : ISOMETRIC 3D PLAN

The levels 5,7 and 9 is consist of Urban farms where hydrophonic methods will be used for the farming vegitables and fruits.

Urban farm function is going to enhance the solial relations and will immensely support to create a community around the idea of agriculture in urban context.

19

SCALE

20
LEVEL 8 FLOOR PLAN
1:200 ADJACENCY DIAGRAM

SCALE

21
LEVEL 9 FLOOR PLAN
1:200 ADJACENCY DIAGRAM

SCALE 1:200 ADJACENCY

22
LEVEL 10 FLOOR PLAN
DIAGRAM

LANSCAPE PLAN

LANDSCAPE STRATEGIES

23

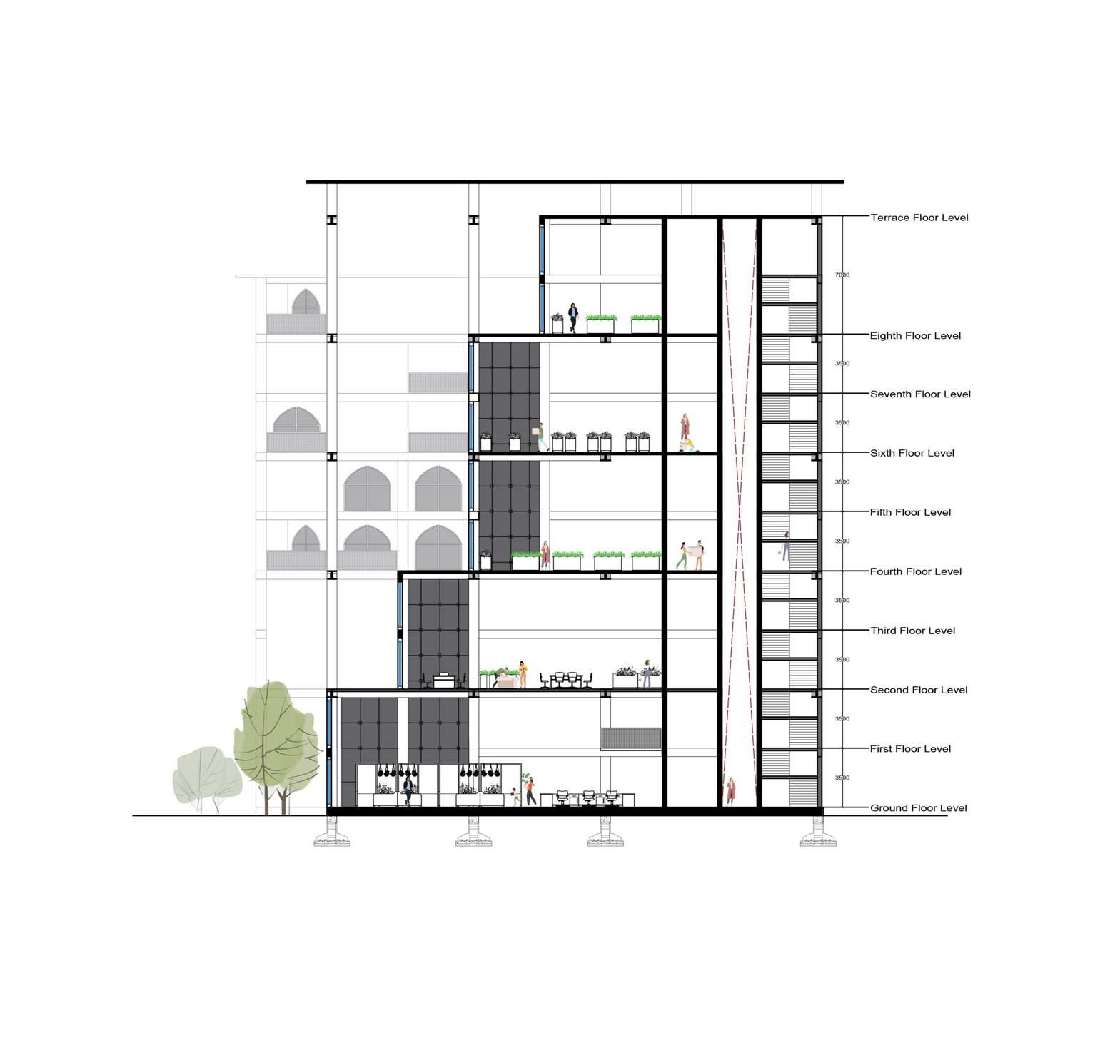
PERSPECTIVE SECTION :

24
DUPLEX Level 1 Floor Plan : Typical base Level 2 Floor Plan : One Bedroom Unit Level 1 Floor Plan : Two bedroom Unit

SECTION A - A’

The Steel I Section Structure Was Inspired From The Ikea Building In Vienna, Westbahnhof

The Grid Pattern And The Plantations, The Idea Was Taken From Rebel, Studioninedots

The Winter Garden Was Inspired And Inculcated From Bordeaux Social Housing, France.

Experimental Brick Pavillion,Argentina Made Us Experiment The Walls For Residential Core, The Perforated Walls And The Glass Detailed Is Inspired From This Precedent

University Of Alberta, Student Union Builing, Cannada, Was The Reason For The Glass Curtain Walls In The

25
SCALE 1:200

SECTION B - B’

SCALE 1:200

The Steel I Section Structure Was Inspired From The Ikea Building In Vienna, Westbahnhof

The Grid Pattern And The Plantations, The Idea Was Taken From Rebel, Studioninedots

The Winter Garden Was Inspired And Inculcated From Bordeaux Social Housing, France.

Experimental Brick Pavillion,Argentina Made Us Experiment The Walls For Residential Core, The Perforated Walls And The Glass Detailed Is Inspired From This Precedent

University Of Alberta, Student Union Builing, Cannada, Was The Reason For The Glass Curtain Walls In The

26

VIEWS

ENVIRONMENTAL STRATEGIES / BUILDING SYSTEMS

HVAC

e HVAC systems provided in the building regulate the indoor temperature, humidity, and air quality allowing people to live in a healthy and comfortable environment. ey operate e ciently and reduce energy consumption.

UNDERFLOOR HEATING is provided to provide warmth to room by radiating heat from the oor up into the space. e Plant rooms for residential and commercial blocks are on 8 oor level of the structure.

e HVAC systems provided in the building regulate the indoor temperature, humidity and air quality allowing people to live in a healthy and comfortable environment . ey operate e ciently and reduce the energy consumption.

SUMMER STRATEGY

Mechanical louvers, act as the barrier for the summer winds to enter the building and can be operated on the climatic needs and purposes.

e balcony providance to all the residencies, make it a approachable aspect to live in. It allows the air ow in to the houses, the long arched windows, follow the site languagae as well.

Perforated walls, cut down the harsh south sunlight that enters the building, besides providing ventilation and lighting partially.

Double Glazing, helps in controlling the heat that enters the building, the amount is regulated through these glasses.

WINTER STRATEGY

Usage of the winter gardens in the communal garden area makes it act as a thermal barrier warming the air between the exterior facade and the building interior. is reduces the heat loss factor in the residencies.

e HVAC systems provided in the building regulate the indoor temperature, humidity and air quality allowing people to live in a healthy and comfortable environment . ey operate e ciently and reduce the energy consumption.

MECHANICAL LOUVERS

To maximize the utilization of primarily North - South winds and to open up the market to the streets during summers.

SOLAR PANELS

e energy produced from the mounted solar panels converts the suns solar energy to electricity which could be used throughout the building.

30

FIRE STRATEGY

31
Fire Escape Route 120 min Fire Resistant Wall 60 min Fire Resistant Wall 30 min Fire Resistant Wall Ground Floor - Fire Life Safety Plan Level 1 - Fire Life Safety Plan Level 2 - Fire Life Safety Plan Level 3 - Fire Life Safety Plan Circulation throughout the Building
32
Fire Escape Route 120 min Fire Resistant Wall 60 min Fire Resistant Wall 30 min Fire Resistant Wall Level 4 - Fire Life Safety Plan Level 5 - Fire Life Safety Plan Level 6 - Fire Life Safety Plan Level 7 - Fire Life Safety Plan Level 8 - Fire Life Safety Plan
FIRE STRATEGY

STRUCTURAL REPORT

RETROFIT STRATEGY

The I-SECTIONs are the main building supports that run throughout the structure, as a main structural system that holds both the residential and commercial bodies, and make them work well in their own different languages.

The I-SECTIONs are of 450mm by 450mm, which are resourced from the existing IKEA building for the main retrofit aspect and the end of life startegy to suppor the site in terms of all the aspects.

THE MODULAR BLOCKS

The MODULAR BLOCKS, are the precast blocks made from the existing IKEA’s precast concrete slabs, turned into modular duplex houses and then supported by the steel structure, for the adding or removing or expanding it .

THE ADDITION OF STEEL GRID STRUCTURE AND THE MODULAR BLOCKS

SLATE RESOURCED FROM THE IKEA BUILDING PRECAST CONCRETE SLAB

BRICKS RECLAIMED FROM INDIAN MASALA

STAINLESS STEEL L WALL BRACKETS FROM IKEA BUIDLING

THERMAL FIBERGLASS RAINBARRIER INSULATION

RESIDENCE SEGMENT’S WALLS

STEEL L WALL BRACKETS FROM IKEA BUIDLING THERMAL FIBERGLASS RAINBARRIER INSULATION

The walls of the residence are made of thermal fibreglass rain barrier insulation and are finished with the reclaimed bricks of 49-51 Corporation Street building.

The flooring of the residence follows he overall flooring pattern made of slate tiles, resourced from IKEA and 4951 Corporation Street building both.

The steel structure support the pixelated architecture followed throughout for residences And holds the core for service access to the residences.

STAINLESS

COMMERCIAL SEGMENT’S WALLS

The commercial language follows the similar language of IKEA with a touch of contemporary. To maintain the building specificity.

The walls are insulated with thermal fiberglass rain barrier insulation and then with the concrete. Walls, which are precast and the facade as 15mm of slate tiles for the exterior.

SLATE RESOURCED FROM THE IKEA BUILDING PRECAST CONCRETE SLAB

STAINLESS STEEL L WALL BRACKETS FROM IKEA BUIDLING

THERMAL FIBERGLASS RAINBARRIER INSULATION

TRILE GLAZING CURTAIN WALLS SOURCED FROM IKEA BUILDING

35

PERFORATED WALLS

The precedent, experimental brick pavilion, helped with the details for the structural detail of the residential segment’s core, which has brick layout supported by the concrete sub substructure and then the double-glazing walls. These details creates a positive connection with environment while functioning as a aesthetic aspect.

DOUBLE GLAZING WALLS SOURCED FROM IKEA BUILDING BRICKS SOURCED FROM THE INDIAN MASALA BUILDING, ARRANGED IN THE PERFORATED MANNER

END OF LIFE STRATEGY

The End-of-Life strategy was considered when designing the building, where the design was developed incorporating the steel, glass and modular system in the residential section to facilitate the ability of addition and subtraction of the building components.

The use of modular system in residential portion of the design is used to provide the ability to alter the spaces according to the need of the owners as well as considering the future of the design. By giving this option, the building can be changed according to the requirement by adding or removing blocks within the span of the streel structural grid that runs throughout the design.

In the design, the materials are reclaimed and sourced from IKEA and 49-51 Corporation street Buildings. In the end of life of the design, the materials can be reused for other design purposes.

PRESENT-PROPOSED MODULAR DESIGN

FEASIBLE-PROPOSED MODULAR DESIGN

PRECEDENT STUDIES

Betonpixel, Is A Pixelated Housing Project in Newyork. The Inspiration of Using It For The Residential Was The Core Idea, The Blending Of The Commercial And Residential Was A Task, But This Project Made The Feasibility Path Towards It.

Village.

The Communal Garden Was the Core Program That Holds Our Whole Residential And Commercial in Play, And To Support This Particular Program, We Needed A Proper Example of Working For These Garden On Balconies And Rooftops.

The Interlace, Singapore Was the Reason to Follow the Stacking Architecture, Which Could Support the Site with Its Site Conditions, The Sunlight, Wind Flow

40
Barclay

REFERENCES

www.smartcitiesdive.com. (n.d.). The Changing Face of Urban Farming in London | Smart Cities Dive. [online] Available at: https://www.smartcitiesdive.com/ex/sustainablecitiescollective/changing-face-urban-farming-london/40962/.

RETROFIT FOR THE FUTURE Reducing energy use in existing homes A guide to making retrofit work. (n.d.). Available at: https://assets.publishing.service.gov.uk/government/uploads/system/uploads/attachment_data/file/669113/Retrofit_for_ the_future_-_A_guide_to_making_retrofit_work_-_2014.pdf.

Centre for Sustainable Energy (2022). What is retrofit? [online] www.cse.org.uk. Available at: https://www.cse.org.uk/news/ view/2687.

Kollewe, J. and Makortoff, K. (2023). Fast-build modular homes – an answer to the UK housing crisis? The Guardian. [online] 14 Apr. Available at: https://www.theguardian.com/business/2023/apr/14/fast-build-modular-homes-an-answer-to-the-ukhousing-crisis [Accessed 15 Apr. 2023].

Struttandparker.com. (2018). Can modular homes solve the UK’s housing crisis? | Strutt & Parker. [online] Available at: https:// www.struttandparker.com/knowledge-and-research/can-modular-homes-solve-the-uks-housing-crisis.

www.makeuk.org. (n.d.). Greener, Better, Faster: Modular’s Role In Solving The Housing Crisis. [online] Available at: https:// www.makeuk.org/insights/reports/greener-better-faster-modulars-role-in-solving-the-housing-crisis.

Boylan, C. (2020). The Future of Farming: Hydroponics. [online] PSCI. Available at: https://psci.princeton.edu/tips/2020/11/9/ the-future-of-farming-hydroponics.

McCray, N. (2022). Pros & Cons of Hydroponic Farming. [online] Earth.org. Available at: https://earth.org/hydroponic-farming/.

www.canarydevelopment.com. (2020). The Ultimate Guide to Winter Gardens - Canary Development. [online] Available at: https://www.canarydevelopment.com/the-ultimate-guide-to-winter-gardens/ [Accessed 15 Apr. 2023].

Dezeen. (2018). Steel-framed ‘winter gardens’ form the facade of Nightingale 1 housing development. [online] Available at: https://www.dezeen.com/2018/09/27/steel-framed-winter-gardens-form-facade-at-nightingale-1-housing-development/.

Sayner, A. (2020). Urban Farming Ultimate Guide and Examples. [online] GroCycle. Available at: https://grocycle.com/urban-farming/.

Maslova, S., Holmes, H. and Burgess, G. (2021). Deploying modular housing in the UK: exploring the benefits and risks for the housebuilding industry. [online] Available at: https://www.placesforpeople.co.uk/media/zudfphry/modular-housing-report-21. pdf.

High Streets Task Force. (n.d.). Markets as Social Spaces. [online] Available at: https://www.highstreetstaskforce.org.uk/resources/details/?id=fc7a68fe-e1a4-43c6-881a-d8a983074993.

Taylor, M., González, S., Waley, P. and Wilkinson, R. (n.d.). Developing markets as community hubs for inclusive economies: a best practice handbook for market operators. [online] doi:https://doi.org/10.5518/100/75.

42

Turn static files into dynamic content formats.

Create a flipbook
Issuu converts static files into: digital portfolios, online yearbooks, online catalogs, digital photo albums and more. Sign up and create your flipbook.