

INTERIORDESIGNPORTFOLIO
SAMI RANDALL

I am a diligent and passionate student at Pittsburg State University, with strong organizational skills, precise attention to detail, and great time management. A construction background led my passion of interior design.
EDUCATION
Pittsburg State University
Bachelor of Science in Interior Design
Anticipated Graduation: May 2025
SKILLS
AutoCAD 2025
Chief Architect 2025
Revit 2025
SketchUp 2025
Photoshop 2025
InDesign 2024
WORK EXPERIENCE
Arma Health and Rehab
605 E. Melvin St. Arma, KS 66712
May 2023- present
Certified Nursing Assistant
The Home Store
1725 Main St. Parsons, KS 67357
May 2024- present
Material selection, field measurements, and client meetings
Customer service and organization
Buffalo Wild Wings
101 W 29th St. Pittsburg, KS 66762
August 2022- February 2023
Serving
ACHIEVEMENTS & INVOLVEMENTS
IIDA student member
Spring 2022-current
Alpha Sigma Alpha
Fall 2021-Spring 2023
Dean’s Scholastic Honor Roll
Fall 2023, Spring 2024
The BIG Event
Swing-A-Thon
Princess For a Day
Making dog toys for local animal shelter
Letters to local nurses
Kickball tournament to fundraise for Special Olympics
AdobePhotoShop
PORTRAIT RETOUCH
The main goal of this assignment is to significantly improve "half" of the image you choose.


ENVIRONMENTAL CHANGES
This assignment explores key tools and features that allow you to significantly remove or add elements to an image.
AdobePhotoShop

FINAL PROJECT

This project is an opportunity to showcase software skill combined with creativity by taking several images and putting them together to create a fictional setting.
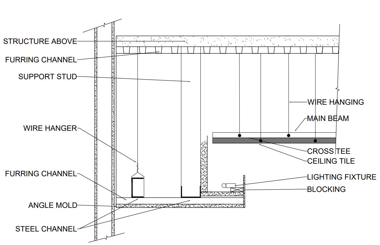
CADDetailDrawing


CADDetailDrawing

SUSPENDED GWB COVE & RECESSED ACT SYSTEM

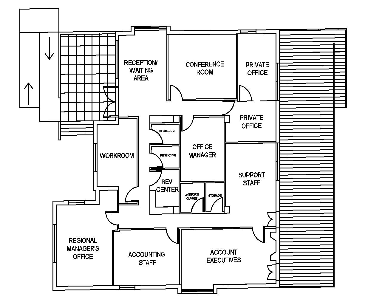
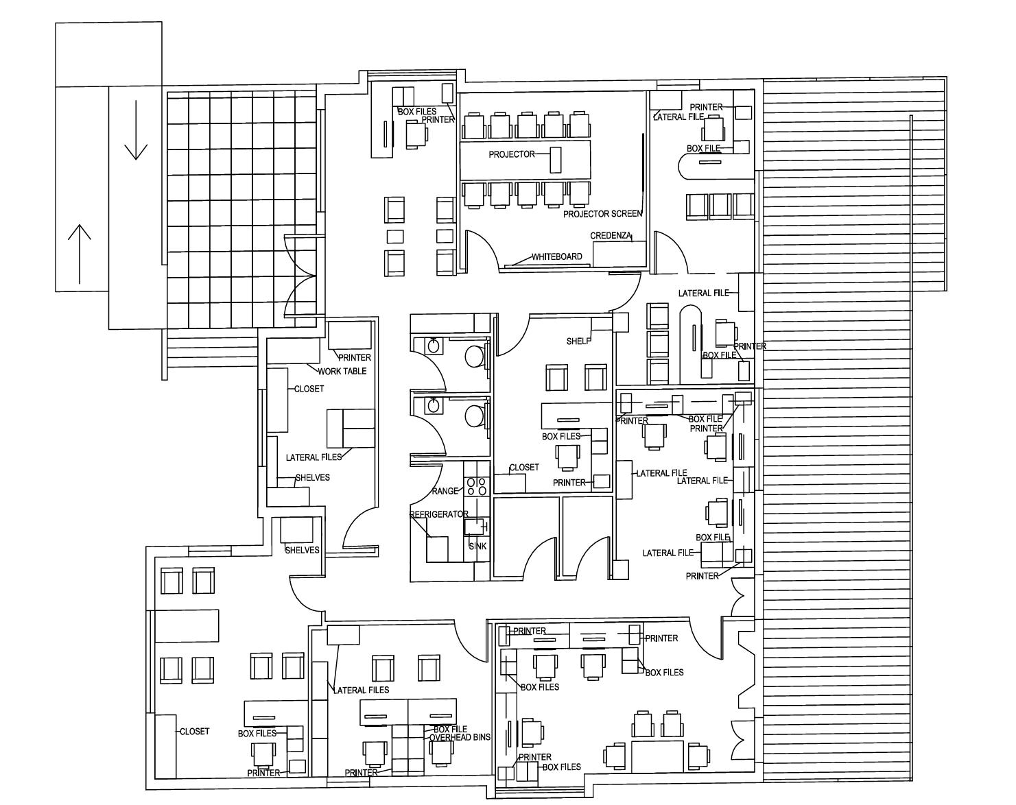
RegionalManagmentCenter
Sophomore Level
A building shell was given.
Utilize the skills we’ve learned about the process of design development and planning of interior spaces and execute that.





NEXTSteelcaseCompetition
NEXT is a global advertising agency that is opening a new office in Chicago, Illinois. Objectives for the design was to make it a functional space for diverse needs, aesthetically pleasing to clients and team members, and make the space feel like home rather than work.
Software Used: Revit
PreliminaryWork






Bubble Diagrams Block Diagrams
Concept Diagram
Sketch
6TH FLOOR PLAN




Coalesse Strokes 1
Tarkett Aida Cloth
Concrete
7TH FLOOR PLAN









Elmotique Coalesse
RECEPTION





LOUNGE
Steelcase
Elmotique Black Paint
Hickory
Gamnut Coalesse













Kyoto Neutral Wallpaper
Oak
Black Paint
Steelcase
Gamnut
Black Paint
Black Paint
Steelcase Platinum Matte
Mattiazzi
ElevatedSection
Huddle Room Social Area
Wayfinding

Reception
Huddle Room
Client Display
Formal Team Meeting