
I am a diligent and passionate student at Pittsburg State University, with strong organizational skills, precise attention to detail, and great time management. My construction background led my passion of interior design.
![]()

I am a diligent and passionate student at Pittsburg State University, with strong organizational skills, precise attention to detail, and great time management. My construction background led my passion of interior design.
Pittsburg State University
Bachelor of Science in Interior Design
Anticipated Graduation: May 2025
AutoCAD 2025
Chief Architect 2025
Revit 2025
SketchUp 2025
Photoshop 2025
InDesign 2024
Arma Health and Rehab
605 E. Melvin St. Arma, KS 66712
May 2023- present
Certified Nursing Assistant
The Home Store
1725 Main St. Parsons, KS 67357
May 2024- present
Material selection, field measurements, and client meetings
Customer service and organization
Buffalo Wild Wings
101 W 29th St. Pittsburg, KS 66762
August 2022- February 2023
Serving CONTACT
785.418.1113
IIDA student member
Spring 2022-current
Alpha Sigma Alpha
Fall 2021-Spring 2023
Dean’s Scholastic Honor Roll
Fall 2023, Spring 2024
The BIG Event
Swing-A-Thon
Princess For a Day
Making dog toys for local animal shelter
Letters to local nurses
Kickball tournament to fundraise for Special Olympics
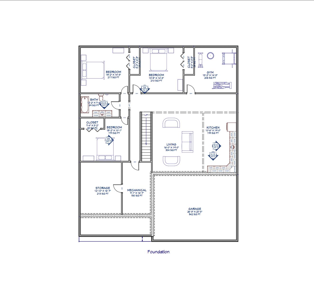
You are to design a new home for Summit Homes, KC. They have a client who would like to build a home in North Park Village, a community in Lee’s Summit, MO. They would like to build on the lot at 1824 NE Ravenwood Drive. Your job is to create a plan that will:


Fit within client’s budget
Meet the needs of the client
Be compatible with the existing homes in the community
Utilize exterior and interior finish materials that are comparable to other homes in the community







1824 NE Ravenwood Drive Lee Summit, MO 64086
This house belongs in a neighborhood that is very modern and is very neutral in color. Having multiple car garages is common. This is a wealthier neighborhood
We had a $500,000 budget to build this house.
Software Used: Chief Architect

TATTOO ARTIST
This assignment is about combining vector (Adobe Illustrator) images with a raster image

This assignment explores key tools and features that allow you to significantly remove or add elements to an image.
The main goal of this assignment is to significantly improve "half" of the image you choose.



This project is an opportunity to showcase software skill combined with creativity.


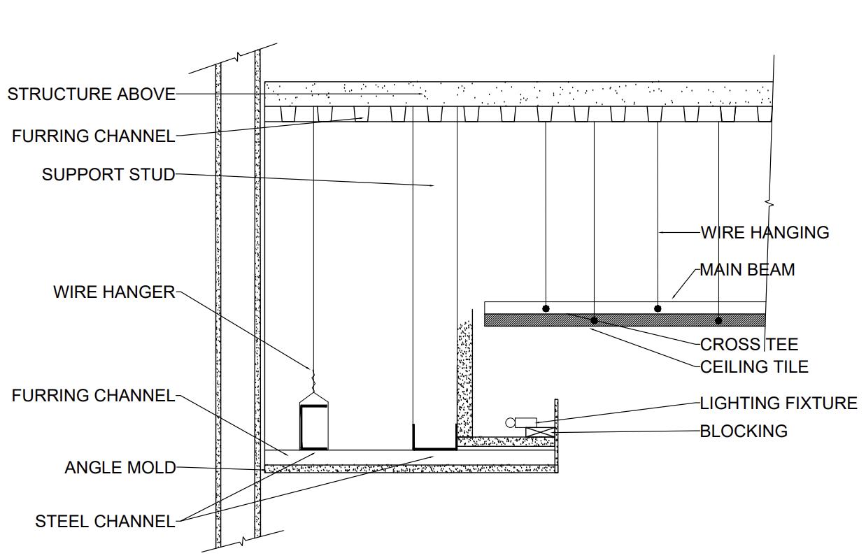
WOOD STUD PARTITION WITH OPENING


WOODEN DOOR SECTIONS




We were given a specific building shell from the textbook and requirements for designing the space. Utilize the skills we’ve learned about the process of design development and planning of interior space. Create an organized methodology through analyzing, planning, and furnishing.

Software Used:



Research
Criteria and Adjencency
Matrix
Protypical Sketches
Relationship Diagrams
Bubble Plans
Block Plans
Drafted Floor Plan
Space Allocation
Diagram
Furniture Plan
Furniture and Material
Selections
NEXT is an independent, global creative advertising agency headquartered in New York with offices in London, Los Angeles, Hong Kong, and soon a new office in Chicago.
NEXT is opening a new office in Chicago, IL. We have several clients (and potential new ones) and it’s important for us to build a new workplace location where we can connect in a meaningful way with our clients. Our team mantra around this is “Being More Human.”
Software Used:
