Skip to main content

Tectonic Materiality :: The hall of frames ; re-living Da Vinci's world

Page 1

The BIG Re-think Tectonic Materiality of Interior Elements Master Tutor : Prof. Kireet Patel Studio Tutors: Rishav Jain, Aparajita Basu TA: Jay Odharia, Jhanavi Parikh Master of Interior Design Monsoon 2022 | Faculty of Architecture CEPT University Samiha Khan PID22302 ID 4030 | Level 4 | PG Program DESIGN BOOT-CAMP HYPOTHESIS 01 FOUNDATION + MODULE Rajesh Pratap Flagship Store The ethereal cage
Content

0. About Studio

1. Design Boot Camp

1.1 Architecture as Architecture

Through orthographic drawings

1.2 Interior Design Sensibility

Through isometric drawings

1.3 Interior Design Specialisation

Through exploded isometric drawings

Module 01

2. Developing the Hypothesis

5 7 17
4

The BIG Re-think Tectonic Materiality of Interior Elements

Master Tutor: Prof. Kireet Patel

Studio Tutors: Rishav Jain, Aparajita Basu

Assistants: Jay Odharia, Jhanavi Parikh

Brief Outline:

The Big Rethink is a series of postgraduate interior design studios focused on developing a multitude of notions, approaches, positions and arguments within the interior design field.

This semester, the fourth one in the series, the studio challenges the concept of Tectonic Materiality of interior elements. It offers an opportunity to develop a design position in different contexts by questioning preconceived notions of interior design. It emphasizes the relationship between Interior elements and tectonic materiality through experience, organization and construction.The studio focuses on representing experiential and ephemeral qualities, planning and organising strategies, detailing and construction techniques, exploring the relationship

Learning Outcomes:

After completing this studio unit, the student will be able to:

Ability to develop a systematic argument/position/approach on the interdependence between interior techniques and practice.

Ability to translate/represent the design argument/position/ approach through 3- dimensional and material based outcomes.

Ability to organize and evaluate the programmatic and pragmatic potential of derived design position.

Ability to build a design vocabulary and test it through the selected context (site/program).

5

Decoding layers : architecture as architecture, interior design sensibilities and interior

6

Week 01-04 | Design Boot-Camp

Ex. 01 | Specialisation of sensibilities

Knowing Architecture and Interior Sensibilities & Interior Specialisation

Project Information

Delhi designed by Studio Lotus architects

Process: understanding the space better

The store is designed to be minimal. The need for this approach arises from the typology of the space - a retail store. The space is designed to stand as a subtle backdrop for the clothes on display. The genius in this very simple minimal space is the use of slightly varying configurations of a single barber’s scissors to create a jaali wall for display. This self on self patterned wall stands as an interesting element, not only providing a neutral backdrop for the designer’s clothes but also to hide building services. This leads to the creation of a box of jaali within the bare envelop of the space. The colour scheme in addition to the porosity of this inner jaali layer adds more horizontal depth to the otherwise tiny retail store.

7 Design Boot-Camp

Layer 01 :: architecture as architecture :: hand drafting plans and sections of the space as it is to understand the space in depth

The store is designed to be minimal. The need for this approach arises from the typology of the space - a retail store. The space is designed to stand as a subtle backdrop for the clothes on display. The genius in this very simple minimal space is the use of slightly varying configurations of a single barber’s scissors to create a jaali wall for display. This self on self patterned wall stands as an interesting element, not only providing a neutral backdrop for the designer’s clothes but also to hide building services. This leads to the creation of a box of jaali within the bare envelop of the space. The colour scheme in addition to the porosity of this inner jaali layer adds more horizontal depth to the otherwise tiny retail store.

ARCHITECTURE AS ARCHITECTURE

INTERIOR DESIGN SPECIALISATION

Layer 02 :: interior design sensibility :: hand drafting the isometric drawing of the space to peel the architecture shell away : understand the interior sensibilities of the project

MAKING OF THE SPACE ELEMENTS

LAYER 01 :: CEILING

Exposed ceiling painted HVAC ducts and fire pipes LAYER 02 :: SUSPENDED Fabricated grid of 75X75mm suspended from the ceiling

LAYER 03 :: WALL Wall painted a neutral colour white. Wall MS fabricated supported from the wall using flat plate anchor bolted to wall

LAYER

LAYER

LAYER

The Big Rethink: Tectonic Materiality | Master Tutor: Prof. Kireet Patel | Unit Tutors: Rishav Jain, Aparajita Basu | Unit Assistants: Jhanavi Parikh, Jay Odharia | M.I.D. | Monsoon 2022 | 22 pt Avenir Lt Std Font 16 pt Avenir Lt Std Font DETAILS OF ELEMENTS RAJESH PRATAP SINGH FLAGSHIP STORE | Studio Lotus | Delhi, India ISOMETRIC VIEW ORTHOGRAPHIC DRAWINGS TYPE 01 Moderate density JAALI CONFIGURATIONS TYPE 02 Moderate density TYPE 03 Sparse density TYPE 04 Sparse density TYPE 08 High density TYPE 07 Sparse density TYPE
Moderate density TYPE
Sparse density
06
05
The jaalis are divided into three categories depending on the density of their openings. They are arranged next to each other to create an organic perforated plane against the dead wall. The mixing of different levels of porosity help break the monotony of the white jaali plane.
04 :: WALL GRID Fabricated grid of 75X75mm hollow MS sections connected to the wall with similar members - all painted white
05 :: JAALI Various jaali patterns made scissors welded onto a 1” screwed onto the wall grid
06 :: FLOOR Trimix concrete flooringtexture and colour to add white space
1. Structure as a bare shellrectilinear space 2. Lack of external context 3. No natural light or ventilation
JOINERY 1” wide MS flat as frame the jaali ( bolted onto main MS 75x75 mm MS hollow section for main frame ( welded together )
8
Effective use of rectilinear architectural shell as a stencil for regulating internal space. - line spatial planning + worked on enhancing the linearity and rigid geometry instead of going against the grain of the space. This is achieved by creating a space within a space the jaali box)

MATERIAL IDENTIFICATION

Trimix flooring :: adding visual texture

Plastered walls & ceiling :: white walls provide a neutral basemonochromatic colour scheme

sections :: painted white & maintain the neutral theme

ORTHOGRAPHIC DRAWINGS

MAKING OF THE SPACE :: STUDY OF ELEMENTS

The jaalis are divided into three categories depending on the density their openings. They are arranged each other to create an organic perforated plane against the dead The mixing of different levels of porosity help break the monotony of the white jaali plane.

Avenir Lt Std Font

Avenir Lt Std Font

LAYER 01 :: CEILING SLAB

Exposed ceiling painted white with services like HVAC ducts and fire pipes exposed

LAYER 02 :: SUSPENDED METAL

RAFTERS

Fabricated grid of 75X75mm hollow MS sections, suspended from the ceiling

LAYER 03 :: WALL

Wall painted a neutral colour - white. Wall MS fabricated grid supported from the wall using MS flat plate anchor bolted to the wall

Avenir Lt Std Font pt Avenir Lt Std Font

LAYER 04 :: WALL GRID

Fabricated grid of 75X75mm hollow MS sections connected to the wall with similar members - all painted white

LAYER 05 :: JAALI

Various jaali patterns made with barber’s scissors welded onto a 1” wide metal flat screwed onto the wall grid

LAYER 04 :: WALL GRID

Fabricated grid of 75X75mm hollow MS sections connected to the wall with similar members - all painted white

Lighting 01 :: use of LED profile lighting under the upper horizontal member of the wall grid for flooding the wall ( clothes rack) with light

Lighting 02 :: use of chrome finish industrial hanging lamps with diffuser plate for general lighting

Layer 03 :: decoding the decisions in the project by identifying materials and key elements used

FLOOR

LAYER 06 ::

Trimix concrete flooring - rugged concrete texture and colour to add depth to the white space

LAYER 05 :: JAALI

Various jaali patterns made with barber’s scissors welded onto a 1” wide metal flat screwed onto the wall grid

LAYER 06 :: FLOOR

Trimix concrete flooring - rugged concrete texture and colour to add depth to the white space Jay Odharia

Barber’s scissors :: spray painted white : used to make jaalis - they add visual texture while maintaining the neutrality of the space EXPLODED

75x75 mm MS hollow section for main frame ( welded together ) Barber’s scissors welded together to form a jaali which is welded onto the MS flat

1” wide MS flat as frame for the jaali ( bolted onto the main MS grid)

ISOMETRIC

Std Font

pt Avenir Lt Std Font

Layer 03 :: study of the tectonics of the space : assembly of the jaali panels and the jaali

9 Design Boot-Camp
| Unit Assistants:
|
|
| PG
|
|
along important 22 pt
16 pt
Aparajita Basu
Jhanavi Parikh, Jay Odharia
M.I.D.
Monsoon 2022
L4 Unit
Faculty of Architecture
CEPT University
Avenir Lt Std Font
Avenir Lt Std Font
Sparse
High density
TYPE 02 Moderate density TYPE 03 Sparse density TYPE 04
density TYPE 08
TYPE 07 Sparse density TYPE 06 Moderate density TYPE 05 Sparse density
| M.I.D. | Monsoon 2022 | PG L4 Unit | Faculty of Architecture | CEPT University Student Name | Code No. 22 pt Avenir Lt
18
ORTHOGRAPHIC DRAWINGS
TYPE 01 Moderate
TYPE 02 Moderate density TYPE 03 Sparse density TYPE 04 Sparse density
Samiha Khan / PID 22302
density CONFIGURATIONS

Layer 03 :: interior design specialisation :: attempt 01: exploded isometric drawing of the space to explore the interior specialisation in the project

10

DETAILS OF ELEMENTS

OPTIONS OF SLAB SUPPORT

Layer 03 :: interior design specialisation :: attempt 02 :

OF

OPTION 02 OF SLAB SUPPORT

INTERIOR DESIGN SPECIALISATION

INTERIOR DESIGN SPECIALISATION

Identifying the key purpose & its corresponding design solutions

Identifying the key purpose & its corresponding design solutions

1. To effectively hide retail store building services - this had been achieved by extending the jaali grid along the ceiling, creating an envelop for its users.

2. To create a contrasting element to display clothing against the dead store walls - addressed by creation of a minimal grid framework with a light jaali patterns against the dead monolith wall, adding texture and depth to the rectilinear space.

11 Design Boot-Camp The Big Rethink: Tectonic Materiality Master Tutor: Prof. Kireet Patel Unit Tutors: Rishav Jain, Aparajita Basu Unit Assistants: Jhanavi Parikh, Jay Odharia M.I.D. Monsoon 2022 PG L4 Unit Faculty of Architecture | CEPT University Student Name | Code No. Heading Text: 22 pt Avenir Lt Std Font Body Text: 18 pt Avenir Lt Std Font Caption Text: 12 pt Avenir Lt Std Font
Wall painted a neutral colourwhite. Wall MS fabricated grid supported from the wall using MS flat plate anchor bolted to the wall
::
Fabricated grid of 75X75mm hollow MS sections connected to the wall with similar members - all painted white
05 :: JAALI Various jaali patterns made with barber’s scissors welded onto a 1” wide metal flat screwed onto the wall grid
06 :: FLOOR Trimix concrete flooring - rugged concrete texture and colour to add depth to the white space
LAYER 03 :: WALL
LAYER 04
WALL GRID
LAYER
LAYER
Samiha Khan | PID22303
1” wide MS flat as frame for the jaali ( bolted onto the Barber’s
OPTION 01:: Fabricated grid of 75X75mm hollow MS sections, suspended from the ceiling by welding 75x75mm member on a MS plate
scissors
75X75
MM MS member MS members welded
exploded isometric drawing of the space to explore the interior specialisation in the project : decoding interior design decisions behind each interior element The Big Rethink: Tectonic Materiality Master Tutor: Prof. Kireet Patel Unit Tutors: Rishav Jain, Aparajita Basu Unit Assistants: Jhanavi Parikh, Jay Odharia M.I.D. Monsoon 2022 PG L4 Unit Faculty of Architecture | CEPT University Student Name | Code No. Place your Exploded Isometric+ Details + Elements drawing here as per the discussed format Heading Text: 22 pt Avenir Lt Std Font Body Text: 18 pt Avenir Lt Std Font Caption Text: 12 pt Avenir Lt Std Font LAYER 03 :: WALL Wall painted a neutral colourwhite. Wall MS fabricated grid supported from the wall using MS flat plate anchor bolted to the wall LAYER 04 :: WALL GRID Fabricated grid of 75X75mm hollow MS sections connected to the wall with similar members - all painted white LAYER 05 :: JAALI Various jaali patterns made with barber’s scissors welded onto a 1” wide metal flat screwed onto the wall grid LAYER 06 :: FLOOR Trimix concrete flooring - rugged concrete texture and colour to add depth to the white space
OF ELEMENTS Samiha Khan | PID22303
Fabricated grid of 75X75mm hollow MS sections, suspended
the ceiling by welding 75x75mm member on a MS plate anchor bolted to the slab 1” wide MS flat as frame for the jaali ( bolted onto the main MS grid) 75x75 mm MS hollow section for main frame welded together ) Barber’s scissors welded together to form a jaali which is welded onto the MS flat
DETAILS
OPTION 01::
from
75X75 MM MS member struct welded to MS wall plate anchor bolted to wall MS members welded together - vertical member welded at right angle with shorter horizontal members
OPTION 01 OF SLAB SUPPORT OPTION 02
SLAB SUPPORT FIXING OF MAIN MS GRID TO WALL
1. To effectively hide retail store building services - this had been achieved by extending the jaali grid along the ceiling, creating an envelop for its users.
2. To create a contrasting element to display clothing against the dead store walls - addressed by creation of a minimal grid framework with a light jaali patterns against the dead monolith wall, adding texture and depth to the rectilinear space.

Ex. 02 | Design Optimization

Familiarising - “Know it more through - Optimization”

Process of model making

The techniques of optimisation in an interior specialisation project were explored in this exercise. The concepts of a designer are not always based within the materials itself, but often concern other societal observations and are given resonance in a material as the concept is translated from abstract to built form. The reverse methodology of this exercise helped gauge this sensitivity to tectonics of materiality by the designers.

12
Week 01-04 | Design Boot-Camp
Module 01 | Hypothesis Development 13
Part photo of the boot camp model :: showing movement through the metal frames

Process :: showing experimentation with soldering & point welding to recreate the scissor jaalis

Process :: showing stainless steel frames welded as sample with members cut to be assembled

14
Module 01 | Hypothesis Development 15
Process :: showing experimentation with joining the jaali to the stainless steel frames :

design specialisation

takes surfaces Spaces takes clarity with simple articulation

Tectonics of space depends upon and is enhanced by nature of tectonics and materiality of planes and voids that are part of the space

Tectonics of space is contributed to by emphasis of various elements that are contained within it. A disciplined manner of occurrence and repetition of elements adds variety and character enhancing tectonics.

mono materiality allows attention towards certain other interior elements

Prof. Kireet Patel | Unit Tutors: Rishav Jain, Aparajita Basu | Unit Assistants: Jhanavi Parikh, Jay Odharia | M.I.D. | Monsoon 2022 | PG L4 Unit | FA | CEPT University

Week 05-06| Module 01

Ex. 01 | Tectonics & Materiality

Part 01 | Exploring concepts of Tectonic Materiality

Project Information

beyond design bistro (Delhi)

Process:

Stage 01: Identifying projects that define tectonic materiality

Stage 02: Detailing and Analyzing projects

Stage 03: Analysing the Matrix to arrive at a Hypothesis.

Stage 04: Contextualising the Hypothesis

Module 01 | Hypothesis Development 17

Project type - Historical era

if tectonics of materiality of basic material is powerfully used, it influences the spatial character

geometry of the arch deeply influences tectonics of the space

curvatures of the arch as well as of other elements makes for a visual movement

Tectonics

influences and dynamics

18

of materiality uences the character dynamics of space

Undulating organic surfaces add to visual quality by creating a sculptural program

1522 - The pub, Bangalore The fadd studio

Organic surfaces create sense of unity and continuity; and added with textural qualities, also add direction

Notion of space is brought about use of a single material in various ways geometry of the arch deeply influences tectonics of the space fluid curves of interior elements generates movement within the space composition of interior elements of varying scales creates visual tensions rigidity of the arched elements contrasted with the fluid elements, makes for visual relief juxtaposition of different geometric forms built in the same material avoids monotony when one material is used in various configurations, to create different interior elements, the universal quality of that material informs the space strongly.

Module 01 | Hypothesis Development 19

when surface details, planes and volumes have a geometric relationship, it imparts a similar characteristic to the tectonics of the space

cellular divisions of various scales create a sense of enclosure and play in vision of the space

Synthesis

materiality of arch as the primary element stands out as primary focus of language of interiors

tectonic materiality of cellular divisions along with their geometry creates a unique configuration of space

juxtaposition brings about contrast in the spatial setting, bringing about excitement and a sense of dynamics

Tectonics of interior elements creates a dramatic experience and adds detail and scale.

Tectonics of space is informed by the character of the primary element of the arch

historic principles of composition incorporating hierarchy, axis, scale and detail enhances tectonics of space

symmetry orders organization of elements in historic settings

contrasting materials help define different volumes and create unique relationships of elements

Project Name

Trilegal office,

Delhi Studio Lotus Project type - Current modern practices

Synthesis

tectonics of space is essentially informed by volumes that it holds within it

geometry is an essential contributor to tectonic materiality and imparts order to the composition

sense of movement in space is generated by repetition of patterns

use of contrasting elements brings focus to tectonics of space

repetition of a single module in a particular manner adds complexity and depth to the space

achievement of tectonic materiality comes about by juxtaposition of elements of varying textures and geometric attributes

transparence and porosity of materials allows visual connectivity without hampering functionality

composition of modules of interior elements in various sequences results in increased visual cognition.

patterns generated through material tectonics add maximality to space

notion of space is defined by relationship of adjacent volumes & characterised by materiality of these volumes

consistent use of arch as an interior element imparts its intrinsic geometric stability to the space

use of different scales and proportions of interior elements enhances visual movements

using symmetry and layering of elements adds complexity in space

hierarchy of tectonics of materials enhances a sense of organization within the space

tectonics of space is influenced by juxtaposition of contrasting forms and textural values

New elements within the historic spatial framework brings about harmony and balance to enrich tectonics of space.

20
The Big Rethink: Tectonic Materiality | Master Tutor: Prof. Kireet Patel | Unit Tutors: Rishav Jain, Aparajita Basu | Unit Assistants: Jhanavi Parikh, Jay Odharia | M.I.D. | Monsoon 2022 PG L4 Unit FA CEPT University Student Name Code No.
Designer: Case Study Analysis Matrix Samiha
Khan | PID22302 The Calcutta bungalow Akhil Ranjan Sarkar, Swaroop Dutta Project type - Historical era

Case Study Analysis Matrix

Project type - historical era

Synthesis

The notion of space is a result of a restrained mix of the existing interior elements and contemporary additions

Case Study Analysis Matrix

Creation of functionality is achieved by design of micro level units of contemporary materials

Project type - interior design specialisation

The relationship between the old and new has been brought about by a careful synthesis

Various scales can be employed to achieve a balance between the elements

Tectonics of space is achieved by creation of a module to bind the two languages

Synthesis

Play of heights adds a rhythmic flow to tectonics of space

Articulation of materials results in local symmetries

Sense of the whimsical is enhanced by use of contrast of elements

Maximalism as a style stands opposed to drawing emphasis to any one interior element

Repetition of one interior module, scaled proportionately, across the space brings about harmony in a scattered composition

Project

Name Designer:

Expensify office, Portland ZGF studio

Synthesis

Tectonics of space is rooted in the materiality of elements that are both historic as well as contemporary

Tectonic materiality of geometric forms gives a clear definition and brings about a seamless fusion of elements

Tectonic materiality of interior elements brings about a sense of visual movement

Tectonic materiality of interior space has been brought about by creation of local symmetries where ever possible

Tectonic materiality is heightened by layering interior elements. It has aided in adding complexity to the spatial envelope

Tectonic materiality has been achieved by juxtaposition of interior elements of the two different languages; historical and new age leading to an eclectic setting

Mono materiality of each detail binds this space together

Use of contrasting languages, contribute to varying scales and proportions and enrich tectonics of space.

Student Name | Code No.

Samiha Khan PID22302

Project Name Designer:

The Bastian restaurant, Mumbai Shilpa Shetty

Synthesis

creation of various sizes of volumes with the larger volume helps to scale the space

breaking down each element into smaller geometric fragments helps achieve scalability and adds detail

scaling interior elements rhythmically brings about cohesive visual movement

multiplicity of elements or maximalism of space helps articulate planes

layering can be used to establish relationship between various elements of the interior

juxtaposition of different textures and patterns of materials help scale the volume

Inclusion of a multiplicity of varied elements results into visual cohesion

Use of layering of interior elements and materials helps achieve human scale

The Big Rethink: Tectonic Materiality Master Tutor: Prof. Kireet Patel | Unit Tutors: Rishav Jain, Aparajita Basu | Unit Assistants: Jhanavi Parikh, Jay Odharia M.I.D. | Monsoon 2022 | PG L4 Unit | FA | CEPT University
The Big Rethink: Tectonic Materiality Master Tutor:
Student Name | Code No.
Prof. Kireet Patel | Unit Tutors: Rishav Jain, Aparajita Basu | Unit Assistants: Jhanavi Parikh, Jay Odharia M.I.D. | Monsoon 2022 | PG L4 Unit | FA | CEPT University
Samiha Khan PID22302

Case Study Analysis Matrix

Project type - interior design specialisation

Synthesis

Tectonics of space takes its character from articulation of its surfaces and voids Spaces takes clarity with simple articulation

Case Study Analysis Matrix

Project wise hypothesis 1522 - The pub, Bangalore

when one material is used in various configurations, to create different interior elements, the universal quality of that material informs the space strongly.

Tectonics of space depends upon and is enhanced by nature of tectonics and materiality of planes and voids that are part of the space

Tectonics of space is contributed to by emphasis of various elements that are contained within it. A disciplined manner of occurrence and repetition of elements adds variety and character enhancing tectonics.

mono materiality allows attention towards certain other interior elements

Expensify office, Portland

Use of contrasting languages, contribute to varying scales and proportions and enrich tectonics of space.

Trilegal office, Delhi

composition of modules of interior elements in various sequences results in increased visual cognition.

The Bastian restaurant, Mumbai

Use of layering of interior elements and materials helps achieve human scale

HYPOTHESIS

Project Name

The beyond design bistro, Delhi Sachin

Designer:

Gupta

Synthesis

Tectonics of space is achieved through repetition of similar elements

repetition of spatial elements on a planar leads to reduction of monotony

Attribute

of

Geometry aids in modular understanding of space

Articulation of a similar detail helps bind the spatial settings and makes for smooth visual feel

Predominant elements of spatial tectonics creates an identity unique to the space

Attribute of layering is achievable by combinations of various elements in various relationships creating unique experiences

Tectonics of materials and of space emerges with clarity when juxtaposed elements or forms either impart consistency to the assembly or make it stand out in contrast to each other

achieving an appropriate relationship between solids and voids helps articulate the space

Student Name | Code No.

Samiha Khan PID22302

Project Name

Designer:

Synthesis

The Calcutta bungalow

New elements within the historic spatial framework brings about harmony and balance to enrich tectonics of space.

The beyond design bistro, Delhi

achieving an appropriate relationship between solids and voids helps articulate the space

Patterns resulting out of tectonics of materiality inform scale and proportion of a space

22
The Big Rethink: Tectonic Materiality | Master Tutor: Prof. Kireet Patel | Unit Tutors: Rishav Jain, Aparajita Basu | Unit Assistants: Jhanavi Parikh, Jay Odharia M.I.D. | Monsoon 2022 | PG L4 Unit | FA | CEPT University

Today, most of our interior materials are part of a take-make-waste

lost from the economy after the lifespan of those elements is over (usually 5-10 years). This is an enormous loss. The creativity, la bour, and energy behind the project is lost. These products, elements and materials can instead be reused by creating a circular economy through design.

High recyclable value of natural materials like timber, steel, terracotta, jutes etc, can add to the circular economy by being reused after the lifespan of the interior element is over.

material in the interior space. A material inherently brings with it, its dimensions, textures, grain etc. These attributes in addition to the de signer’s way of using the given material creates certain patterns and modules. The hypothesis forms a subset of the larger concern. It aims at understanding if the use of natural materials and their tectonics, the way these materials come together and form patterns in space, bring about a sense of scale and proportion in the space they’re de signed for.

It is important to be conscious of the choice of materials. Each material comes with certain attributes, physical, chemical and spatial. It is important to develop an understanding of a materials potential with respect to the design concept through tangible material explorations. It is through this learn ing will we as designers be able to look beyond the tiff between tectonics and form and transcend the hypes over new materials as the only means to design ends. “the choice of materials gives evidence to the designers’ views of society and their position within it.” -The Alternative Approach

Observation, Speculation, Experimentation in material-design-informing-architec ture- by-materiality by Thomas Schröpfer

23 Design Boot-Camp
Can patterns resulting out of tectonics of materiality inform the scale and proportion of a space?
Content
The BIG Re-think Tectonic Materiality of Interior Elements Master Tutor : Prof. Kireet Patel Studio Tutors: Rishav Jain, Aparajita Basu TA: Jay Odharia, Jhanavi Parikh Master of Interior Design Monsoon 2022 | Faculty of Architecture CEPT University Samiha Khan PID22302 ID 4030 | Level 4 | PG Program ROLE 01 Historical Practices Through Project Representing An ‘Era’ The Hall Of Frames Reliving history : Da Vinci’s world through materiality 02 MODULE
Content

Exploration of the hypothesis & reevaluation of Architecture as Architecture, Interior Design Sensibility, Interior Design Specialisation

MODULE 02 Role 01 | Historical Practices Through Project Representing An ‘Era’ 1. Site Attributes Analysis Early explorations of the space 3. Final design output Understanding tectonic materiality 3. Critical analysis : montages + inferences
5
8 10 14
The Big Rethink: Tectonic Materiality Master Tutor: Prof. Kireet Patel | Unit Tutors: Rishav Jain, Aparajita Basu | Unit Assistants: Jhanavi Parikh, Jay Odharia M.I.D. Monsoon 2022 | PG L4 Unit FA CEPT University Student Name Code No. Synthesis Synthesis Project Name Designer: Case Study Analysis Matrix PID22302 / Samiha Khan IDENTIFICATION OF ELEMENTS AND QUALITIES OF SITE 1) HORIZONTAL BEAM RAFTERS (WOOD) 2) HORIZONTAL DOUBLE BEAM TIE SUPPORTS (WOOD) 3) MANGALORE TILE (TERRACOTTA ROOF) TEXTURE AND REFLECTIVE QUALITY OF LIGHT 4) OPENINGS IN ARCUATE VOIDS ON ONE WALLSIMPLE RECTANGULAR VOIDS ON OTHER WALL 5) RUSTIC WOODEN FLOORING 6) NATURE OF LIGHT FLOODING IN THROUGH WINDOWS 4 Analysing the site to identify prominent elements and features :: site view 01

Week 07-08

Reliving history Recreating Da Vinci’s world through materiality

Project Information Site - Kochi Biennale

Module 02 | Role 01 Historical practices through a project representing an ‘era’ Process:

DICHOTOMY

‘is a division or contrast between two things that are or are represented as being opposed or entirely different.’

It is in the absence of a notion that one learns to appreciate the importance of a thought, idea or an object.

As an academic exploration, the design is guided by the idea of dichotomy. The lack of a certain emotion or presence of a certain dichotomous expression can instill in the user an appreciation for the missing experience. The design however departs from this exploration as the semester moves forward.

In this exercise, Da Vinci’s machines have been curated together based on the ideas they projected.

Role 01 | Historical practices through a project representing an ‘era’

5 Module 02 |
6 IDENTIFICATION OF ELEMENTS AND QUALITIES OF SITE 1) MANGALORE TILE (TERRACOTTA ROOF) 2) INSITU CEMENT FLOORING 3) MANGALORE TILE (TERRACOTTA ROOF) TEXTURE AND REFLECTIVE QUALITY OF LIGHT 4) METAL TRUSS AND ITS GEOMETRIC QUALITY 5) GIGANTIC VOLUME Site attributes / qualities of space 1) Vernacular setting 2) Use of local materials like wooden trusses, wooden 4) Traditional construction techniques Analysing the site to identify prominent elements and features :: site view 02
7 Module 02 | Role 01 | Historical practices through a project representing an ‘era’ The Big Rethink: Tectonic Materiality Master Tutor: Prof. Kireet Patel Unit Tutors: Rishav Jain, Aparajita Basu Unit Assistants: Jhanavi Parikh, Jay Odharia M.I.D. | Monsoon 2022 | PG L4 Unit FA | CEPT University Student Name Code No. Synthesis Synthesis Project Name Designer: Case Study Analysis Matrix PID22302 / Samiha Khan IDENTIFICATION OF ELEMENTS AND QUALITIES OF SITE 1) MANGALORE TILE (TERRACOTTA ROOF) 2) INSITU CEMENT FLOORING 3) MANGALORE TILE (TERRACOTTA ROOF) TEXTURE AND REFLECTIVE QUALITY OF LIGHTLIGHT FILTERS IN THROUGH THE MANGALORE TILE EMPHASISING THE TEXTURE OF THE TERRACOTTA TILE 4) METAL TRUSS AND ITS GEOMETRIC QUALITY 5) GIGANTIC VOLUME 6) STRONG SENSE OF HORIZONTALITY CREATED BY THE BEAM AT THE EAVES OF THE TRUSS 7) GIANT WALLS FOR DISPLAY Analysing the site to identify prominent elements and features :: site view 03
8 The Big Rethink: Tectonic Materiality Master Tutor: Prof. Kireet Patel Unit Tutors: Rishav Jain, Aparajita Basu Unit Assistants: Jhanavi Parikh, Jay Odharia M.I.D. Monsoon 2022 PG L4 Unit FA CEPT University Student Name Code No. Synthesis Synthesis Project Name Designer: Case Study Analysis Matrix PID22302 / Samiha Khan Air borne machines Helicopter Wing Ornithopter design Synthesis Project Name Designer: Case Study Analysis Matrix REPRESENTATION OF FLUIDITY BY EXPERIENCING RIGIDITY TIME BASE MACHINES VERGE CLOCK WATER WHEEL WRM DRIVE WARFARE MACHINES AUTOMATION CART BELT AND PULLET MECHANISM Synthesis Project Name Designer: Case Study Analysis Matrix Image 01 process :: early explorations : exploring sand/grit as a textured material with tensile structures as volume modulating elements Image 03 process :: early explorations : modulating space through stone piers with niches

Image 04 process :: early explorations : drawing from existing elements of the

Image 05 process :: early explorations : exploring ways to modulate the ceiling plane in order to prove the hypothesis - altering scale & proportion of space

9 Module 02
|
Role 01 | Historical practices through a project representing an ‘era’

Through the critical lens : reducing the size of the montages with the design intervention will have on the historic site

10

Through the critical lens : erasing the site from the montages : to understand the interior architecture, interior design, interior decoration and interior installation

an ‘era’

11 Module 02 | Role 01 | Historical
through
practices
a project representing
12
13 Module 02 | Role 01 | Historical practices through a project representing an ‘era’
14

is used in forms of wooden square logs, wooden planks and

Response to volume :: intervention on the ceilings to modulate

Response to space :: intervention designed for user to navigate through the space and interact with ; to alter

15 Module 02 | Role 01 | Historical practices through a project representing an ‘era’
Content
The BIG Re-think Tectonic Materiality of Interior Elements Master Tutor : Prof. Kireet Patel Studio Tutors: Rishav Jain, Aparajita Basu TA: Jay Odharia, Jhanavi Parikh Master of Interior Design Monsoon 2022 | Faculty of Architecture CEPT University Samiha Khan PID22302 ID 4030 | Level 4 | PG Program 02 MODULE Current modern practices through a project representing a ‘Standardization’ ROLE 02 ORGANIZING ‘MATERIALITY’ The Hall Of Frames Vision of Da Vinci through the modern grid
Content
MODULE 02
Role 02 | ORGANIZING ‘MATERIALITY’ Current modern practices through a project representing a ‘Standardization’ 1. Site Attributes Analysis 2. Early explorations 3. The design response 4. Inferences from tectonic materiality 5 7 8 16

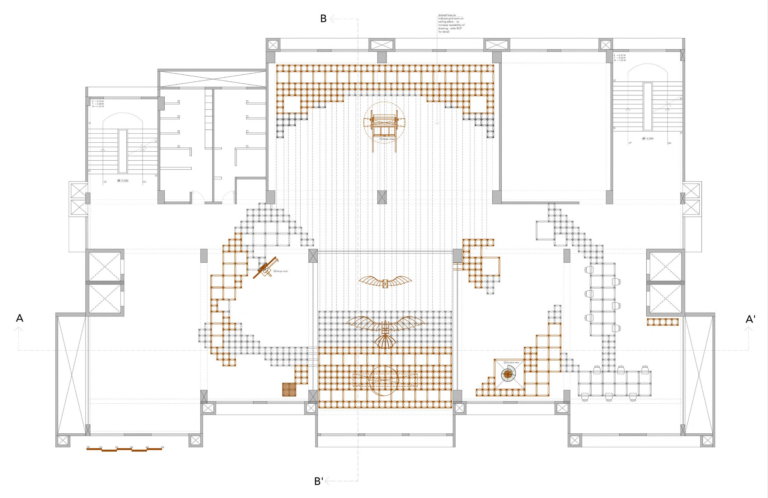
Detail plan & section :: to explore how the grid can extend to encompass all interior requirements : space within a space : grid as furniture

4

Week 09-11

Module 02 | Role 02 | Organizing ‘Materiality’

Current modern practices through a project representing a ‘Standardization’

Through the cube

Vision of Da Vinci through the modern grid

Project Information Site - School of Architecture total area of intervention = 2000 sqmt approx.

Process:

The space is designed to enhance the feeling of the qualities these Da Vinci machines posses. The space is modulated by a rigid cuboidal module that the restrictions of the cube, furthering the notion of rigidity. The cubical volumes are derived from the golden ratio and are modulated in the same spirit to generate volumetric

This is an attempt at creating a sense of scale and proportion in the space through these varying grid patterns.

architecture shell. The intervention encompasses all interior requirements including display spaces, accommodation of

The grid responds differently to the architecture shellchanging levels of porosity near openings to create different spatial experiences as the user navigates through the space.

5 Module 02 | Role 02 | Organizing ‘Materiality’
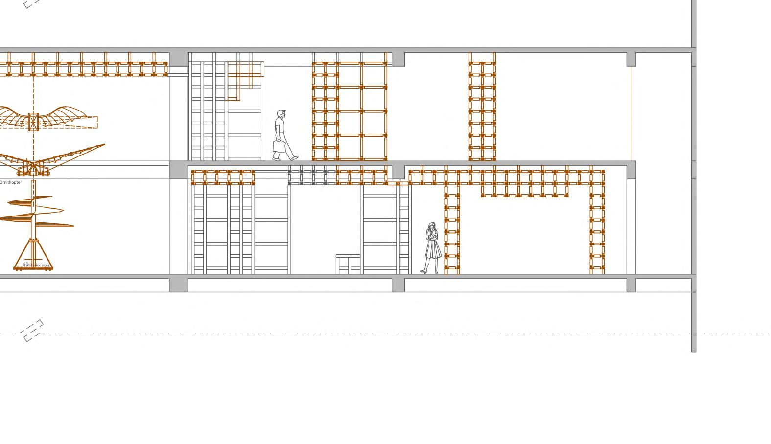
6 SECTION A-A' LONGITUDINAL THROUGH DOUBLE HEIGHT airborne machine 02-04 A A' B' B FLOOR PLAN 01 (FF) EXPLORING LOCATION OF DA VINCI MACHINES time fluidity based machines time fluidity based machines Initial section development : process work The architecture shell

curating different experiences as the user navigates

7 Module 02 | Role 02 | Organizing ‘Materiality’ airborne machines in ascending heights modulation of space through element B' B Process model photos :: exploring the 3rd dimension of the elements
8

Section

Detail plan & section :: showing response to air borne machines

9 Module 02 | Role 02 | Organizing ‘Materiality’
10
11 Module 02 | Role 02 | Organizing ‘Materiality’

section

Plan

Detail plan & section :: showing response to Golbloid gear mechanism

12

section

13 Module 02 | Role 02 | Organizing ‘Materiality’

section

Plan

Detail plan & section :: showing response to Double helix mechanism

14

ISOMETRIC DWG OF PLAN 01

showing design response to double helix mechanism

Isometric drawing :: showing design response to double helix mechanism

ISOMETRIC DWG OF PLAN 04

showing design response to verge clock mechanism

Isometric drawing :: showing design response to verge clock mechanism

15 Module 02 | Role 02 |
‘Materiality’
Organizing

Criteria for selection of ‘Material’

of the high rise site. and mass production.

What ‘Material’ has been used?

Where ‘Material’ has been used?

The grid as the singular interior element has been used throughout the units, to aid interior services etc.

16

45mm

3" x 3" hollow al. section3mm thickness

wooden piece with tooth fitted into horizontal al. section for fixity 45mm wooden section continued to form the joint

PLAN DETAIL OF HORIZONTAL AL SECTION TO WOODEN CONNECTOR

al section anchor bolted to RCC slab

RCC slab

3"x3" C al. channelbolted to slab - to receive vertical member

full threaded metal screw - 4mm Ø - 25mm length

wooden piece screwed into al. section for fixity

3"x3" hollow al. section3mm thickness

DETAIL OF VERTICAL MEMBER TO CEILING SLAB JOINERY

3" x 3" hollow al. section3mm thickness wooden piece screwed into al. section for fixity

full threaded metal screw4mm Ø - 25mm length

3"x3" C al. cap - bolted to slab - to receive vertical member RCC slab al section anchor bolted to RCC slab

DETAIL OF VERTICAL MEMBER TO FLOOR SLAB JOINERY - 01

3" x 3" hollow al. section - 3mm thickness

wooden piece screwed into al. section for fixity

3" x 3" hollow al. section - 3mm thickness

RCC slab

al section anchor bolted to RCC slab

DETAIL OF VERTICAL MEMBER TO FLOOR SLAB JOINERY - 02

17 Module 02 | Role 02 | Organizing ‘Materiality’ + 1 3 1&2 3 1 3 2 1 3 2
DETAIL OF ASSEMBLY OF WOODEN JOINT
solid wooden section with rebate to receive other members
45mm solid wooden section with cylindrical member carved to enable a twisting movement 1- Type of members 2- joinery of vertical member to first horizontal member 3- joinery of vertical member to both horizontal members 4- twisting member type 3 to fit into place - creating a rigid joint
Content
The BIG Re-think Tectonic Materiality of Interior Elements Master Tutor : Prof. Kireet Patel Studio Tutors: Rishav Jain, Aparajita Basu TA: Jay Odharia, Jhanavi Parikh Master of Interior Design Monsoon 2022 | Faculty of Architecture CEPT University ID 4030 | Level 4 | PG Program Collaborative practices through a project representing an ‘identity’ ROLE 03 MATERIALISING THE INTERIOR SPECIALISATION 02 MODULE Samiha Khan PID22302 The earthen maze journey of a traditional material
Content

Role 03 | MATERIALISING THE INTERIOR SPECIALISATION

Collaborative practices through a project representing an ‘identity’

1. Conceptualisation

The spatial experience

2. Tectonics of materiality : stages

Tectonics of space through material exploration

3. Play of shadows : exploring light and shadows

Through 3D exploration of the interior elements

4. Inferences

Understanding materiality and way forward through use of technology

5 10 18 20

MODULE 02
4
View showing the shadows cast by the jaali screens in space

Week 12-16

The earthen maze Journey of a traditional material

Project Information Site - context less design

Module 02 | Role 03 | Materialising the Interior Specialisation Collaborative practices through a project representing an ‘identity’ Process: conceptualising the space

Conceptualising the space

The initial notion that guided the design was to maintain the sense of dichotomy - hence a sense of rigidity.

The maze as a design concept was adopted. The space attempt to create the illusion of a maze, the panels designed so to create circulation that inspires the user to meander through the space.

The terracotta jaali panels add the required textural depth to the multiple panels, their varying textures, patterns and colours breaking the monotony of the assembly.

5 Module 02 | Role 03 | Materialising the Interior Specialisation

Charcoal sketch : inside outside

Charcoal sketch : movement

Charcoal sketch : inside outside

Design informed by experience :: charcoal sketches : exploring different aspects of spatial experience such as inside outside relationships, light and shadows, movement, scale and volume

6

Charcoal

Charcoal

Charcoal

7 Module 02 | Role 03 | Materialising the Interior Specialisation
Charcoal sketch : light sketch : light sketch : volume sketch : scale

First response :: perspective view 01 to depict any one experience in space :: depicting scale & movement

8

First response :: perspective view 02 to depict any one experience in space :: depicting scale & movement

9 Module 02 | Role 03 | Materialising the Interior Specialisation

Response 02 :: detailing the perspective : schematic exploration of tectonics of materiality through :: development of the

10
11 Module 02 | Role 03 |
Specialisation
Materialising the Interior
the system of terracotta jaalis panels :: overview

Response 02 :: detailing the perspective : schematic exploration of tectonics of materiality through :: development of the system of terracotta jaalis panels :: part view to show display areas

Response 02 :: detailing the perspective : schematic exploration of tectonics of materiality through :: development of the system of terracotta jaalis panels :: view highlighting circulation

12

Response 02 :: detailing the perspective : schematic exploration of tectonics of materiality through :: development of the system of terracotta jaalis panels :: view exploring symmetrical interventions for ease of navigation and display

13 Module 02 | Role 03 | Materialising the Interior Specialisation

The experience of the space

The design tries to explore the inside outside relationship of a space. This in an interior setting, gives way for exploring how spaces transition from one display space to the other. The change in the perforations of the jaali panels alter the fabric of the whole space. This helps create a sense of intrigue in the users as they navigate from one display space to the other. This is an attempt at creating a sense of scale and proportion in the space through the jaali panels varying in levels of porosity.

14
The genesis :: Using maze like patterns to create inside outside relationships within the interior space Final view 01 :: showing tectonics of assembly of the terracotta jaali panels
15 Module 02 | Role 03 | Materialising the Interior Specialisation
Final view 02 :: showing the play of light and shadows and the subsequent textural quality added to the space by the terracotta panels
16
Final view 03 :: showing the overall space - terracotta being essentially an outdoor material - exploring textures and colours
17 Module 02 | Role 03 |
Materialising the Interior Specialisation colours of terracotta in the interior space
18
View exploring the shadows the terracotta jaali panels cast in the space
19 Module 02 | Role 03 | Materialising the Interior Specialisation
3D exploration of the space and the interior element

Criteria for selection of ‘Material’

To explore an unconventional natural interior material ; terracotta bricks as panels

What ‘Material’ has been used?

Terracotta brick panels ; opaque bricks, jail bricks, textured surface bricks are explored further through the project. The terracotta bricks are custom made in size to suit interior proportions.

Where ‘Material’ has been used?

Response to volume :: intervention on the ceilings to modulate the volume to emphasise displayed objects and overall user overall experience.

Response to space :: intervention designed for user to navigate through the space and interact with - to alter perception of space.

Criteria for use of ‘Material’

Attempts at exploring 3D printing as a material technique - to develop a new relationship between traditional materials and new age technologies.

How ‘Material’ has been used?

Terracotta as a natural material has an inherent rustic texture. The bricks are woven with metal bars to create a perforated screen. These screens collectively create an indoor outdoor ( space to space ) relationship. The texture of terracotta and the perforations of the screens impart an inherent character to the space, making a base for the display of the Da Vinci machines. further through the project. The terracotta bricks are custom made in size to suit interior proportions.

20

8mm MS bar welded to base plate

12mm MS hollow pipe as spacer

8mm MS base plate anchor bolted to floor/ceiling slab

RCC slab

DETAIL OF VERTICAL MEMBER TO CEILING / FLOOR SLAB JOINERY

Detail of vertical member to ceiling /

250x150x50mm terracotta brick panel

12mm MS hollow pipe as spacer for certain panels

8mm MS bar piercing (weaving) through bricks on both endacting as main support

DETAIL OF SPACERS BETWEEN TILES

Detail of spacers between terracotta tiles to create jaali

coarse sand + pebble flooring filling

8mm MS base plate anchor bolted to floor/ceiling slab

3" deep channel with small gravel 10mm full body tile / stone/ terrazzo flooring

8mm MS bar welded to base plate 12mm MS hollow pipe as spacer

RCC slab

DETAIL OF VERTICAL MEMBER TO CEILING / FLOOR SLAB JOINERY

the jaali panel joinery

250x150x50mm terracotta brick panel

8mm MS bar welded to base plate with threads at end to receive nut for fixing

12mm MS hollow pipe as spacer for certain panels

DETAIL OF HANGING PANEL END SYSTEM

Detail of hanging panel end system

DETAIL VIEW OF SYSTEM OF ASSEMBLY

DETAIL VIEW OF SYSTEM OF ASSEMBLY

Detail view of system of assembly of terracotta bricks

21 Module 02 | Role 03 | Materialising the Interior Specialisation

Forward:

In regions of extreme cold the distinction between inner and outer spaces is very sharp. The interior is a trapped insulated space within a weather resistant box that sits in the cold exterior. The architect has to create within the confines of this sharply defined box, the transition of which is simplistic and minimal: the front door. Herein, the exterior and the interior are a pair of opposites existing in a simplistic duality. Seen from Miesian perspective, it is a steel and glass box sitting isolated in the open space.

On the contrary is the manifestation of the spatial built of the warmer climes. The juxtaposition of the closed box and the open space surrounding it is softened by a series of zones with varying degrees and magnitude of safety and security. This continuum from interior to exterior makes for a complex yet interesting journey. The sequence moves from being within the interior space to maybe a veranda then onto a courtyard and then finding oneself under the shade of a tree. Moving further one may find oneself on a terrace covered by a bamboo pergola. One may also move from a room to a balcony and so forth.

The author here has explored this very relationship. The demarcation by physical boundary between the zones is not formal and sharp. Rather it is amorphous and easy. One experiences this transition in a reinforced manner by subtle modulations of light, changing quality of ambient air and views. Thus this transition registers in our senses making it an experiential journey. Elements of nature are involved in making this a robust experience. One sees an exploration of terracotta, an essentially outdoor material, used in a rather interior space, furthering the blurry lines of the indoors and the outdoors. Jaali panels make a maze like experience connecting to form intimate spaces for display.

22
Content

Samiha Khan PID22302 samiha.pid22302@cept.ac.in

Master of Interior Design Monsoon 2022 | Faculty of Architecture CEPT University

The BIG Re-think Tectonic Materiality of Interior Elements
ID 4030 | Level 4

Turn static files into dynamic content formats.

Create a flipbook
Tectonic Materiality :: The hall of frames ; re-living Da Vinci's world by Samiha Khan - Issuu