Portfolio Interior Architecture

Page 1

is one thing, execution is another»Marco Pierre White

«Idea

Antwerp - The The Lodge in the Wood Hasselt - The Clavis Project

Brussels - The Expo XS Project

Brussels - The Brussels Ambassy

Antwerp - The Multidisciplinairy Table

Antwerp - The Art Conservotary Centre (Casestudy Time & Space)

Antwerp - The Library Project

02Internship

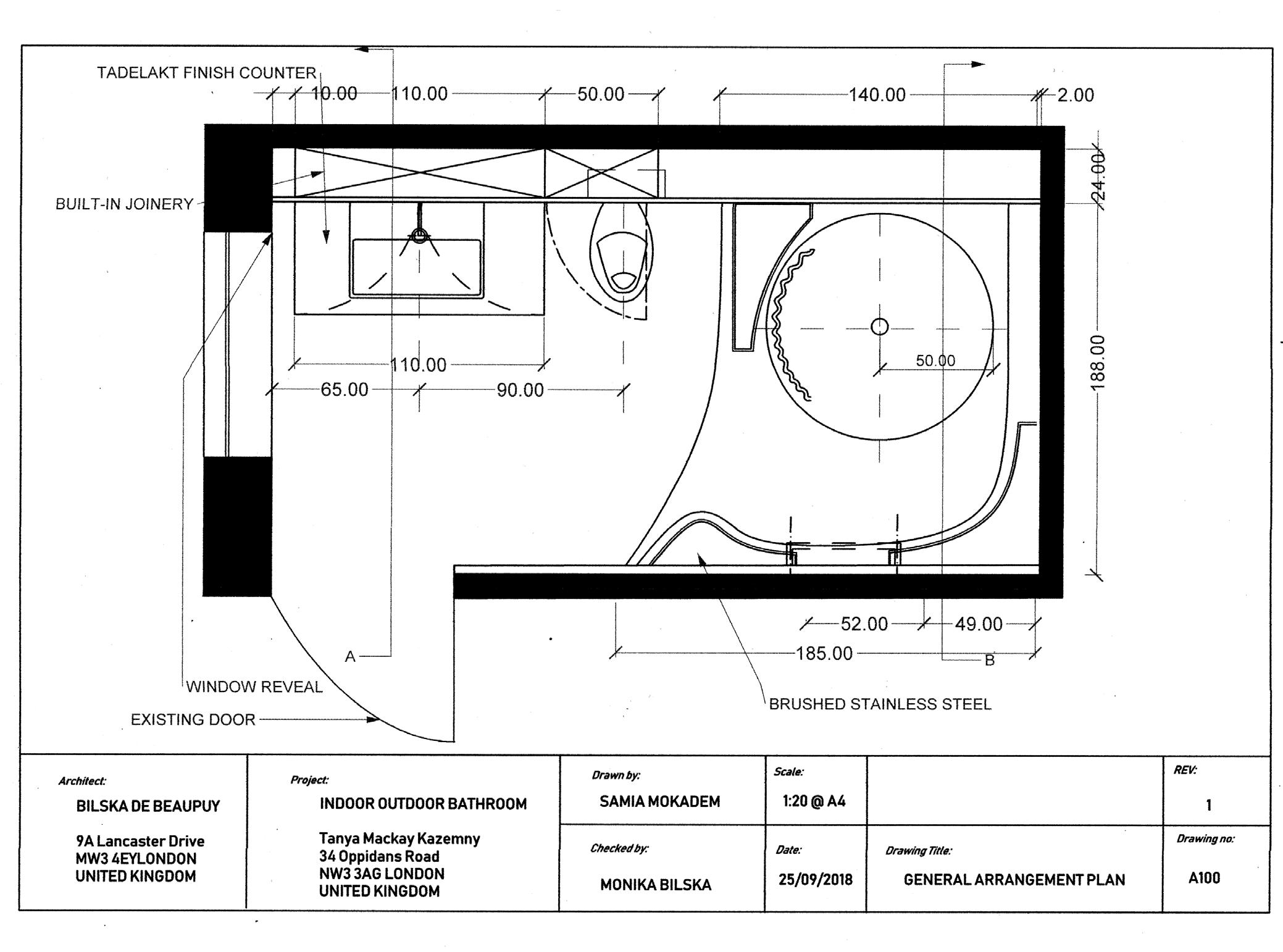
London - Bilska De Beaupuy Architect

03Furniture Design

Brussels - P9L 04

Preface
00
01 Architecture
Personal Research & Sketches
Architecture

To build something is to assemble parts that create, define and enclose space. The works presented in this body of work is a showcase, an array of a method and idea with the same end goal: The creation of fun architecture.

00 Preface

This portfolio includes a diversity of projects. The projects will include academic and individual attempts at creating an innovative interior. The purpose is to stay free-spirited.

I would like to dedicate this to Kris De Plecker, Ann Gewillig, Bram Ollieuz and Jerroen Verrecht.

With my first degree as an interior designer at LUCA School of Arts. I have always found my way back to pens and paper.

In this portfolio, I will discuss and present a body of work on multiple facets. In regards to interior design, retail design, and furniture design

From an early age, I had always had a fascination for design in all its degrees. Through visual concepts and dedicated research, I go through the first prototype of work.

HospitalityThe Lodge in the Wood

Antwerp

This project was carried out in 2017. Located in a neighbourhood called Lokeren somewhere in Antwerp. Surrounded by nature and a large lake; there is a wooden house that needed a renovation.

«The Clavis Project» began in my first year of interior design.

Located in Hasselt, there is a publishing office named «Clavis». Their work consists of publishing books for children. Besides their office, their was demand for a innovative concept inregards of a pop-up shop, a coffee shop, and a hotel room, ...

The whole purpose was to have fun like their little customers.

Hospitality and Retail -

(A scenography project presented in models) Hasselt The Clavis Project

Residence

«Appartement XS!»

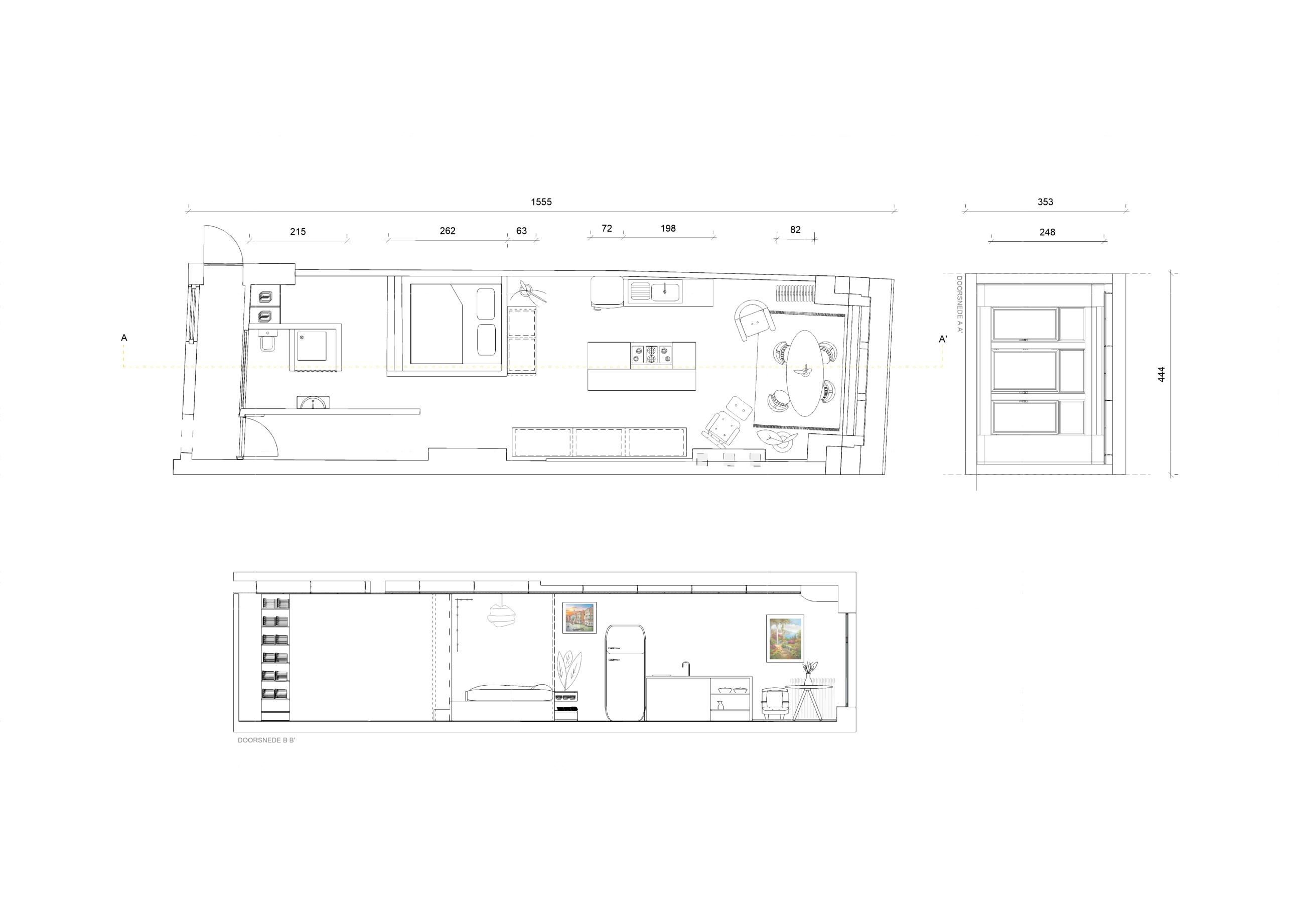
The Expo XS Porject consists how much use we can gain with litmitated space. Brussels is know for her densitiy. Apparatements get smaller. The need to find space and effiency becomes more difffuclt.

In this following chapter there will be a display of a small appartement located in Brussel Central.

This Exposition called «XS», which represents the size of the apartment and with that, we showed just how much you can benefit from a small space.

I begin by making a profile. Who lives in your appartement? What is his or hers line of work? What is required of him or her? How

I built the flat with an Italian chef in mind. A university student who calls Brussels home and aspires to open his own restaurant someday.

Vectorworks Educational Version Vectorworks Educational Version

Brussels

The Brussels Ambassy Diplomatic

marsveldstraat marsveldstraat hoornestraat ergmonstraat marnixlaan marnixlaan Marnixlaan Regentlaan Boomkwekerijstraat Boomkwekerijstraat Boomkwekerijstraat Troonplein Naamsestraat Naamsestraat Pippelingenstraat Kernstraat Gulden-Vlieslaan Waversesteenweg deStassartstraat marsveldstraat marsveldstraat Theresianenstraat Waterloolaan Waterloolaan Kernstraat Waterloolaan Waterloolaan de Stassartstraat Regentlaan Marnixlaan Regentlaan Waversesteenweg Elsesteenweg M
JUBELPARK KONINKLIJK PALEIS VAN BRUSSEL FLAGEY EUROPEES PARLEMENT GROTE MARKT Bachelorproef: Onderzoek Omgevingsplan: Naamsepoort te Brussel (Elsene) Square de Bastion Hotel: Chamberon Kunstgalerij: Waterloo Galerij Toison d'Or 3IV 25/02/2019 Luca School Of Arts
Educational Version
JUSTITIEPALEIS
Vectorworks
Vectorworks Educational Version
Antwerp -
Table
The Multidisciplinary
Scenography

RESEARCH MODEL MOCKUPS

&

«A Table!»

The table has been the centerpiece of our home for many years and has been through many changes over the years. It has a history as being the furniture with the main productivity of a household.

Due to the pandemic, people have started to combine all activities, so they had to put the tables together. At first, this all seemed to run smoothly but in reality, chaos ensued as the whole family had to get everything mixed up or at the same time to get everything combined.

In this following chapter. Is a scenography displayed in models and mockups.

By adapting a multidisciplinary approach on this project. How much can a furniture mean to our daily life? This absurd image of different tables is formed by the a chaotic succession of activities.

My Portaits

Photography/2018/Bedroom
Antwerp The Art Conservatory of FlandersCasestudy Time & Space Vectorworks Educational Version

«The Art Conservatory of Flanders.»

We invite you to our world where art is loved and cherished. By immersing themselves in our world of artworks and studios, children will have a new view of the art world. They learn to show solidarity and to respect each other. They are going to present the coolest and most educational courses for a week.

We allow them to discover their talents. Many teens never take the chance to enroll in an art school, but we make sure they take that first step.

Introductie

JUNO is de jeugdbewegeing van de toekomst.

In een jeugdbeweging spelen alle kinderen samen in groep. Zo maken ze nieuwe vrienden en veel plezier. Ze leren om solidair te zijn en elkaar te respecteren. Er is veel variatie in de programma van activiteiten. Maar de team van JUNO zorgt ervoor dat deze activiteiten iets bij brengen. Daarom houden we ons bezig met het klimaat en het milieu. We houden ons bezig met de omging waar we ons bevinden en leren meer over de natuur aan de hand van verschillende spelletjes.

Zo kunnen alle kinderen bij JUNO wel iets vinden wat ze graag doen. Het is een plaats waar kinderen ervaringen kunnen opdoen, en waar ze fouten mogen maken.We geven kinderen de kans om veilig buiten te spelen.Veel kinderen gaan voor de eerste keer van huis weg als ze op kamp gaan. Zo leren ze zelfstandig zijn.

Waar je de tijd vergeet, maar in groep herinneringen maakt. Een plek waar men het zo naar ons zin heeft, dat men niet beseft dat de tijd voorbij draait. Een plek waar je niet

de beste, de snelste of de slimste moet zijn,maar gewoon mag ‘zijn’. Helemaal jezelf.

SIDE ELEVATION FRONT ELEVATION 3000 3000 8000 300 5000 2000 3000 3000 2000 13300 G.L +0 G.L +300 BED ROOM G.L 300 BED ROOM G.L 3300 BED ROOM G.L 300 BED ROOM G.L 3300 BATHROOM G.L 300 BATHROOM G.L 300 SLAB LEVEL D1 D1 G.L +300 SECTION A-A G.L +0 SIDE ELEVATION FRONT ELEVATION 3000 3000 8000 300 5000 2000 3000 3000 2000 13300 G.L +0 G.L +300 BED ROOM G.L 300 BED ROOM G.L 3300 BED ROOM G.L 300 BED ROOM G.L 3300 BATHROOM G.L 300 BATHROOM G.L 300 SLAB LEVEL G.L 6000 D1 D1 G.L +300 SECTION A-A G.L +0 Het Kusko Kunst Conservatorium Dwarssnede & Doorsnede 1/50 Samia Mokadem Universiteit Antwerpen above evelations
13 606 93 53 48 2 9 5 10 00 100 100 100 10 2 4 6 7 1 3 990 144 109 53 96 4 0 145 261 221 60 349 221 2 4 6 5 261 36 820 400 181 412 428 4 9 2 8 4 8 9 Vectorworks Educational Version
AntwerpHospitality A community library Vectorworks Educational Version

The balance between serenity and dynamism is what we are looking for with “The Crescendo way”. Just like in the music world, we use transitional dynamics where all elements are equally strong and in cohesion with each other.

This project was for a client in Balen (Antwerp). Where I enjoyed remodeling a community library.

«The Crescendo Way!»

Computer lab and printers along with supplies

Three music rooms that integrate with social interior space

Makerspace: 3D-printer, Lasercut

Mobile and transformable walls for an exhibition space

Book storage space for school activities and seasonal books

Tribune for meeting, meeting point, reading,...

Children’s department with cupboards of different heights, according to age. Preschoolers sit on the left and students from the first through sixth grade sit on the right. Display on top is possible.

Self-serving bar with different heights.

Toddler books and sitting-waiting area for parents.

«Booth» for image and sound. By means of a library card and self-checkout scanner, you can browse between the CDs and DVDs and then watch / listen to teasers in the «booths». In this way one does not have to remember a large number of titles. In addition, one can look up material on the screens, image and sound. You can also look up and discover visual and audio material on the screens. («Featured», «This is currently playing in the reading cafe», «More of this genre»)

Vectorworks Educational Version

program of requirements

Model 1-200

A stool designed for childeren!

London Bilska De Beaupuy Architect 02Internship
Floorplan
A Landscape plane drawn by hand in watercolour
P9L Project 03Furniture Design

Datum

Technische tekeningen van een woonkamer lamp Samia Mokadem 22 januari 2017

Docent Bert Koeck Blad Vooraanzicht - zijaanzicht bovenaanzicht Schaal 1/1

Eenheid cm

Materiaal Metale, glas

Verbindingen Schroeven en bouten

VOORAANZICHT BOVENAANZICHT

Opmerkingen De houder van het lamp is in realiteit 1m37 hoog. Aangezien het blad niet groot genoeg is, is het verdeeld tot de helft.

Opmerkingen De houder van het lamp is in realiteit 1m37 hoog. Aangezien het blad niet groot genoeg is, is het verdeeld tot de helft.

Ontwerp Naam Datum Technische
woonkamer lamp Samia Mokadem 22 januari
Docent Bert Koeck Blad
Materiaal
25 Technieken Lassen 25
BOVENAANZICHT AANZICHT 1,2 1 13 15,3 21 65
Naam
tekeningen van een
2017
Vooraanzicht - zijaanzicht bovenaanzicht Schaal 1/1 Eenheid cm
Metale, glas Verbindingen Schroeven en bouten
VOORAANZICHT
Ontwerp
14 10 25
25
Technieken Lassen
1,2 1 13 15,3 21
AANZICHT

«P9L Lounge Chair!»

By using a CNC router, I designed the P9L Lounge Chair. The chair is made out of 14 interlocking parts that are connected using wood glue adding structural integrity.

The biggest challlenge with this chair was creating an organic design from flat surfaces. The seat and backrest are each composed of 3 flat parts that conform to the body making it sleek and ergonomic.

RESEARCH

SKETCHES &

Turn static files into dynamic content formats.

Create a flipbook
Issuu converts static files into: digital portfolios, online yearbooks, online catalogs, digital photo albums and more. Sign up and create your flipbook.